Скачать Типовой проект 272-14-16 Альбом IV. Электрическое освещение и силовое электрооборудование. Автоматизация устройств инженерного оборудования. Связь и сигнализацияДата актуализации: 01.01.2021
|
| Обозначение: | Типовой проект 272-14-16 |
| Обозначение англ: | 272-14-16 |
| Статус: | действует |
| Название рус.: | Альбом IV. Электрическое освещение и силовое электрооборудование. Автоматизация устройств инженерного оборудования. Связь и сигнализация |
| Дата добавления в базу: | 01.09.2013 |
| Дата актуализации: | 01.01.2021 |
| Дата введения: | 23.10.1981 |
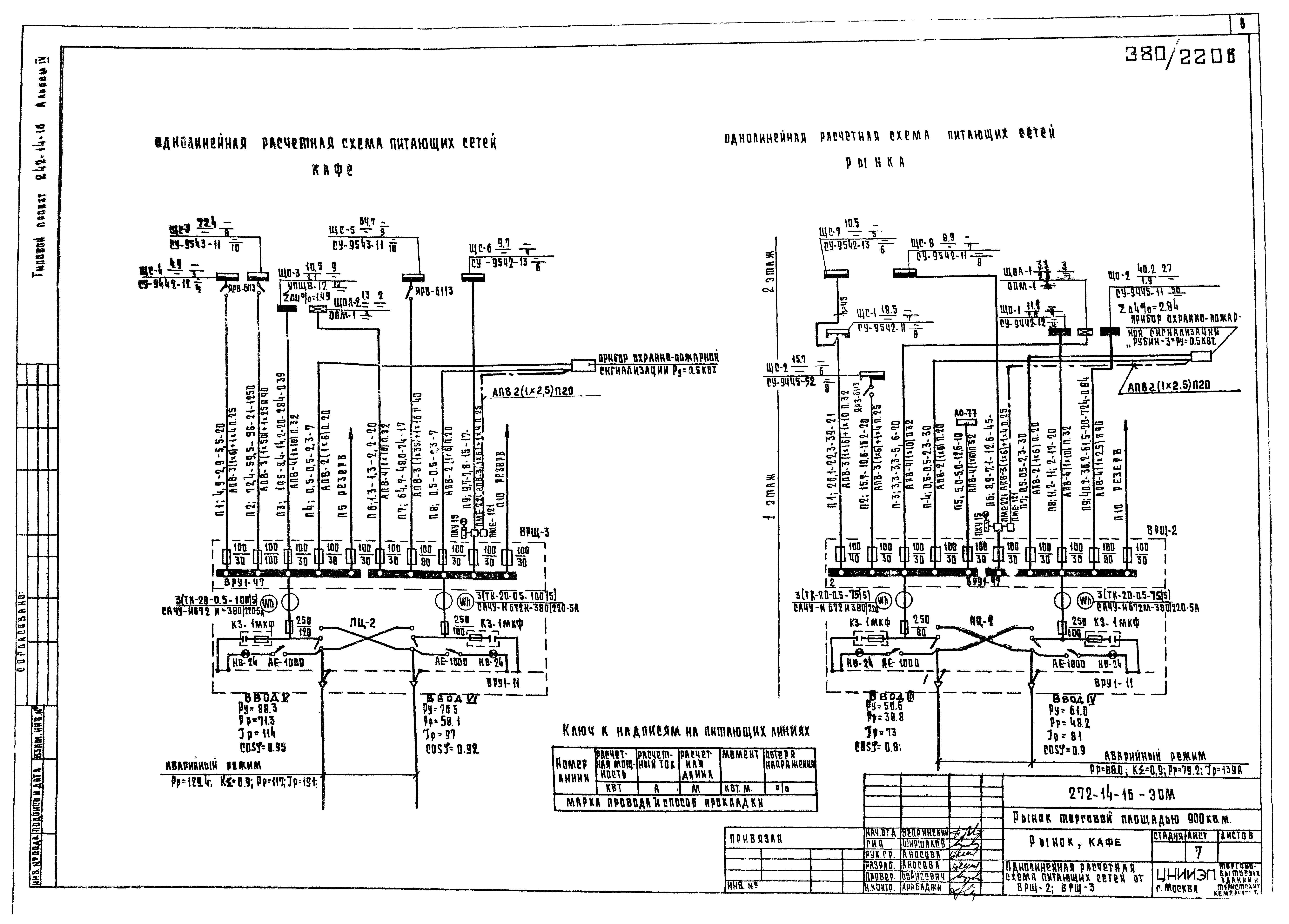
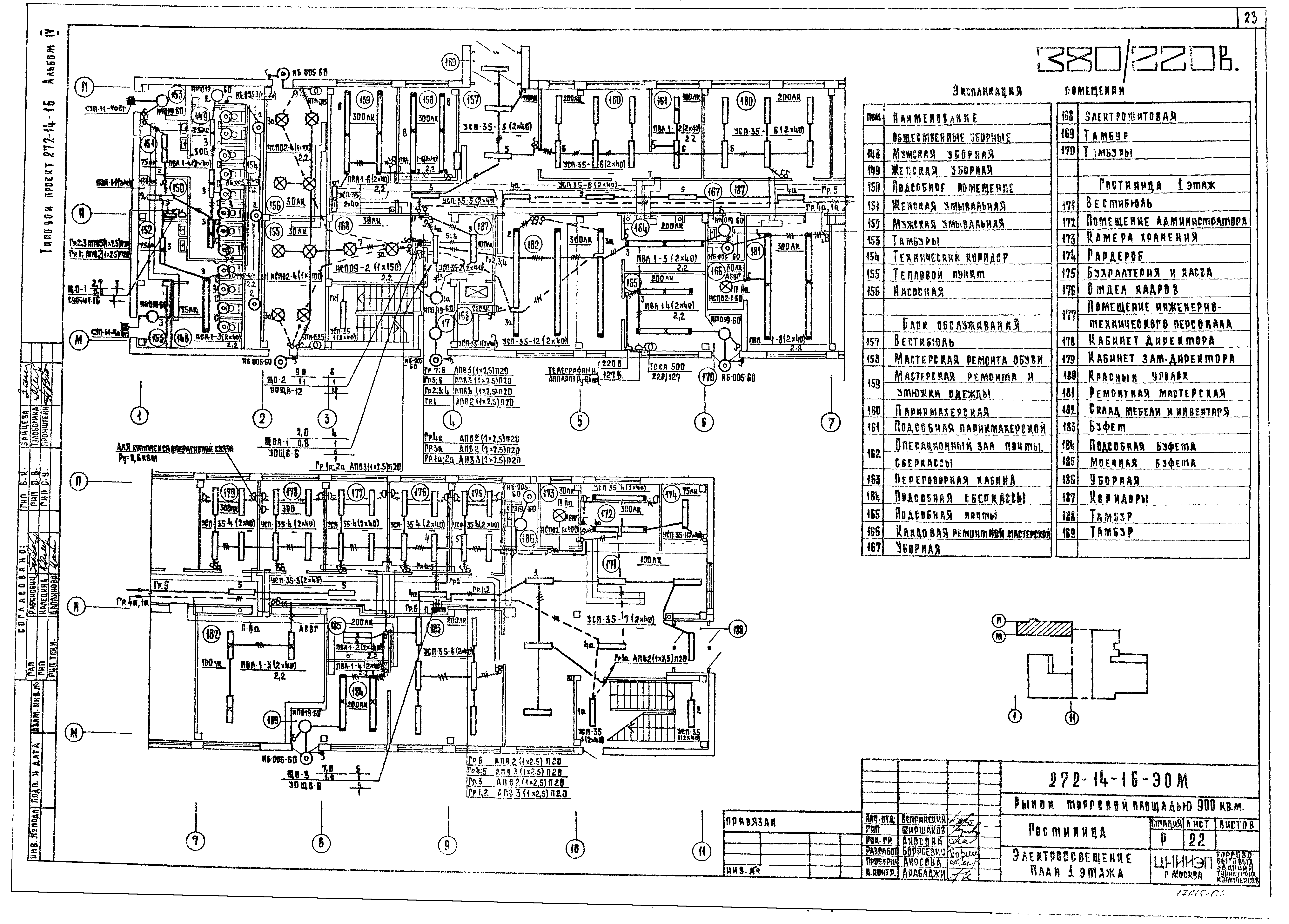
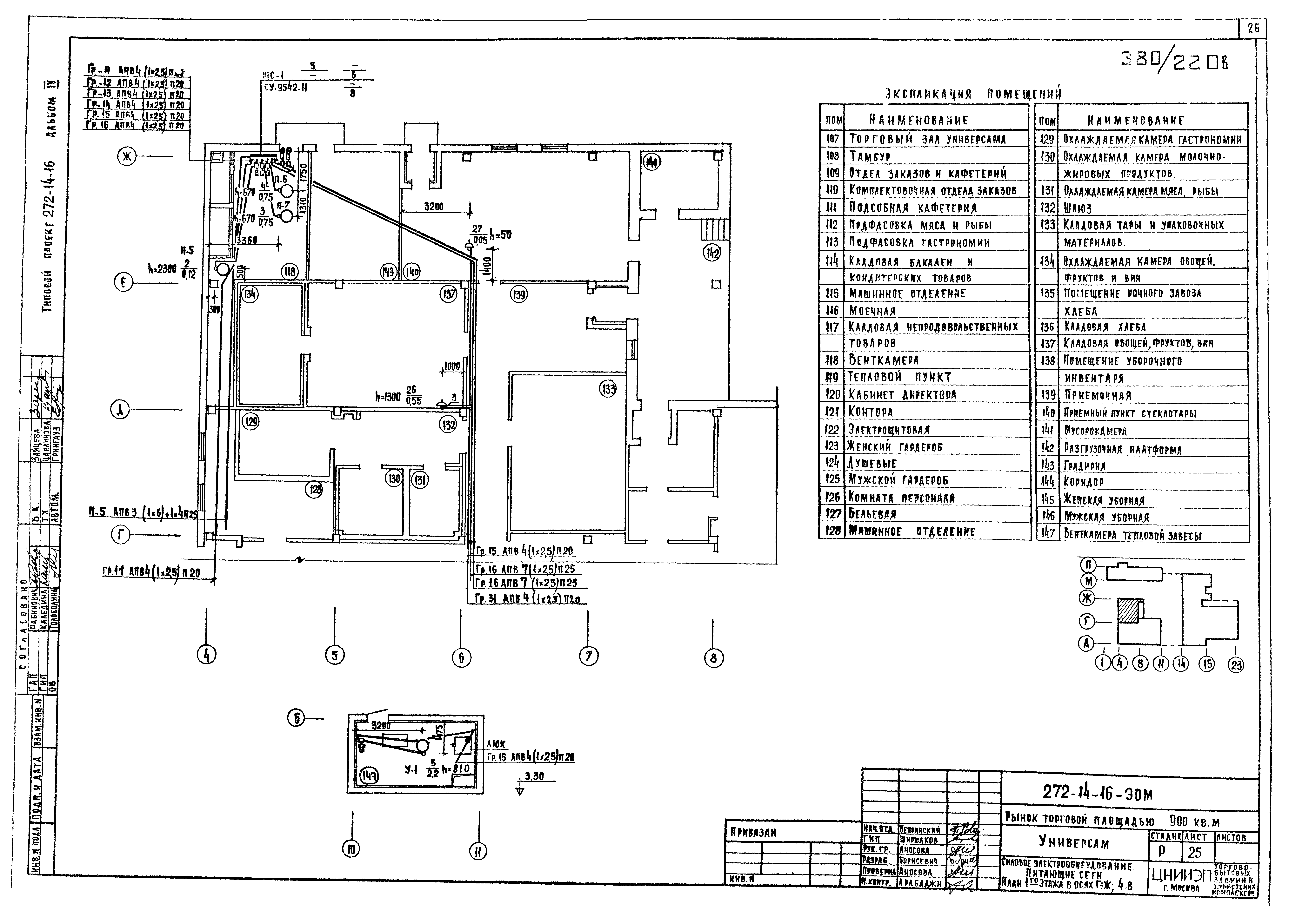
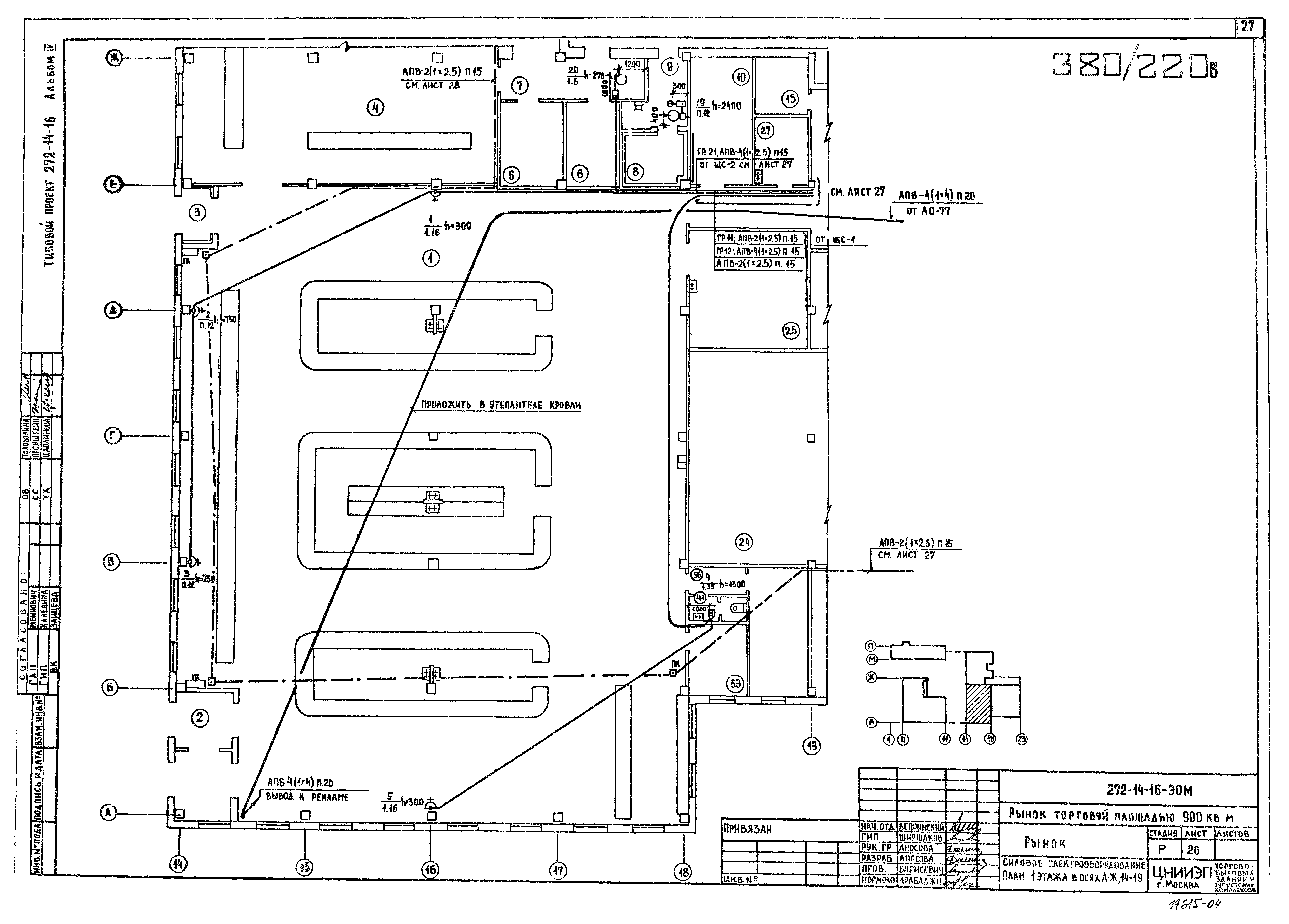
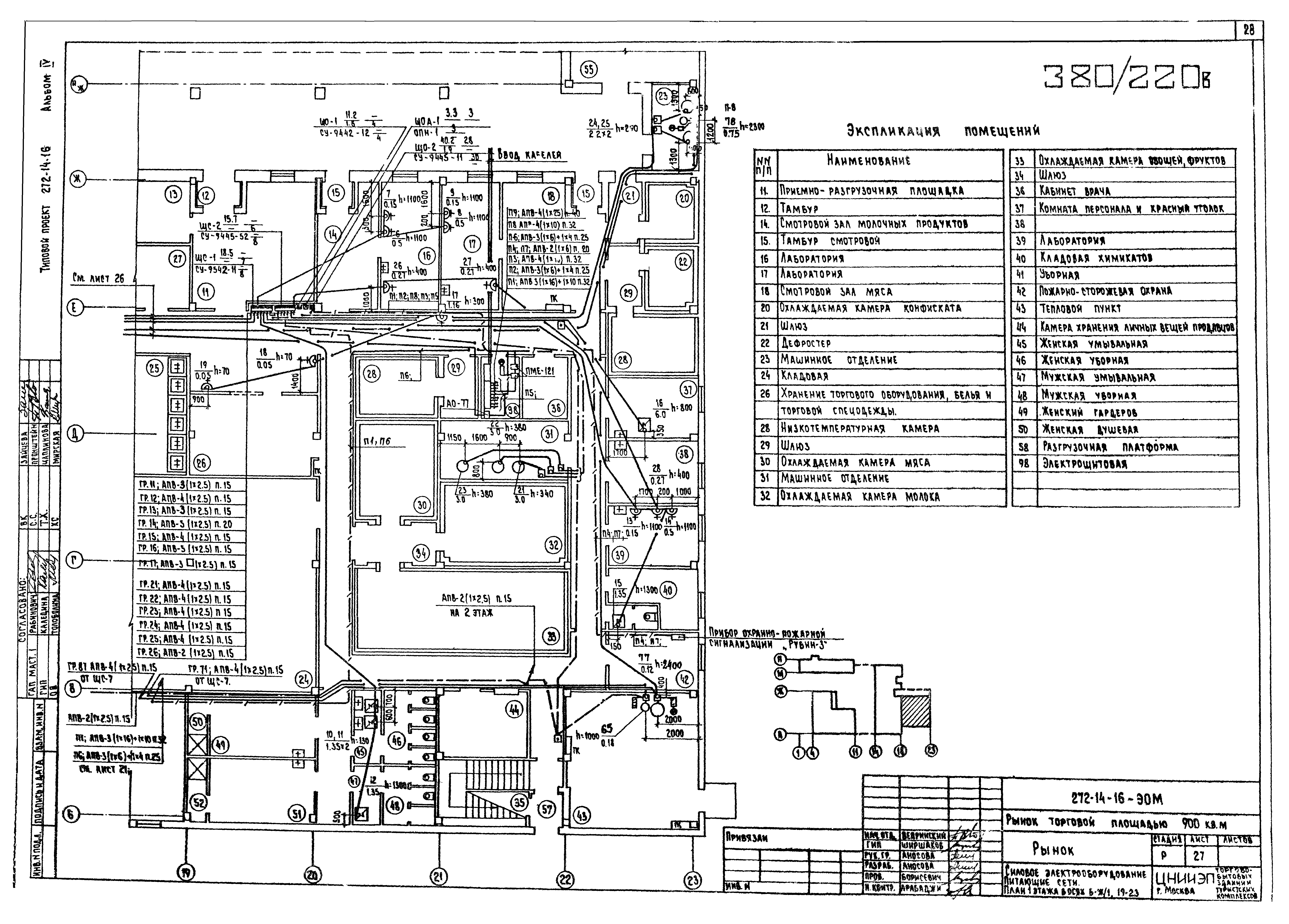
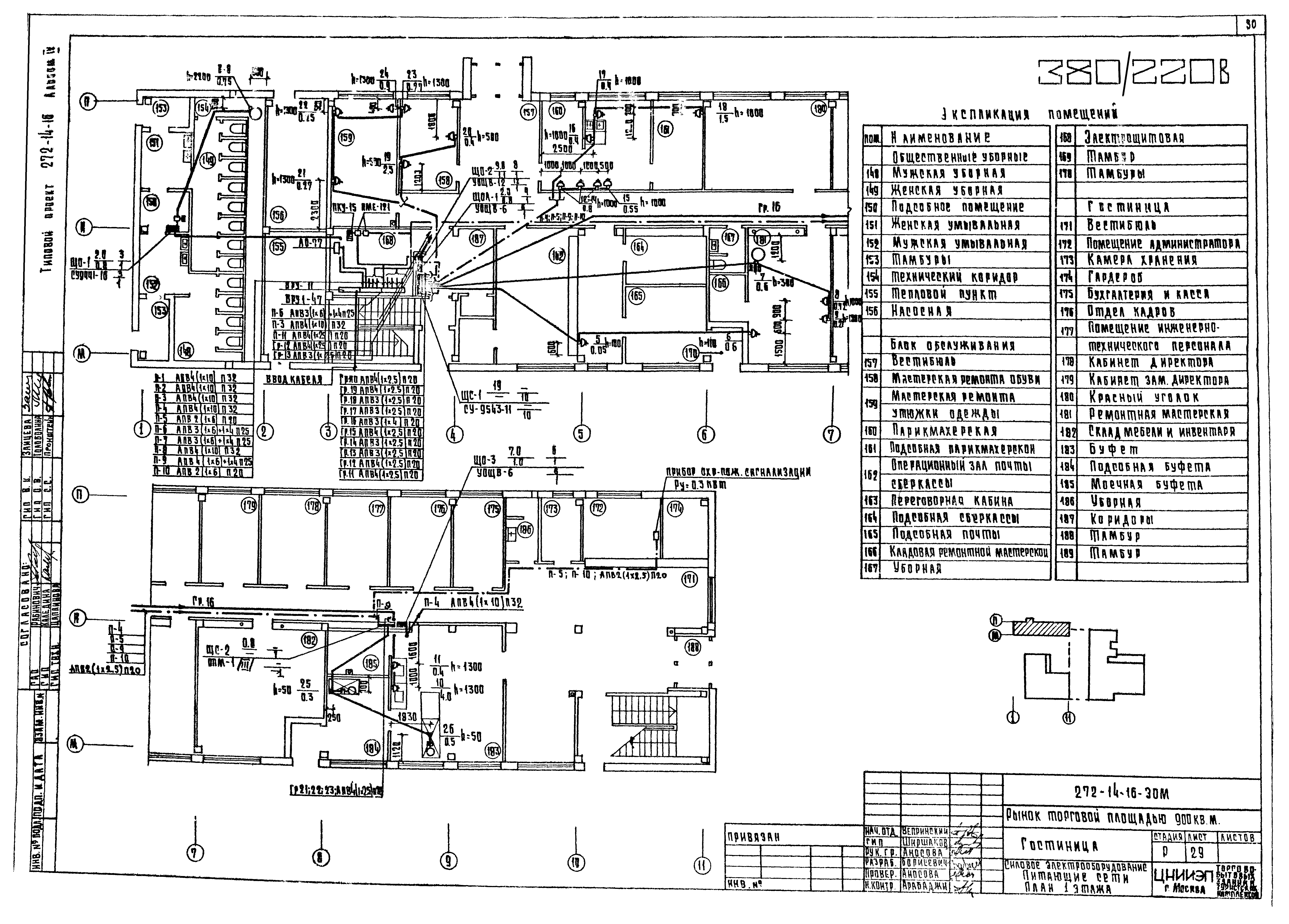
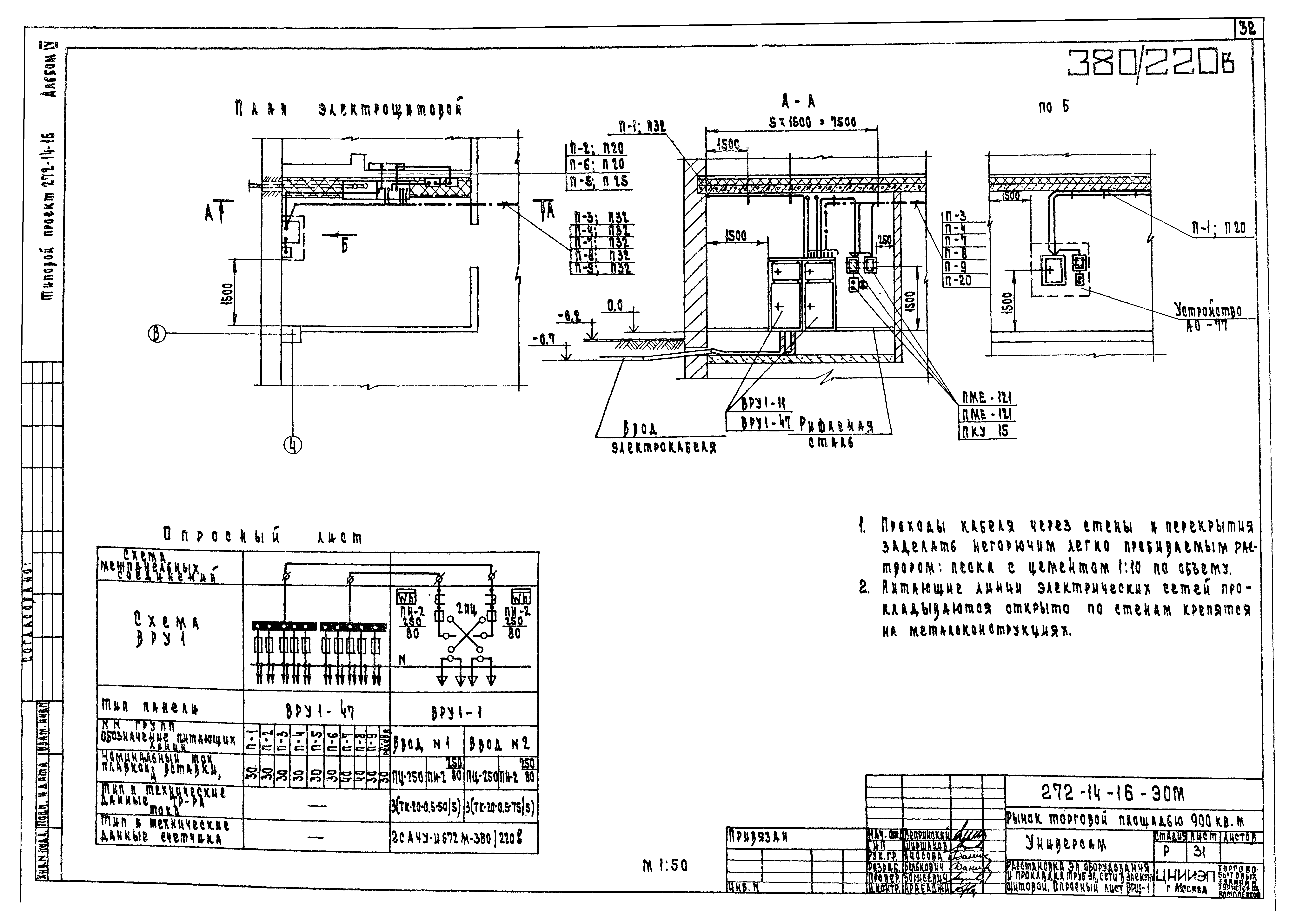
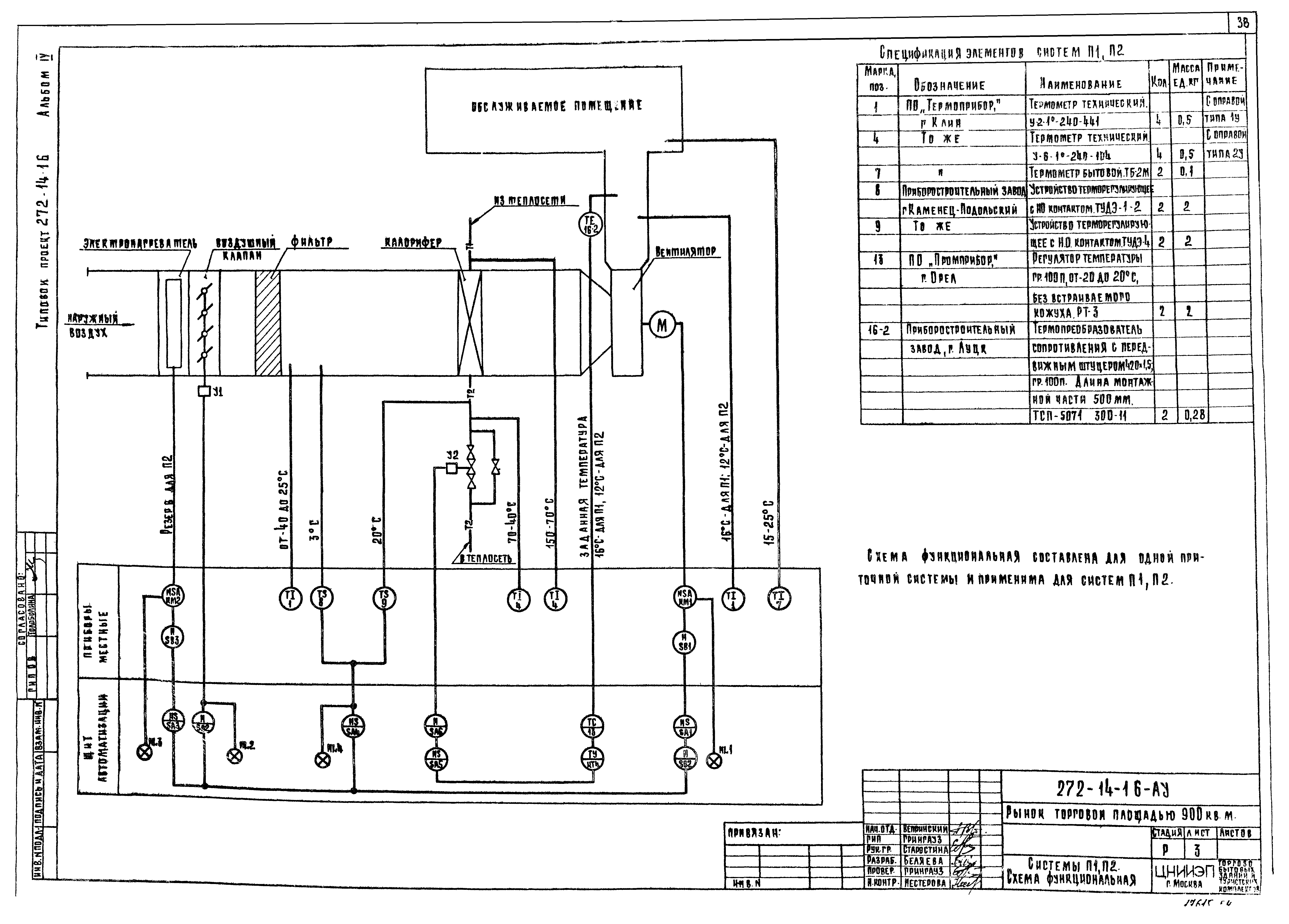
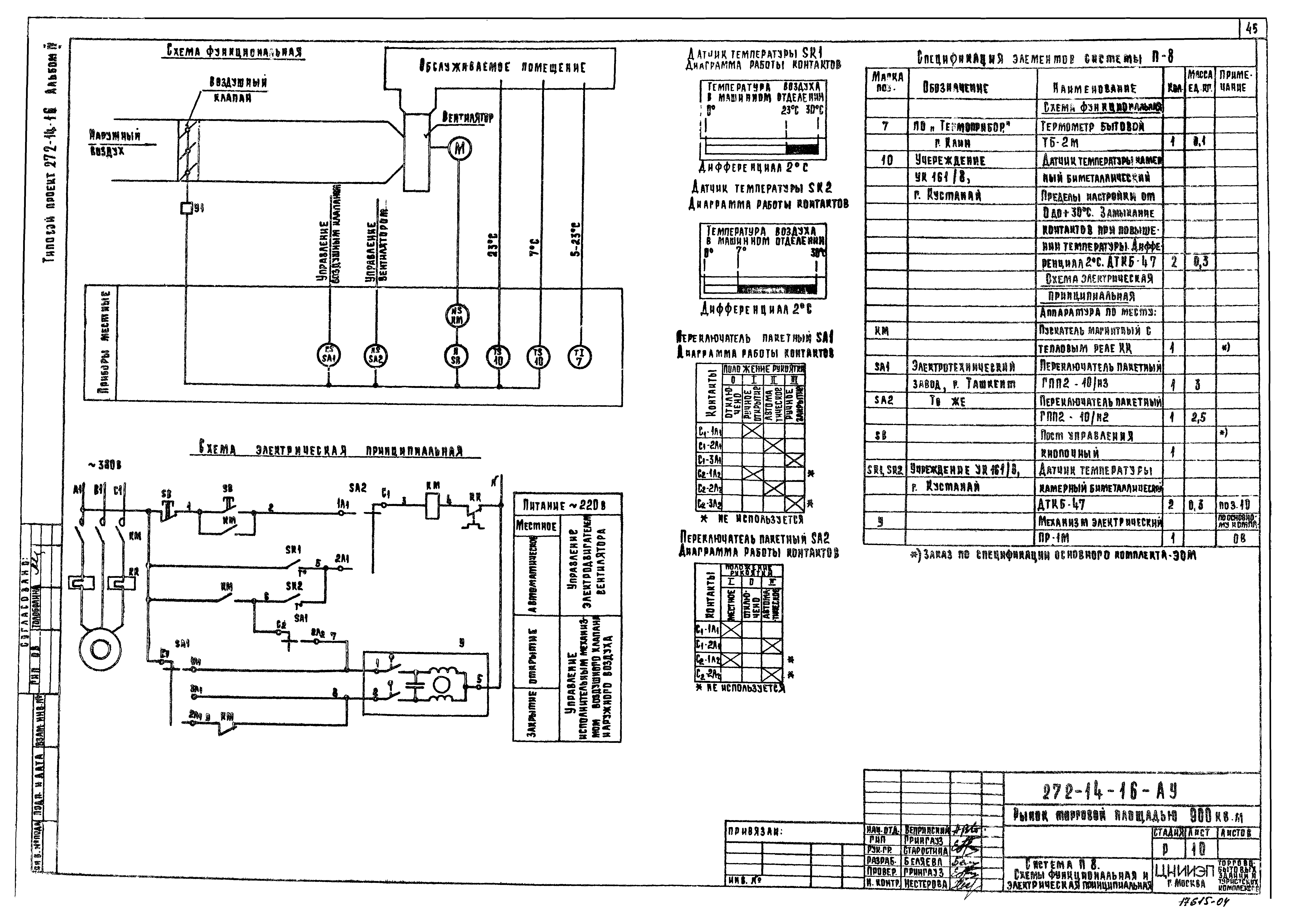
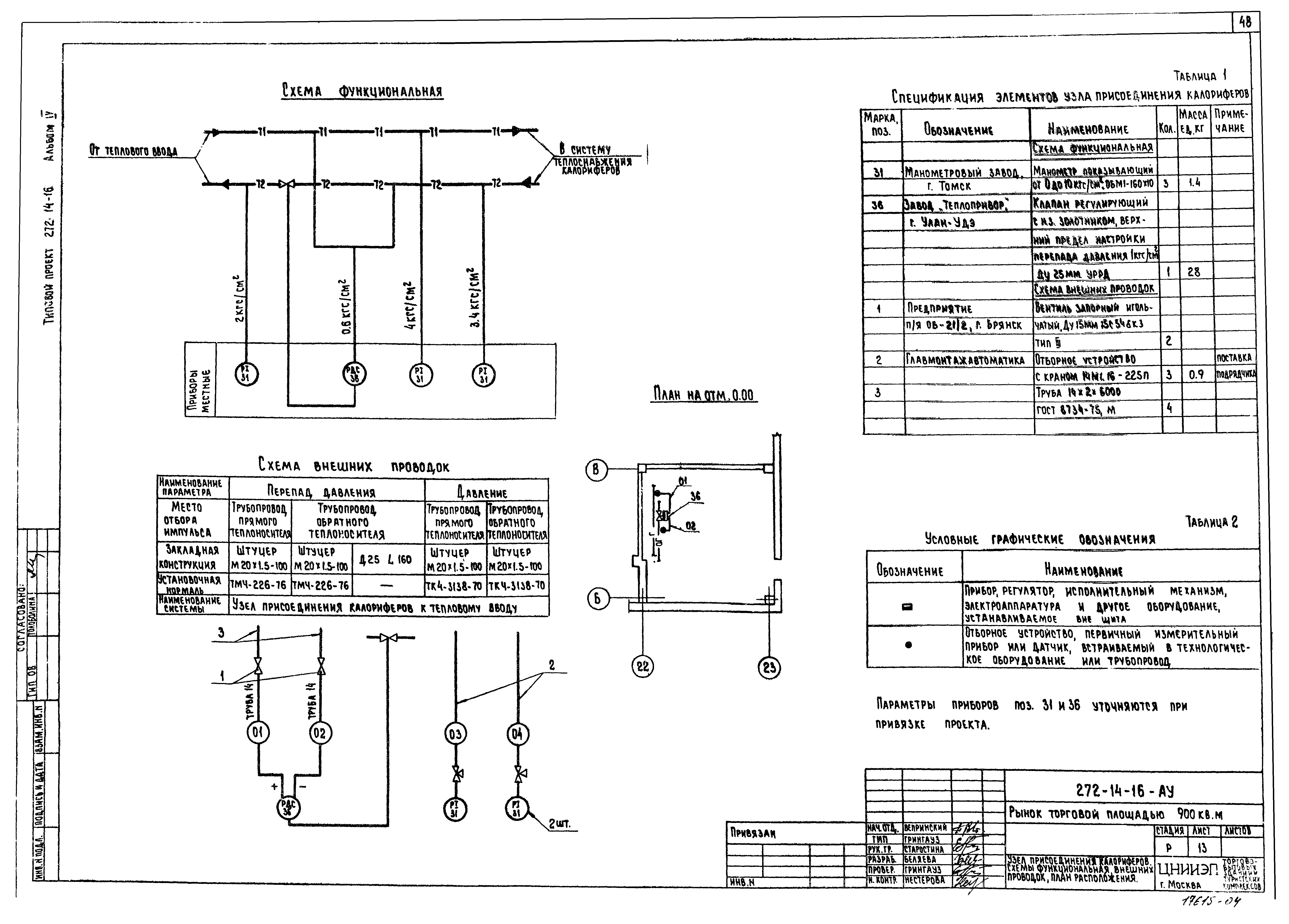
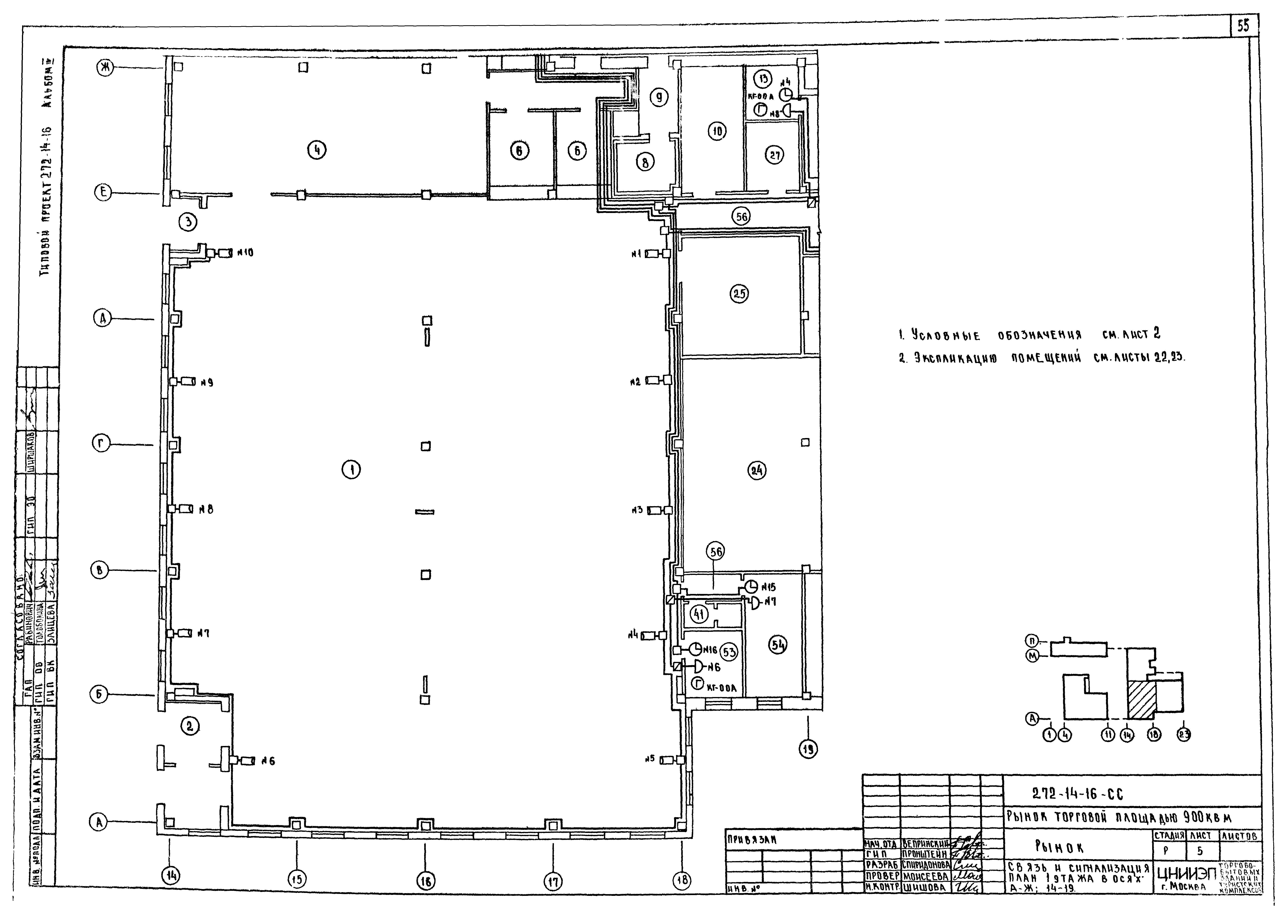
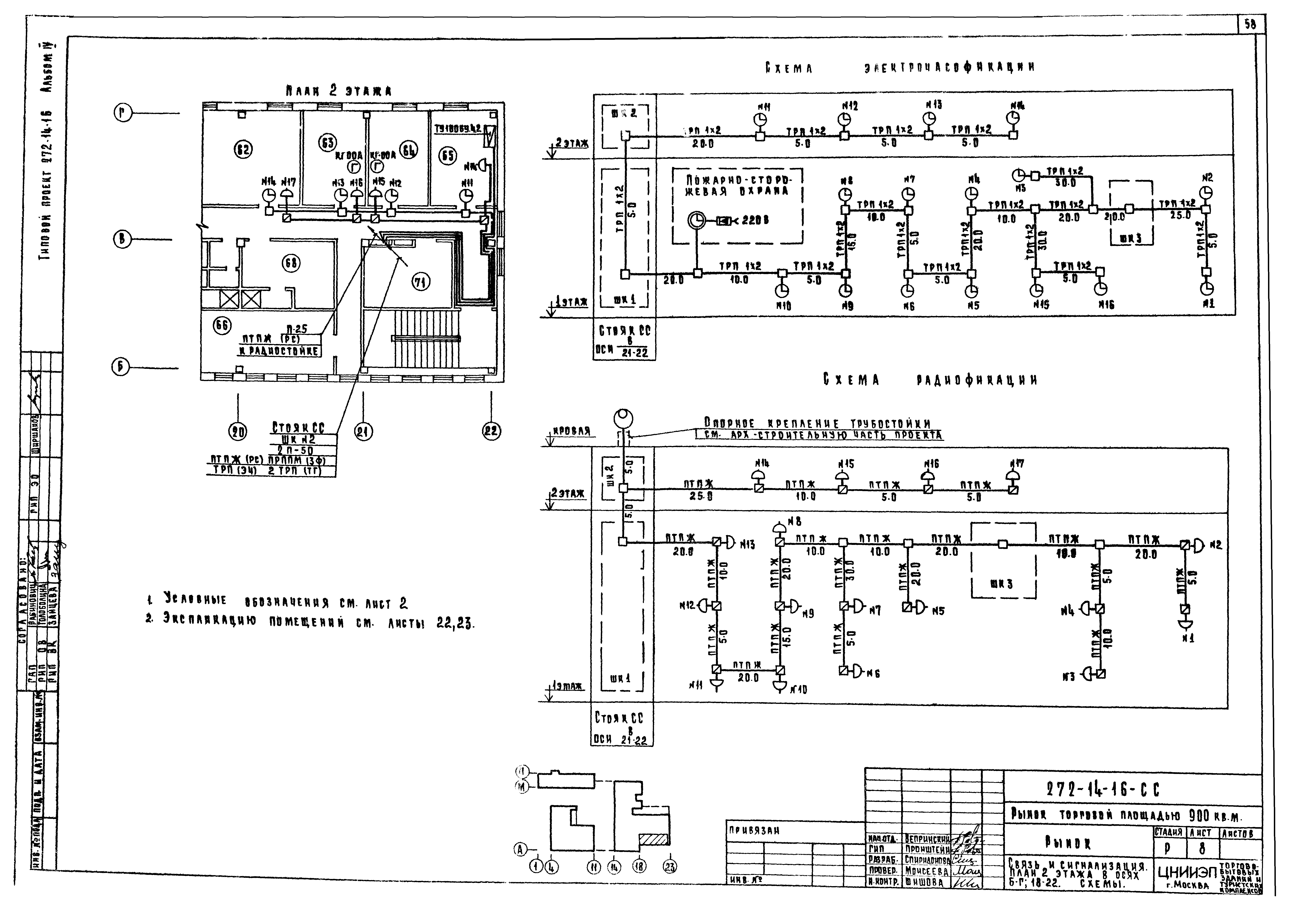
| Оглавление: | Чертежи основного комплекта марки ЭОМ Общие данные Спецификация Однолинейная расчетная схема питающих сетей от ВРЩ-1; ВРЩ-4 Однолинейная расчетная схема питающих сетей от ВРЩ-2; ВРЩ-3 Силовое электрооборудование. Расчетная схема ЩС1 - ЩС3 Силовое электрооборудование. Расчетная схема ЩС1; ЩС2 Силовое электрооборудование. Расчетная схема ЩС3 - ЩС5 Силовое электрооборудование. Расчетная схема ЩС6 - ЩС8 Силовое электрооборудование. Расчетная схема ЩС1 Силовое электрооборудование. Расчетная схема ЩС2; ЩС3 Принципиальная схема автоматического отключения вентиляции при пожаре Электроосвещение. План 1 этажа в осях А - Д; 4 - 11 Электроосвещение. План 1 этажа в осях Г - Ж; 4 - 8 Электроосвещение. Сезонная торговля Электроосвещение. План 1 этажа в осях А -Ж; 14 - 18 Электроосвещение. План 1 этажа в осях Ж - Н; 14 - 18 Электроосвещение. План 1 этажа в осях Б - Ж; 18 - 23 Электроосвещение. Силовое электрооборудование. Питающие сети. Планы 2 этажа Электроосвещение. План 1 этажа Электроосвещение. План 2 этажа Силовое электрооборудование. Питающие сети. План 1 этажа в осях А - Д; 4 - 12 Силовое электрооборудование. Питающие сети. План 1 этажа в осях Д - И; 4 - 12 Силовое электрооборудование. План в осях А - Ж; 14 - 19 Силовое электрооборудование. Питающие сети. План 1 этажа в осях Б - Ж; 19 - 23 Силовое электрооборудование. Питающие сети. План 1 этажа в осях Ж - И; 14 - 18 Силовое электрооборудование. Питающие сети. План 1 этажа Силовое электрооборудование. Питающие сети. План 2 этажа. План на отм. 6.100 Расстановка электрооборудования и прокладка труб электросети в электрощитовой. Опросный лист ВРЩ-1 Расстановка электрооборудования и прокладка труб электросети в электрощитовой. Опросный лист ВРЩ-2 Расстановка электрооборудования и прокладка труб электросети в электрощитовой. Опросный лист ВРЩ-3 Расстановка электрооборудования и прокладка труб электросети в электрощитовой. Опросный лист ВРЩ-4 Чертежи основного комплекта марки АУ Общие данные Системы П1, П2. Схема функциональная Системы П1, П2. Схема электрическая принципиальная Системы П1, П2. Схема внешних проводок Системы П3, П5, П7, П9, П10. Схема функциональная и электрическая принципиальная Системы П3, П5, П7, П9, П10. Схема внешних проводок Системы П3, П5, П7, П9, П10. План расположения Система П8. Схема функциональная и электрическая принципиальная Система П8. Схема внешних проводок. План расположения Система У1. Схема функциональная, электрическая принципиальная, внешних проводок, план расположения Узел присоединения калориферов. Схемы функциональная, внешних проводок. План расположения Холодильные машины 1, 2, 3 для камер. Схема внешних проводок Планы расположения холодильных машин 1, 2, 3 Чертежи основного комплекта марки СС Общие данные Спецификация Рынок. Связь и сигнализация. План 1 этажа в осях А - Ж; 14 - 19 Рынок. Связь и сигнализация. План 1 этажа в осях Ж - Н; 14 - 18. Схема Рынок. Связь и сигнализация. План 1 этажа в осях Б - Ж; 19 - 23. Схема Рынок. Связь и сигнализация. План 2 этажа в осях Б - Г; 18 - 22. Схемы Рынок. Охранно-пожарная сигнализация. План 1 этажа в осях А - Ж; 14 - 19 Рынок. Охранно-пожарная сигнализация. План 1 этажа в осях Ж - Н; 14 - 18. Схема Рынок. Охранно-пожарная сигнализация. План 1 этажа в осях Б - Ж; 19 - 23. Схема Рынок. Охранно-пожарная сигнализация. План 2 этажа в осях Б - Г; 18 - 22. Схемы Универсам. Связь и сигнализация. Схемы Универсам. Связь и сигнализация. План в осях А - Д; 4 - 11 Универсам. Охранно-пожарная сигнализация. План в осях А - Д; 4 - 11 Универсам. Охранно-пожарная сигнализация. План в осях Д - Ж4 4 - 8. Схема. Схемы блокировки окон и дверей Гостиница. Связь и сигнализация. Схемы Гостиница. Связь и сигнализация. План 1 этажа. Схема Гостиница. Связь и сигнализация. План 2 этажа Гостиница. Пожарная сигнализация. План 1 этажа. Схема Гостиница. Пожарная сигнализация. План 2 этажа Экспликация помещений |
| Разработан: | ЦНИИЭП торгово-бытовых зданий и туристских комплексов |
| Утверждён: | 13.03.1980 Госгражданстрой (Gosgrazhdanstroy 78) |










































































