Скачать Типовой проект 272-14-17 Альбом VI. Изделия железобетонные к серии ИИ-04Дата актуализации: 01.01.2021
|
| Обозначение: | Типовой проект 272-14-17 |
| Обозначение англ: | 272-14-17 |
| Статус: | действует |
| Название рус.: | Альбом VI. Изделия железобетонные к серии ИИ-04 |
| Дата добавления в базу: | 01.09.2013 |
| Дата актуализации: | 01.01.2021 |
| Дата введения: | 29.01.1982 |
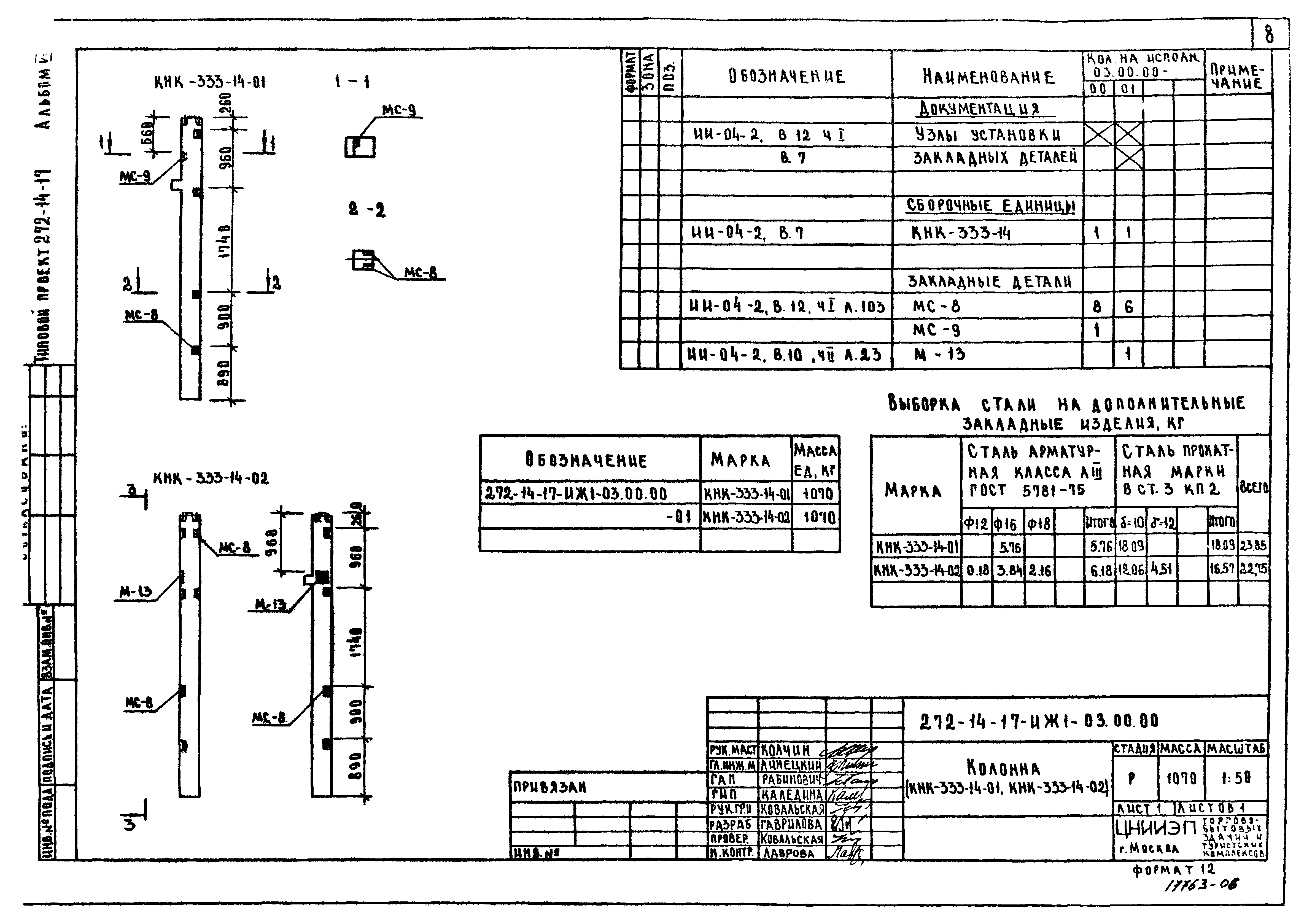
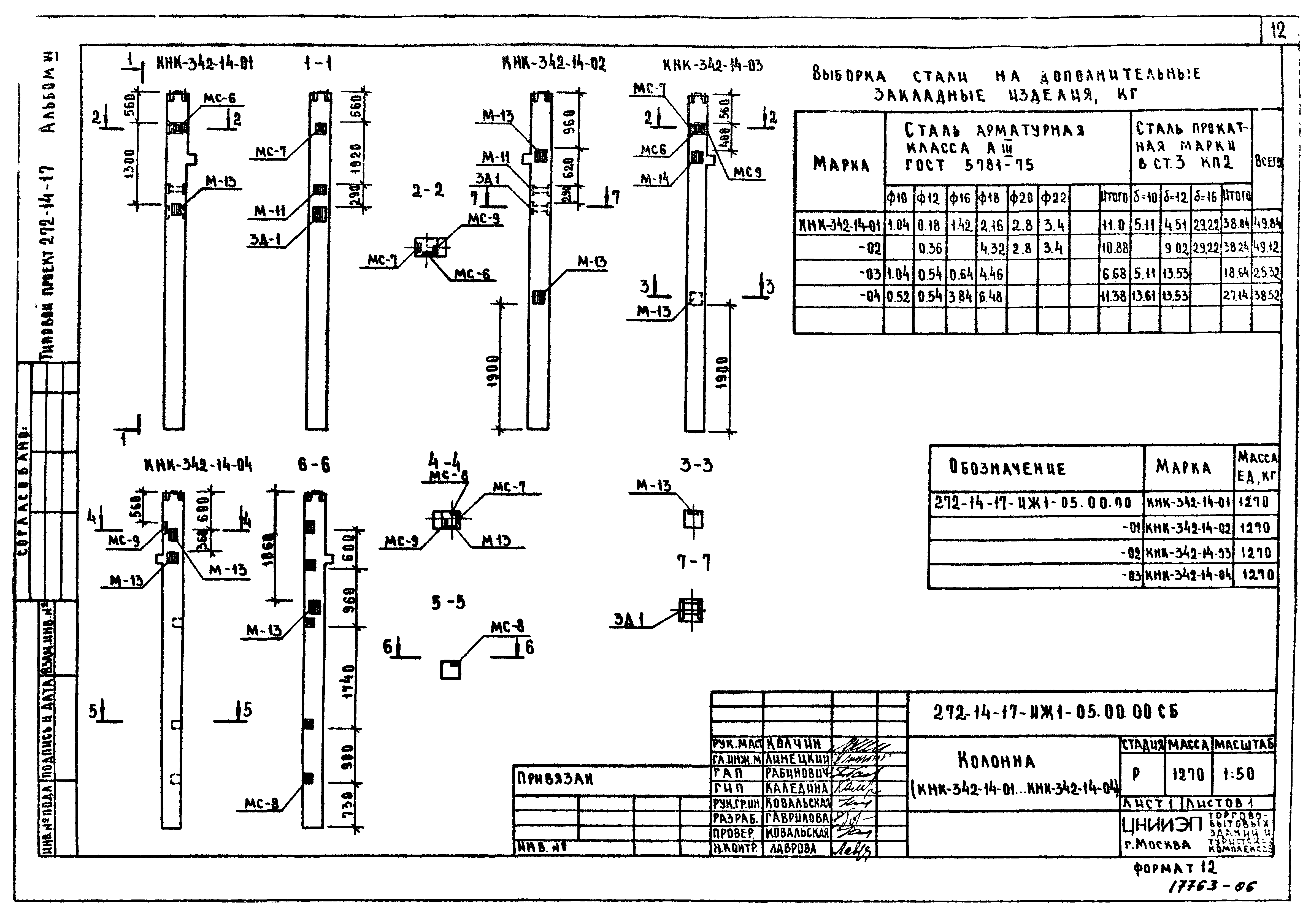
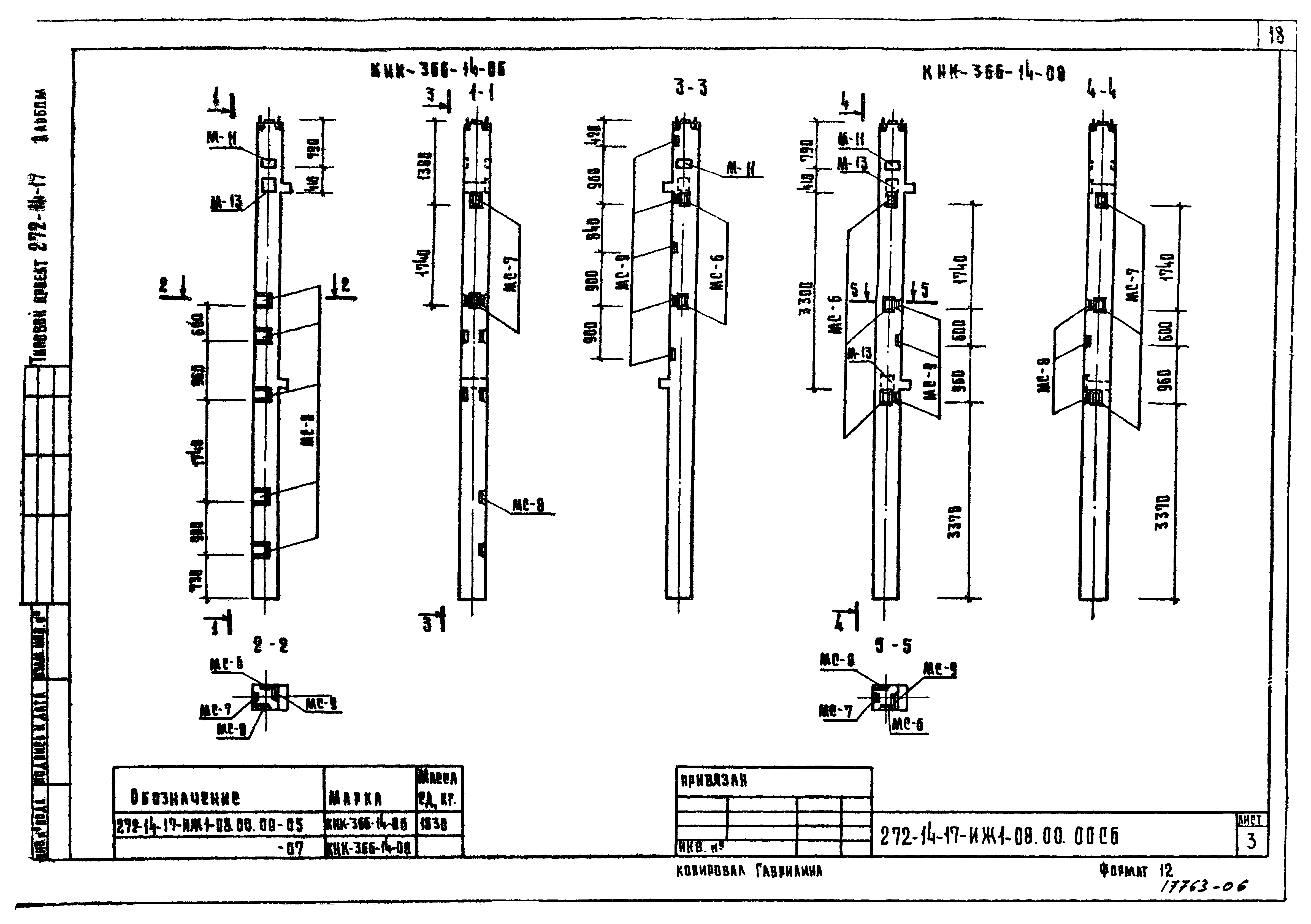
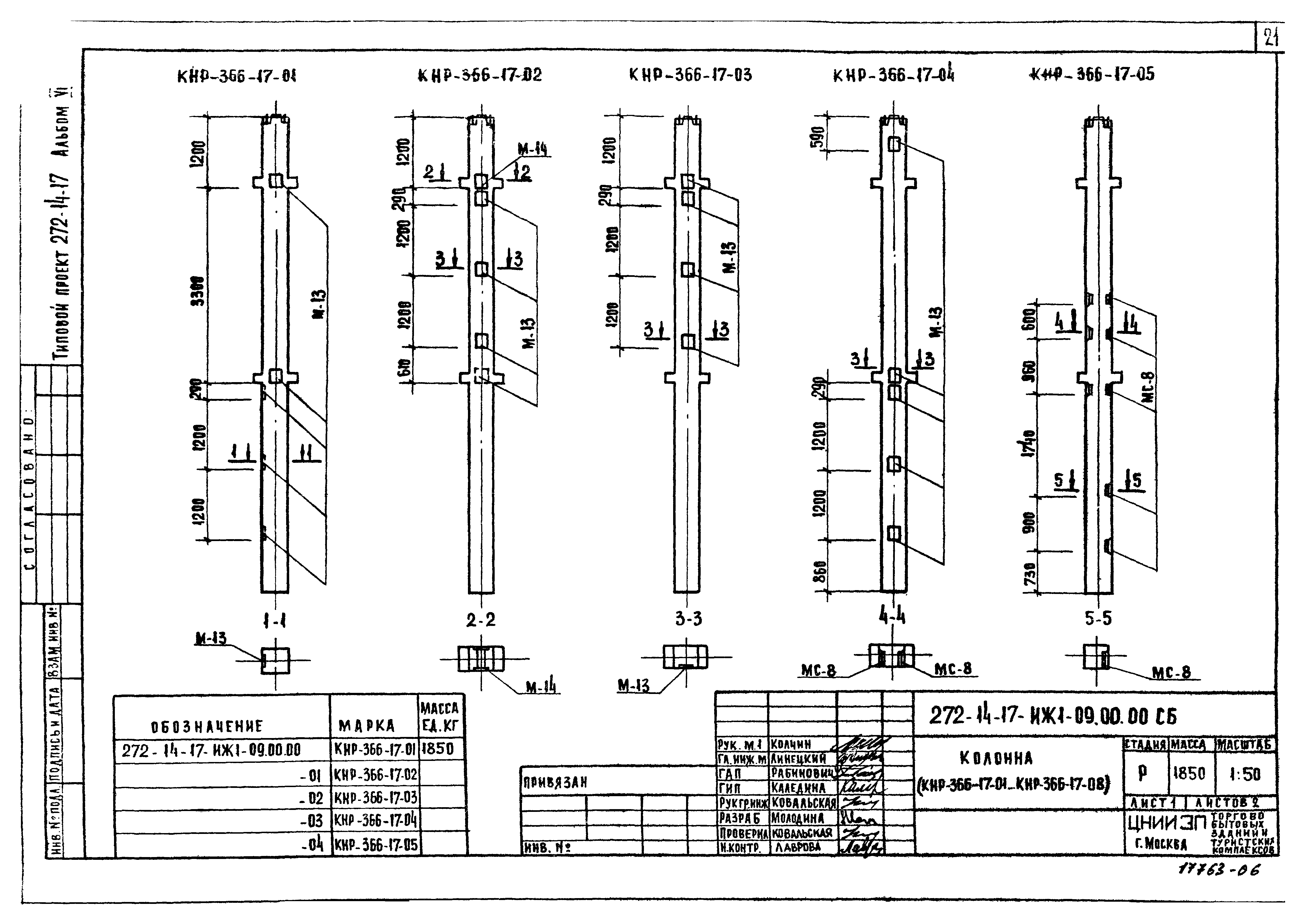
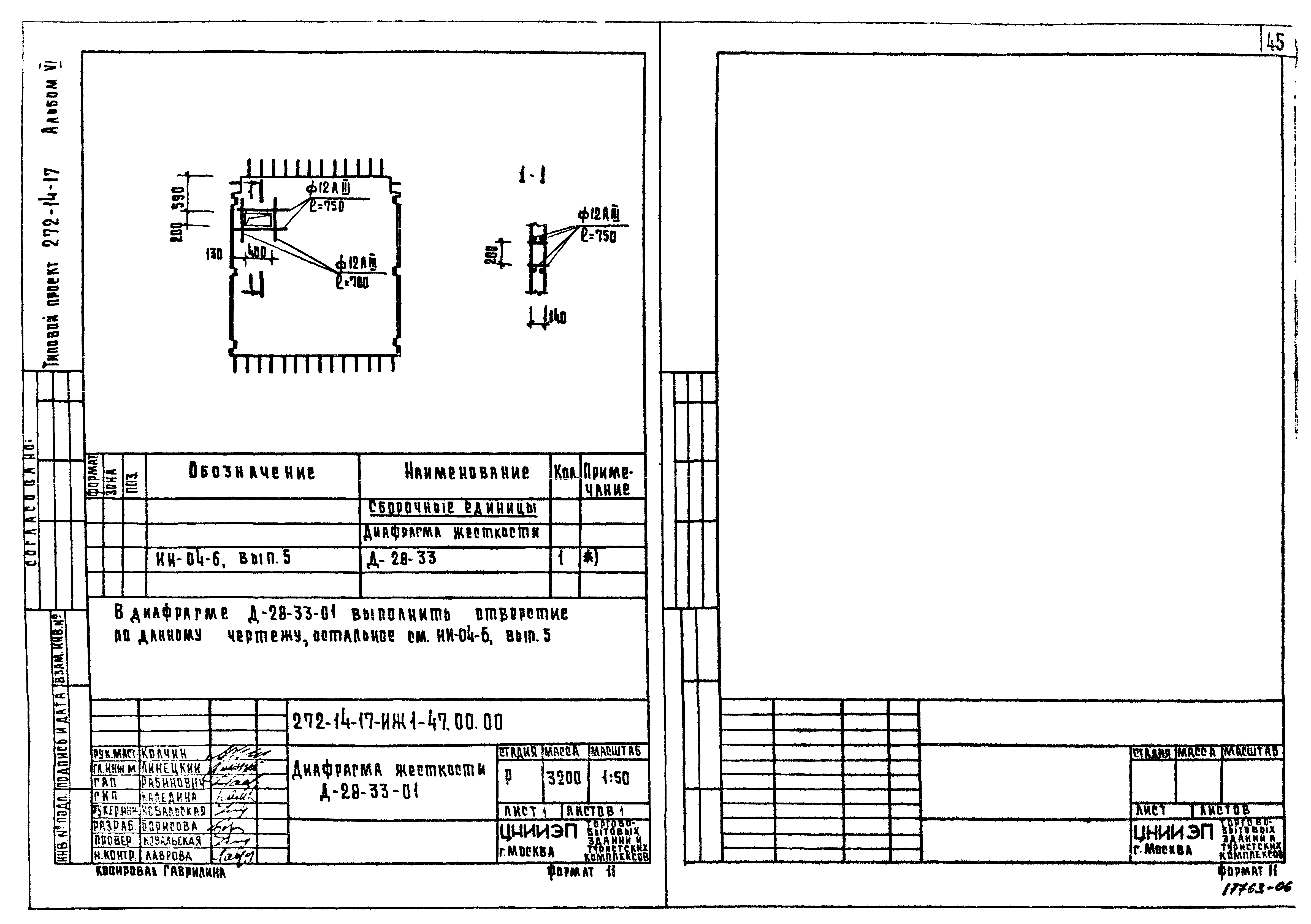
| Оглавление: | Обложка Титульный лист 272-14-17-ИЖ1-00.00ДО Ведомость чертежей 272-14-17-ИЖ1-01.00.00 Колонна (КК-333-14-01 - КК-333-14-05) 272-14-17-ИЖ1-01.00.00СБ Колонна (КК-333-14-01 - КК-333-14-05) 272-14-17-ИЖ1-02.00.00 Колонна (КР-333-14-01 - КР-333-14-06) 272-14-17-ИЖ1-02.00.00СБ Колонна (КР-333-14-01 - КР-333-14-06) 272-14-17-ИЖ1-03.00.00 Колонна (КНК-333-14-01 - КНК-333-14-02) 272-14-17-ИЖ1-04.00.00 Колонна (КНР-333-14-01 - КНР-333-14-04) 272-14-17-ИЖ1-05.00.00 Колонна (КНК-342-14-01 - КНК-342-14-04) 272-14-17-ИЖ1-05.00.00СБ Колонна (КНК-342-14-01 - КНК-342-14-04) 272-14-17-ИЖ1-06.00.00 Колонна (КНР-342-14-01 - КНР-342-14-02) 272-14-17-ИЖ1-07.00.00 Колонна (КК-366-11-01 - КК-366-11-04) 272-14-17-ИЖ1-08.00.00 Колонна (КНК-366-14-01 - КНК-366-14-09) 272-14-17-ИЖ1-08.00.00СБ Колонна (КНК-366-14-01 - КНК-366-14-09) 272-14-17-ИЖ1-09.00.00 Колонна (КНР-366-17-01 - КНР-366-17-08) 272-14-17-ИЖ1-09.00.00СБ Колонна (КНР-366-17-01 - КНР-366-17-08) 272-14-17-ИЖ1-10.00.00 Колонна КСК-366-14-01 272-14-17-ИЖ1-11.00.00 Колонна КК-336-14-01 272-14-17-ИЖ1-12.00.00 Колонна КР-442-24-01 272-14-17-ИЖ1-13.00.00 Колонна (КК-30-01 - КК-30-04) 272-14-17-ИЖ1-13.00.00СБ Колонна (КК-30-01 - КК-30-04) 272-14-17-ИЖ1-14.00.00 Колонна (КР-30-01 - КР-30-03) 272-14-17-ИЖ1-15.00.00 Колонна КУ1 272-14-17-ИЖ1-16.00.00 Колонна КУ4 272-14-17-ИЖ1-17.00.00 Колонна КУ1-01 272-14-17-ИЖ1-18.00.00 Колонна КУ4-01 272-14-17-ИЖ1-19.00.00 Колонна КУ2 272-14-17-ИЖ1-20.00.00 Колонна (КУ2-01 - КУ2-06) 272-14-17-ИЖ1-20.00.00СБ Колонна (КУ2-01 - КУ2-06) 272-14-17-ИЖ1-21.00.00 Колонна КУ3 272-14-17-ИЖ1-22.00.00СБ Колонна (КУ3-01 - КУ3-05) 272-14-17-ИЖ1-23.00.00 Колонна КУ5 272-14-17-ИЖ1-24.00.00 Колонна (КУ5-01 - КУ5-02) 272-14-17-ИЖ1-30.00.00 Ригель Р-40-26-01 272-14-17-ИЖ1-31.00.00 Ригель Р-40-27-01 272-14-17-ИЖ1-32.00.00 Ригель (Р-52-57-01, Р-52-57-02) 272-14-17-ИЖ1-33.00.00 Ригель Р-40-57т-01 272-14-17-ИЖ1-34.00.00 Ригель Р-52-57т-01 272-14-17-ИЖ1-35.00.00 Ригель (Р2-72-57-01 - Р2-72-57-03) 272-14-17-ИЖ1-36.00.00 Ригель Р2-52-56-01 272-14-17-ИЖ1-37.00.00 Ригель Р-40-57-01 272-14-17-ИЖ1-38.00.00 Ригель (Р-11-56-01, Р-11-56-02) 272-14-17-ИЖ1-45.00.00 Диафрагма жесткости Д-56-28-01 272-14-17-ИЖ1-46.00.00 Диафрагма жесткости Д-28-33п-01 272-14-17-ИЖ1-47.00.00 Диафрагма жесткости Д-28-33-01 272-14-17-ИЖ1-48.00.00 Плита (ПКТ8-120-30пр-10; ПКТ8-120-30пр-11) 272-14-17-ИЖ1-50.00.00 Панель стеновая (Н-60-9-01, Н-60-18-01, Н-45-9-01, Н-45-18-01, Н-30-6-01, Н-30-12-01, Н-12-27-01) 272-14-17-ИЖ1-50.00.00СБ Панель стеновая (Н-60-9-01, Н-60-18-01, Н-45-9-01, Н-45-18-01, Н-30-6-01, Н-30-12-01, Н-12-27-01) 272-14-17-ИЖ1-51.00.00 Панель стеновая (Н-60-12-01, НП-60-12-01, Н-30-12-02, Н-58-12л-01, НП-28-12пр-01, Н-60-18-02) 272-14-17-ИЖ1-51.00.00СБ Панель стеновая (Н-60-12-01, НП-60-12-01, Н-30-12-02, Н-58-12л-01, НП-28-12пр-01, Н-60-18-02) 272-14-17-ИЖ1-52.00.00 Панель стеновая (Н-60-15-01 - Н-60-15-06) 272-14-17-ИЖ1-60.00.00 Плита прилавка (П1, П2) 272-14-17-ИЖ1-61.00.00 Плита прилавка (П3, П5) 272-14-17-ИЖ1-62.00.00 Плита прилавка (П3А, П5А) 272-14-17-ИЖ1-63.00.00 Плита прилавка П4 272-14-17-ИЖ1-63.01.00 Сетка С1 272-14-17-ИЖ1-70.00.00 Столик металлический (МК1, МК2) 272-14-17-ИЖ1-71.00.00 Столик металлический МК3 272-14-17-ИЖ1-05.01.00 Изделие закладное (ЗД1 - ЗД3) 272-14-17-ИЖ1-31.01.00 Изделие закладное ЗД4 272-14-17-ИЖ1-72.00.00 Изделие монтажное НД1 272-14-17-ИЖ1-15.01.00 Каркас плоский КР1 272-14-17-ИЖ1-16.01.00 Каркас плоский КР2 272-14-17-ИЖ1-19.01.00 Каркас плоский КР3 272-14-17-ИЖ1-60.01.00 Сетка С2 |
| Разработан: | ЦНИИЭП торгово-бытовых зданий и туристских комплексов |
| Утверждён: | 13.10.1980 Госгражданстрой (Gosgrazhdanstroy 265) |





























































