Скачать Серия 3.501-180.95 Выпуск 2. Изделия железобетонные. Технические условия. Рабочие чертежиДата актуализации: 01.01.2021
|
| Обозначение: | Серия 3.501-180.95 |
| Обозначение англ: | Series 3.501-180.95 |
| Статус: | справочные материалы, мп, тпр |
| Название рус.: | Выпуск 2. Изделия железобетонные. Технические условия. Рабочие чертежи |
| Дата добавления в базу: | 01.09.2013 |
| Дата актуализации: | 01.01.2021 |
| Дата введения: | 01.01.1995 |
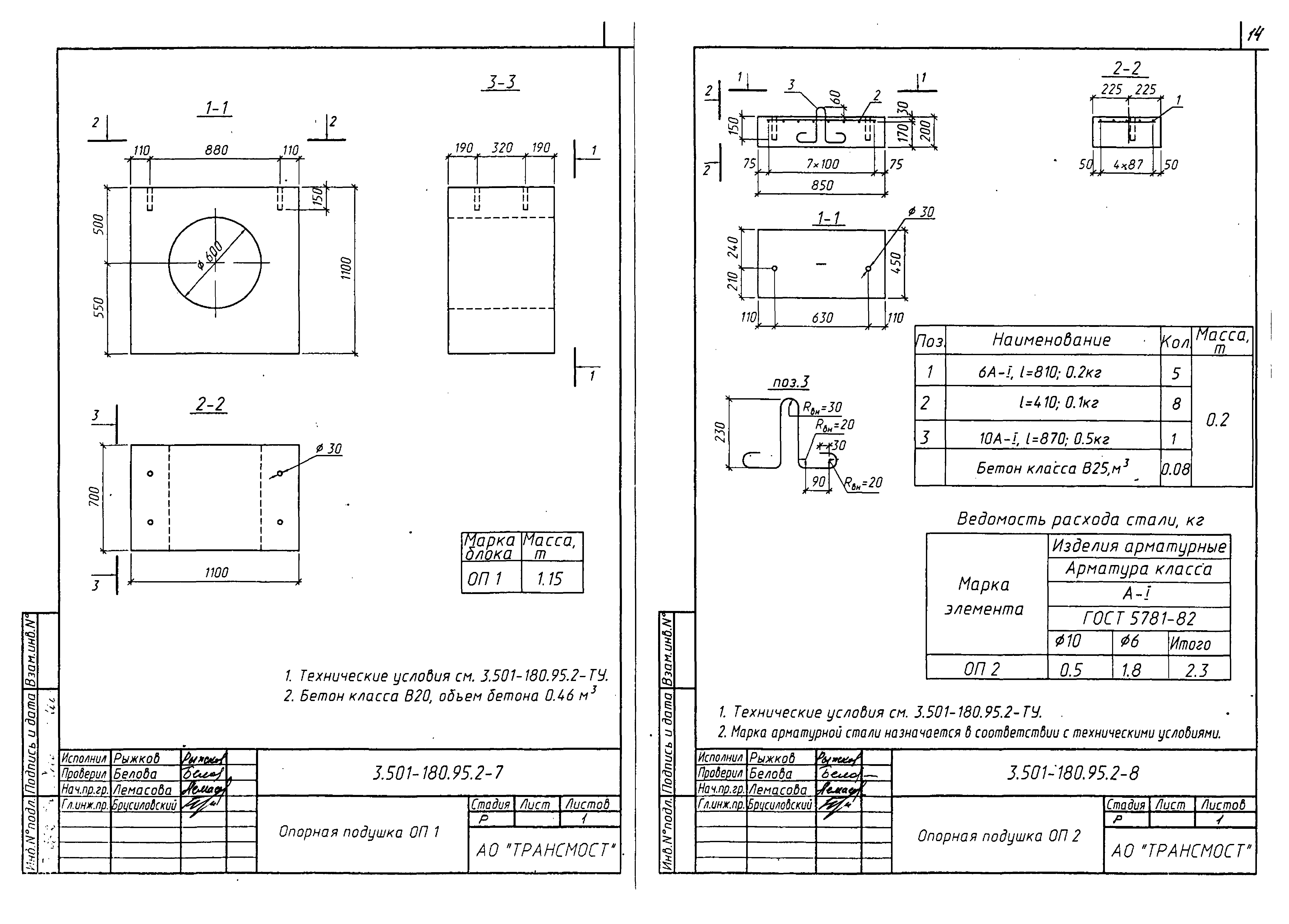
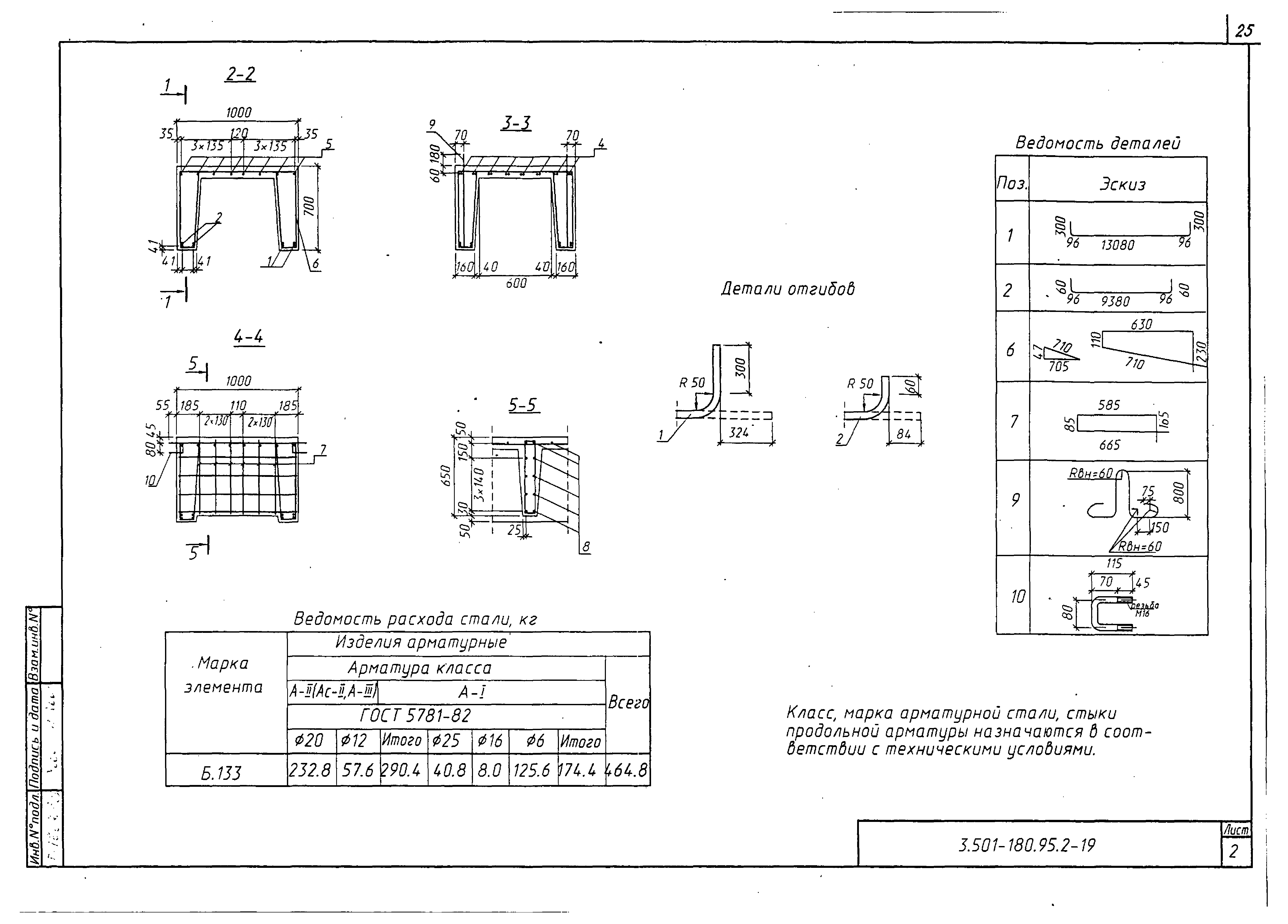
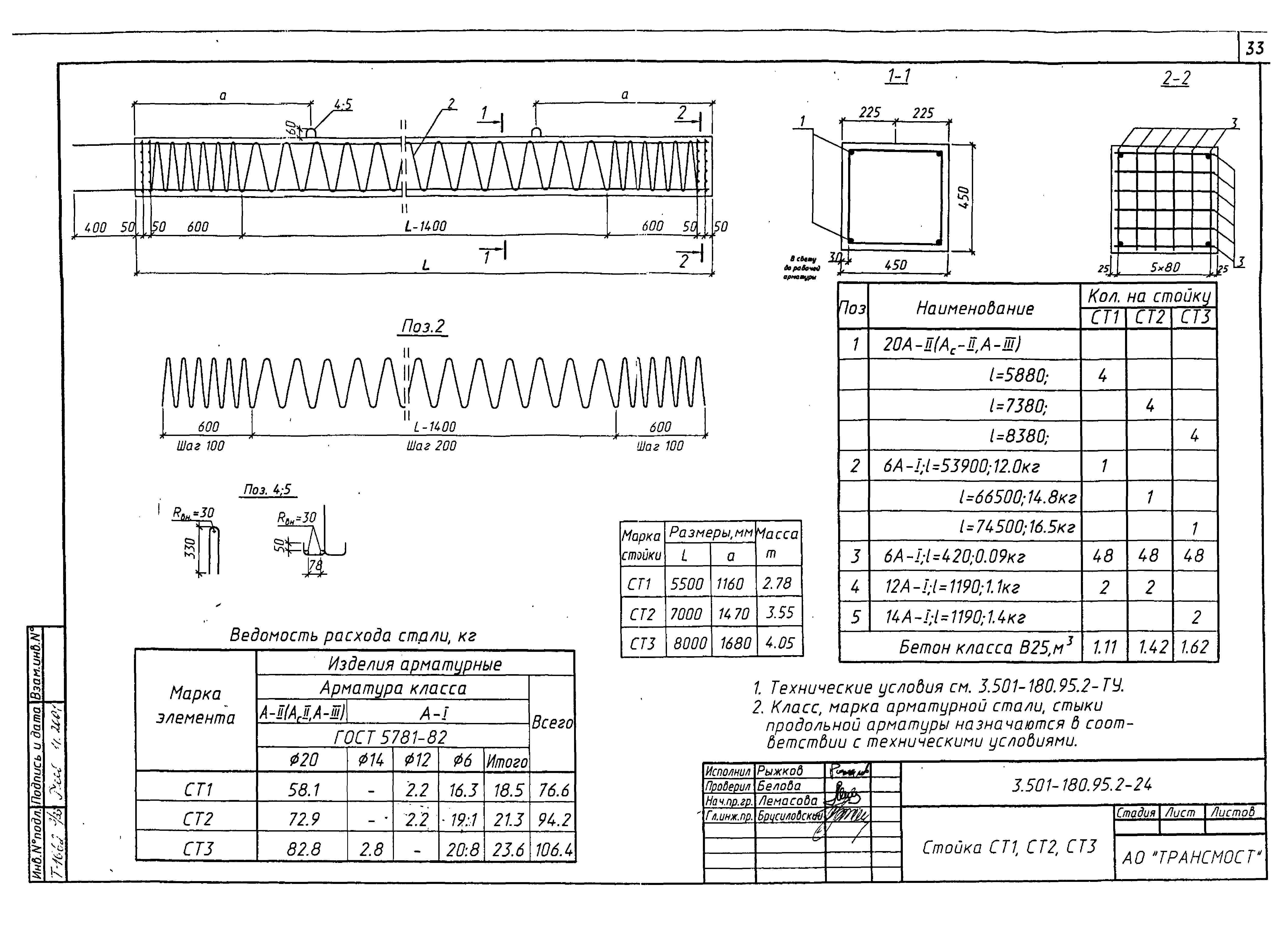
| Оглавление: | 3.501-180.95.2-ТУ Технические условия 3.501-180.95.2-1 Косоур ЛБ1 - ЛБ4 3.501-180.95.2-2ФЧ Косоур ЛБ1 - ЛБ4. Опалубочный чертеж 3.501-180.95.2-3 Косоур ЛБ1 - ЛБ4. Арматурный чертеж 3.501-180.95.2-4 Косоур ЛБ5; ЛБ6 3.501-180.95.2-5ФЧ Косоур ЛБ5; ЛБ6. Опалубочный чертеж 3.501-180.95.2-6 Косоур ЛБ5; ЛБ6. Арматурный чертеж 3.501-180.95.2-7 Опорная подушка ОП1 3.501-180.95.2-8 Опорная подушка ОП2 3.501-180.95.2-9 Опорная подушка ОП3 3.501-180.95.2-10 Ступень ЛС 3.501-180.95.2-11 Балка Б.53; Б.73; Б.93; Б.113 3.501-180.95.2-12 Балка Б.53; Б.73; Б.93; Б.113. Общий вид 3.501-180.95.2-13 Балка Б.53. Арматурный чертеж 3.501-180.95.2-14 Балка Б.73. Арматурный чертеж 3.501-180.95.2-15 Балка Б.93. Арматурный чертеж 3.501-180.95.2-16 Балка Б.113. Арматурный чертеж 3.501-180.95.2-17 Балка Б.133; Б.153; Б.173; Б.193 3.501-180.95.2-18 Балка Б.133; Б.153; Б.173; Б.193. Общий вид 3.501-180.95.2-19 Балка Б.133. Арматурный чертеж 3.501-180.95.2-20 Балка Б.153. Арматурный чертеж 3.501-180.95.2-21 Балка Б.173. Арматурный чертеж 3.501-180.95.2-22 Балка Б.193. Арматурный чертеж 3.501-180.95.2-23 Лежень Л 3.501-180.95.2-24 Стойка СТ1; СТ2; СТ3 3.501-180.95.2-25 Оголовок ОГ1; ОГ2 3.501-180.95.2-26ФЧ Оголовок ОГ1; ОГ2. Опалубочный чертеж 3.501-180.95.2-27 Оголовок ОГ1. Арматурный чертеж 3.501-180.95.2-28 Оголовок ОГ2. Арматурный чертеж 3.501-180.95.2-29 Фундаментный блок ФБ 3.501-180.95.2-30ФЧ Фундаментный блок ФБ. Опалубочный чертеж 3.501-180.95.2-31 Фундаментный блок ФБ. Арматурный чертеж 3.501-180.95.2-32 Плита П |
| Разработан: | АО Трансмост |
| Утверждён: | МПС РФ (Russian Federation Ministry of Railroads ) |








































