Скачать Серия 5.407-23 Выпуск 1. Рабочие чертежиДата актуализации: 01.01.2021
|
| Обозначение: | Серия 5.407-23 |
| Обозначение англ: | Series 5.407-23 |
| Статус: | не действует |
| Название рус.: | Выпуск 1. Рабочие чертежи |
| Дата добавления в базу: | 01.09.2013 |
| Дата актуализации: | 01.01.2021 |
| Дата введения: | 16.11.1981 |
| Дата окончания срока действия: | 01.12.1985 |
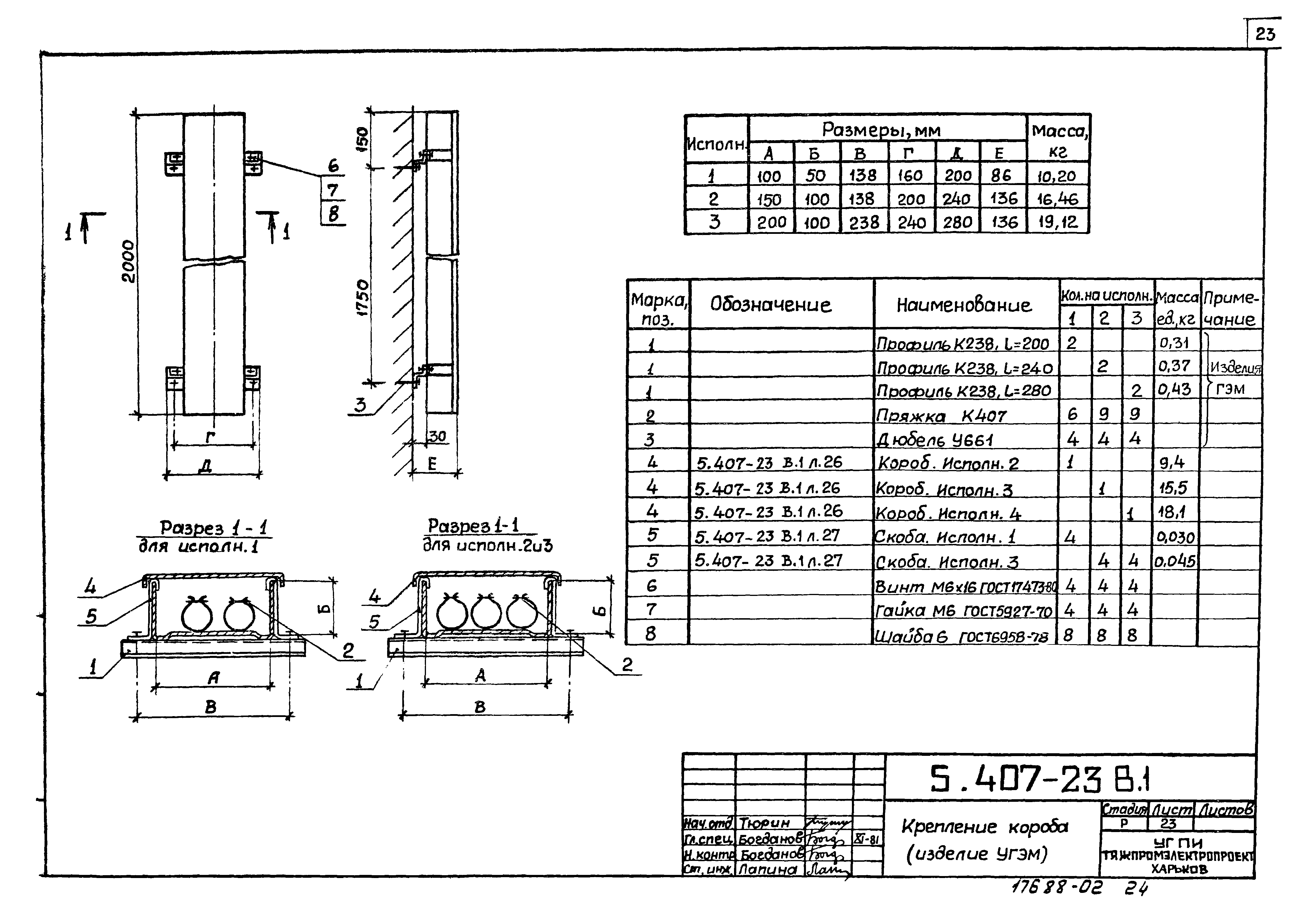
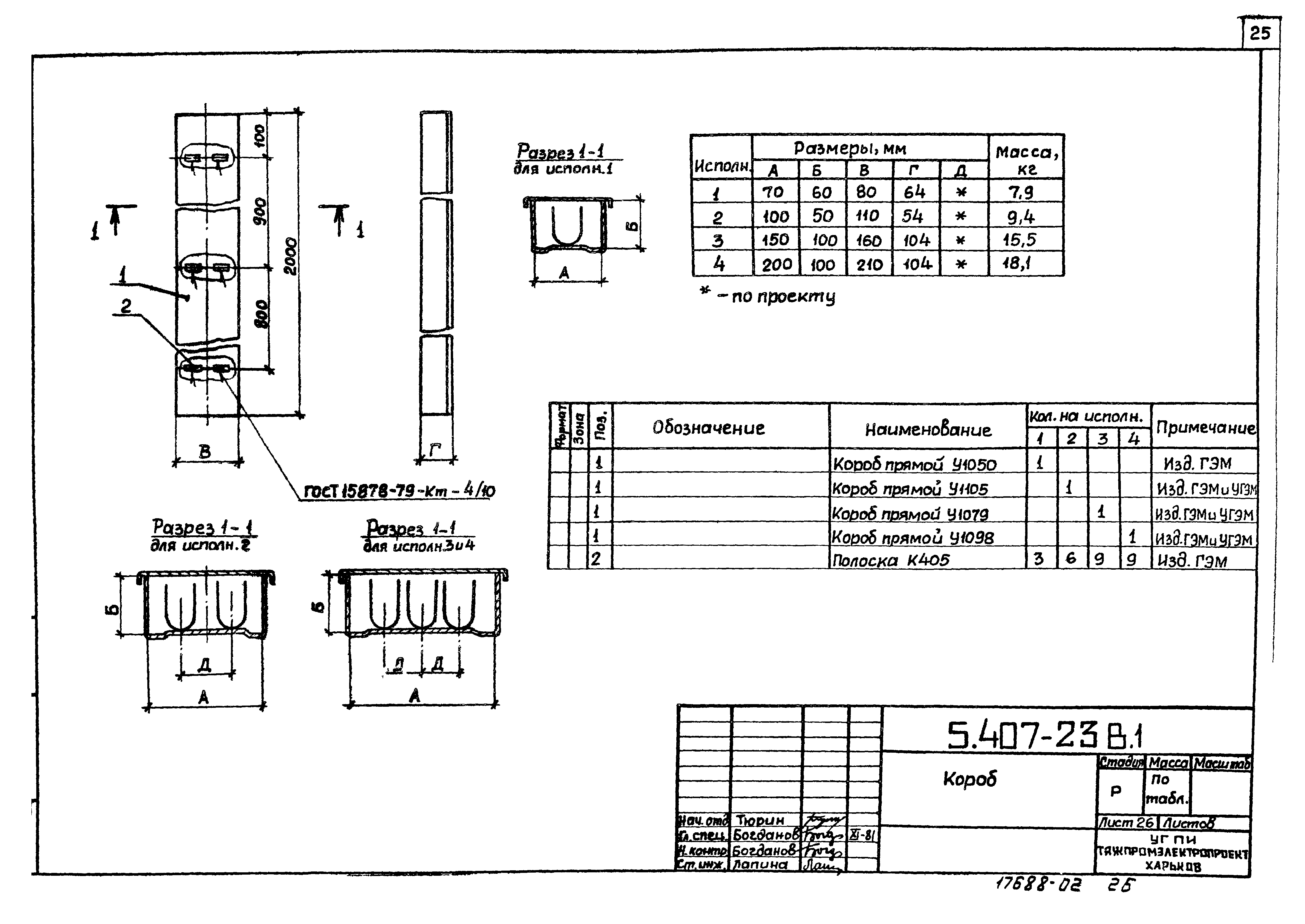
| Оглавление: | Титульный лист Содержание Общие указания Изделия, применяемые для монтажа винипластовых труб с наружным диаметром от 20 до 50 мм Минимальные радиусы изгиба проводов и винипластовых труб Расстояния между креплениями труб. Размеры борозд. Длина труб между протяжными ящиками Минимальные расстояния между осями труб Выбор винипластовых труб, соединяемых со стальными трубами Соединение винипластовых труб между собой Соединение винипластовой трубы со стальной трубой Ввод винипластовой трубы в корпус коробки, ящика или аппарата Зануление (заземление) металлической протяжной коробки Крепление профиля Крепление полки Крепление клицы и скобы Крепление короба (изделие ГЭМ) Крепление короба (изделие УГЭМ) Профиль Полка Короб Скоба |
| Разработан: | УГПИ Тяжпромэлектропроект Минмонтажспецстроя УССР Укрглавэлектромонтаж Минмонтажспецстроя УССР |
| Утверждён: | 16.11.1981 ВНИПИ Тяжпромэлектропроект им. Ф.Б. Якубовского (F.B.Yakubovskiy Tyazhpromelektroproject VNIPI 228) |
| Чем заменён: |



























