Скачать Серия 5.407-72 Выпуск 1. Монтажные чертежиДата актуализации: 01.01.2021
|
| Обозначение: | Серия 5.407-72 |
| Обозначение англ: | Series 5.407-72 |
| Статус: | не действует |
| Название рус.: | Выпуск 1. Монтажные чертежи |
| Дата добавления в базу: | 01.09.2013 |
| Дата актуализации: | 01.01.2021 |
| Дата введения: | 26.09.1986 |
| Дата окончания срока действия: | 01.01.1993 |
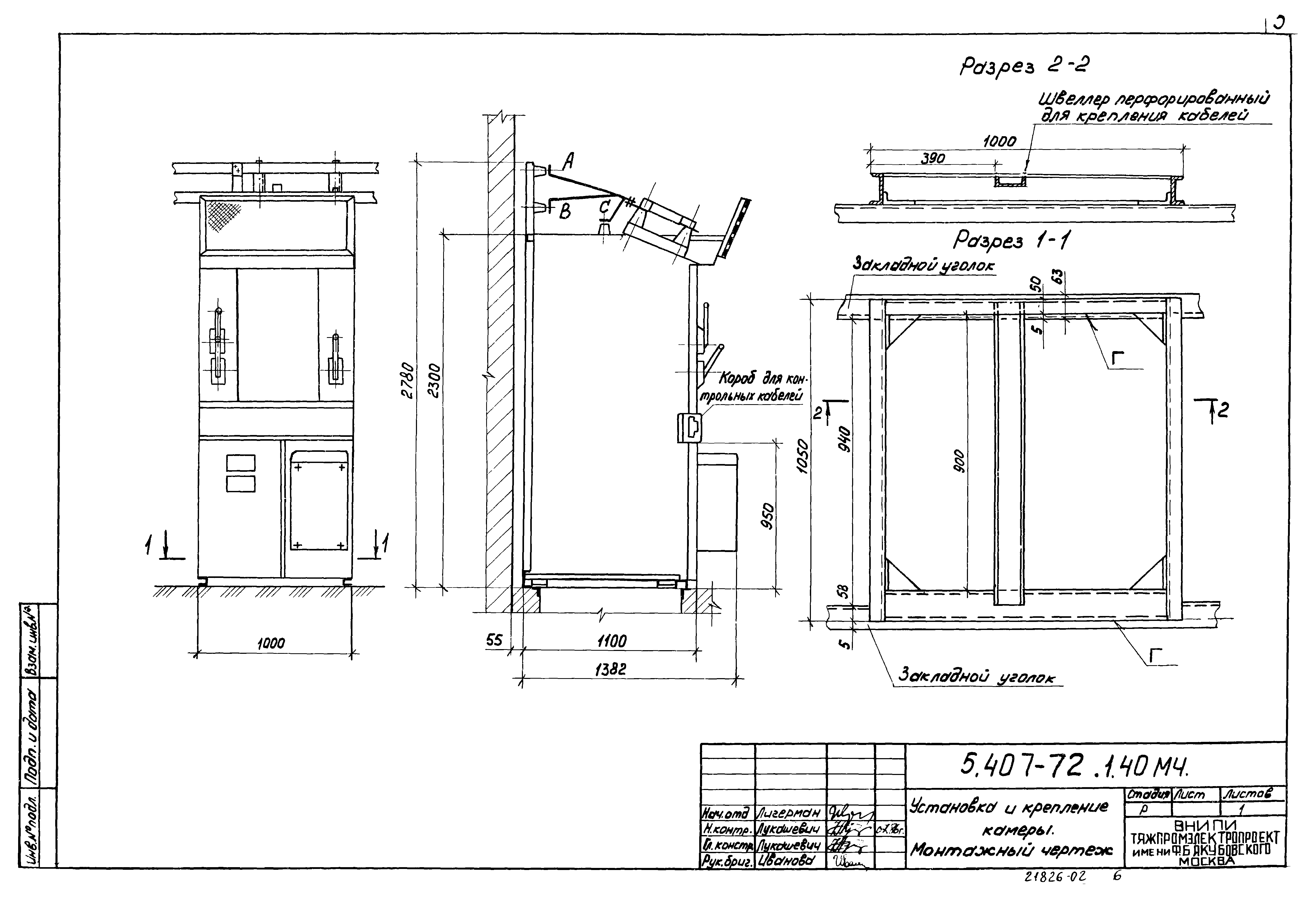
| Оглавление: | Титульный лист Содержание 5.407-72.1.10МЧ Установка камер КСО-285 на отм. 0.000. Двухрядное расположение (Пример) 5.407-72.1.20МЧ Установка камер КСО-285 на отм. 0.000. Однорядное расположение (Пример) 5.407-72.1.30МЧ Установка и крепление камеры кабельных сборок. Монтажный чертеж 5.407-72.1.40МЧ Установка и крепление камеры. Монтажный чертеж 5.407-72.1.50МЧ Ввод в камеры 18 и 19 через стену. Монтажный чертеж 5.407-72.1.60МЧ Установка шинного моста с разъединителями. Монтажный чертеж 5.407-72.1.70МЧ Установка шинного моста без разъединителей. Монтажный чертеж 5.407-72.1.80МЧ Камера с кабельной сборкой. Установка на полу. Подвод трех и четырех кабелей со стороны фасада камеры. Монтажный чертеж 5.407-72.1.90МЧ Камера с высоковольтным выключателем. Установка на полу. Подвод одного и двух кабелей с задней стороны камеры. Монтажный чертеж 5.407-72.1.100МЧ Камера с высоковольтным выключателем. Установка на полу. Подвод одного и двух кабелей со стороны фасада камеры. Монтажный чертеж 5.407-72.1.110МЧ Камера с выключателем нагрузки. Установка на полу. Подвод одного и двух кабелей из канала. Монтажный чертеж 5.407-72.1.120МЧ Камера с кабельной сборкой. Установка на перекрытии. Подвод трех и четырех кабелей. Монтажный чертеж 5.407-72.1.130МЧ Камера с выключателем нагрузки. Установка на перекрытии. Подвод одного и двух кабелей. Монтажный чертеж 5.407-72.1.140 Плита для проходных изоляторов ИПУ-10/1000-750 (исполн. УХЛ1) 5.407-72.1.150 Блок из двух патрубков 5.407-72.1.160 Блок из трех патрубков 5.407-72.1.170 Блок из четырех патрубков 5.407-72.1.180 Вставка 5.407-72.1.190 Вставка |
| Разработан: | Главэлектромонтаж Минмонтажспецстроя СССР ВНИПИ Тяжпромэлектропроект им. Ф.Б. Якубовского |
| Утверждён: | 26.09.1986 Минмонтажспецстрой СССР (USSR Minmontazhspetsstroy ) |



















