Скачать Типовой проект 224-9-141 Альбом I. Архитектурно-строительные, технологические, санитарно-технические и электротехнические чертежиДата актуализации: 01.01.2021
|
| Обозначение: | Типовой проект 224-9-141 |
| Обозначение англ: | 224-9-141 |
| Статус: | не определен законодательством |
| Название рус.: | Альбом I. Архитектурно-строительные, технологические, санитарно-технические и электротехнические чертежи |
| Дата добавления в базу: | 01.09.2013 |
| Дата актуализации: | 01.01.2021 |
| Дата введения: | 17.11.1978 |
| Дата окончания срока действия: | 30.06.2003 |
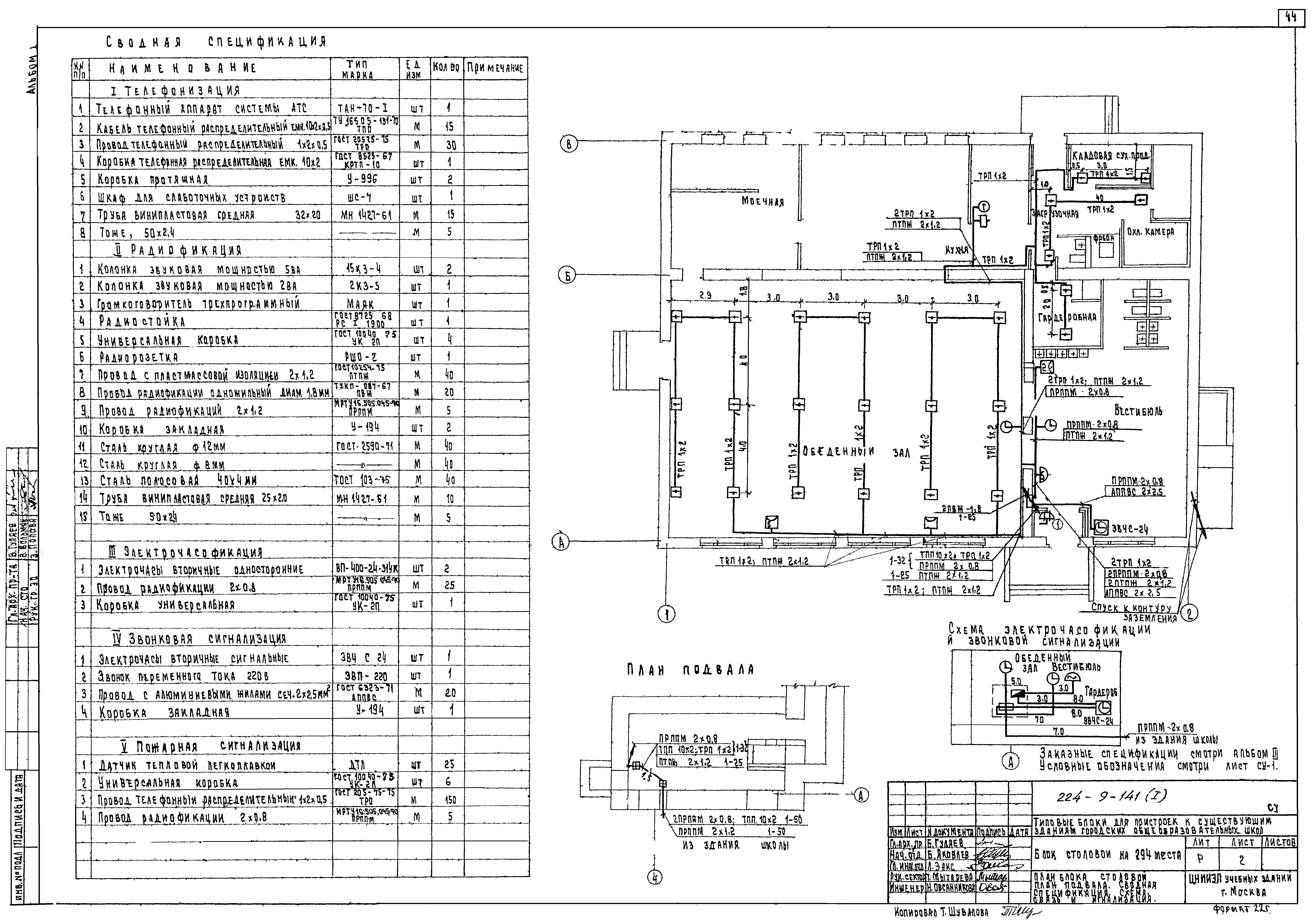
| Оглавление: | Содержание альбома. Генеральный план (Пример решения). Пояснительная записка Пояснительная записка Чертежи основного комплекта марки АС План фундаментов (Пример решения). План перекрытия венткамеры. Воздухозаборная шахта. Сечения План фундаментов (Чертеж привязки). План подвала. Камера холодного воздуха. Крыльца. Таблица нагрузок Наружная и внутренняя отделка. Таблица заполнения проемов. Спецификация деревянных изделий Сводные спецификации индустриальных изделий. Таблица типовых узлов План 1-го этажа Фрагмент плана 1-го этажа. Детали изоляции охлаждаемой камеры холодного воздуха тамбура Фасады по осям "А", "В", "2", "1". Разрез А-А План покрытия. Узлы и детали План кровли. Раскладка парапетных плит. Узлы и детали Металлические изделия. Экран санузла Подоконные доски. Каркас К1, сетка С-1 Интерьер зала столовой Чертежи основного комплекта марки ТО План блока столовой. Расстановка технологического оборудования План блока столовой. Монтажный план Спецификация технологического оборудования Чертежи основного комплекта марки ОВ Содержание части проекта. Основные показатели по проекту. Пояснительная записка Спецификация материалов и оборудования План блока столовой. План подвала Схема системы отопления и вентиляции Приточная камера. Схема обвязки калорифера Чертежи основного комплекта марки ВК Содержание части проекта. Основные показатели. Пояснительная записка Спецификация План 1-го этажа и план подвала блока столовой Разрезы канализации. Схема холодного и горячего водоснабжения Чертежи основного комплекта марки ЭЛ Пояснения к проекту. Опись чертежей. Основные показатели проекта. Электрооборудование Сводная спецификация. Электрооборудование Расчетная схема питающих сети. План столовой. План подвала. Условные обозначения. Электрооборудование Выкопировка из плана. План подвала. Отключение вентиляции при пожаре. Кабельный журнал. Силовое электрооборудование План кухни. Расчетная таблица. Схема распределительной сети. План кровли. Силовое электрооборудование Вводно-распределительное устройство. Опросный лист. Электрооборудование Чертежи основного комплекта марки А Содержание части проекта. Пояснения к проекту. Автоматизация санитарно-технических систем Вентсистемы П1, В1, В2, В3. Схема автоматизации функциональная. Автоматизация санитарно-технических систем Система приточная П1. Схема электрическая принципиальная управления. Автоматизация санитарно-технических систем Система приточная П1. Схема электрическая принципиальная регулирования температуры. Автоматизация санитарно-технических систем Система приточная П1. Схема электрическая принципиальная сигнализации. Автоматизация санитарно-технических систем Вентсистемы П1, В1, В2, В3. Схемы электрические принципиальные питания и управления. Автоматизация санитарно-технических систем Вентсистемы П1, В1, В2, В3. Схема внешних проводок электрическая. Венткамера. План прокладки контрольных сетей. Автоматизация санитарно-технических систем Чертежи основного комплекта марки СУ Заглавный лист. Условные обозначения. Схемы. Связь и сигнализация План блока столовой. План подвала. Сводная спецификация. Схема. Связь и сигнализация. Чертежи основного комплекта марки ХС Содержание части проекта. Спецификация материалов и оборудования. Охлаждаемая камера Испаритель ИРСИ-10с. Детали крепления |
| Разработан: | ЦНИИЭП учебных зданий |
| Утверждён: | 19.05.1977 Госгражданстрой (Gosgrazhdanstroy 103) |














































