Скачать Типовой проект 284-4-112.86 Альбом I. Часть 1. Пояснительная записка. Архитектурные решенияДата актуализации: 01.01.2021
|
| Обозначение: | Типовой проект 284-4-112.86 |
| Обозначение англ: | 284-4-112.86 |
| Статус: | действует |
| Название рус.: | Альбом I. Часть 1. Пояснительная записка. Архитектурные решения |
| Дата добавления в базу: | 01.09.2013 |
| Дата актуализации: | 01.01.2021 |
| Дата введения: | 25.07.1986 |
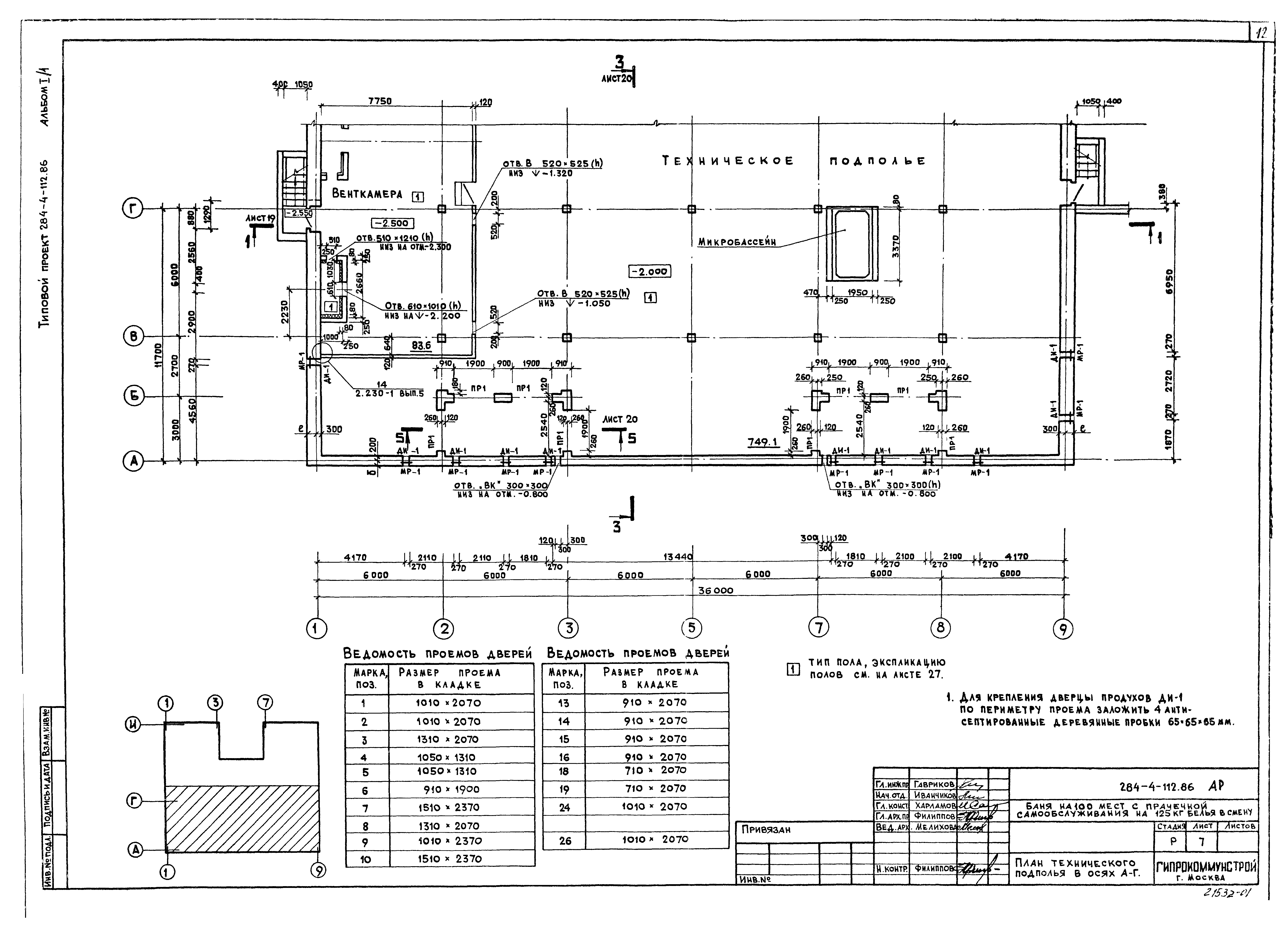
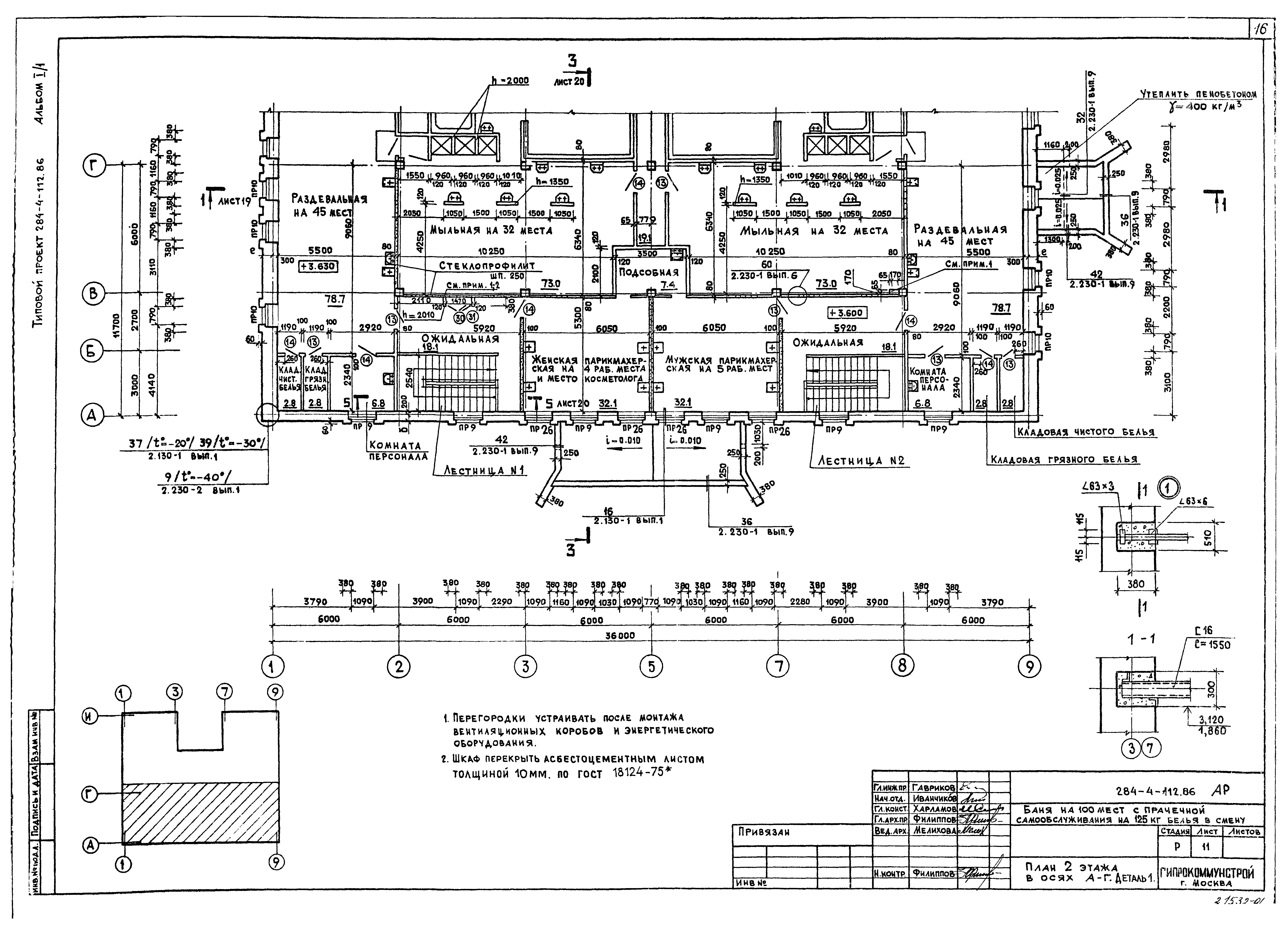
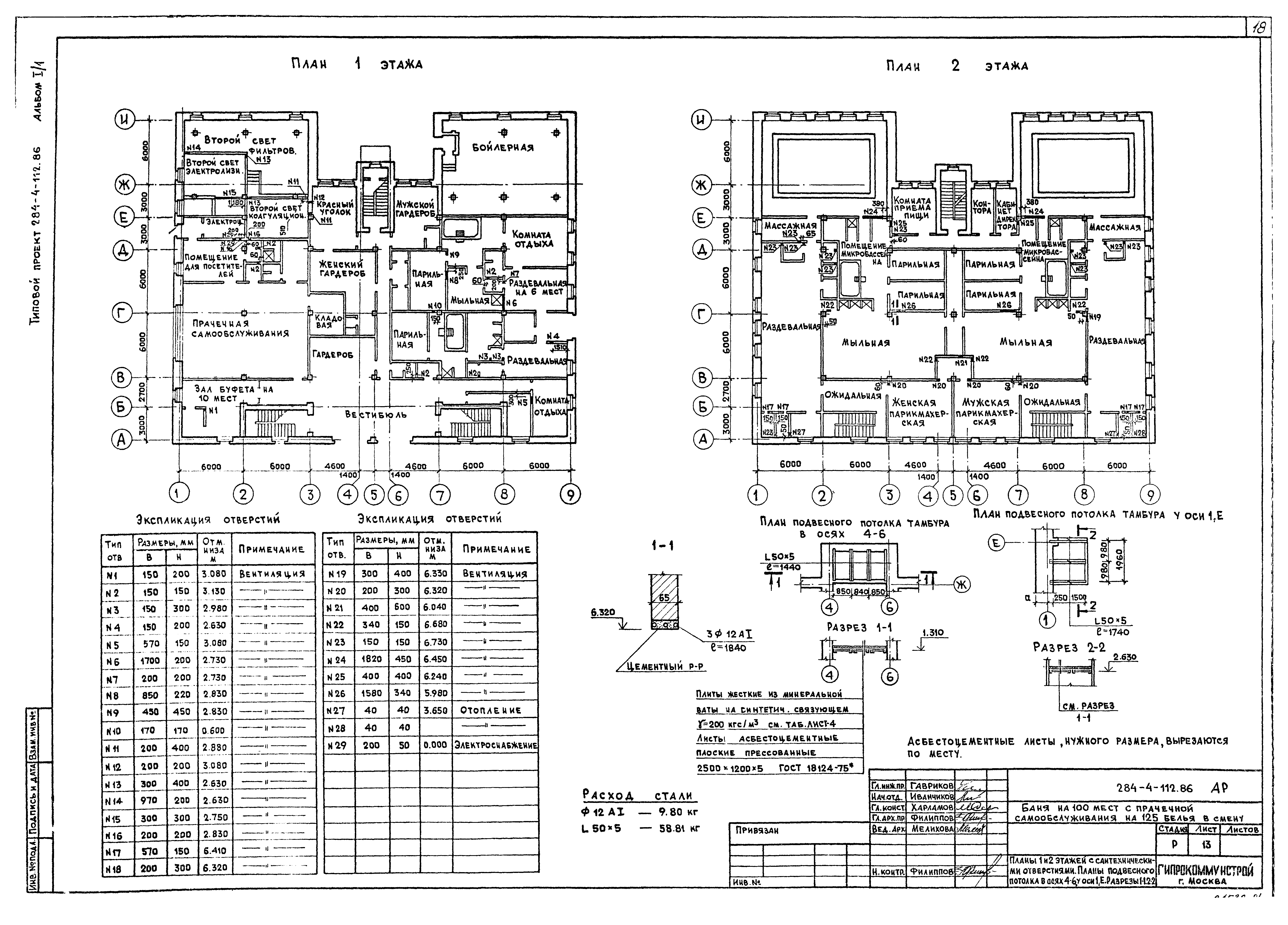
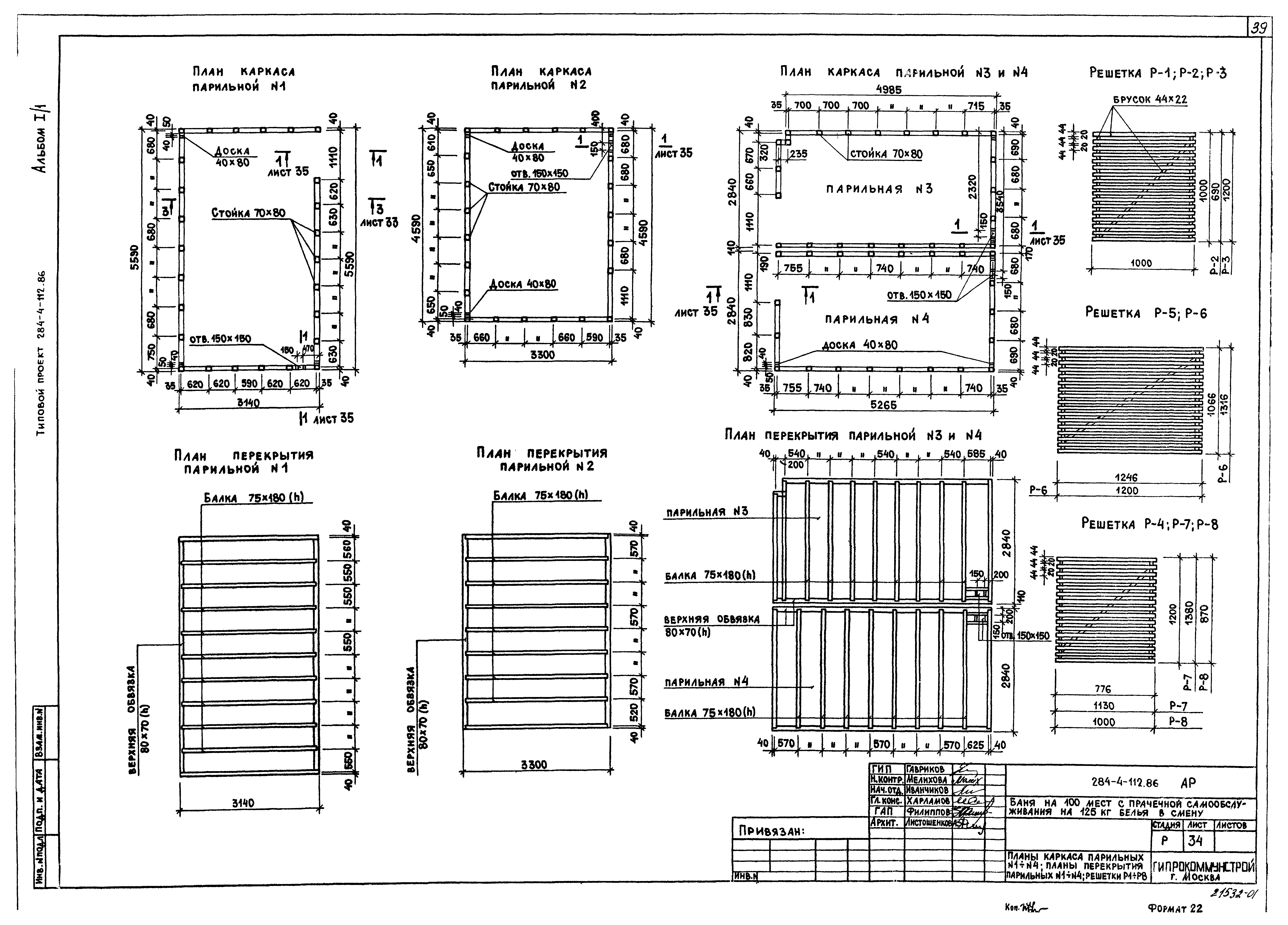
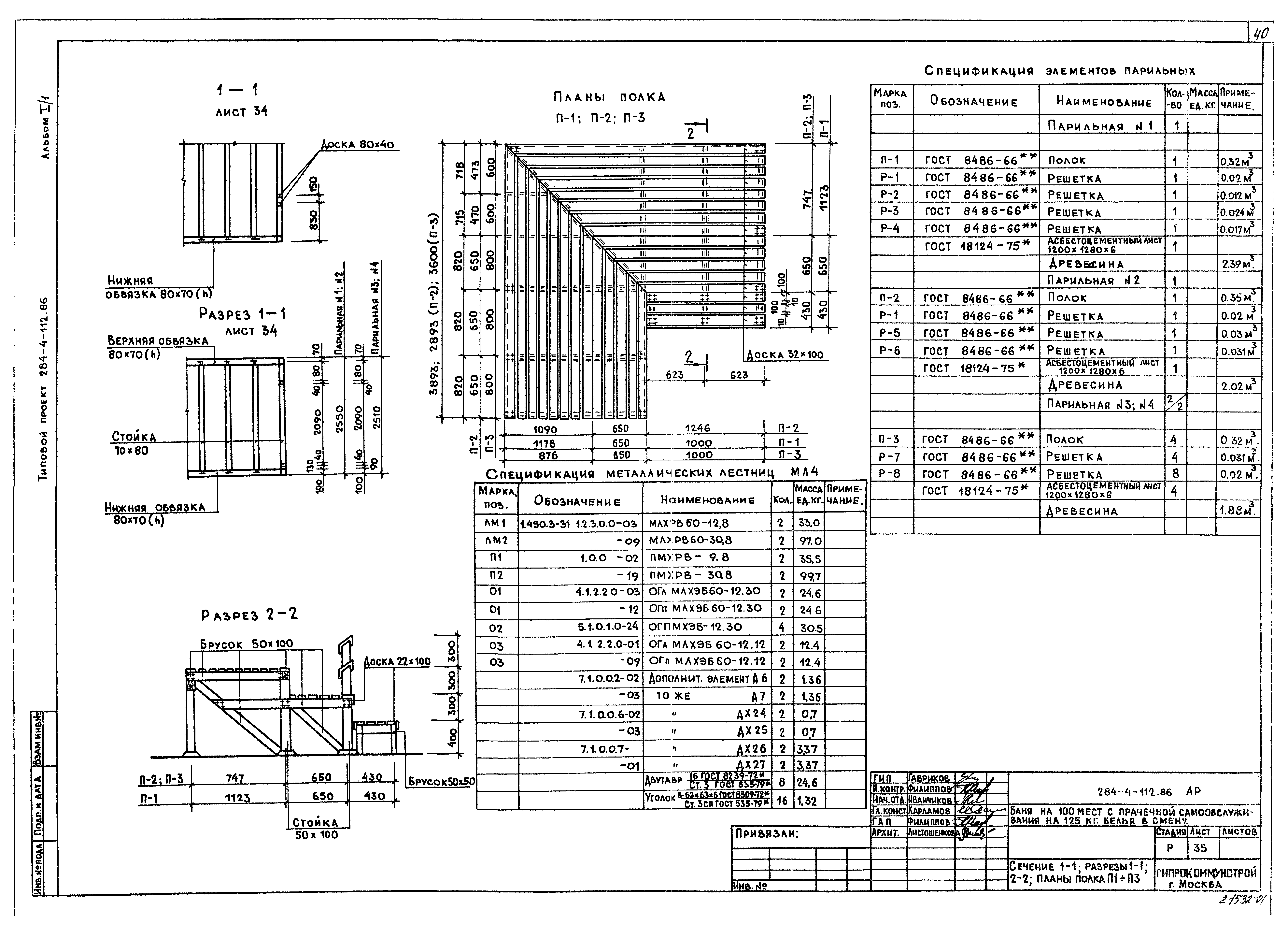
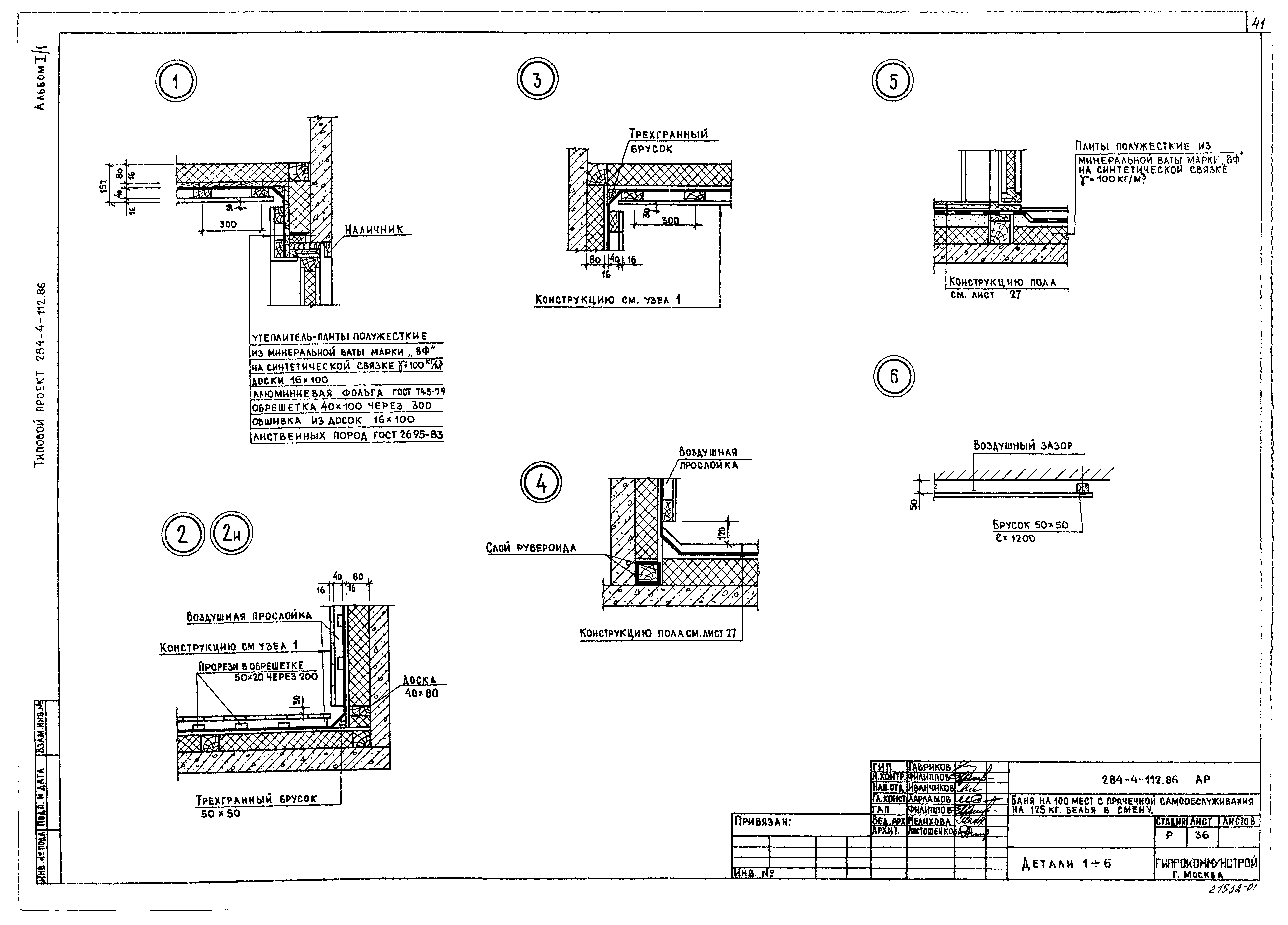
| Оглавление: | Обложка Титульный лист Содержание альбома Пояснительная записка Архитектурные решения Общие данные План технического подполья в осях А - Г План технического подполья в осях Г - И. Сечение А-А План 1 этажа в осях А - Г. Фрагмент плана 3. Сечение 2-2. Узел 1 План 1 этажа в осях Г - И. Сечение 1-1 План 2 этажа в осях А -Г План 2 этажа в осях Г - И. Сечение 2-2 Планы 1 и 2 этажей с сантехническими отверстиями. План подвесного потолка в осях 4 - 6, у оси 1, Е. Разрезы 1-1, 2-2 План технического этажа. Сечения 1-1, 2-2. Узлы 2, 3 Ведомость перемычек Спецификация перемычек Спецификация элементов заполнения проемов. Экспликация полов Разрез 1-1, 2-2. Развертки стен с вентиляционными каналами. Сечения 1-1 - 4-4 Разрезы 3-3 - 5-5. Сечения 4-4, 5-5 Разрез 6-6, сечения 1-1 - 3-3. Фрагмент плана 4. Узел 1 Фасад 1 - 9. Фрагмент фасада 6 - 4 для t = минус 40 градусов Цельсия. Фрагмент разреза 4-4 для t = минус 40 градусов Цельсия Фасады И -А; А - И Фасады 9 - 1; И - Ж; Ж - И Схемы заполнения оконных проемов План кровли. Сечения 1-1; 3-3; 4-4 Планы полов 1 и 2 этажей, экспликация полов Фрагмент планов полов 1 - 5. Сечение 1-1 Фрагмент планов полов 4. Сечения 1-1; 2-2 План воздухозаборной шахты. Фасад. Разрезы 1-1; 2-2. Деталь 4 Монтажные планы перегородок 1, 2 и технического этажей Спецификация элементов к монтажным планам перегородок 1, 2 и технического этажей Планы парильных №1 - №4. Разрезы 1-1 - 3-3 Планы каркаса парильных №1 - №4; планы перекрытия парильных №1 - №4; решетки Р1 - Р8 Сечение 1-1; разрезы 1-1; 2-2; планы пола П1 - П3 Детали 1 - 6 Планы парогидроизоляции 1 и 2 этажей; разрезы 1-1 и 2-2 Парогидроизоляция. Детали 1 - 8; 15 Парогидроизоляция. Детали 9 - 14 План тамбура главного входа. Разрезы 1-1; 2-2. Детали 1 - 6 Развертки стен по осям "В", "А", "3" и "7" Узлы 1, 2. Сечения 1-1, 2-2 Остекленная перегородка ОП-1, окно выдачи ИОВ-1 Фрамуги Ф-1 - Ф-4 Дверной блок внутренний ДПИ-1; ДПИ-1л, узлы 1, 2. Ручка дверная РД-1. дверца продуха ДИ-1; подоконная доска ИПД-1 |
| Разработан: | Гипрокоммунстрой |
| Утверждён: | 27.12.1985 МЖКХ РСФСР (7-ТД) |



















































