Скачать Типовой проект 284-4-112.86 Альбом I. Часть 2. Конструкции железобетонные и металлические. Технологические чертежиДата актуализации: 01.01.2021
|
| Обозначение: | Типовой проект 284-4-112.86 |
| Обозначение англ: | 284-4-112.86 |
| Статус: | действует |
| Название рус.: | Альбом I. Часть 2. Конструкции железобетонные и металлические. Технологические чертежи |
| Дата добавления в базу: | 01.09.2013 |
| Дата актуализации: | 01.01.2021 |
| Дата введения: | 25.07.1986 |
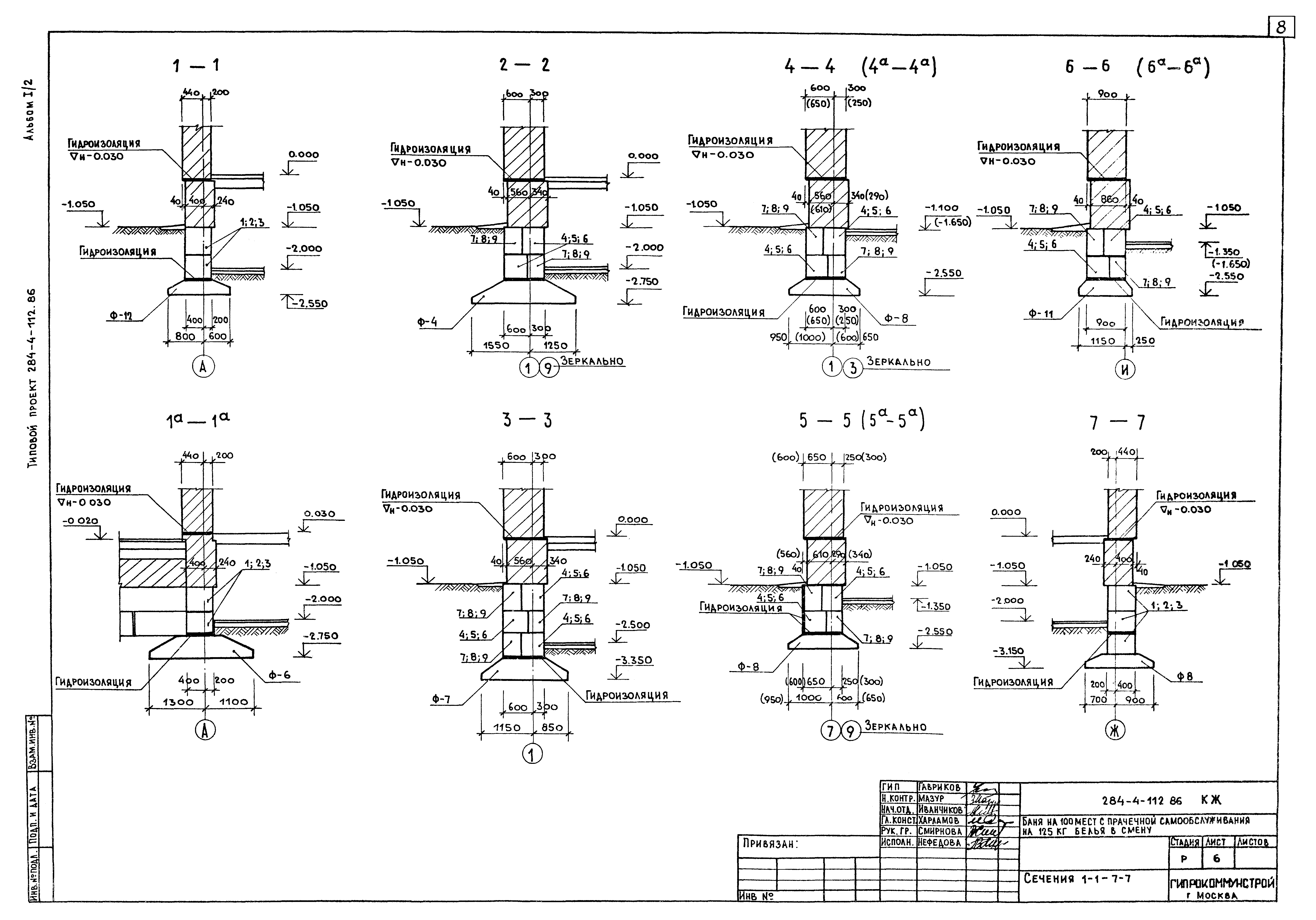
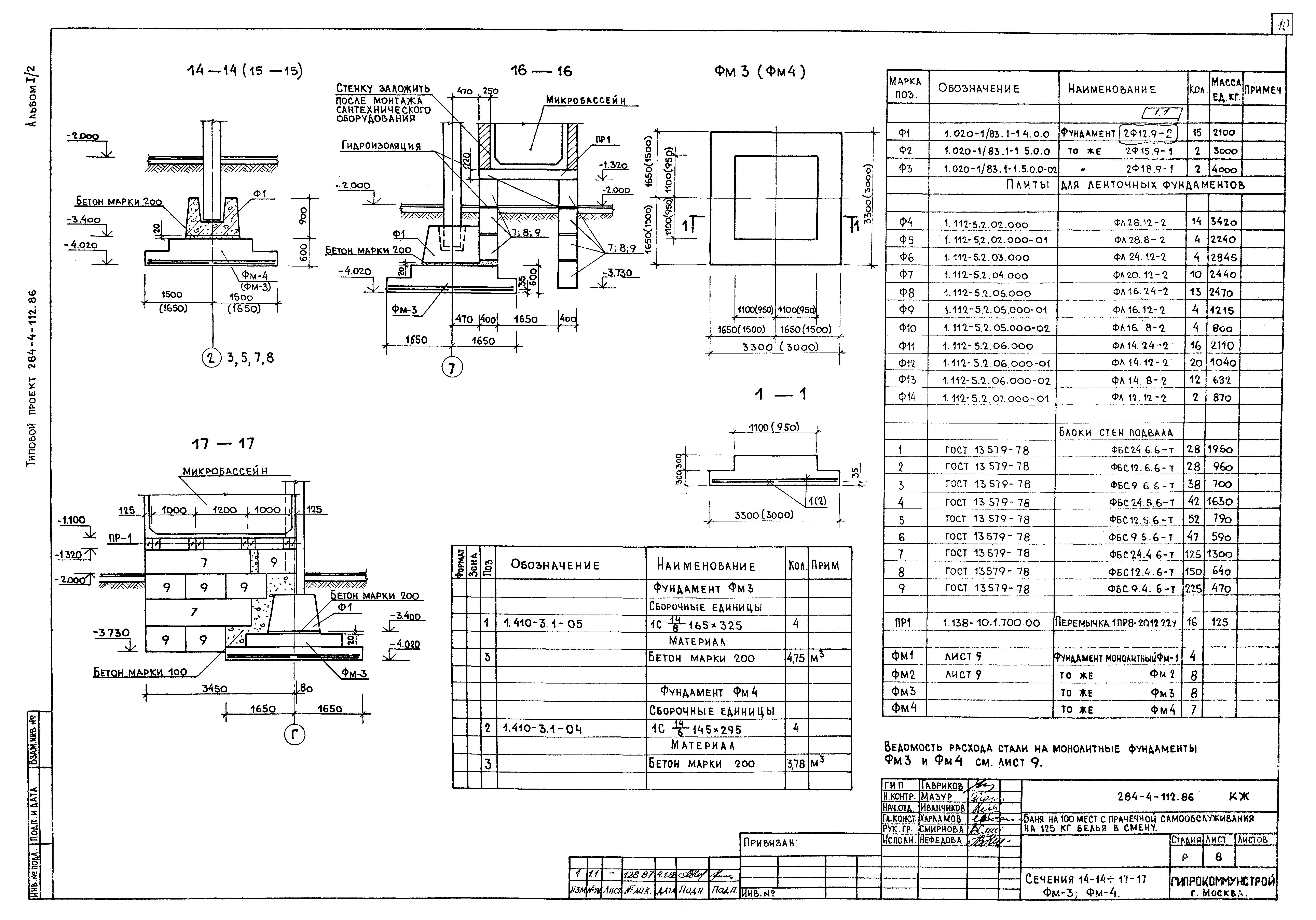
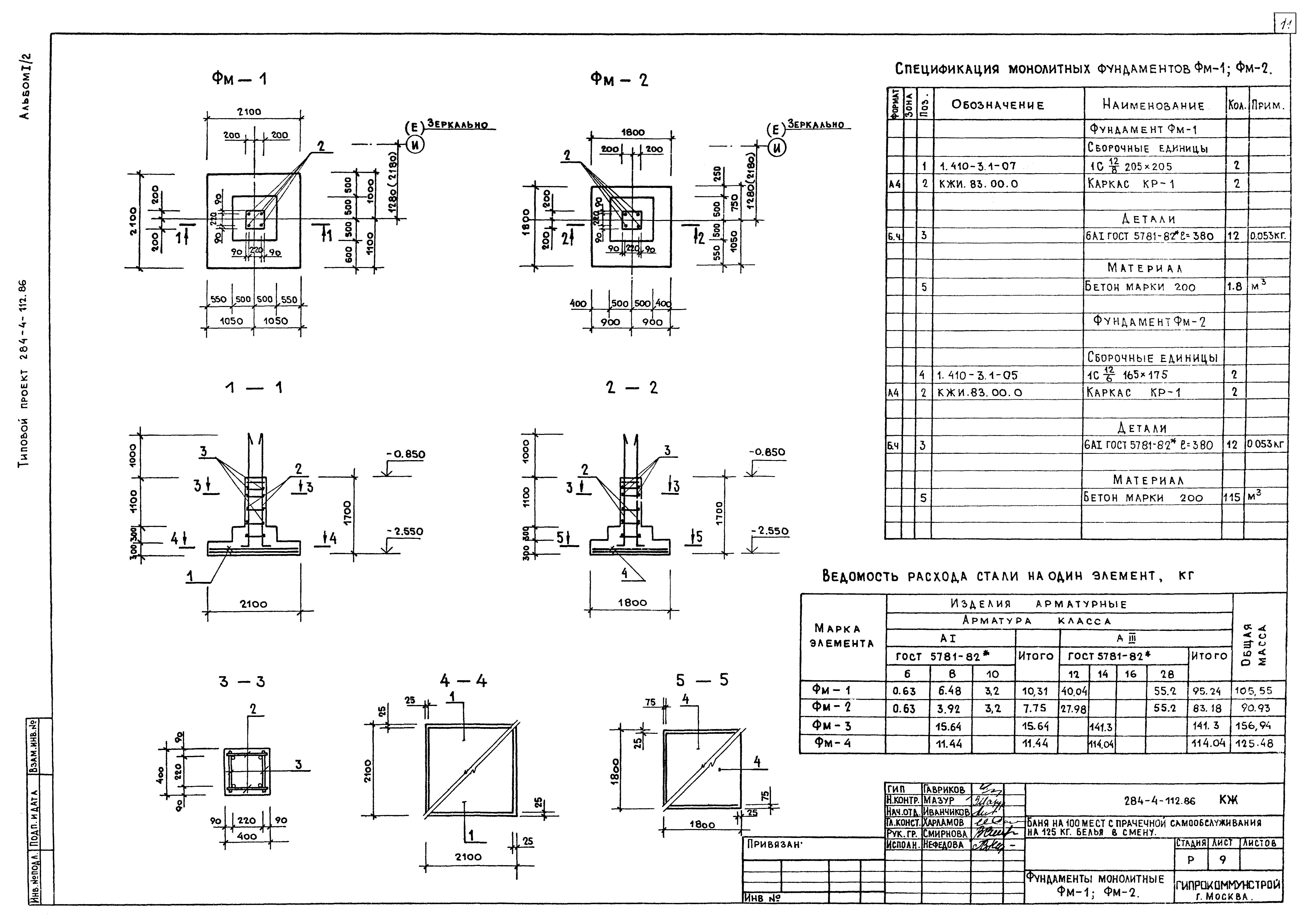
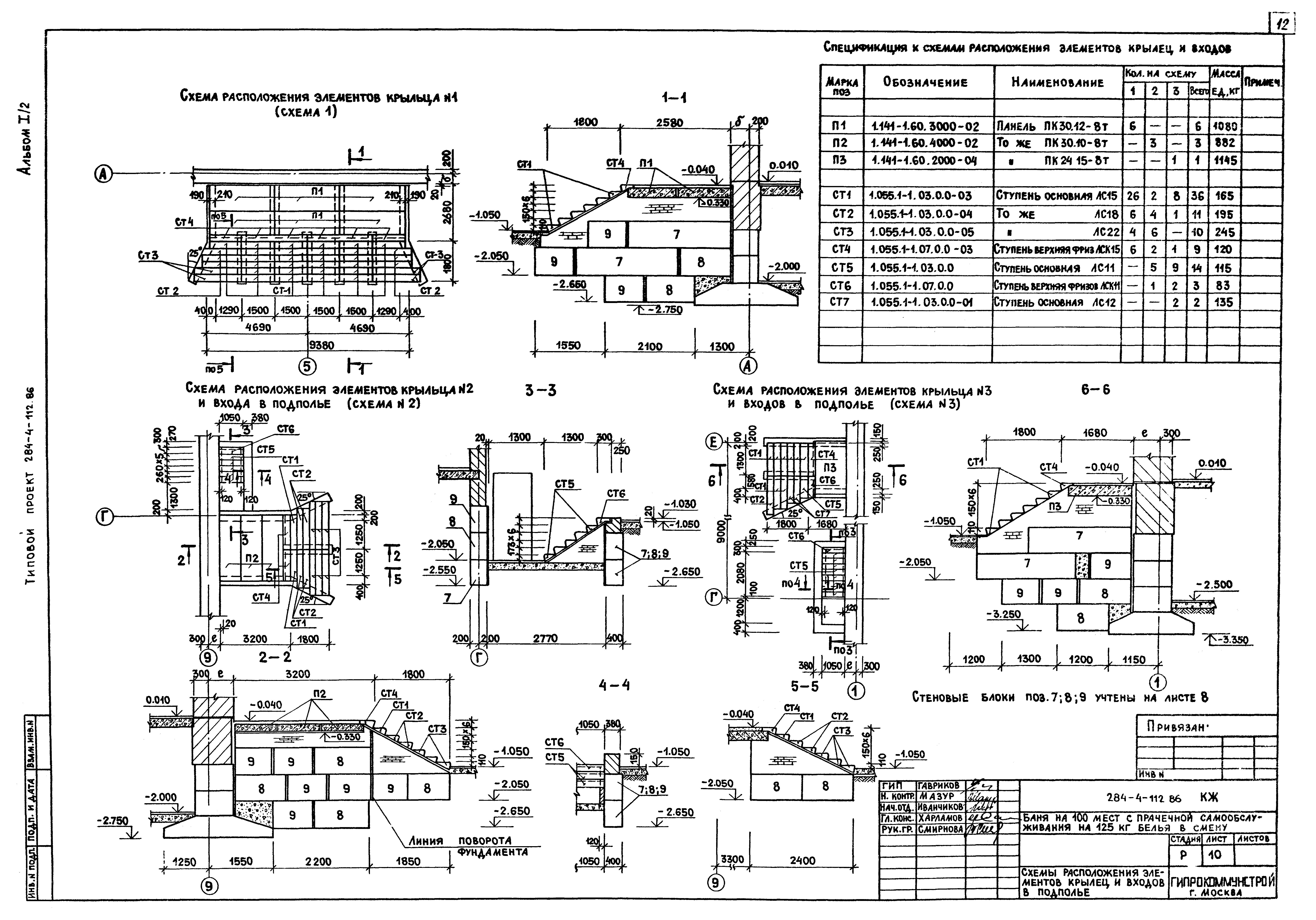
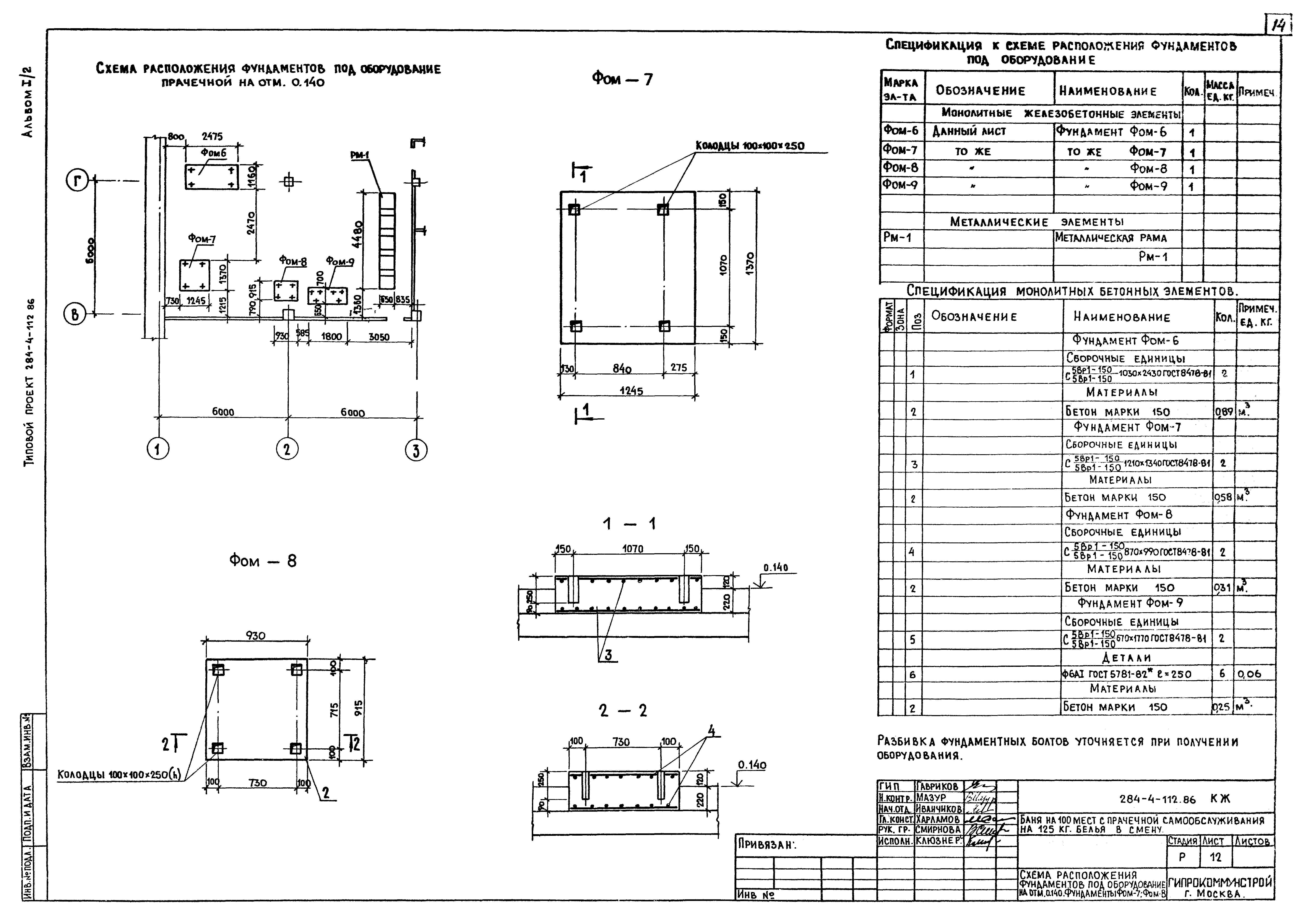
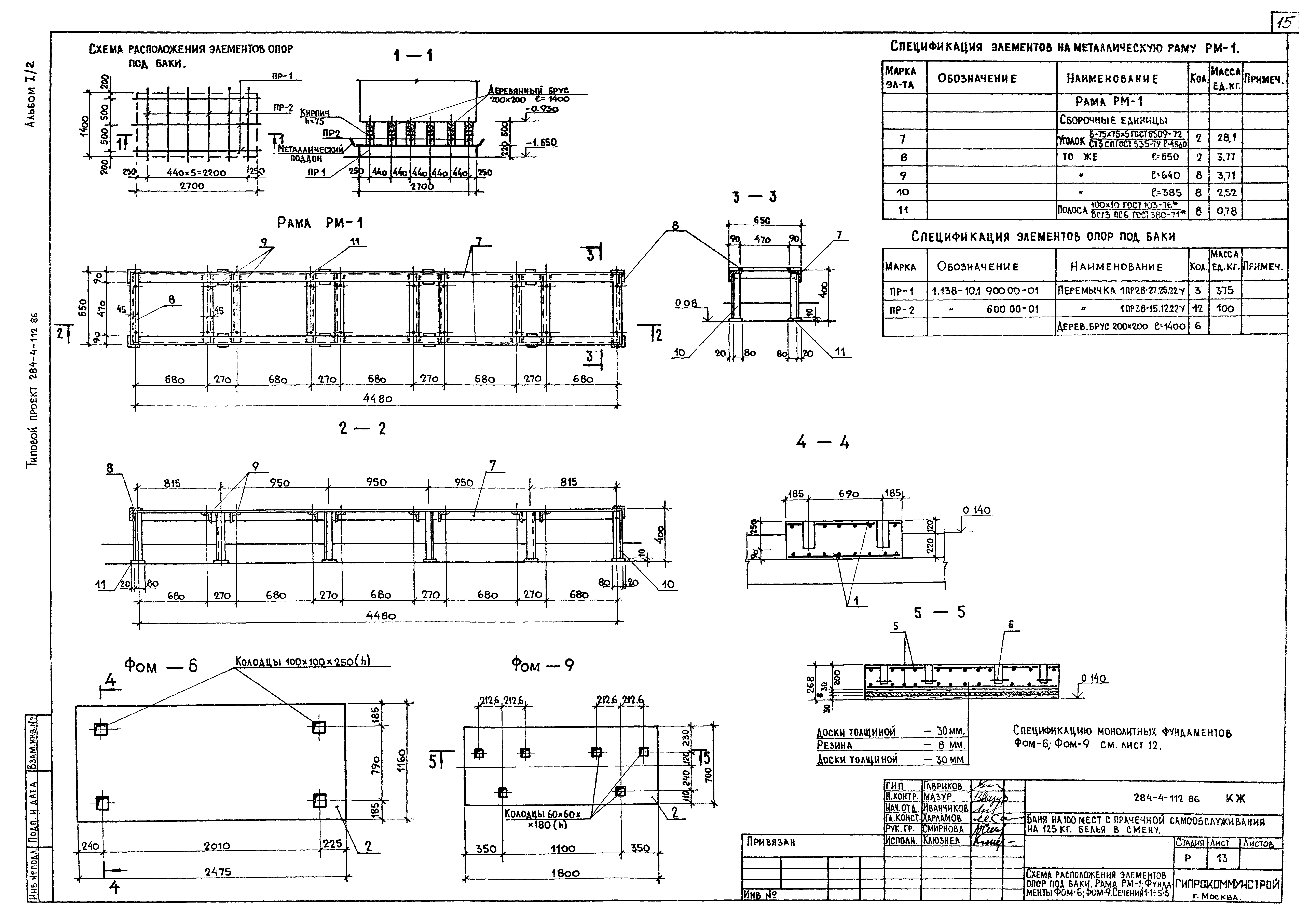
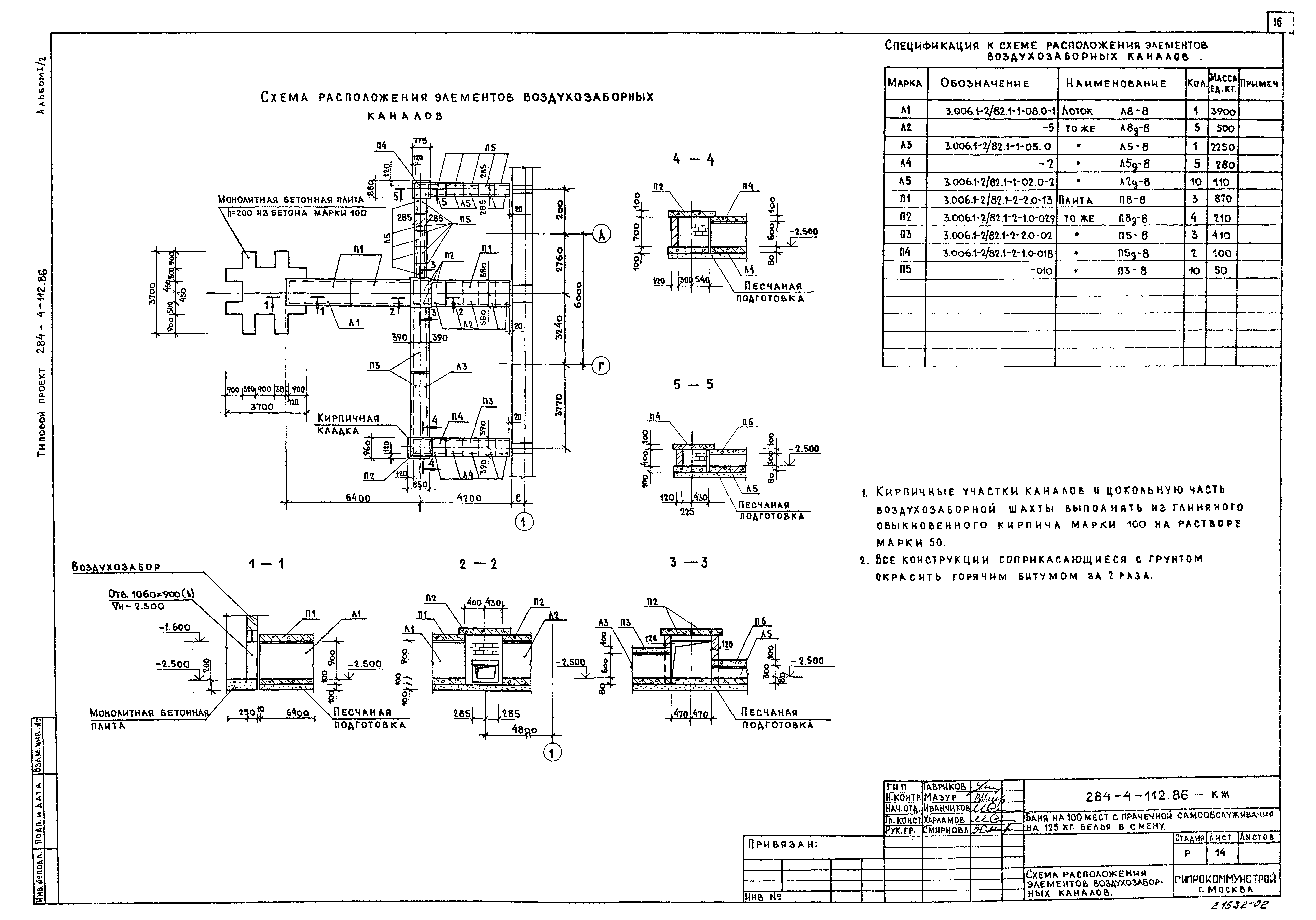
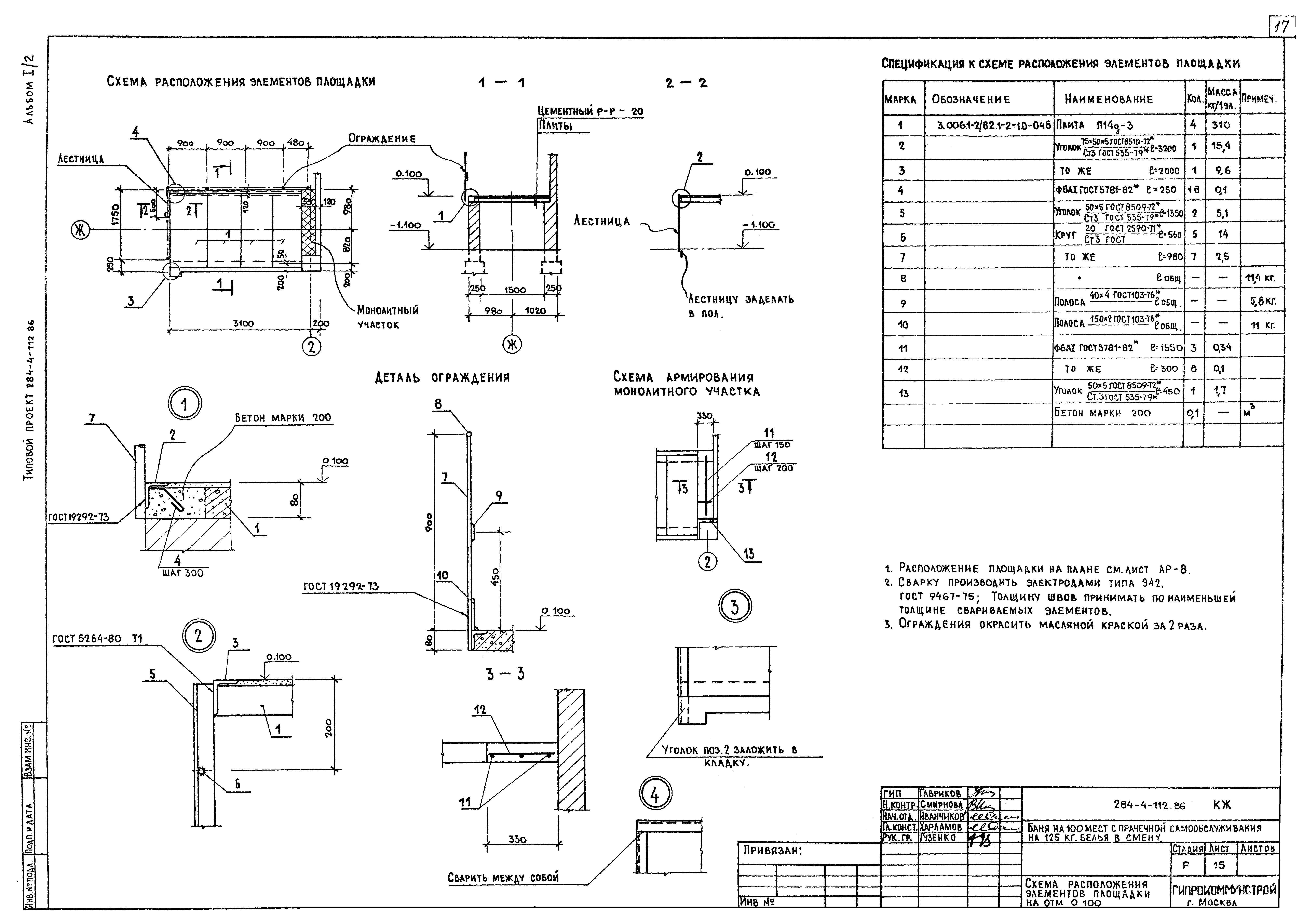
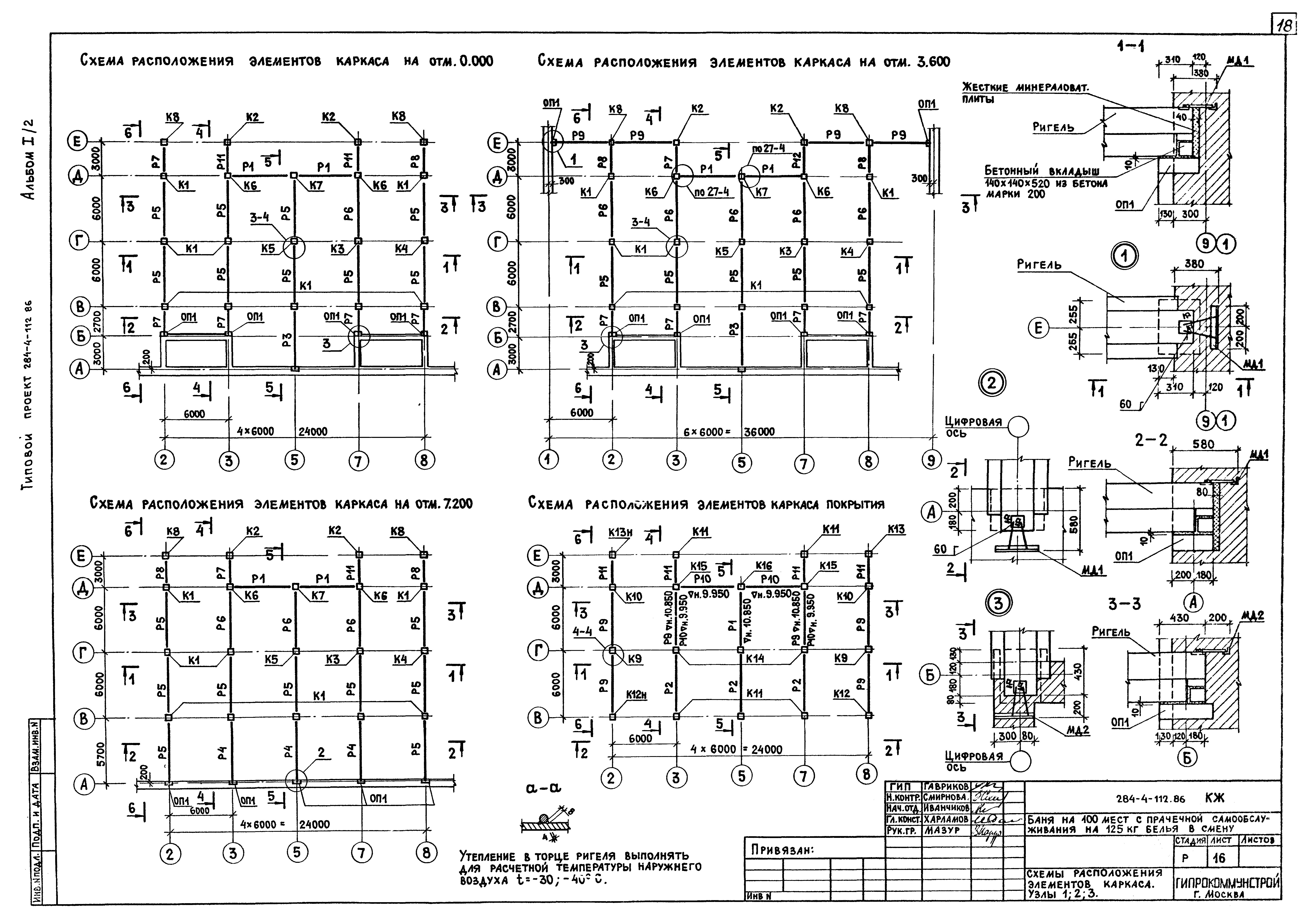
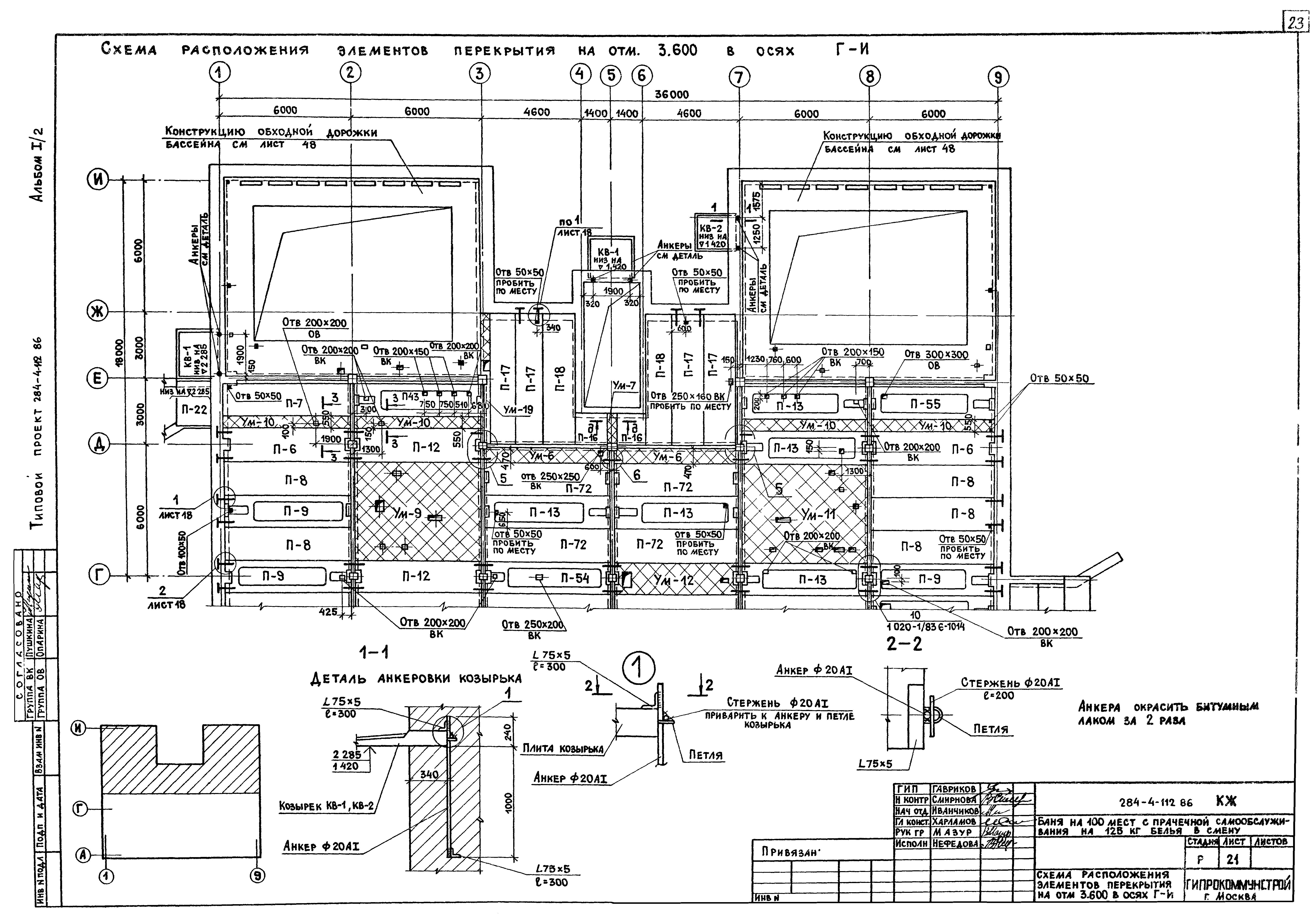
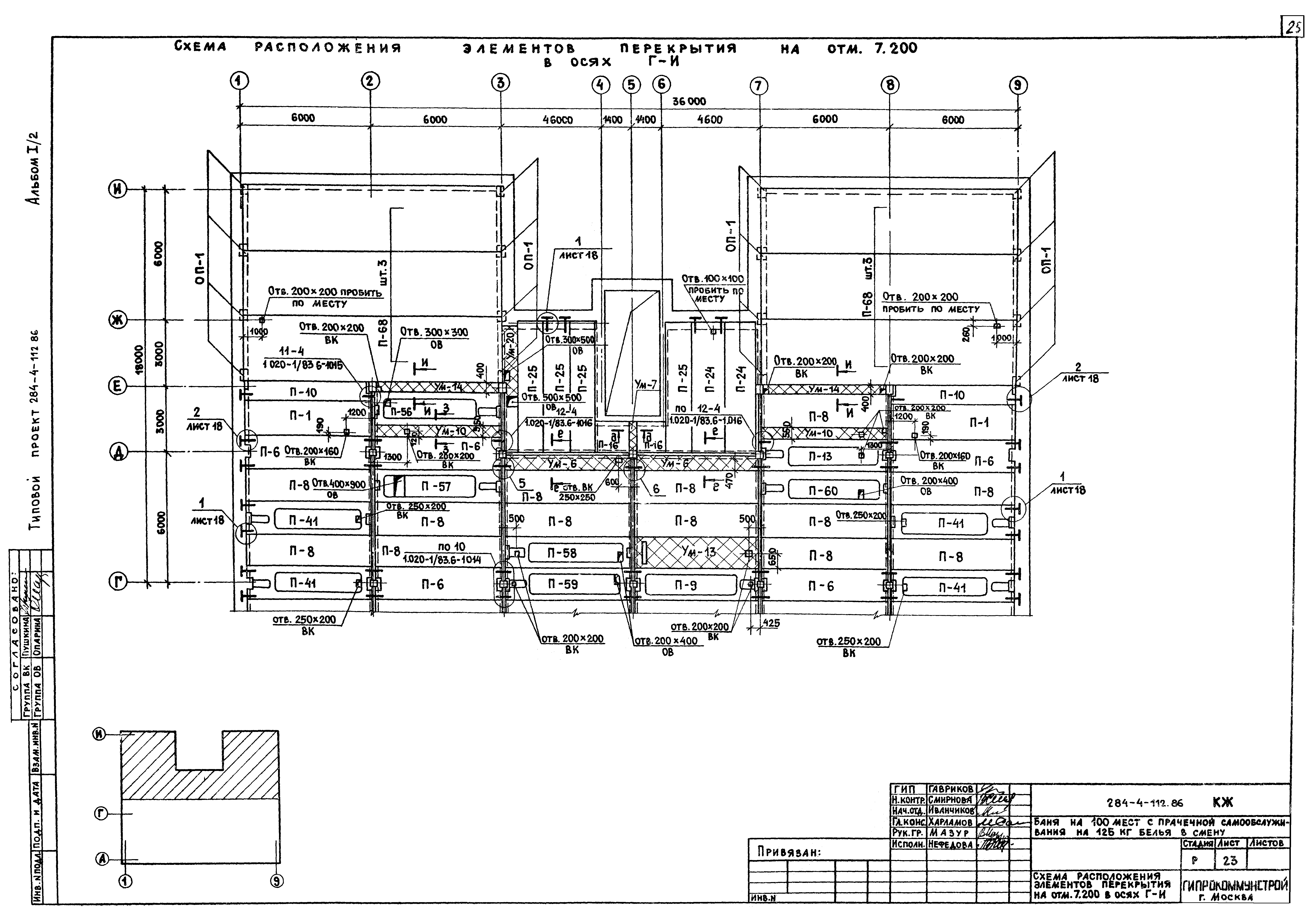
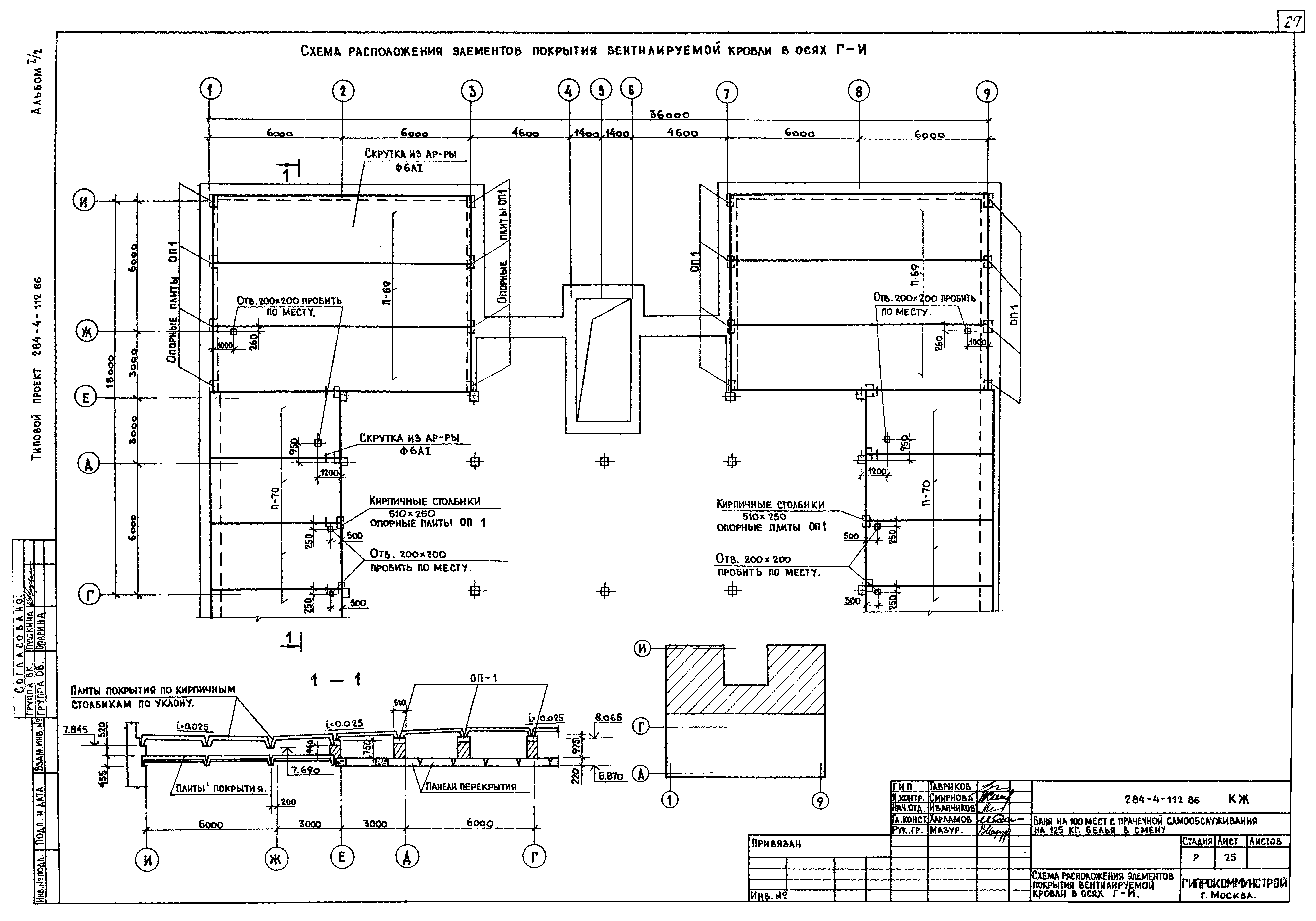
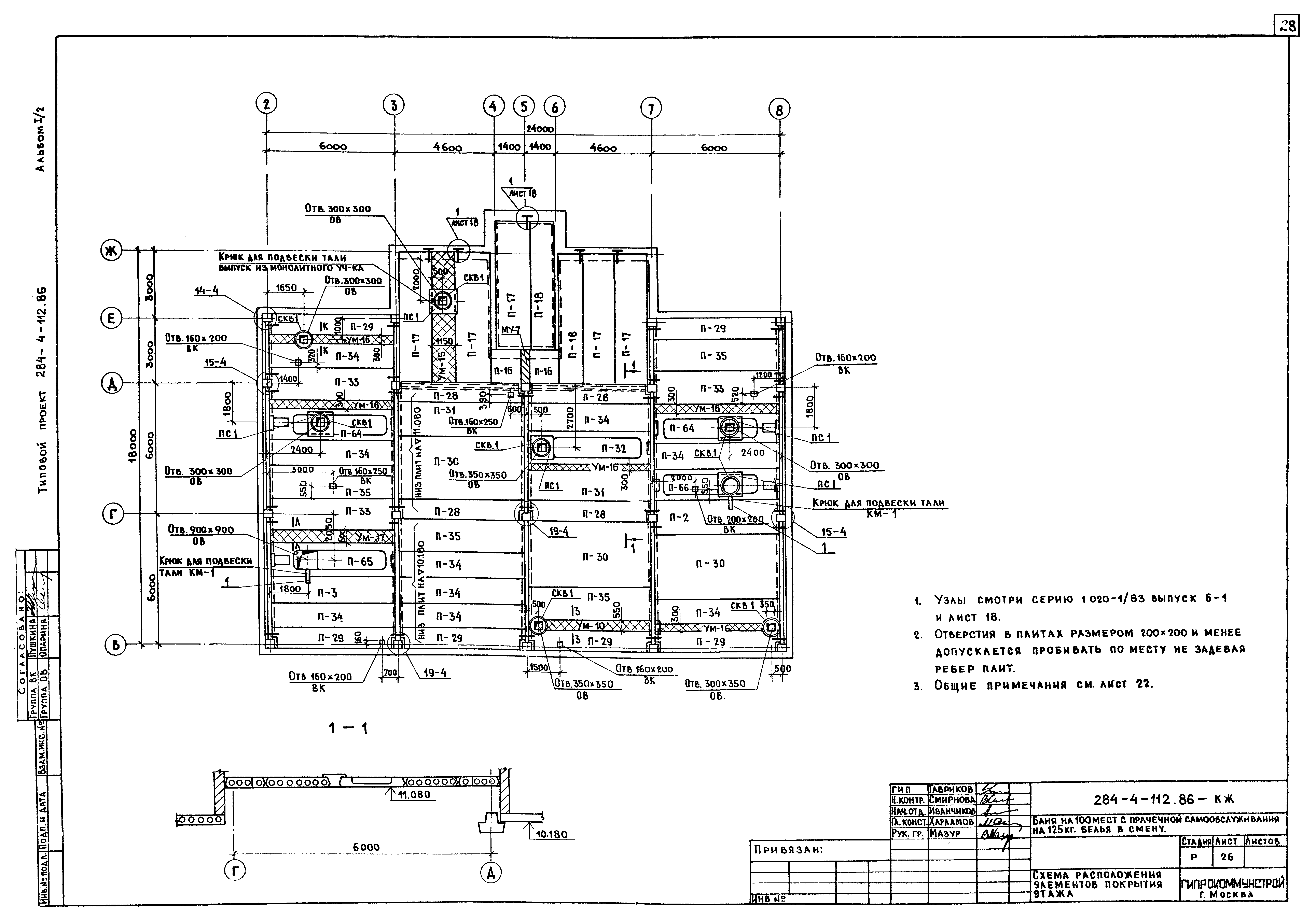
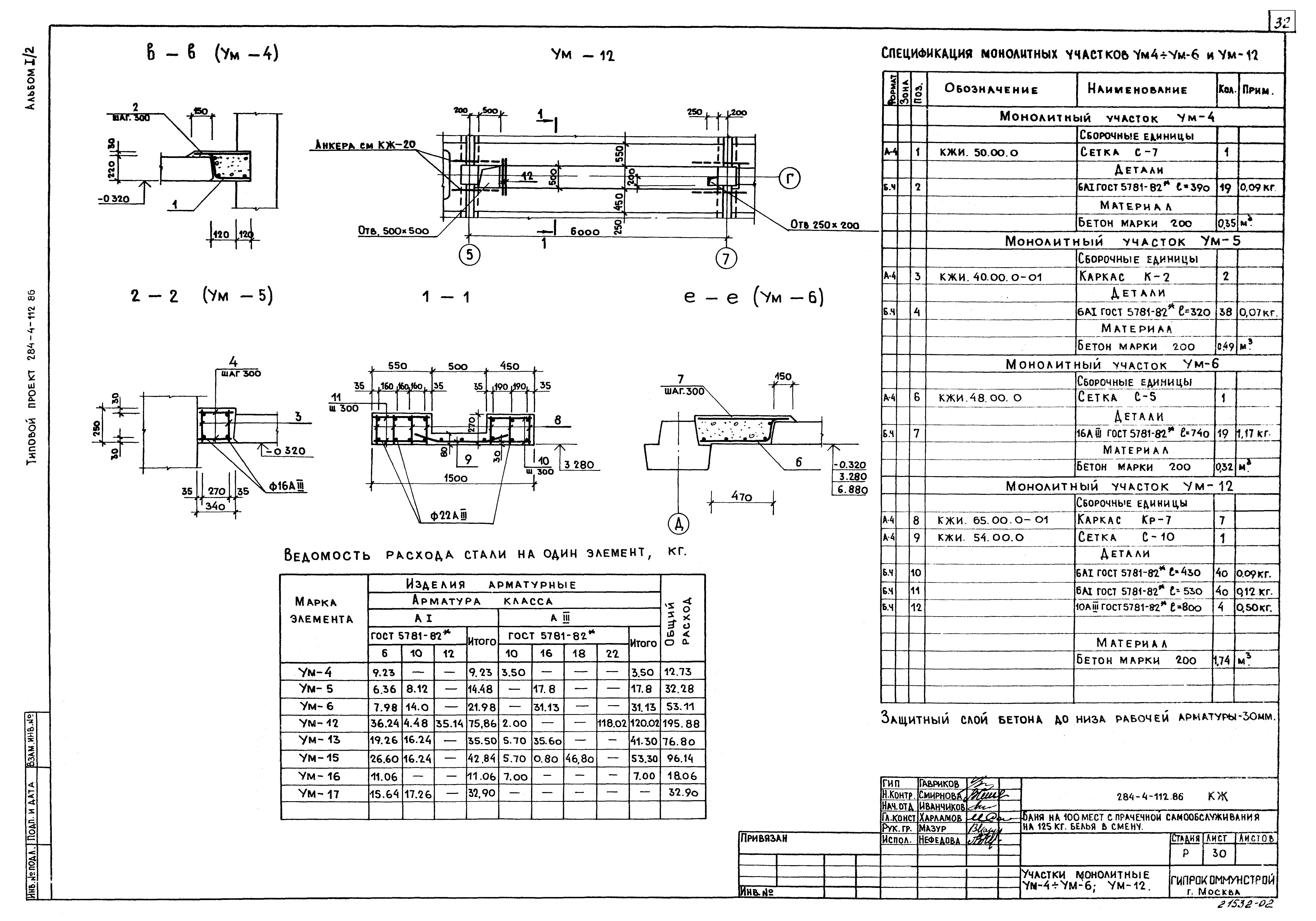
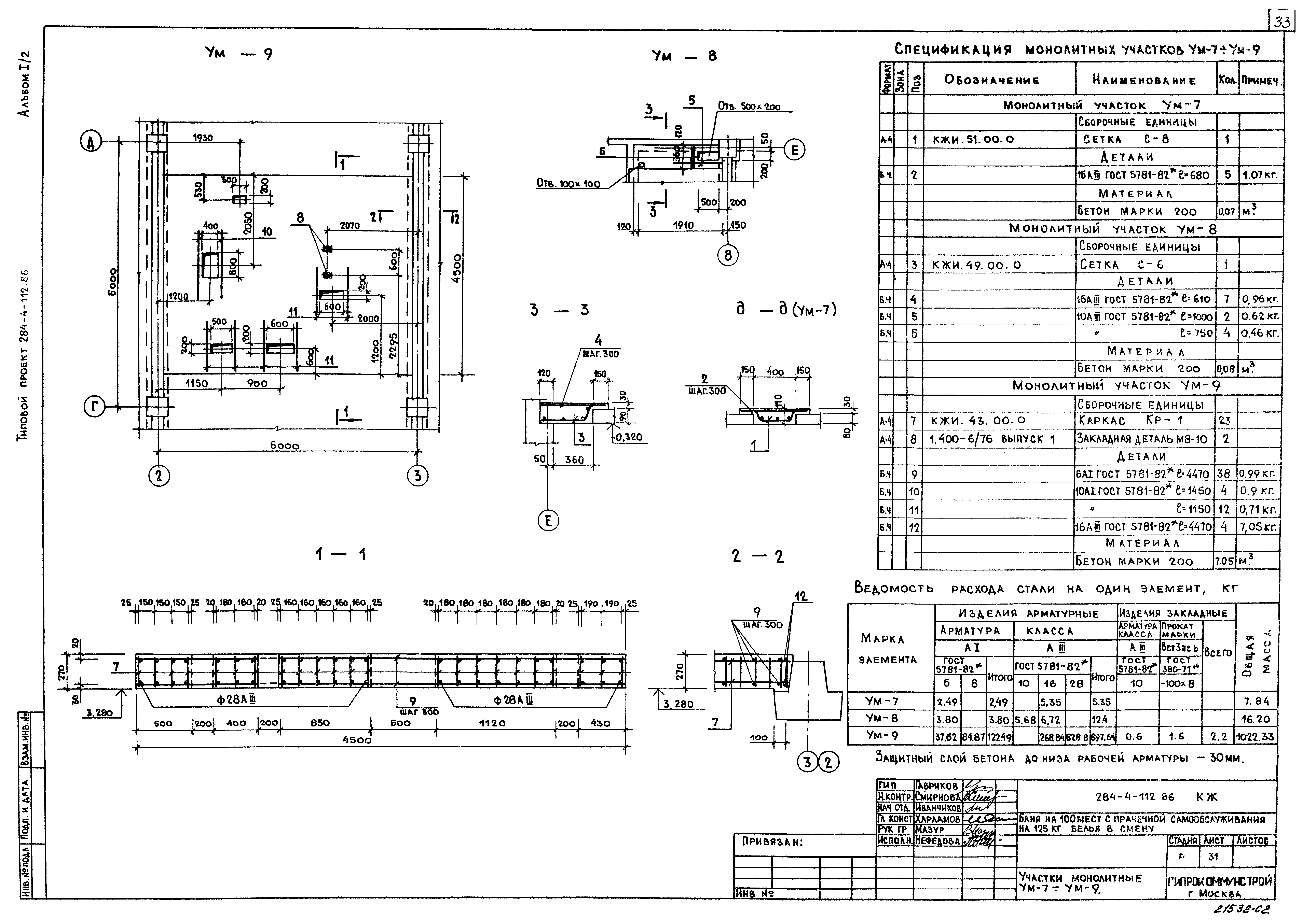
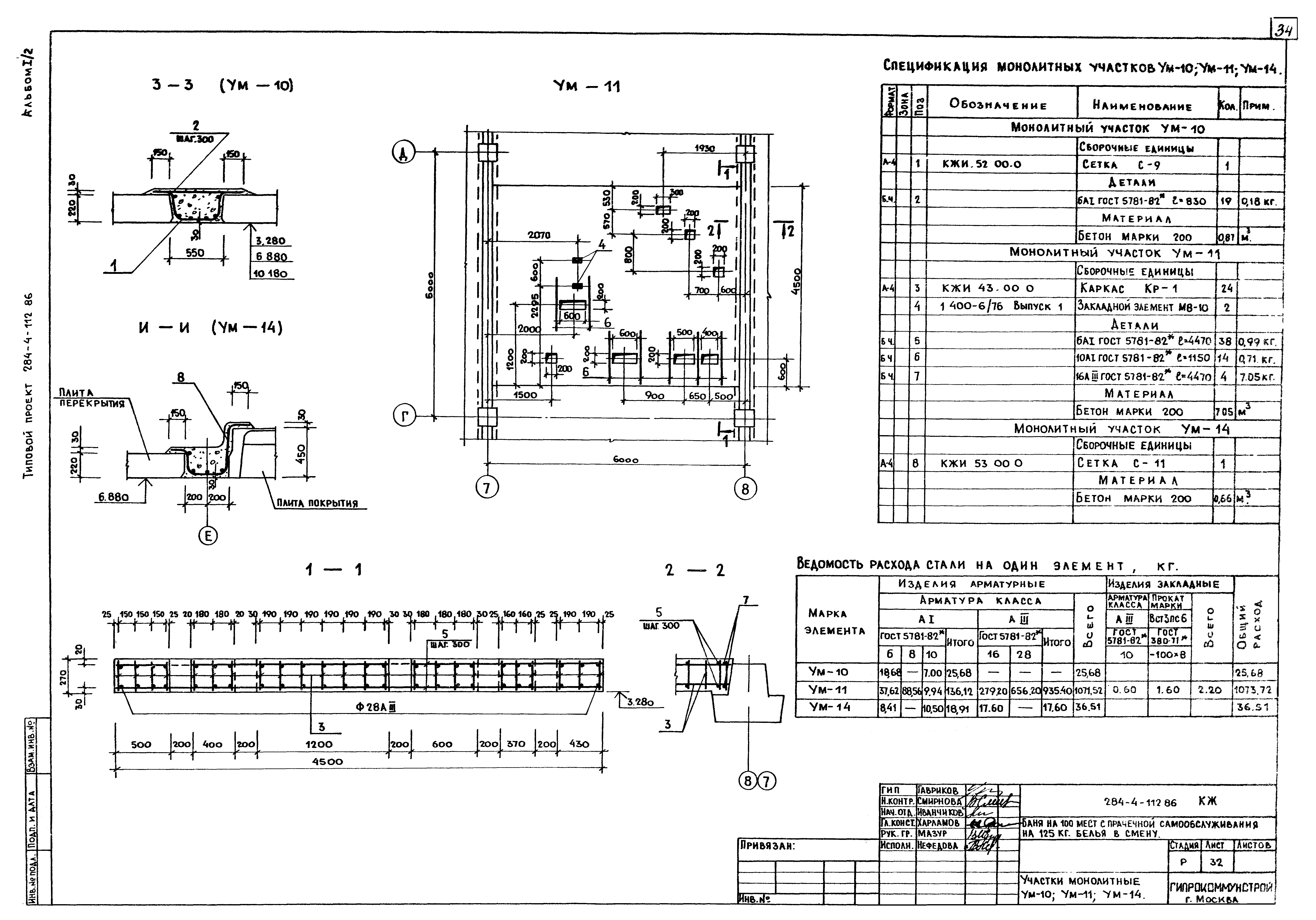
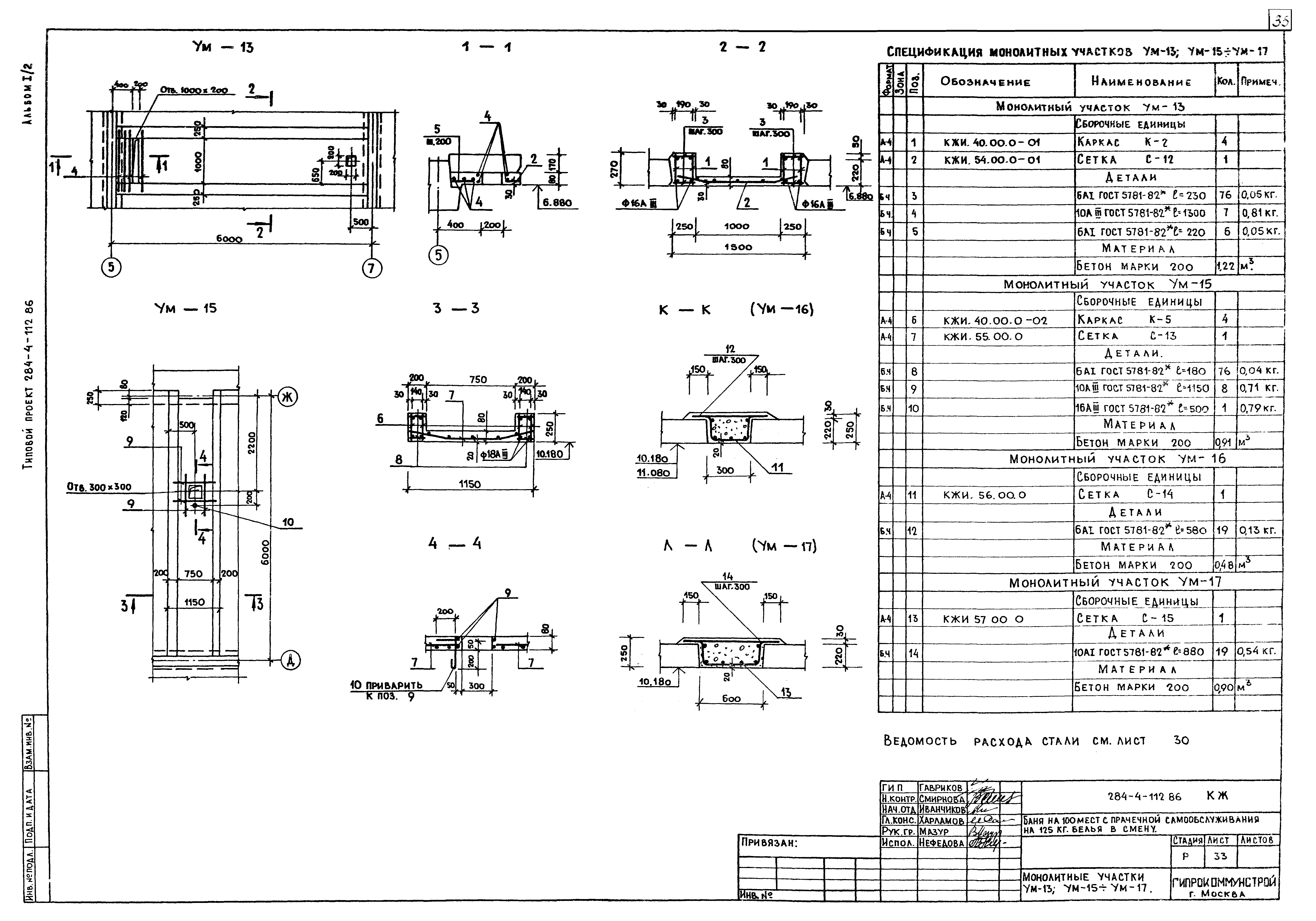
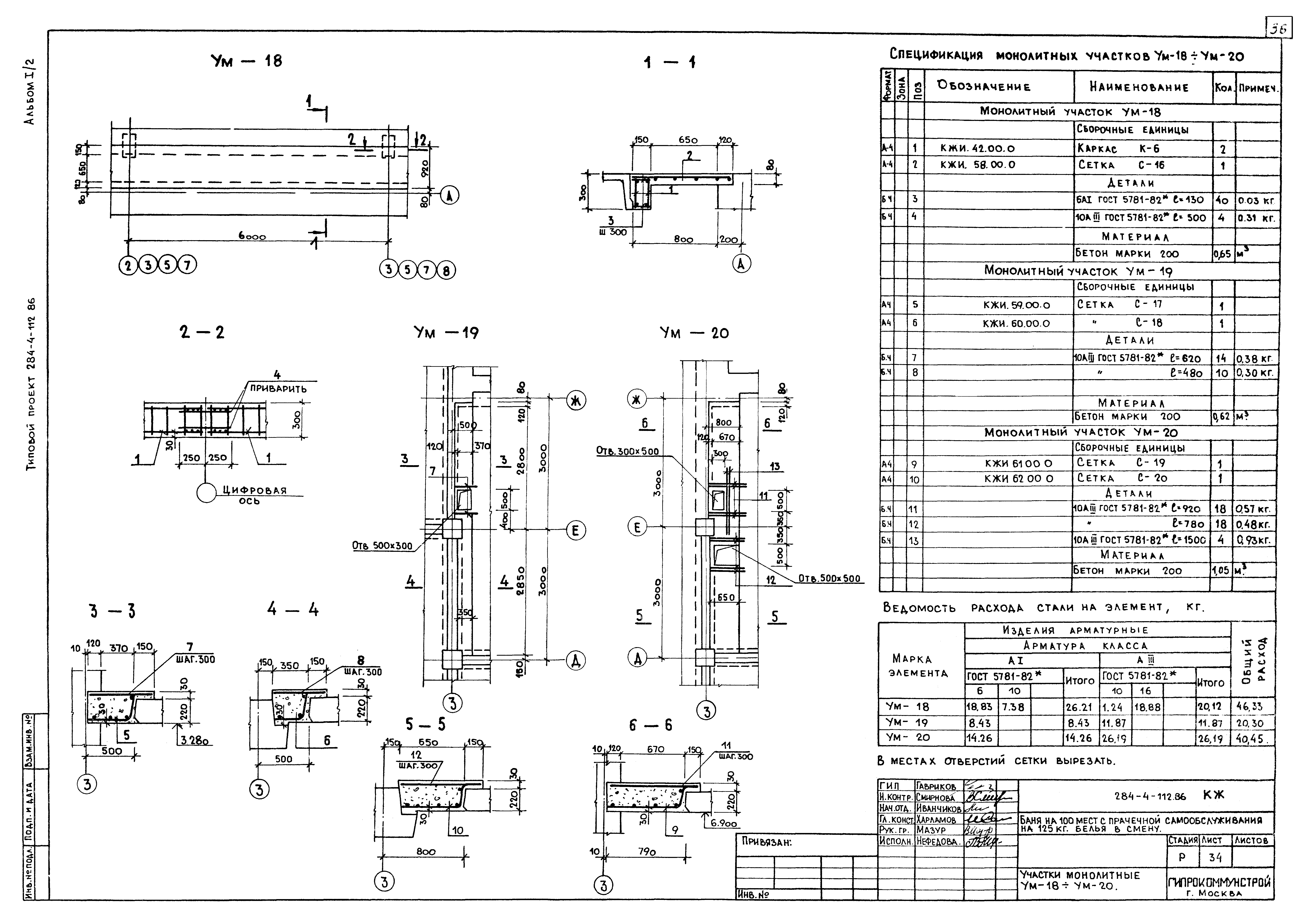
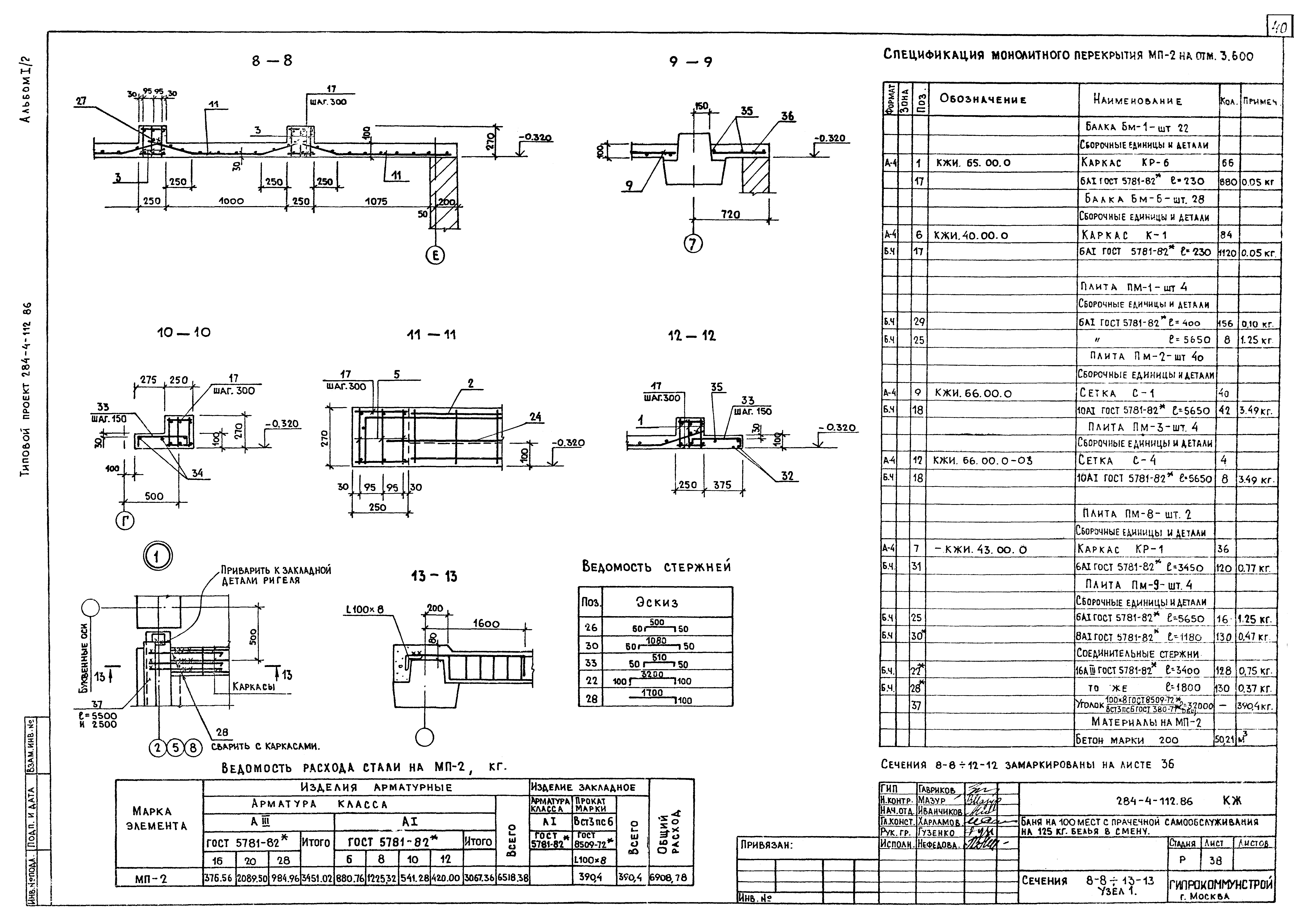
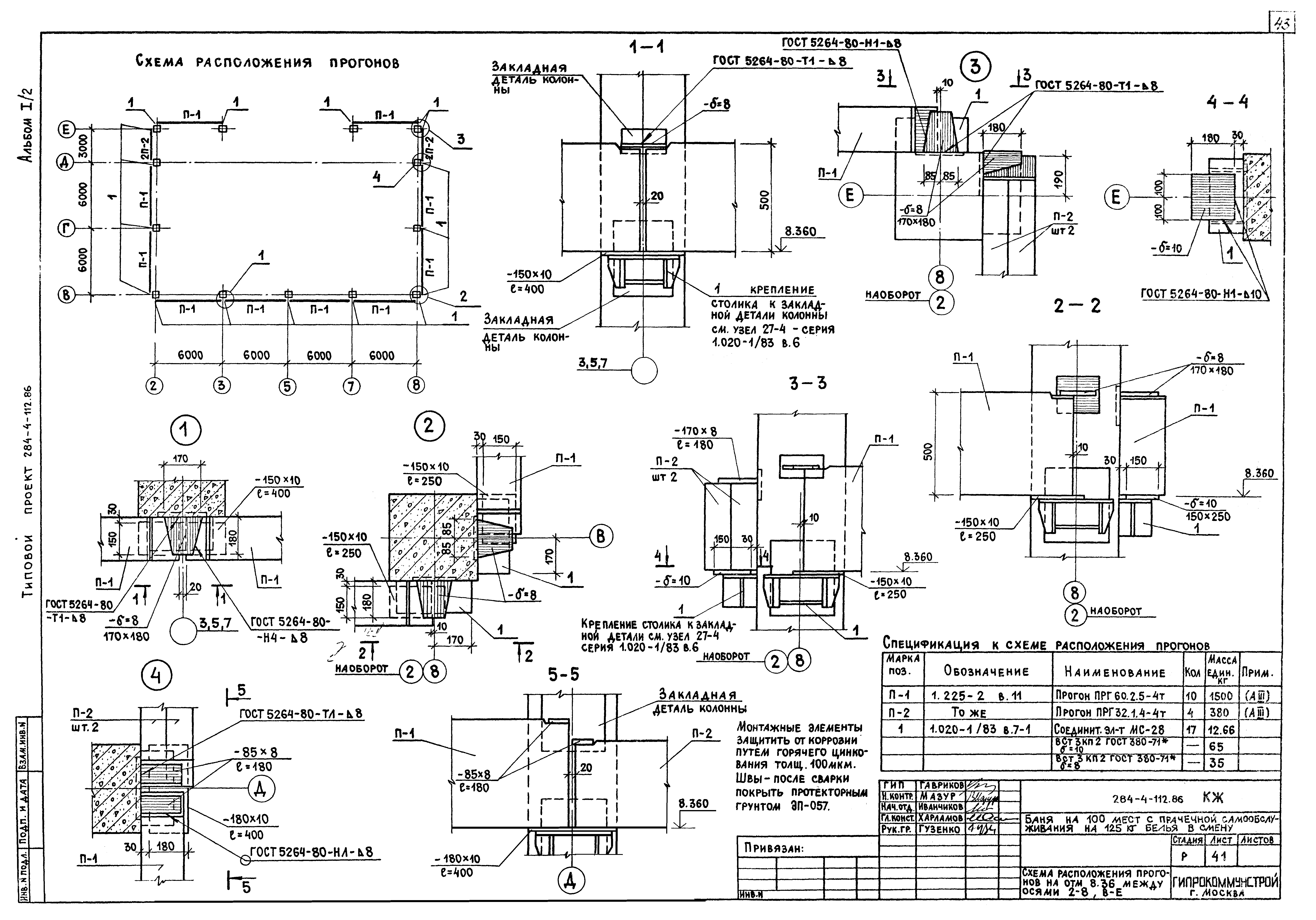
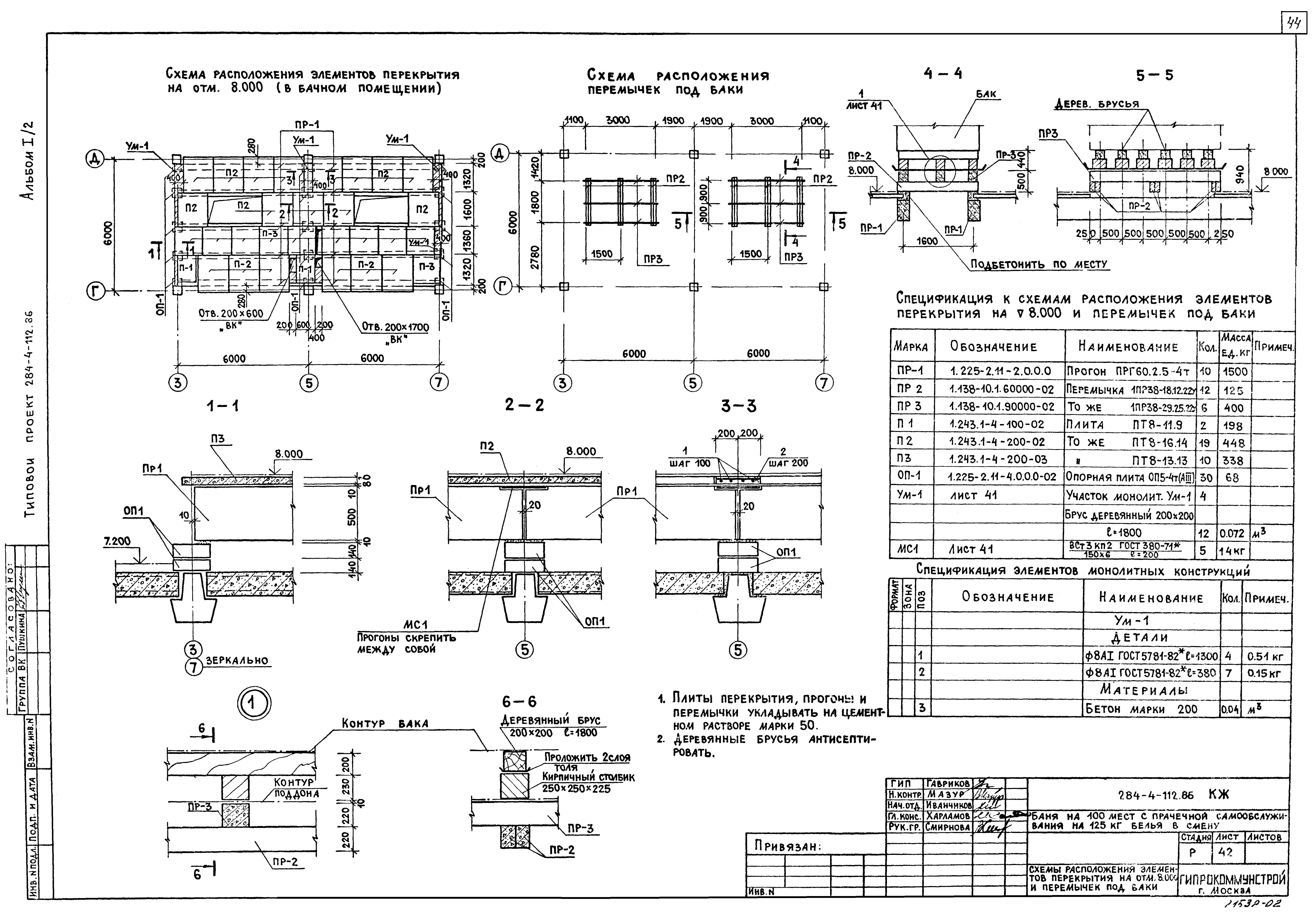
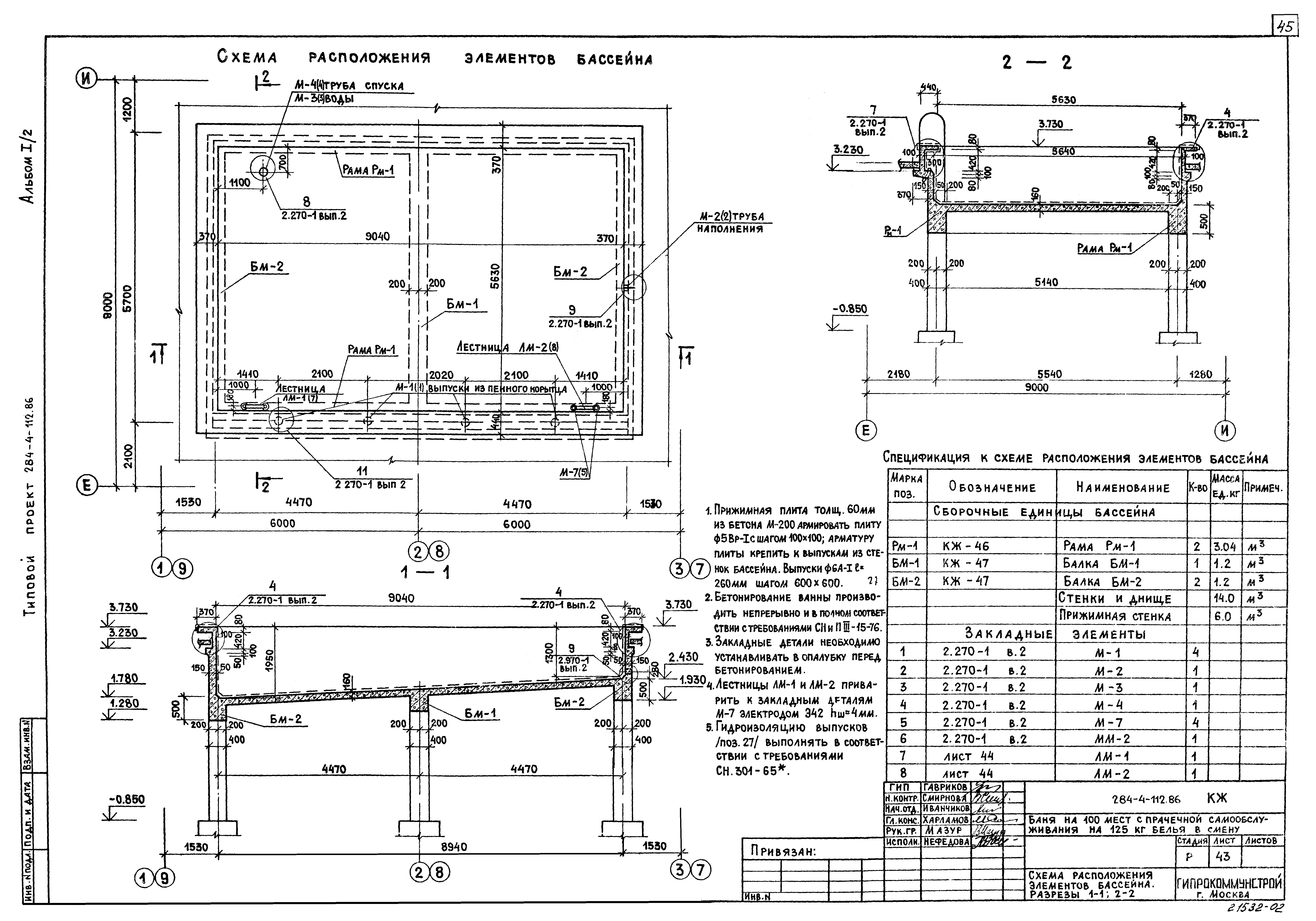
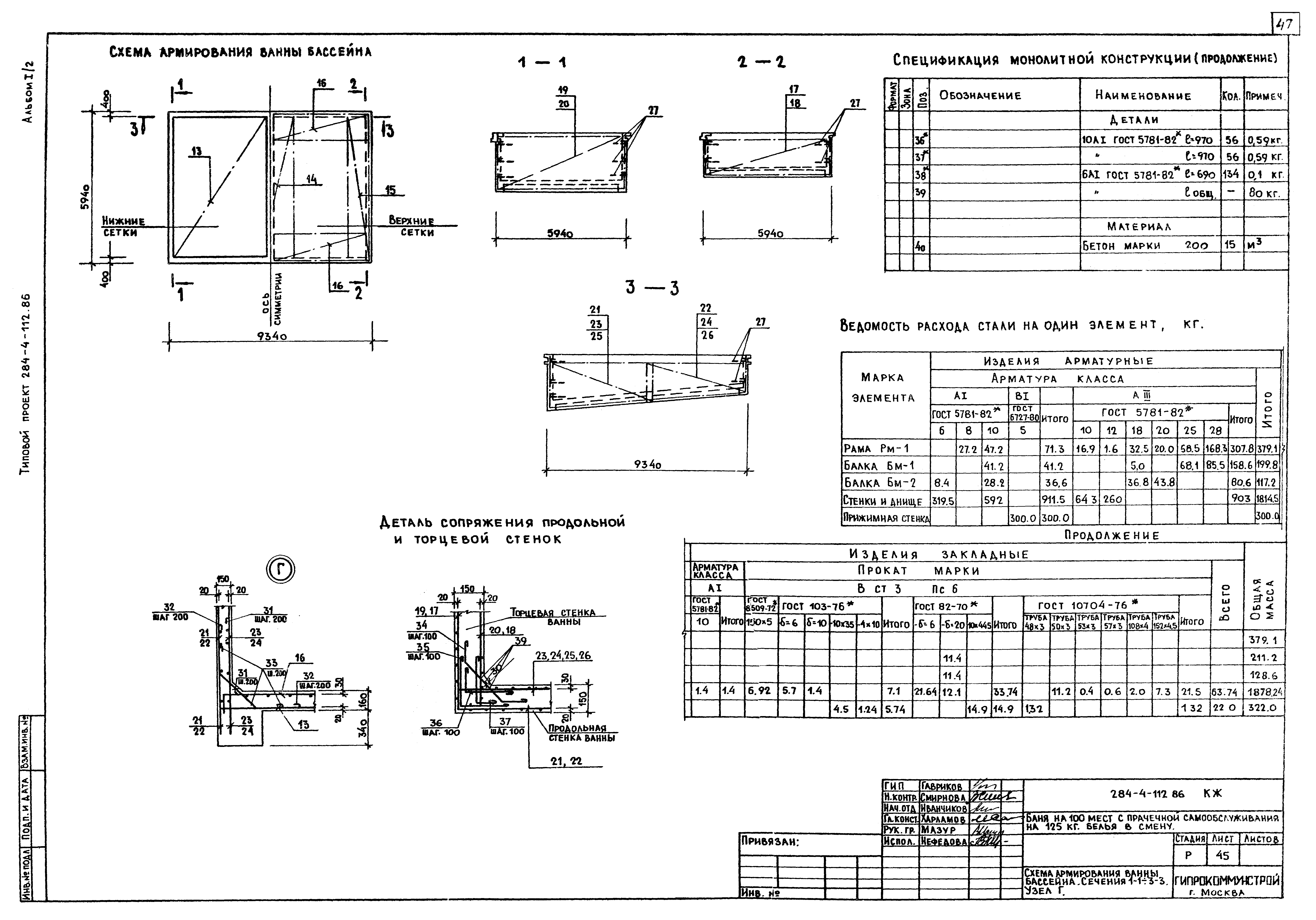
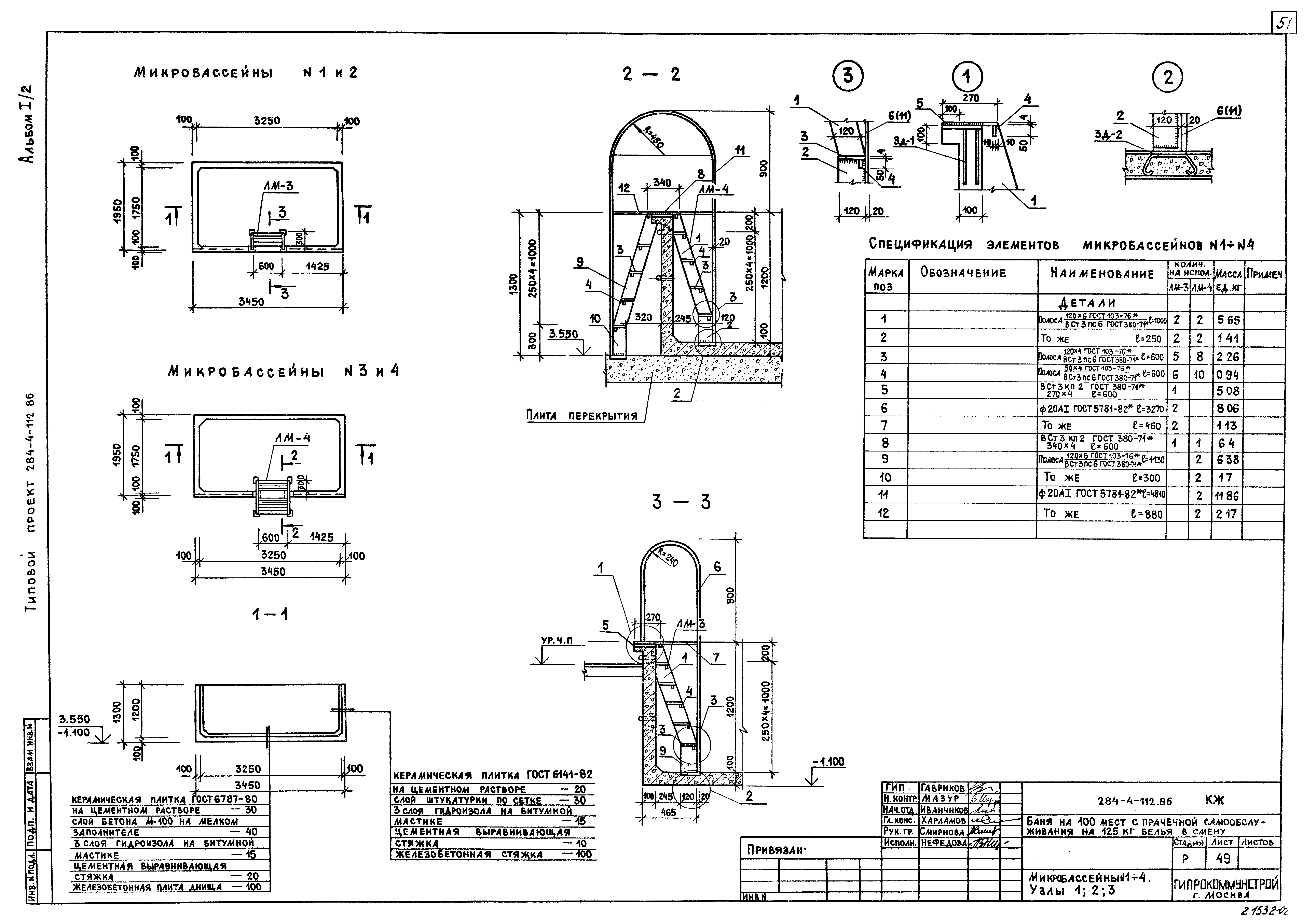
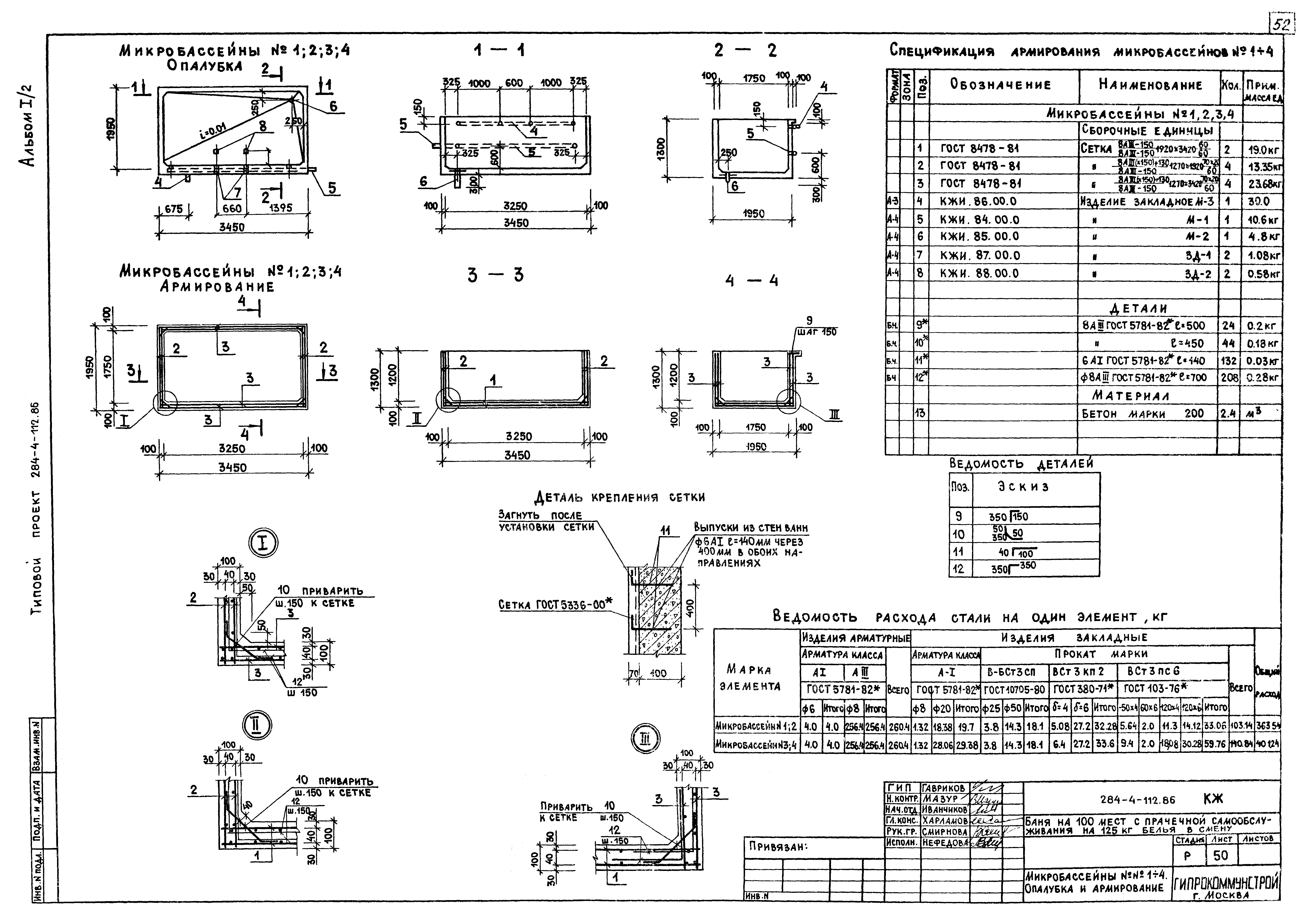
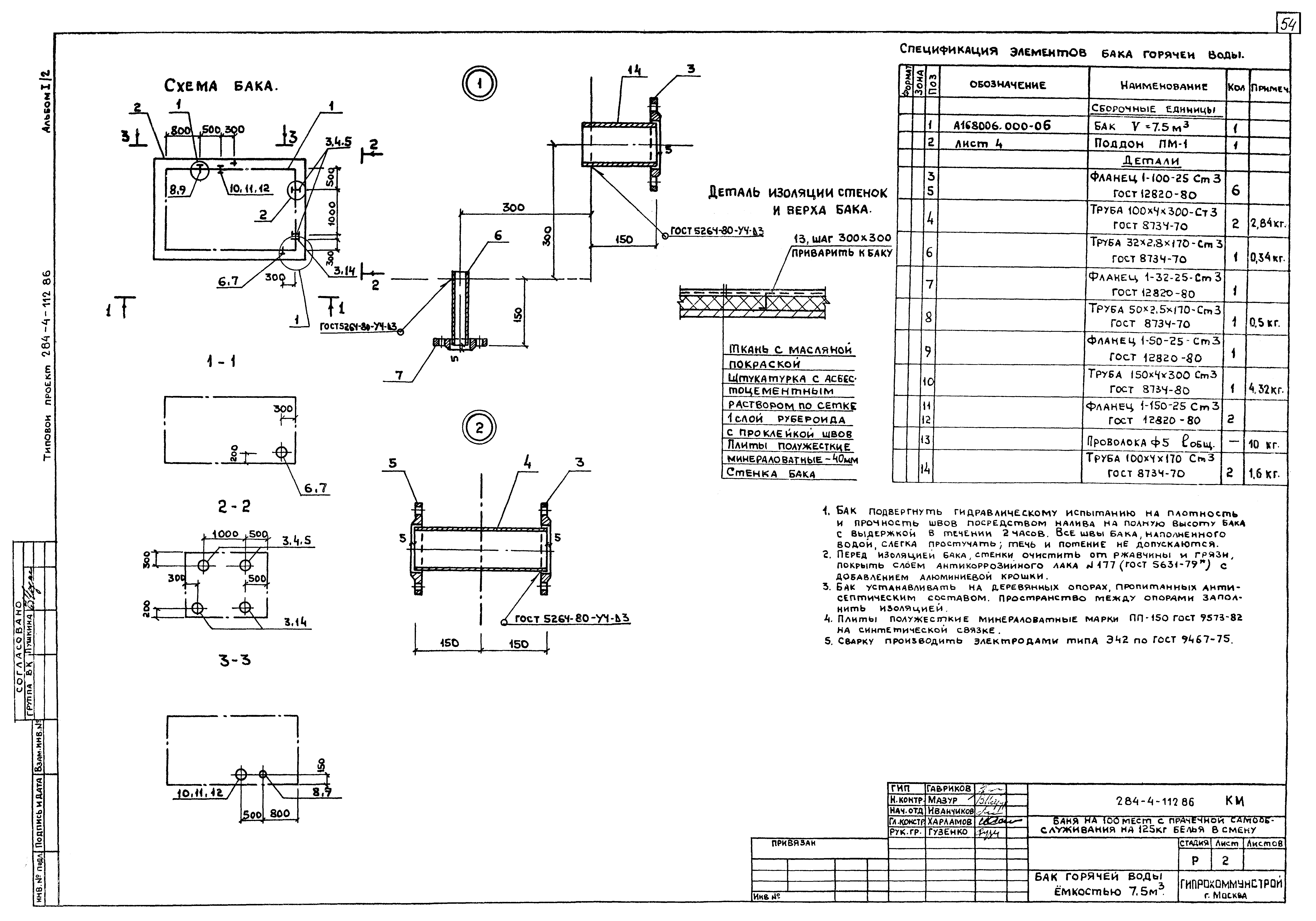
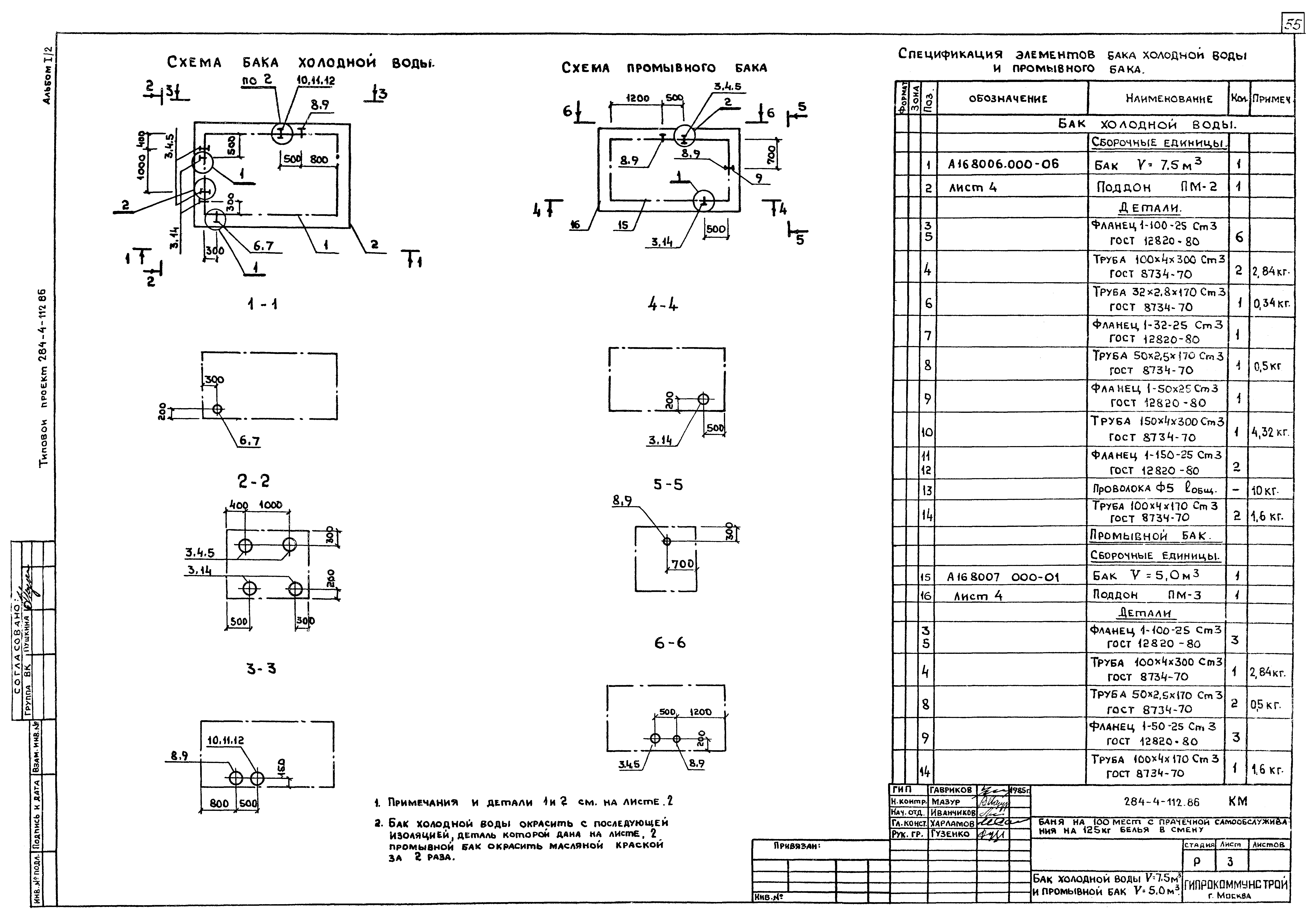
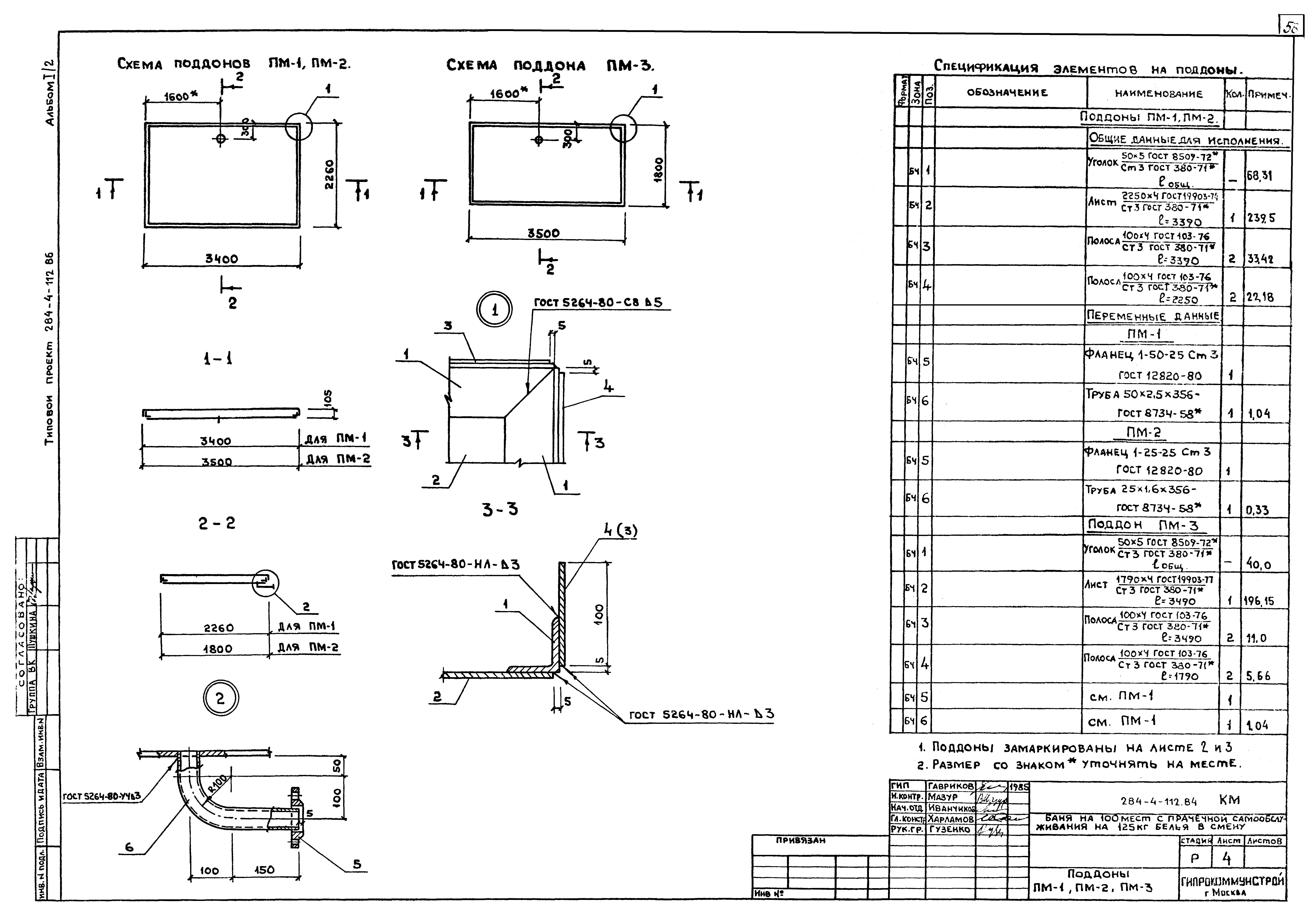
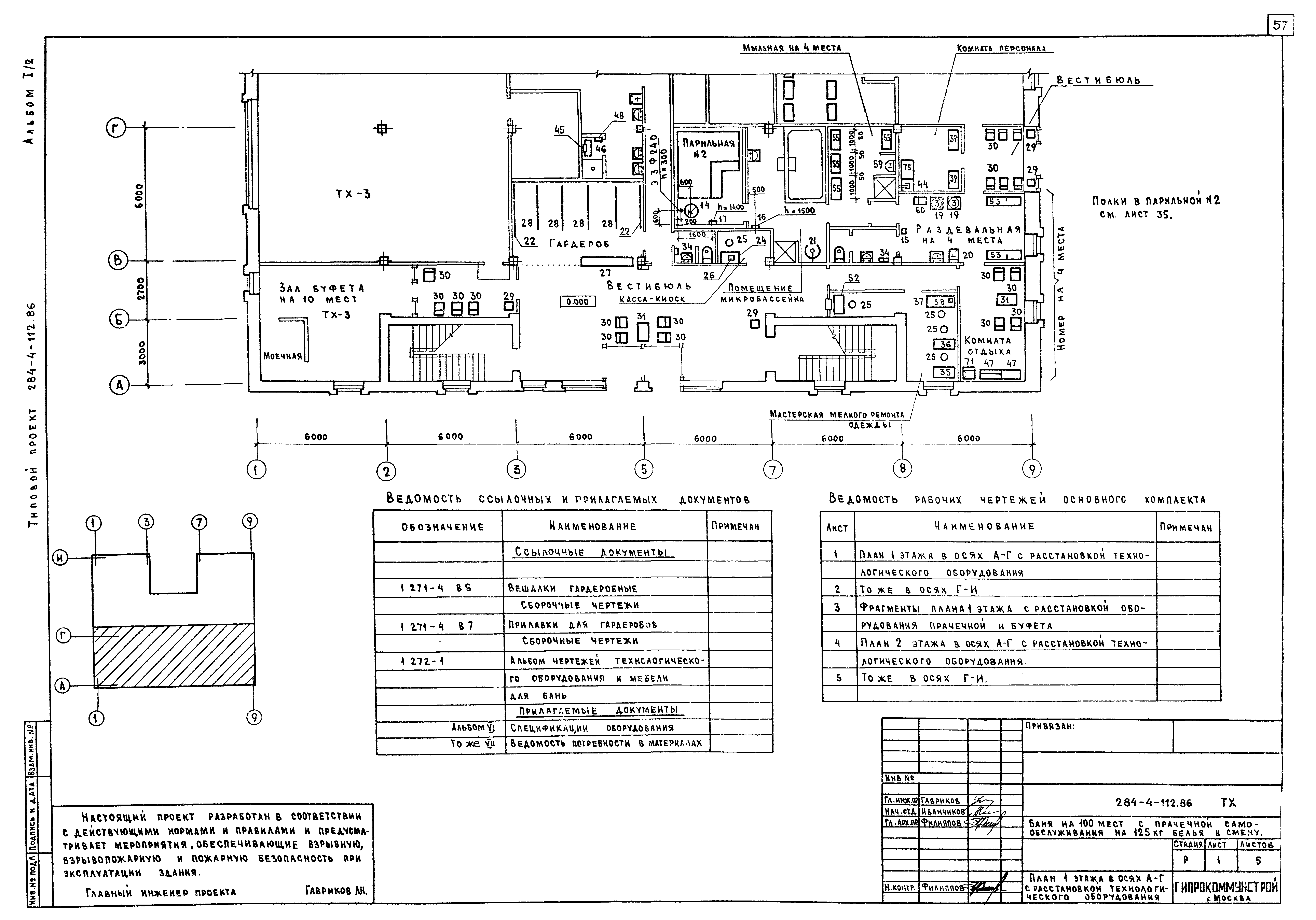
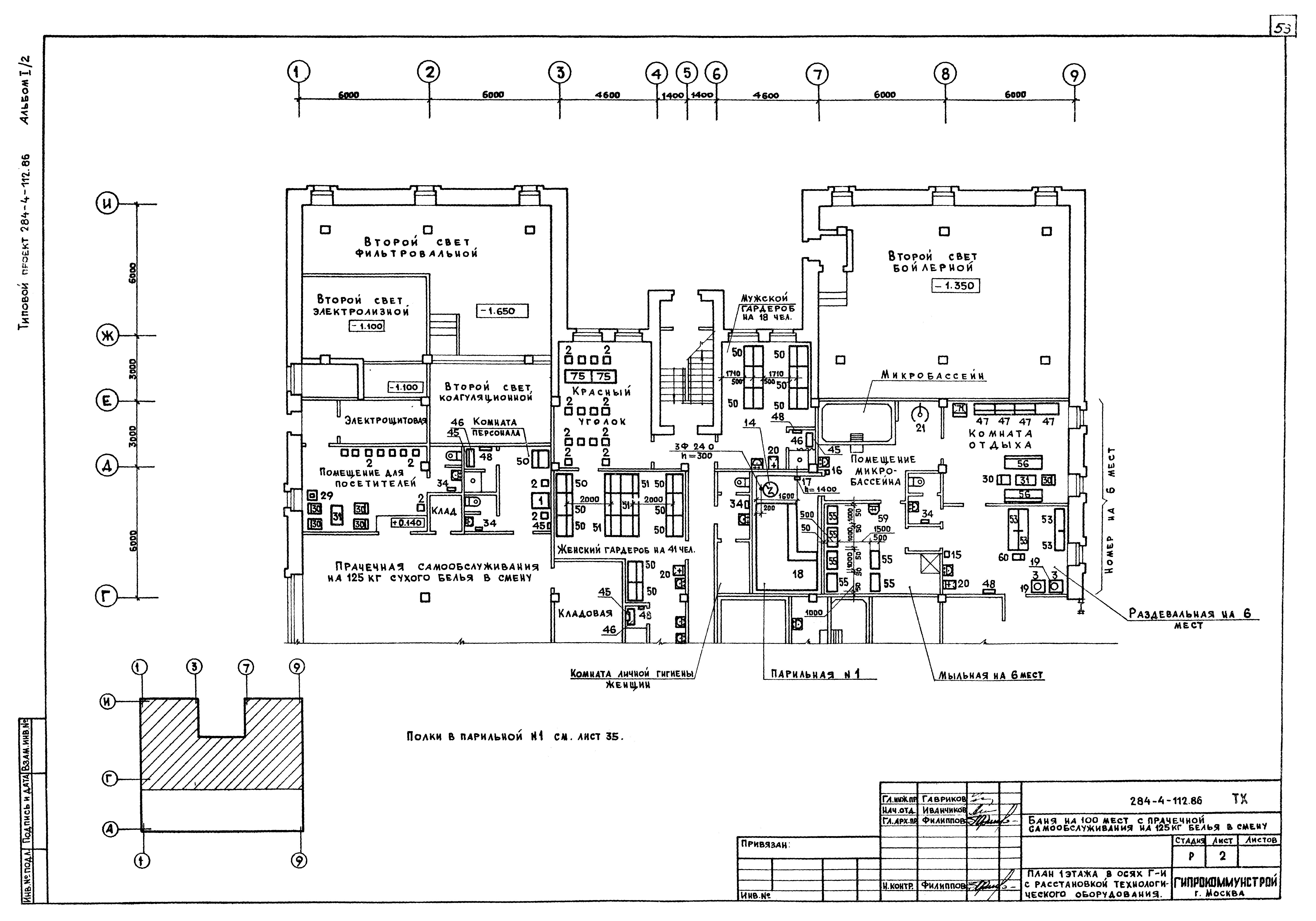
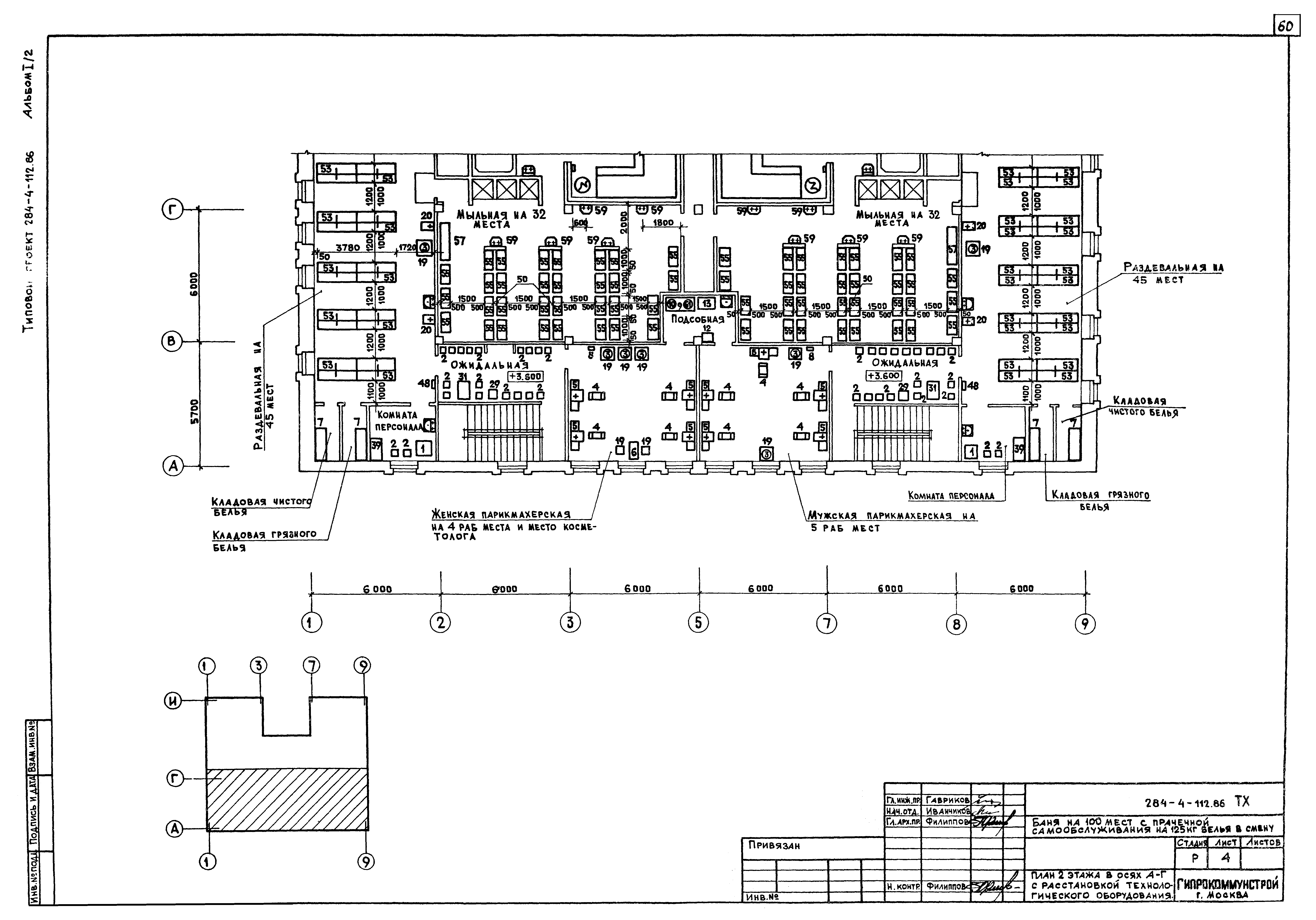
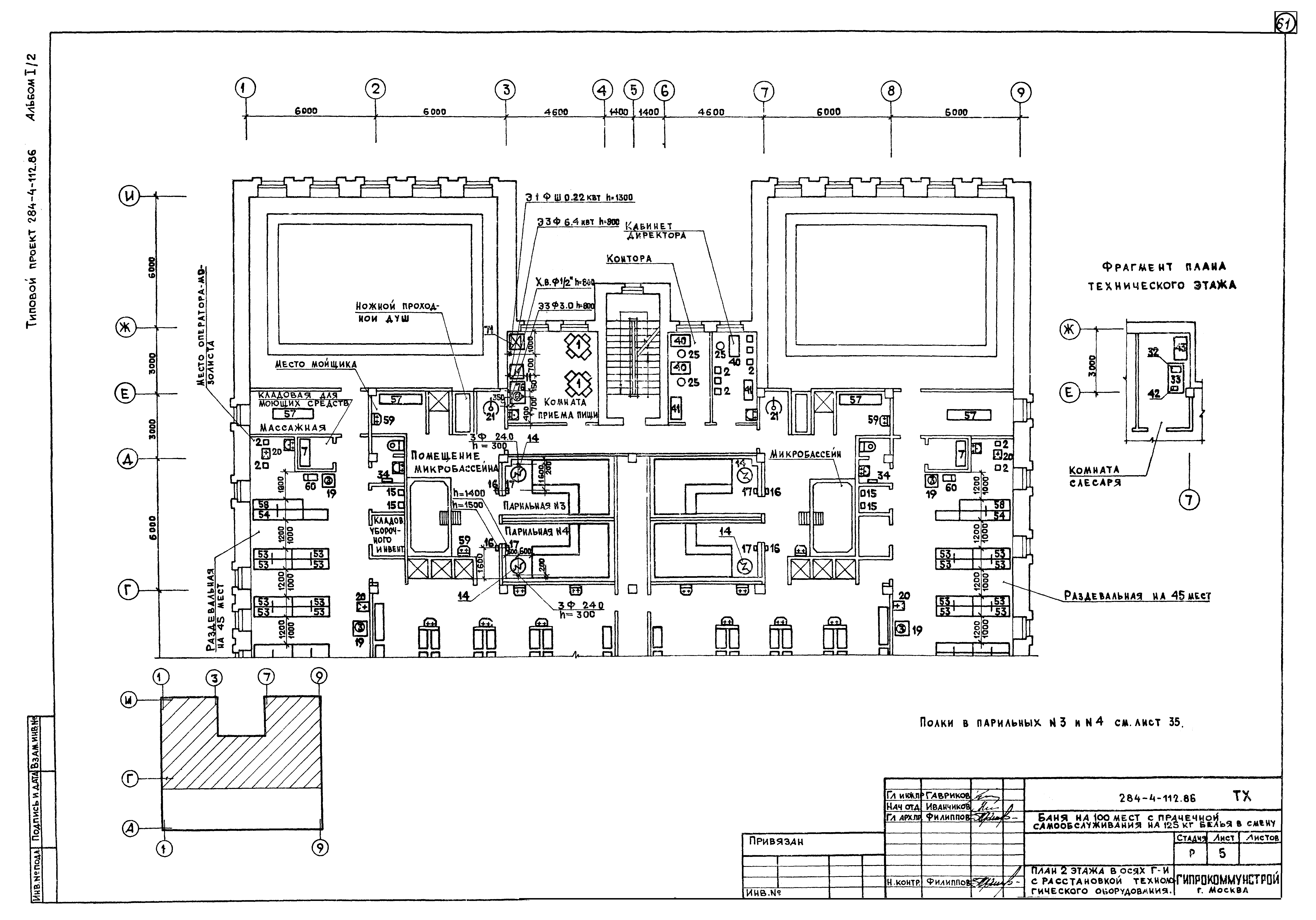
| Оглавление: | Обложка Титульный лист Содержание альбома Конструкции железобетонные Общие данные Схема расположения элементов фундаментов в осях А - Г Схема расположения элементов фундаментов в осях Г - И Сечения 1-1 - 7-7 Сечения 8-8 - 13-13 Сечения 14-14 - 17-17. Фм-3, Фм-4 Монолитный фундаменты Фм-1, Фм-2 Схемы расположения крылец и входов в подполье Схема расположения фундаментов под оборудование и приямка на отм. - 1.650 и - 1.100. Фундаменты Фом-1 - Фом5 Схема расположения фундаментов под оборудование на отм. 0.140. Фундаменты Фом-7; Фом-8 Схема расположения элементов опор под балки. Рама ФМ-1. Фундаменты Фом-6; Фом-9. Сечения 1-1 - 5-5 Схема расположения элементов воздухозаборных каналов Схема расположения элементов площадки на отм. 0.100 Схема расположения элементов каркаса. Узлы 1; 2; 3 Разрезы 1-1 - 6-6 Схема расположения элементов перекрытия на отм. 0.000 в осях А - Г. Узы 1 - 4 Схема расположения элементов перекрытия на отм. 0.000 в осях Г - И Схема расположения элементов перекрытия на отм. 3.600 в осях А -Г Схема расположения элементов перекрытия на отм. 3.600 в осях Г - И Схема расположения элементов перекрытия на отм. 7.200 в осях А -Г Схема расположения элементов перекрытия на отм. 7.200 в осях Г- И Схема расположения элементов покрытия вентилируемой кровли в осях А -Г Схема расположения элементов покрытия вентилируемой кровли в осях Г - И Схема расположения элементов покрытия этажа Спецификация к схемам расположения элементов перекрытия и покрытия Участки монолитные Ум-1 - Ум-3 Участки монолитные Ум-4 - Ум-6; Ум-12 Участки монолитные Ум-7 - Ум-9 Участки монолитные Ум-10; Ум-11; Ум-14 Участки монолитные Ум-13; Ум-15 - Ум-17 Участки монолитные Ум-18 - Ум-20 Монолитное покрытие МП-1 на отм. 0.000 и МП-2 на отм. 3.600 (вариант), опалубка Схема армирования монолитного перекрытия МП-1. Сечения 1-1, 2-2 Схема армирования монолитного перекрытия МП-2. Сечения 3-3 - 7-7 Сечения 8-8 - 13-13. Узел 1 Монолитное перекрытие МП-3 на отм. 7.200 Схема армирования монолитного перекрытия МП-3. Сечения 1-1 - 6-6 Схема расположения прогонов на отм. 8.360 между осями 2 - 8, В - Е Схемы расположения элементов перекрытия на отм. 8.000 и перемычки под баки Схема расположения элементов бассейна. Разрезы 1-1; 2-2 Разрезы 1-1; 2-2 (армирование). Узлы А, Б, В. Лестницы ЛМ-1 и ЛМ-2 Схема армирования ванны бассейна. Сечения 1-1 - 3-3. Узел Г Рама РМ-1 (армирование). Сечения Баки БМ-1 и БМ-2 (армирование). Сечения Схема расположения элементов обходной дорожки. Участки монолитные Ум-1, Ум-2 Микробассейны №1 - 4. Узлы 1, 2, 3 Микробассейны №1 - 4. Опалубка и армирование Конструкции металлические Общие данные Бак горячей воды V = 7,5 куб. м Бак горячей воды V = 7,5 куб. м и промывной бак V = 5,0 куб. м Поддоны ПМ-1; ПМ-2; ПМ-3. Технологические чертежи План 1 этажа в осях А - Г с расстановкой технологического оборудования План 1 этажа в осях Г - И с расстановкой технологического оборудования Фрагменты плана 1 этажа с расстановкой оборудования прачечной и буфета План 2 этажа в осях А - Г с расстановкой технологического оборудования План 2 этажа в осях Г - И с расстановкой технологического оборудования |
| Разработан: | Гипрокоммунстрой |
| Утверждён: | 27.12.1985 МЖКХ РСФСР (7-ТД) |






























































