Скачать Типовой проект 284-5-34 Часть 01. Раздел 01. Архитектурно-строительные чертежи ниже отм. 0.00Дата актуализации: 01.01.2021
|
| Обозначение: | Типовой проект 284-5-34 |
| Обозначение англ: | 284-5-34 |
| Статус: | не действует |
| Название рус.: | Часть 01. Раздел 01. Архитектурно-строительные чертежи ниже отм. 0.00 |
| Дата добавления в базу: | 01.09.2013 |
| Дата актуализации: | 01.01.2021 |
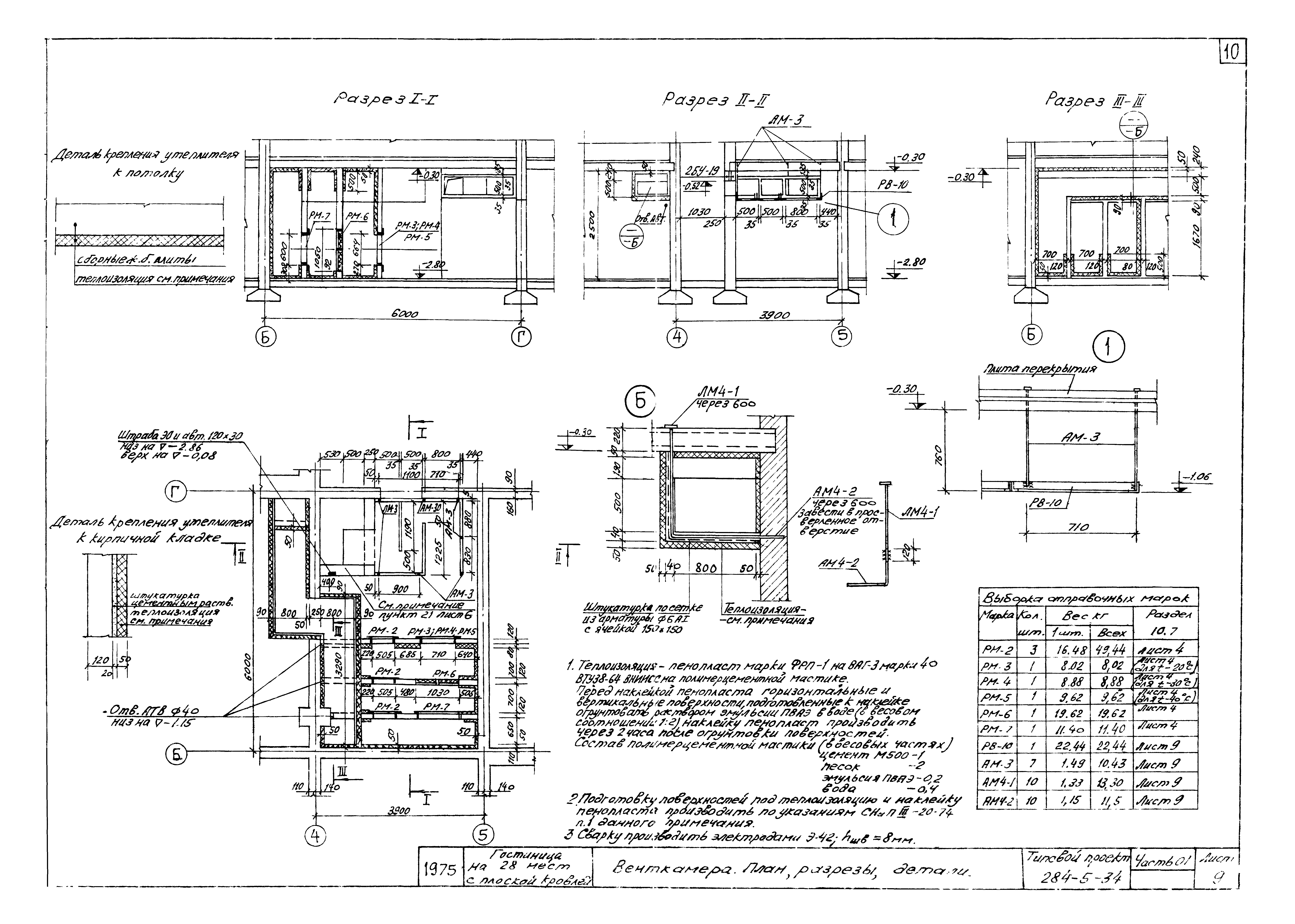
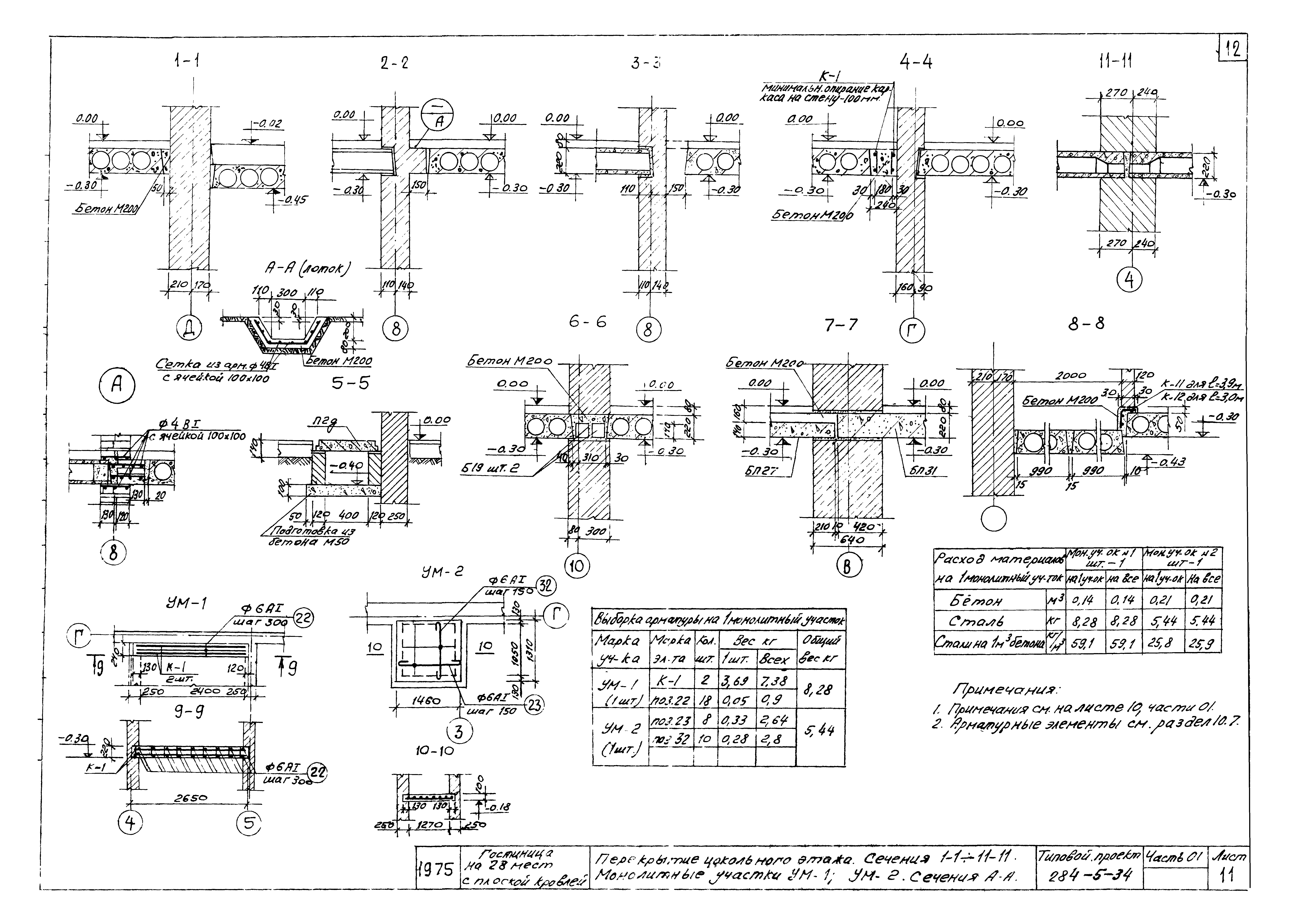
| Оглавление: | Заглавный лист Технические указания к проекту План фундаментов Сечения фундаментов 1-1 - 13-13 Кладочный план цокольного этажа. Примечания План цокольного этажа Разрезы 1-1; 2-2; 3-3. Лестница ЛВ-1. План Венткамера. План. Разрезы. Детали План перекрытия цокольного этажа Перекрытие цокольного этажа. Сечения 1-1 - 11-11. Монолитные участки УМ-1, УМ-2. Сечение А-А ЛН-1. Монтажный план. Сечения. Монолитные участки УМ13, УМ14 ЛН-2. ЛН-3. Монтажные планы. Сечения Таблица типов проемов. Спецификация столярных изделий ниже отм. 0.000 Спецификация сборных железобетонных изделий ниже отм. 0.000 Спецификация металлических изделий ниже отм. 0.000. Спецификация сборных железобетонных перемычек для наружных стен ниже отм. 0.000 (Варианты) |
| Разработан: | ЦНИИЭП жилища |
| Утверждён: | 01.01.1975 Госкомитет по гражданскому строительству и архитектуре при Госстрое СССР (National Committee on Nonindustrial Construction and Architecture, USSR Gosstroy ) |
















