Скачать Типовой проект 294-3-28 Альбом 0. Материалы для привязки и чертежи нулевого циклаДата актуализации: 01.01.2021
|
| Обозначение: | Типовой проект 294-3-28 |
| Обозначение англ: | 294-3-28 |
| Статус: | действует |
| Название рус.: | Альбом 0. Материалы для привязки и чертежи нулевого цикла |
| Дата добавления в базу: | 01.09.2013 |
| Дата актуализации: | 01.01.2021 |
| Дата введения: | 10.09.1979 |
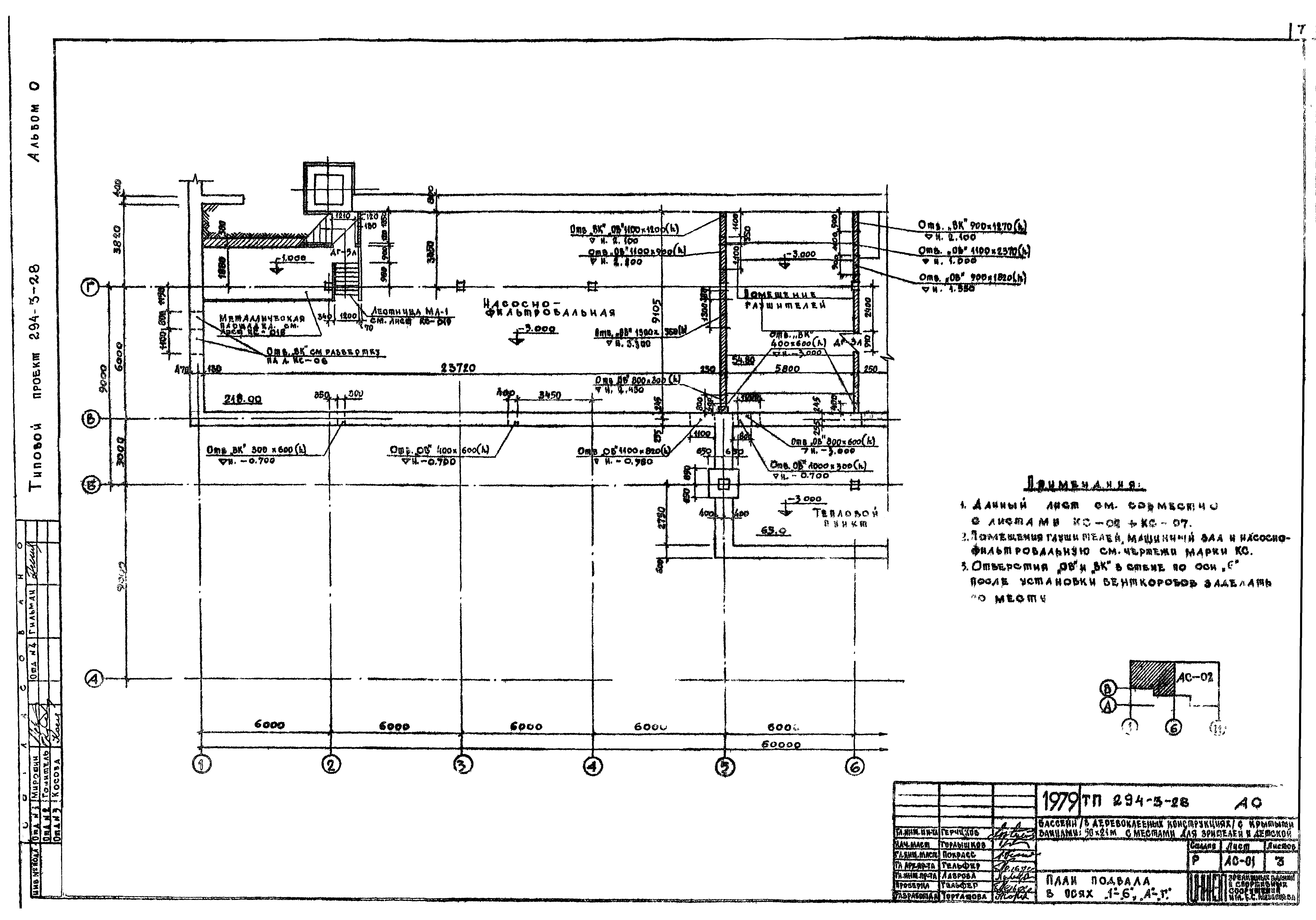
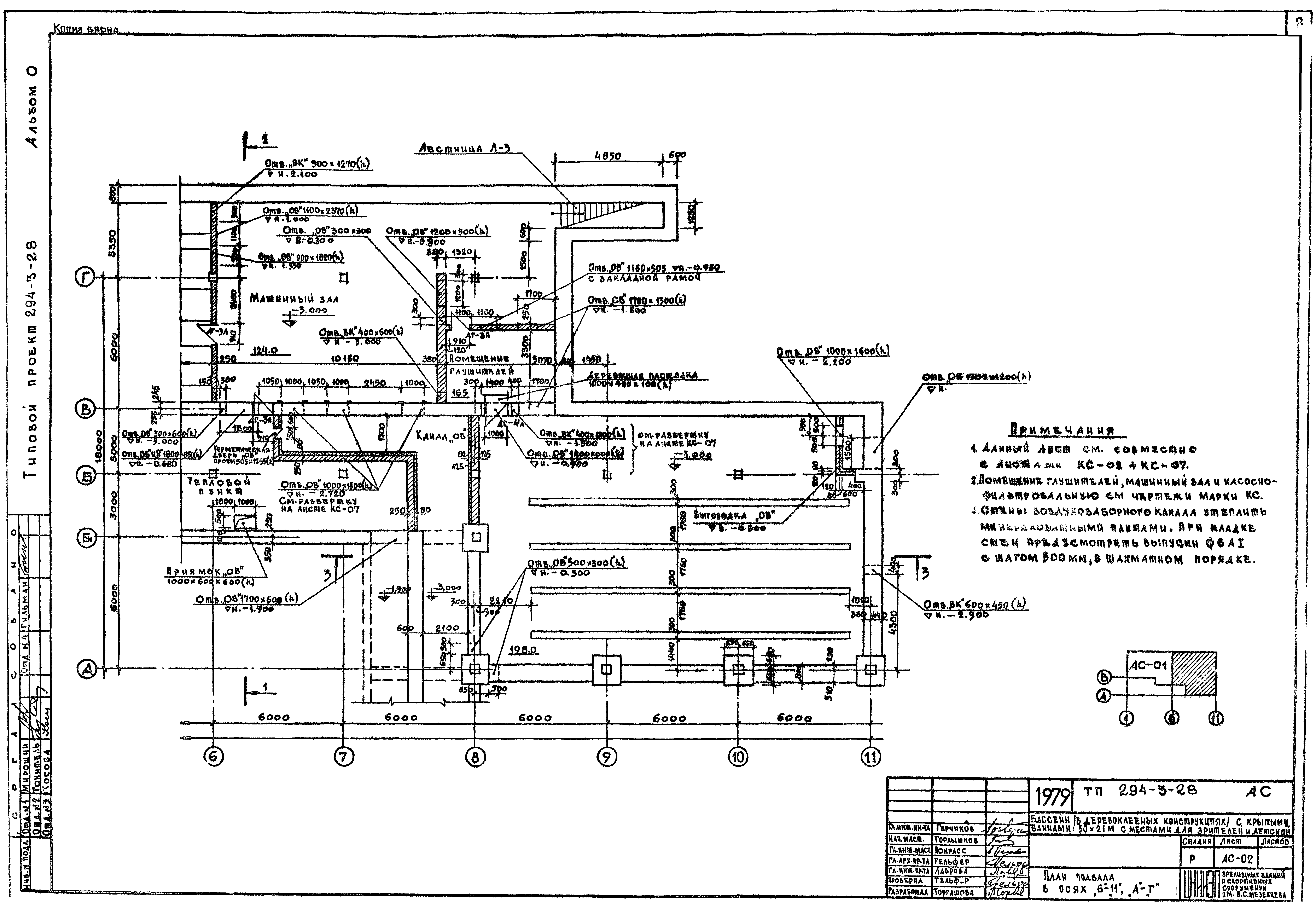
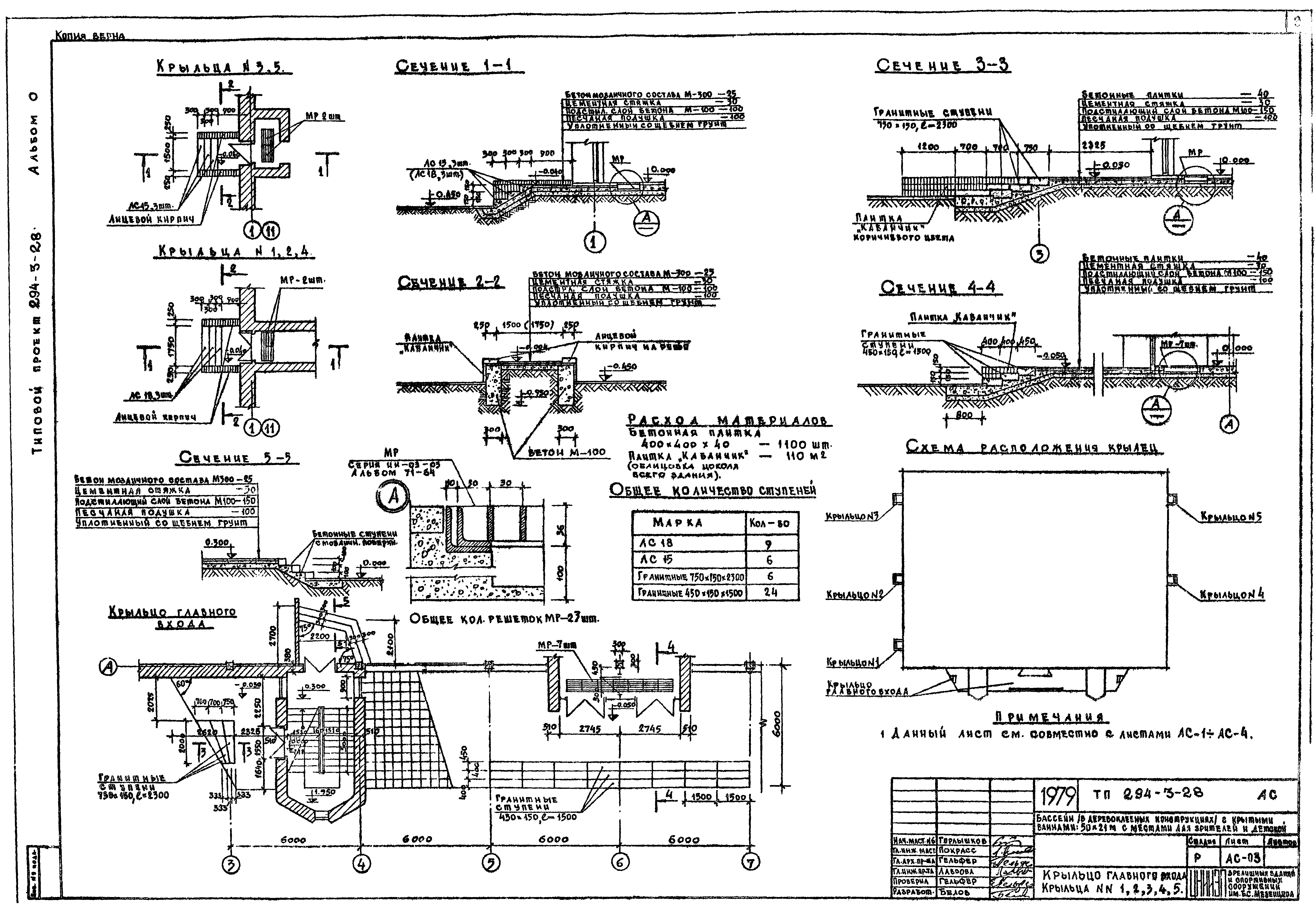
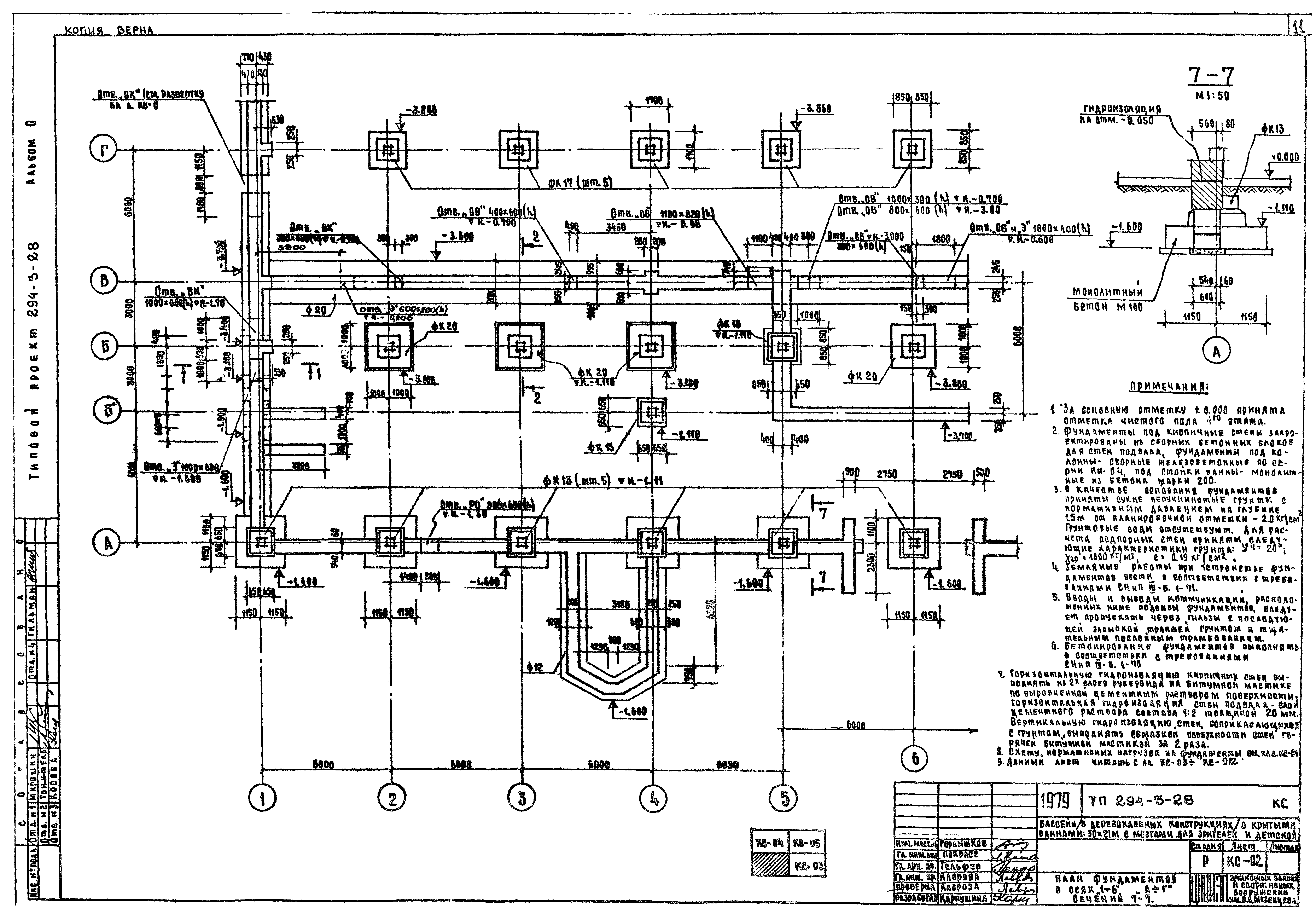
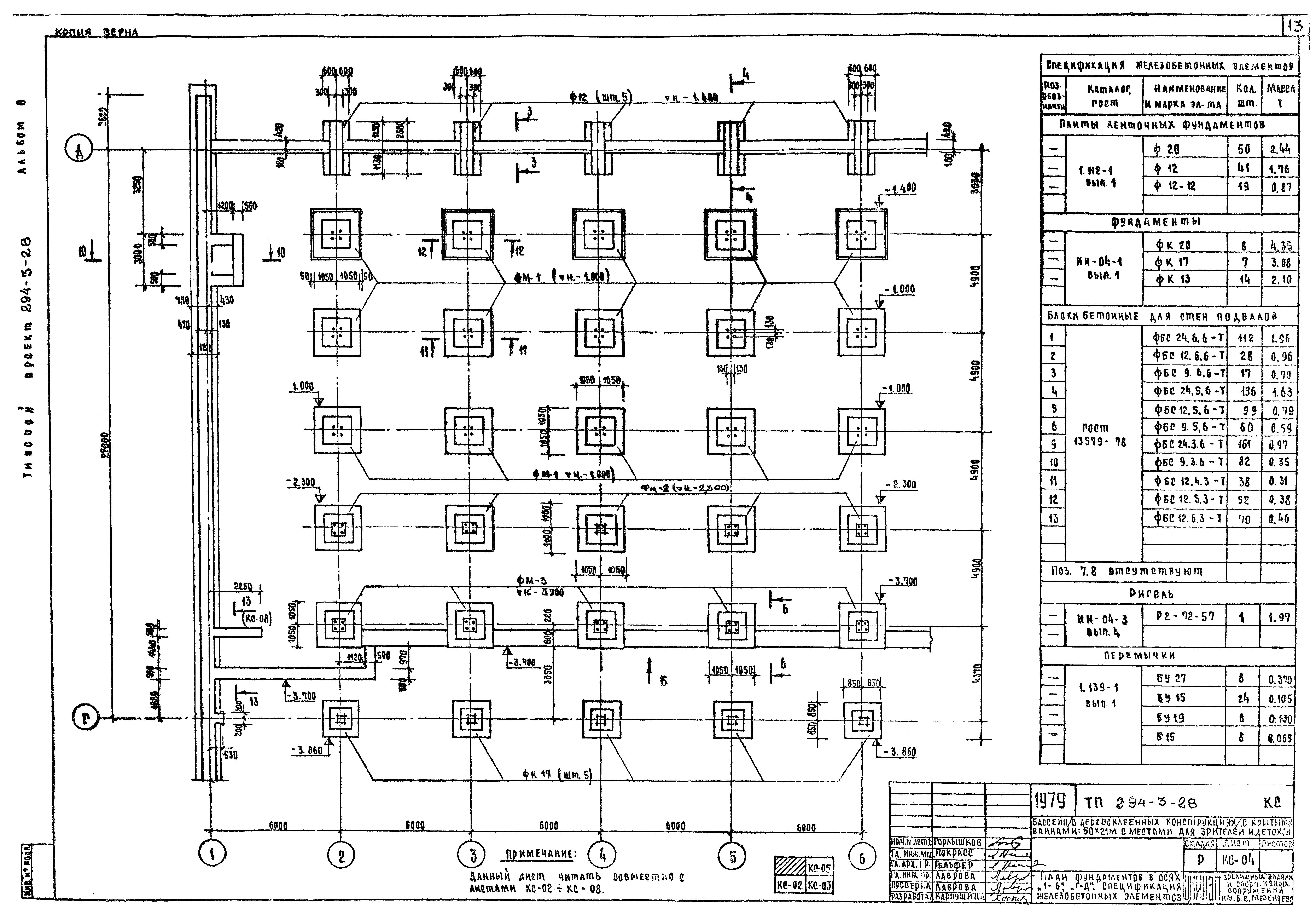
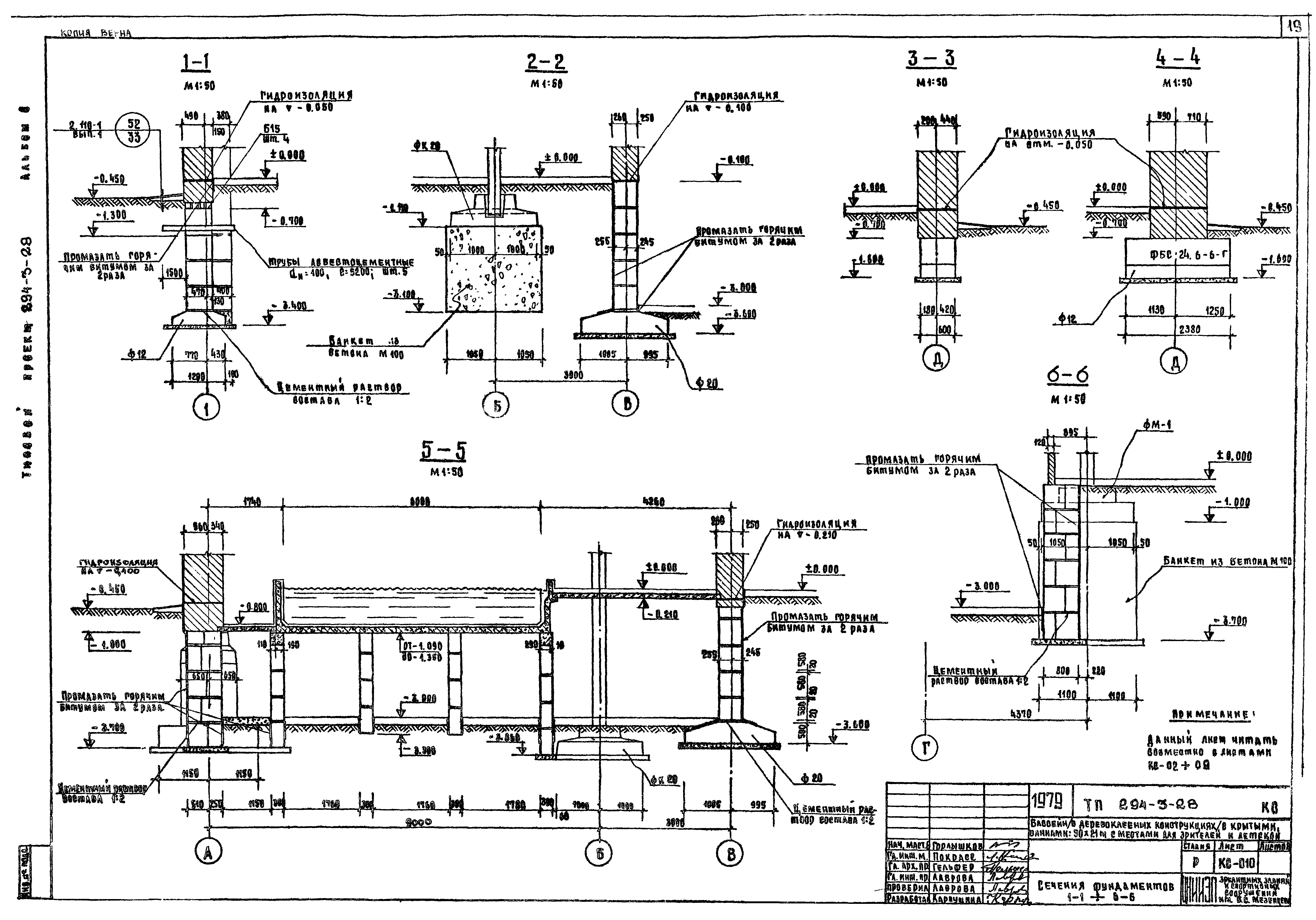
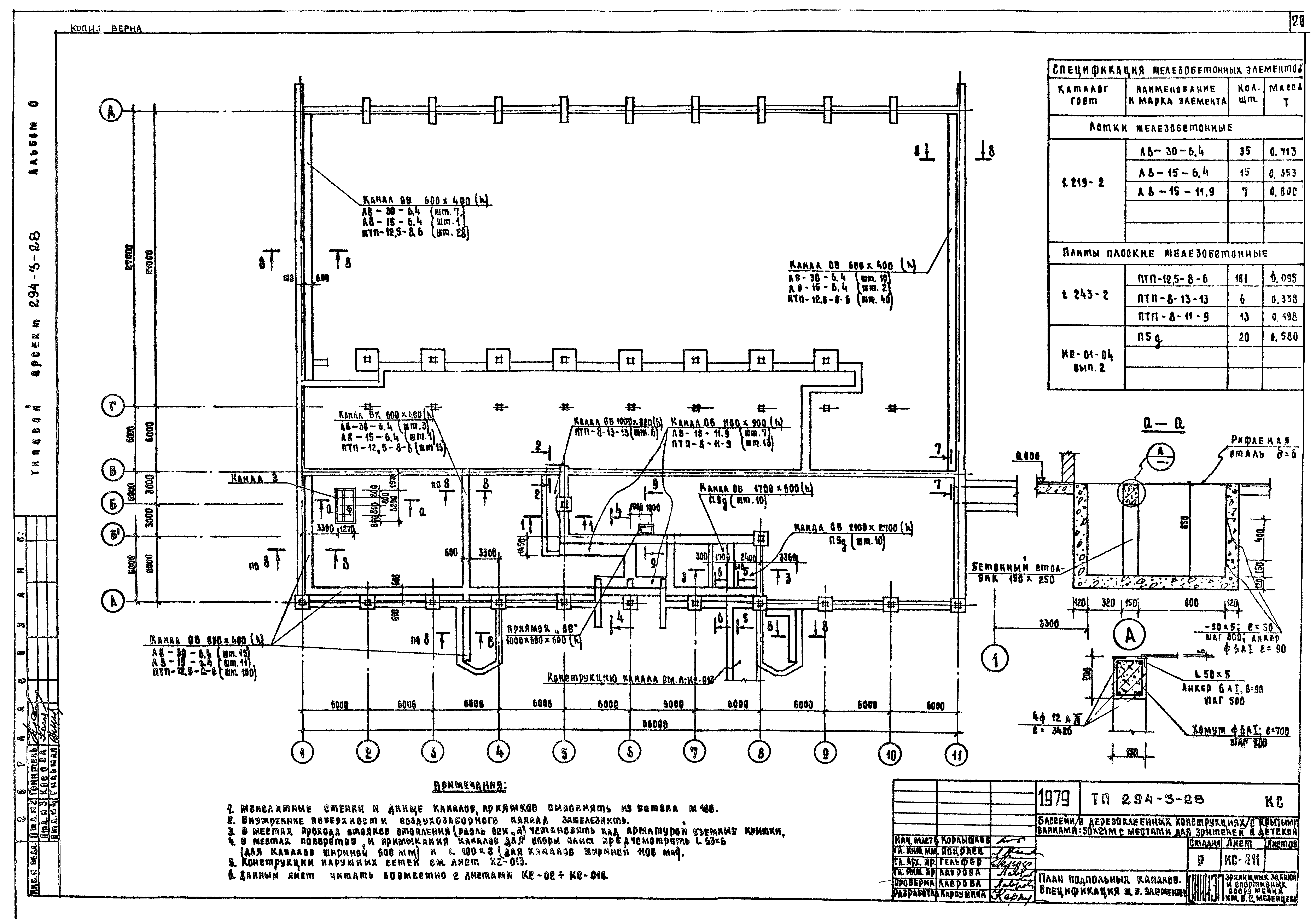
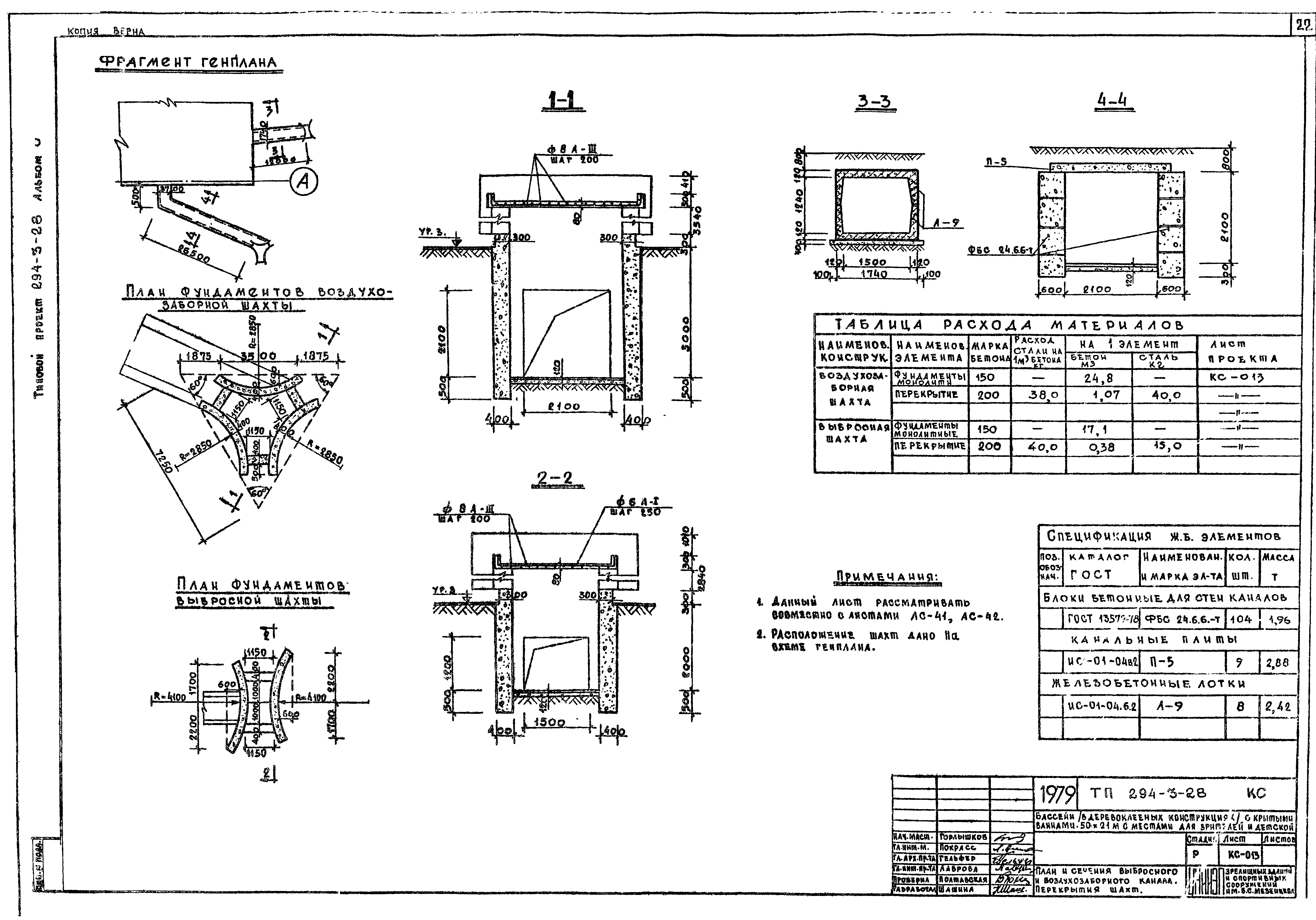
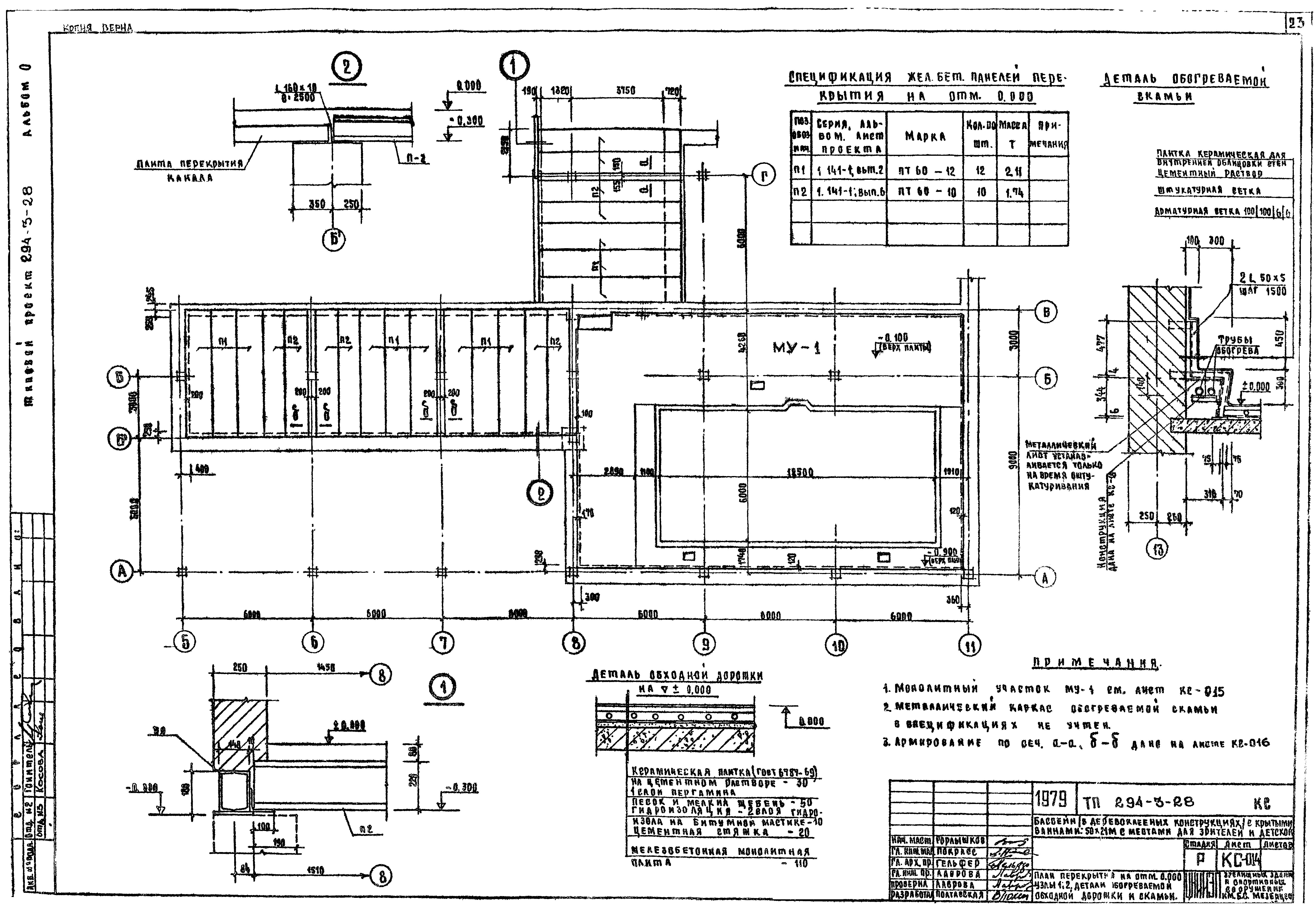
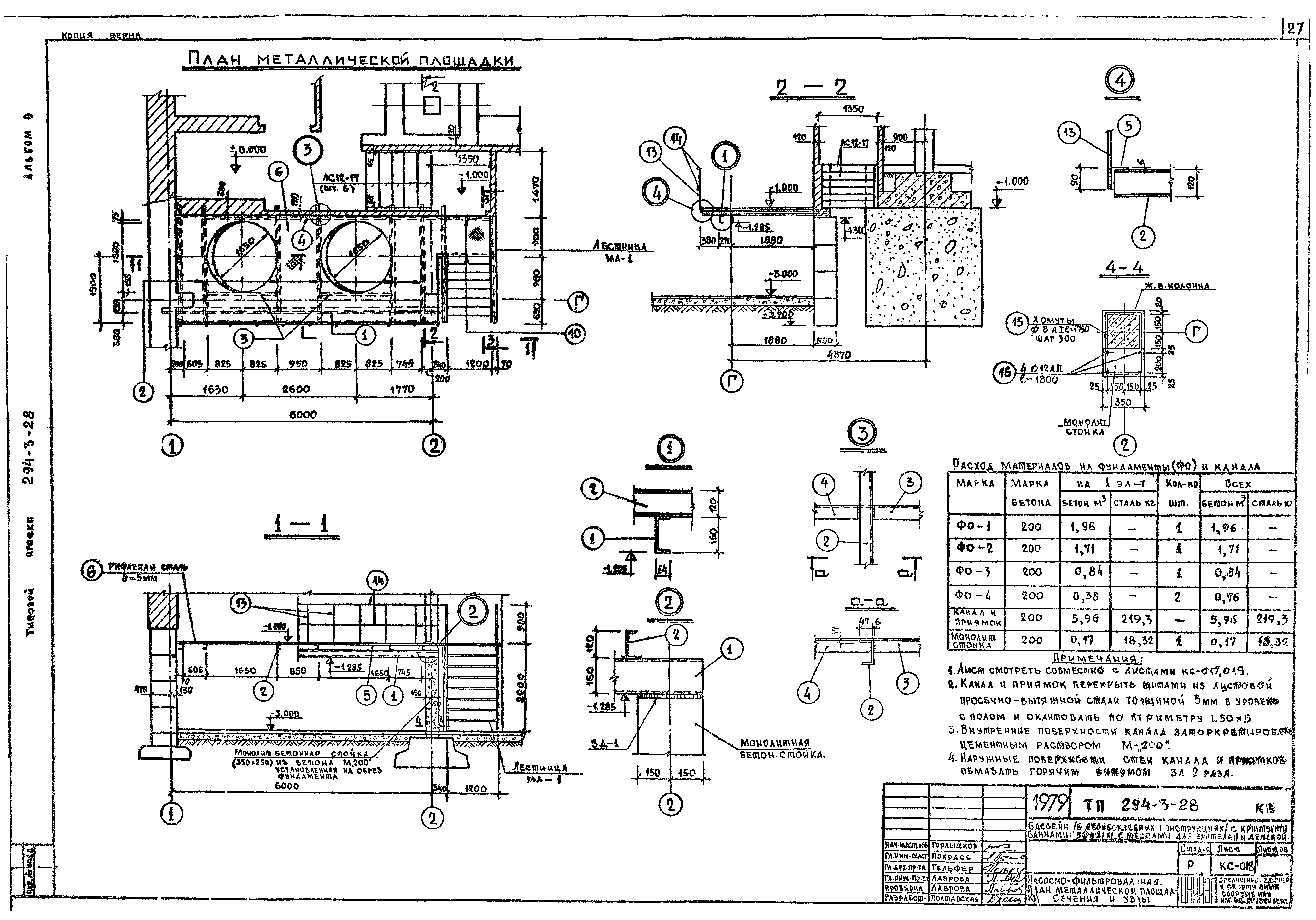
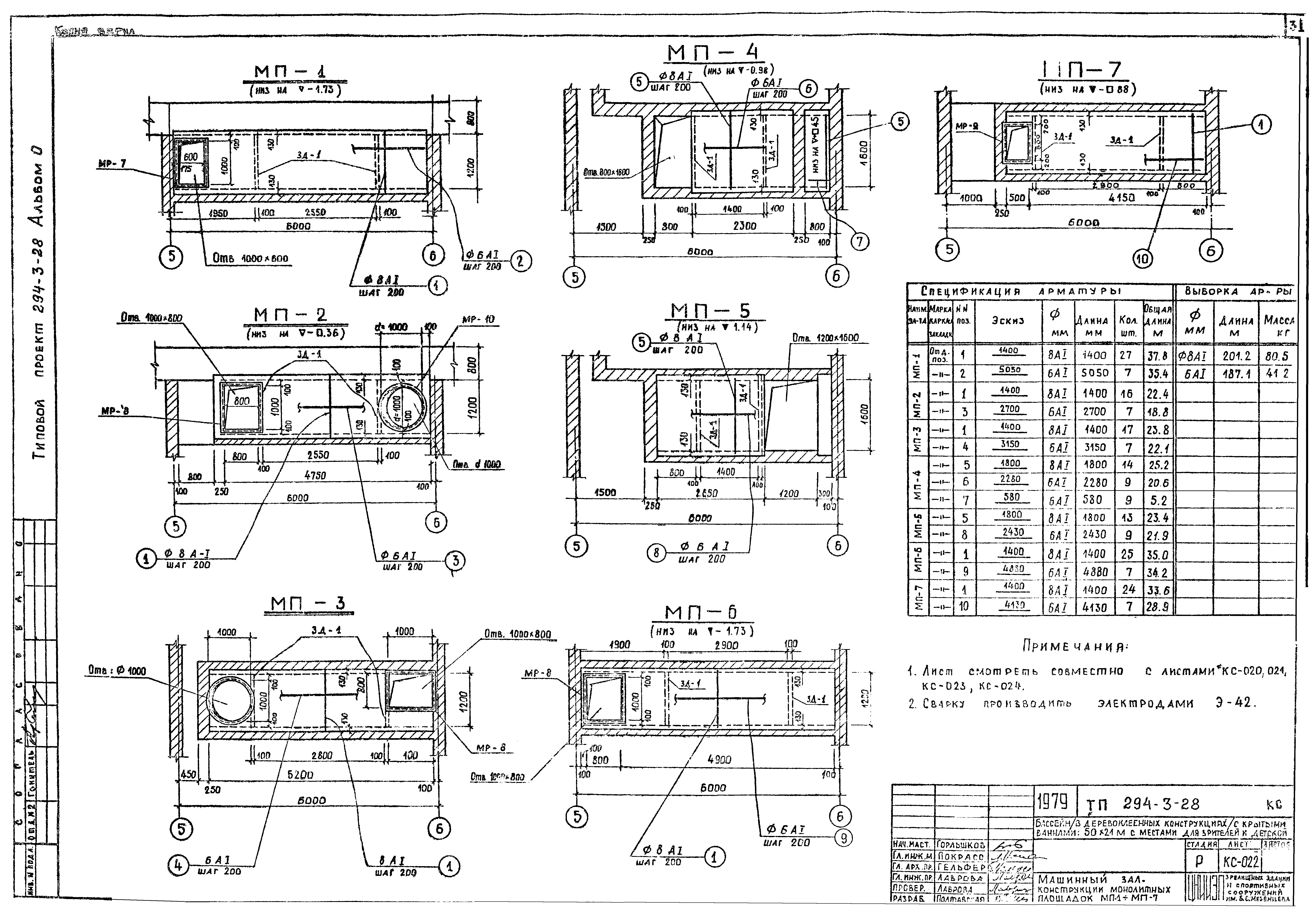
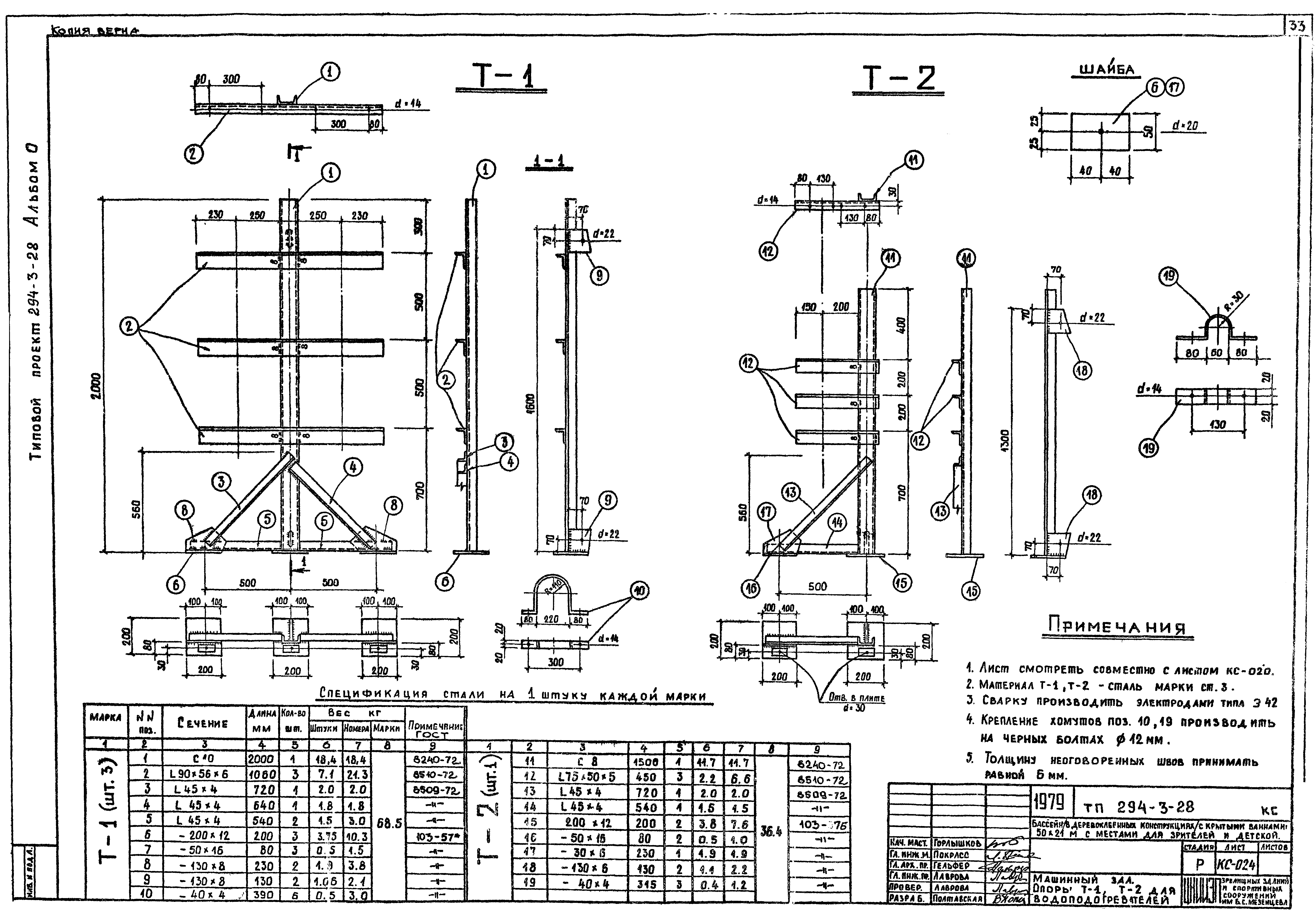
| Оглавление: | Заглавный лист Чертежи марки АС План подвала в осях "1" - "6"; "А" - "Г" План подвала в осях "6" - "11"; "А" - "Г" Крыльцо главного входа, крыльца №1, 2, 3, 4, 5 Чертежи марки КС План фундаментов с нагрузками План фундаментов в осях "1 - 6"; "А - Г". Сечение 7-7 План фундаментов в осях "6 - 11"; "А - Г". Сечения 8-8, 9-9 План фундаментов в осях "1 - 6"; "Г - Д". Спецификация железобетонных элементов План фундаментов в осях "6 - 11"; "Г - Д". Сечения 10-10, 11- 11, 12-12 Развертки фундаментов в осях "А"/1 - 11 и по оси "1" Развертки фундаментов по осям "5", "В" на стрелке "А" и в осях В/1 - 11. Сечения Развертка по осям "11", "8". Сечение 13-13. Рамки МР-11, МР-12 Развертки фундаментов по осям "Д", "Б". Армирование Фм-1. Спецификация Сечения фундаментов 1-1 - 6-6 План подпольных каналов. Спецификация ж/б элементов Сечения подпольных каналов 1-1 - 9-9 План и сечения выбросного и воздухозаборного канала. Перекрытие шахт План перекрытия на отм. 0.000. Узлы 1, 2. Детали обогреваемой обходной дорожки и скамьи Перекрытие на отм. 0.000. Монолитный участок МУ-1. Сечение 1-1 - 4-4 Перекрытие на отм. 0.000. Монолитный участок МУ-1. Сечение 5-5, 6-6. Армирование по сечению а-а, б-б. Спецификация Насосно-фильтровальная. План. Фундаменты под оборудование ФО-1 - ФО-4 Насосно-фильтровальная. План металлической площадки. Сечения. Узлы Насосно-фильтровальная. Металлическая лестница МЛ-1. Сечения, узлы Машинный зал. План. Выборки металлических и ж/б изделий Машинный зал. Разрезы 1-1 - 4-4 Машинный зал. Конструкции монолитных площадок МП-1 - МП-7 Машинный зал. Металлические рамки МР-1 - МР-10; ЗД-1 Машинный зал. Опоры Т-1, Т-2 для водоподогревателей План перемычек подвала Сводная спецификация на ж/б изделие Сводные спецификации деревянных и металлических изделий Выборка металла |
| Разработан: | ЦНИИЭП зрелищных зданий и спортивных сооружений Госгражданстроя |
| Утверждён: | 17.01.1978 Госгражданстрой (Gosgrazhdanstroy 12) |






































