Скачать Типовой проект 294-3-28 Альбом I. Часть 1. Архитектурные и технологические чертежиДата актуализации: 01.01.2021
|
| Обозначение: | Типовой проект 294-3-28 |
| Обозначение англ: | 294-3-28 |
| Статус: | действует |
| Название рус.: | Альбом I. Часть 1. Архитектурные и технологические чертежи |
| Дата добавления в базу: | 01.09.2013 |
| Дата актуализации: | 01.01.2021 |
| Дата введения: | 10.09.1979 |
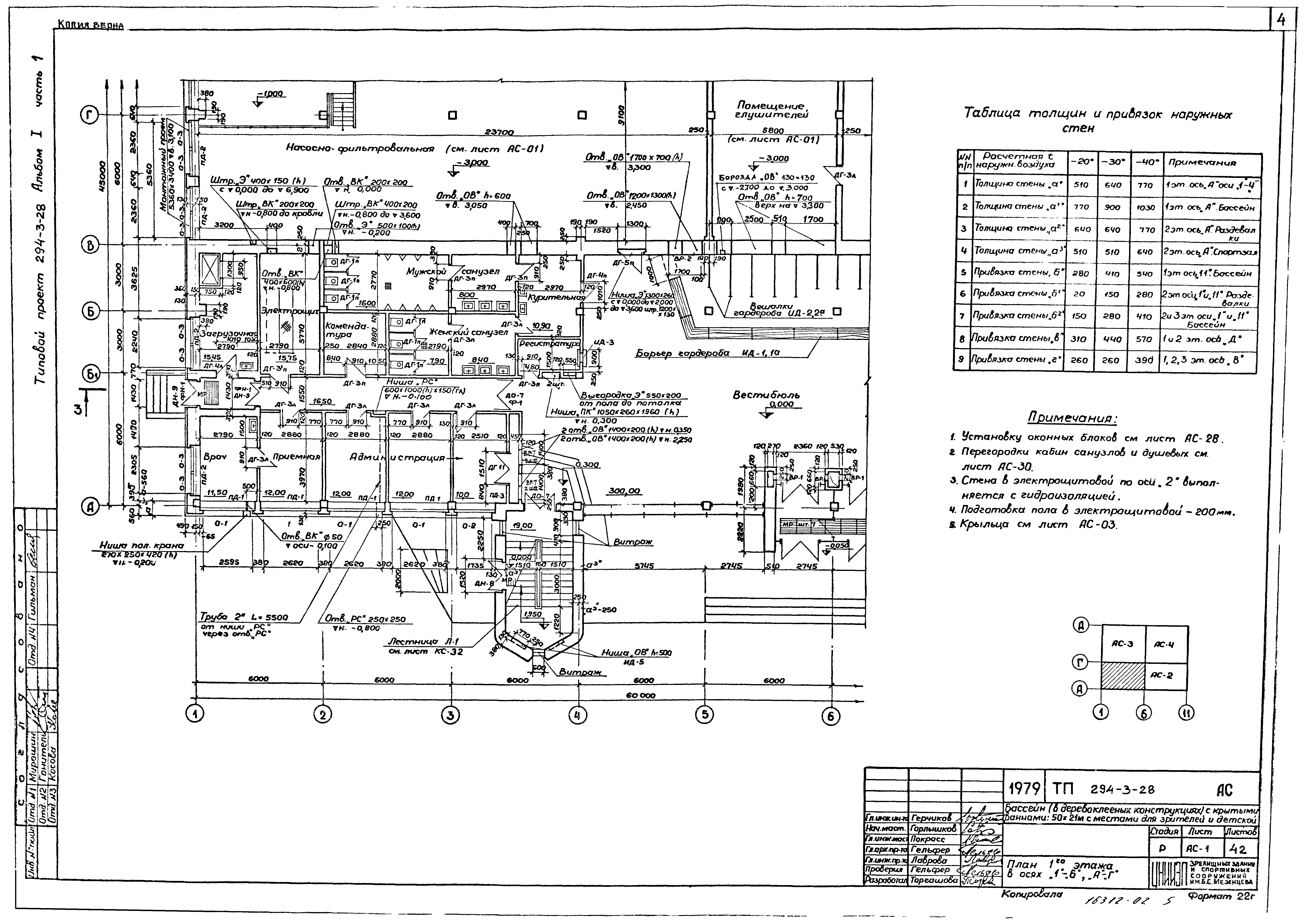
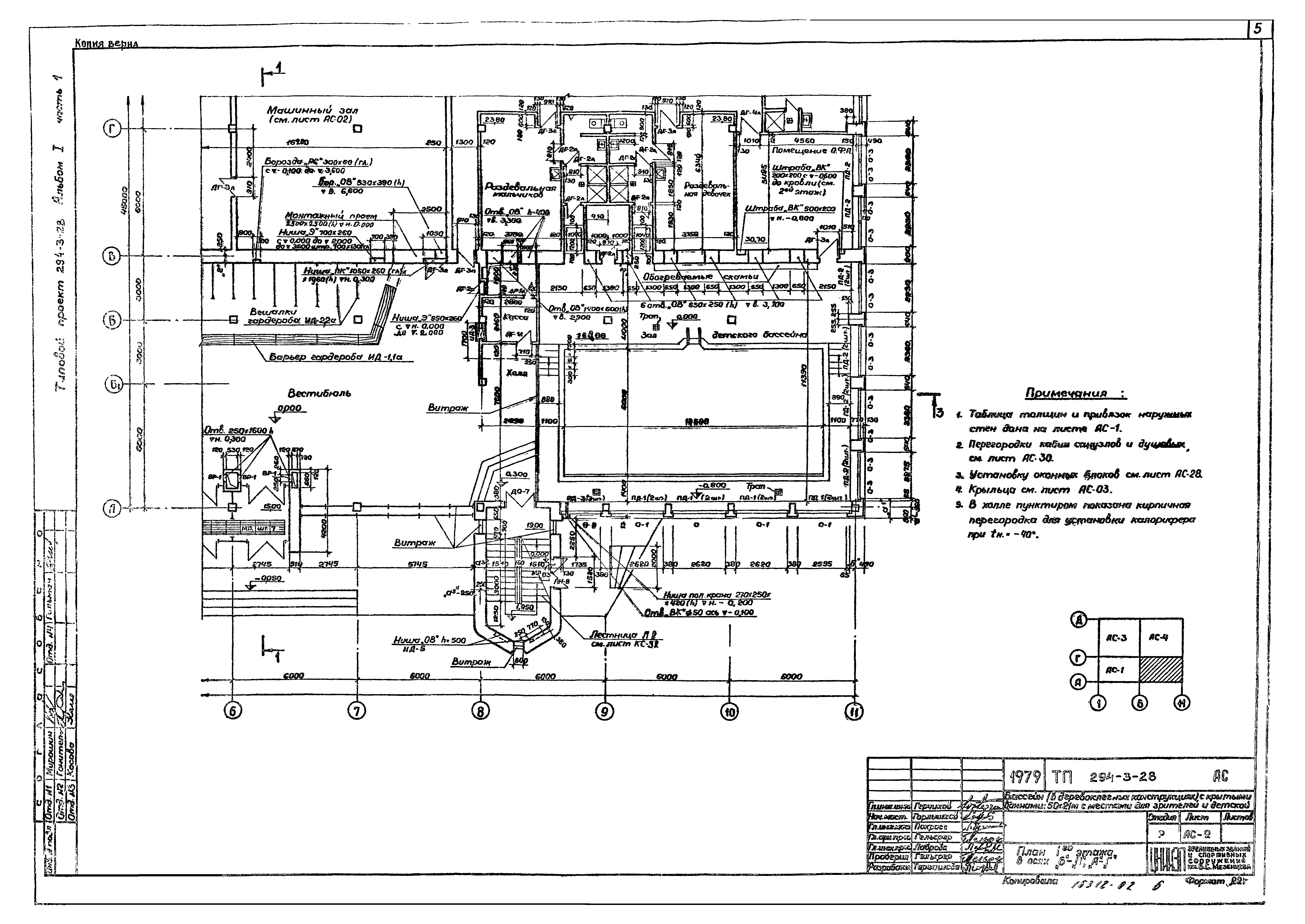
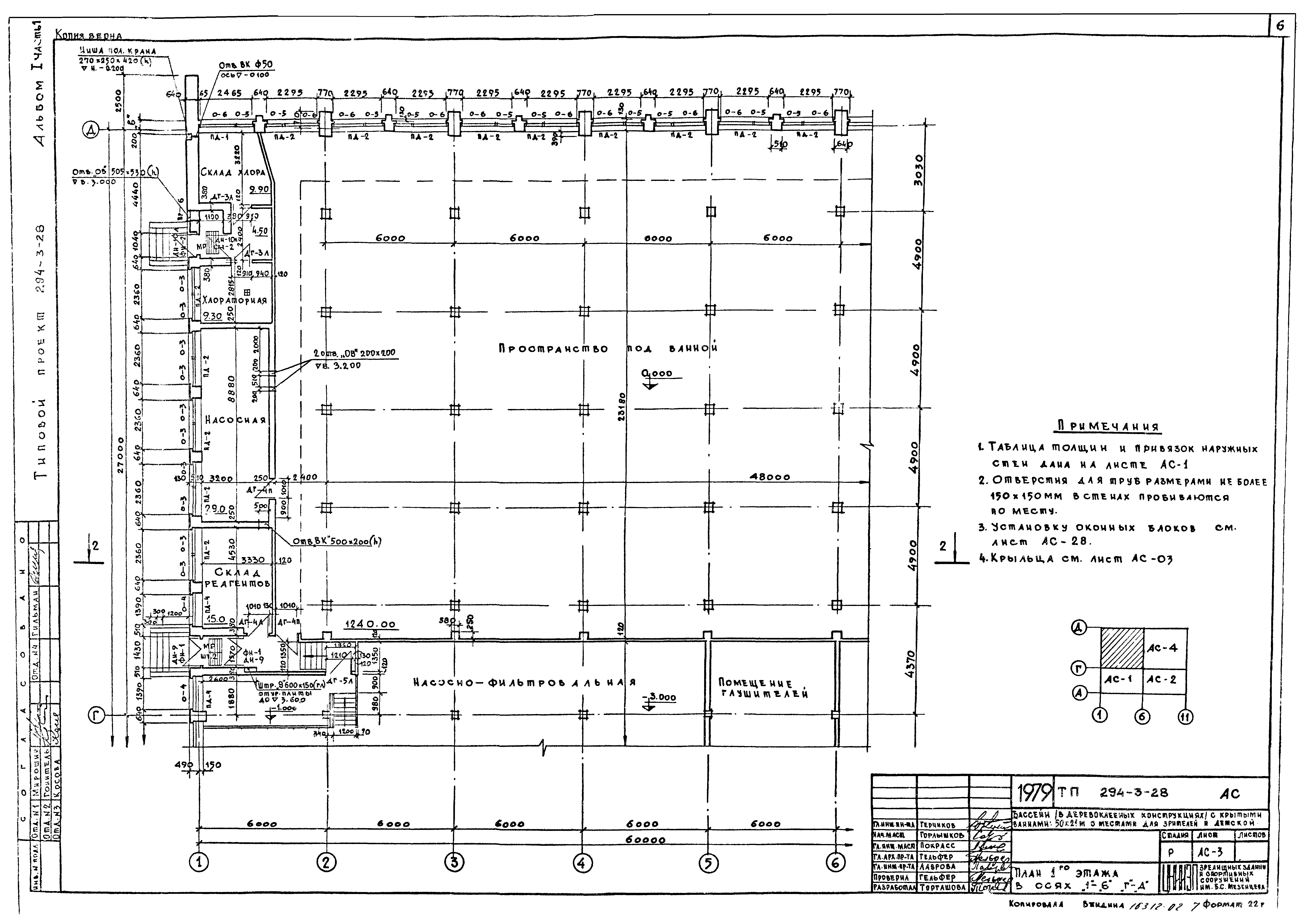
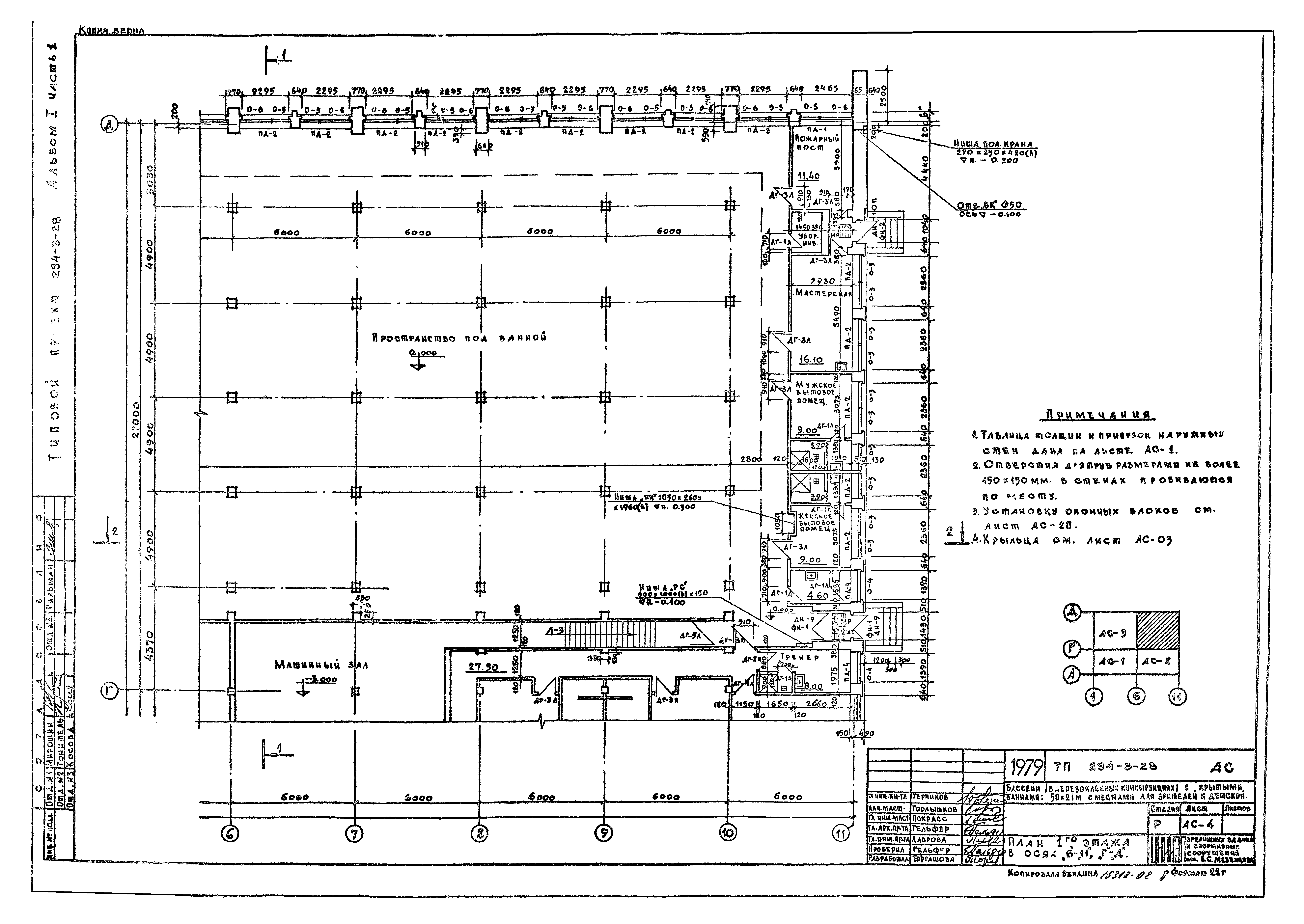
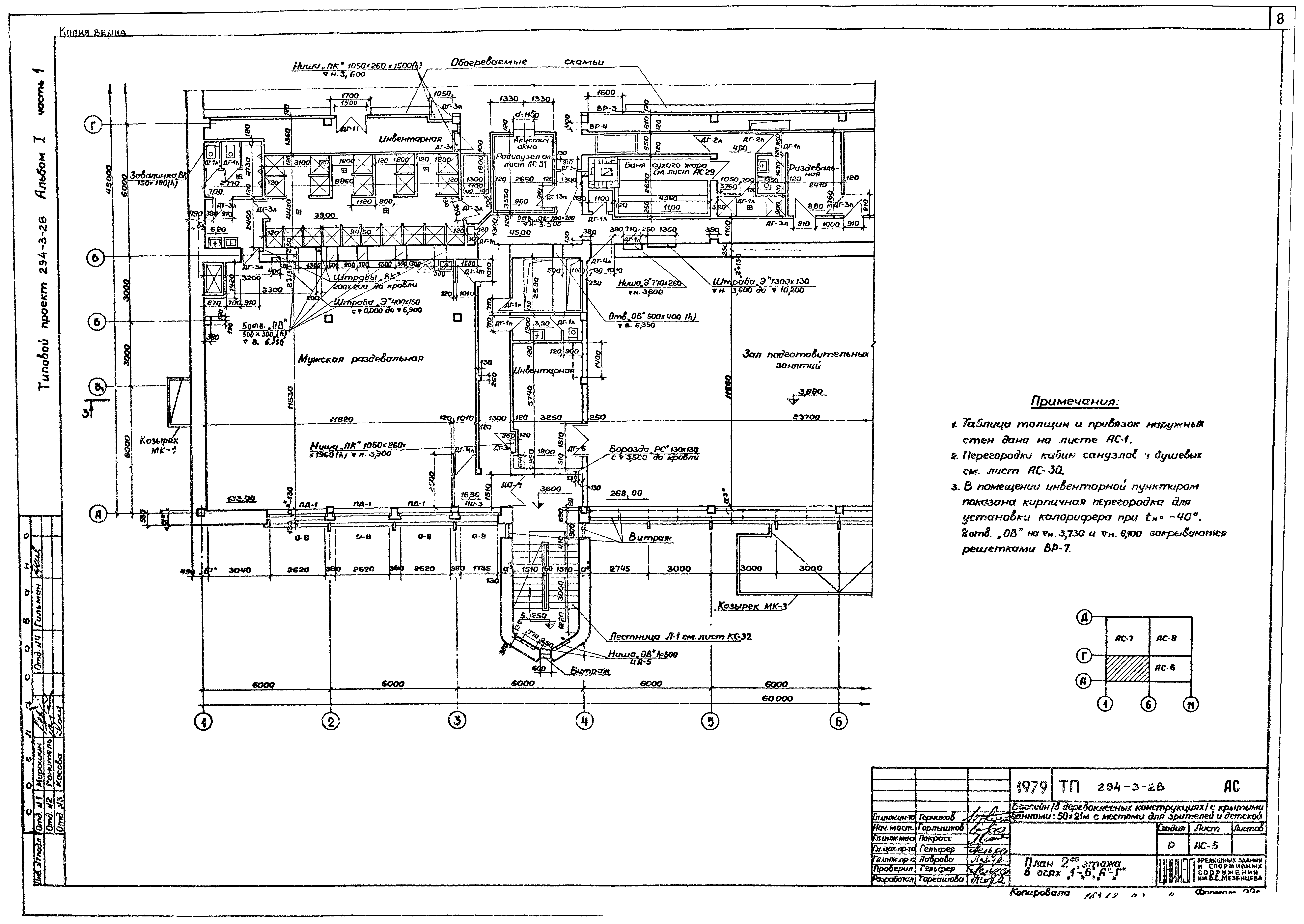
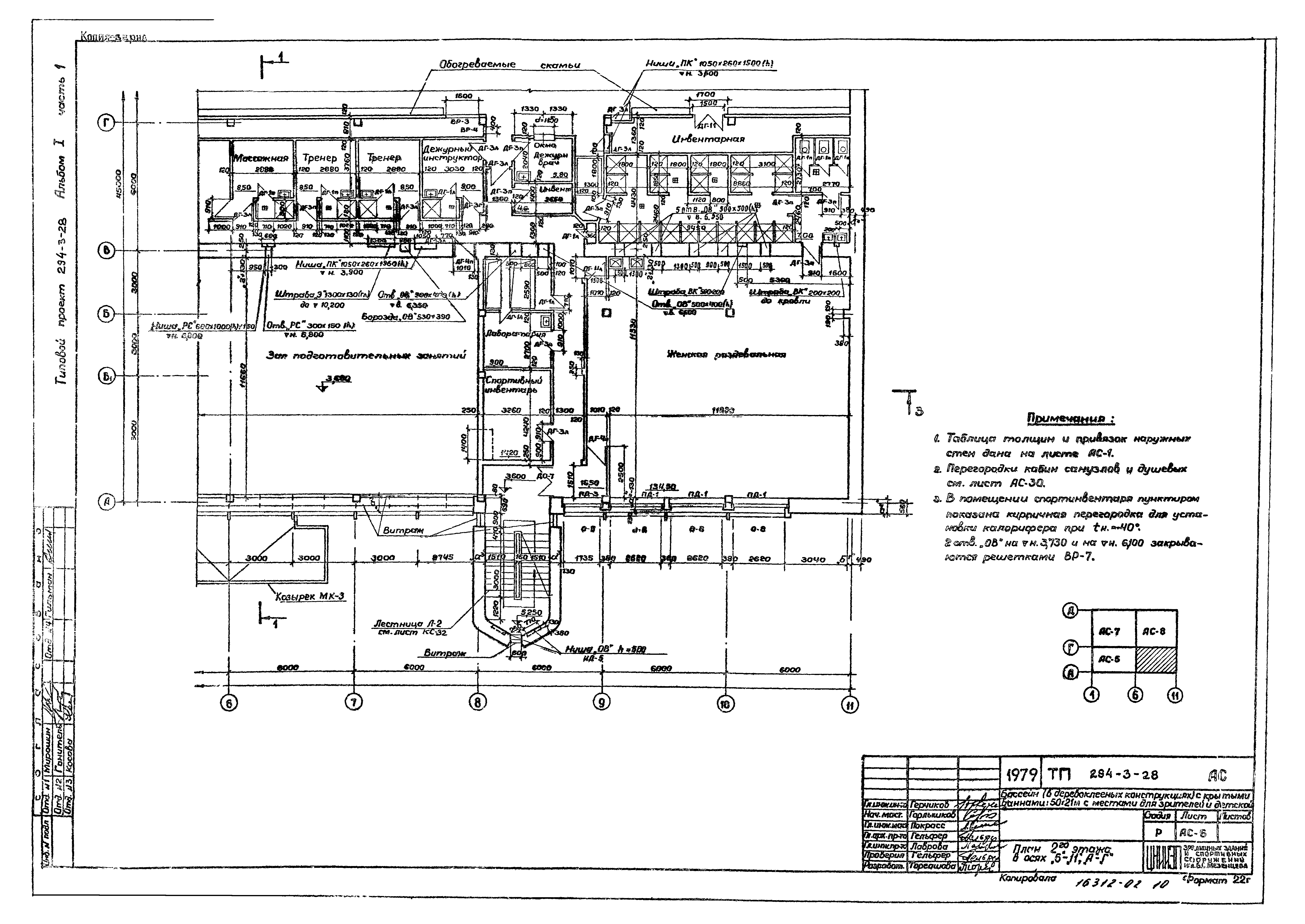
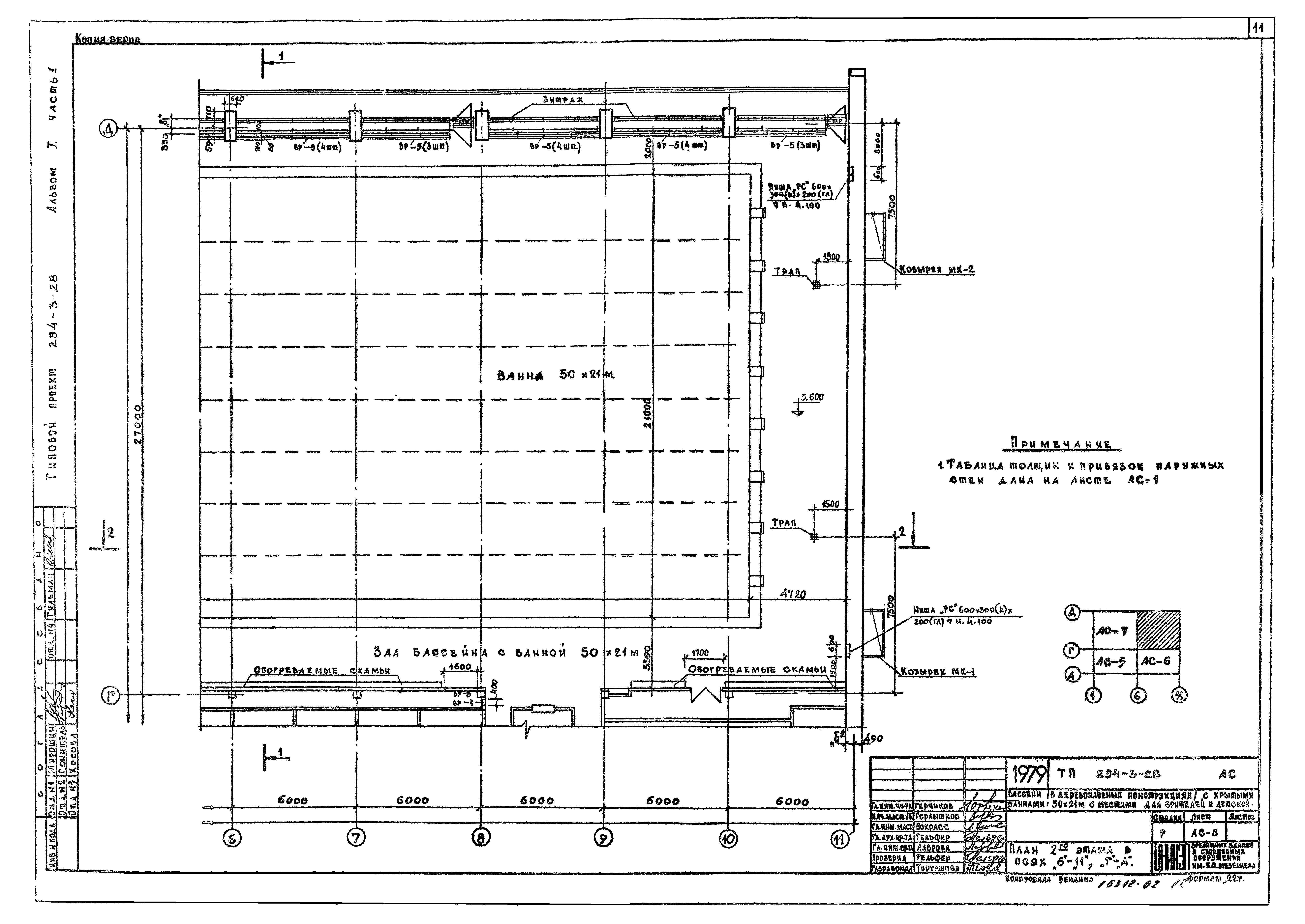
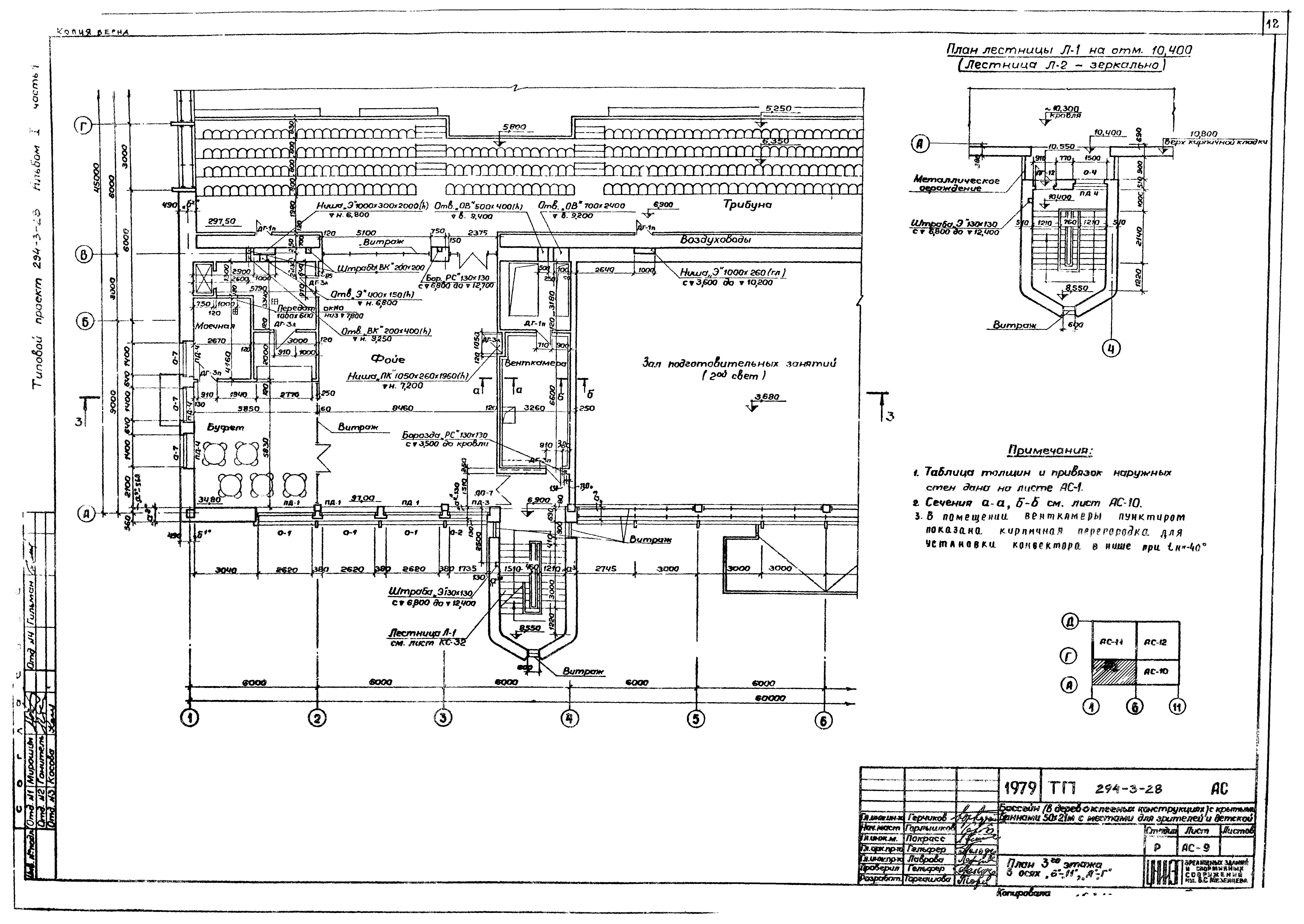
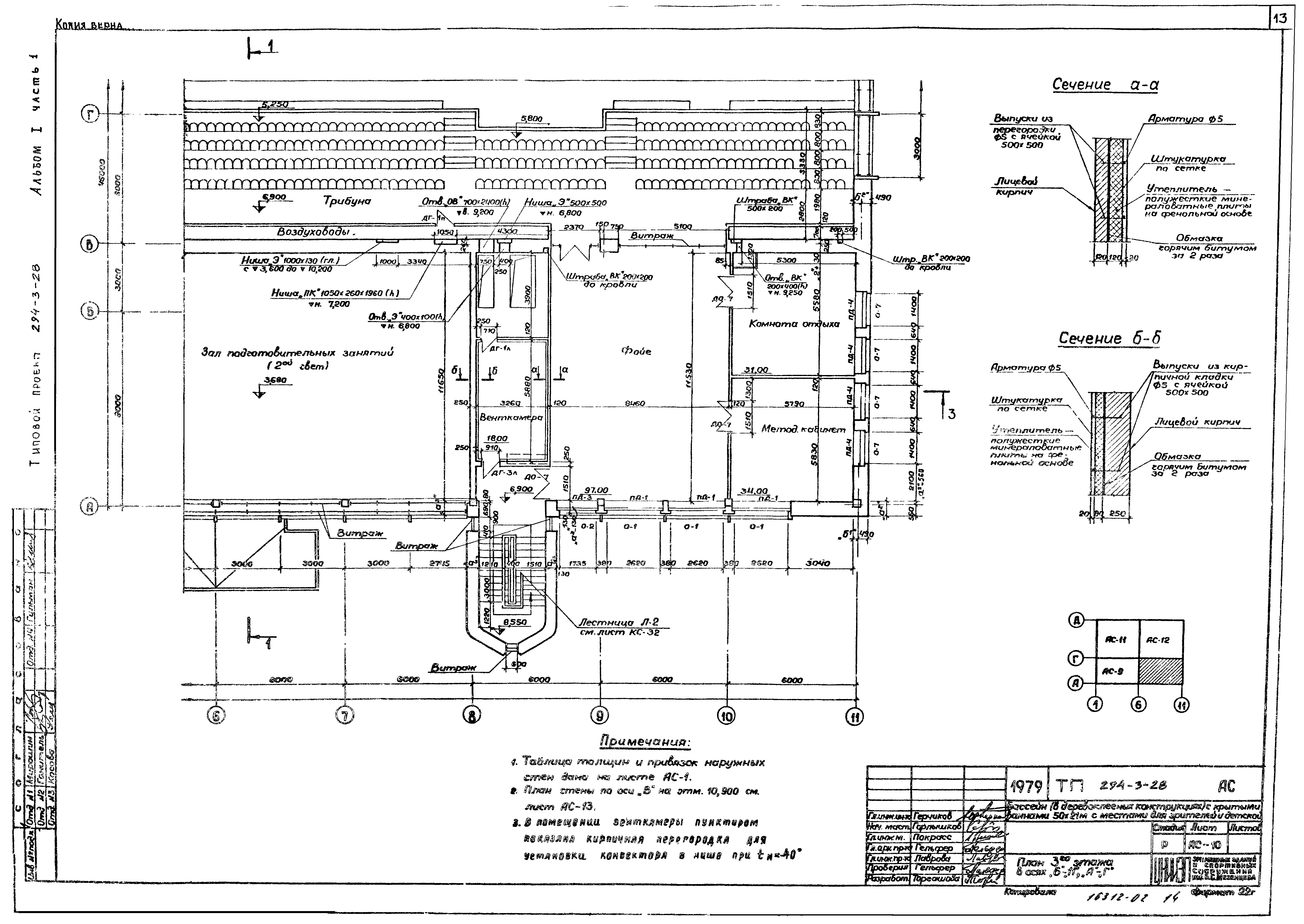
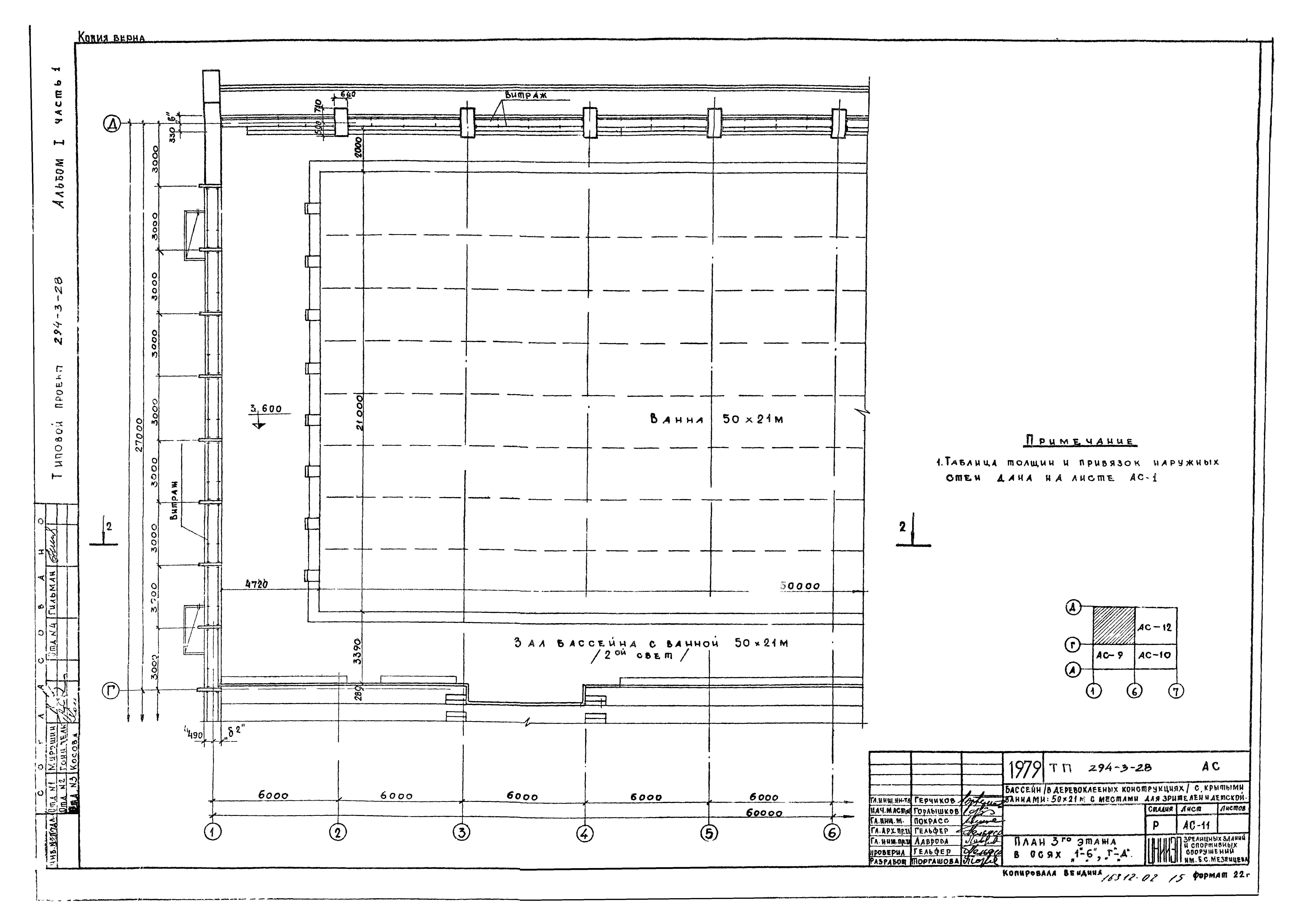
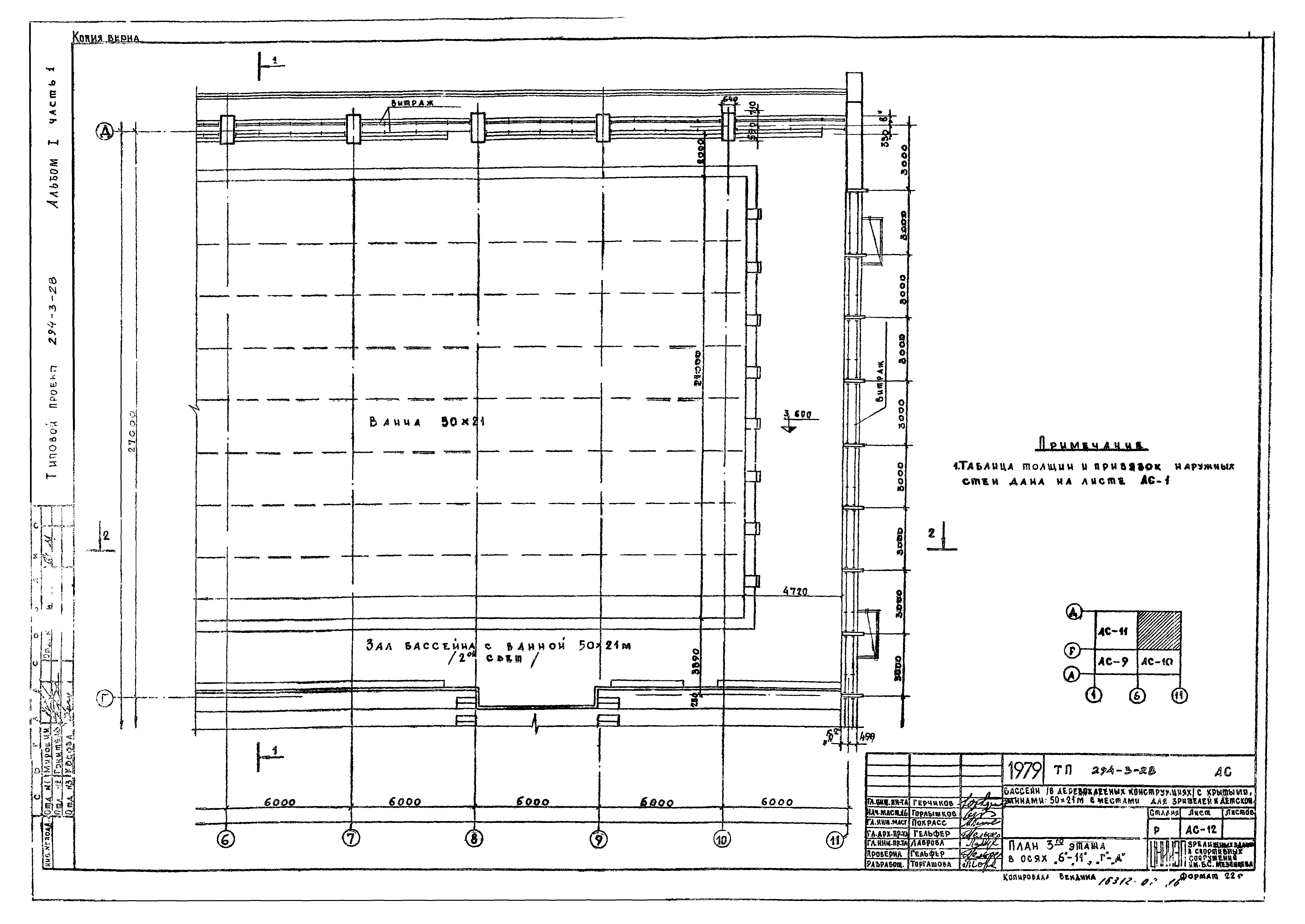
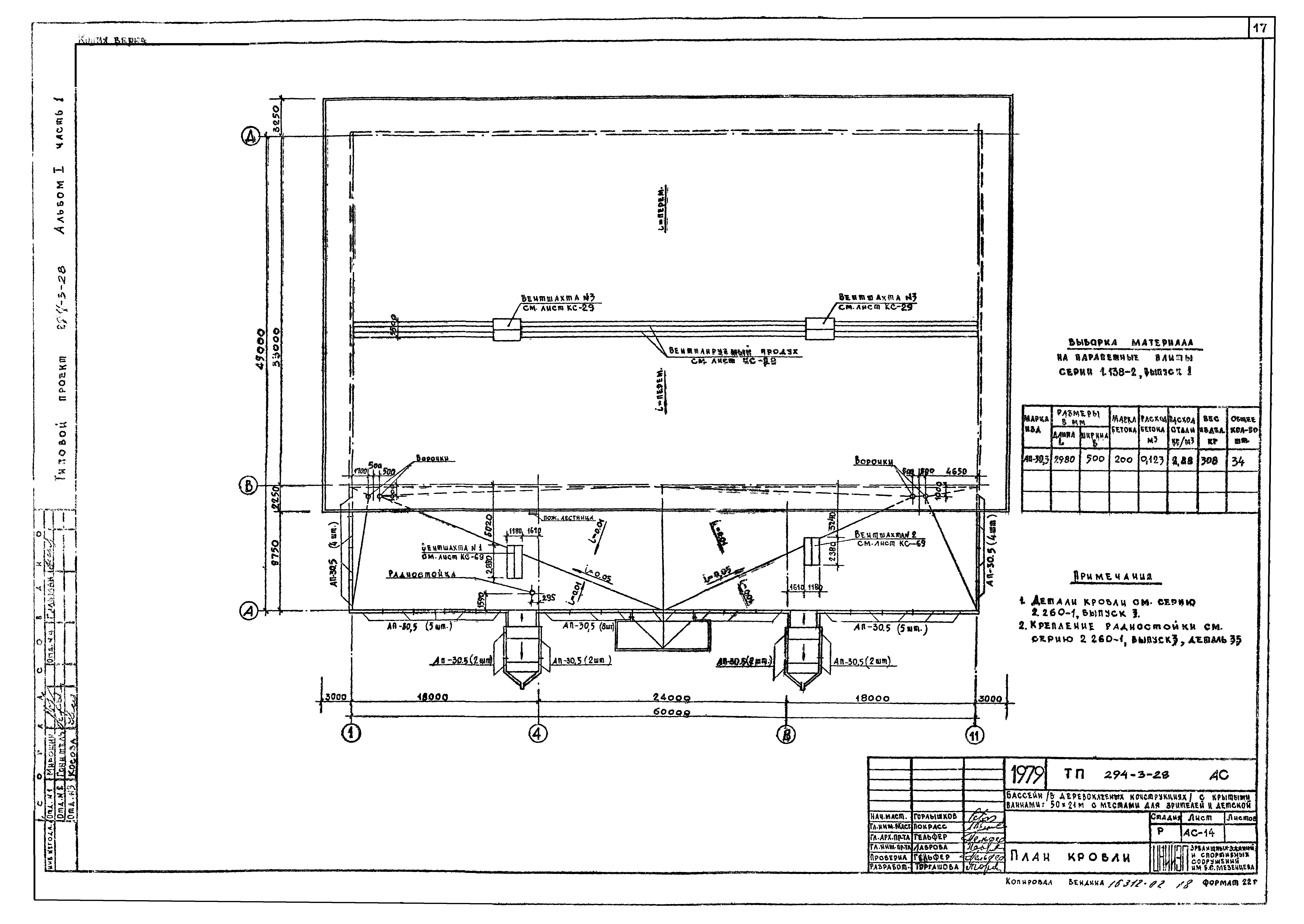
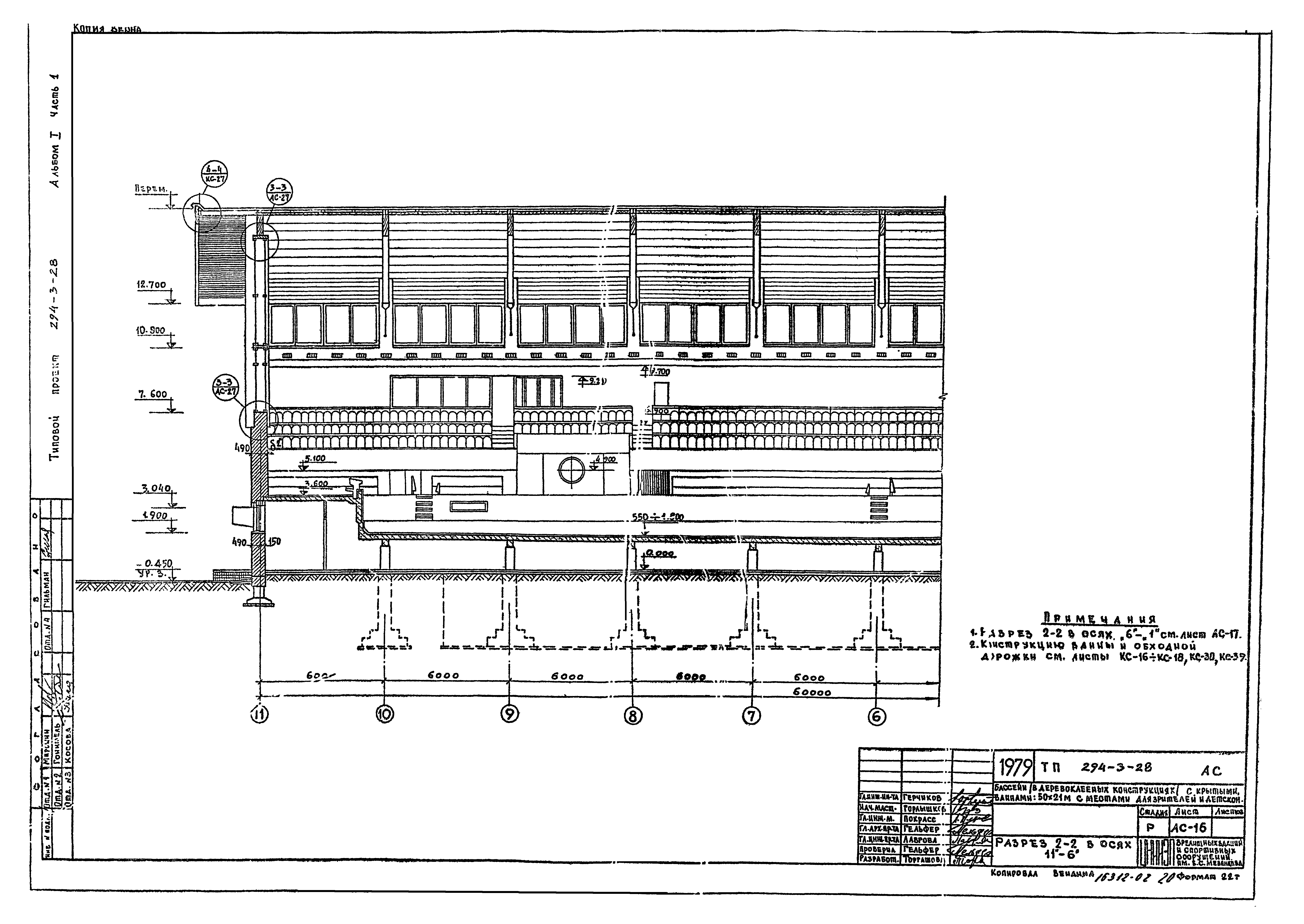
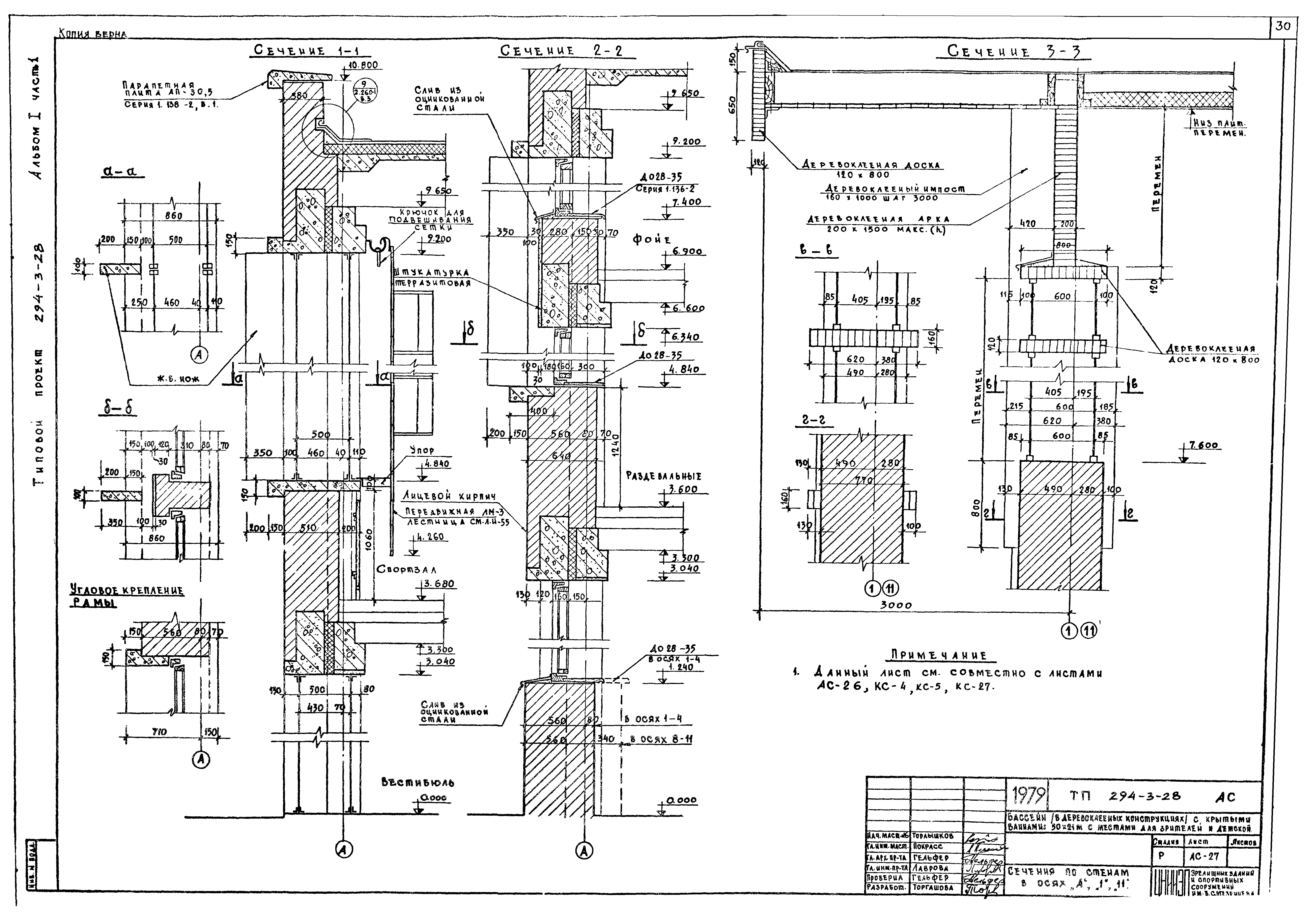
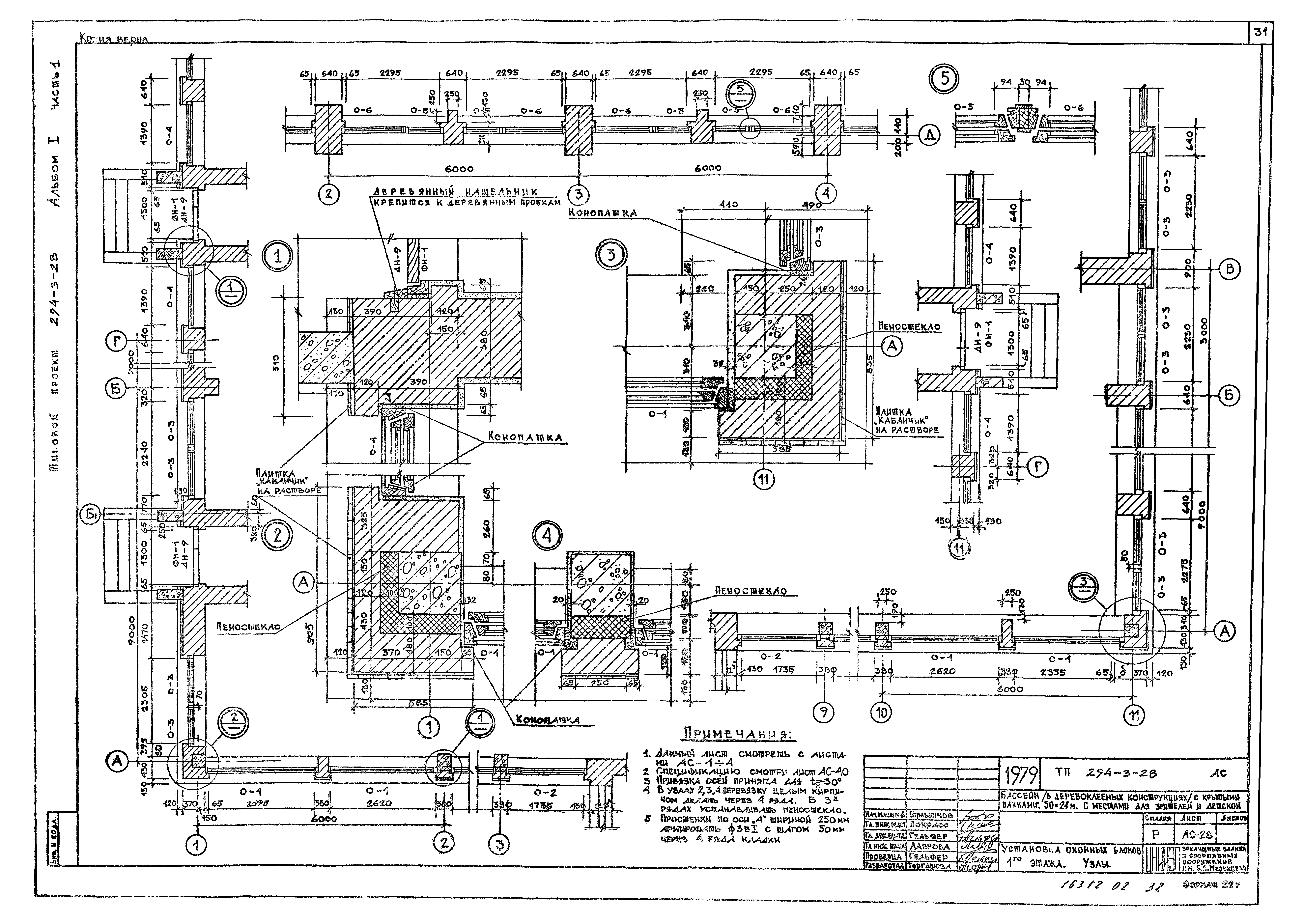
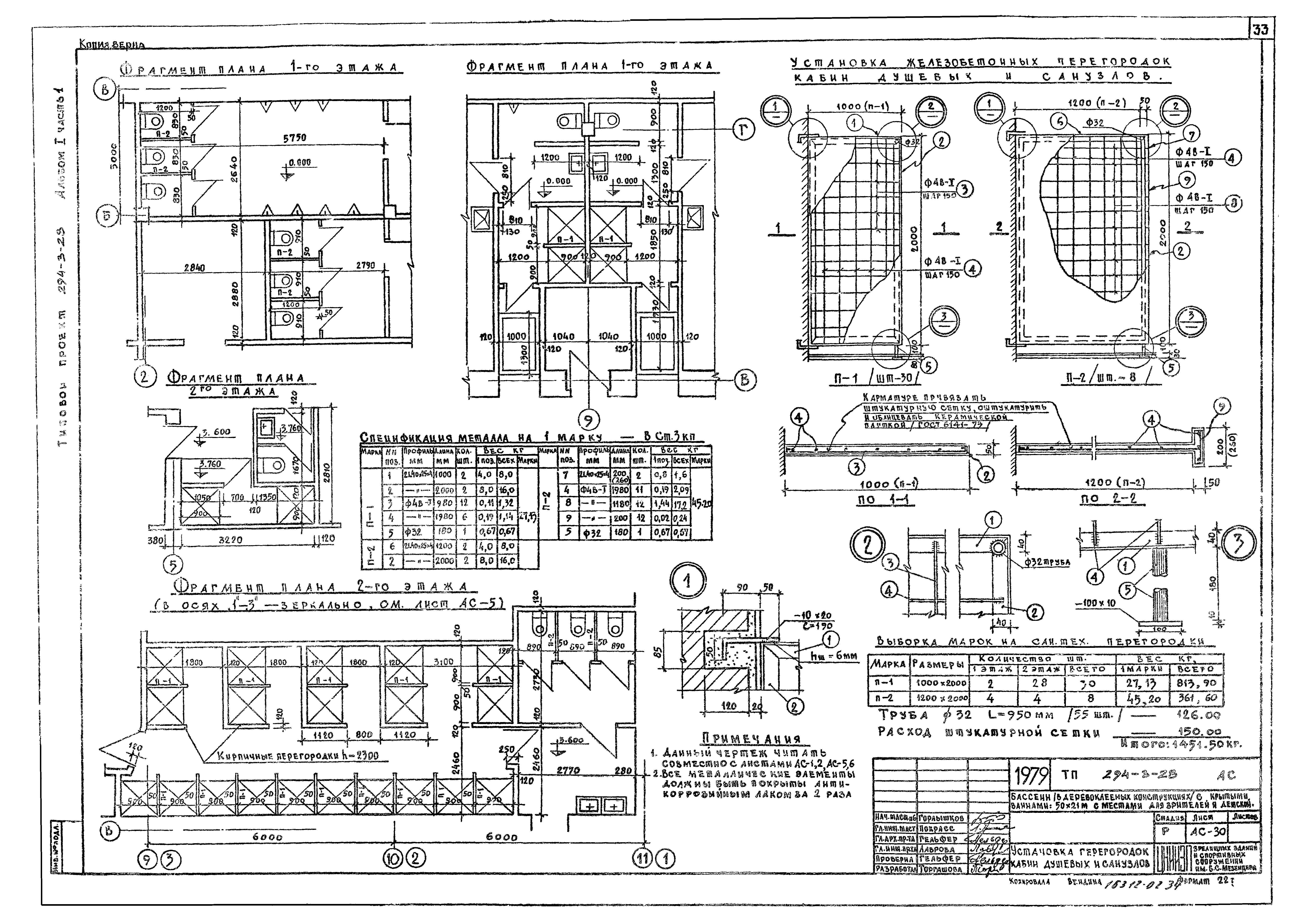
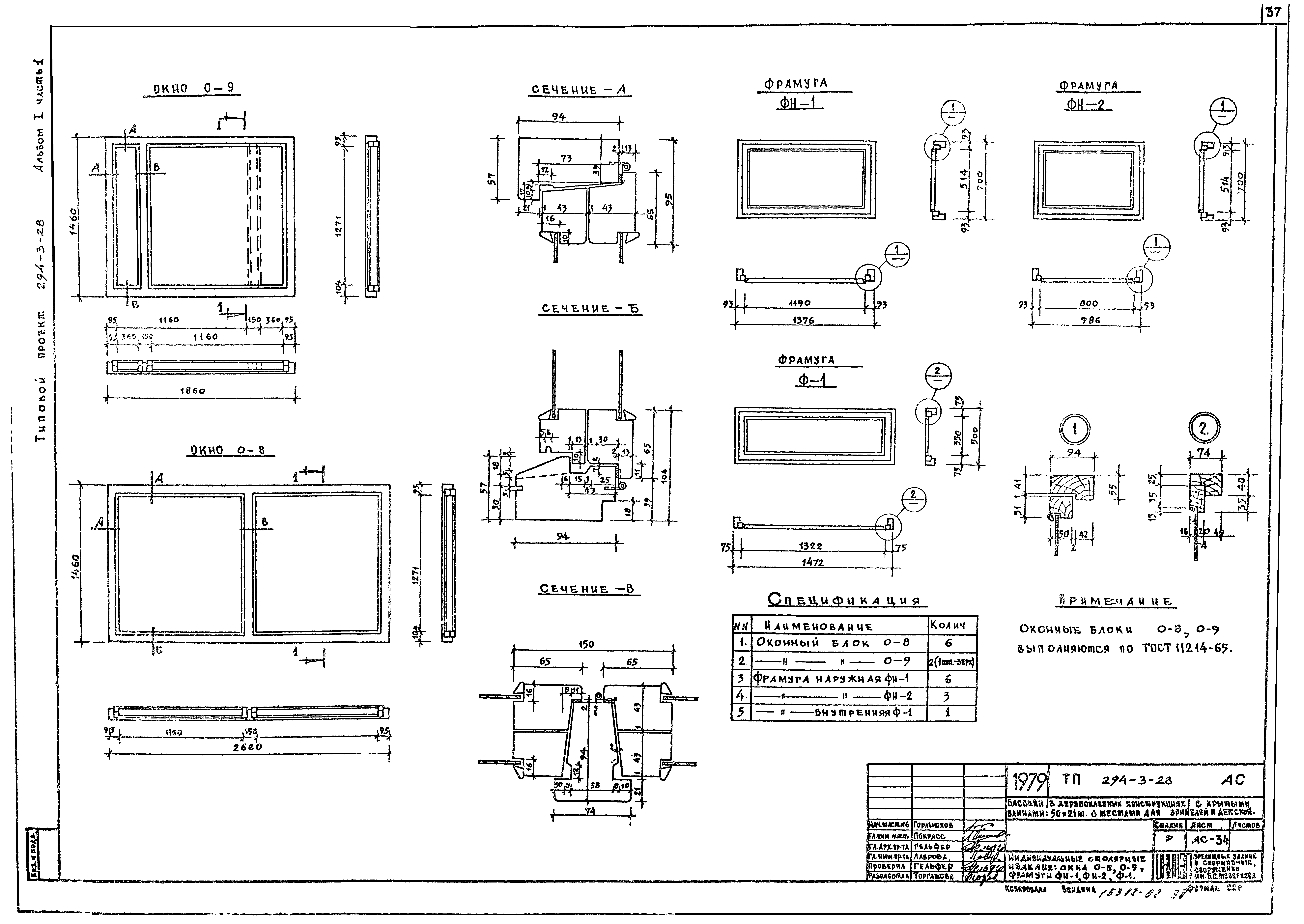
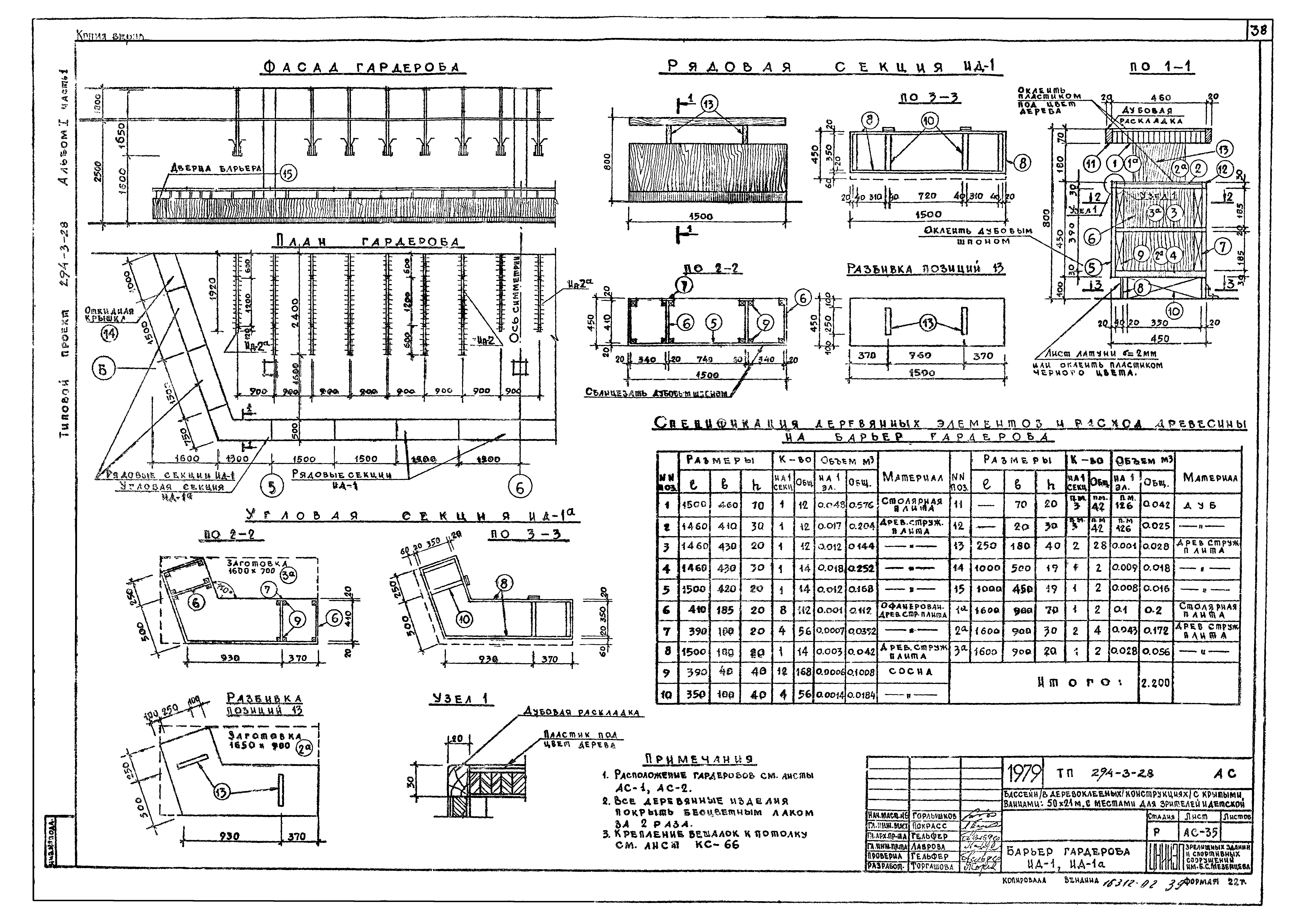
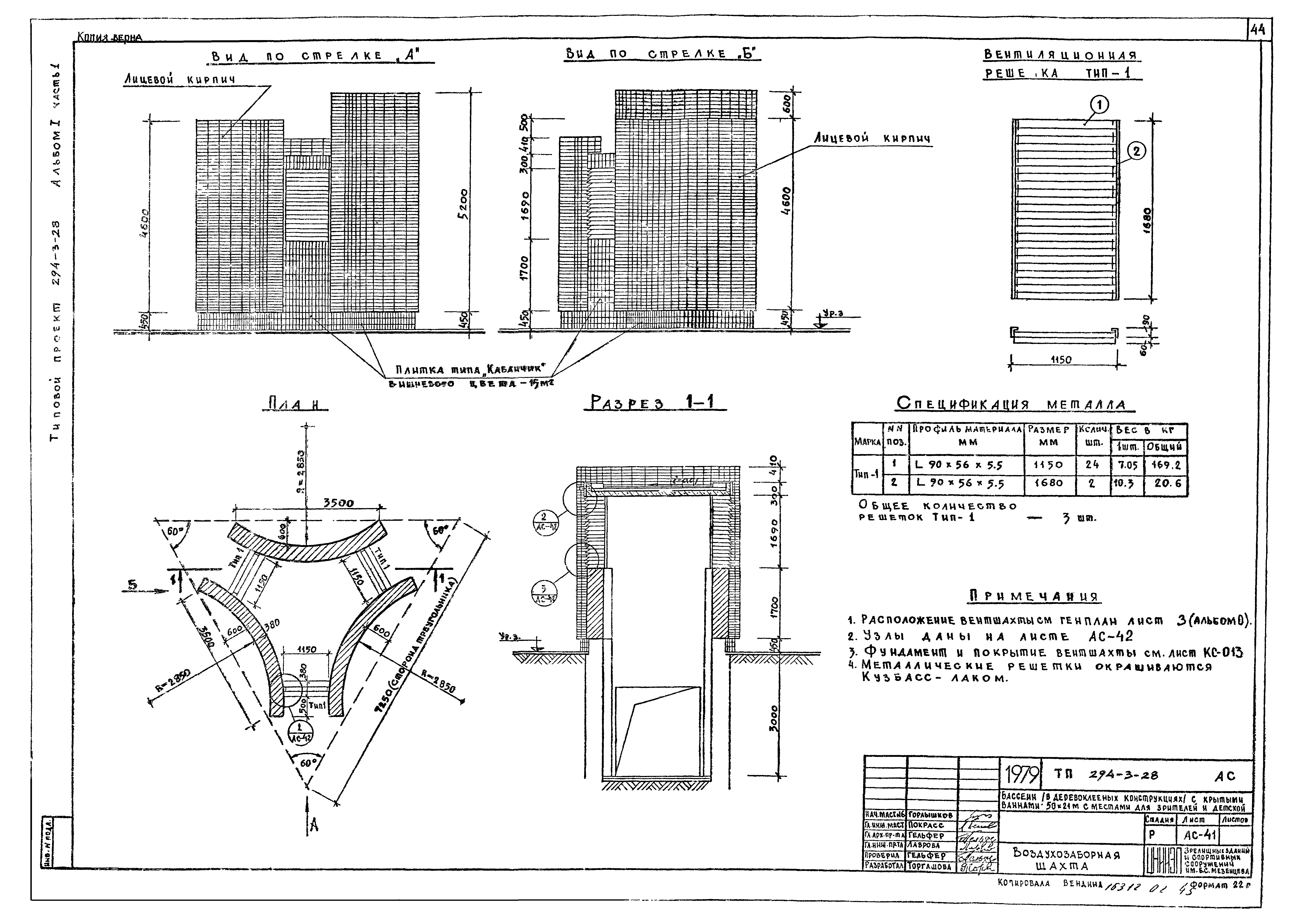
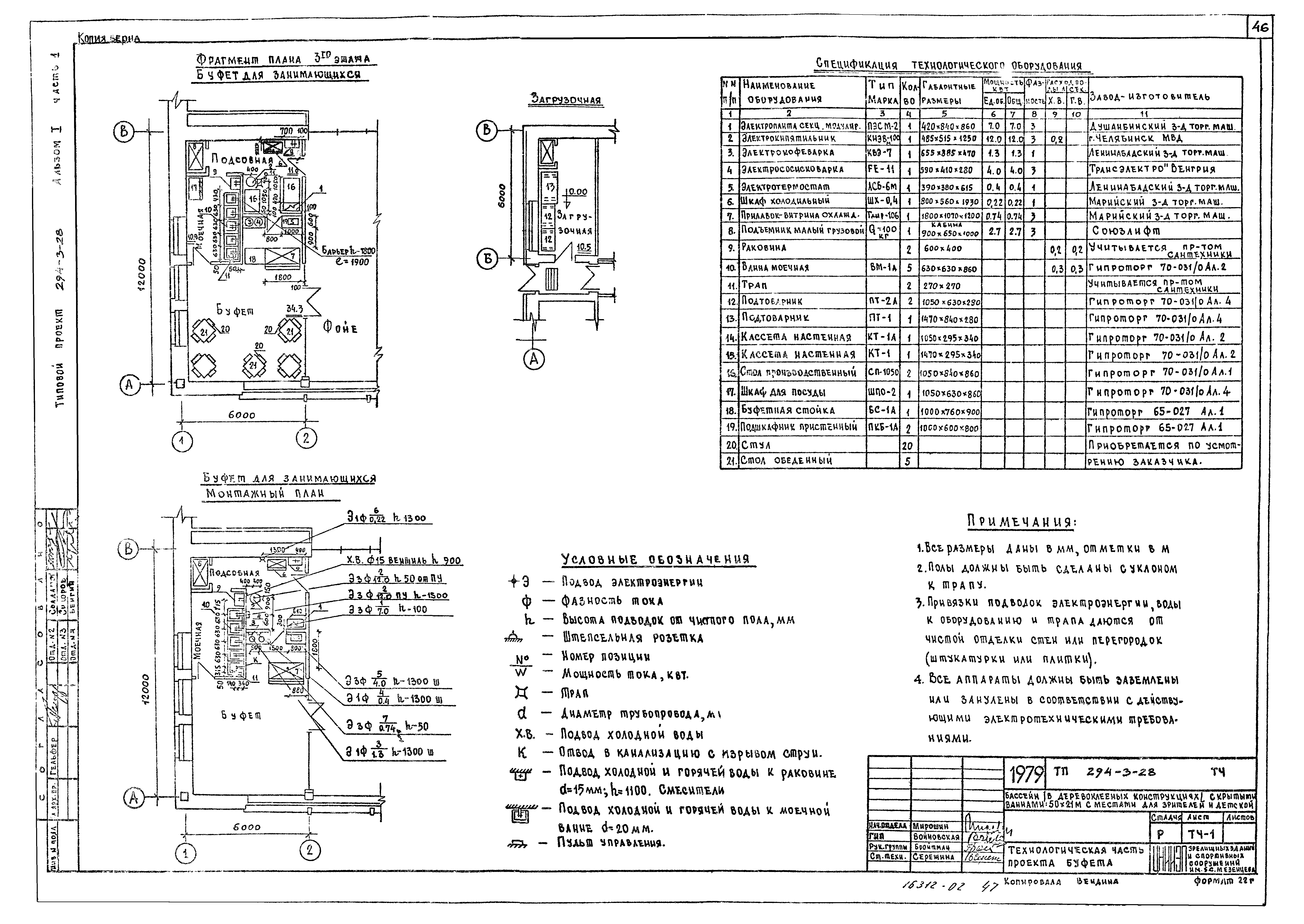
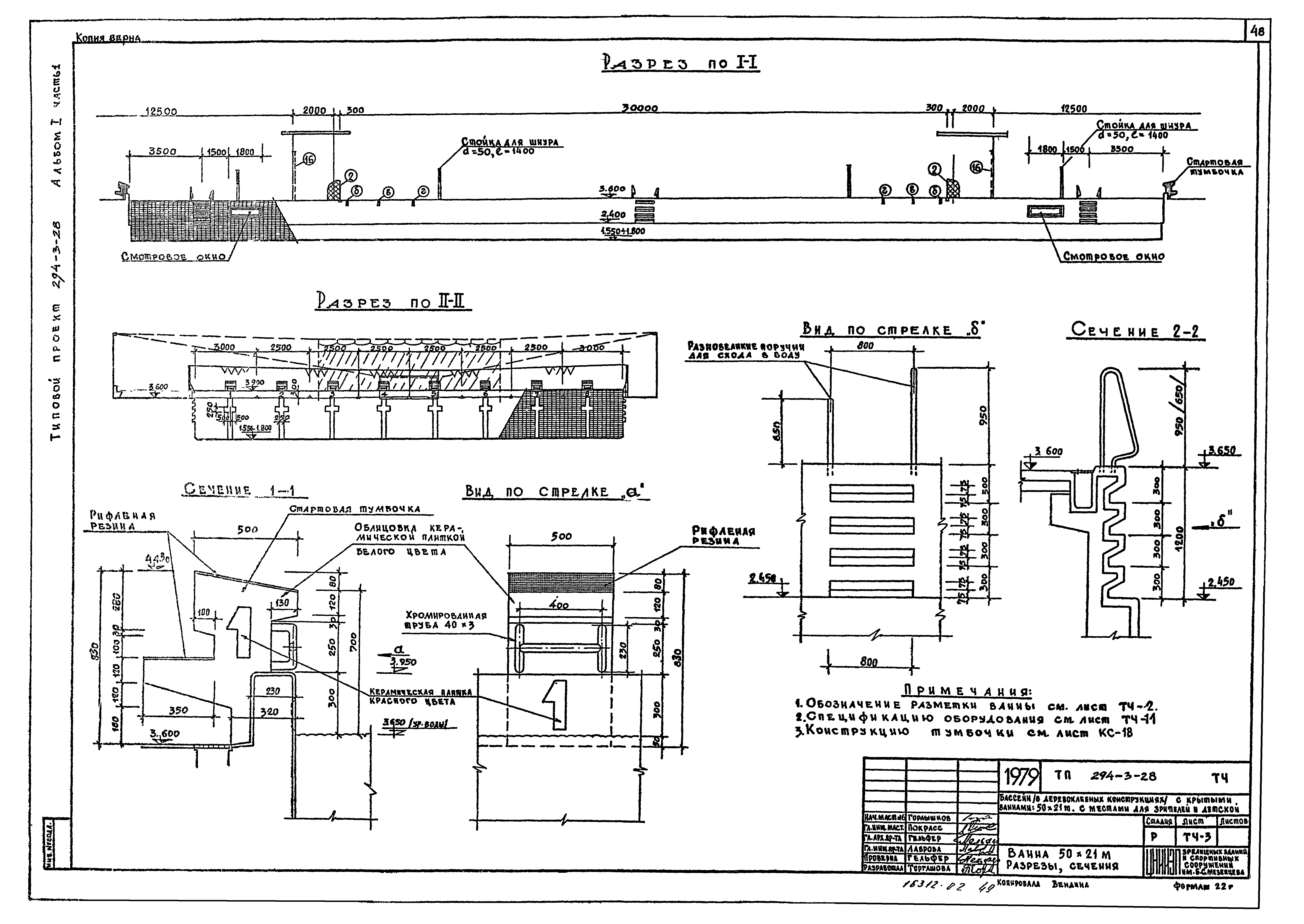
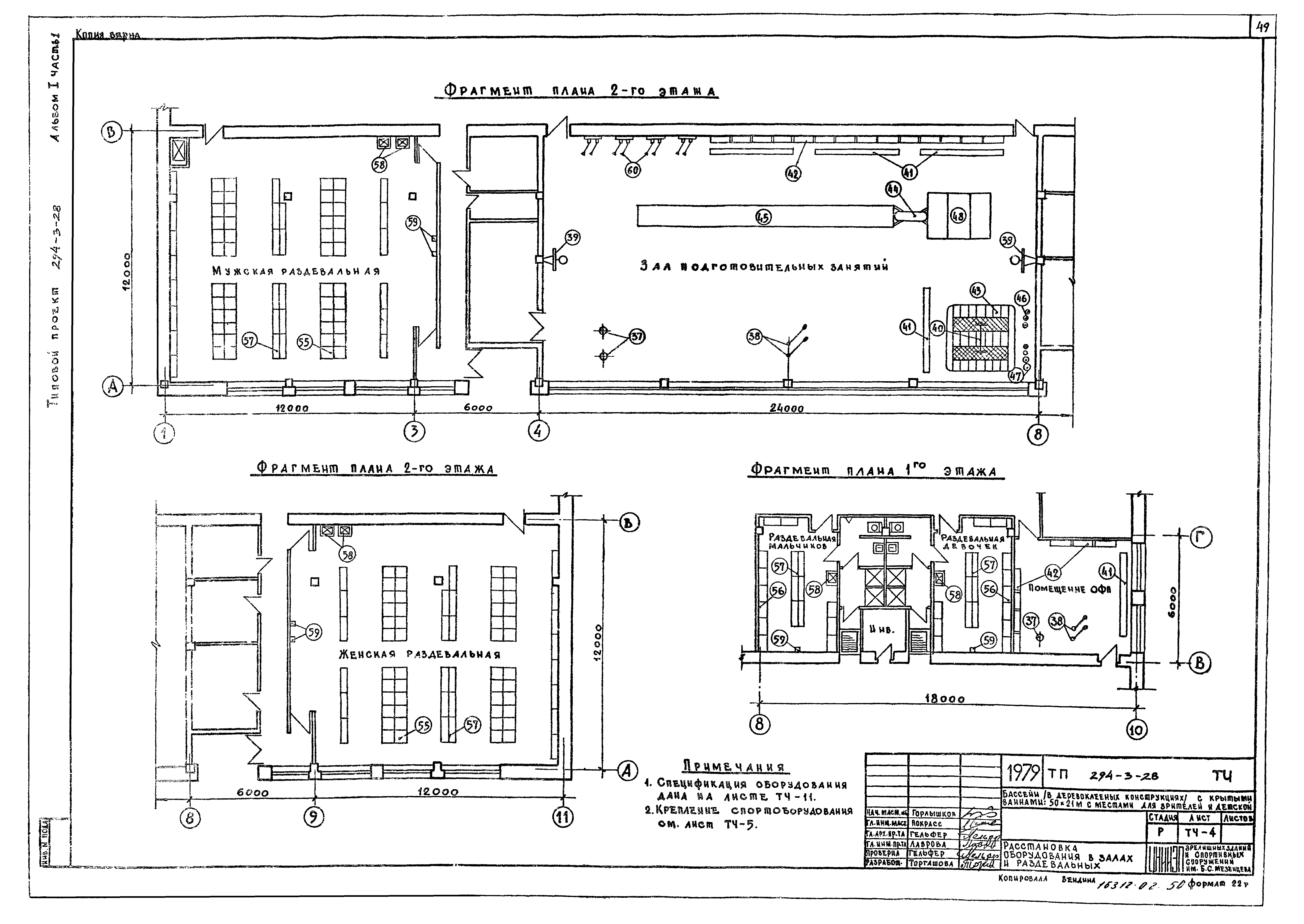
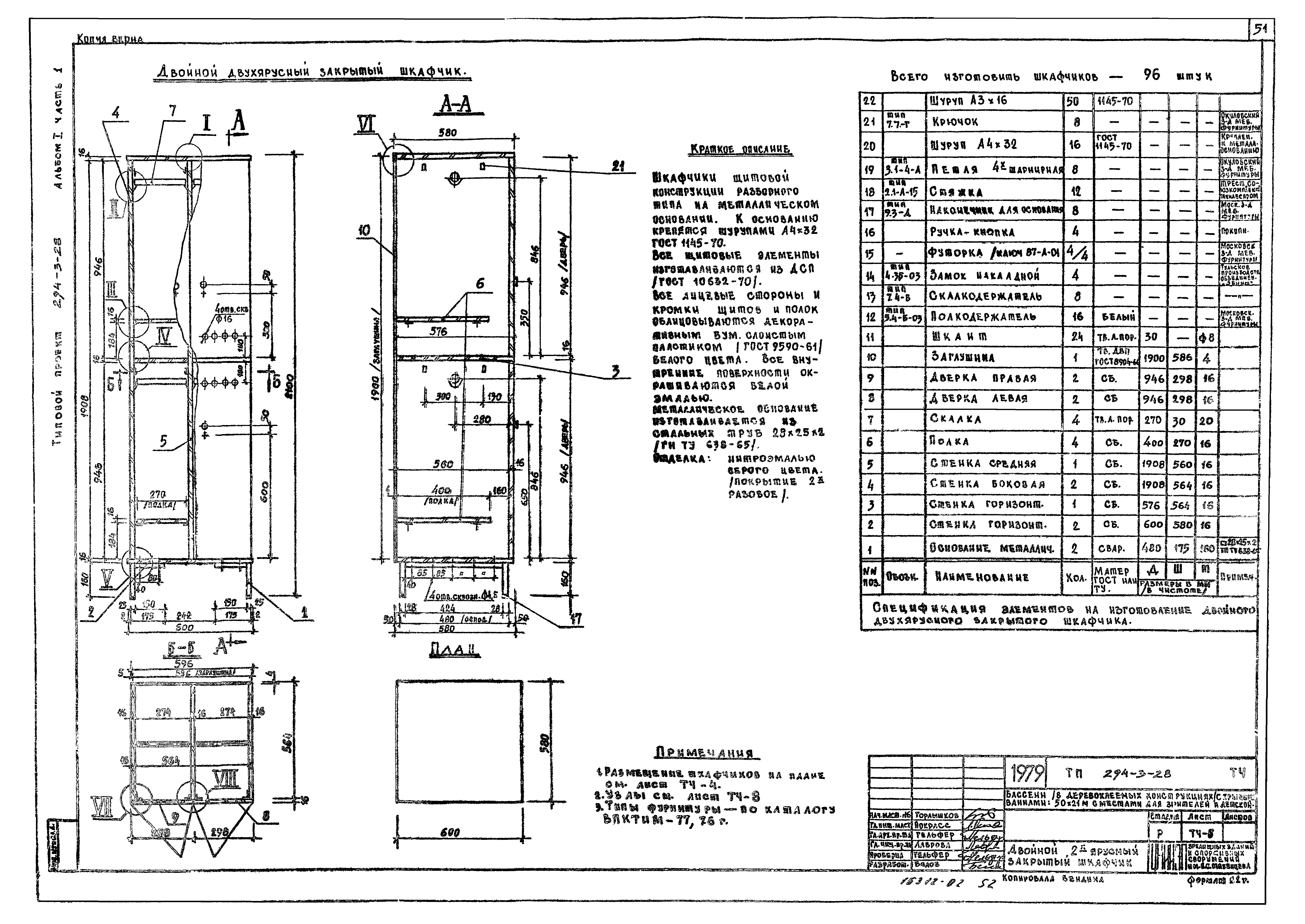
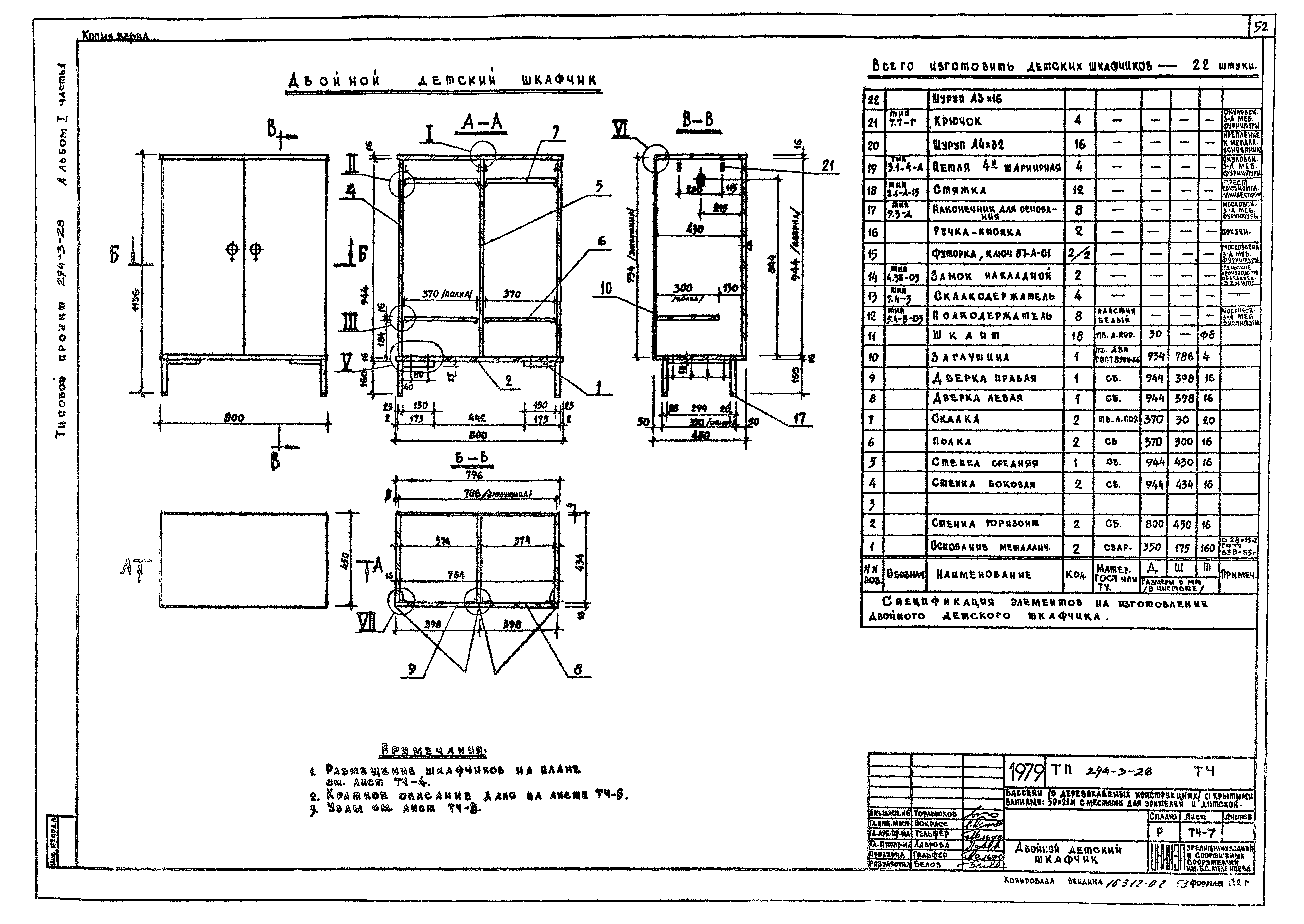
| Оглавление: | Заглавный лист Чертежи марки АС План 1-го этажа в осях "1" - "6", "А" - "Г" План 1-го этажа в осях "6" - "11", "А" - "Г" План 1-го этажа в осях "1" - "6", "Г" - "Д" План 1-го этажа в осях "6" - "11", "Г" - "Д" План 2-го этажа в осях "1" - "6", "А" - "Г" План 2-го этажа в осях "6" - "11", "А" - "Г" План 2-го этажа в осях "1" - "6", "Г" - "Д" План 2-го этажа в осях "6" - "11", "Г" - "Д" План 3-го этажа в осях "1" - "6", "А" - "Г" План 3-го этажа в осях "6" - "11", "А" - "Г" План 3-го этажа в осях "1" - "6", "Г" - "Д" План 3-го этажа в осях "6" - "11", "Г" - "Д" Фрагмент плана на отм. 10.900 План кровли Разрез 1-1 Разрез 2-2 в осях "11" - "6" Разрез 2-2 в осях "6" - "1" Разрез 3-3 в осях "1" - "6" Разрез 3-3 в осях "6" - "11" Фасад в осях "1" - "6" Фасад в осях "6" - "11" Фасад в осях "А" - "Д" Фасад в осях "Д" - "А" Фасад в осях "11" - "6" Фасад в осях "6" - "1" Фрагмент главного фасада Сечения по стенам в осях "а", "1", "11" Установка оконных блоков 1-го этажа. Узлы Баня сухого жара. План, разрезы, детали Установка перегородок кабин душевых и санузлов Акустическая обработка радиоузла. Дверь радиоузла ДГ-13 Подвеска щитов ограждения калориферов ИД-4. Отопительная решетка ИД-5 Шкафы "ПК", "РС", "ЭО". Окно регистратуры. Кассовое окно ИД-3 Индивидуальные столярные изделия: окна 0-8, 0-9. Фрамуги ФН-1, ФН-2, Ф-1 Барьер гардероба ИД-1, ИД-1а Подвесные вешалки гардероба ИД-2, ИД-2а Вентиляционные решетки ВР-1 - ВР-7 Маркировочные планы этажей Ведомость внутренних отделочных работ. Экспликация полов Спецификация столярных изделий Воздухозаборная шахта Воздуховыбросная шахта Чертежи марки ТЧ Технологическая часть проекта буфета Ванна 50х21 м Ванна 50х21 м. Разрезы, сечения Расстановка оборудования в залах и раздевальных Крепление спортоборудования и инвентаря. Узлы и детали Двойной 2-х ярусный закрытый шкафчик Двойной детский шкафчик Узлы шкафчиков Блок из двух скамей с вешалкой для раздевальной Скамья с вешалкой для раздевальной Спецификация оборудования |
| Разработан: | ЦНИИЭП зрелищных зданий и спортивных сооружений Госгражданстроя |
| Утверждён: | 17.01.1978 Госгражданстрой (Gosgrazhdanstroy 12) |

























































