Скачать Типовой проект 320-29 Альбом I. Архитектурно-строительная частьДата актуализации: 01.01.2021
|
| Обозначение: | Типовой проект 320-29 |
| Обозначение англ: | 320-29 |
| Статус: | действует |
| Название рус.: | Альбом I. Архитектурно-строительная часть |
| Дата добавления в базу: | 01.09.2013 |
| Дата актуализации: | 01.01.2021 |
| Дата введения: | 11.10.1968 |
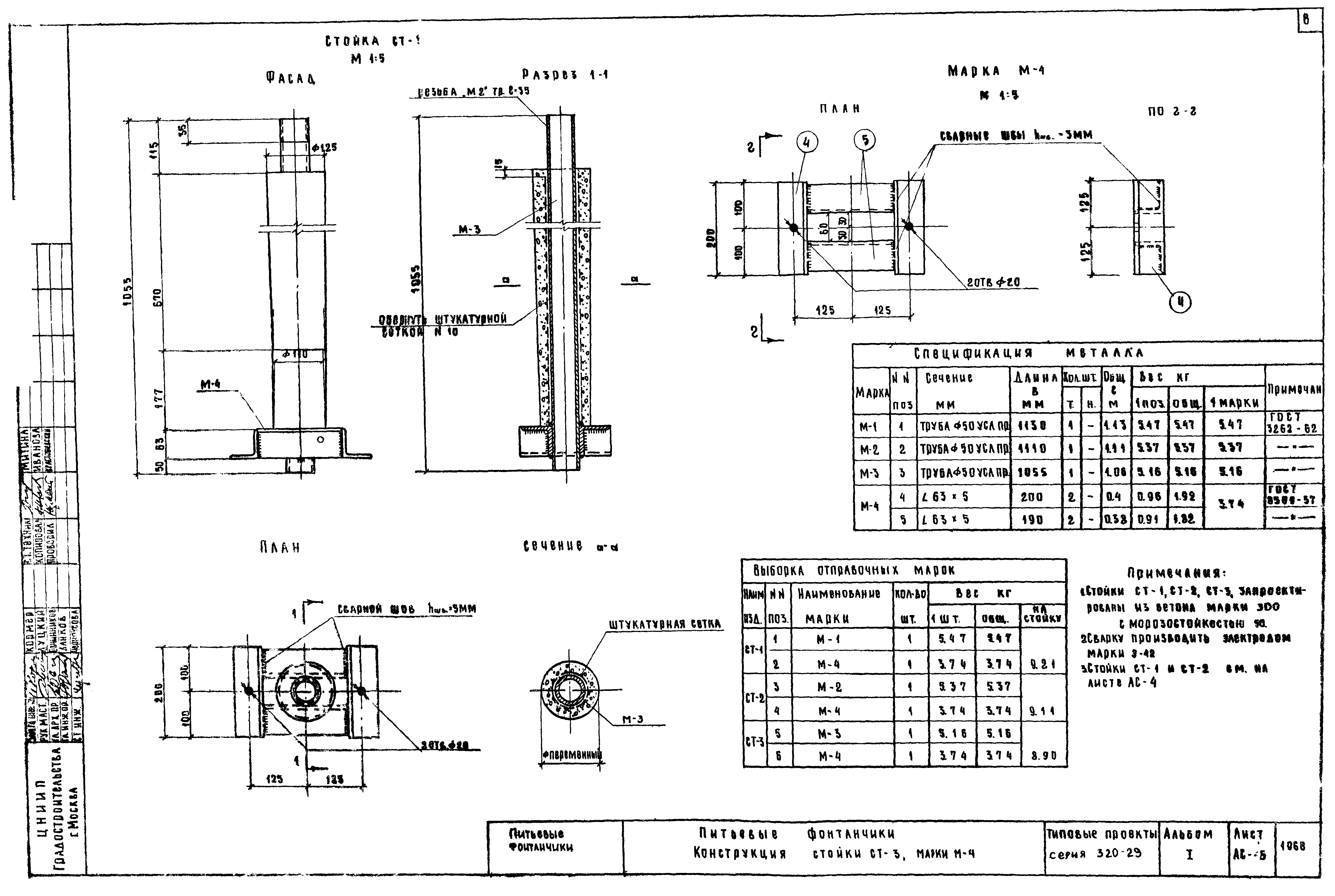
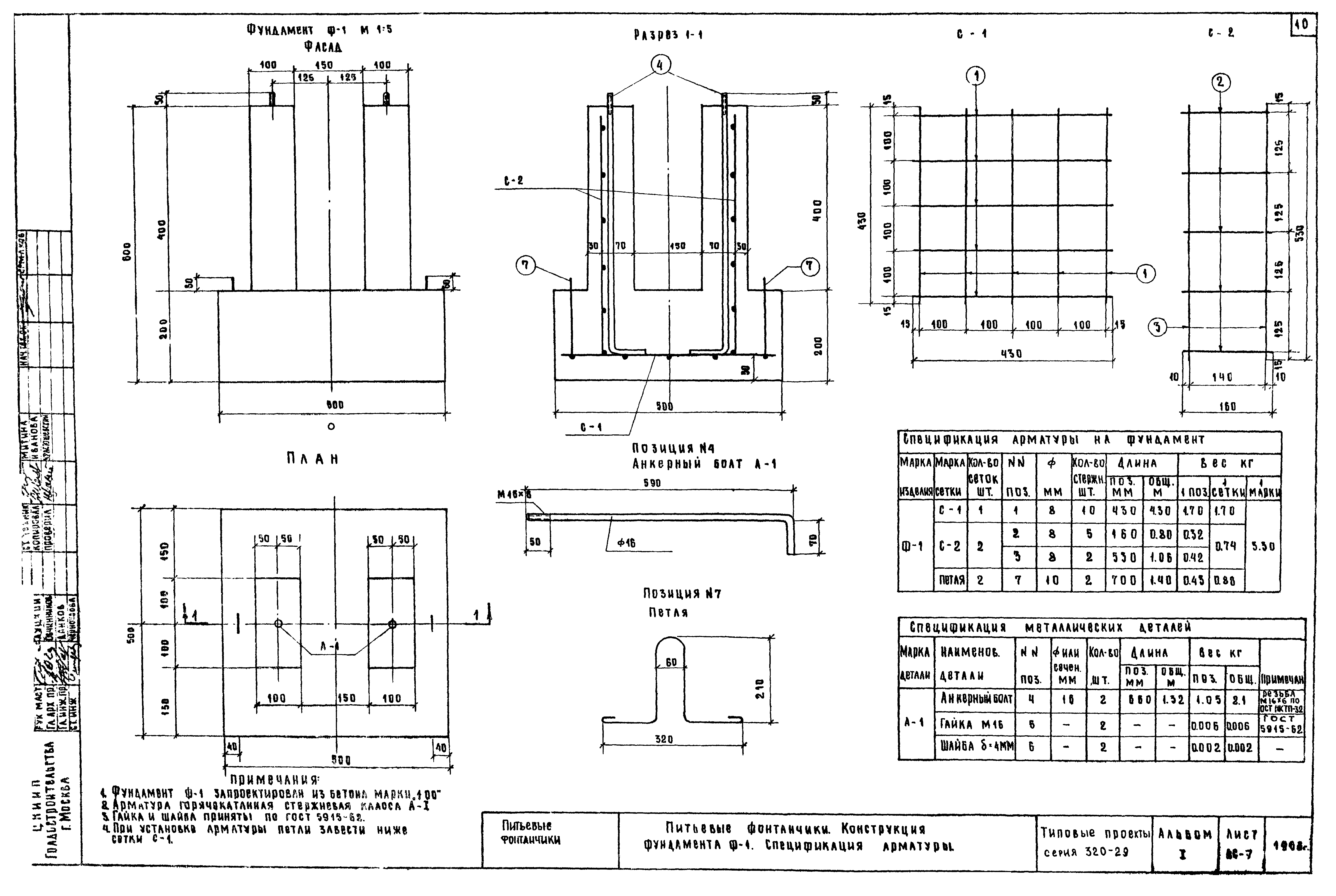
| Оглавление: | Содержание Пояснительная записка Питьевой фонтанчик тип I. Фасад. План. Разрез 1-1 и сечение а-а Питьевой фонтанчик тип II. Фасад. План. Разрез 1-1 и сечение а-а Питьевой фонтанчик тип III. Фасад. План. Разрез 1-1 и сечение а-а Питьевые фонтанчики. Конструкция стоек СТ-1 и СТ-2 Питьевые фонтанчики. Конструкция стойки СТ-3, марки М-4 Питьевые фонтанчики. Конструкция чаш Ч-1, Ч-2, Ч-3. Спецификация арматуры Питьевые фонтанчики. Конструкция фундамента Ф-1. Спецификация арматуры Шаблоны чаш питьевых фонтанчиков Питьевые фонтанчики типы I, II, III. Водопровод, канализация Питьевой фонтанчик тип IV. Фасады. План. Монтажная схема Питьевой фонтанчик тип V. Фасады. План. Монтажная схема Питьевой фонтанчик тип VI. Фасады. План. Монтажная схема Питьевые фонтанчики типы IV, V, VI. Фундамент Б-1. Стойки Б-2, Б-3 и Б-4 Питьевые фонтанчики типы IV, V, VI. Чаши Б-5 и Б-6. Закладная деталь М-8 Питьевой фонтанчик тип IV. Разрез II-II. Шаблоны "А", "Б", "В" Питьевой фонтанчик тип V. Разрез II-II. Шаблоны "А", "Б", "В" Питьевой фонтанчик тип VI. Разрез II-II. Шаблоны "А", "Б", "В" Питьевые фонтанчики типы IV, V, VI. Водопровод и канализация. Конструкция марок М-1 по М-7 |
| Разработан: | ЦНИИП градостроительства |
| Утверждён: | 11.10.1968 ЦНИИП градостроительства Госгражданстроя (278) |
| Издан: | ЦИТП Госстроя СССР (CITP, Gosstroy (USSR) 1968 г. ) |





















