Скачать Типовой проект 330-11 Альбом I. Архитектурно-строительная частьДата актуализации: 01.01.2021
|
| Обозначение: | Типовой проект 330-11 |
| Обозначение англ: | 330-11 |
| Статус: | не определен законодательством |
| Название рус.: | Альбом I. Архитектурно-строительная часть |
| Дата добавления в базу: | 01.09.2013 |
| Дата актуализации: | 01.01.2021 |
| Дата введения: | 21.07.1971 |
| Дата окончания срока действия: | 30.06.2003 |
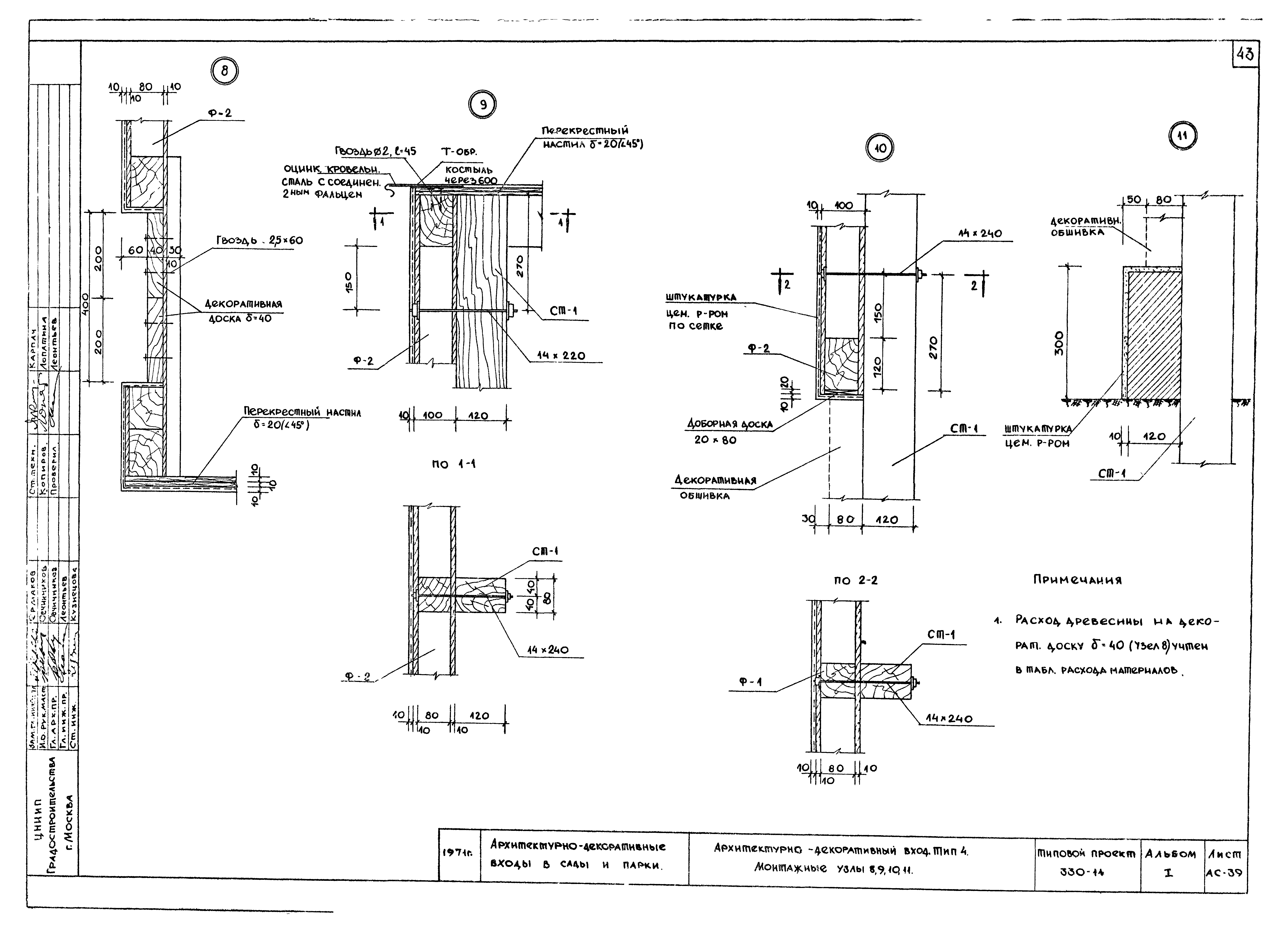
| Оглавление: | Содержание Пояснительная записка Архитектурно-декоративный вход. Тип 1. Фасад "А". Генплан Архитектурно-декоративный вход. Тип 1. Фасады "Б", "В", "Г" Архитектурно-декоративный вход. Тип 1. Планы по 1-1, 2-2 Архитектурно-декоративный вход. Тип 1. Монтажные схемы. Расход материалов Архитектурно-декоративный вход. Тип 1. Марки Ф-1 и Ф-2. Спецификация Архитектурно-декоративный вход. Тип 1. Марки СТ-1, С-1, ДФ-1. Спецификации Архитектурно-декоративный вход. Тип 1. Марка ДС-1. Разрезы 1-1, 2-2. Деталь заделки стойки в грунт. Спецификации Архитектурно-декоративный вход. Тип 1. Марка ДС-1. Узлы 1, 2, 3. Позиция 3 Архитектурно-декоративный вход. Тип 1. Марка СК-1. Опора скамьи. Разрезы 1-1 - 5-5. Спецификации Архитектурно-декоративный вход. Тип 1. Марка Ц-1. Узел крепления светильника. Спецификация Архитектурно-декоративный вход. Тип 1. Разрезы I-I, II-II, III-III Архитектурно-декоративный вход. Тип 1. Разрезы IV-IV, V-V, VI-VI. Узел VII Архитектурно-декоративный вход. Тип 1. Шрифт для надписей Архитектурно-декоративный вход. Тип 1. План сети освещения. Разрез 1-1 Архитектурно-декоративный вход. Тип 2. Генплан Архитектурно-декоративный вход. Тип 2. Фасады "А", "Б". План. Расход материалов Архитектурно-декоративный вход. Тип 2. Разрезы 1-1, 2-2. Фрагменты "А", "Б", "В", "Г", "Д" Архитектурно-декоративный вход. Тип 2. Разрезы 3-3, 4-4. Фрагменты "Е", "Ж", "И". Сечения 5-5, 6-6 Архитектурно-декоративный вход. Тип 2. Марка ФЛ-1. Узлы 1, 2, 3. Спецификация Архитектурно-декоративный вход. Тип 2. Фрагмент фасада. Марка КР-1. Узлы 1, 2, 3, 4. Спецификация Архитектурно-декоративный вход. Тип 3. Фасад "А". Генплан Архитектурно-декоративный вход. Тип 3. Фасад "Б". Разрезы I-I - III-III. Расход материалов Архитектурно-декоративный вход. Тип 3. Фрагмент разрезов 1-1 - 3-3 Архитектурно-декоративный вход. Тип 3. Столб. Фасад "А"-"А". План. Разрез 1-1 Архитектурно-декоративный вход. Тип 3. Цветочница. План. Фасад. Разрез 1-1. Фрагмент орнамента Архитектурно-декоративный вход. Тип 3. Цветочница. Опалубка чаши, армирование чаши. Опора. Спецификация арматуры. Расход материалов Архитектурно-декоративный вход. Тип 3. Скамья СК-1. Фасады 1-1, 2-2. План. Разрезы 1-1, 2-2. Деталь 1. Спецификация Архитектурно-декоративный вход. Тип 3. Светильник. Фасады. Разрез 1-1 - 3-3. Узлы 1 - 8. Спецификация Архитектурно-декоративный вход. Тип 3а. Фасад "А". Генплан Архитектурно-декоративный вход. Тип 3а. Разрезы 1-1 - 4-4 Архитектурно-декоративный вход. Типы 3 и 3а. Освещение. План сети. Разрез I-I. Спецификация Архитектурно-декоративный вход. Тип 4. Фасады "А", "В". Генплан Архитектурно-декоративный вход. Тип 4. Фасад "Б". Фрагмент фасада "А". Разрезы 1-1, 2-2. Позиции 1 - 5 Архитектурно-декоративный вход. Тип 4. Монтажная схема входа. Монтажный план ригеля. Расход материалов Архитектурно-декоративный вход. Тип 4. Каркас тумбы КТ. Разрезы 1-1, 2-2. Узел 1 Архитектурно-декоративный вход. Тип 4. Каркас тумбы. Марка СТ-1. Узлы 1, 2, 3, 4 Архитектурно-декоративный вход. Тип 4. Марки СД-1, КД-1, К-1, К-1а. Спецификация Архитектурно-декоративный вход. Тип 4. Марки СД-2, КД-2. Спецификация Архитектурно-декоративный вход. Тип 4. Монтажные узлы 1, 2, 3, 4, 5, 6, 7 Архитектурно-декоративный вход. Тип 4. Монтажные узлы 8, 9, 10, 11 Архитектурно-декоративный вход. Тип 4. Скамья СК-1. Разрезы 1-1, 2-2. Сечения а-а, б-б, в-в, г-г. Узел 1. Спецификация Архитектурно-декоративный вход. Тип 4. Фрагмент балки с деревянной резьбой. Вид по а-а. Деталь деревянной резьбы Архитектурно-декоративный вход. Тип 4. Шрифт для надписей (дерево) Архитектурно-декоративный вход. Тип 5. Фасад "А". Генплан Архитектурно-декоративный вход. Тип 5. Фасад "А". Фрагмент Архитектурно-декоративный вход. Тип 5. Фасады "Б", "В" Архитектурно-декоративный вход. Тип 5. Монтажная схема. Разрезы 1-1, 2-2, 3-3. Расход материалов Архитектурно-декоративный вход. Тип 5. Плита П-1. Разрезы 1-1, 2-2. Узел 1. Закладная деталь ЗД-1. Спецификация. Расход материалов. Выборка закладных деталей Архитектурно-декоративный вход. Тип 5. Плиты П-2, П-3. Разрезы 1-1 - 4-4. Закладная деталь ЗД-2. Спецификации Архитектурно-декоративный вход. Тип 5. Рисунки рельефов для плит П-1 Архитектурно-декоративный вход. Тип 5. Ригель Р-1. Сечения 1-1, 2-2, 3-3. Монтажные узлы 2, 3, 4 Архитектурно-декоративный вход. Тип 5. Скамьи СК-1, СК-2. Узел 1. Разрезы 1-1 - 4-4. Позиция 3 |
| Разработан: | ЦНИИП градостроительства |
| Утверждён: | 21.07.1971 ЦНИИП градостроительства Госгражданстроя (240) |
























































