Скачать Типовой проект 901-4-81с.84 Альбом IV. Строительные изделия резервуаров емкостью 1500 - 10000 куб. м (из ТП 901-4-82с.84)Дата актуализации: 01.01.2021
|
| Обозначение: | Типовой проект 901-4-81с.84 |
| Обозначение англ: | 901-4-81с.84 |
| Статус: | не определен законодательством |
| Название рус.: | Альбом IV. Строительные изделия резервуаров емкостью 1500 - 10000 куб. м (из ТП 901-4-82с.84) |
| Дата добавления в базу: | 01.09.2013 |
| Дата актуализации: | 01.01.2021 |
| Дата введения: | 25.07.1984 |
| Дата окончания срока действия: | 30.06.2003 |
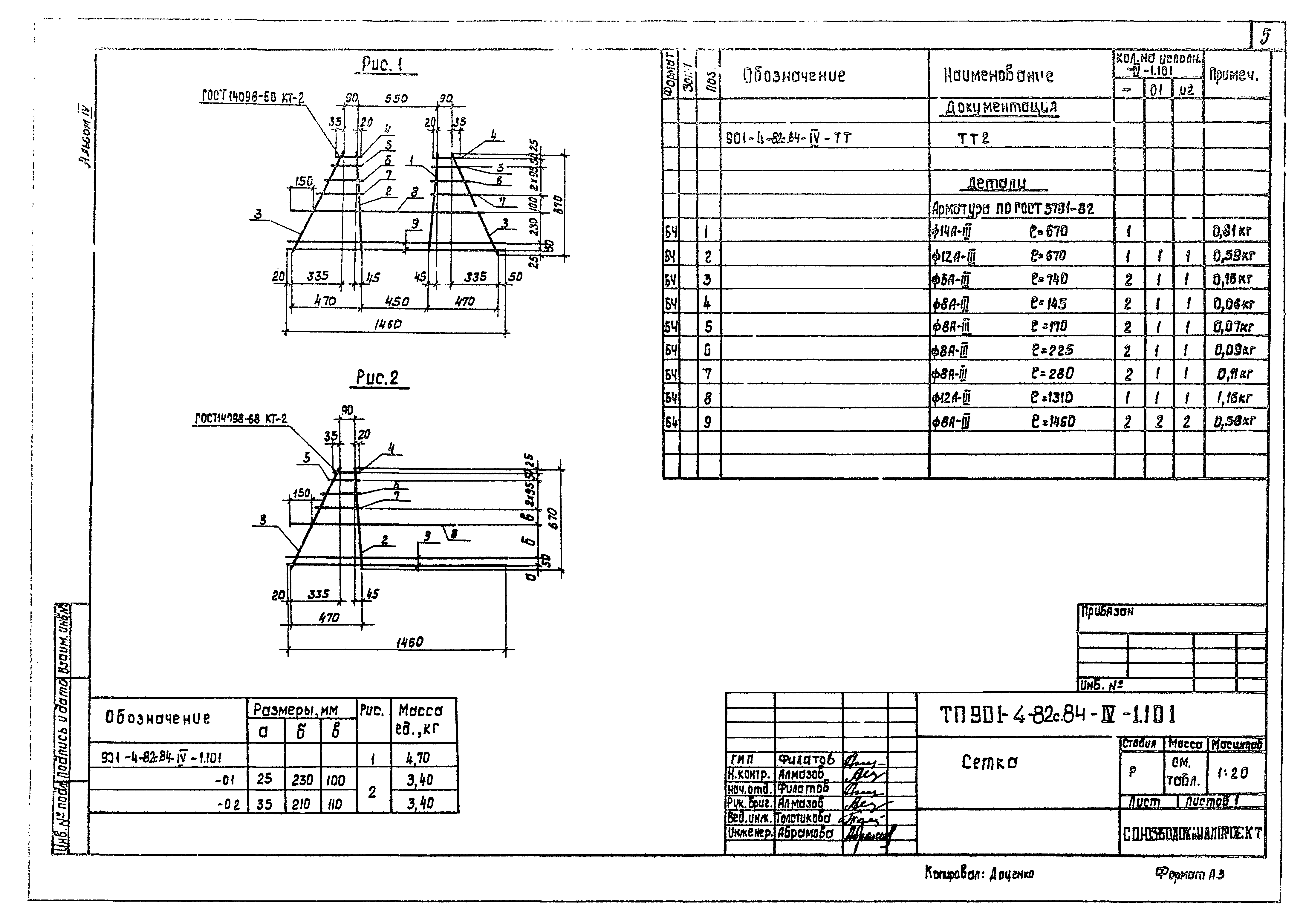
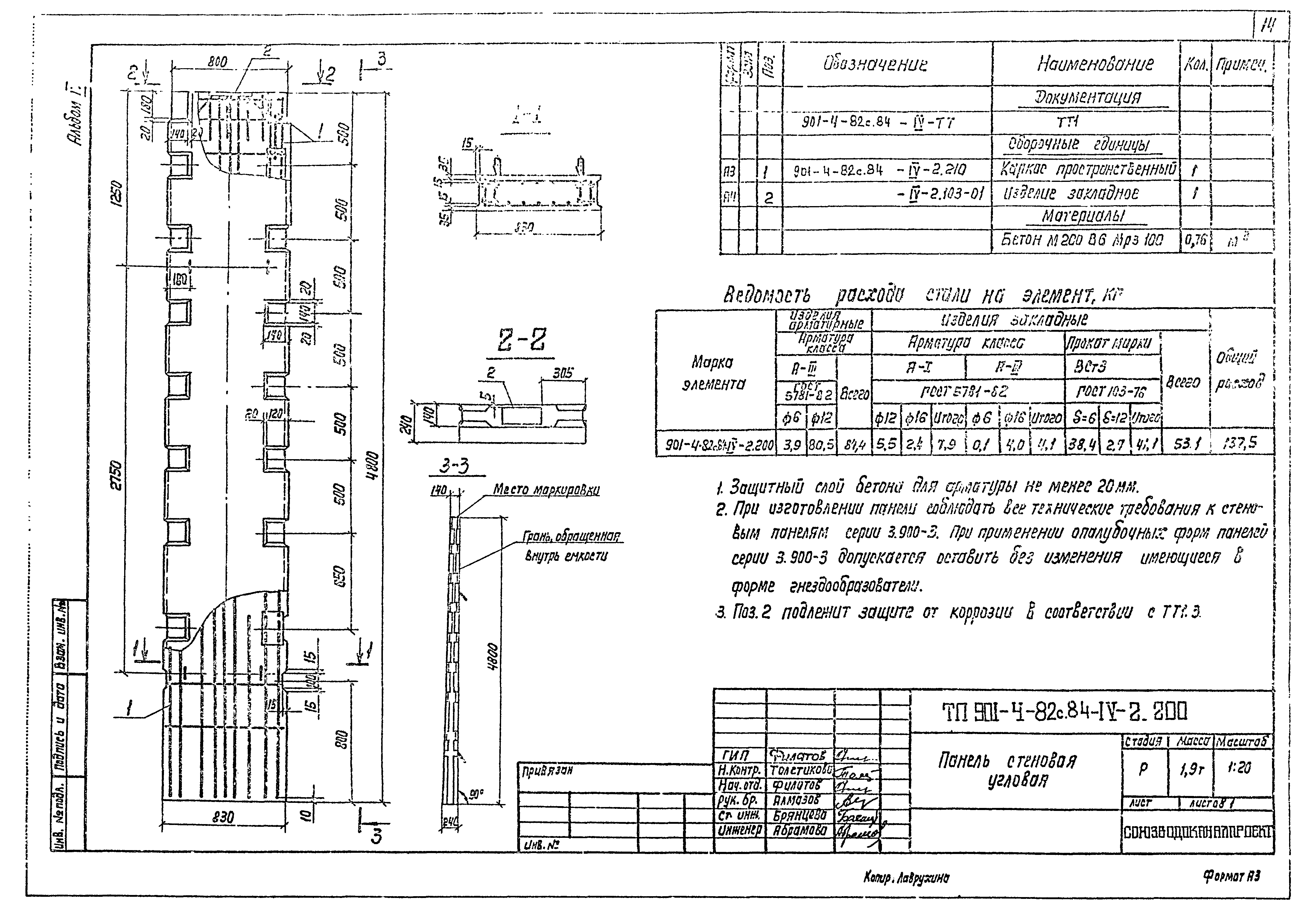
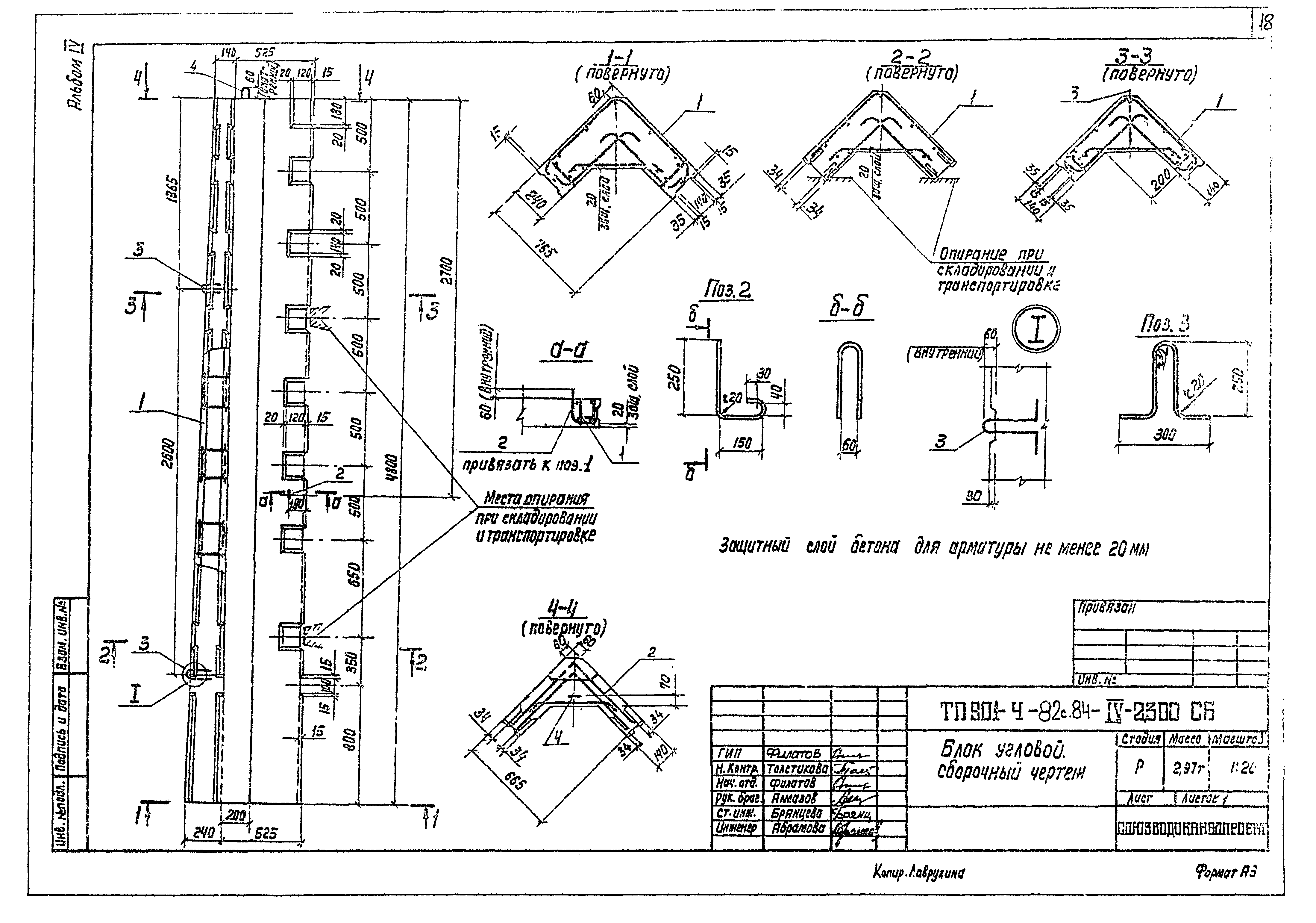
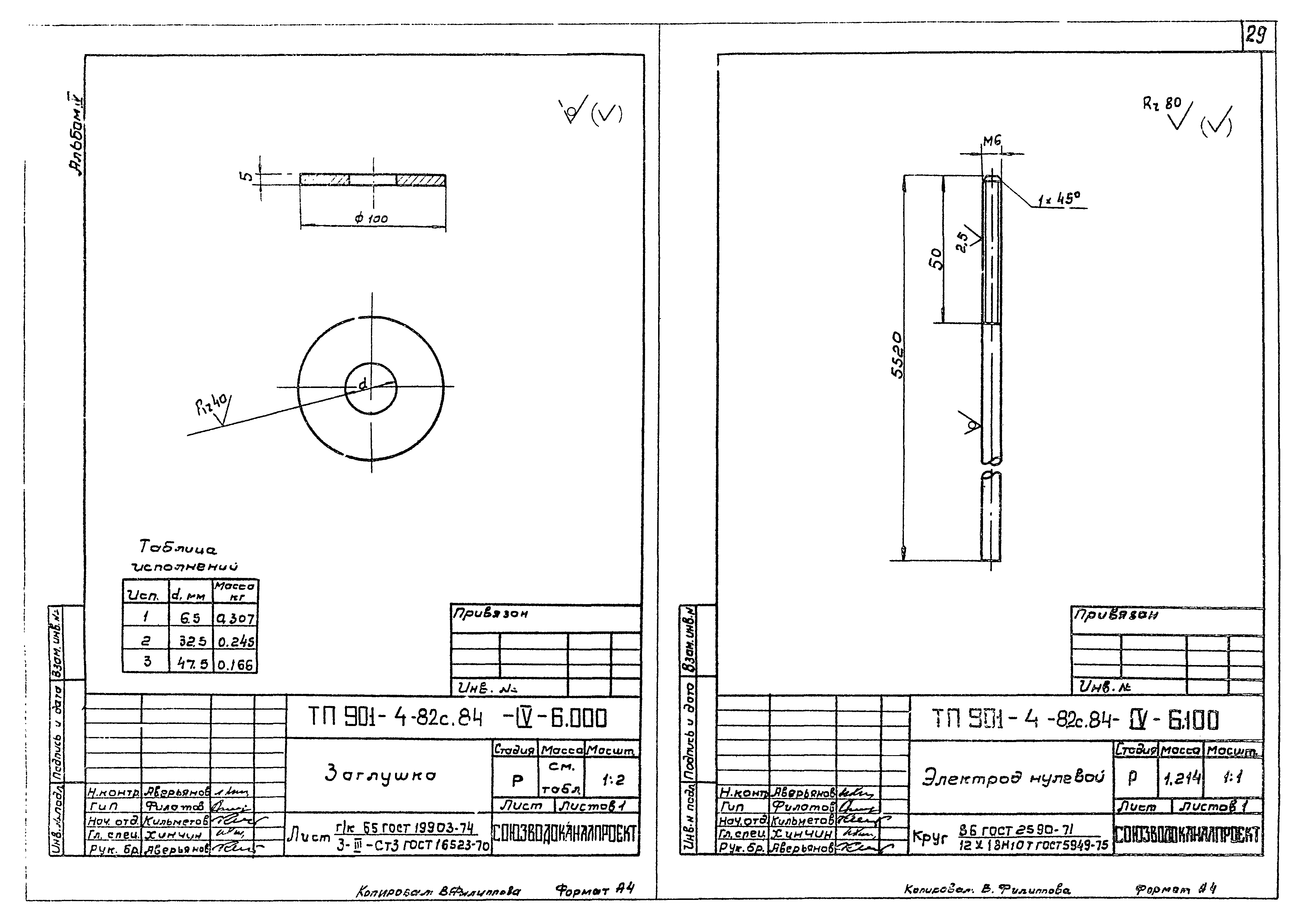
| Оглавление: | 901-4-82с.84-IV-ТТ Технические требования 901-4-82с.84-IV-1.100 Каркас пространственный 901-4-82с.84-IV-1.101 Сетка 901-4-82с.84-IV-1.001 Сетка 901-4-82с.84-IV-1.002 Сетка 901-4-82с.84-IV-1.003 Сетка 901-4-82с.84-IV-1.004 Сетка 901-4-82с.84-IV-1.005 Сетка 901-4-82с.84-IV-1.006 Сетка 901-4-82с.84-IV-2.100 Панель стеновая. Спецификация 901-4-82с.84-IV-2.100СБ Панель стеновая. Сборочный чертеж 901-4-82с.84-IV-2.101 Сетка 901-4-82с.84-IV-2.102 Изделие закладное 901-4-82с.84-IV-2.103 Изделие закладное 901-4-82с.84-IV-2.104 Изделие закладное 901-4-82с.84-IV-2.100ВМС Панель стеновая. Ведомость расхода стали 901-4-82с.84-IV-2.200 Панель стеновая угловая 901-4-82с.84-IV-2.210 Каркас пространственный 901-4-82с.84-IV-2.211 Петля строповочная 901-4-82с.84-IV-2.220 Каркас пространственный 901-4-82с.84-IV-2.221 Сетка 901-4-82с.84-IV-2.300 Блок угловой 901-4-82с.84-IV-2.300СБ Блок угловой. Сборочный чертеж 901-4-82с.84-IV-2.310 Каркас пространственный 901-4-82с.84-IV-2.310СБ Каркас пространственный. Сборочный чертеж 901-4-82с.84-IV-2.311 Каркас 901-4-82с.84-IV-2.312 Сетка 901-4-82с.84-IV-2.313 Изделие закладное 901-4-82с.84-IV-2.400 Панель приемной камеры 901-4-82с.84-IV-2.401 Сетка 901-4-82с.84-IV-3.100 Плита покрытия 901-4-82с.84-IV-3.100СБ Плита покрытия. Сборочный чертеж 901-4-82с.84-IV-3.101 Изделие закладное 901-4-82с.84-IV-3.102 Изделие закладное 901-4-82с.84-IV-4.000 Сетка 901-4-82с.84-IV-5.000 Лестница съемная 901-4-82с.84-IV-6.000 Заглушка 901-4-82с.84-IV-6.100 Электрод нулевой 901-4-82с.84-IV-6.200 Бобышка 901-4-82с.84-IV-6.300 Фланец 901-4-82с.84-IV-7.000 Деталь отводящего трубопровода 901-4-82с.84-IV-7.100 Деталь подводящего трубопровода 901-4-82с.84-IV-7.200 Деталь переливного трубопровода 901-4-82с.84-IV-7.300 Деталь сливного трубопровода 901-4-82с.84-IV-8.000 Изделие закладное |
| Разработан: | Союзводоканалпроект ЦНИИпромзданий НИИЖБ |
| Утверждён: | 30.06.1982 Госстрой СССР (Государственный комитет Совета Министров СССР по делам строительства) (USSR Gosstroy 53) |

































