Скачать Типовой проект 901-3-234.87 Альбом II. Контактные камеры. Архитектурные решения. Конструкции железобетонные и металлические. Технологическая, санитарно-техническая, электротехническая части и автоматизацияДата актуализации: 01.01.2021
|
| Обозначение: | Типовой проект 901-3-234.87 |
| Обозначение англ: | 901-3-234.87 |
| Статус: | не определен законодательством |
| Название рус.: | Альбом II. Контактные камеры. Архитектурные решения. Конструкции железобетонные и металлические. Технологическая, санитарно-техническая, электротехническая части и автоматизация |
| Дата добавления в базу: | 01.09.2013 |
| Дата актуализации: | 01.01.2021 |
| Дата введения: | 13.02.1985 |
| Дата окончания срока действия: | 30.06.2003 |
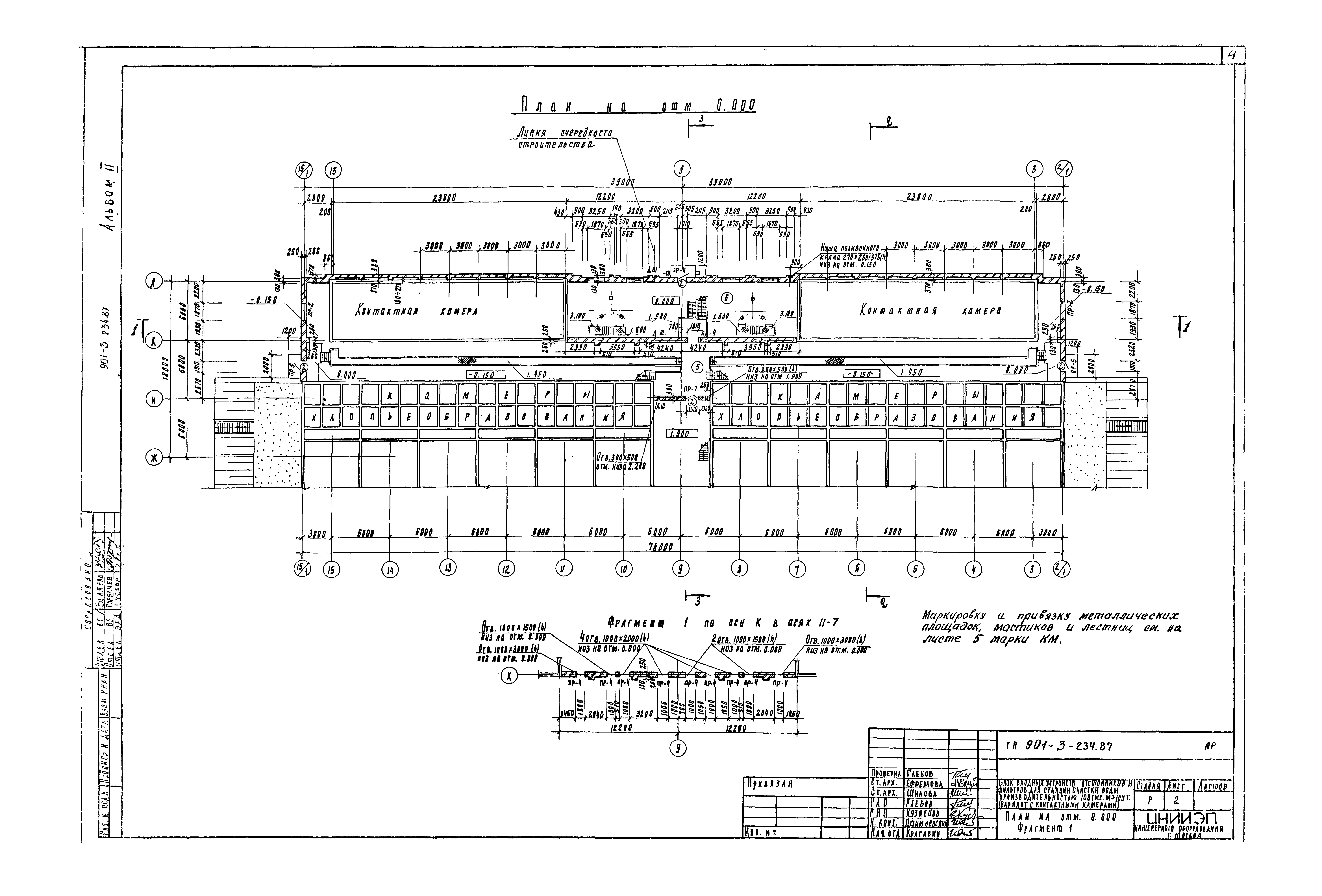
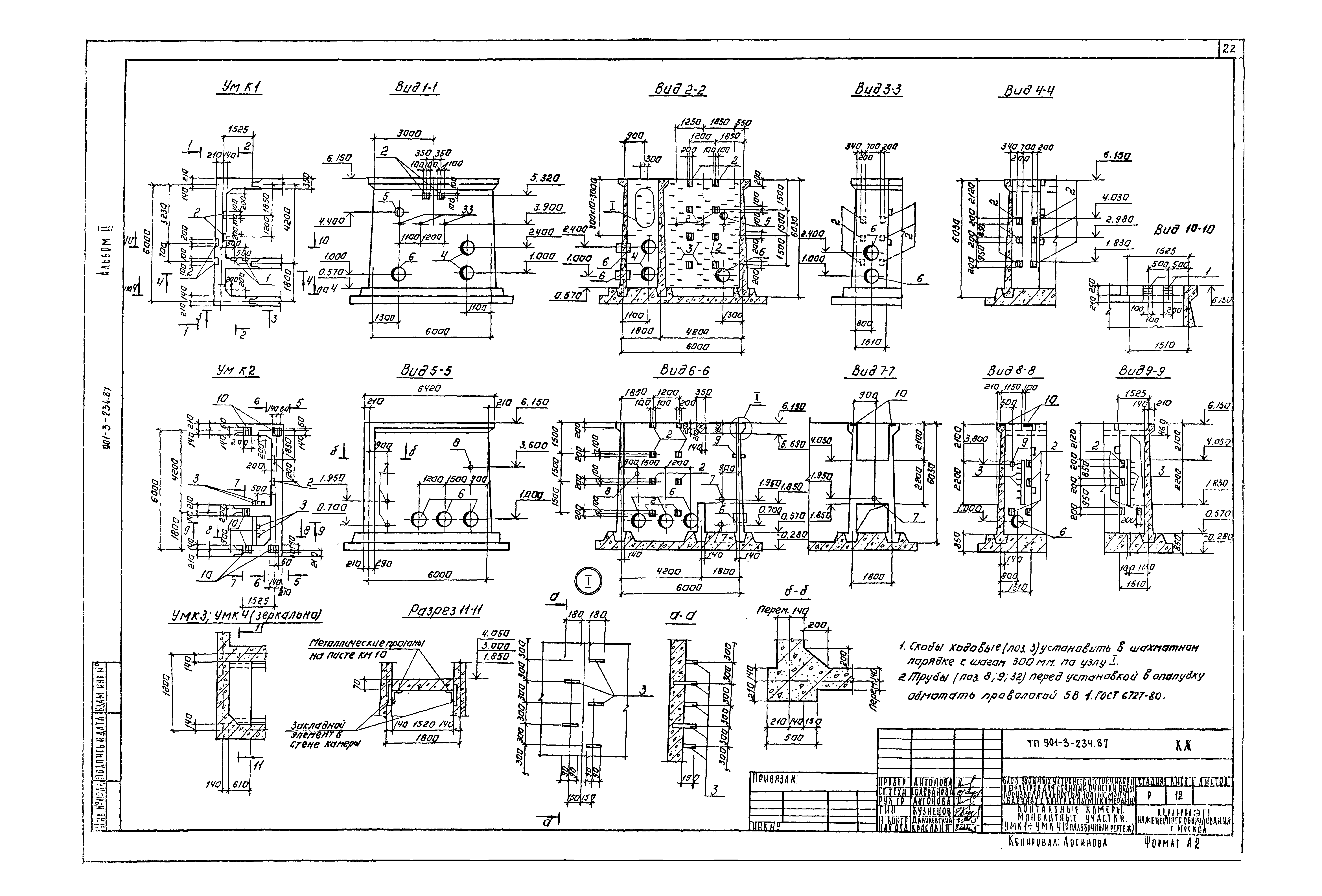
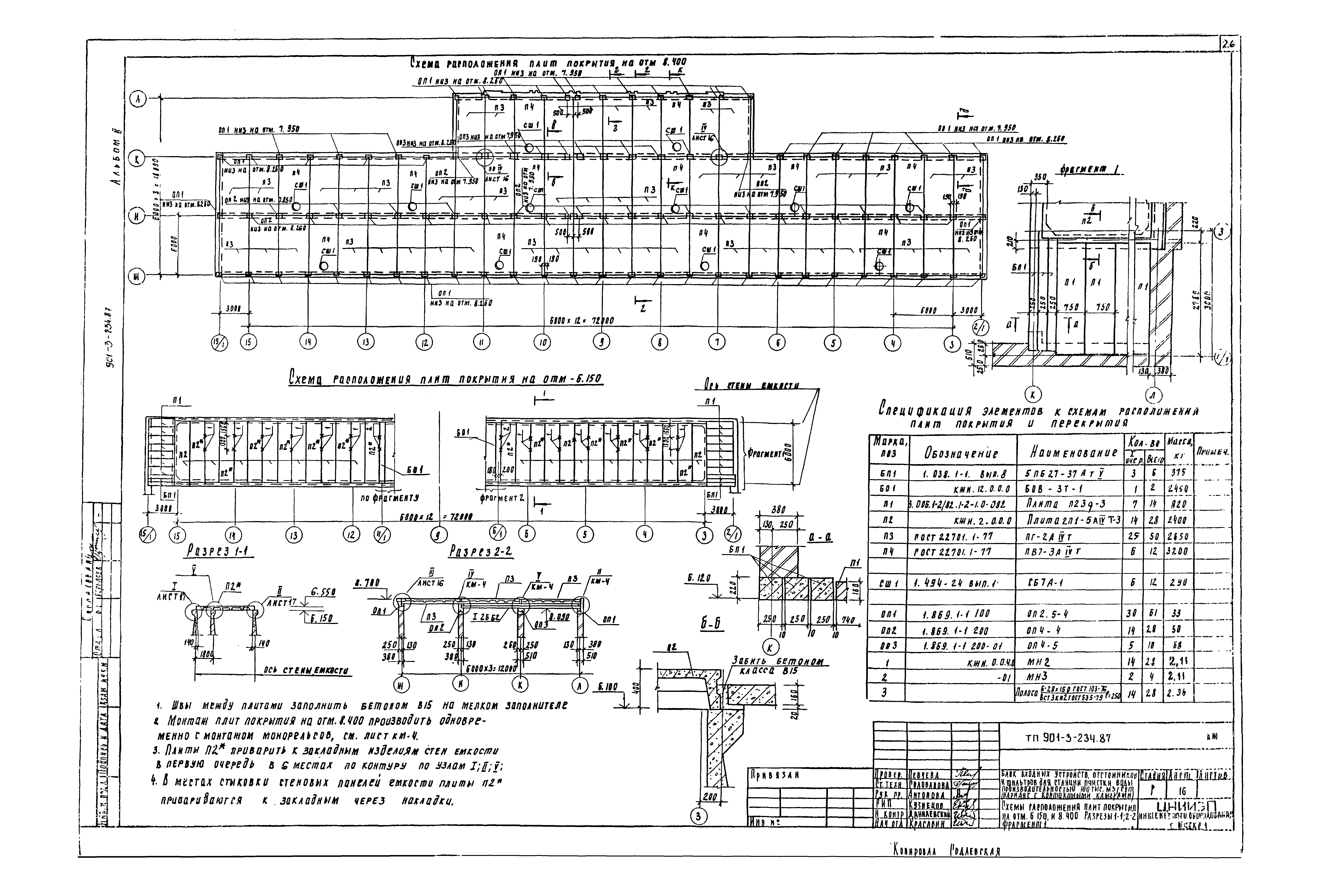
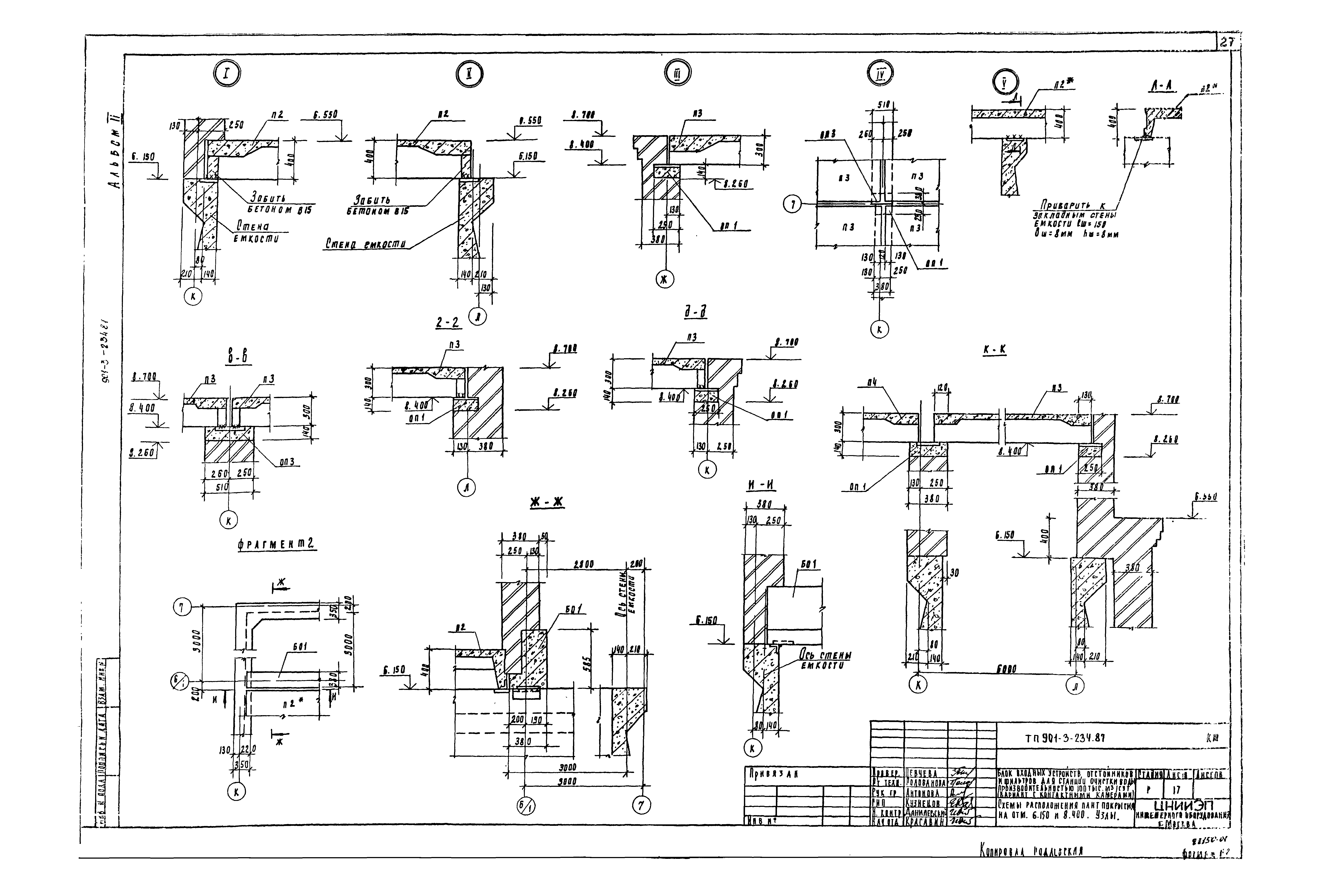
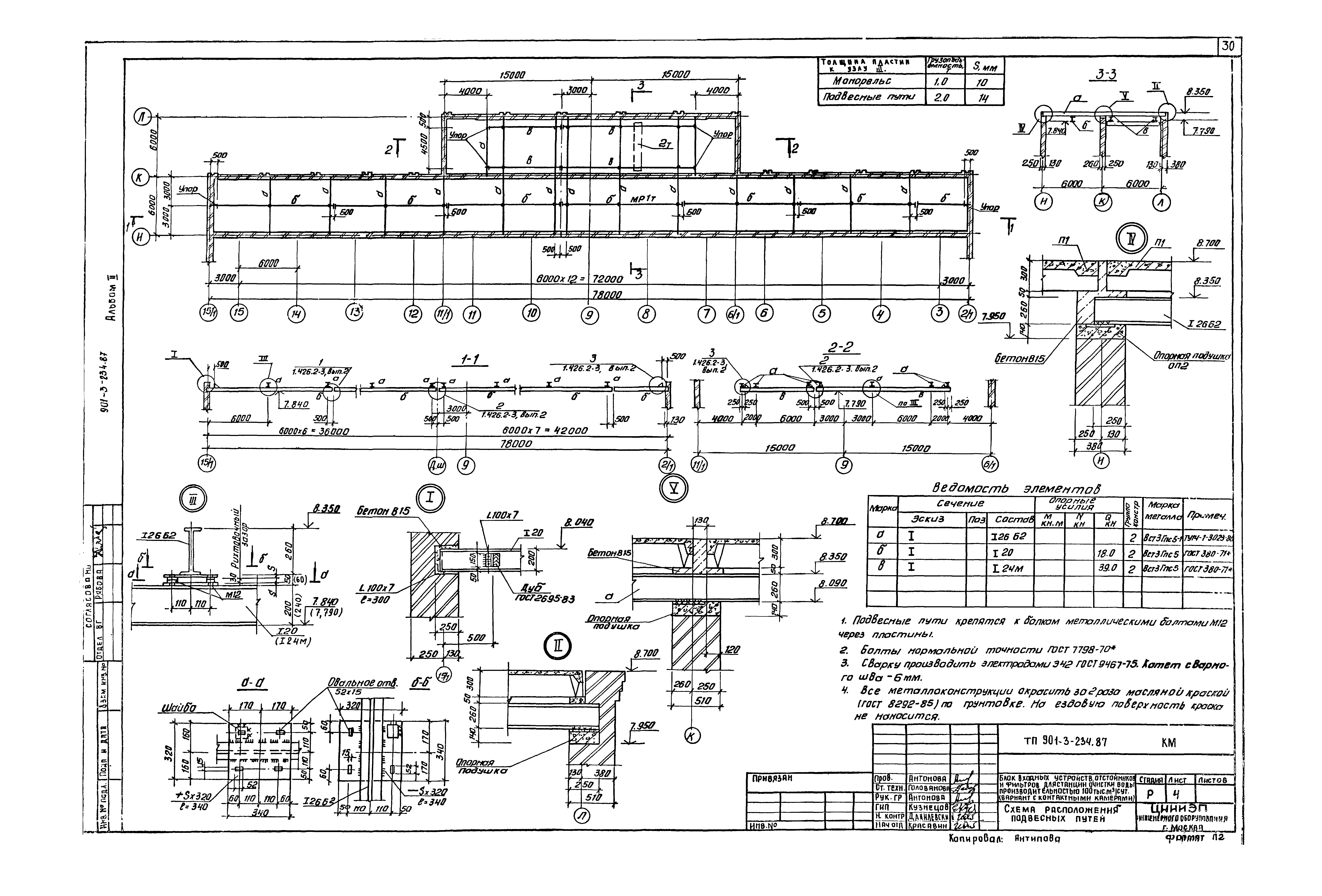
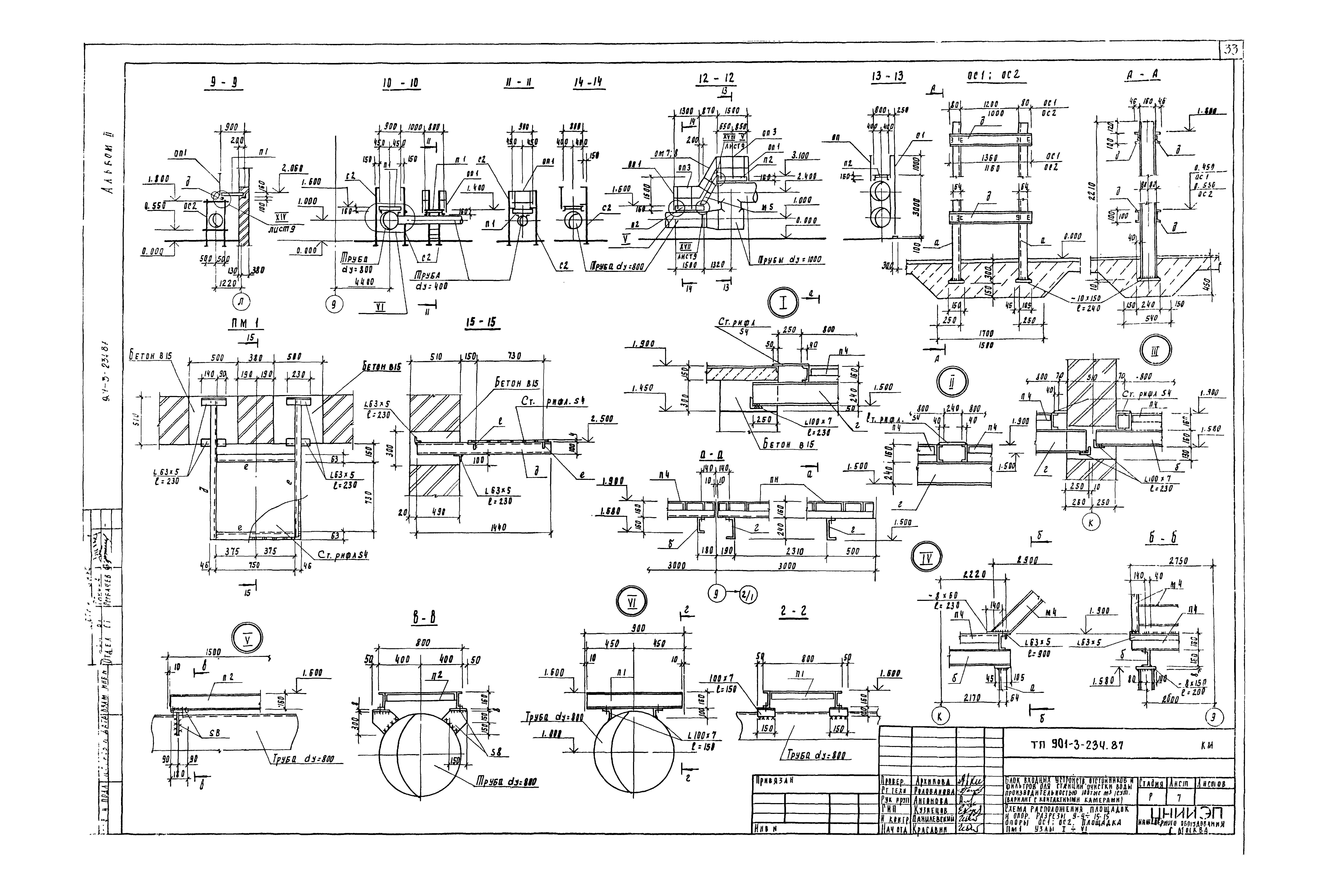
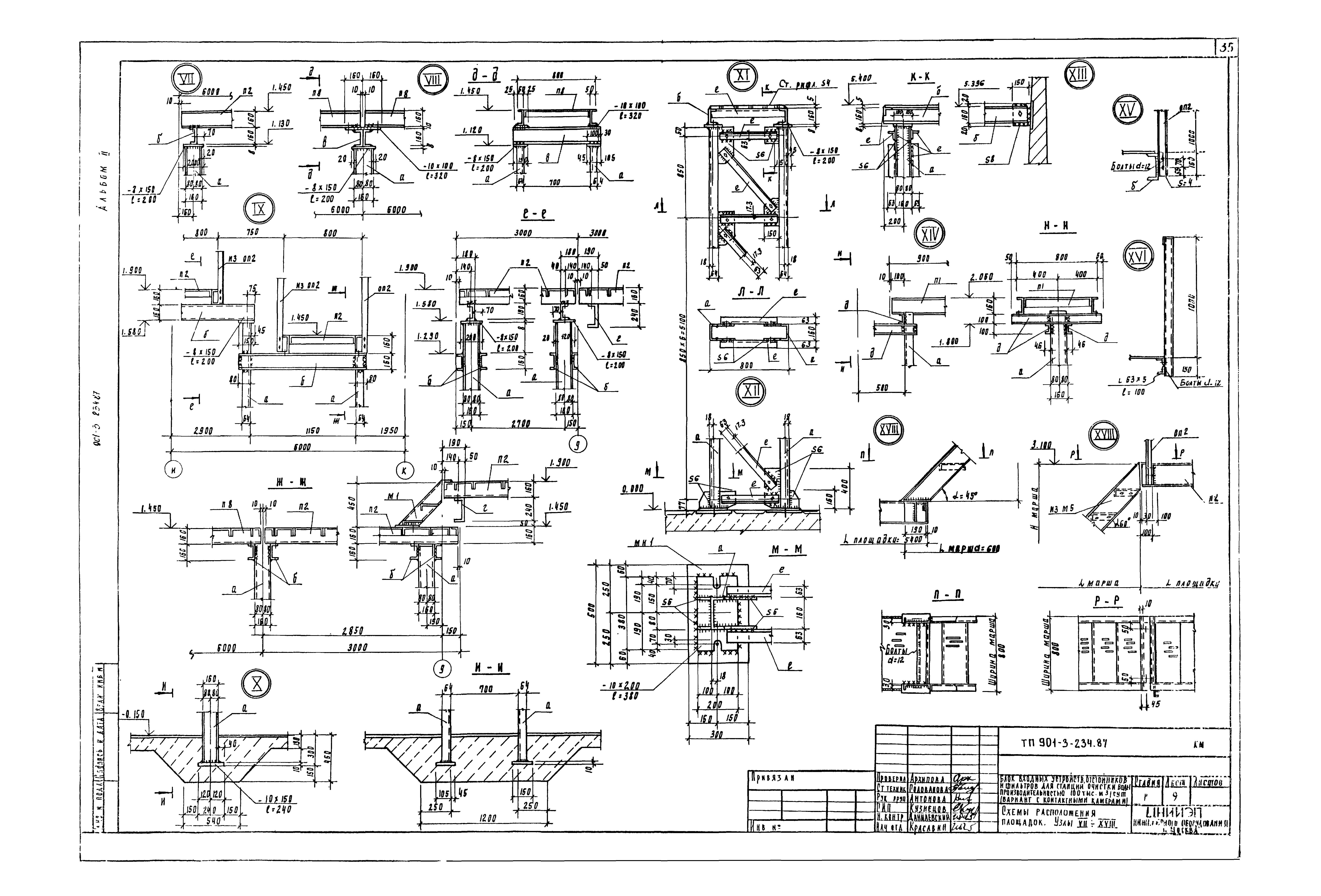
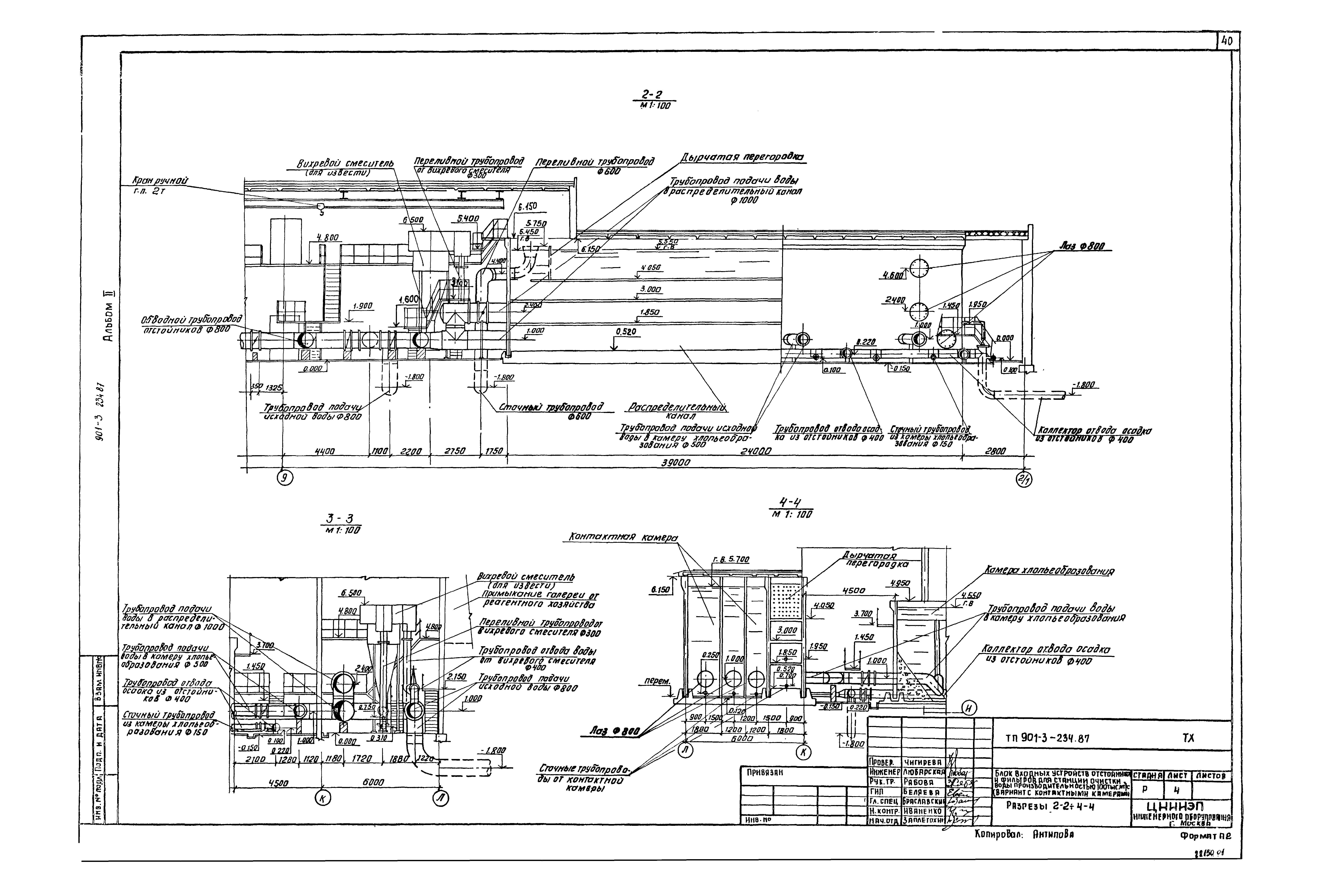
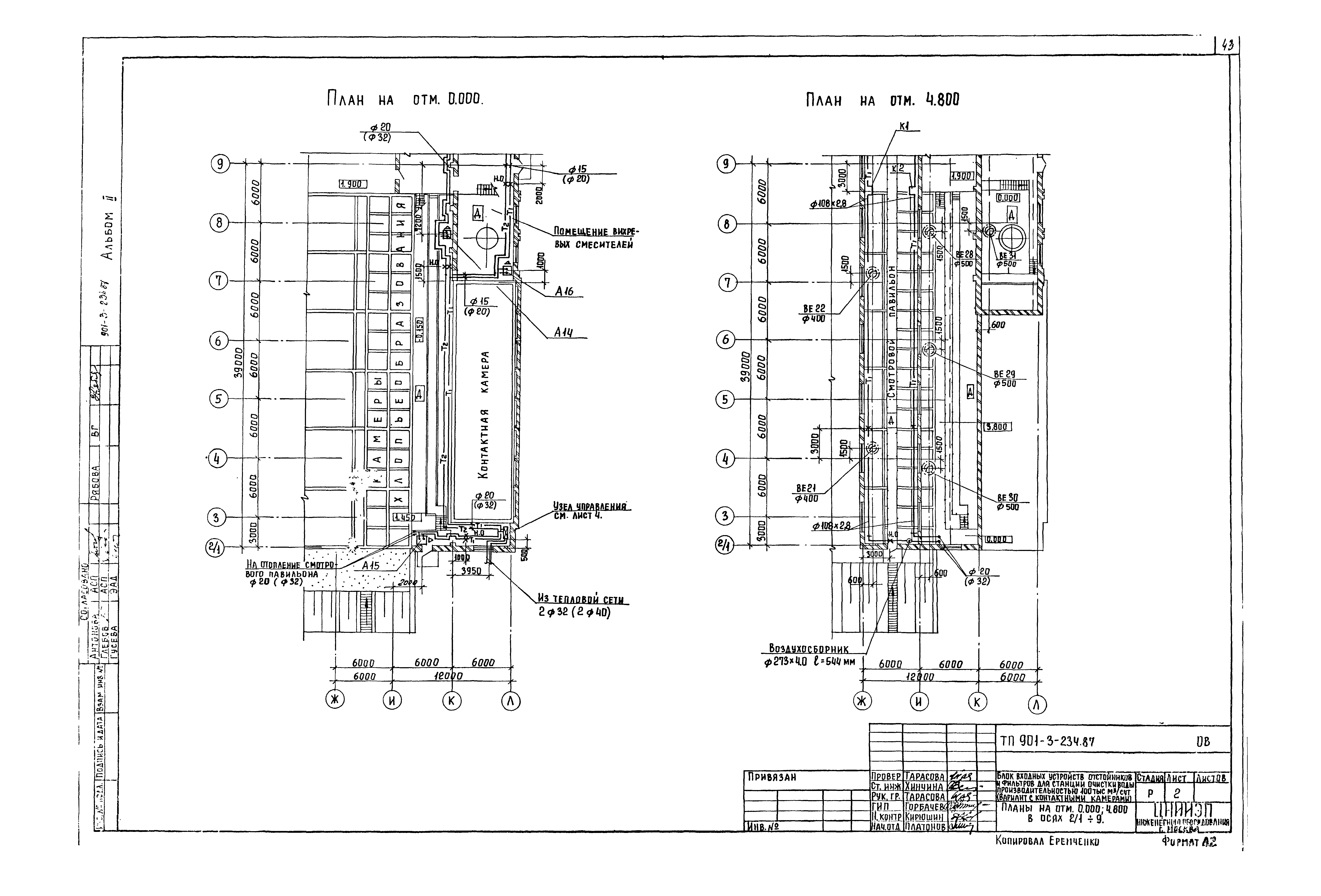
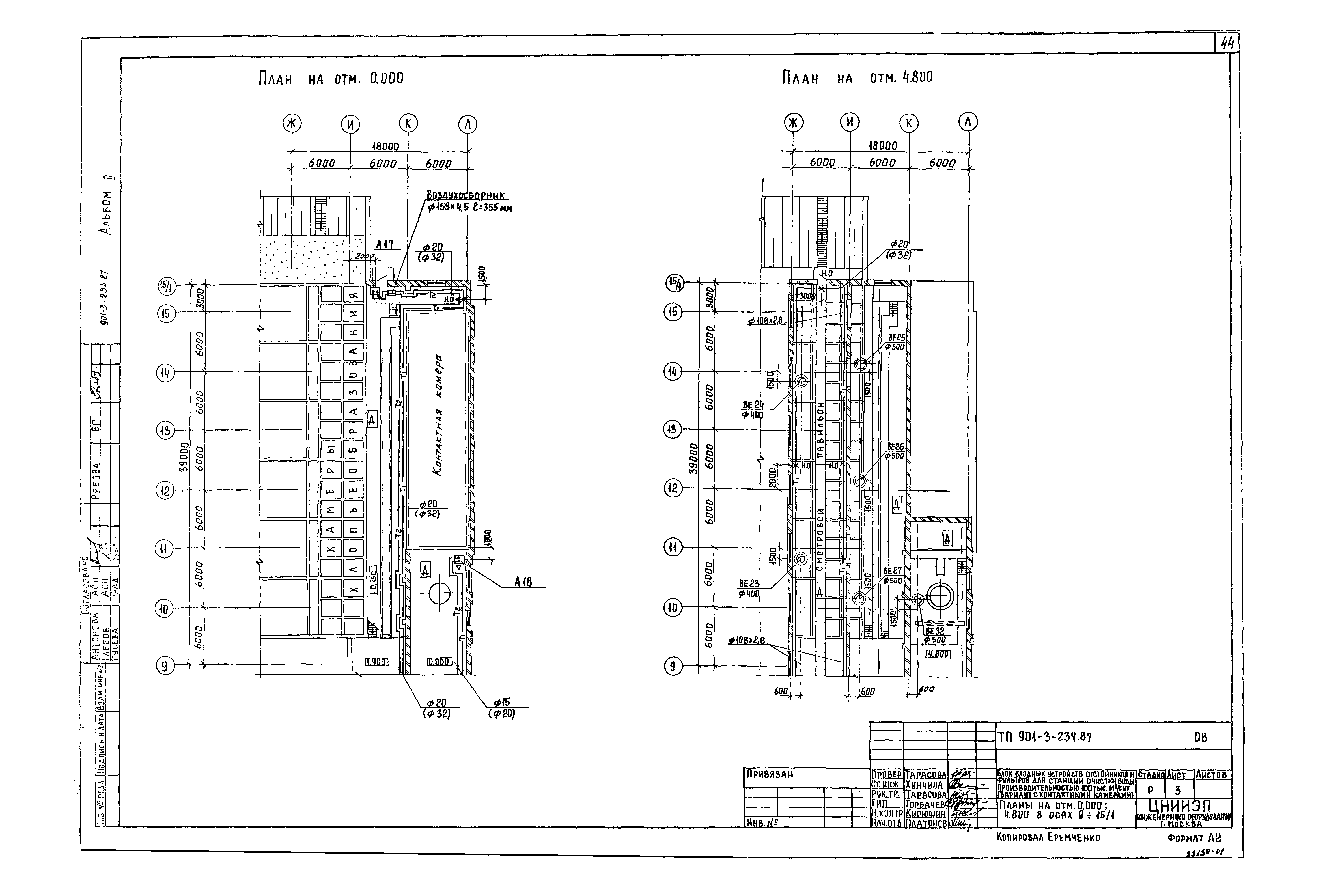
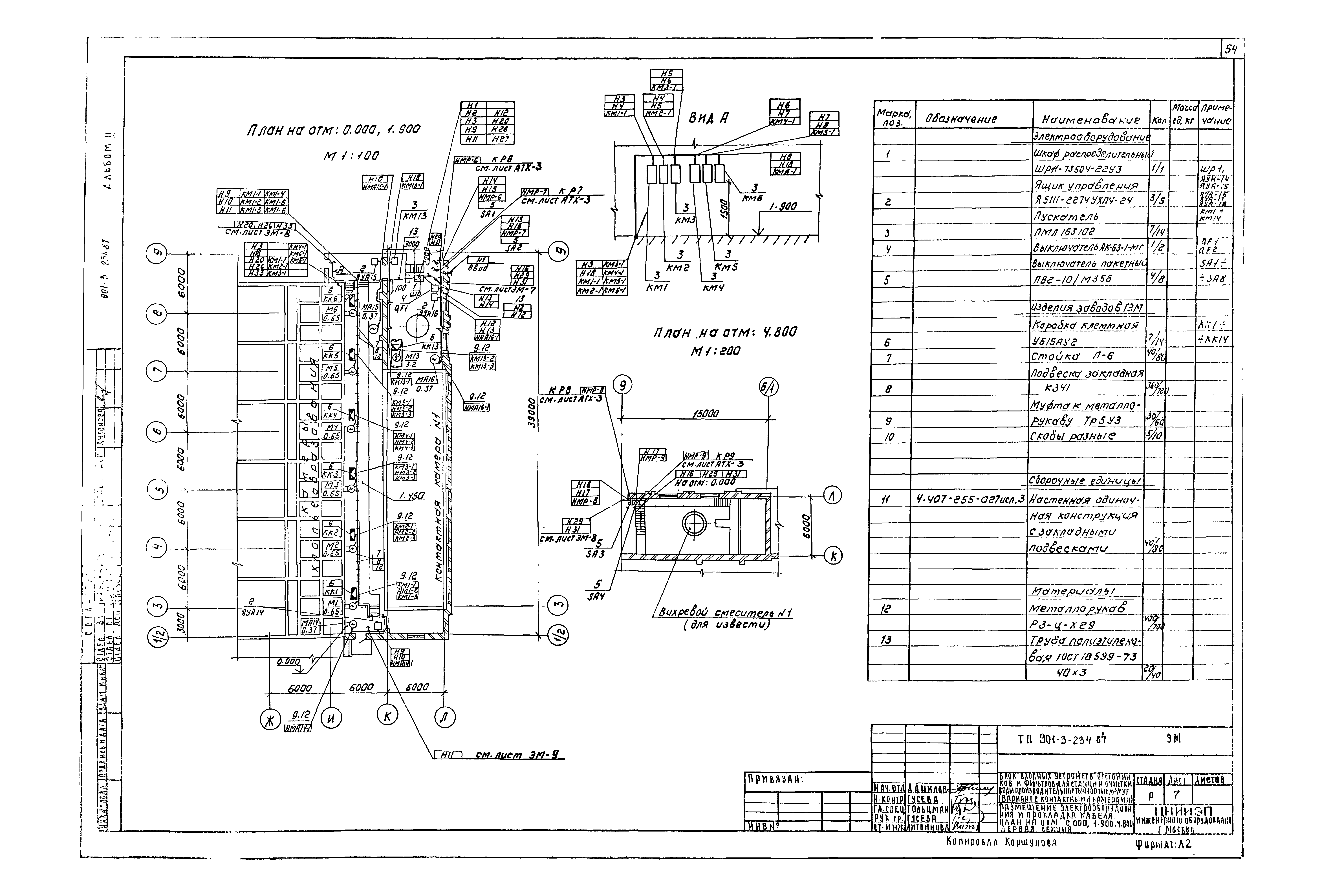
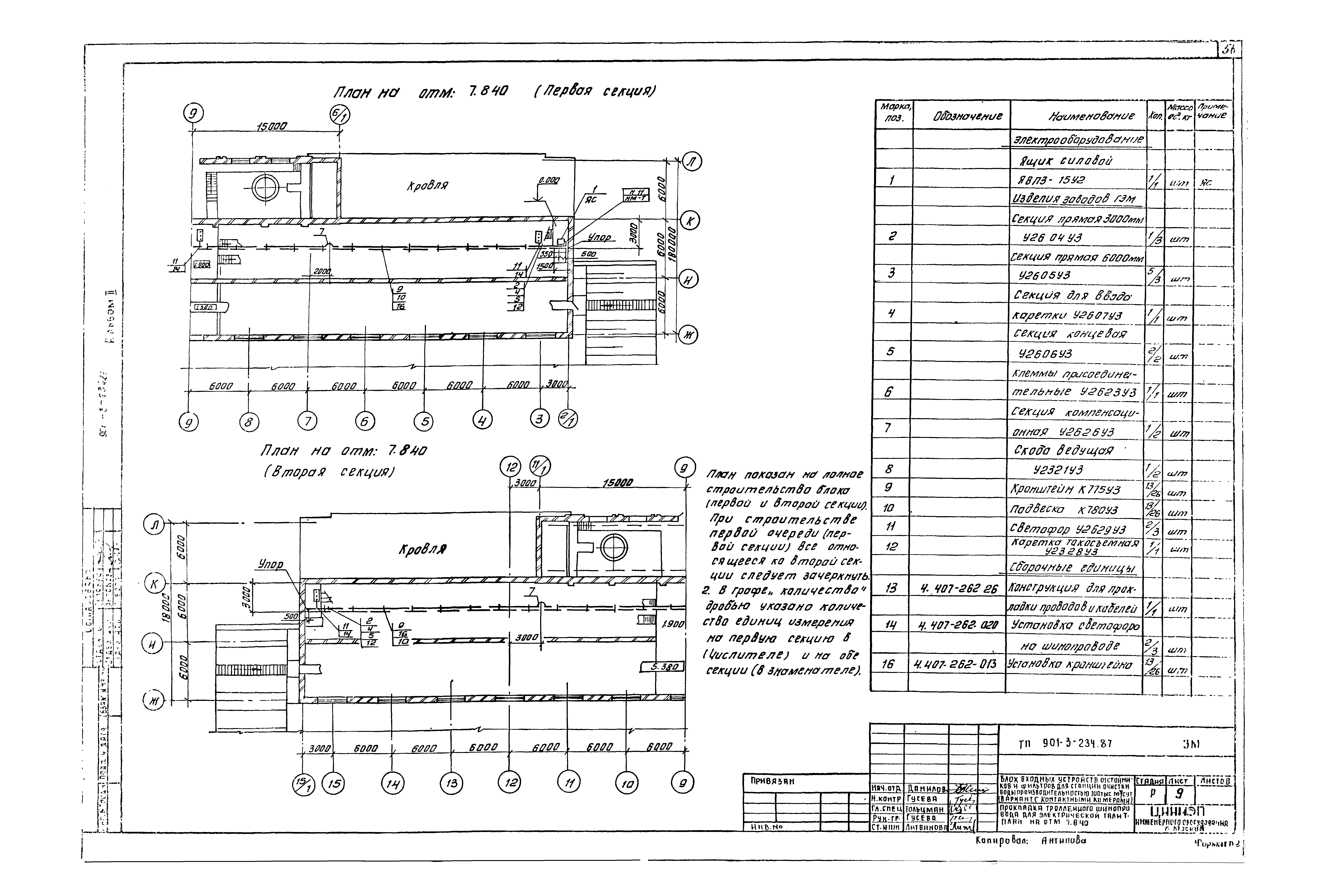
| Оглавление: | Содержание Архитектурные решения Общие данные План на отм. 0.000. Фрагмент 1 План на отм. 4.800 Фасад 15/1 - 2/1; 2/1 - 15-1. Разрез 2-2. Схемы заполнения оконных проемов Фасад Ж - Л; Л - Ж. Разрезы 3-3; 4-4. Узлы Ведомость отделки помещений. Ведомости перемычек, проемов, ворот и дверей. Спецификации перемычек и проемов Планы кровли и полов. Экспликация полов Фрагменты планов I и II очередей строительства Конструкции железобетонные Общие данные Схема расположения фундаментов, лотков, приямков и опор. Фрагмент 1. Узлы I; II Схема расположения фундаментов, лотков, приямков и опор. Виды 1-1 - 5-5 Схема расположения фундаментов, лотков, приямков и опор. Вид 6-6. Сечения 7-7 - 14-14 Схема расположения фундаментов, лотков, приямков и опор. Виды 15-15 - 17-17. Сечения 18-18 - 23-23 Схема расположения фундаментов, лотков, приямков и опор. Сечения 24-24 - 30-30. Фундамент Фм-1. Опоры Контактные камеры. Схема расположения элементов. Разрезы 1-1 - 4-4 Контактные камеры. Виды 5-5 - 8-8. Разрезы 9-9; 10-10 Контактные камеры. Разрезы 11-11; 12-12. Узлы I - VI Контактные камеры. Днище. Опалубочный чертеж. Спецификация Контактные камеры. Днище. Схема раскладки верхних и нижних сеток, каркасов Контактные камеры. Монолитные участки УМК1 - УМК4 (Опалубочный чертеж) Контактные камеры. УМК1 - УМК2 (Армирование) Контактные камеры. УМК1 - УМК4 (Армирование) Контактные камеры. Ведомость деталей. Спецификация элементов Схемы расположения плит покрытия на отм. 6.150 и 8.400. Разрезы 1-1; 2-2. Фрагмент 1 Схемы расположения плит покрытия на отм. 6.150 и 8.400. Узлы Конструкции металлические Общие данные. Техническая спецификация стали Общие данные. Ведомость металлоконструкций по видам профилей Схема расположения подвесных путей Схема расположения площадок на отм. 1.400 - 3.100 и опор Схема расположения площадок. Размеры 1-1 - 8-8 Схема расположения площадок и опор. Разрезы 9-9 - 15-15. Опоры ОС-1; ОС-2. Площадка ПМ1. Узлы I - VI Схема расположения площадок на отм. 4.800; 5.400; 6.000. Разрезы 16-16 - 23-23. Узел XIX Схемы расположения площадок. Узлы VII - XVIII Контактные камеры. Схемы расположения каркаса перегородок контактной камеры Технологические решения Общие данные Планы на отм. 3.700 и 6.150. I секция Планы на отм. 3.700 и 6.150. II секция. Разрез 1-1 Разрезы 2-2 - 4-4 Схемы В7; К-3; К-5 Отопление и вентиляция Общие данные Планы на отм. 0.000 и 4.930 в осях 1 - 9 Планы на отм. 0.000 и 4.930 в осях 9 - 17 Узел управления системы отопления. Схемы вентиляции ВЕ 21 - 32 Прилагаемые документы Тепловая изоляция Электротехническая часть Общие данные Схема электрическая принципиальная распределительной сети 380/220 В Схема электрическая принципиальная управления отопительными аппаратами МА14 - МА18. Схема подключения электрооборудования. Ящик ЯУА14 - ЯУА18 Схема подключения электрооборудования. Пускатели КМ1 - КМ14. Сводка кабелей и проводов, учтенных кабельным журналом Кабельный журнал. Первая секция Кабельный журнал. Вторая секция Размещение электрооборудования и прокладка кабеля. План на отм. 0.000; 1.900; 4.800. Первая секция Размещение электрооборудования и прокладка кабеля. План на отм. 0.000; 1.900; 4.800. Вторая секция Прокладка троллейного шинопровода для электрической тали Т. План на отм. 7.840 Автоматизация и технологический контроль Общие данные. Схема автоматизации Схема внешних проводок Размещение приборов и устройств технологического контроля. План на отм. 0.000; 1.900; 4.800 Электрическое освещение Общие данные Электрическое освещение. План на отм. 0.000 Электрическое освещение. План на отм. 4.800 |
| Разработан: | ЦНИИЭП инженерного оборудования |
| Утверждён: | 13.02.1985 Госгражданстрой (Gosgrazhdanstroy 43) |





























































