Скачать Промежуточно-угловые железобетонные свободно-стоящие опоры ВЛ 220 - 330 кВ из стоек диаметром 800 мм

Дата актуализации: 01.01.2021

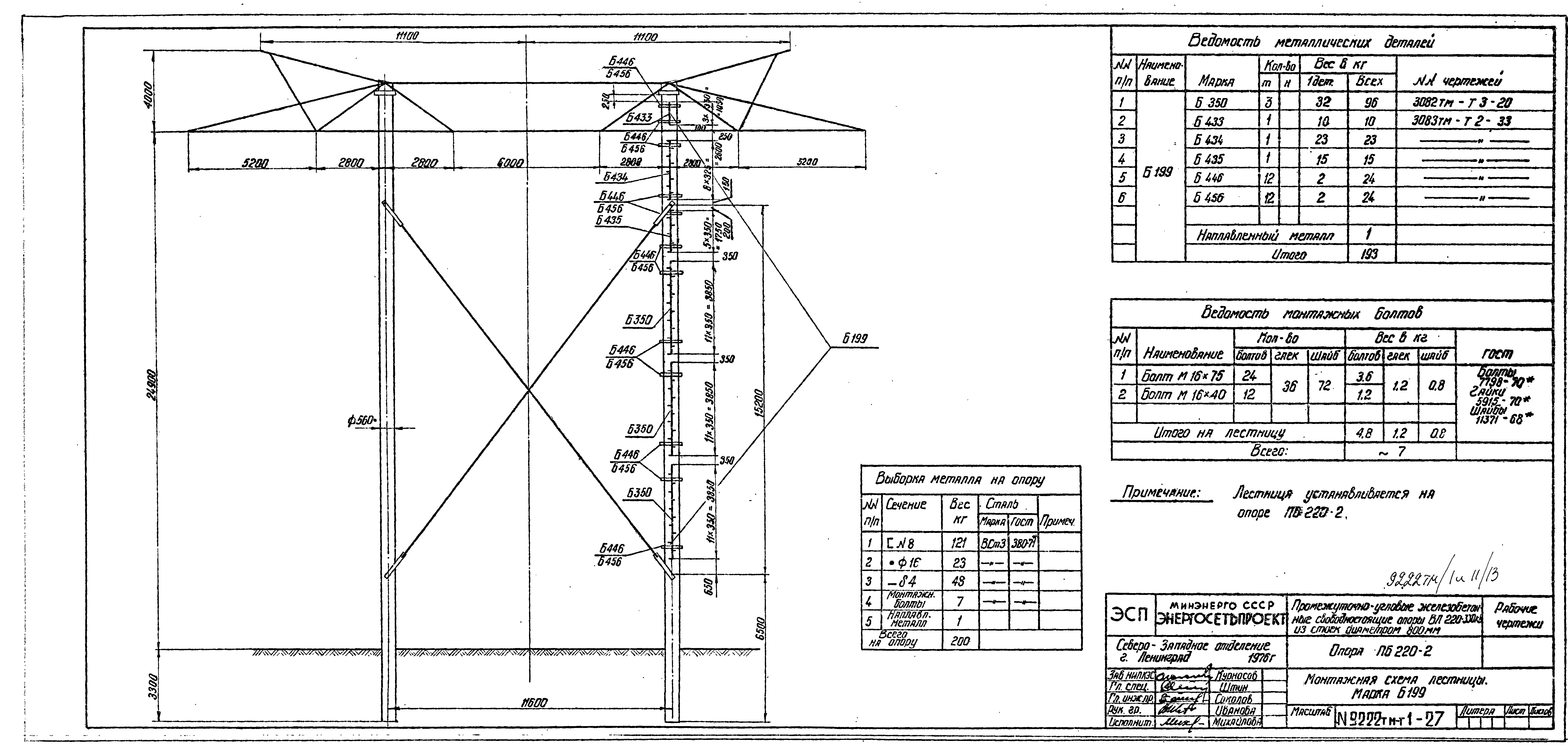
Промежуточно-угловые железобетонные свободно-стоящие опоры ВЛ 220 - 330 кВ из стоек диаметром 800 мм

Статус:не действует
Название рус.:Промежуточно-угловые железобетонные свободно-стоящие опоры ВЛ 220 - 330 кВ из стоек диаметром 800 мм
Дата добавления в базу:01.09.2013
Дата актуализации:01.01.2021
Дата окончания срока действия:11.05.1985
Разработан: Северо-западное отделение института Энергосетьпроект
Утверждён: Энергосетьпроект (Energosetproject )