Скачать Типовой проект производства работ на строительство средней общеобразовательной школы на 33 класса (1251 - 1296 учащихся) в конструкциях серии 1.090.1-1

Дата актуализации: 01.01.2021

Типовой проект производства работ на строительство средней общеобразовательной школы на 33 класса (1251 - 1296 учащихся) в конструкциях серии 1.090.1-1

Статус:не действует
Название рус.:Типовой проект производства работ на строительство средней общеобразовательной школы на 33 класса (1251 - 1296 учащихся) в конструкциях серии 1.090.1-1
Дата добавления в базу:01.09.2013
Дата актуализации:01.01.2021
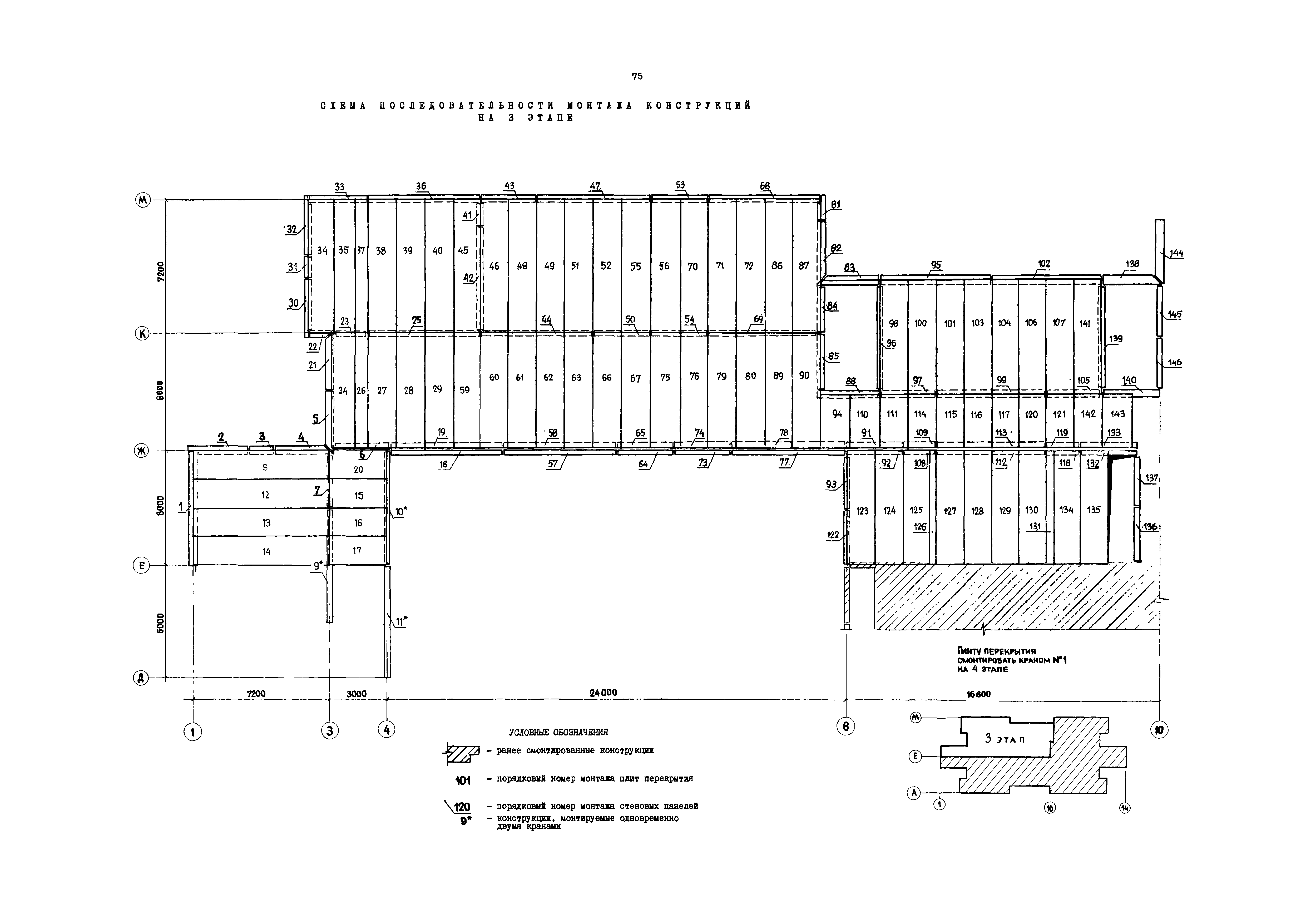
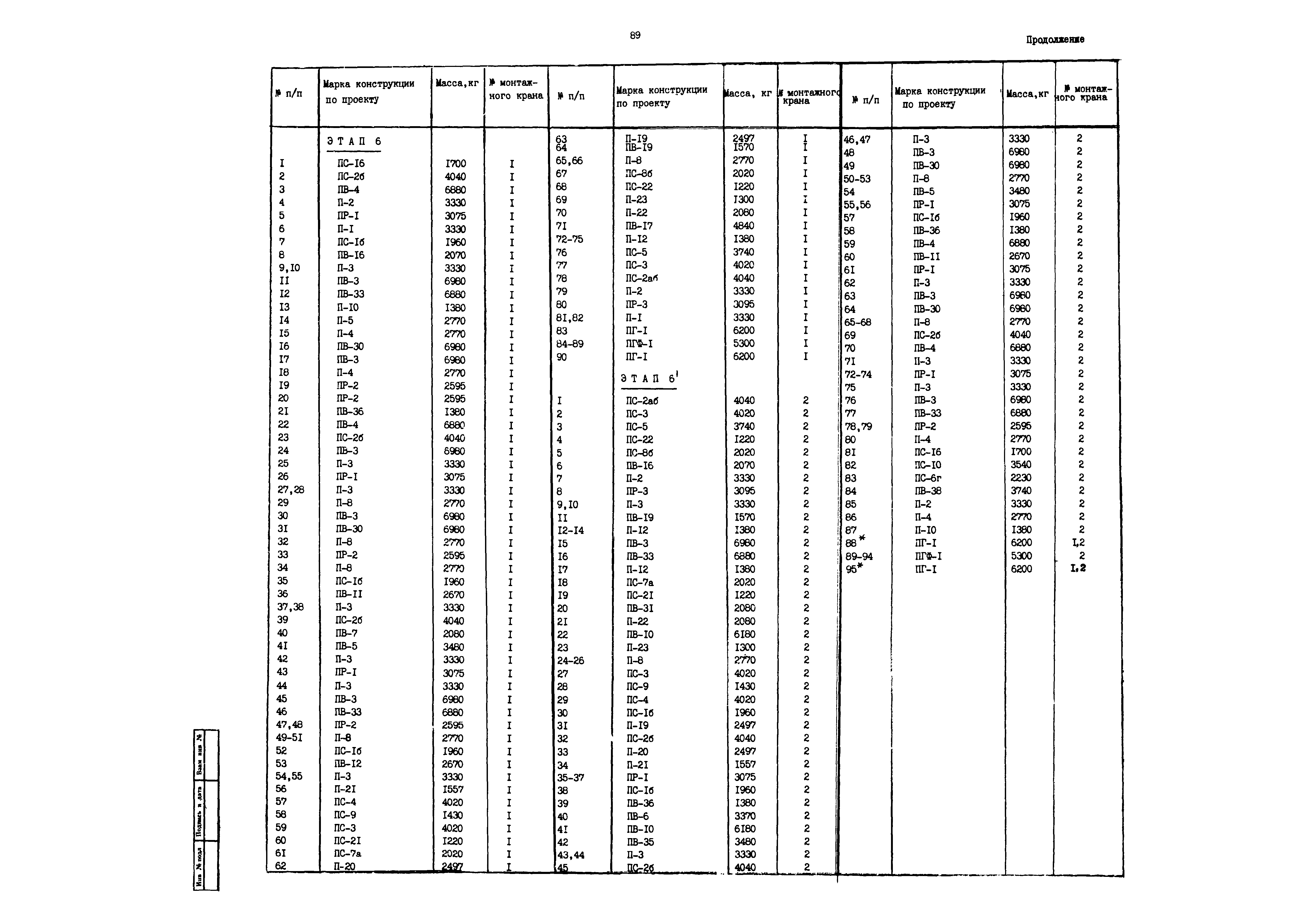
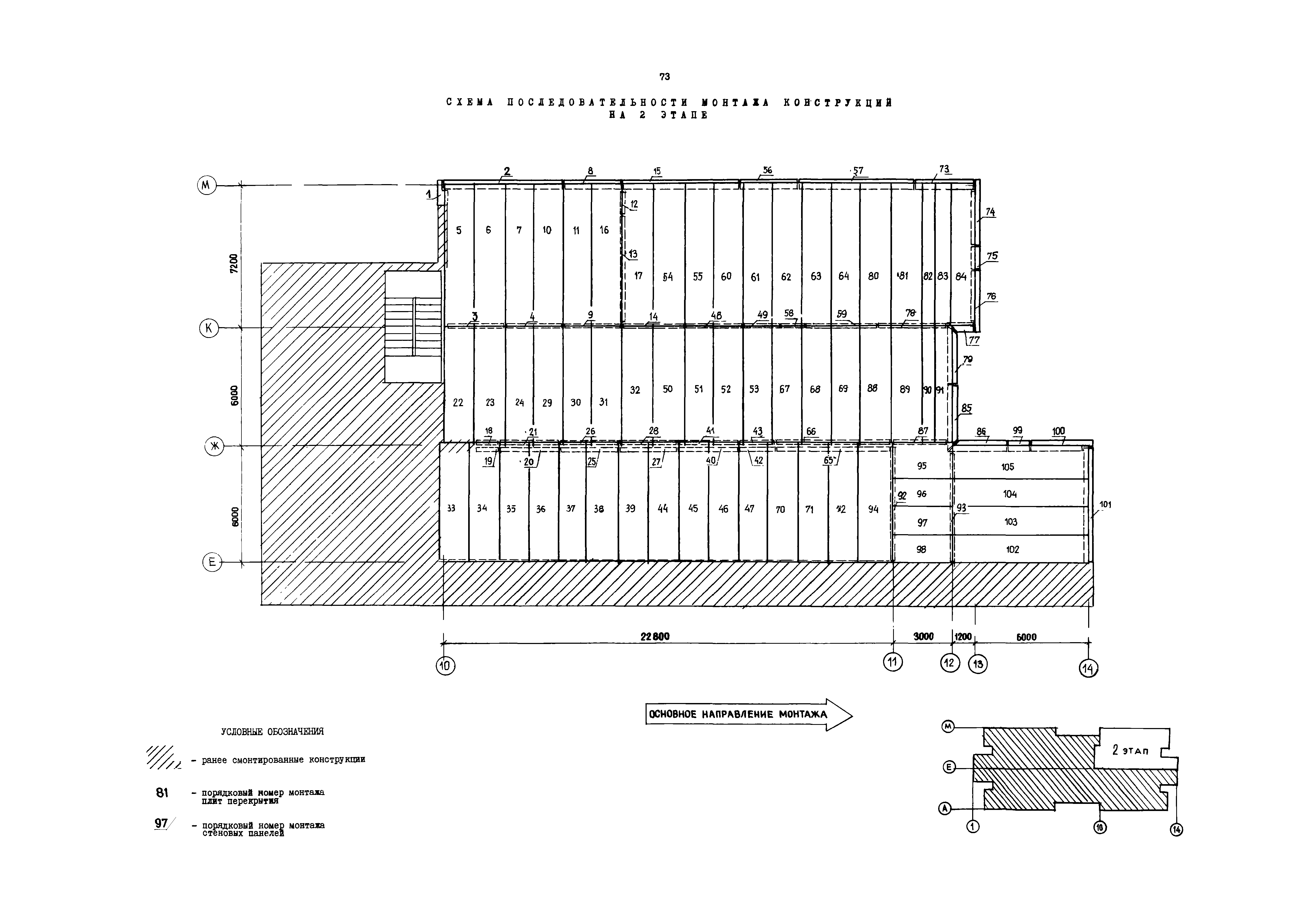
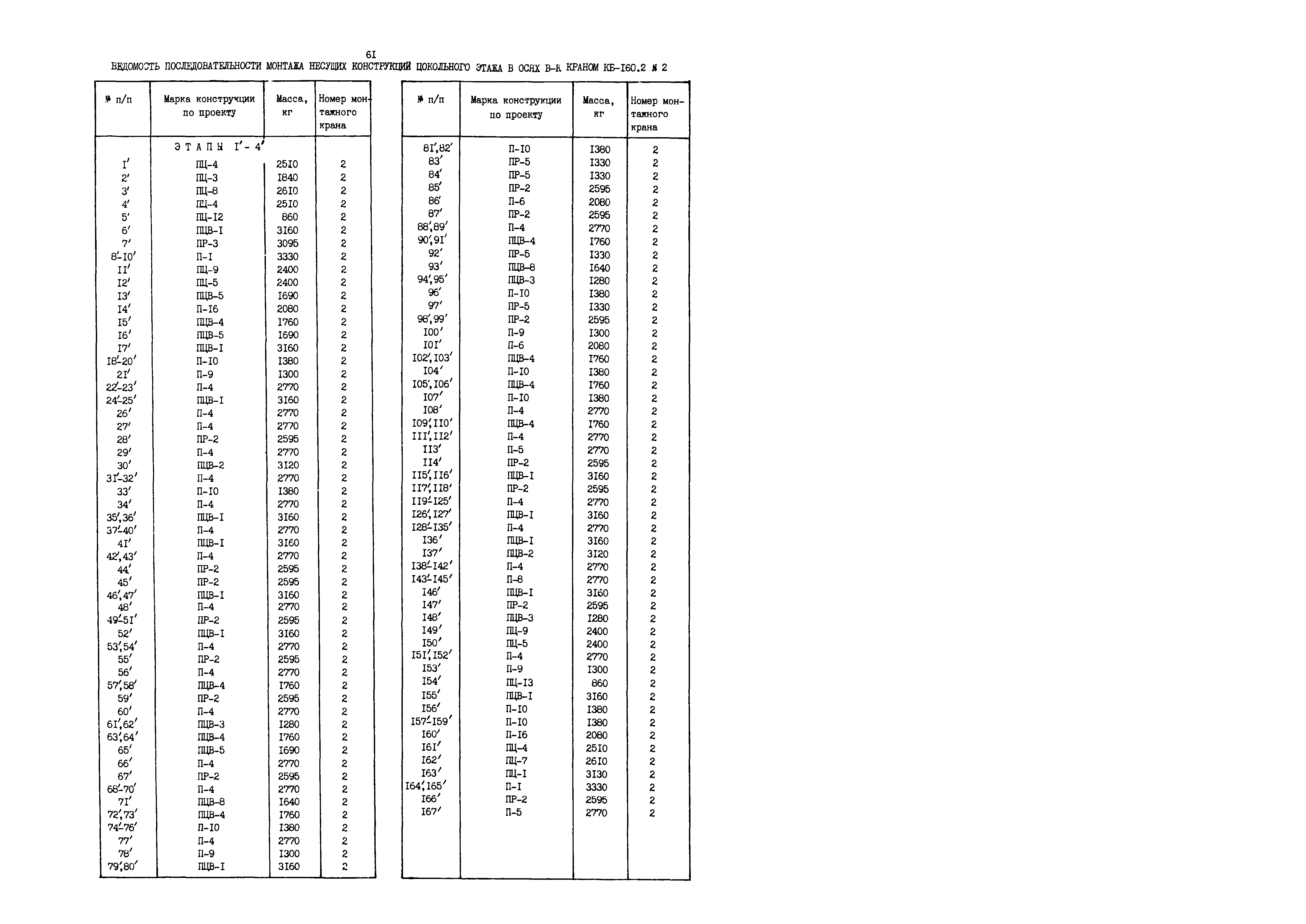
Область применения:Типовой проект производства работ разработан в соответствии со СНиП 3.01.01—85 "Организация строительного производства" и тематическим планом, утвержденным Минсевзапстроем СССР, на основании рабочих чертежей типового проекта 22I-I—384.85 "Средняя общеобразовательная школа на 33 класса (1251-1296 учащихся) в конструкциях серии 1.090.1-1"
Оглавление:Пояснительная записка
Стройгенплан на период возведения надземной части здания (вариант I)
Стройгенплан на период возведения надземной части здания (вариант II)
Технологическая карта на производство земляных работ
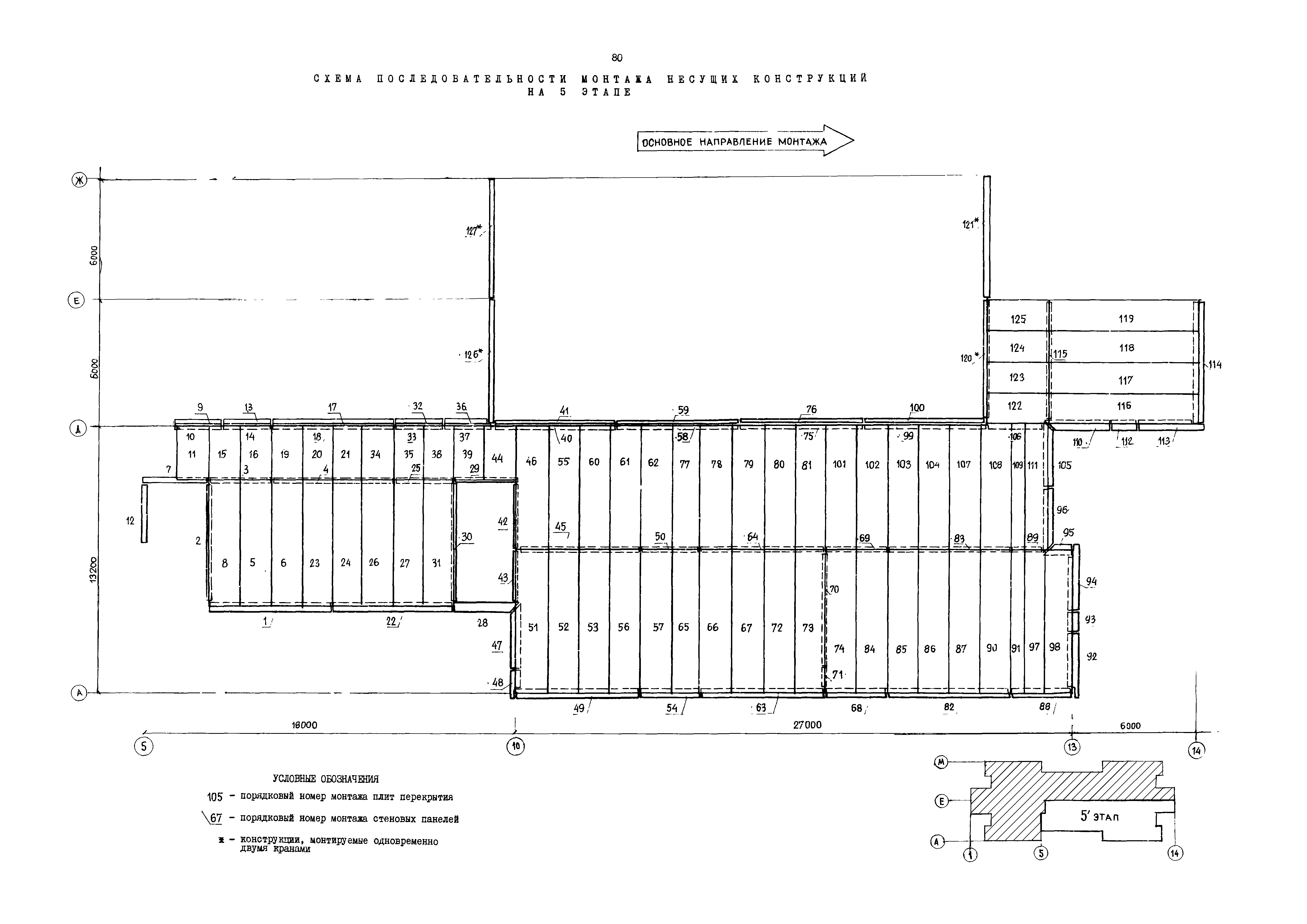
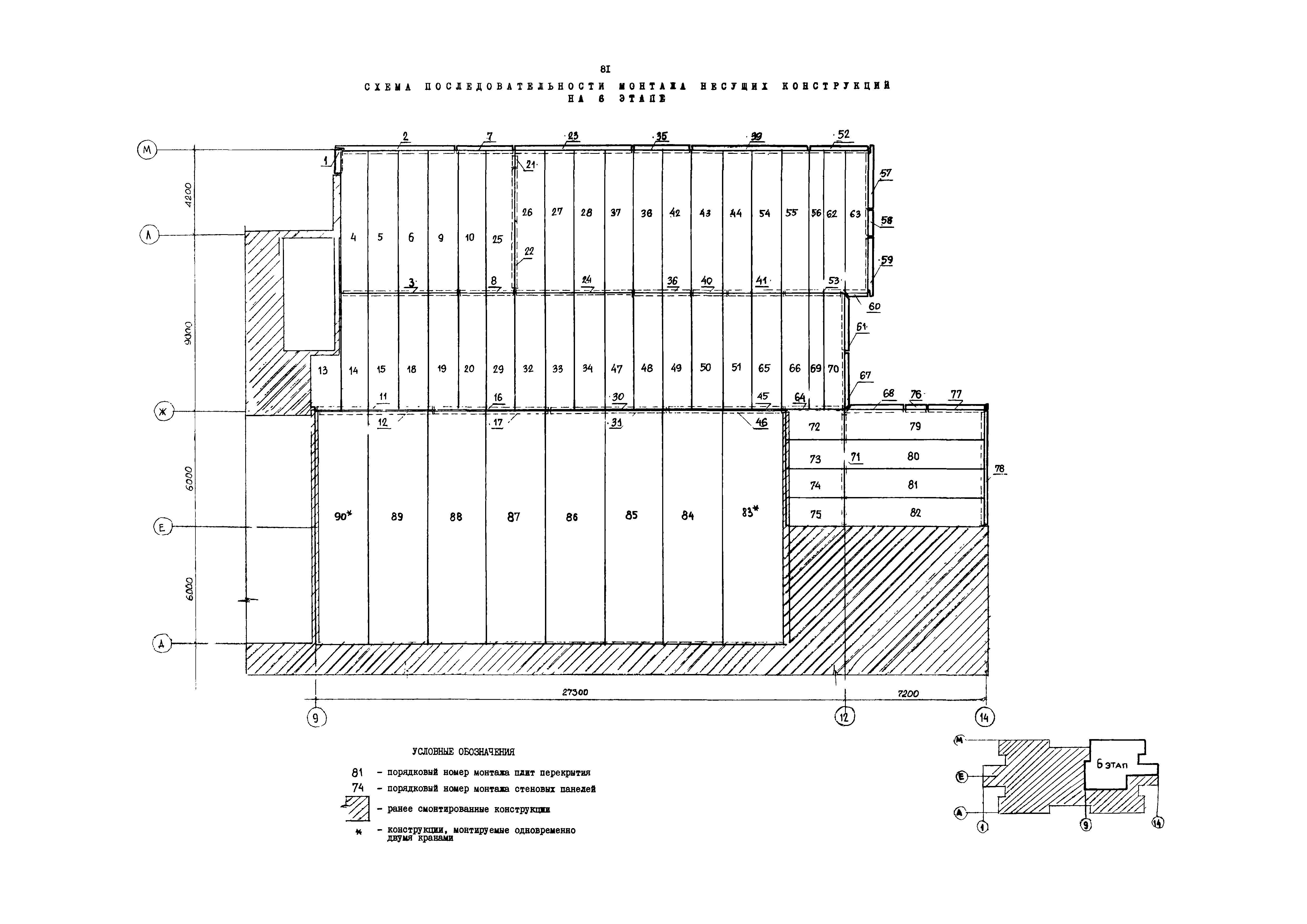
Технологическая карта на монтаж конструкций здания ниже отметки 0,000
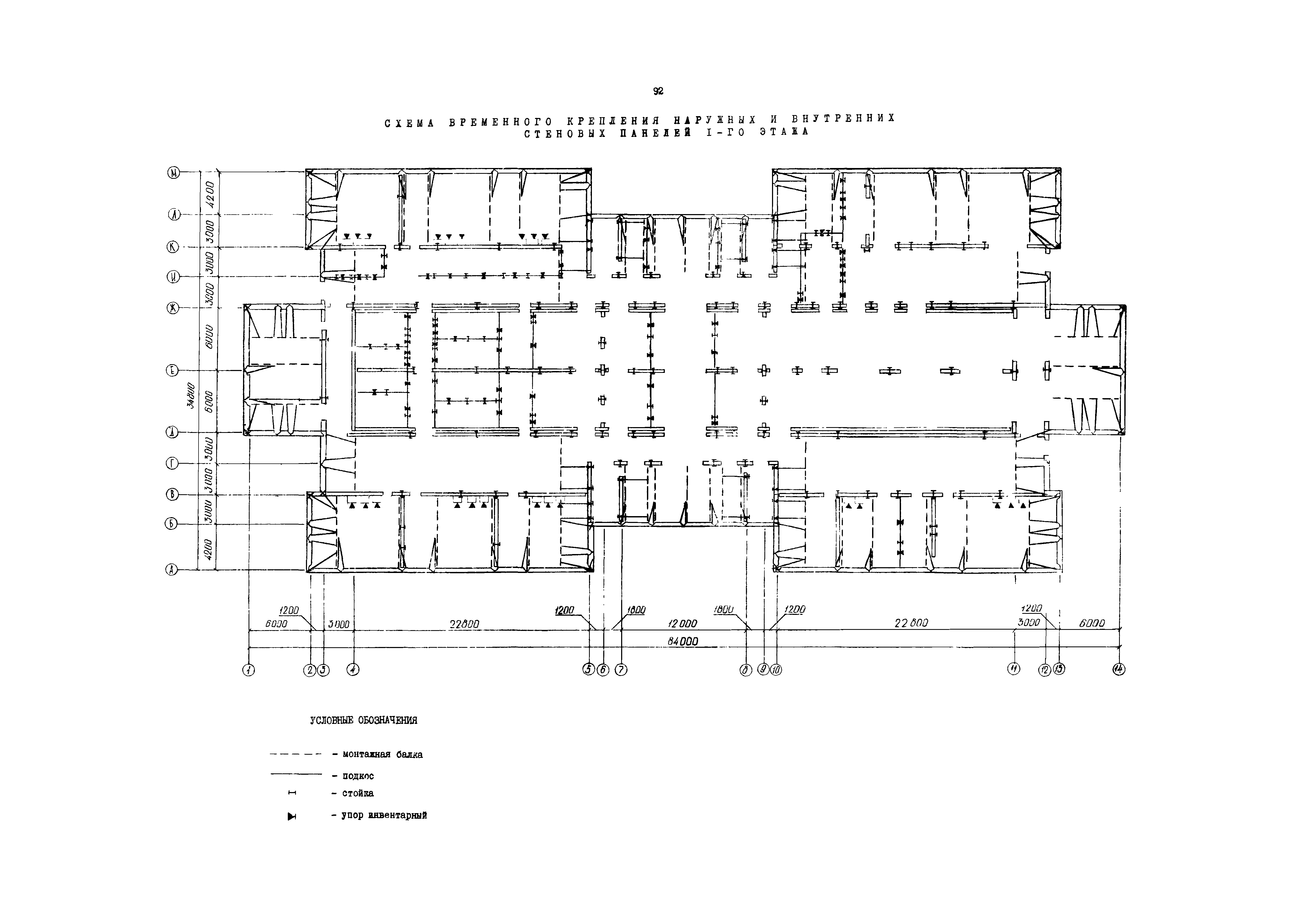
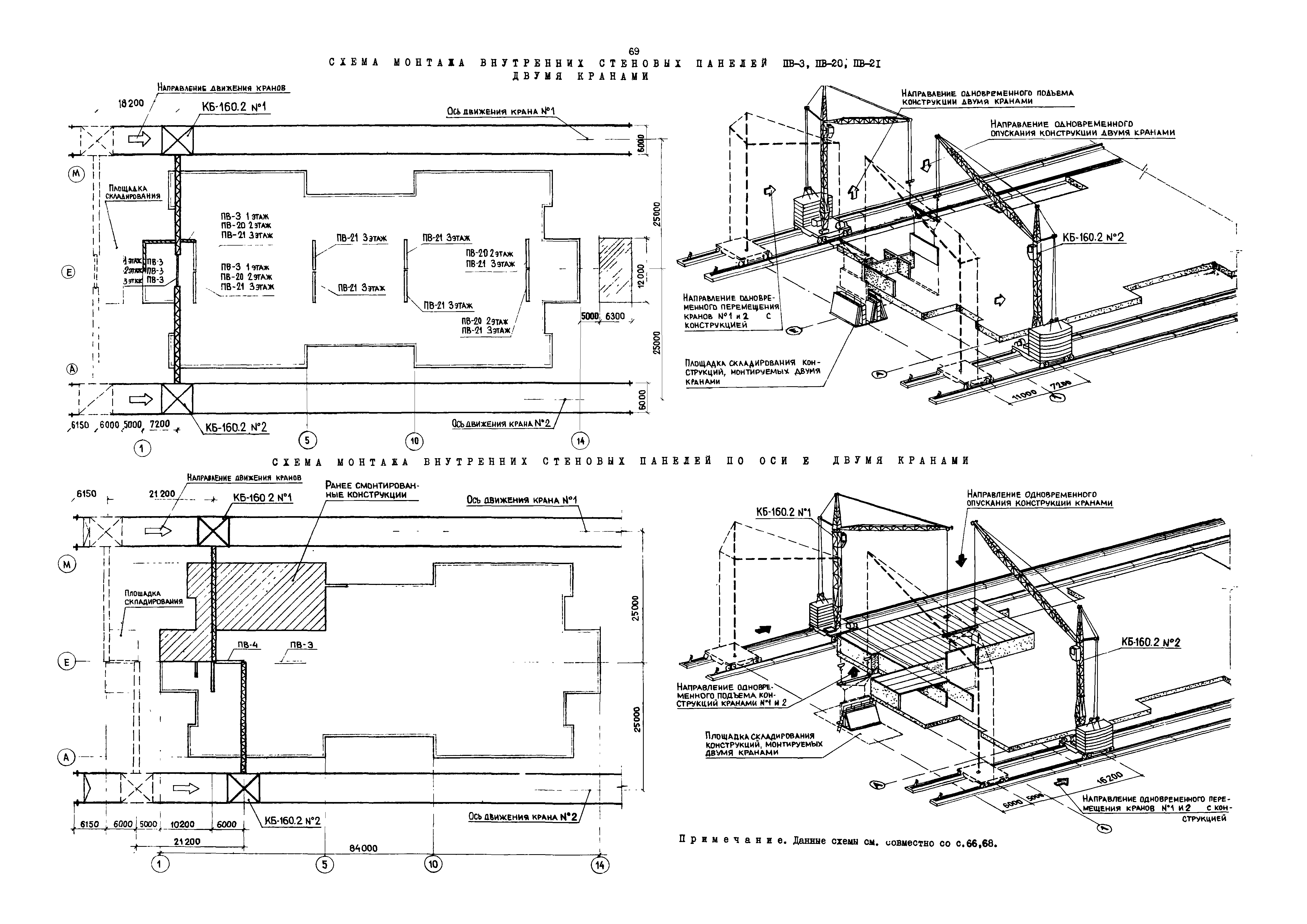
Технологическая карта на монтаж конструкций здания выше отметки 0,000
Монтажные балки Б1, Б2
Решения по выполнению геодезических работ
Технологическая карта на устройство полов
Технологическая карта на устройство кровли
УНТД по комплектации конструкциями, изделиями и материалами
Мероприятия по выполнению работ методом сквозного поточного бригадного подряда
Контроль качества при производстве строительно-монтажных работ
Календарный план производства работ
Приложение. Документация по бригадному подряду на строительно-монтажные работы
Разработан: Проектно-технологический институт Минсевзапстроя СССР
ЦНИИЭП торгово-бытовых зданий и торговых комплексов
Утверждён: Минсевзапстрой СССР (USSR Minsevzapstroy )
Нормативные ссылки: