Скачать Типовой проект 407-3-588.90 Альбом 3. Строительные чертежи (вариант со шкафами КРУ серии К-104). Строительные чертежи (вариант со шкафами КРУ серий КМ-1М, КМ-1ф). Отопление, вентиляцияДата актуализации: 01.01.2021
|
| Обозначение: | Типовой проект 407-3-588.90 |
| Обозначение англ: | 407-3-588.90 |
| Статус: | справочные материалы, мп, тпр |
| Название рус.: | Альбом 3. Строительные чертежи (вариант со шкафами КРУ серии К-104). Строительные чертежи (вариант со шкафами КРУ серий КМ-1М, КМ-1ф). Отопление, вентиляция |
| Дата добавления в базу: | 01.09.2013 |
| Дата актуализации: | 01.01.2021 |
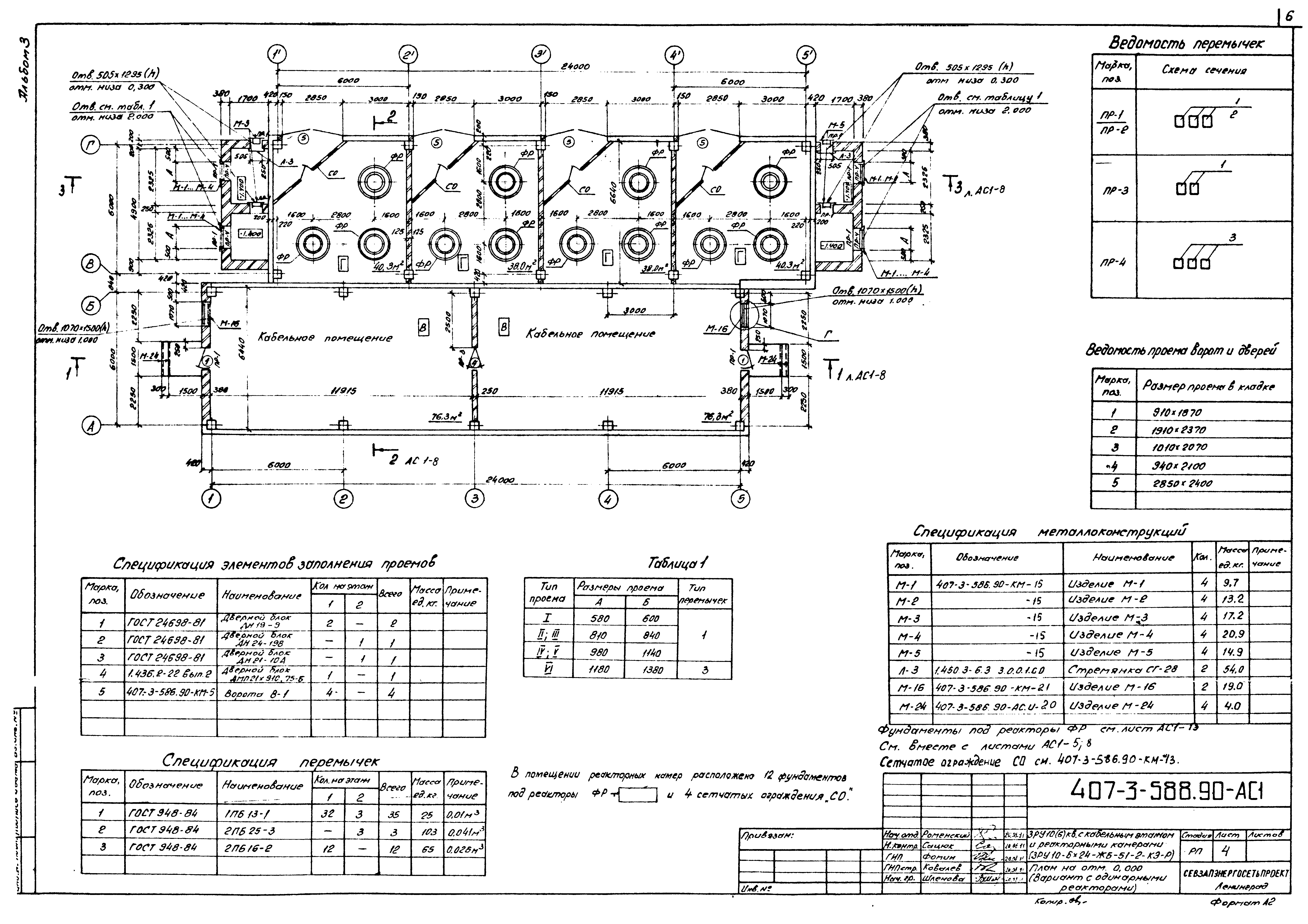
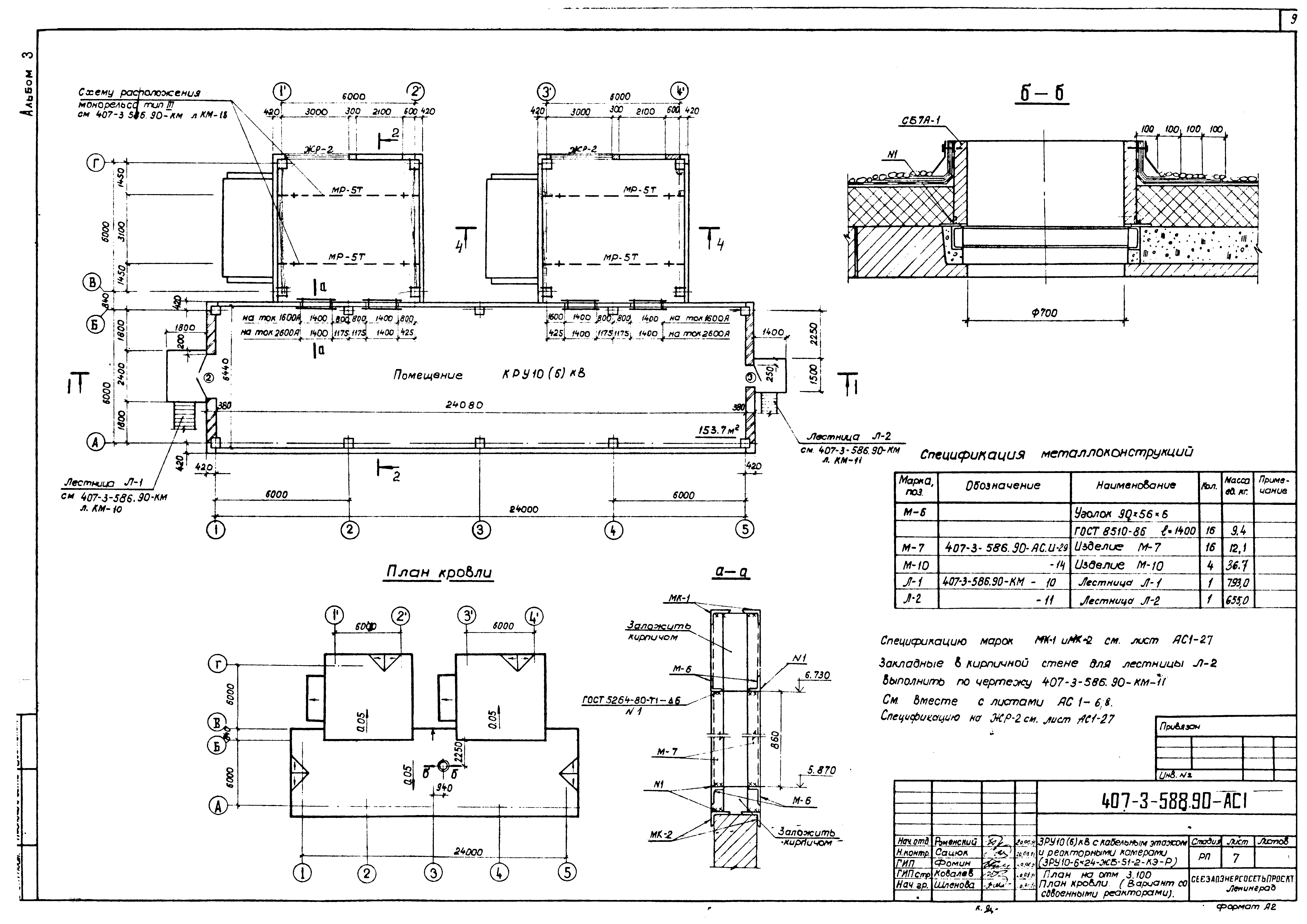
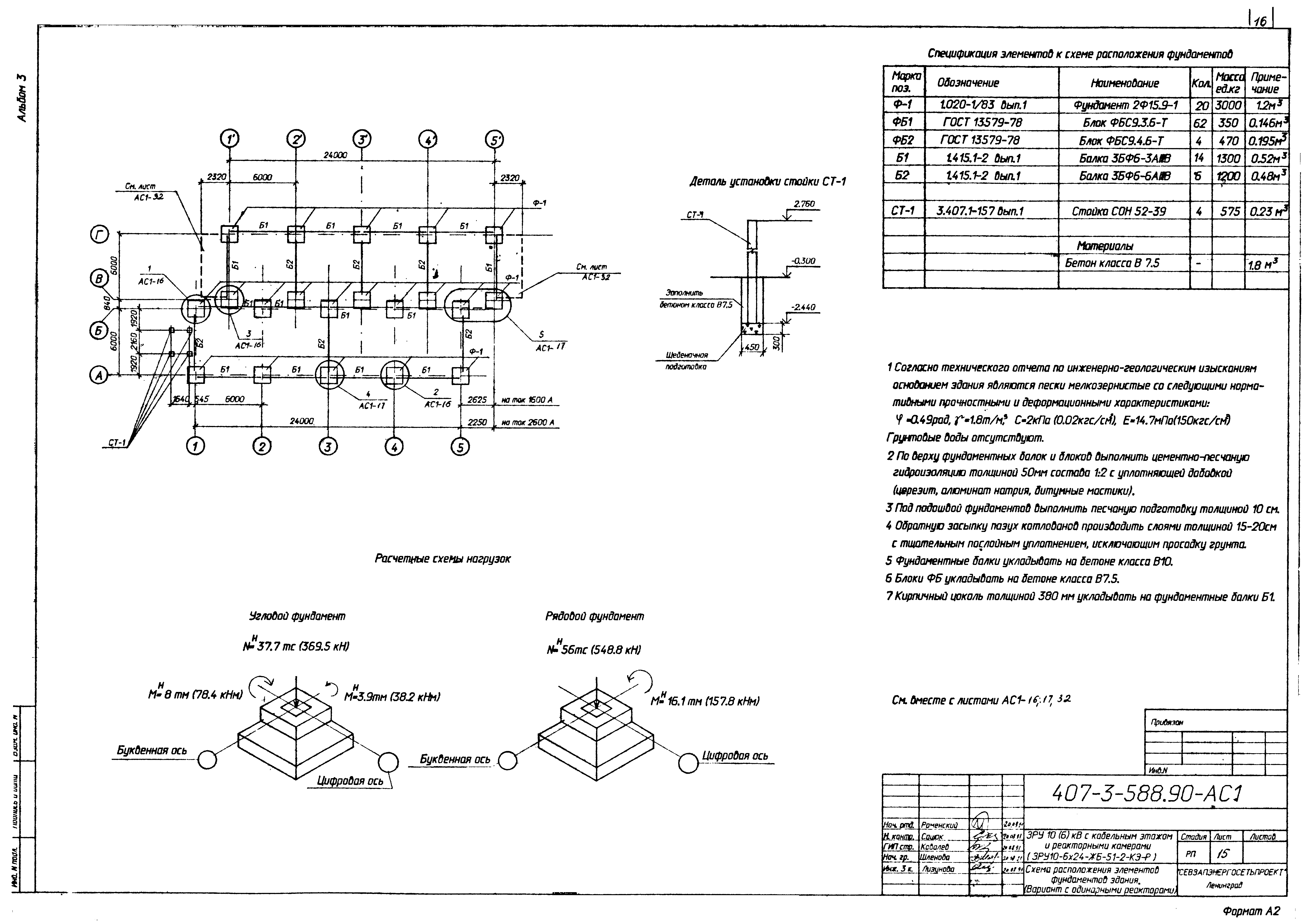
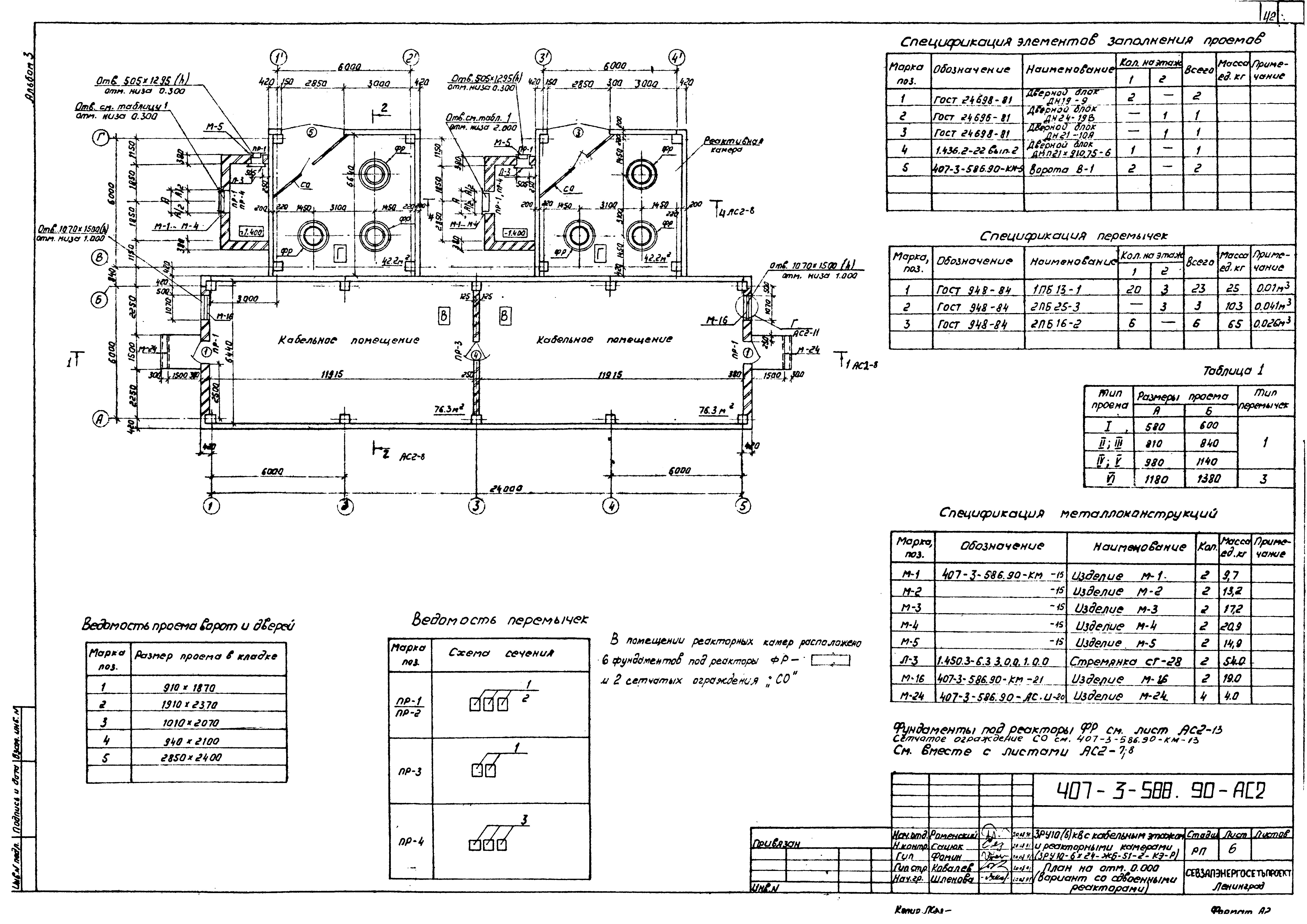
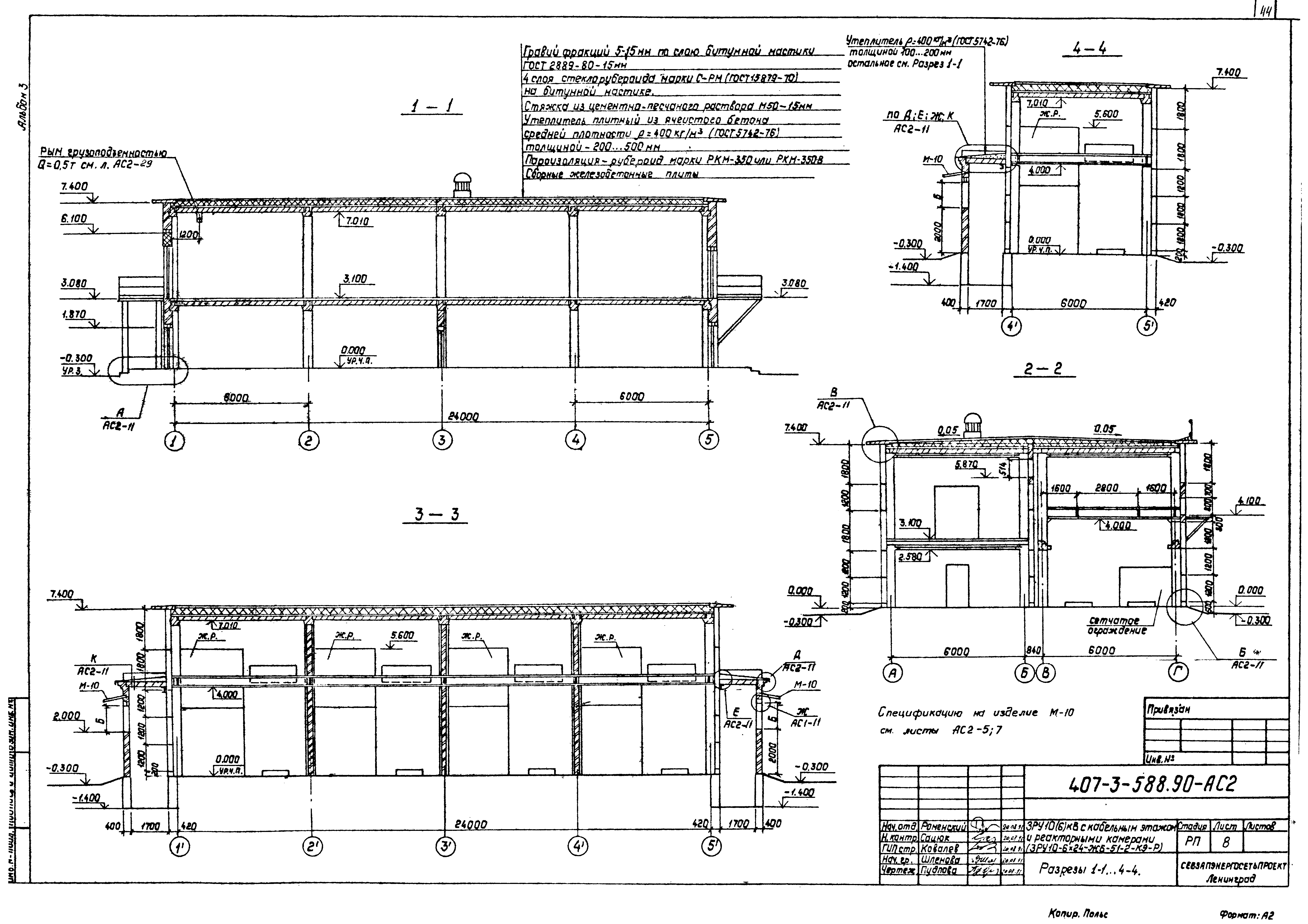
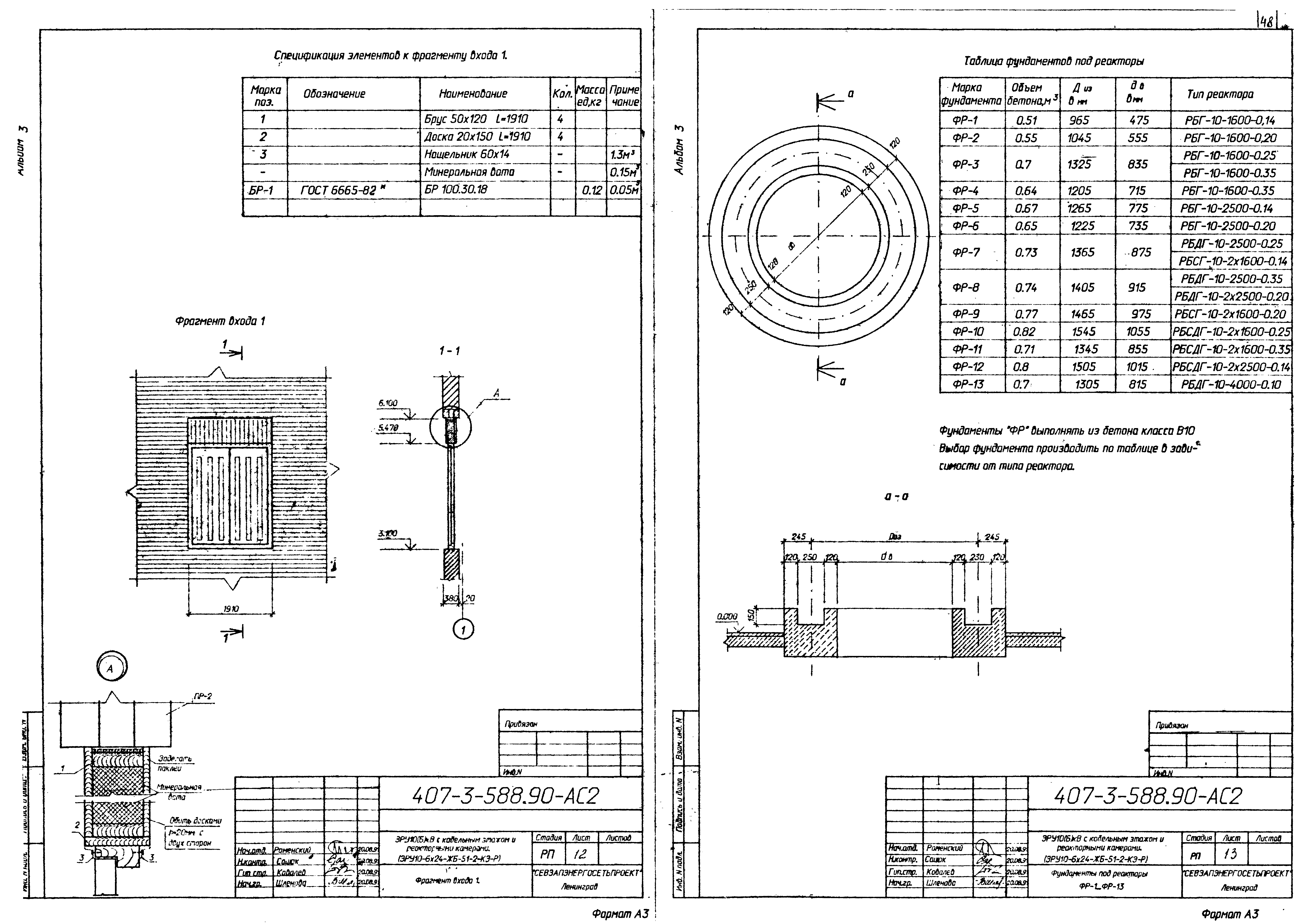
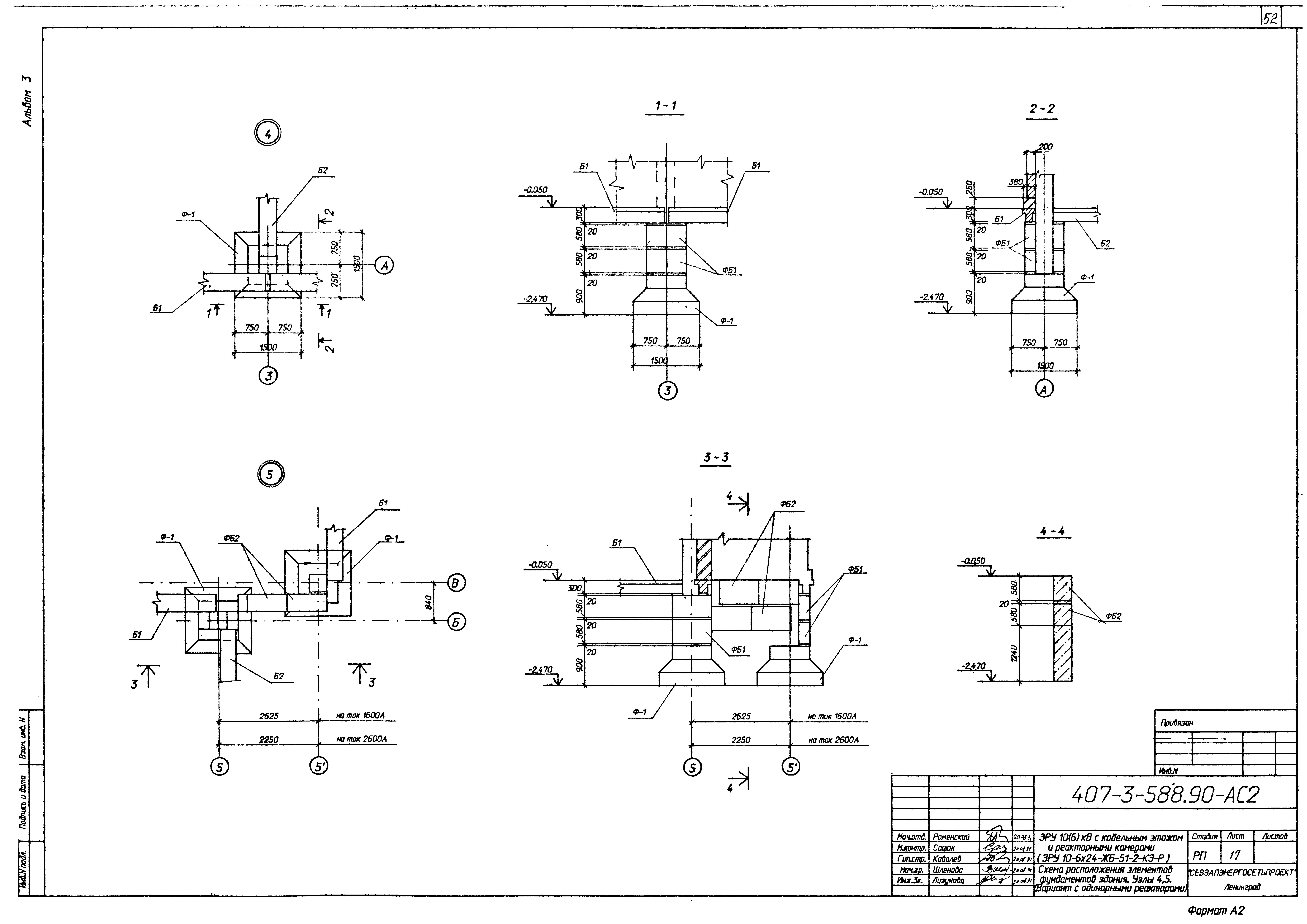
| Оглавление: | Строительные чертежи (Варианты со шкафами КРУ серии К-104) Общие данные План на отм. 0.000 (Вариант с одинарными реакторами) План на отм. 3.100. План кровли (Вариант с одинарными реакторами) План на отм. 0.000 (Вариант со сдвоенными реакторами) План на отм. 3.100. План кровли (Вариант со сдвоенными реакторами) Разрезы 1-1 - 4-4 Фасады (Вариант с одинарными реакторами) Фасады (Вариант со сдвоенными реакторами) Архитектурные узлы А, Б, В, Г, Д, Ж, Е, К Фрагмент входа 1 Фундаменты под реакторы ФР-1 - ФР-13 Фрагмент фасада 1 Схема расположения элементов фундаментов здания (Вариант с одинарными реакторами) Схема расположения элементов фундаментов здания (Вариант с одинарными реакторами). Узлы 1 - 3 Схема расположения элементов фундаментов здания (Вариант с одинарными реакторами). Узлы 4, 5 Схема расположения элементов фундаментов здания (Вариант со сдвоенными реакторами) Схема расположения элементов фундаментов здания (Вариант со сдвоенными реакторами). Узлы 1 - 4 Схемы расположения колонн, ригелей и балок (Вариант с одинарными реакторами) Схемы расположения колонн, ригелей и балок (Вариант со сдвоенными реакторами) Схемы расположения плит покрытия и перекрытия (Вариант с одинарными реакторами) Схемы расположения плит покрытия и перекрытия (Вариант со сдвоенными реакторами) Схемы расположения плит покрытия и перекрытия (Вариант со сдвоенными реакторами). Узлы 1 - 4 Схемы расположения плит покрытия и перекрытия (Вариант со сдвоенными реакторами). Узлы 5 - 8 Схемы расположения стеновых панелей (Вариант с одинарными реакторами) Схемы расположения стеновых панелей (Вариант со сдвоенными реакторами) Схемы расположения отверстий и металлоконструкций в покрытии и перекрытии Схемы расположения отверстий и металлоконструкций в покрытии и перекрытии. Сечения 1-1 - 7-7 Схемы расположения каналов, приямков и асбестоцементных досок в кабельном помещении Схемы расположения каналов, приямков и асбестоцементных досок в кабельном помещении. Узлы, сечения Схема расположения элементов каналов в реакторных камерах (Вариант с одинарными реакторами) Схема расположения асбестоцементных досок в реакторных камерах (Вариант с одинарными реакторами) Схема расположения элементов каналов в реакторных камерах (Вариант со сдвоенными реакторами) Схема расположения металлоконструкций для транспортировки оборудования Схемы расположения колонн, ригелей и балок. Спецификации Строительные чертежи (Варианты со шкафами КРУ серии КМ-1м, КМ-1ф) Общие данные План на отм. 0.000 (Вариант с одинарными реакторами) План на отм. 3.100. План кровли (Вариант с одинарными реакторами) План на отм. 0.000 (Вариант со сдвоенными реакторами) План на отм. 3.100. План кровли (Вариант со сдвоенными реакторами) Разрезы 1-1 - 4-4 Фасады (Вариант с одинарными реакторами) Фасады (Вариант со сдвоенными реакторами) Архитектурные узлы А, Б, В, Г, Д, Ж, Е, К Фрагмент входа 1 Фундаменты под реакторы ФР-1 - ФР-13 Фрагмент фасада 1 Схема расположения элементов фундаментов здания (Вариант с одинарными реакторами) Схема расположения элементов фундаментов здания (Вариант с одинарными реакторами). Узлы 1 - 3 Схема расположения элементов фундаментов здания (Вариант с одинарными реакторами). Узлы 4, 5 Схема расположения элементов фундаментов здания (Вариант со сдвоенными реакторами) Схема расположения элементов фундаментов здания (Вариант со сдвоенными реакторами). Узлы 1 - 4 Схемы расположения колонн, ригелей и балок (Вариант с одинарными реакторами) Схемы расположения колонн, ригелей и балок (Вариант со сдвоенными реакторами) Схемы расположения плит покрытия и перекрытия (Вариант с одинарными реакторами) Схемы расположения плит покрытия и перекрытия (Вариант со сдвоенными реакторами) Схемы расположения плит покрытия и перекрытия (Вариант со сдвоенными реакторами). Узлы 1 - 3 Схемы расположения плит покрытия и перекрытия (Вариант со сдвоенными реакторами). Узлы 4 - 8 Схемы расположения стеновых панелей (Вариант с одинарными реакторами) Схемы расположения стеновых панелей (Вариант со сдвоенными реакторами) Схемы расположения отверстий и металлоконструкций в покрытии и перекрытии Схемы расположения отверстий и металлоконструкций в покрытии и перекрытии. Сечения 1-1 - 6-6 Схемы расположения каналов, приямков и асбестоцементных досок в кабельном помещении Схемы расположения каналов, приямков и асбестоцементных досок в кабельном помещении. Узлы, сечения Схема расположения элементов каналов в реакторных камерах (Вариант с одинарными реакторами) Схема расположения асбестоцементных досок в реакторных камерах (Вариант с одинарными реакторами) Схема расположения элементов каналов в реакторных камерах (Вариант со сдвоенными реакторами) Схема расположения металлоконструкций для транспортировки оборудования Схемы расположения колонн, ригелей и балок. Спецификации Отопление, вентиляция Общие данные План на отм. 0.000. План на отм. 3.100 между осями А - Б (Вариант с одинарными реакторами) План на отм. 0.000. План на отм. 3.100 между осями А - Б (Вариант со сдвоенными реакторами) Разрезы 1-1, 2-2, 3-3 Установка 1-ой, 2-х, 3-х и 4-х электропечей |
| Разработан: | Севзапэнергосетьпроект |
| Утверждён: | 08.08.1991 Минэнерго СССР (USSR Minenergo 35) |












































































