Скачать Типовые проектные решения 801-01-57.85 Альбом II. ЧертежиДата актуализации: 01.01.2021
|
| Обозначение: | Типовые проектные решения 801-01-57.85 |
| Обозначение англ: | 801-01-57.85 |
| Статус: | справочные материалы, мп, тпр |
| Название рус.: | Альбом II. Чертежи |
| Дата добавления в базу: | 01.09.2013 |
| Дата актуализации: | 01.01.2021 |
| Дата введения: | 16.02.1984 |
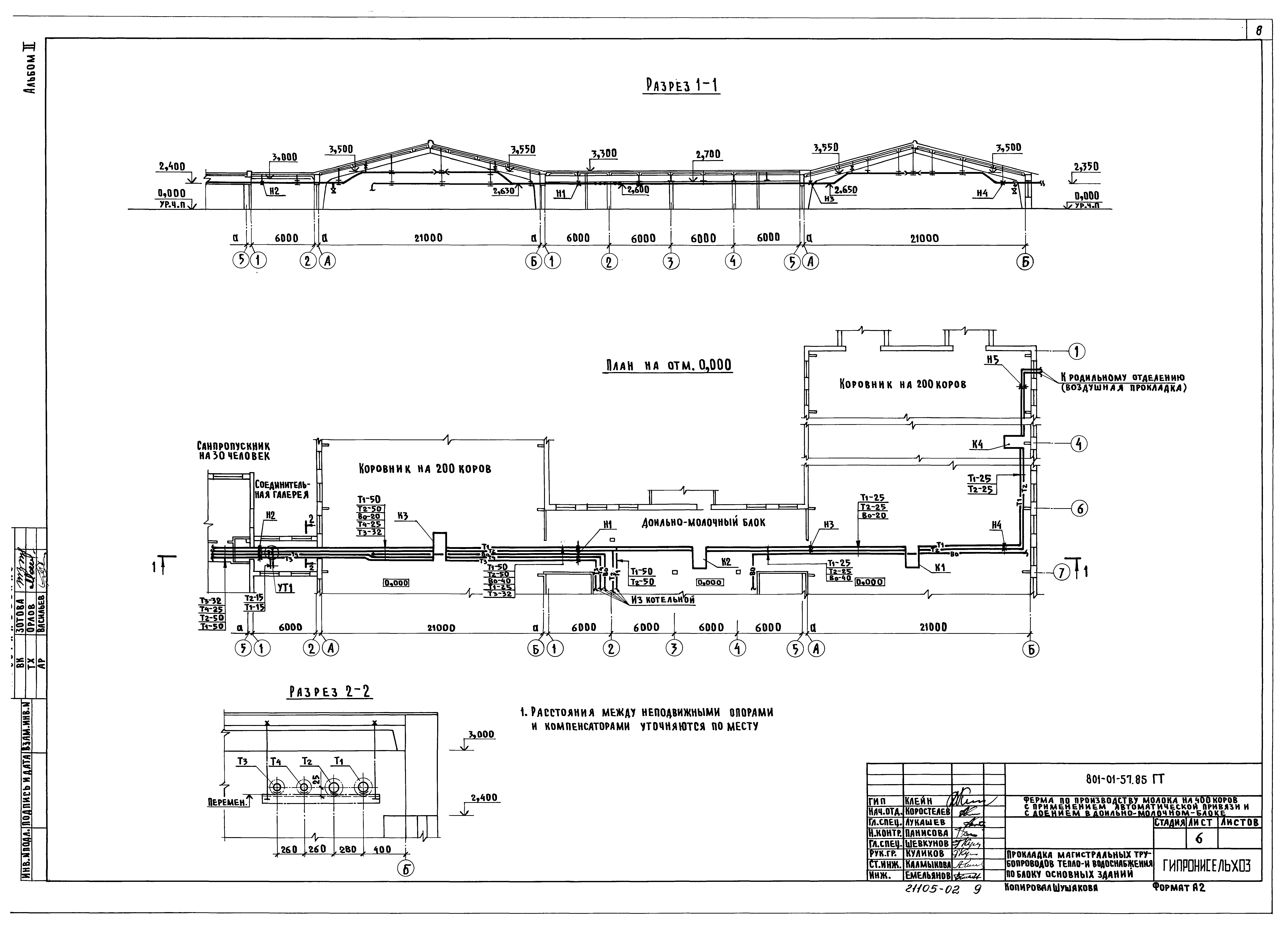
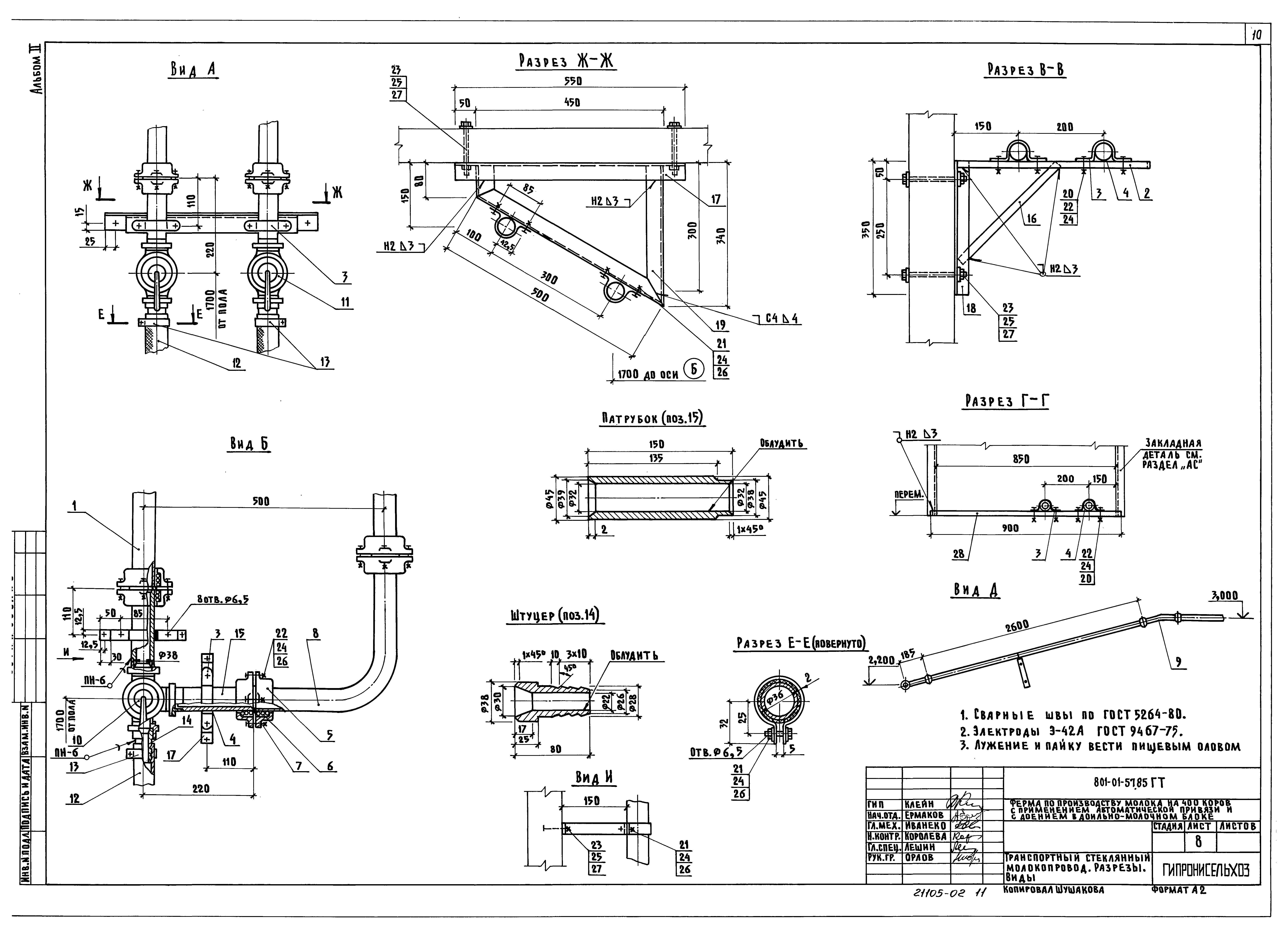
| Оглавление: | Содержание Перечень и характеристика основных зданий и сооружений Генеральный план. Общие данные Схема генплана М 1:1000 Блокировка основных зданий фермы Прокладка магистральных трубопроводов тепло- и водоснабжения по блоку основных зданий Транспортный стеклянный молокопровод Схема движения коров, транспортировки кормов и навоза Суточные графики электрических нагрузок при температуре минус 30 градусов Цельсия и температуре минус 20 градусов Цельсия Схема организации связи и сигнализации |
| Разработан: | ВИЭСХ ГипроНИсельхоз (Институт Гипронисельхоз ) |
| Утверждён: | 16.02.1984 Минсельхоз СССР (USSR Minselkhoz 7-ЭП) |













