Скачать Типовой проект 272-20-142.84 Альбом 2. Внутренний водопровод и канализация. Отопление и вентиляция. Холодоснабжение. Электроосвещение и электрооборудование. Автоматизация санитарно-технических систем. Связь и сигнализацияДата актуализации: 01.01.2021
|
| Обозначение: | Типовой проект 272-20-142.84 |
| Обозначение англ: | 272-20-142.84 |
| Статус: | не определен законодательством |
| Название рус.: | Альбом 2. Внутренний водопровод и канализация. Отопление и вентиляция. Холодоснабжение. Электроосвещение и электрооборудование. Автоматизация санитарно-технических систем. Связь и сигнализация |
| Дата добавления в базу: | 01.09.2013 |
| Дата актуализации: | 01.01.2021 |
| Дата введения: | 12.09.1984 |
| Дата окончания срока действия: | 30.06.2003 |
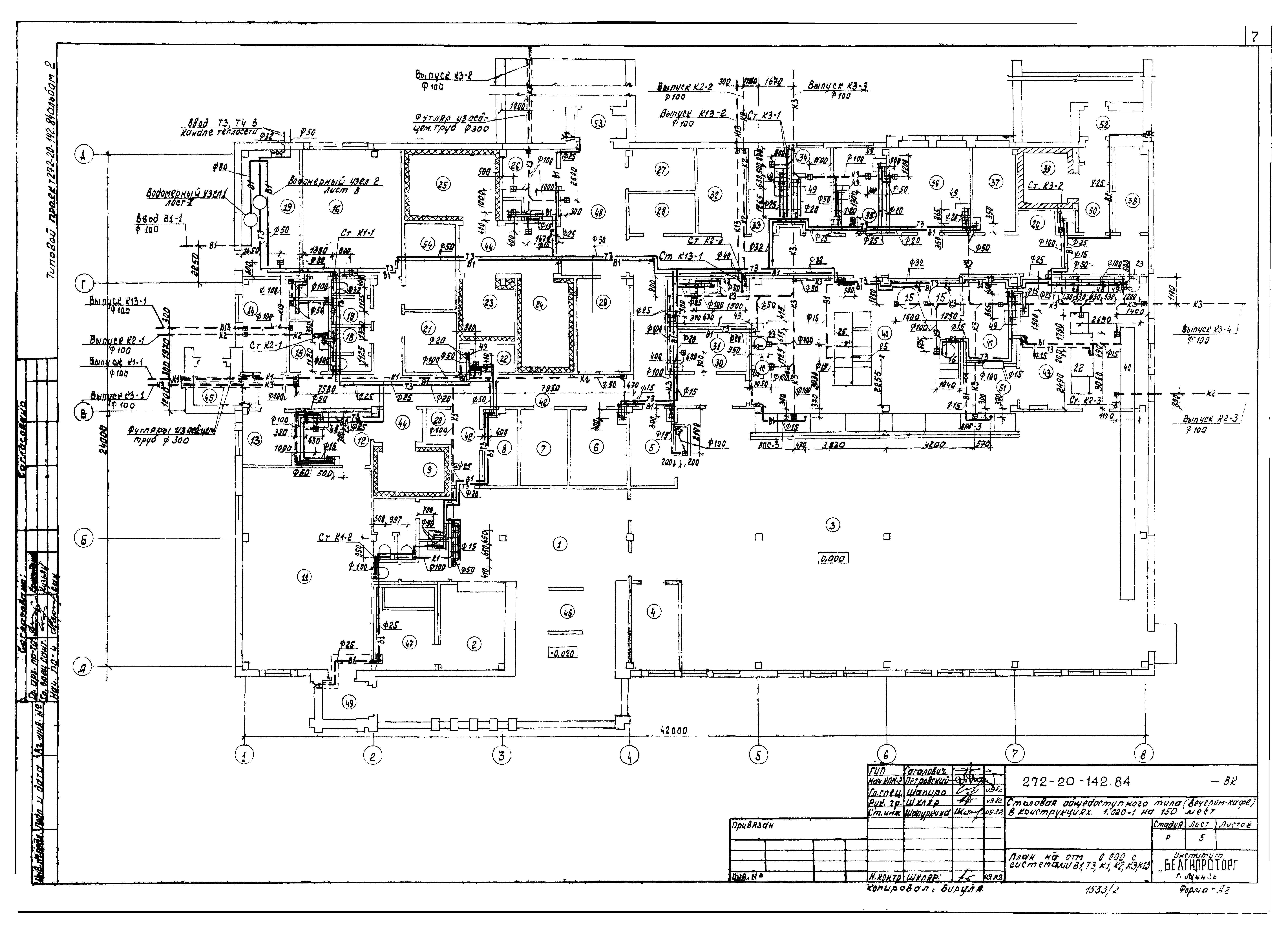
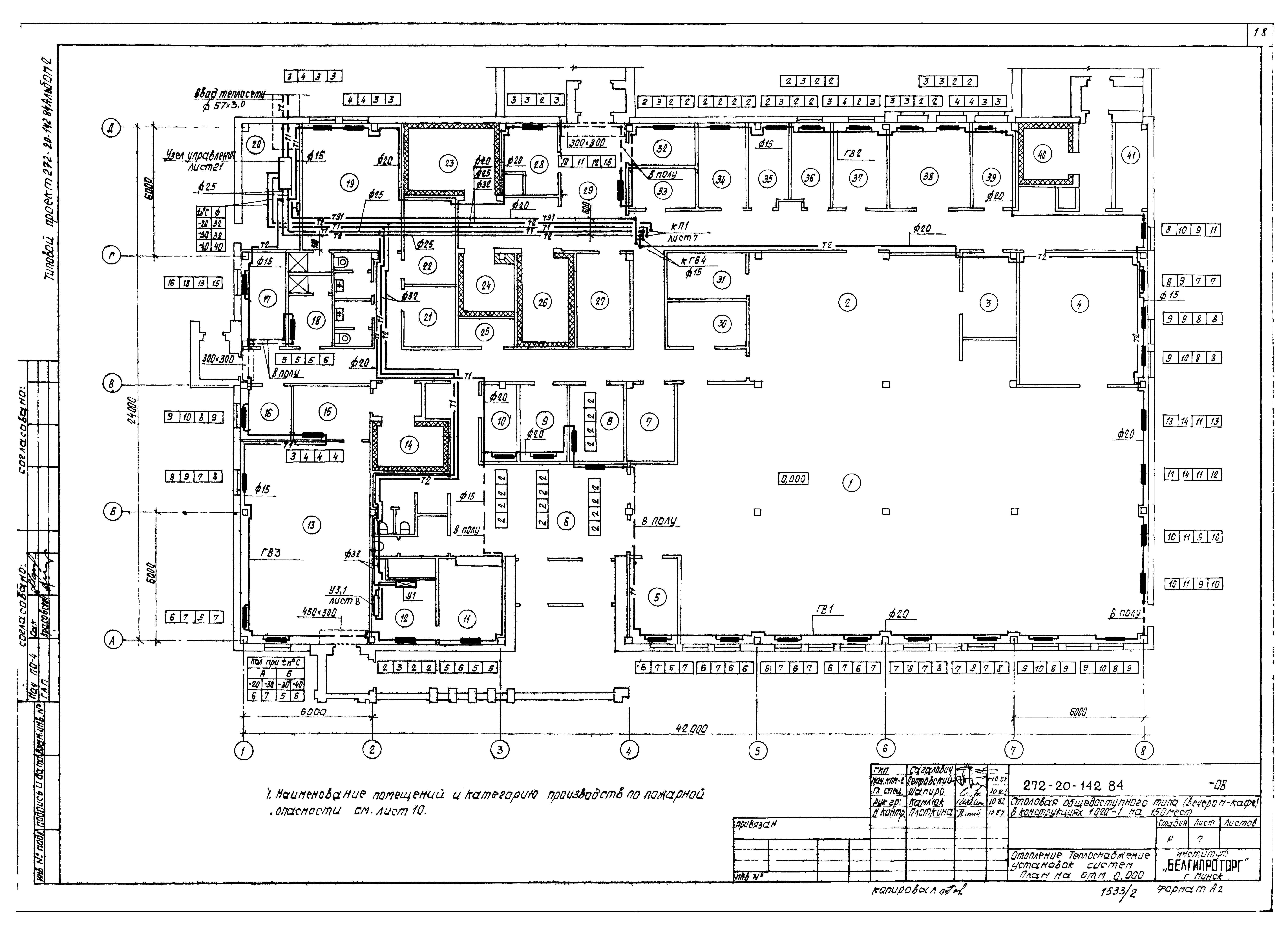
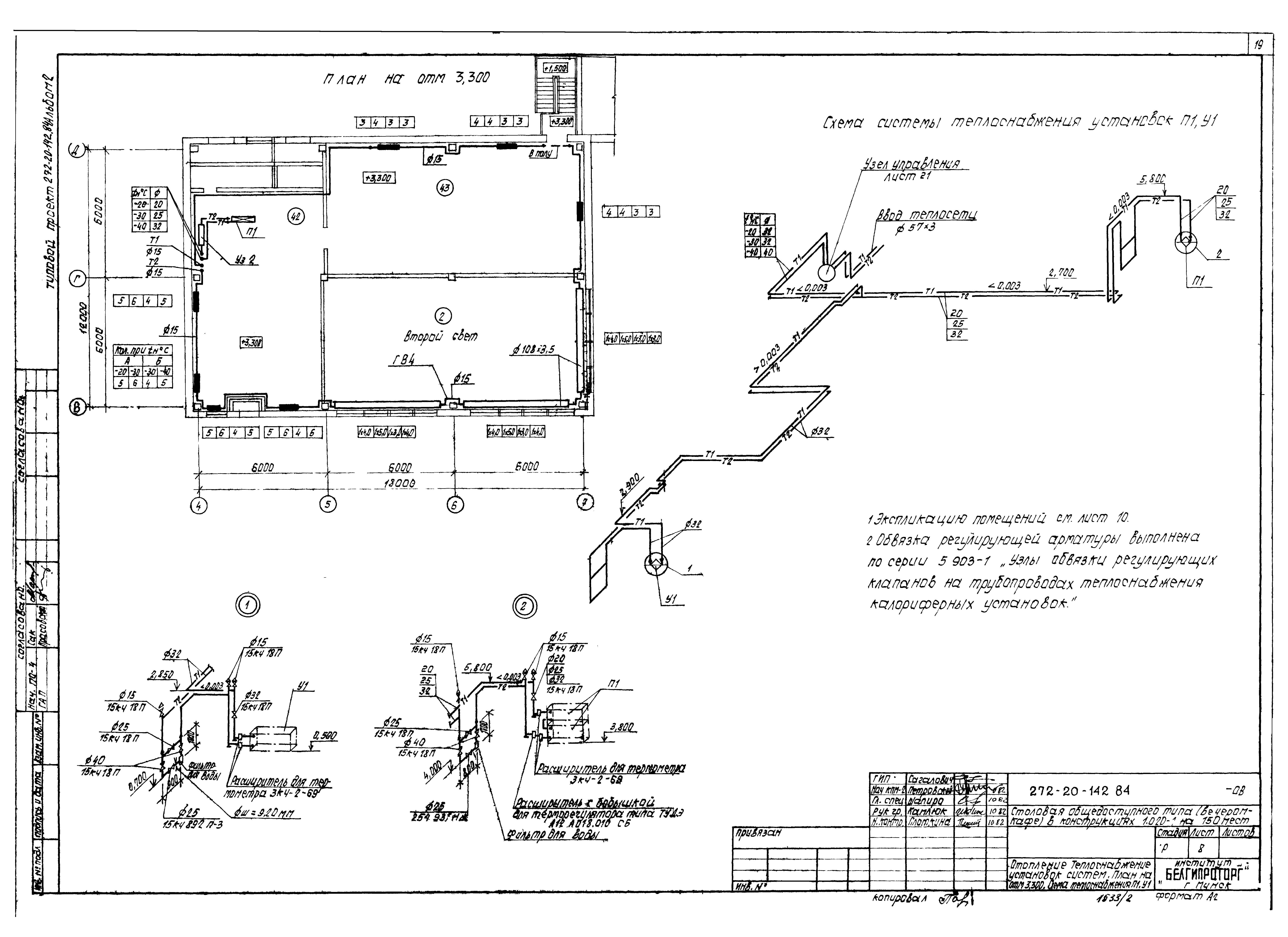
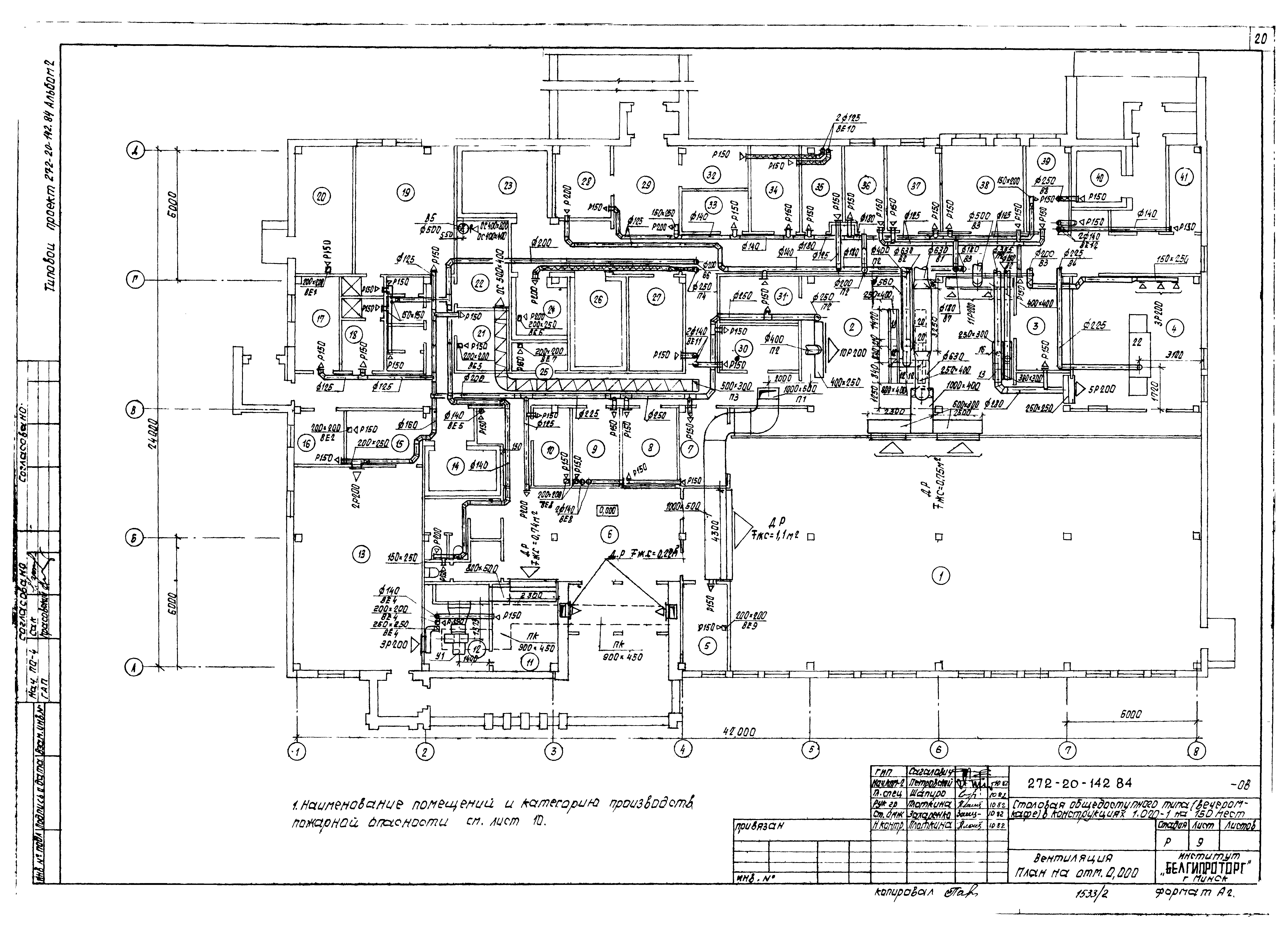
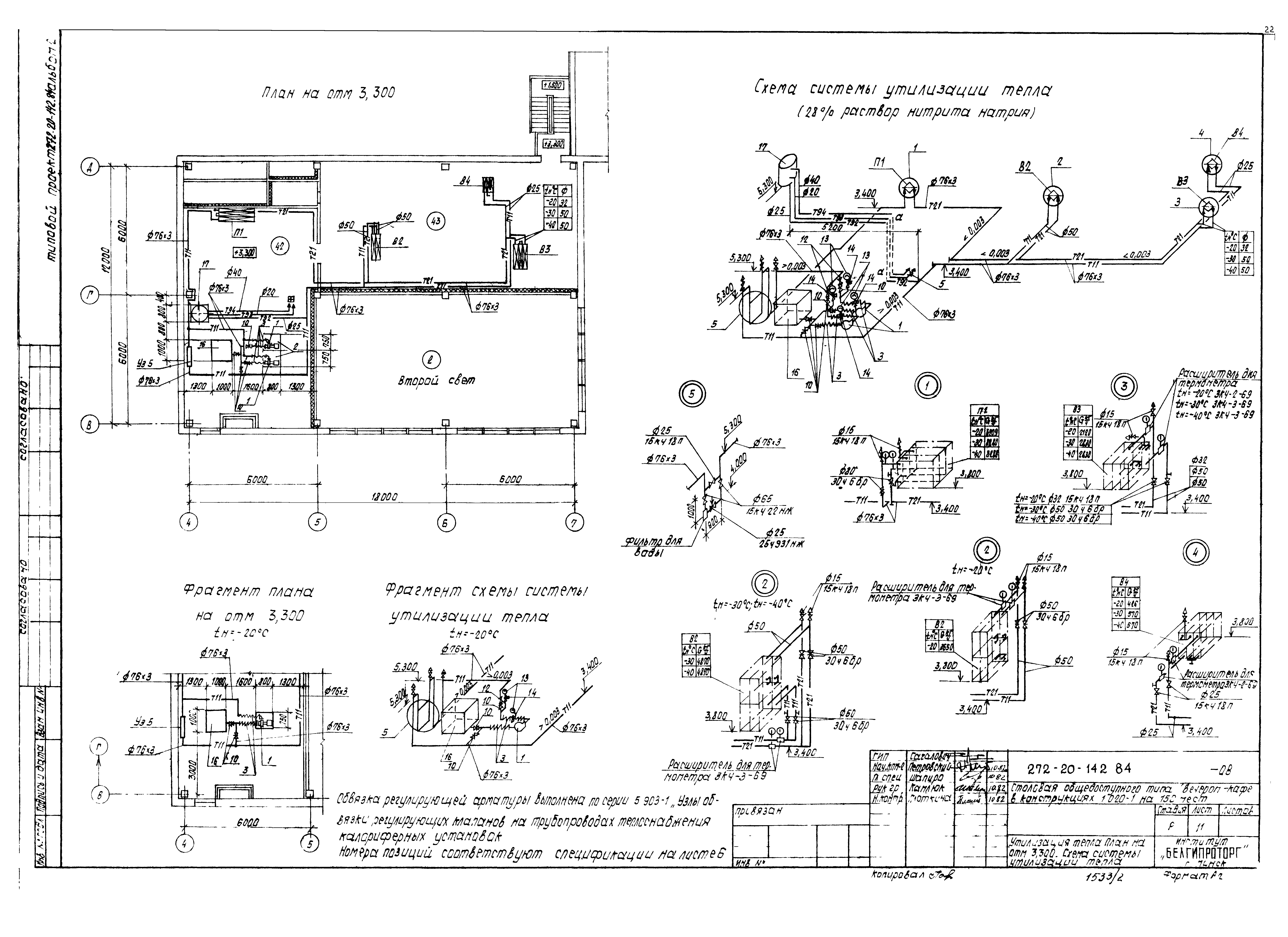
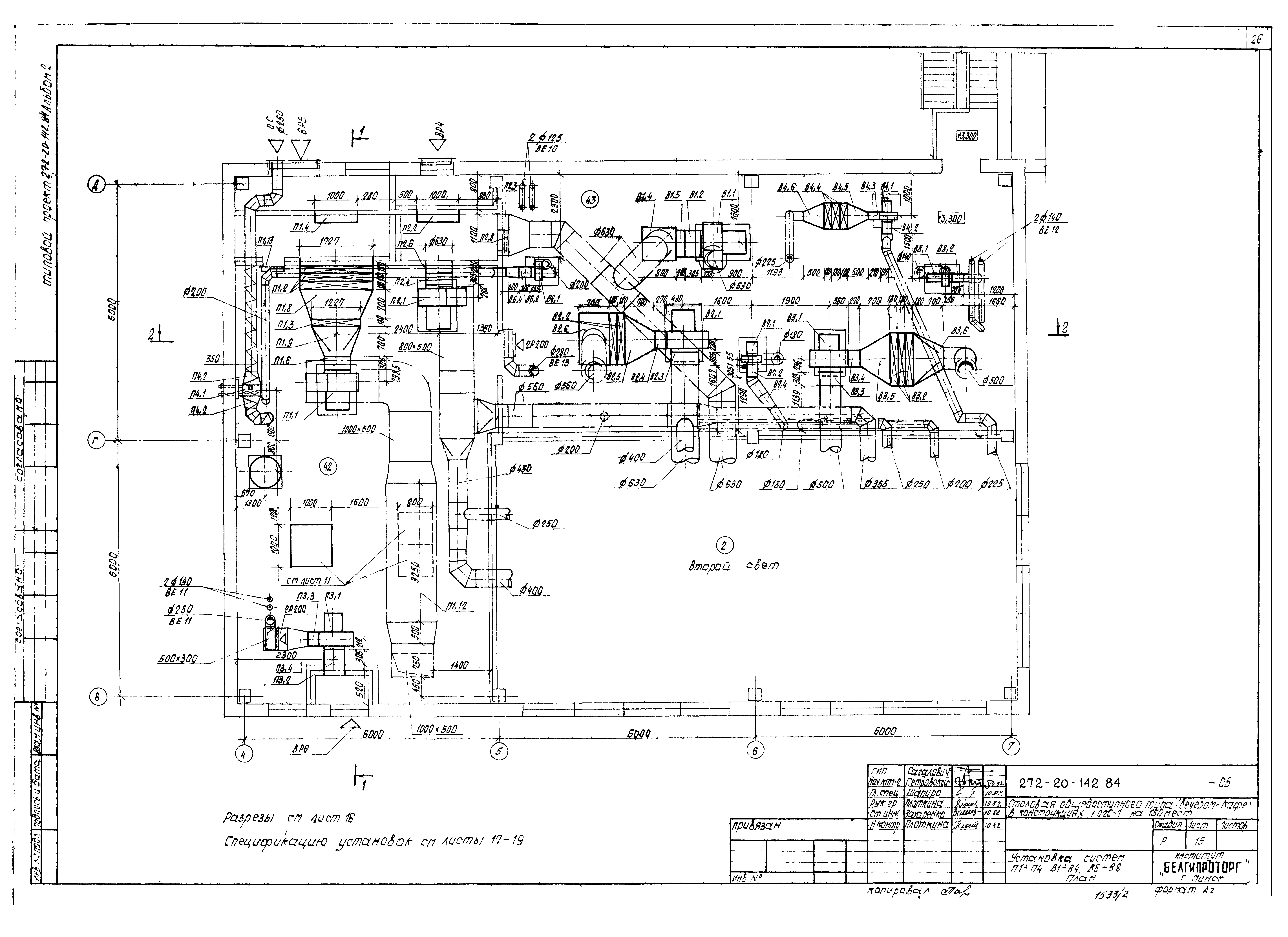
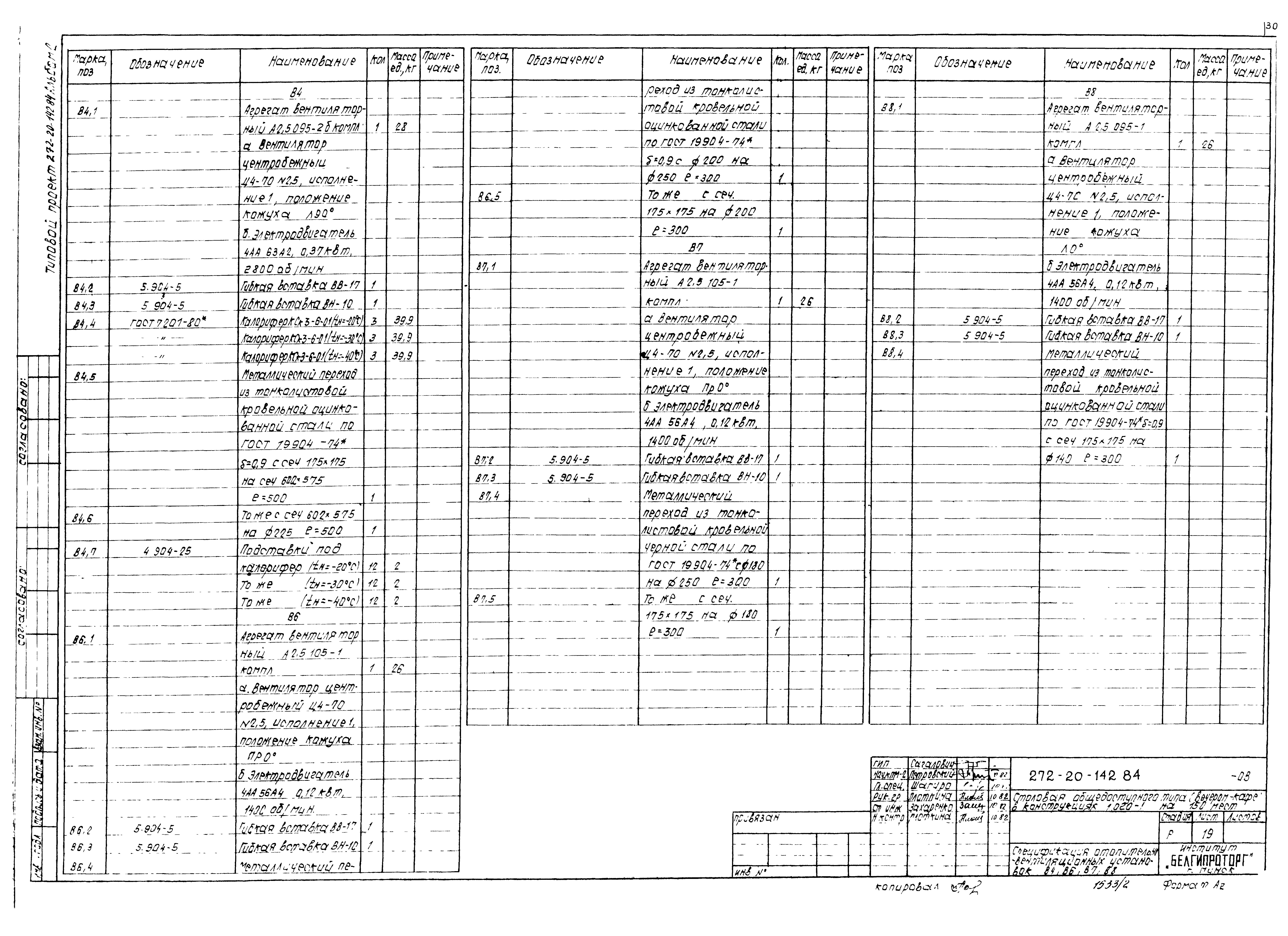
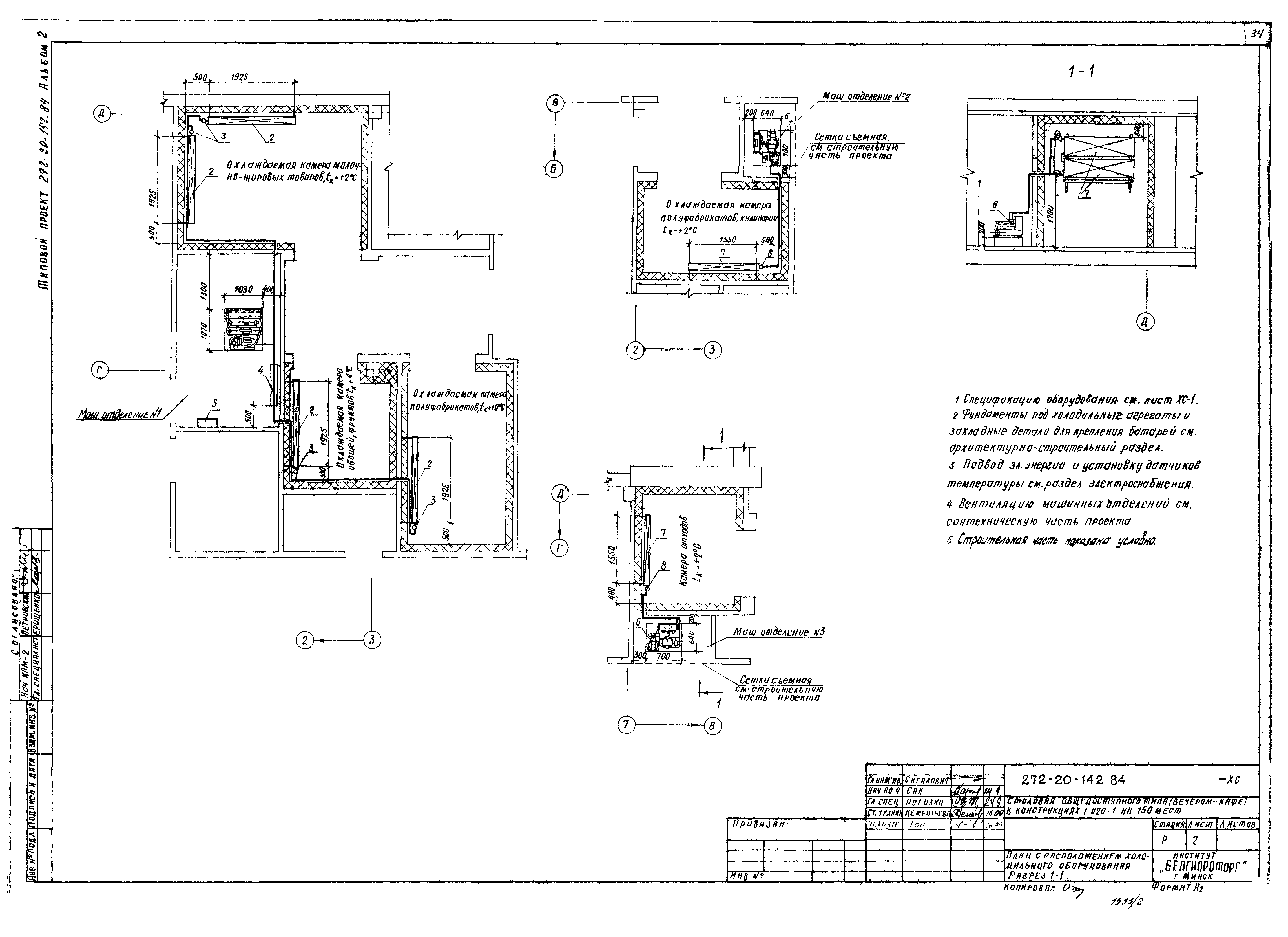
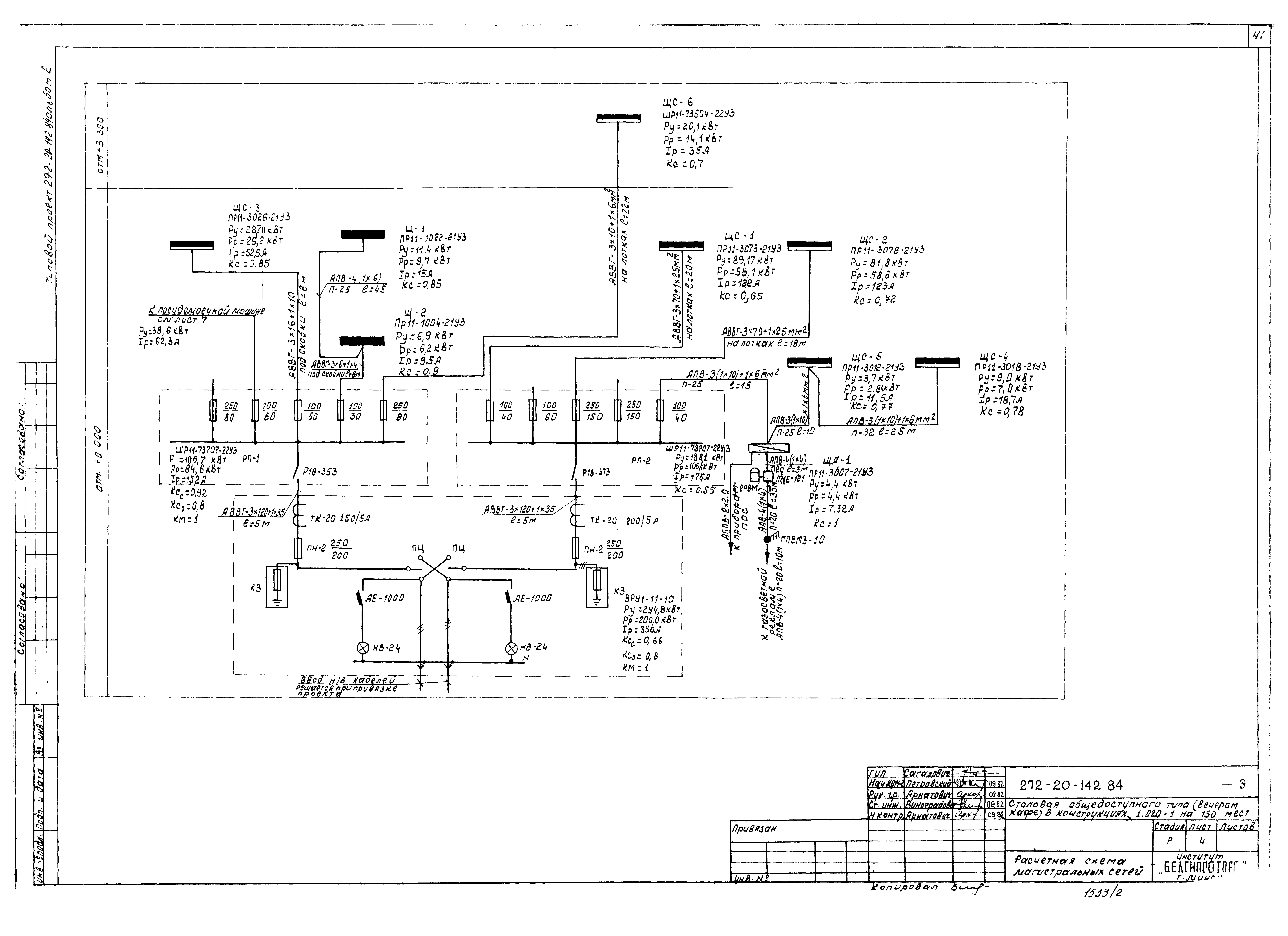
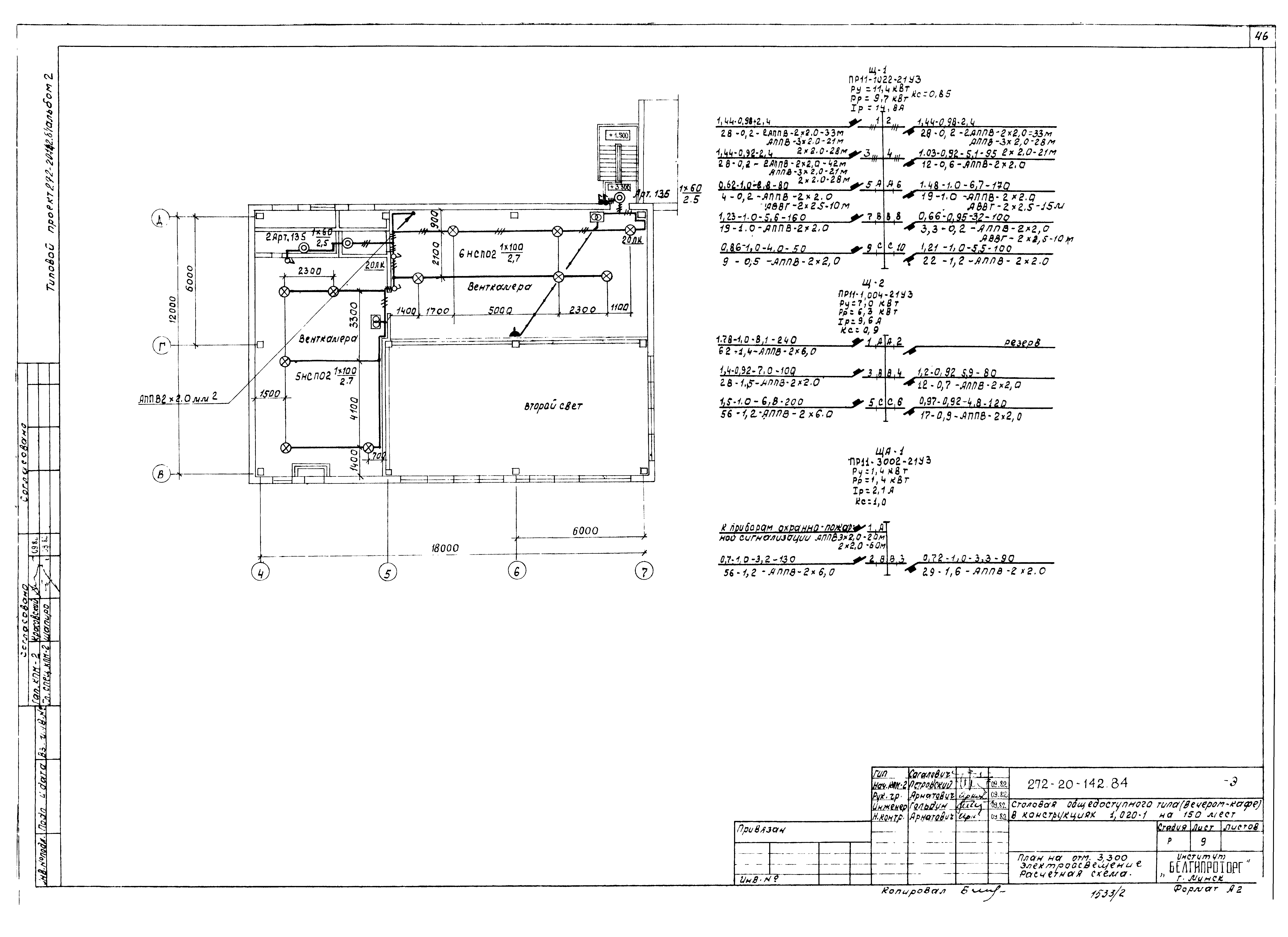
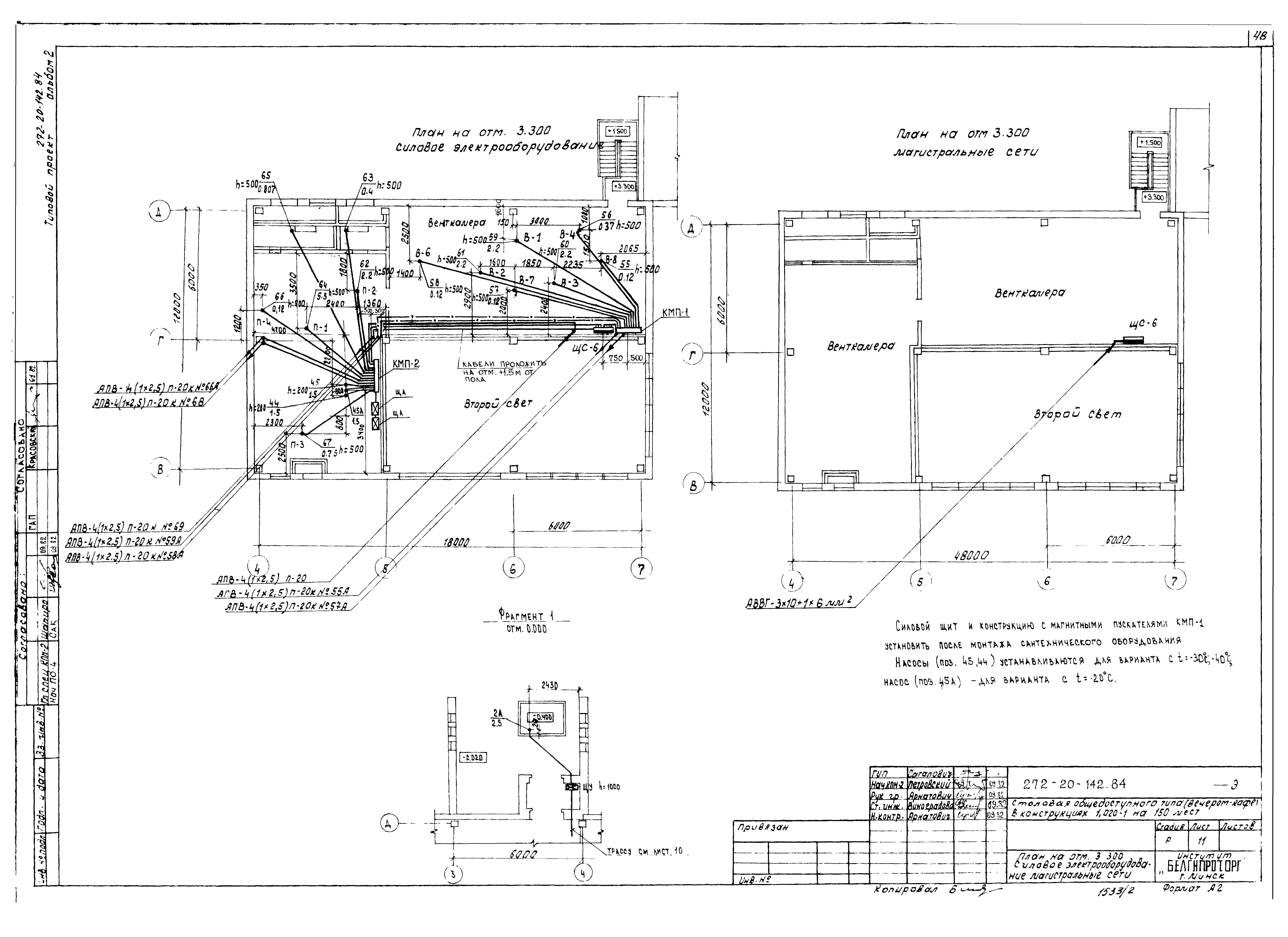
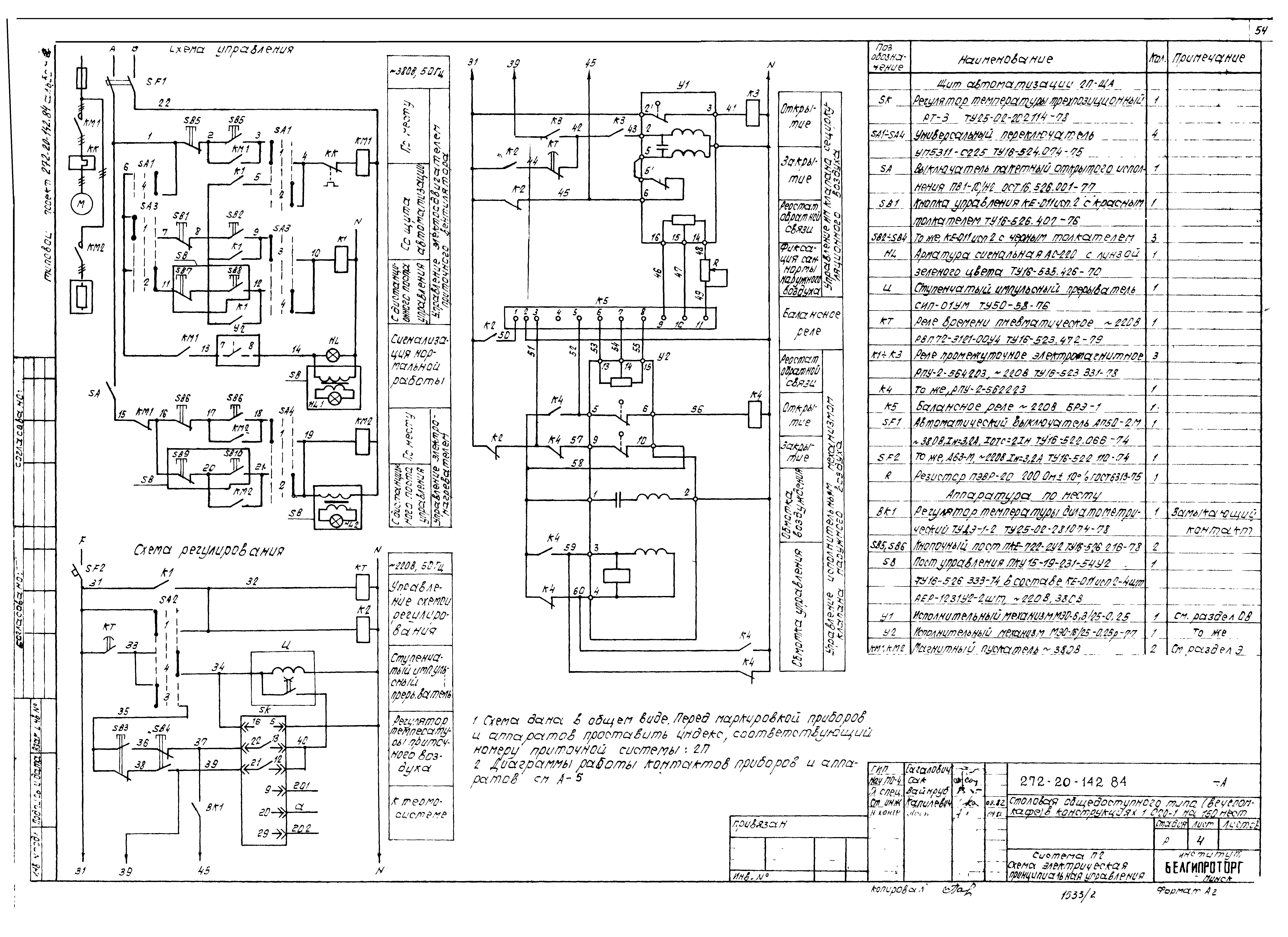
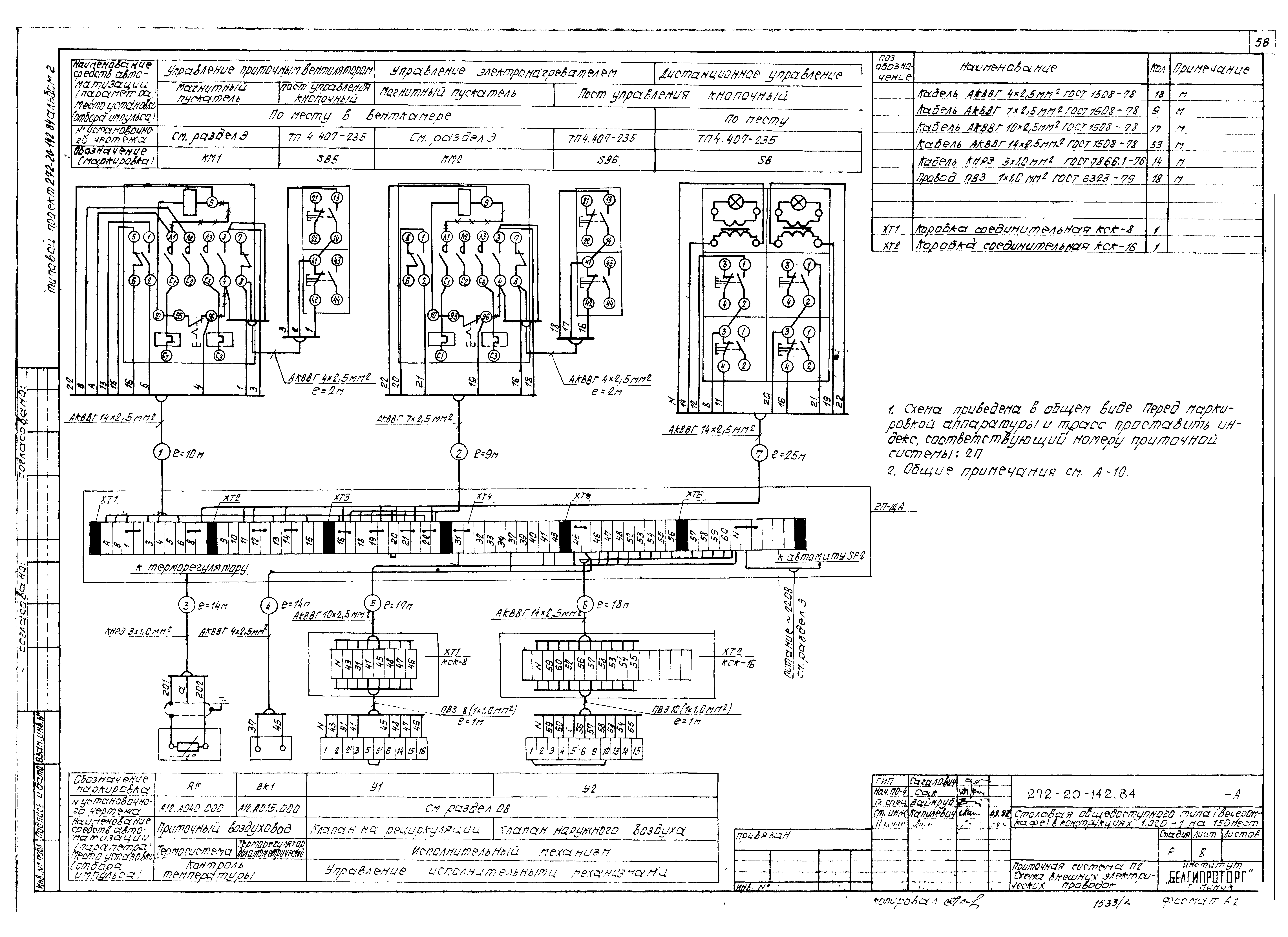
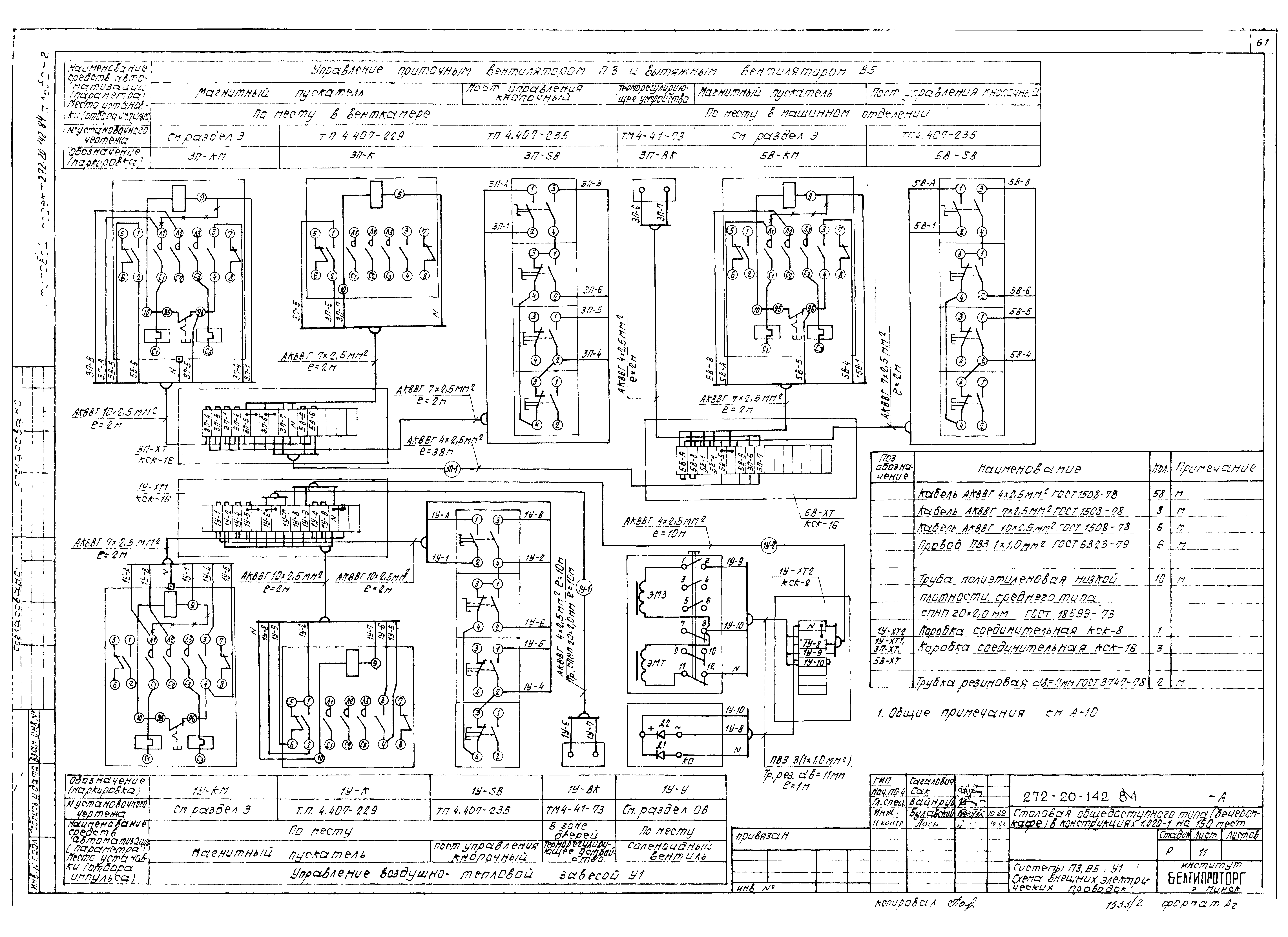
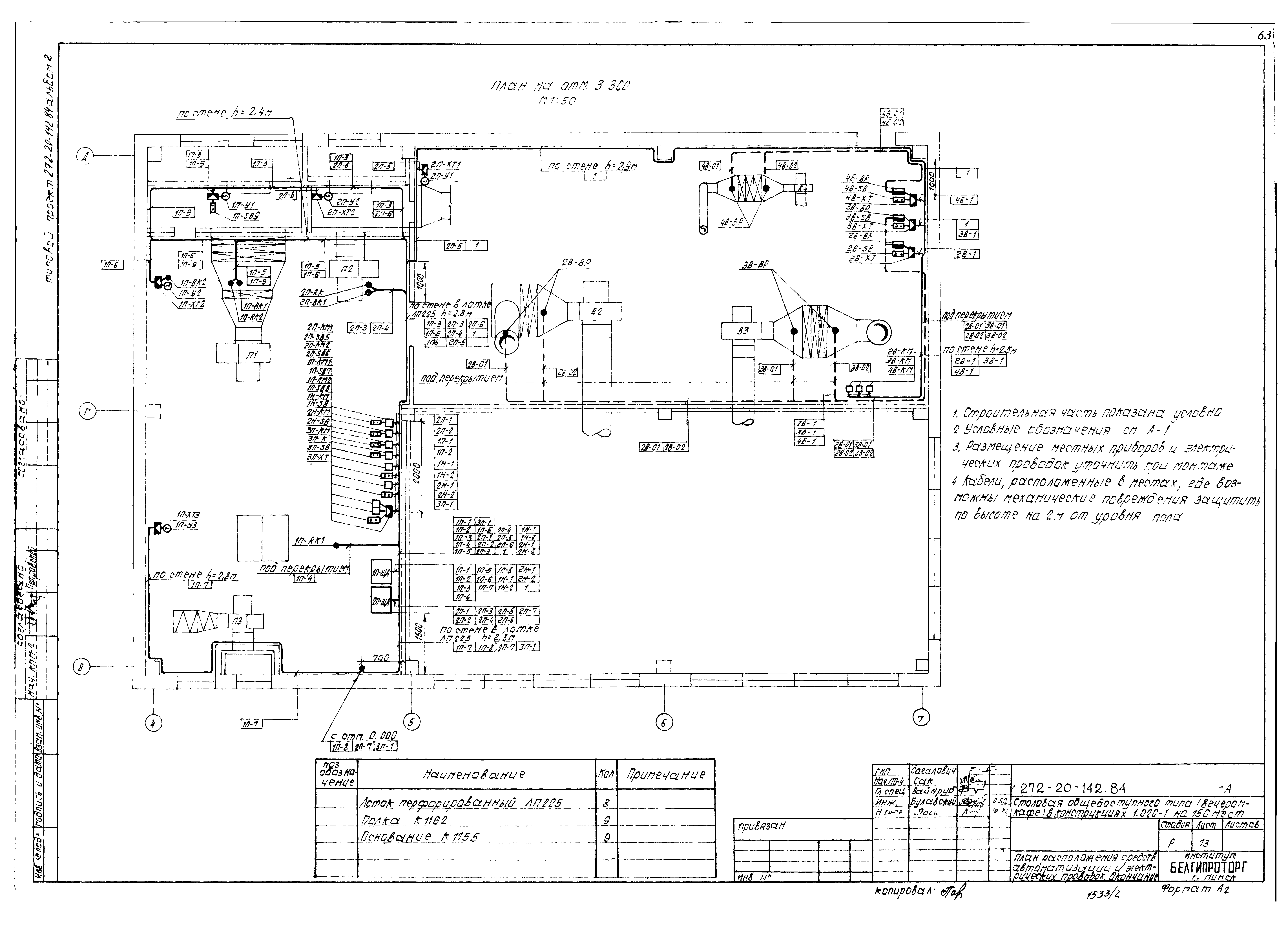
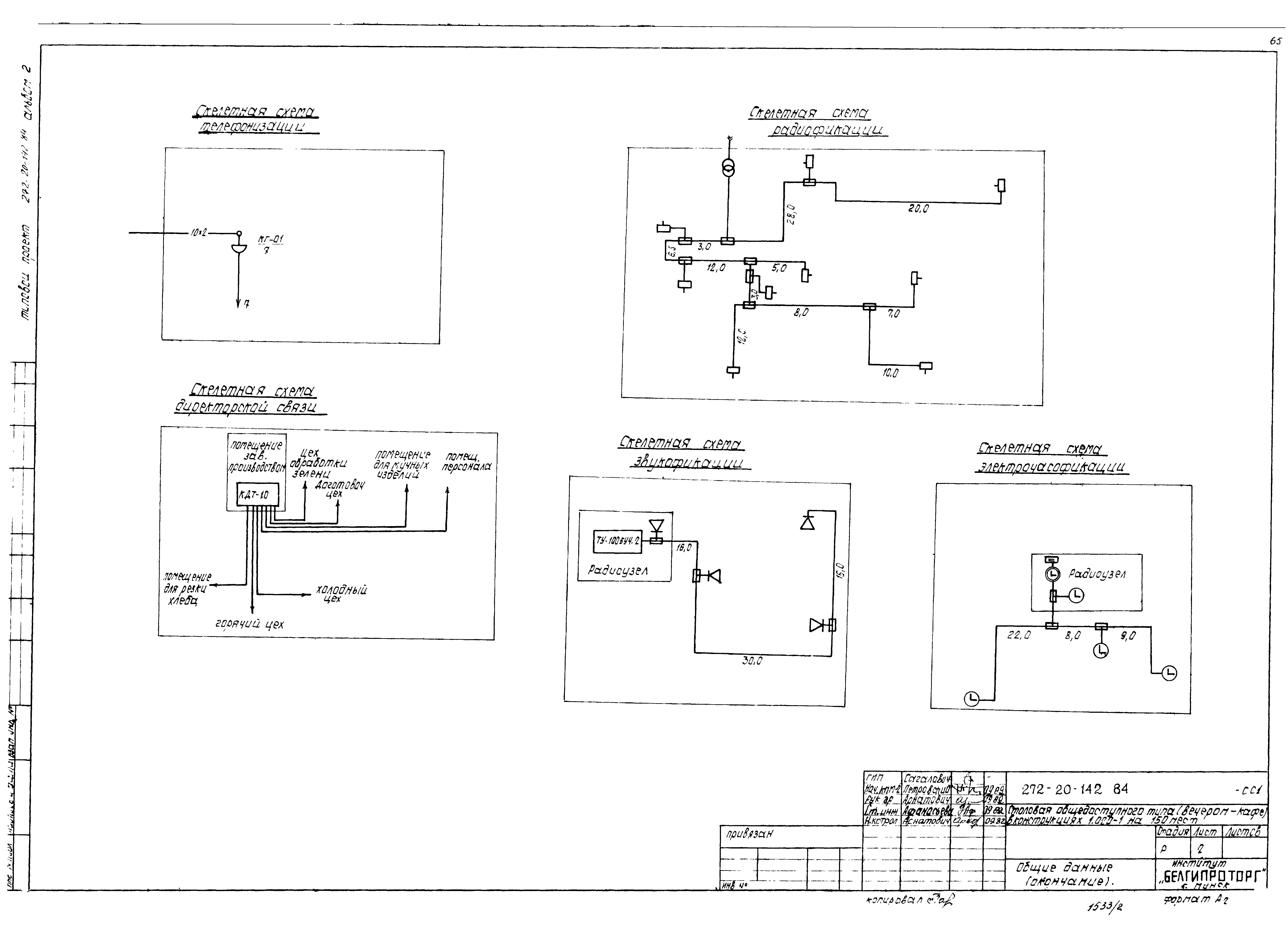
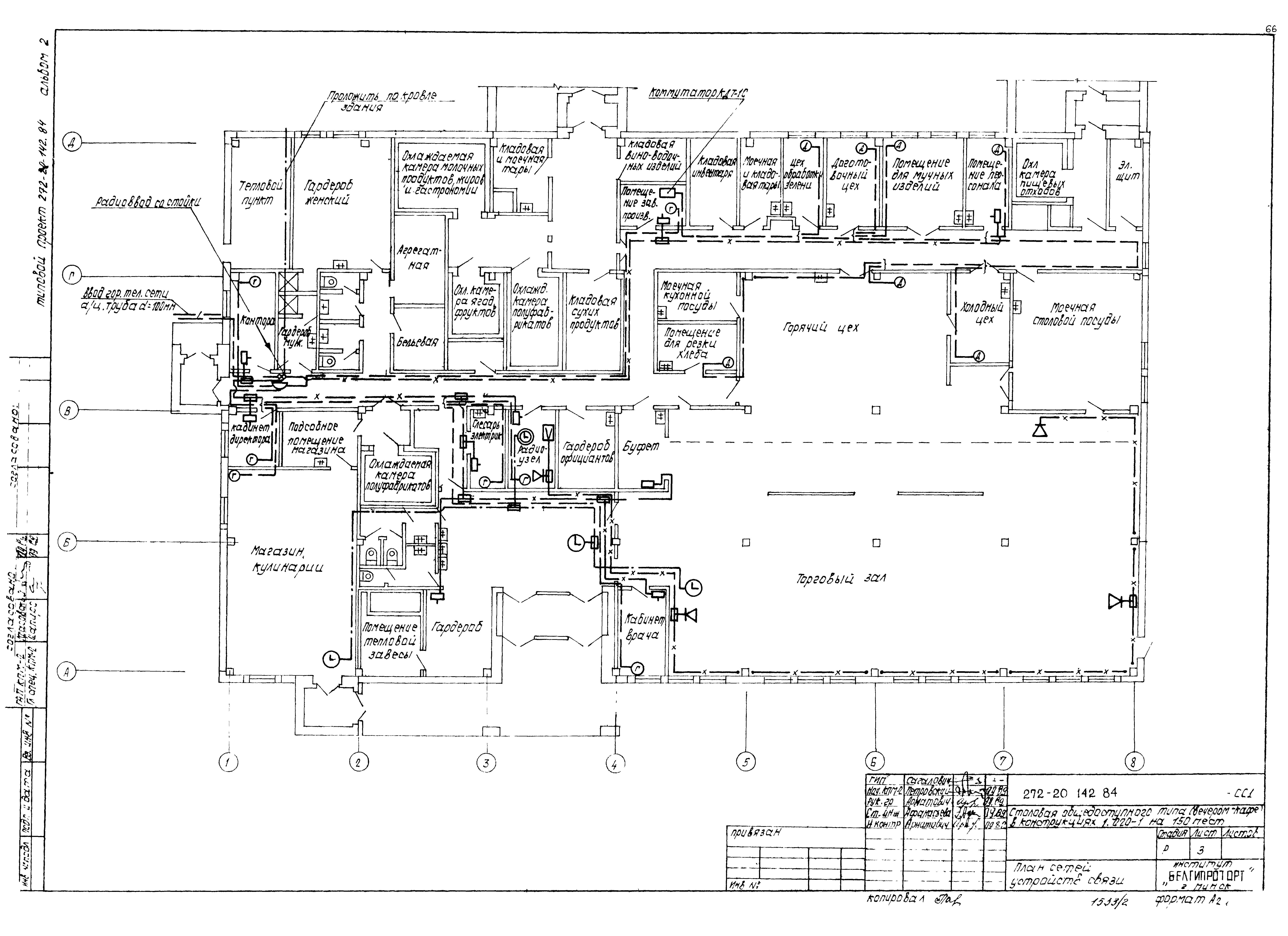
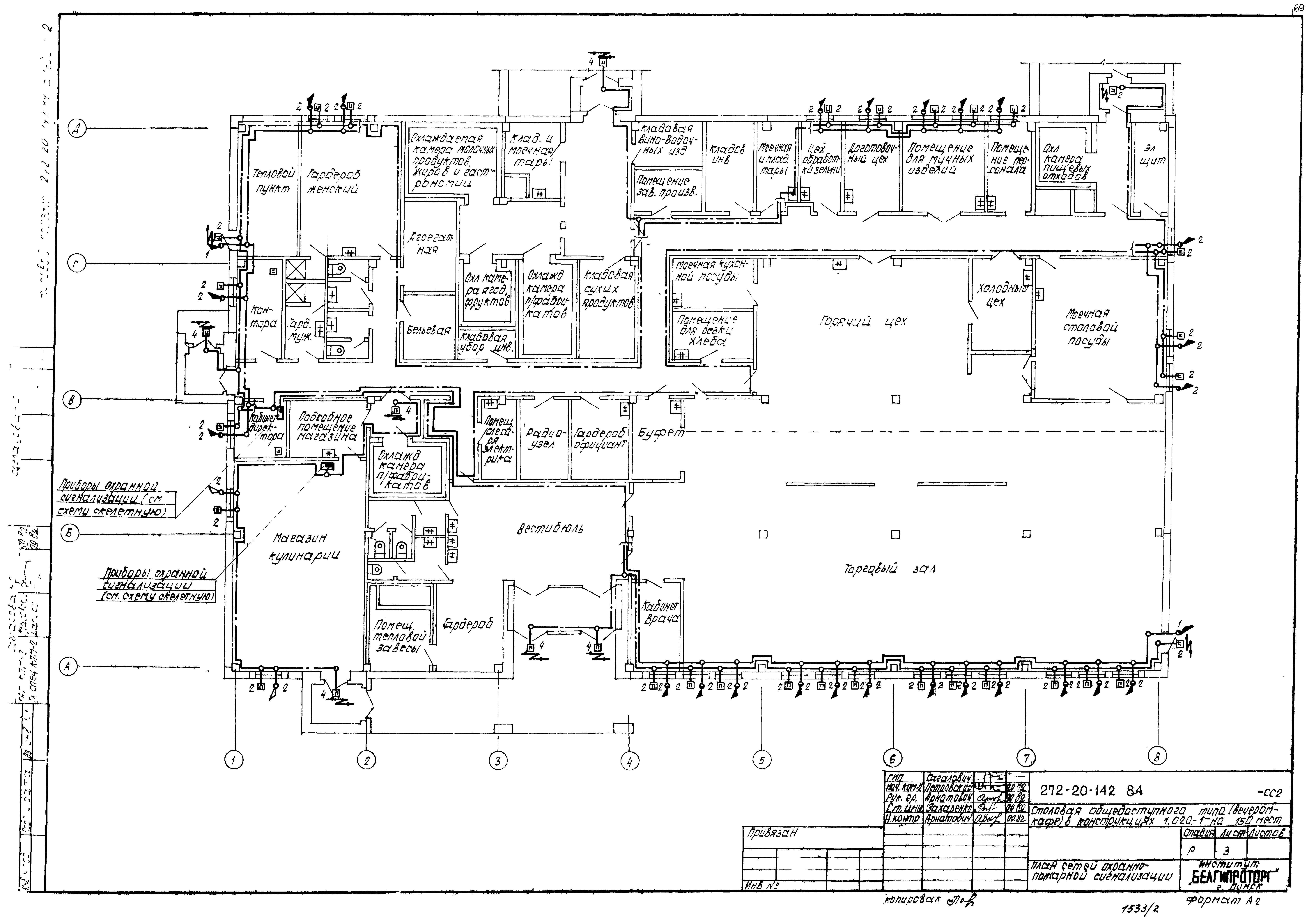
| Оглавление: | Чертежи основного комплекта марки ВК Общие данные План на отм. 0.000 с системами В1, Т3, К1, К2, К3, К13 План на отм. 3.300 с системами В1, К2, К13. Экспликация помещений Схема системы В1 Схема системы Т3 Схема систем К1, К2, К3, К13 Чертежи основного комплекта марки ОВ Общие данные Отопление. Теплоснабжение установок систем. План на отм. 0.000 Отопление. Теплоснабжение установок систем. План на отм. 3.300. Схемы теплоснабжения П1, У1 Вентиляция. План на отм. 0.000 Вентиляция. План на отм. 3.300. Экспликация помещений. Таблица местных отсосов от технологического оборудования Утилизация тепла. План на отм. 3.300. Схема системы утилизации тепла Схема системы отопления Схемы систем П1 - П3, У1, В1 Схемы систем В2 - В8, ВЕ1 - ВЕ11 Установка систем П1 - П4, В1 - В4, В6 - В8. План Установка систем П1 - П4, В1 - В4, В6 - В8. Разрезы 1-1, 2-2 Спецификация отопительно-вентиляционных установок П1, П2, П3 Спецификация отопительно-вентиляционных установок П4, В1, В2, В3 Спецификация отопительно-вентиляционных установок В4, В6, В7, В8 Установка системы У1 Узел управления. План. Вид А. Вид Б-Б. Спецификация оборудования и материалов Чертежи основного комплекта марки ХС Общие данные План расположения холодильного оборудования. Разрез 1-1 Монтажно-технологические схемы холодильных машин ХМВ1-6 и ФАК-1,5МЗ Монтаж и крепление испарителей ИРСН из двух батарей Указание по монтажу холодильного оборудования, испытание систем. Узлы монтажа Чертежи основного комплекта марки Э Общие данные Сводная спецификация Расчетная схема питающей сети Расчетная схема распределительной сети (ЩС-1, ЩС-2) Расчетная схема распределительной сети (ЩС-3, ЩС-4) Расчетная схема распределительной сети (ЩС-5, ЩС-6) План силовых сетей на отм. 0.000 План силовых сетей на отм. 3.300 План питающих сетей на отм. 0.000 План питающих сетей на отм. 3.300 План сетей освещения на отм. 0.000 План сетей освещения на отм. 3.300 Чертежи основного комплекта марки А Общие данные Системы П1, П2, В2, В3, насосы утилизации. Схема функциональная автоматизации Система П1. Схема электрическая принципиальная управления Система П2. Схема электрическая принципиальная управления Система В2 (В3, В4), насос утилизации №1 (№2). Схема электрическая принципиальная управления Системы П3, В5, У1. Схема электрическая принципиальная управления Система П1. Схема внешних электрических проводок Система П2. Схема внешних электрических проводок Система В2, В3, В4. Схема внешних электрических проводок Насосы утилизации. Схема внешних электрических проводок Системы П3, В5, У1. Схема внешних электрических проводок План расположения средств автоматизации и электрических проводок Чертежи основного комплекта марки СС1 Общие данные План сетей устройств связи Чертежи основного комплекта марки СС2 Общие данные План сетей охранно-пожарной сигнализации |
| Разработан: | Белгипроторг |
| Утверждён: | 29.04.1983 Госгражданстрой (Gosgrazhdanstroy 129) |





































































