Скачать Типовой проект 272-20-142.84 Альбом 3. Чертежи задания заводу-изготовителюДата актуализации: 01.01.2021
|
| Обозначение: | Типовой проект 272-20-142.84 |
| Обозначение англ: | 272-20-142.84 |
| Статус: | не определен законодательством |
| Название рус.: | Альбом 3. Чертежи задания заводу-изготовителю |
| Дата добавления в базу: | 01.09.2013 |
| Дата актуализации: | 01.01.2021 |
| Дата введения: | 12.09.1984 |
| Дата окончания срока действия: | 30.06.2003 |
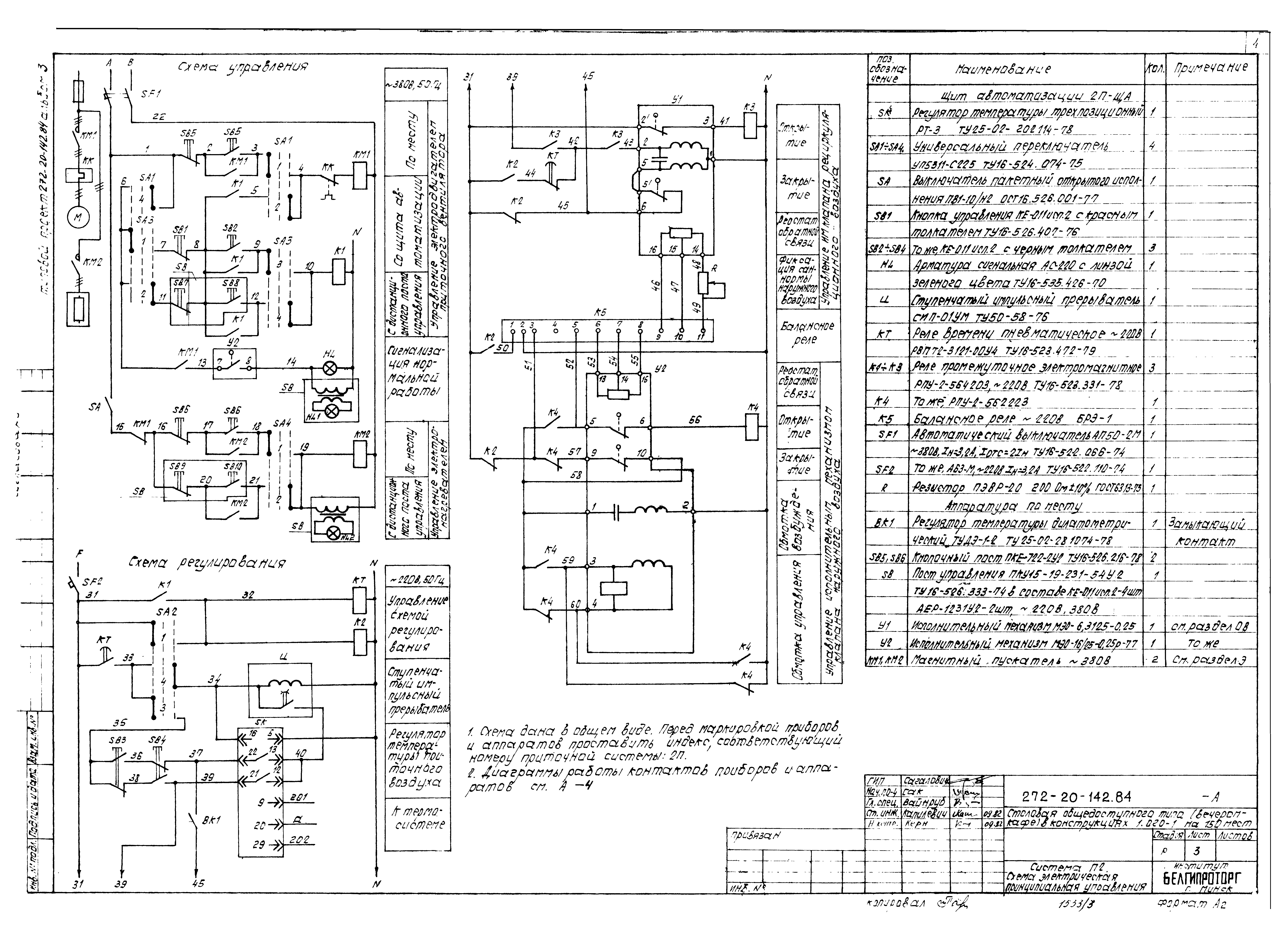
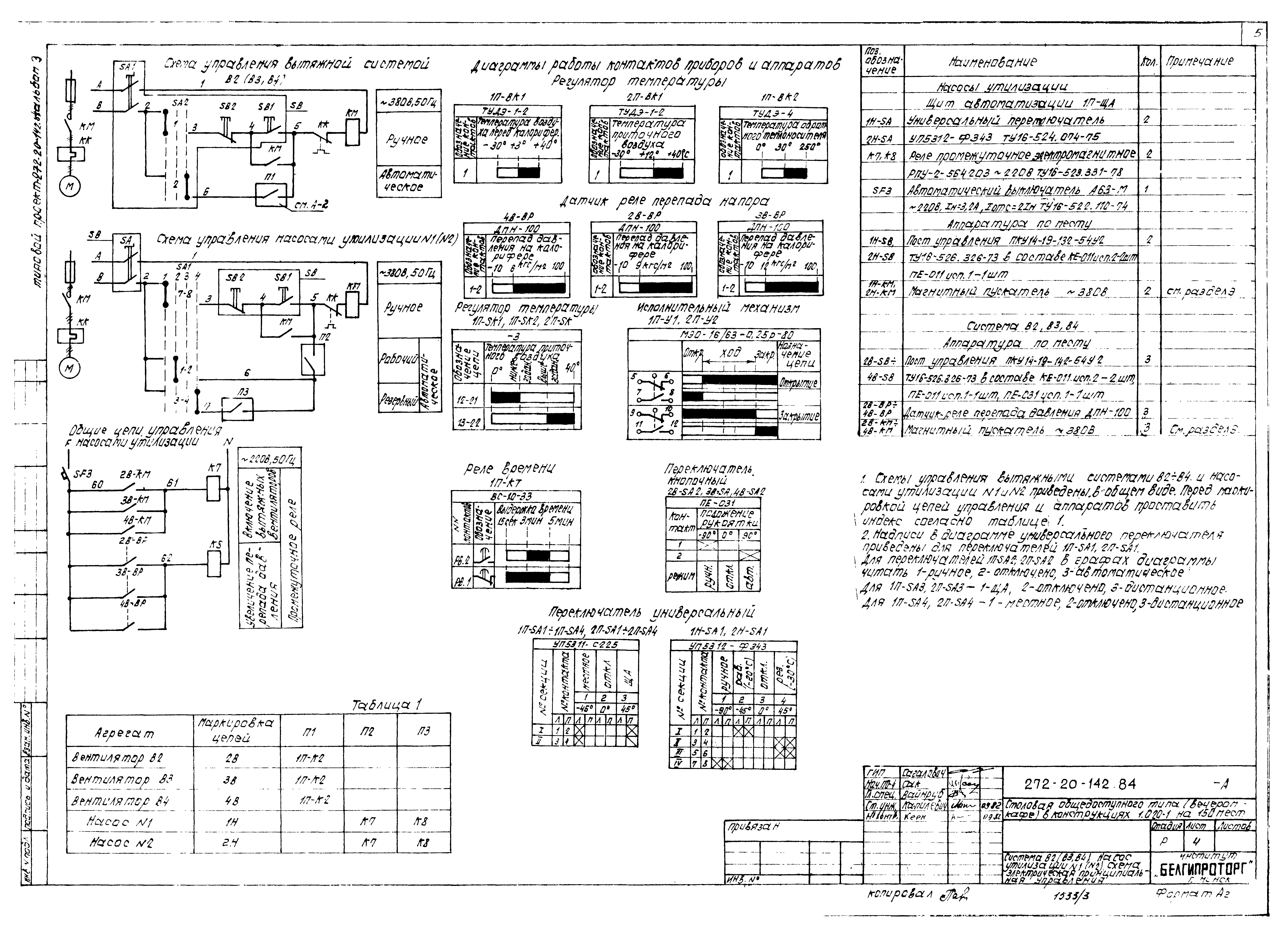
| Оглавление: | Общие данные Система П1. Схема электрическая принципиальная управления Система П2. Схема электрическая принципиальная управления Система В2 (В3, В4). Насос утилизации №1 (№2). Схема электрическая принципиальная управления Система П1. Щит автоматизации 1П-ЩА. Общий вид Система П2. Щит автоматизации 2П-ЩА. Общий вид Заказная спецификация на щиты и электроаппаратуру |
| Разработан: | Белгипроторг |
| Утверждён: | 29.04.1983 Госгражданстрой (Gosgrazhdanstroy 129) |
















