Скачать Типовой проект 284-3-49.83 Альбом I. Архитектурные решения. Конструкции железобетонные. Технологические чертежиДата актуализации: 01.01.2021
|
| Обозначение: | Типовой проект 284-3-49.83 |
| Обозначение англ: | 284-3-49.83 |
| Статус: | действует |
| Название рус.: | Альбом I. Архитектурные решения. Конструкции железобетонные. Технологические чертежи |
| Дата добавления в базу: | 01.09.2013 |
| Дата актуализации: | 01.01.2021 |
| Дата введения: | 10.07.1984 |
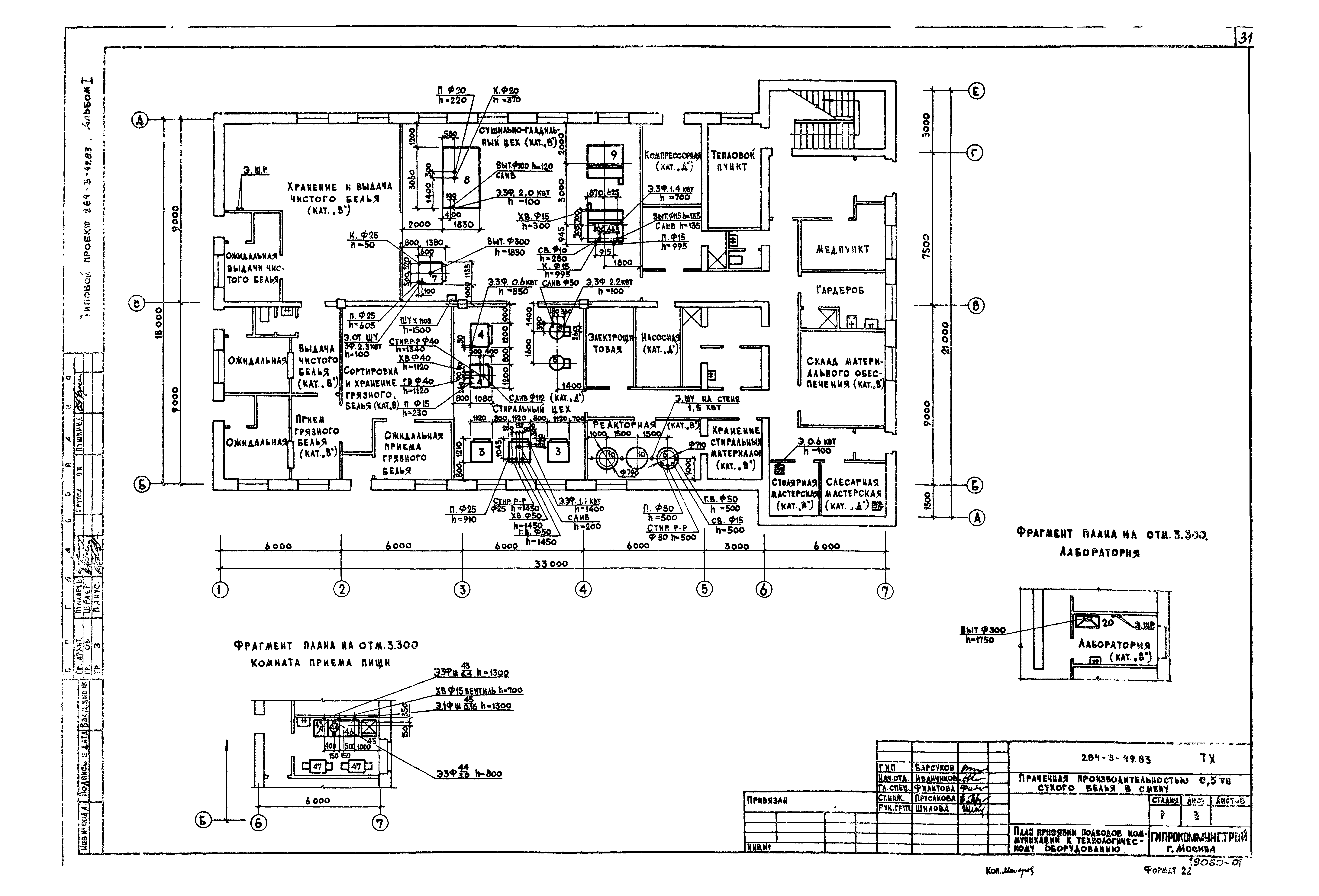
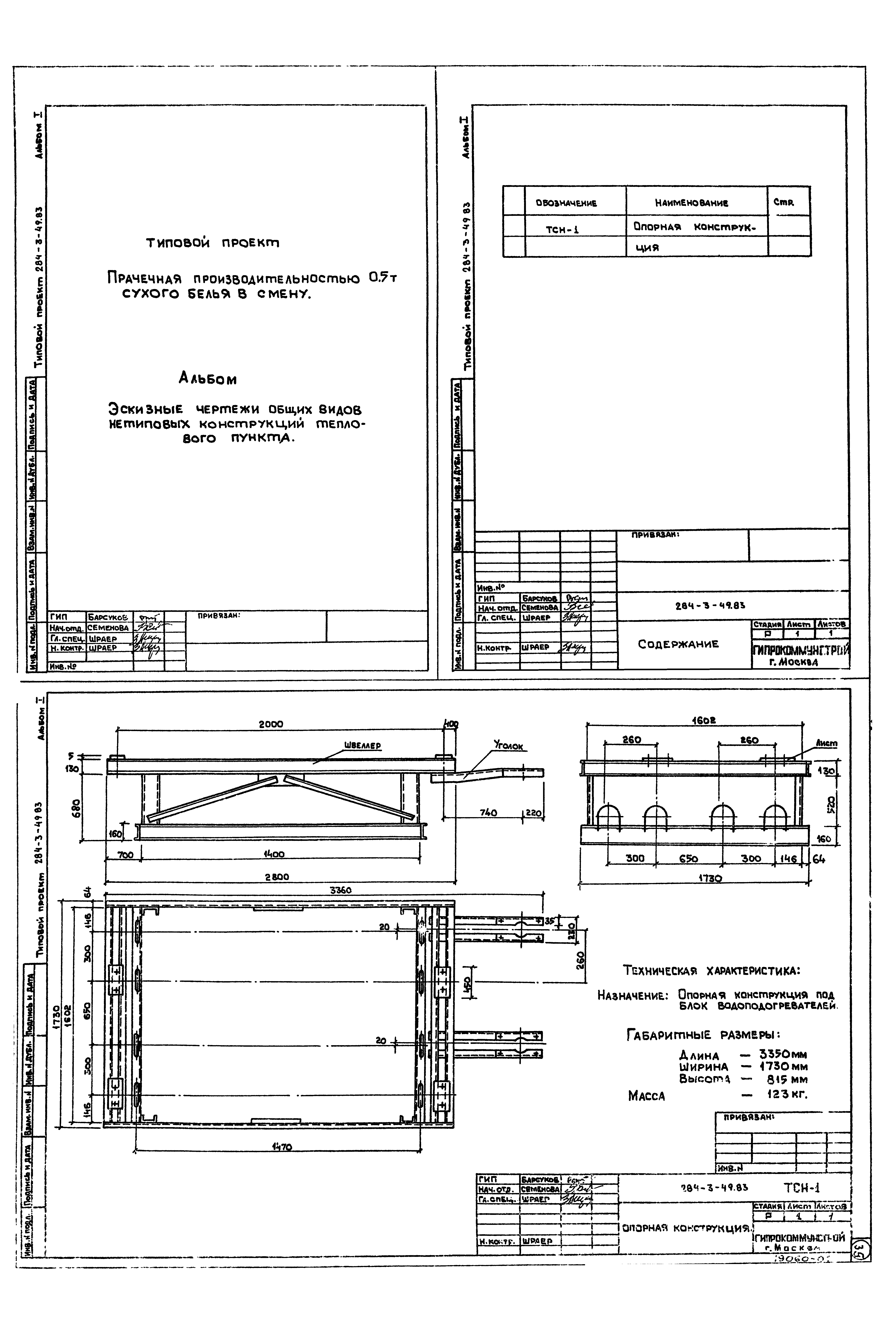
| Оглавление: | Обложка Титульный лист Содержание альбома Архитектурные решения Конструкции железобетонные Технологические чертежи Опорная конструкция |
| Разработан: | Гипрокоммунстрой |
| Утверждён: | 18.02.1983 Минжилкомхоз РСФСР (Russian Federation Minzhilkomkhoz 3-ТД) |




































