Скачать Серия 416-0-1 Выпуск 2. Примеры планировочных решений бытовых помещенийДата актуализации: 01.01.2021
|
| Обозначение: | Серия 416-0-1 |
| Обозначение англ: | Series 416-0-1 |
| Статус: | не действует |
| Название рус.: | Выпуск 2. Примеры планировочных решений бытовых помещений |
| Дата добавления в базу: | 01.09.2013 |
| Дата актуализации: | 01.01.2021 |
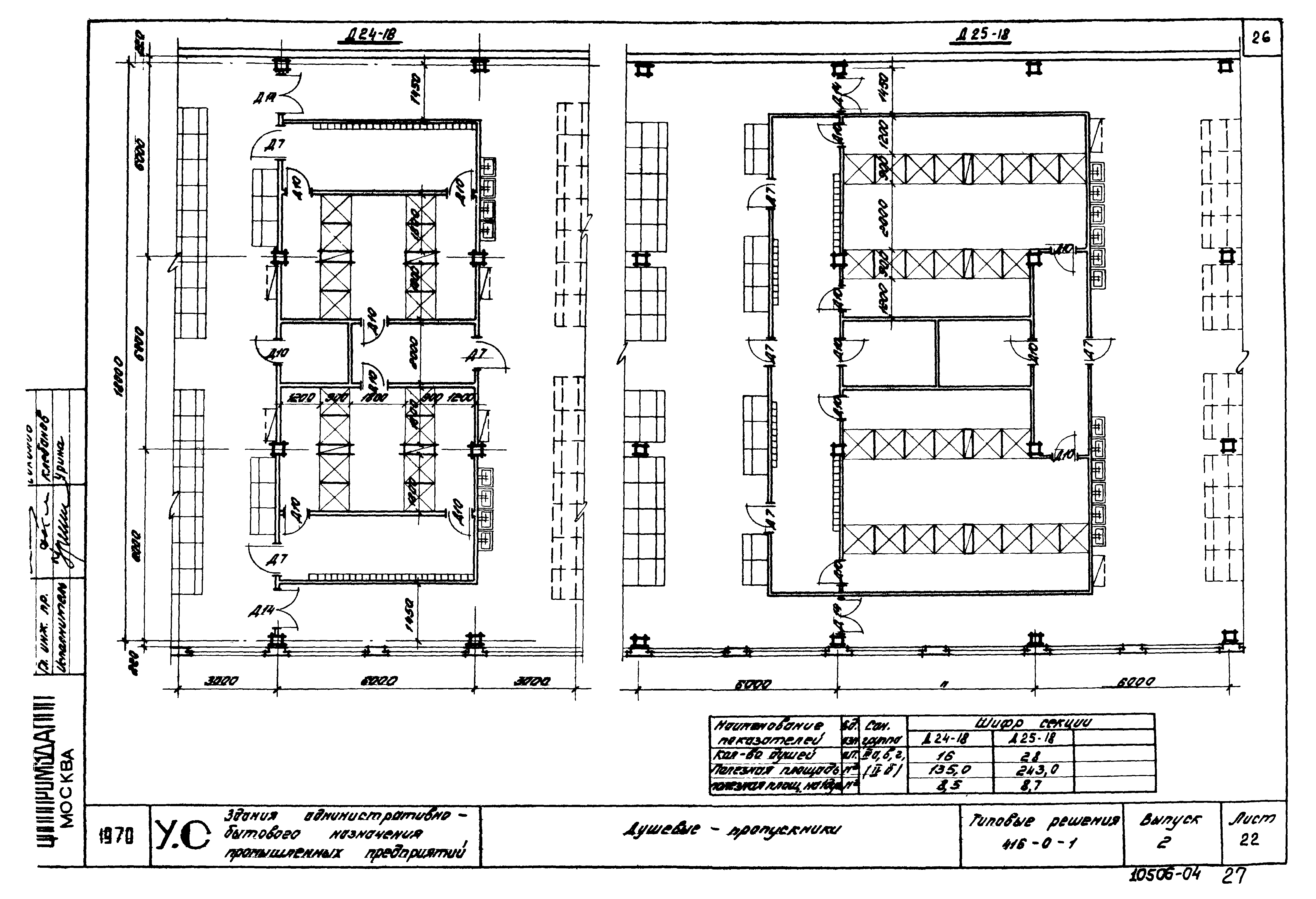
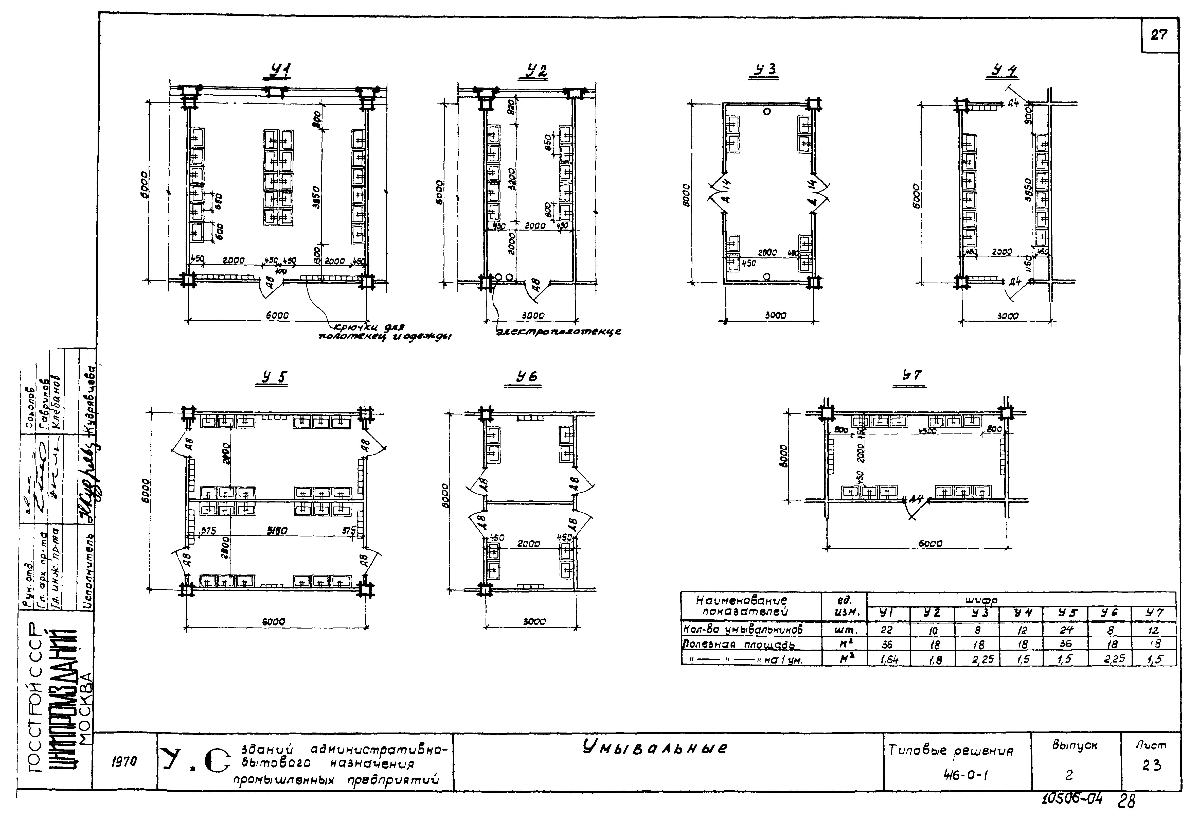
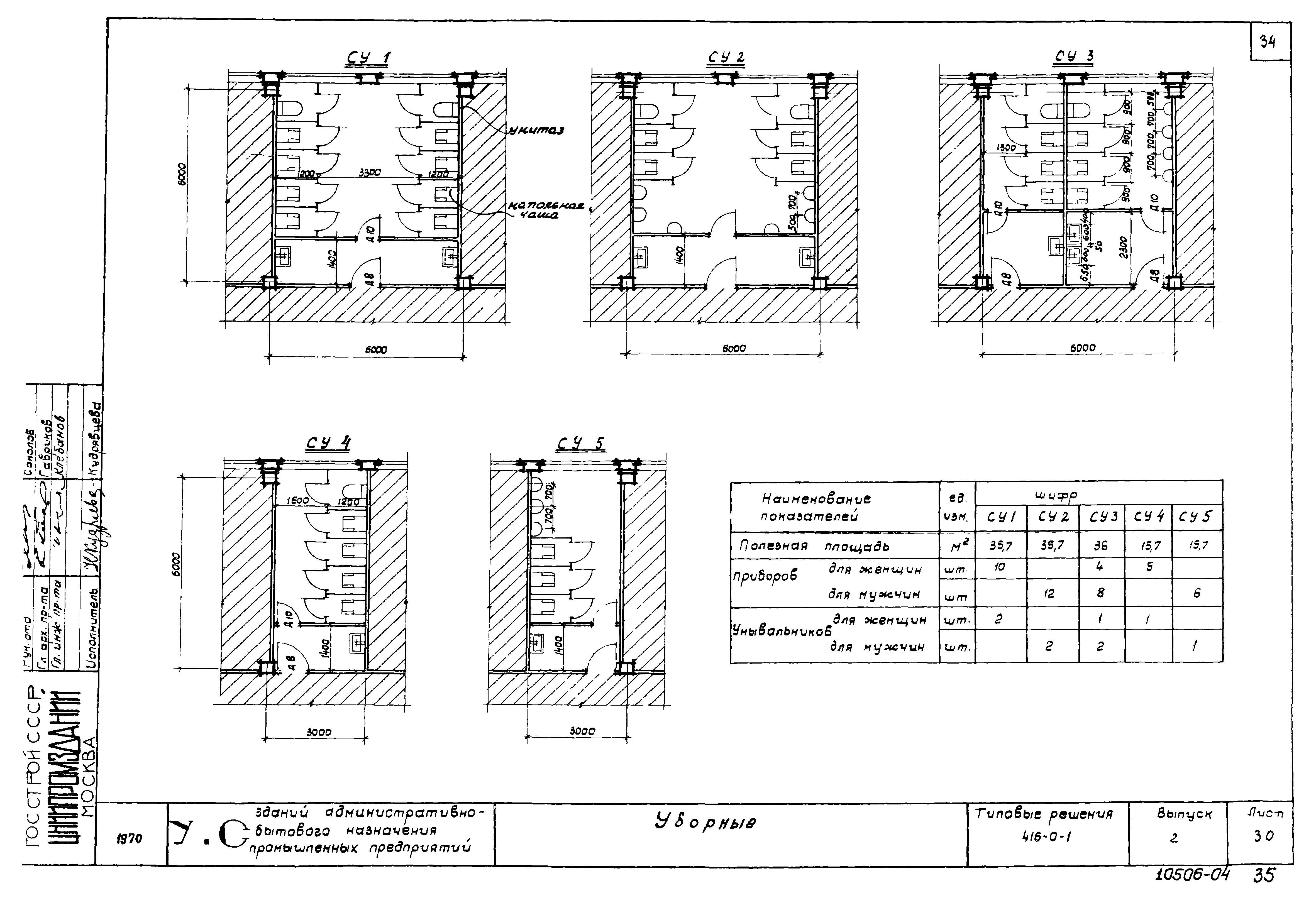
| Оглавление: | Пояснительная записка Бытовые помещения: а) Гардеробные б) Душевые в) Умывальные г) Гардеробные с умывальниками д) Уборные е) Помещения для обеспыливания рабочей одежды Примеры блокировки планировочных элементов Приложение |
| Разработан: | ЦНИИпромзданий |
| Утверждён: | 16.04.1970 Госстрой СССР (Государственный комитет Совета Министров СССР по делам строительства) (USSR Gosstroy 2/2-84) |














































