Скачать Типовой проект 701-4-139.86 Альбом II. Холодильно-технологические решения. Автоматизация технологических процессов. Электроосвещение и электрооборудование. Связь и сигнализацияДата актуализации: 01.01.2021
|
| Обозначение: | Типовой проект 701-4-139.86 |
| Обозначение англ: | 701-4-139.86 |
| Статус: | не определен законодательством |
| Название рус.: | Альбом II. Холодильно-технологические решения. Автоматизация технологических процессов. Электроосвещение и электрооборудование. Связь и сигнализация |
| Дата добавления в базу: | 01.09.2013 |
| Дата актуализации: | 01.01.2021 |
| Дата введения: | 02.04.1988 |
| Дата окончания срока действия: | 30.06.2003 |
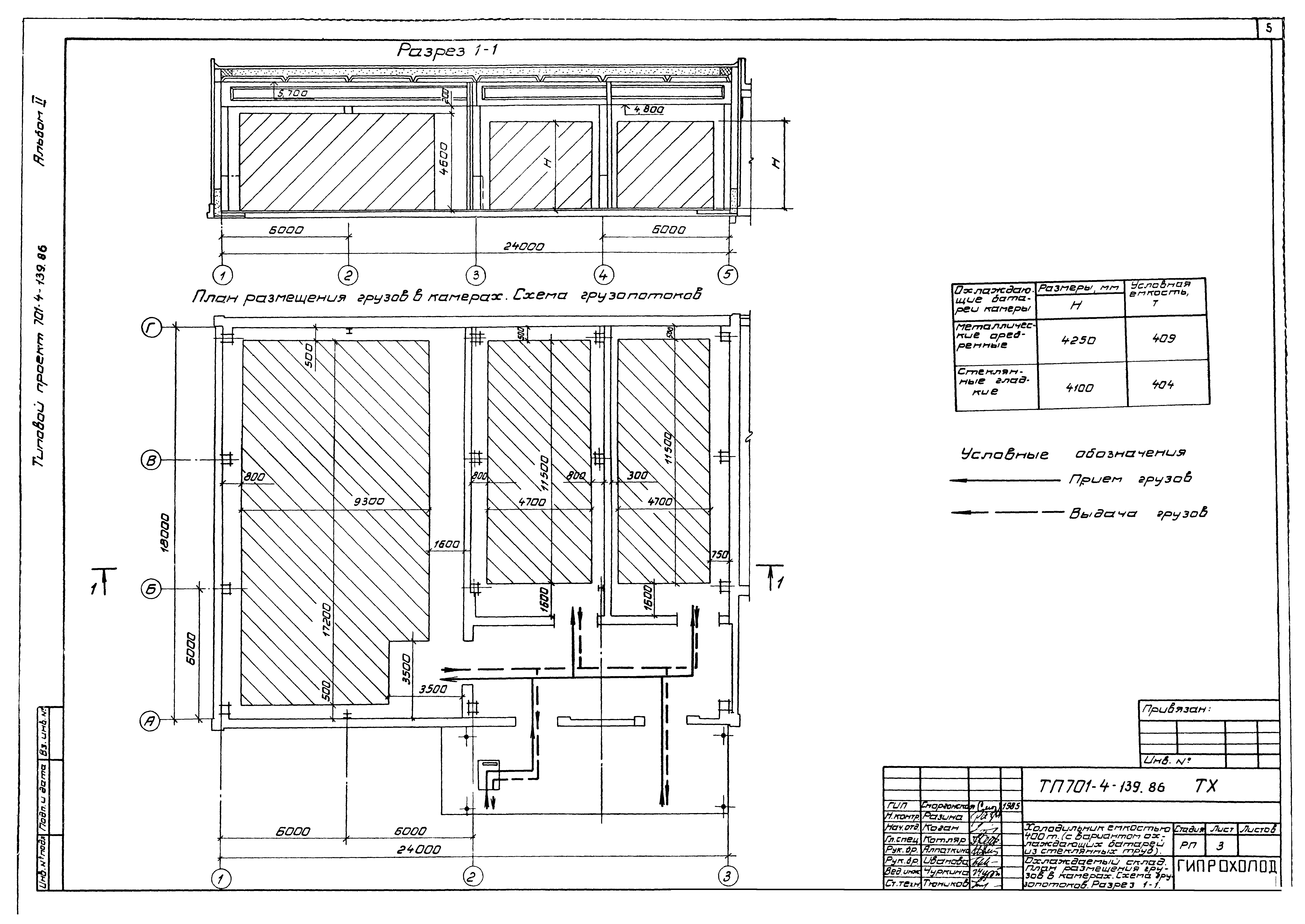
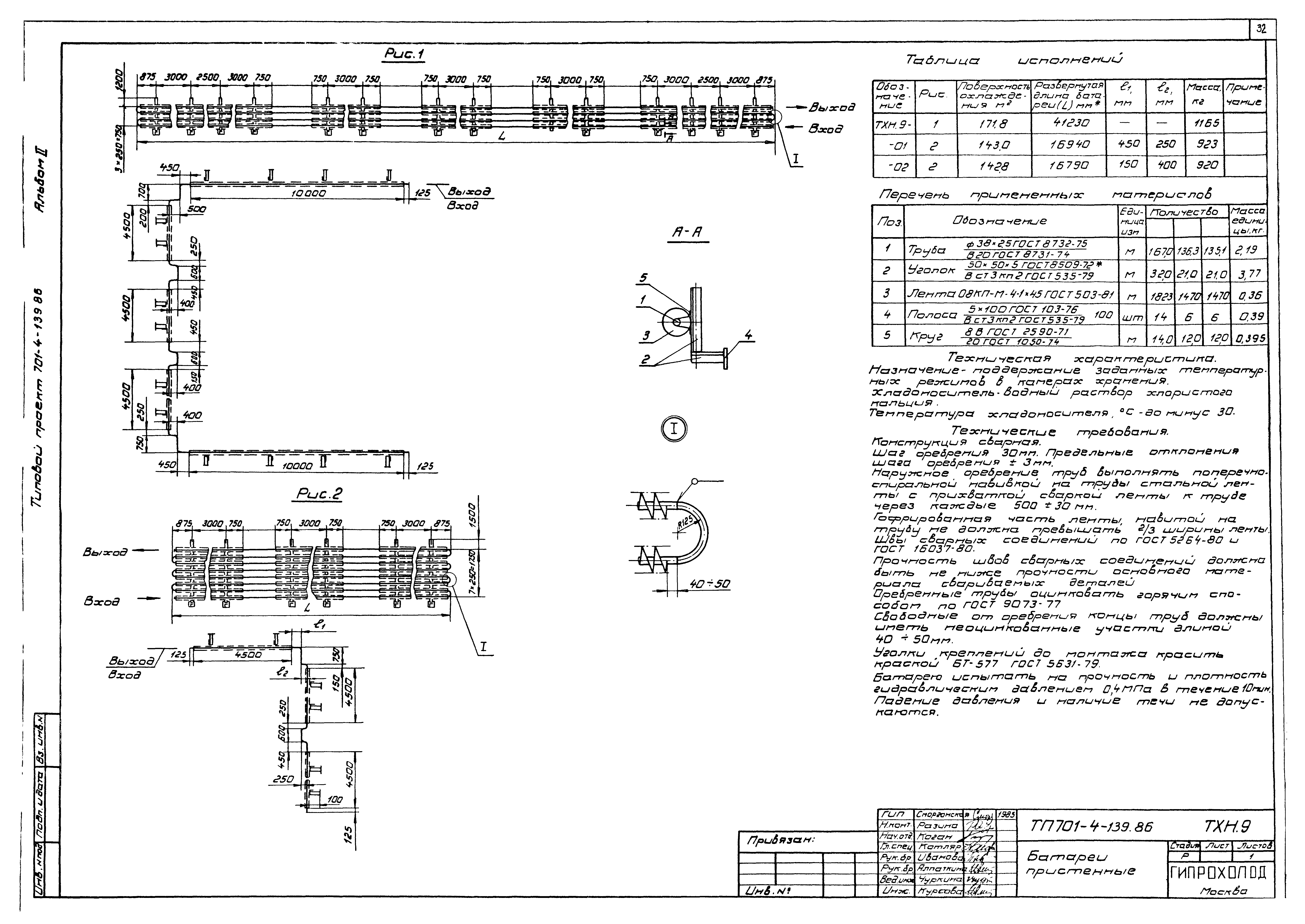
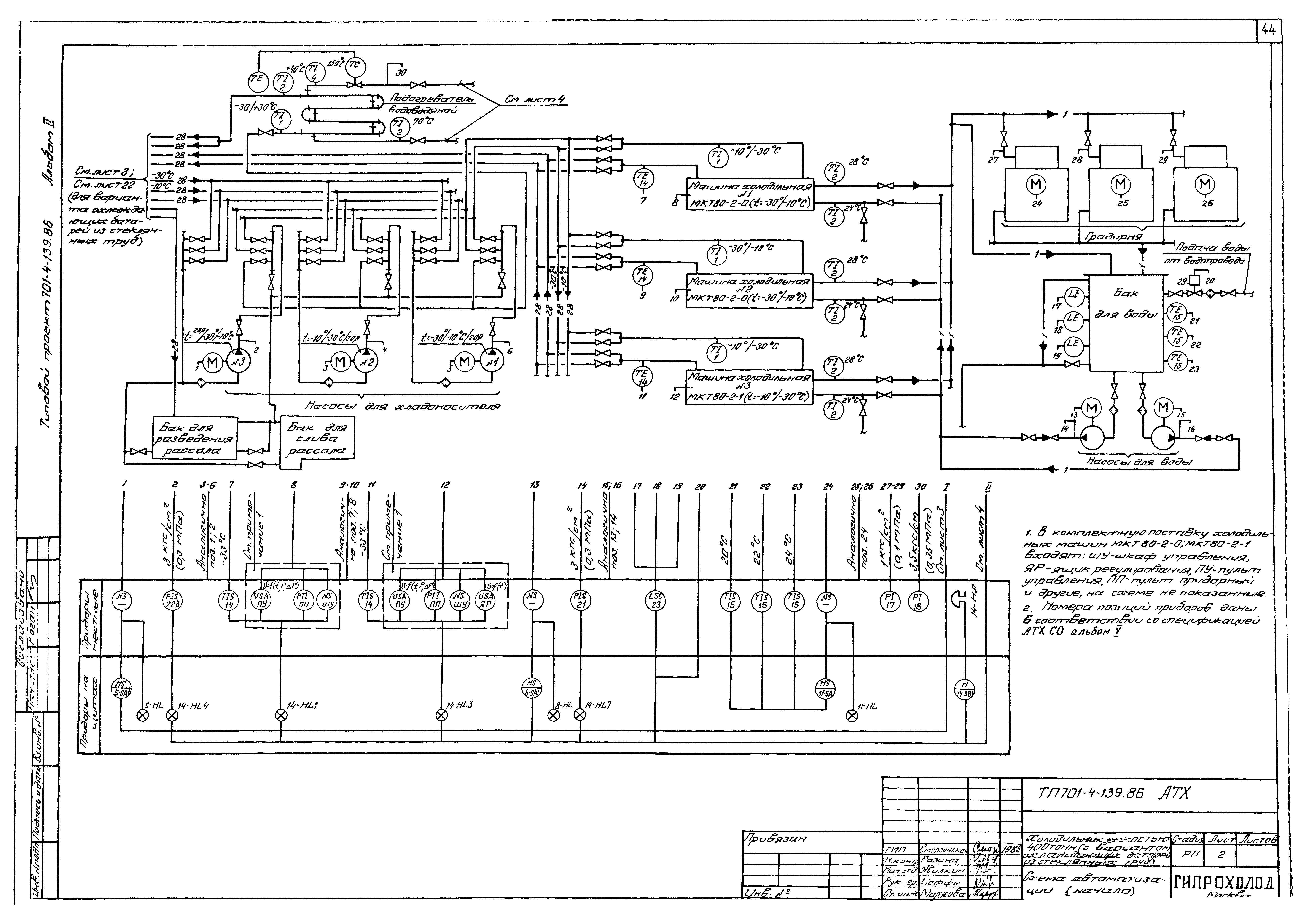
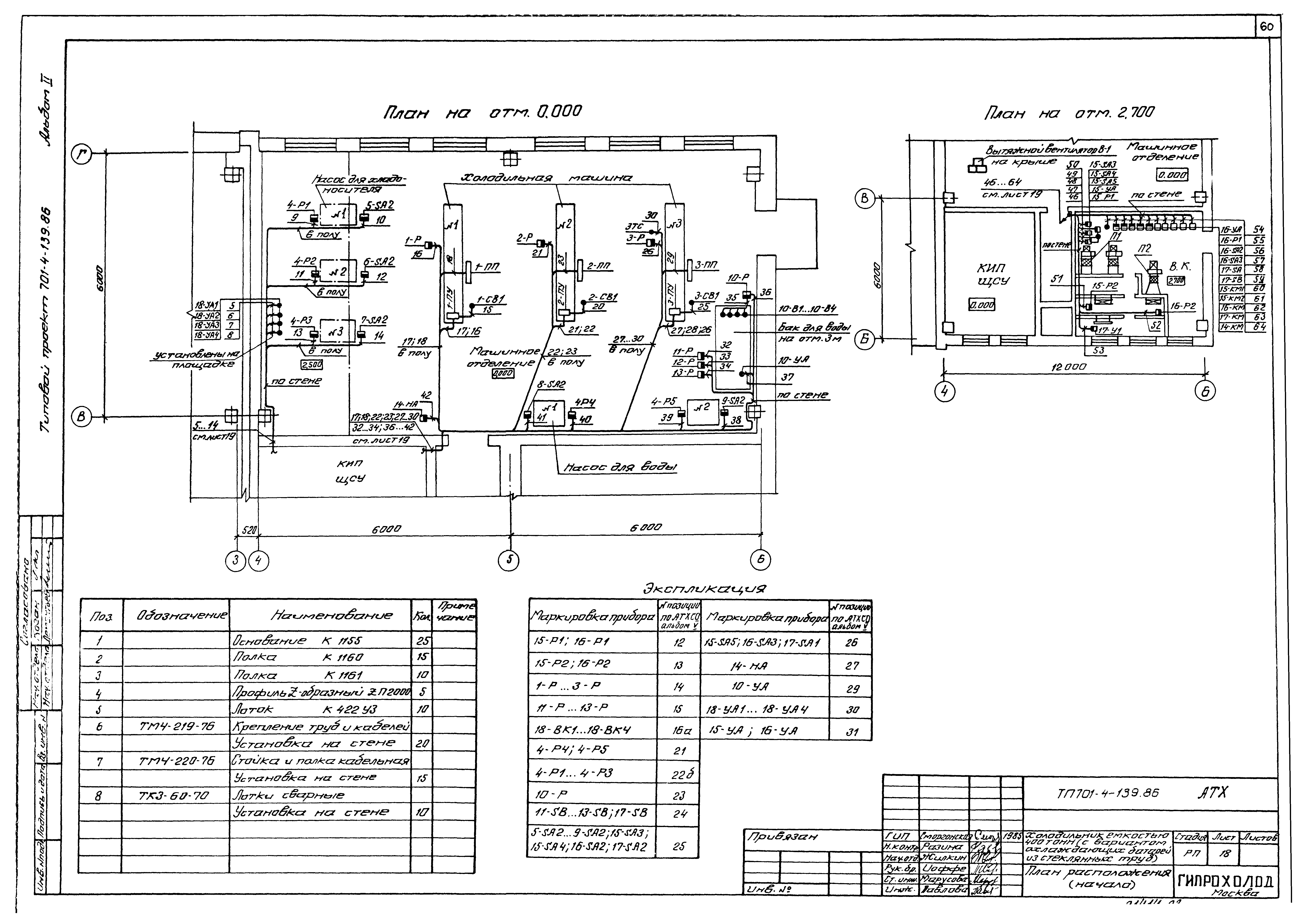
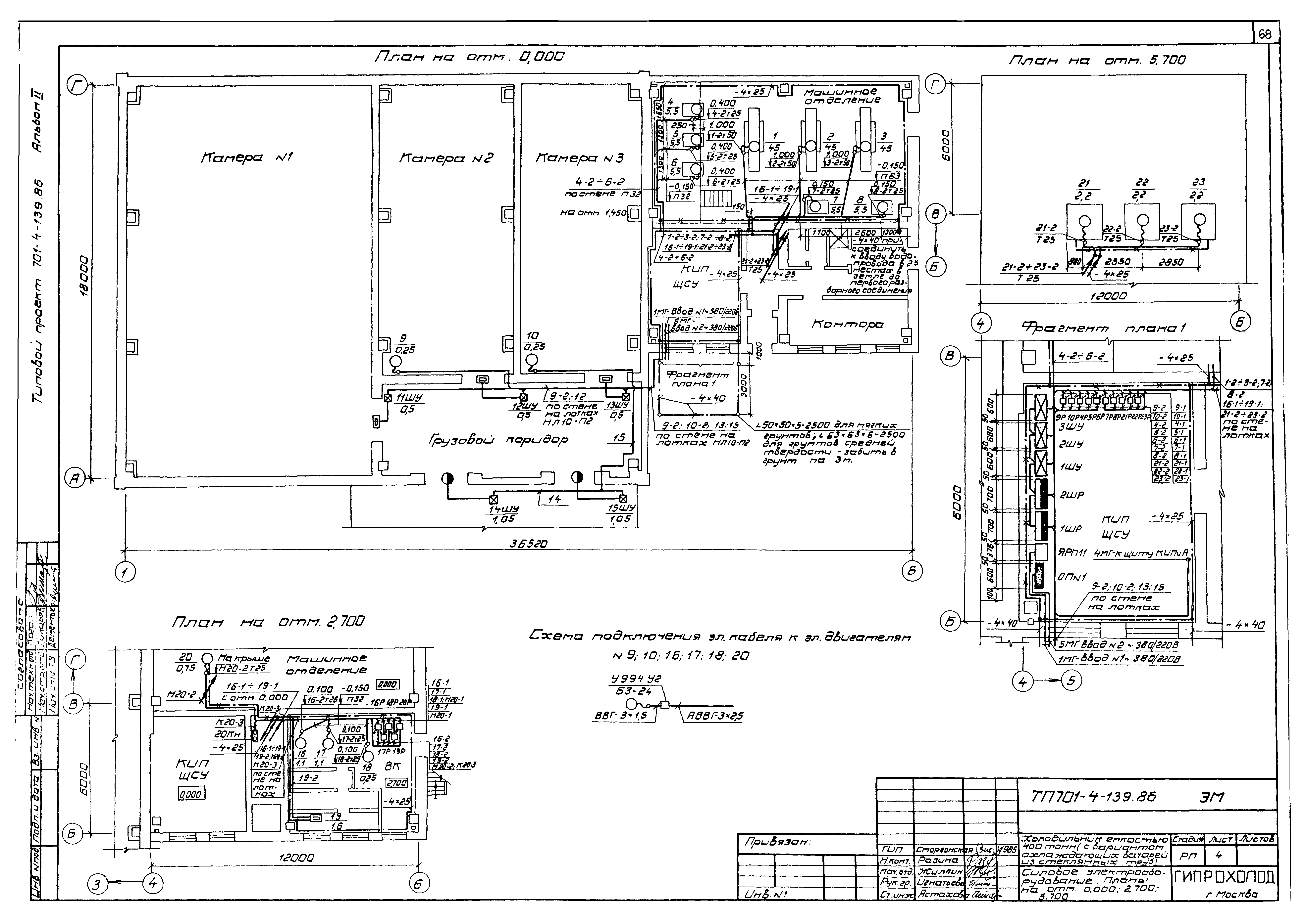
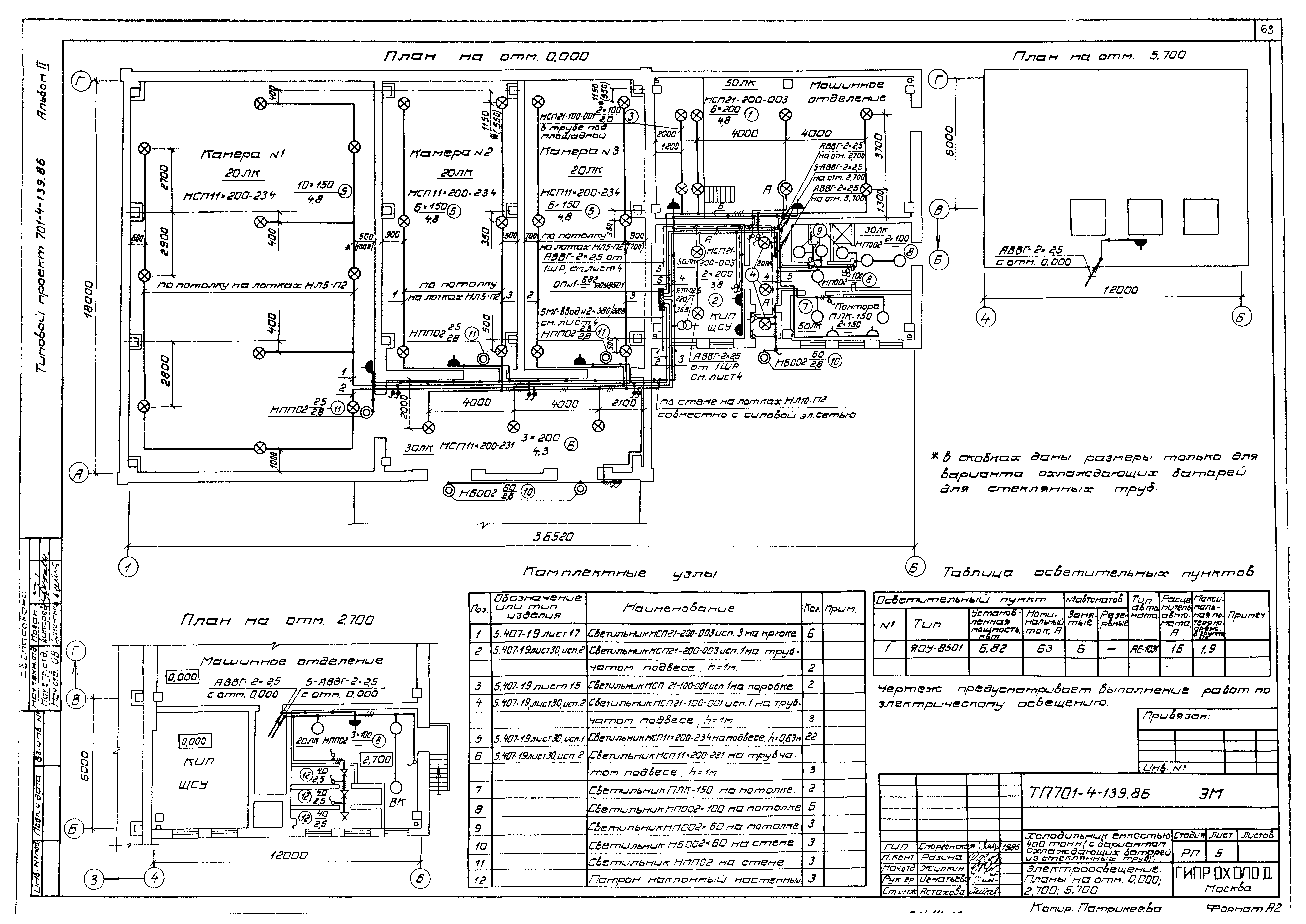
| Оглавление: | Холодильно-технологические решения Общие данные Охлаждаемый склад. План размещения грузов в камерах. Схема грузопотоков. Разрез 1-1 Охлаждаемый склад. Схема механизации грузовых работ План с расположением опор для крепления технологических трубопроводов Машинное отделение. План на отм. 0.000. Разрезы 2-2; 3-3 Машинное отделение. План на отм. 2.500; 5.700; 6.700. Разрез 4-4 Машинное отделение. Разрезы 5-5; 6-6; 7-7; 8-8 Машинное отделение. Схема трубопроводов Охлаждаемый склад. План с расположением оборудования. Разрезы 9-9; 10-10; 11-11 Охлаждаемый склад. Разрезы 12-12; 13-13 Охлаждаемый склад. Схема трубопроводов Машинное отделение. План на отм. 0.000. Разрезы 14-14; 15-15 (Вариант охлаждающих батарей из стеклянных труб) Машинное отделение. План на отм. 2.500; 5.700; 6.700. Разрез 16-16 (Вариант охлаждающих батарей из стеклянных труб) Машинное отделение. Разрезы 17-17; 18-18; 19-19; 20-20 (Вариант охлаждающих батарей из стеклянных труб) Машинное отделение. Схема трубопроводов (Вариант охлаждающих батарей из стеклянных труб) Охлаждаемый склад. План с расположением оборудования. Разрезы 26-26; 27-27 (Вариант охлаждающих батарей из стеклянных труб) Охлаждаемый склад. Разрезы 21-21; 22-22; 23-23; 24-24 (Вариант охлаждающих батарей из стеклянных труб) Охлаждаемый склад. Схема трубопроводов (Вариант охлаждающих батарей из стеклянных труб) Экспликация трубопроводов Бак для хладоносителя Фильтр для воды и хладоносителя Блок из трех расширительных сосудов Бак для воды Опоры для крепления технологических трубопроводов Опорные стойки Контейнер для затаренных грузов Батареи потолочные оребренные Батареи пристенные оребренные Батарея потолочная из стеклянных труб Батарея пристенная из стеклянных труб Теплоизоляционные конструкции технологических трубопроводов Блок I Блок II Блоки III, IV Блок V Блок VI Автоматизация технологических процессов Общие данные Схема автоматизации Схемы электрические принципиальные Схемы соединений внешних проводок План расположения Щит №1. Общий вид Щит №2. Общий вид Схема автоматизации (Для варианта охлаждающих батарей из стеклянных труб) Электроосвещение и электрооборудование Общие данные Схема принципиальная однолинейная распределительной сети 1ШР, 2ШР Кабельный журнал Силовое электрооборудование. Планы Электроосвещение. Планы Связь и сигнализация Общие данные Схемы расположения комплексной распределительной кабельной и радиотрансляционной сетей. Список абонентских точек. Схемы Комплексная распределительная кабельная и радиотрансляционная сети. План на отм. 0.000 |
| Разработан: | Гипрохолод Минторга СССР |
| Утверждён: | 04.03.1986 Минторг СССР (USSR Mintorg 47/П-4) |









































































