Скачать Типовой проект 701-4-139.86 Альбом III. Архитектурные решения. Конструкции железобетонные и металлические. Отопление и вентиляция. Водопровод и канализация. Организация строительстваДата актуализации: 01.01.2021
|
| Обозначение: | Типовой проект 701-4-139.86 |
| Обозначение англ: | 701-4-139.86 |
| Статус: | не определен законодательством |
| Название рус.: | Альбом III. Архитектурные решения. Конструкции железобетонные и металлические. Отопление и вентиляция. Водопровод и канализация. Организация строительства |
| Дата добавления в базу: | 01.09.2013 |
| Дата актуализации: | 01.01.2021 |
| Дата введения: | 02.04.1988 |
| Дата окончания срока действия: | 30.06.2003 |
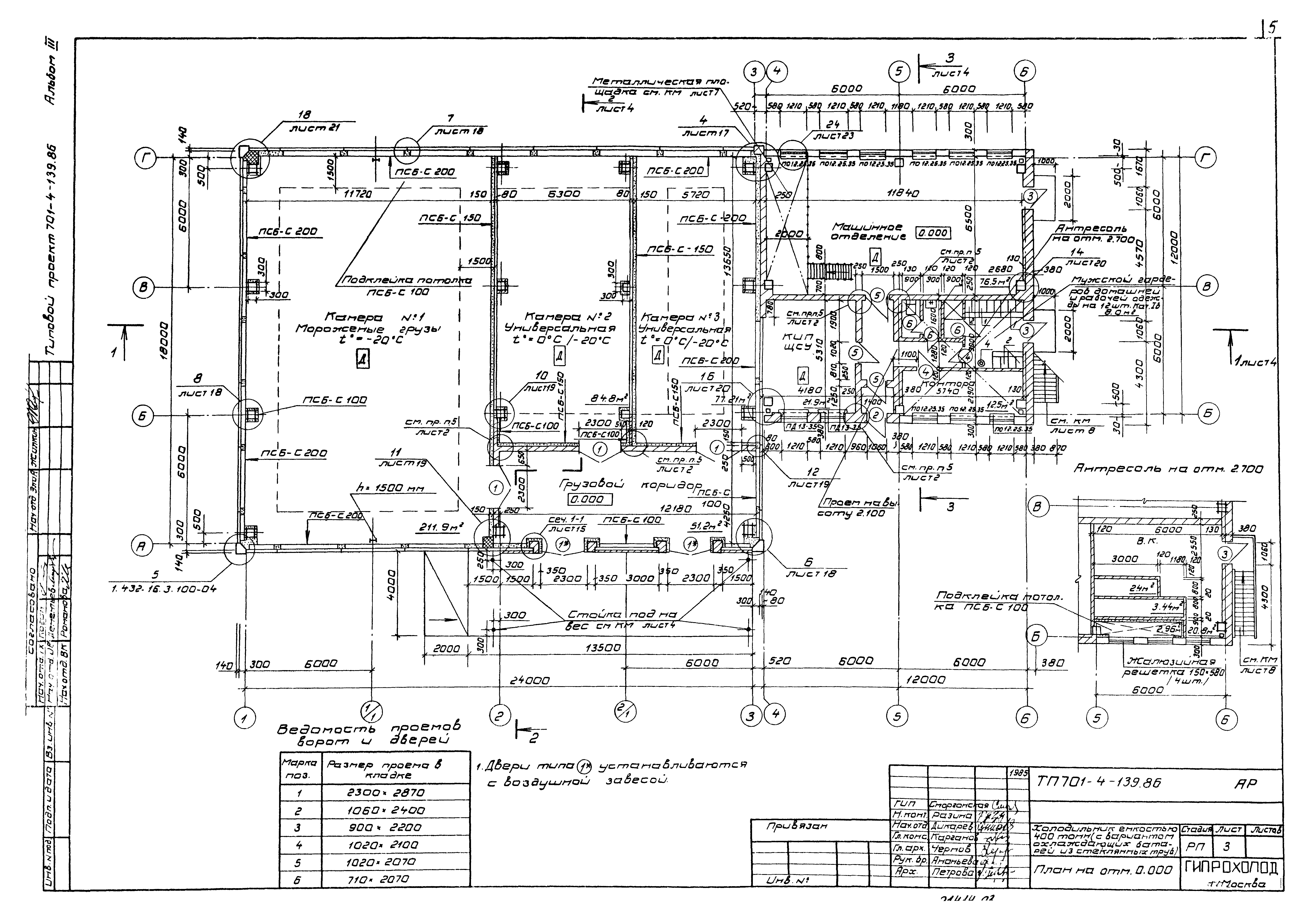
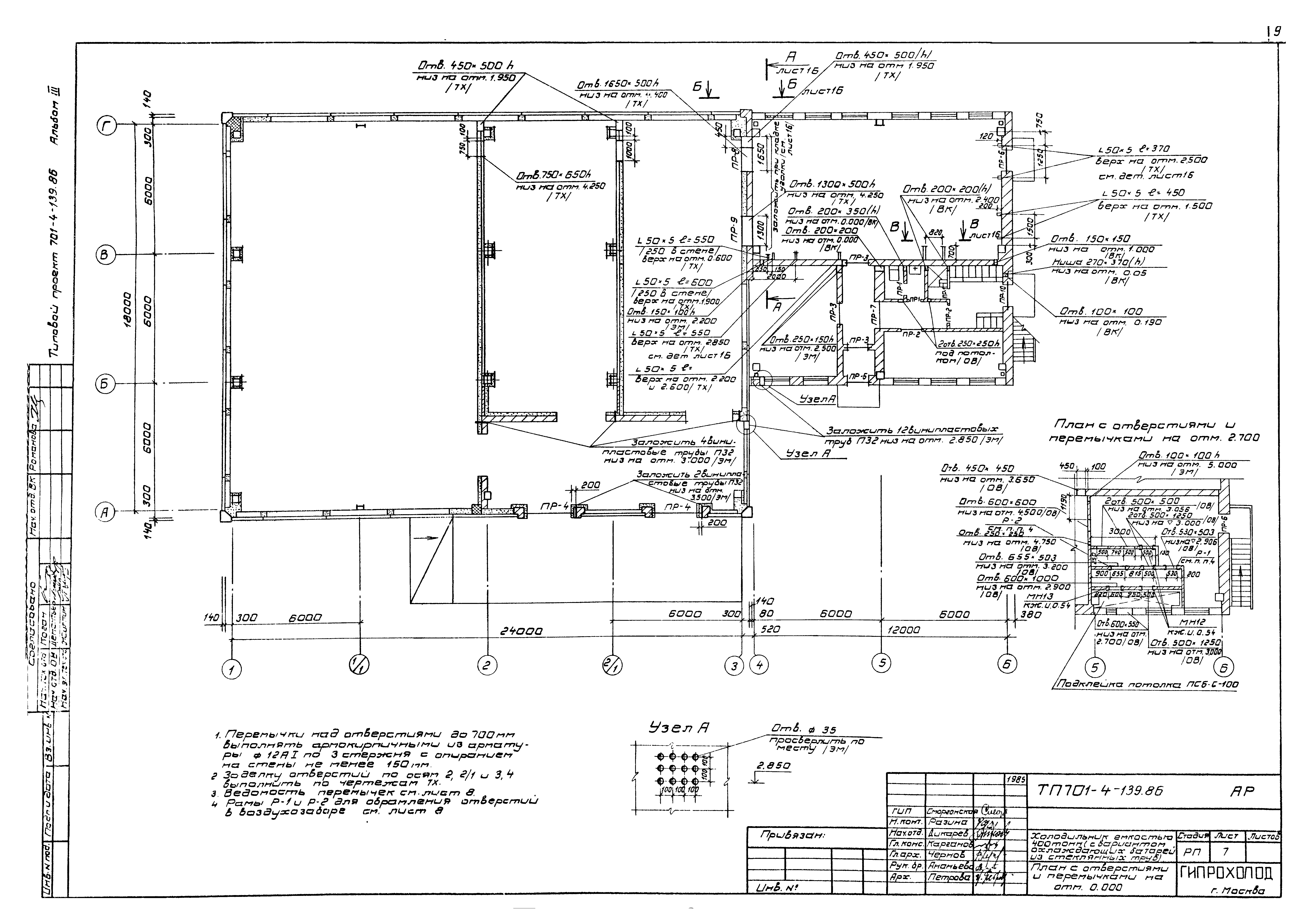
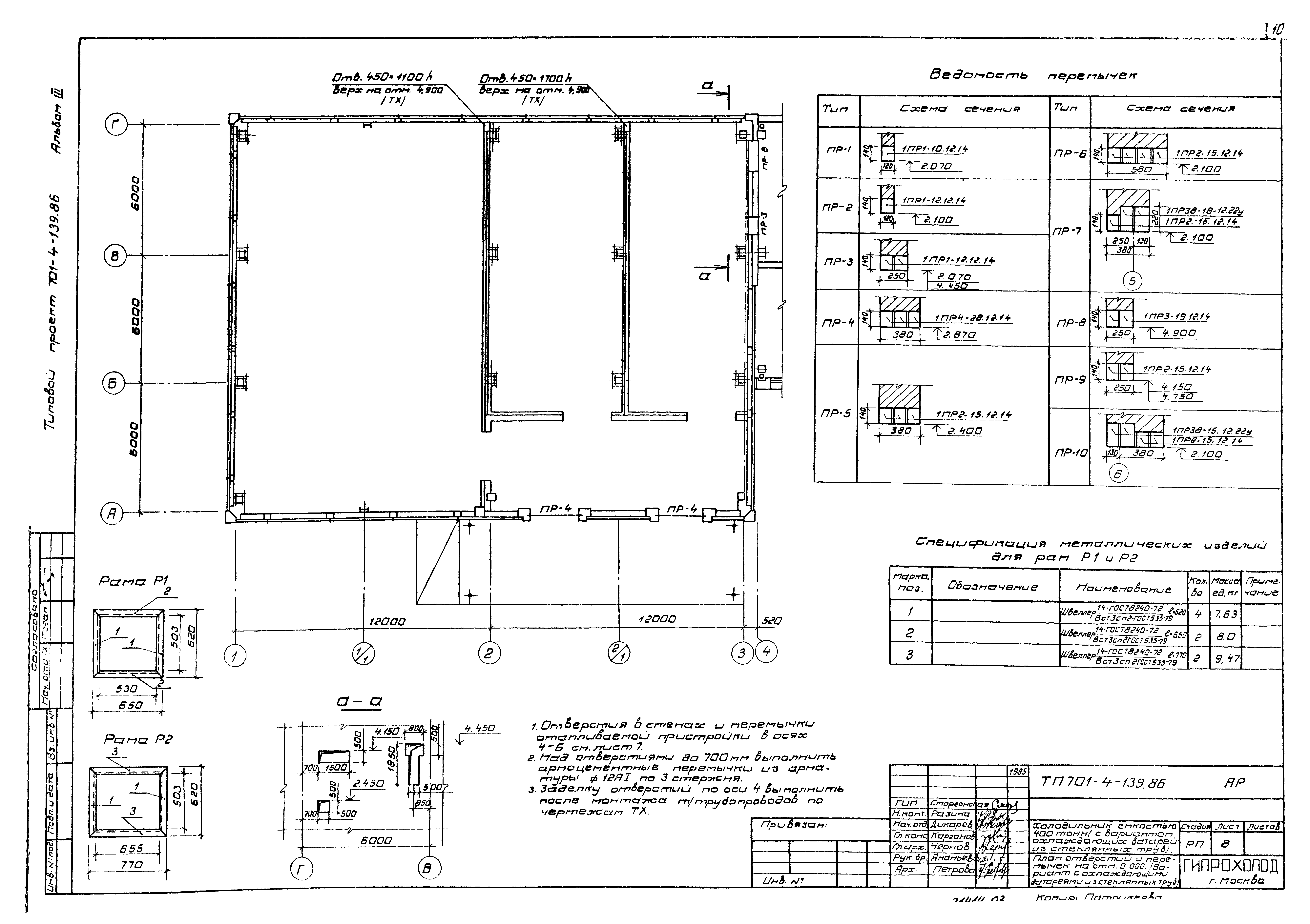
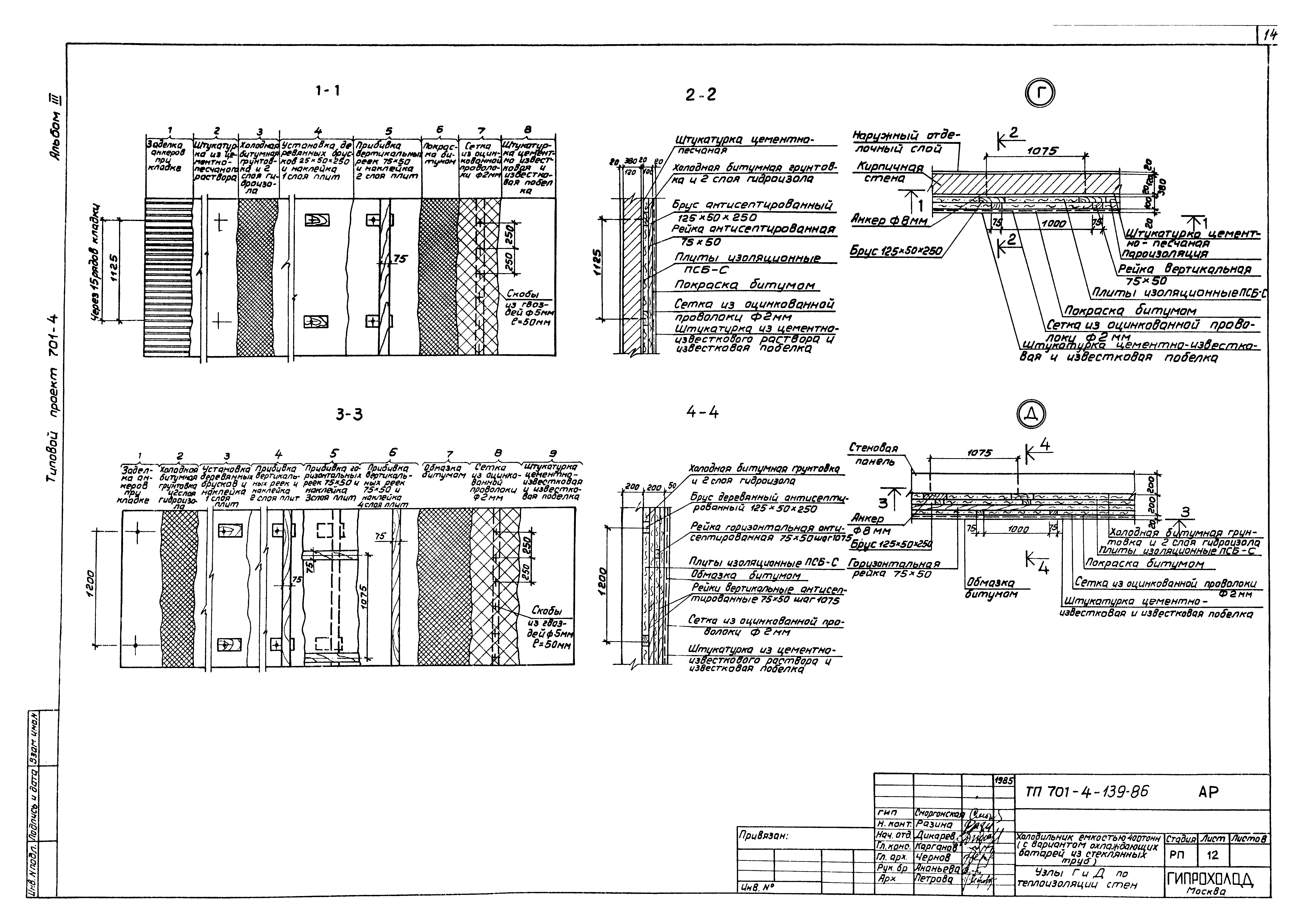
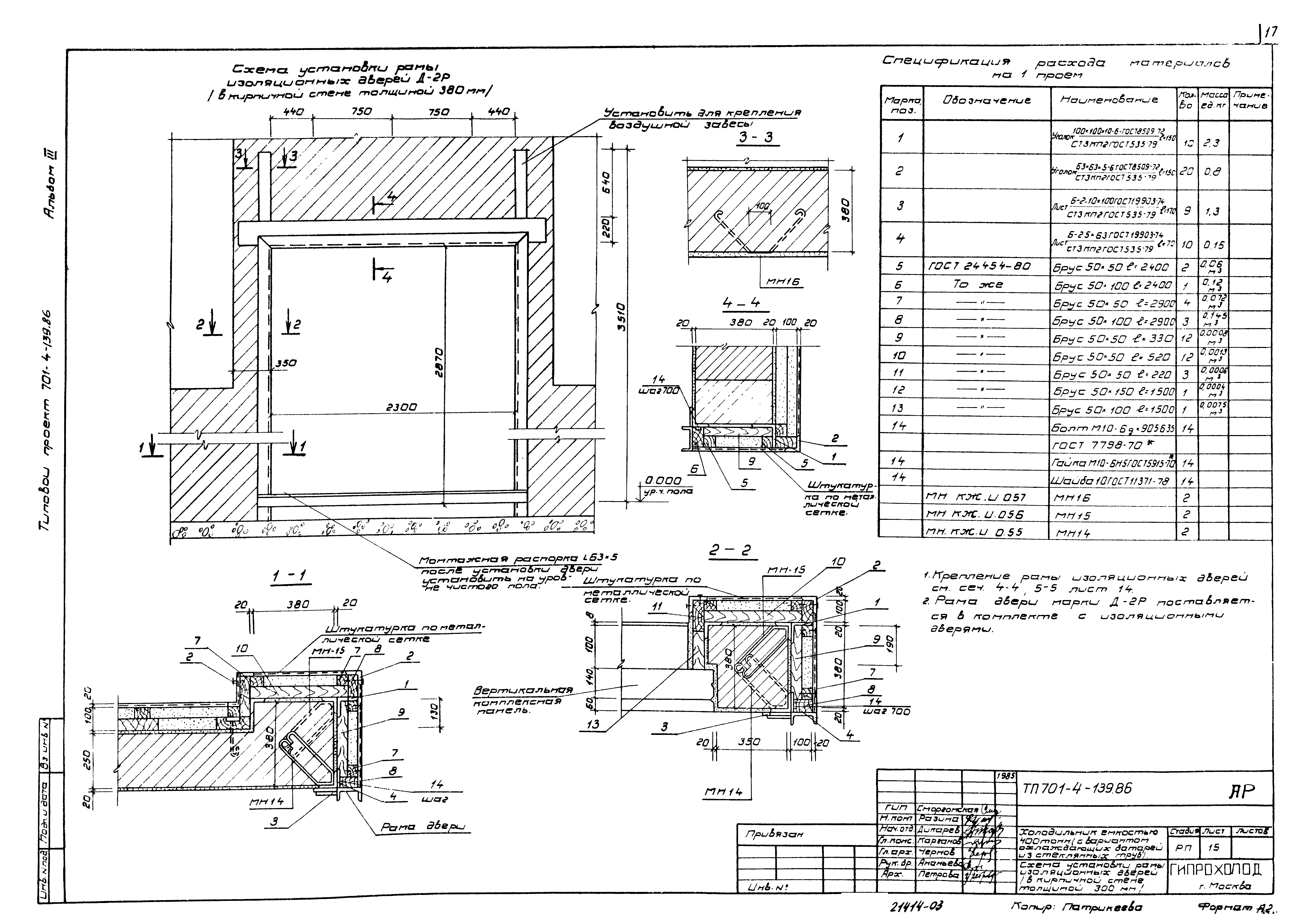
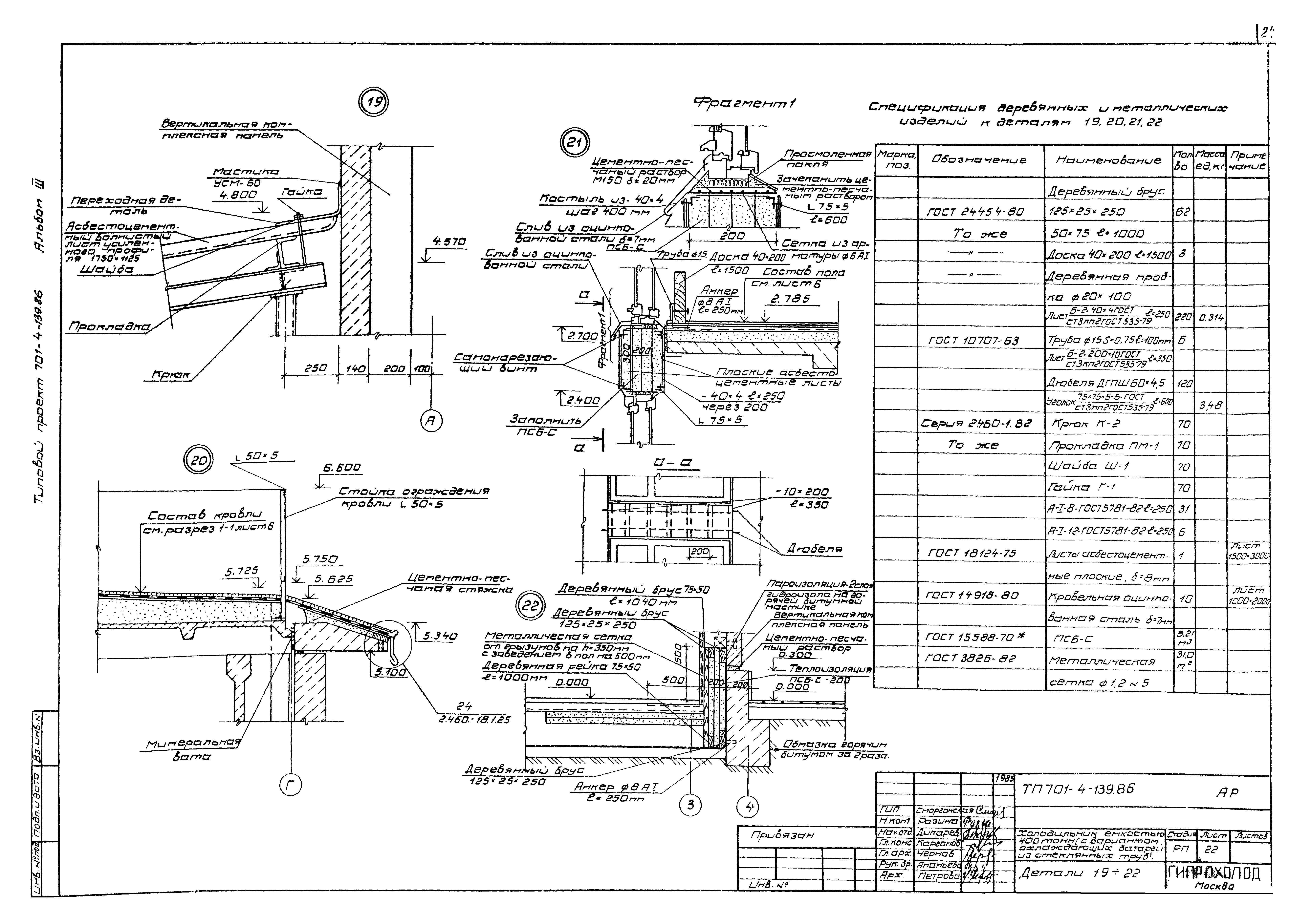
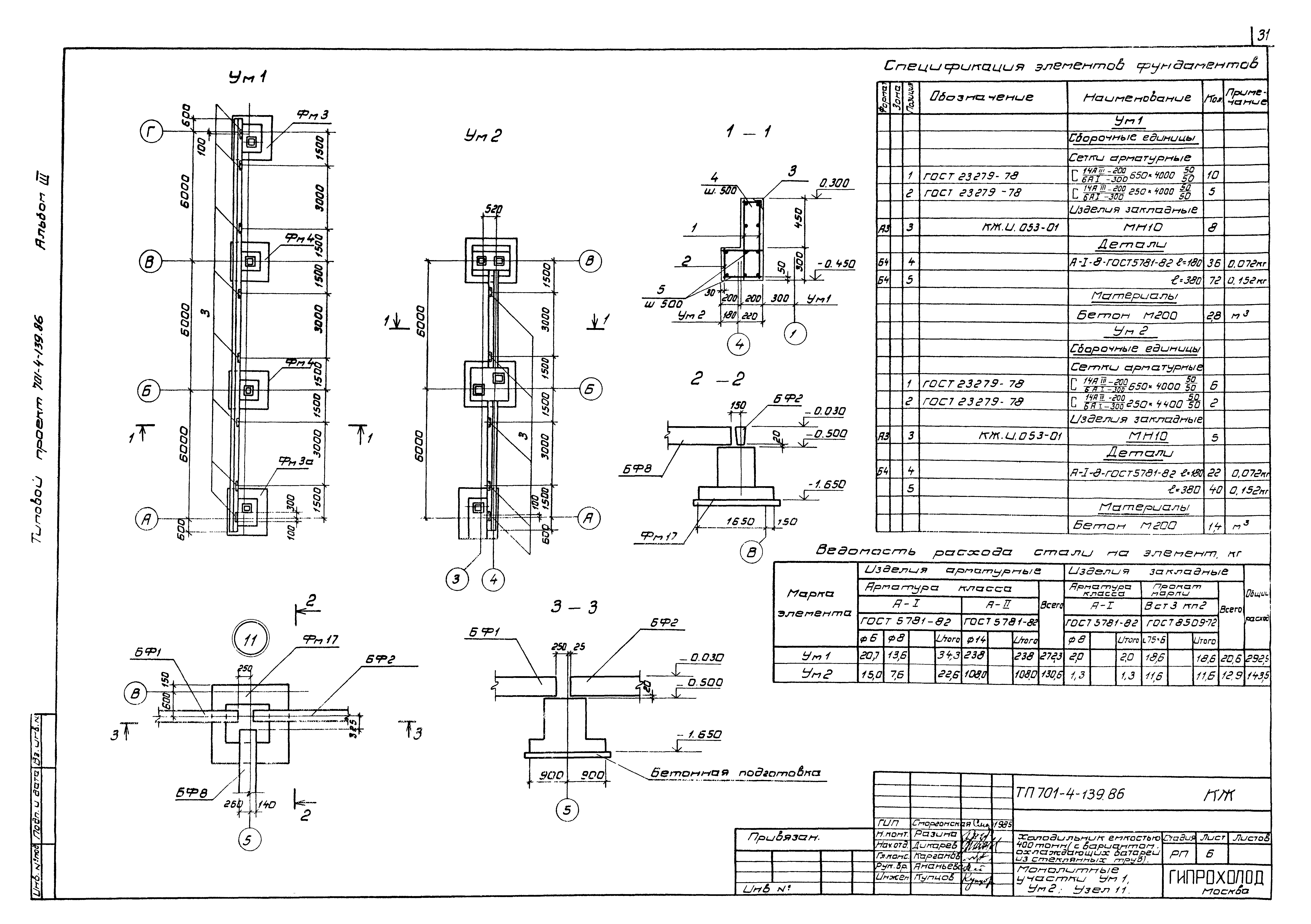
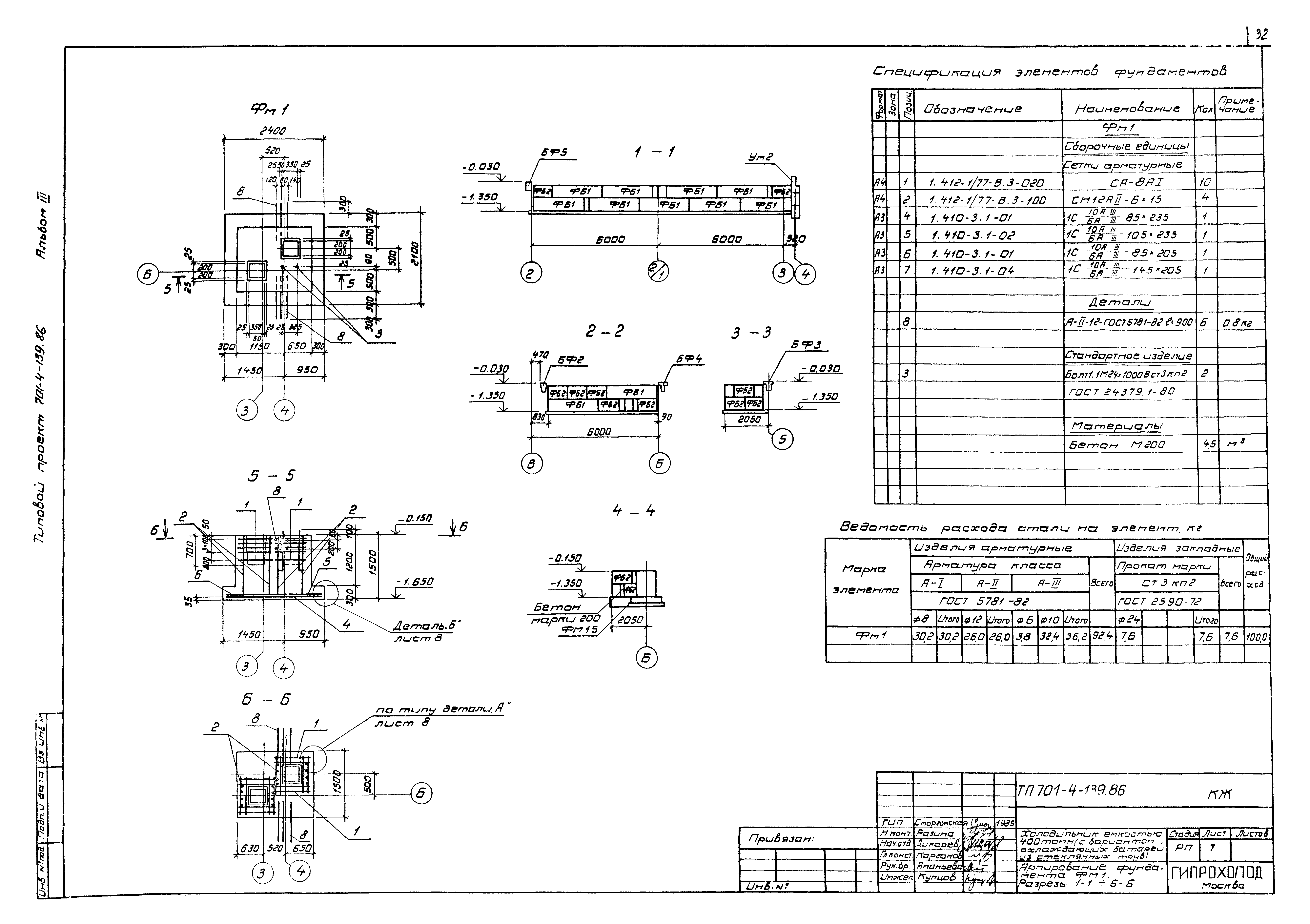
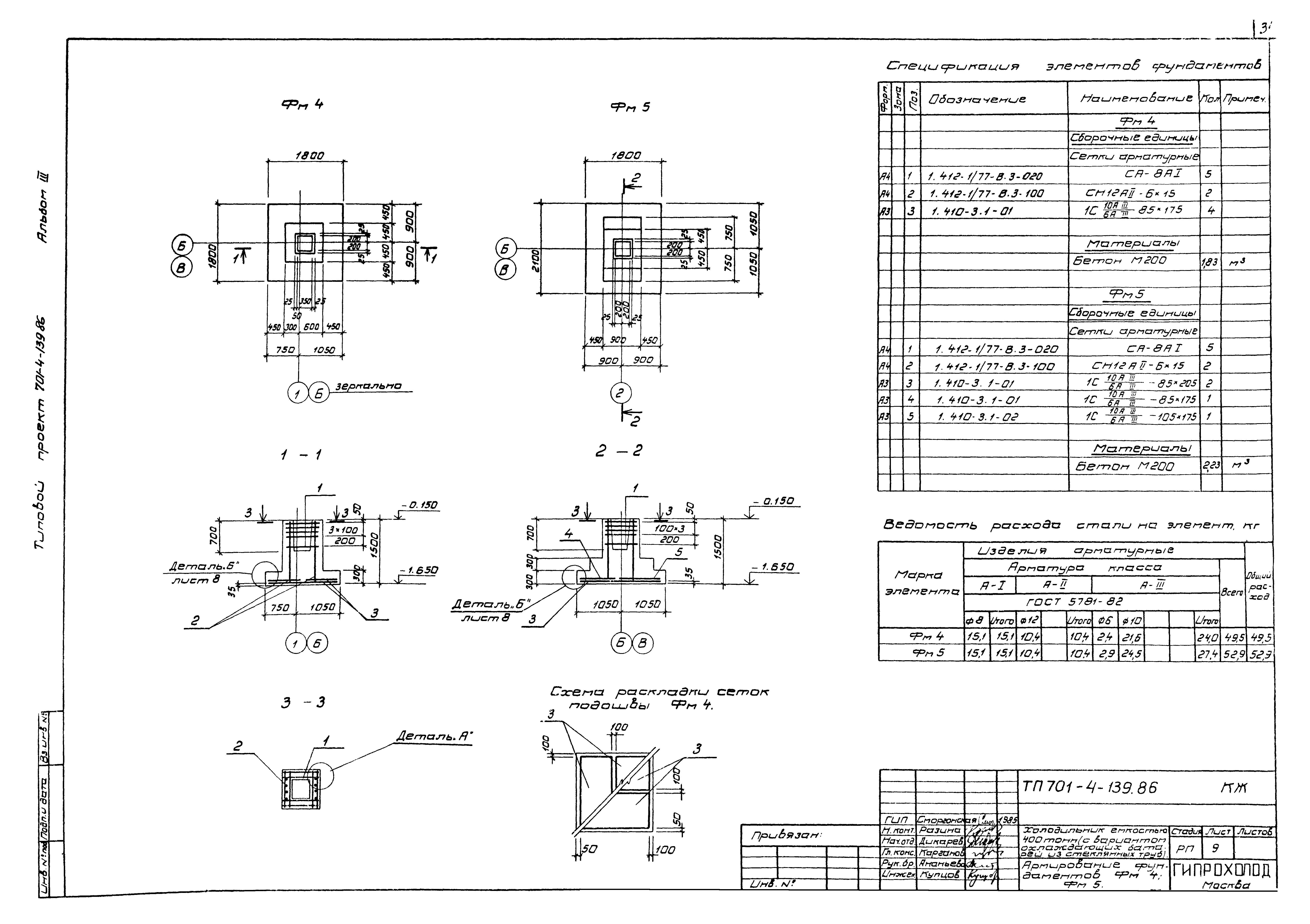
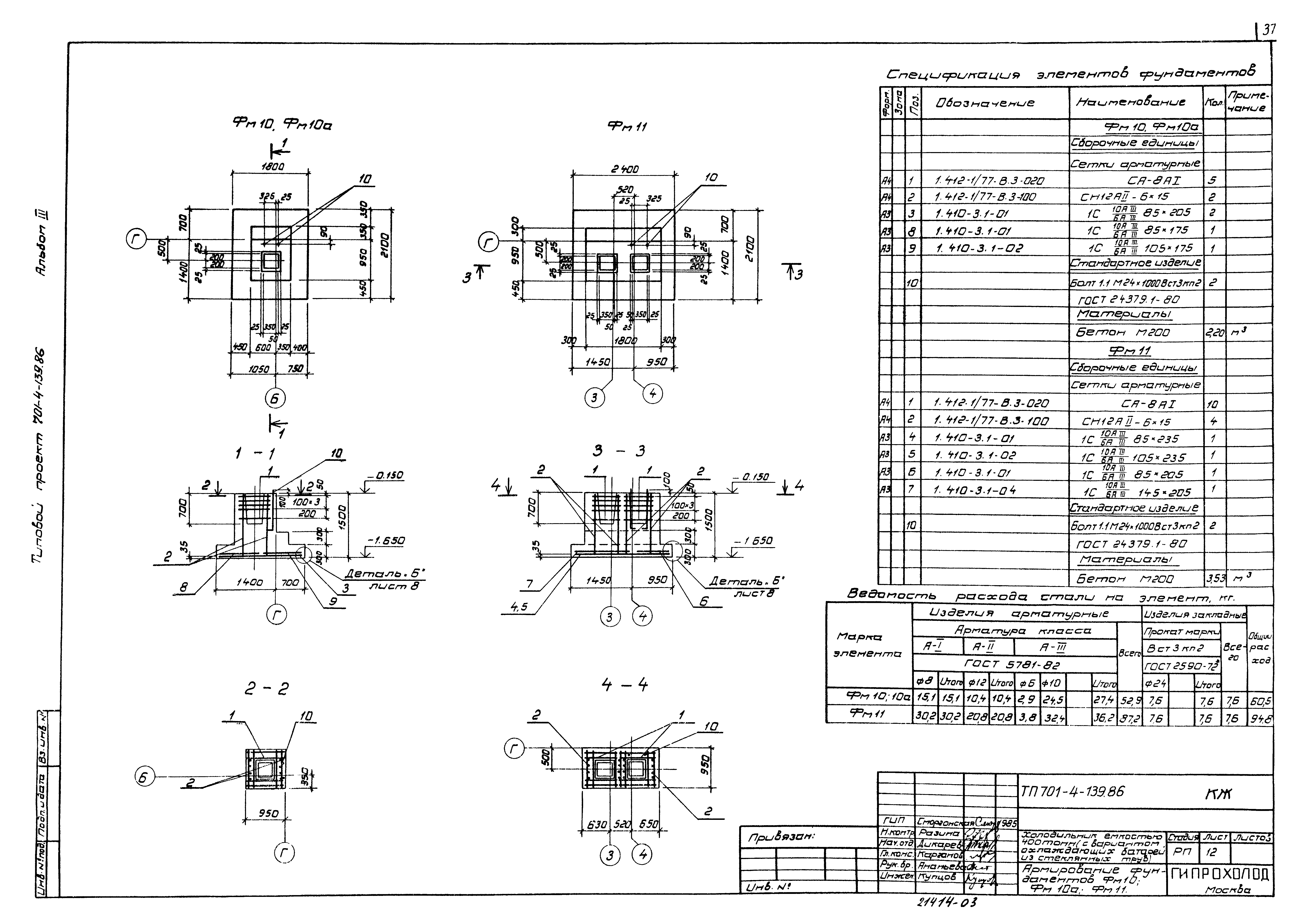
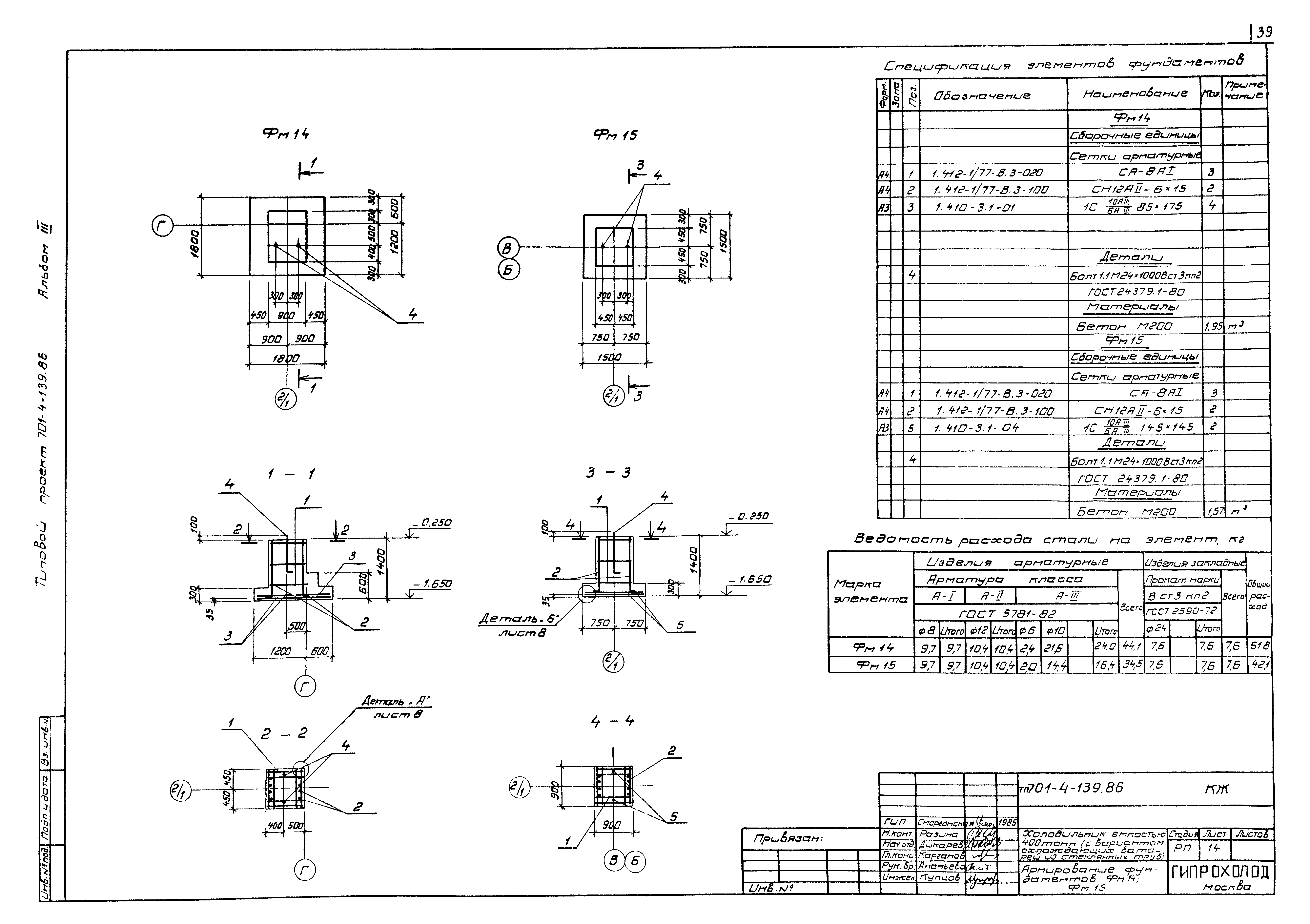
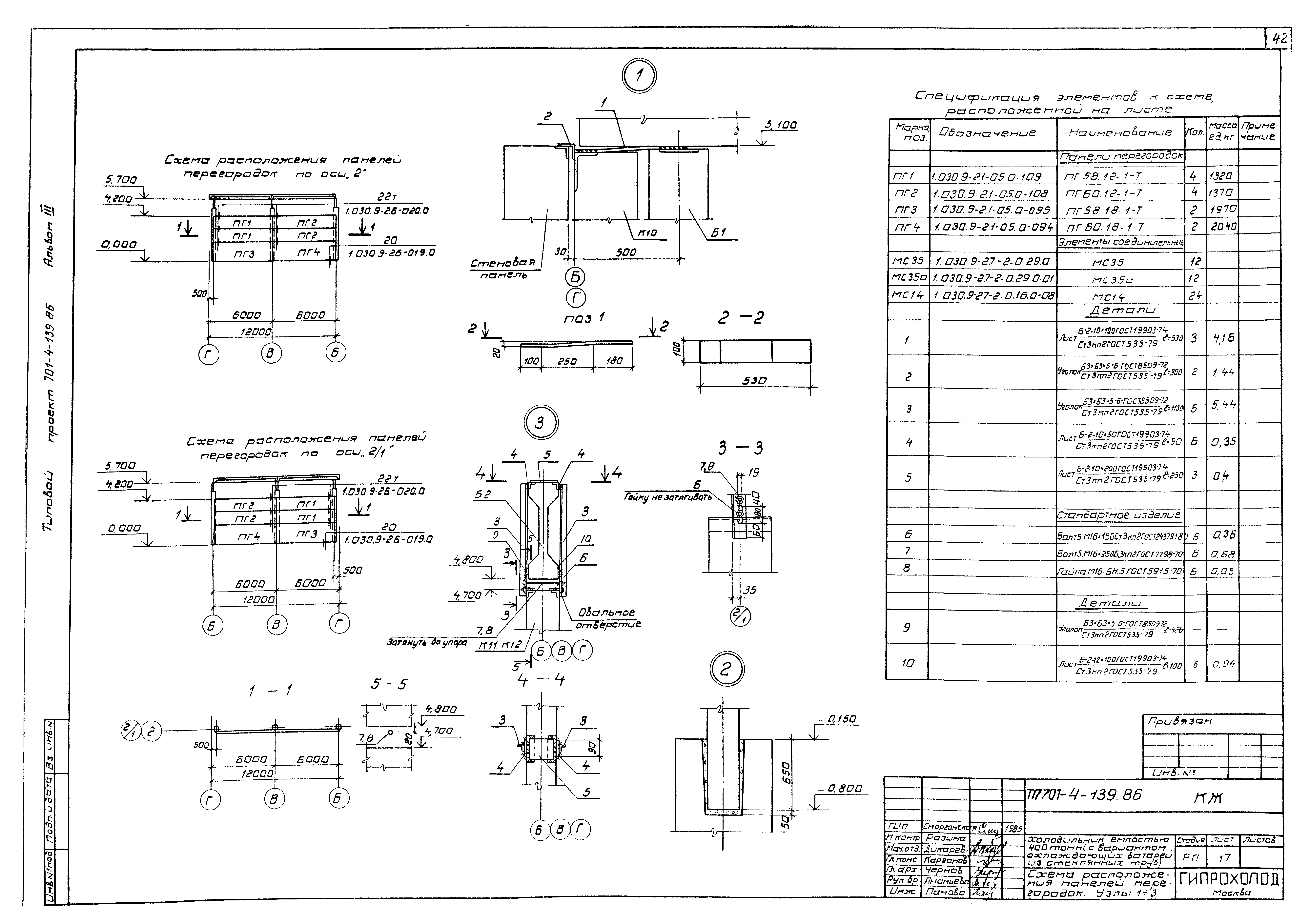
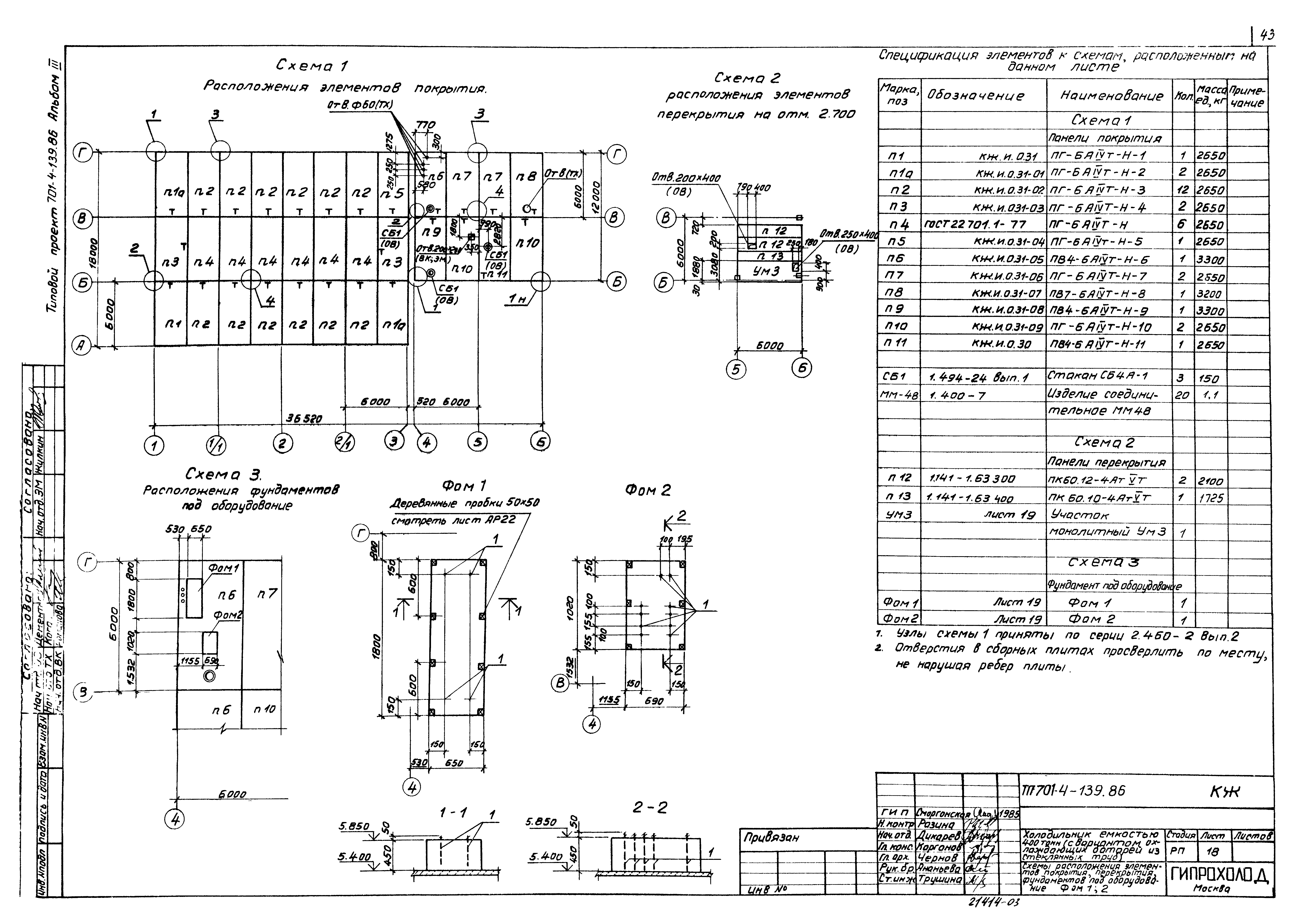
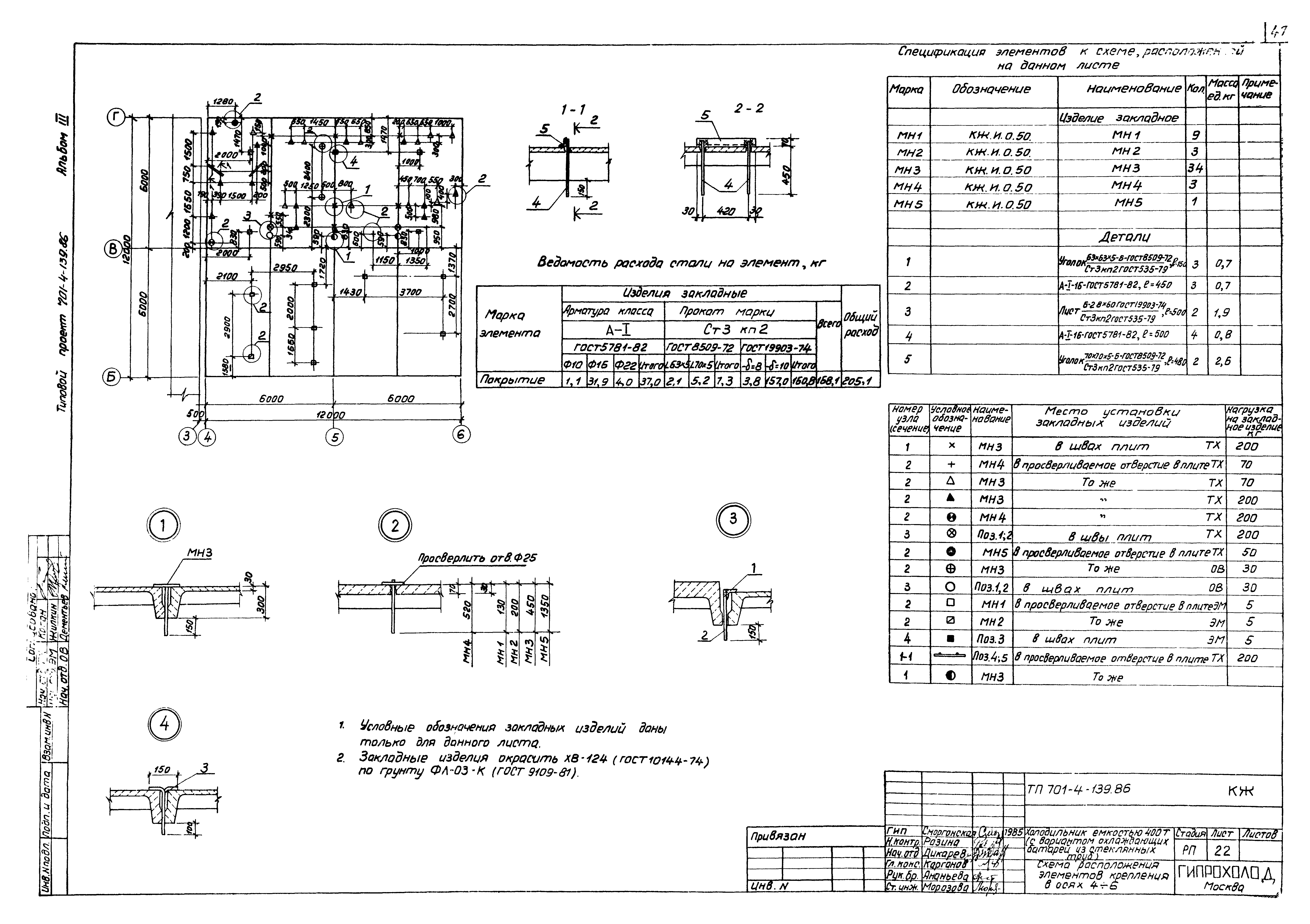
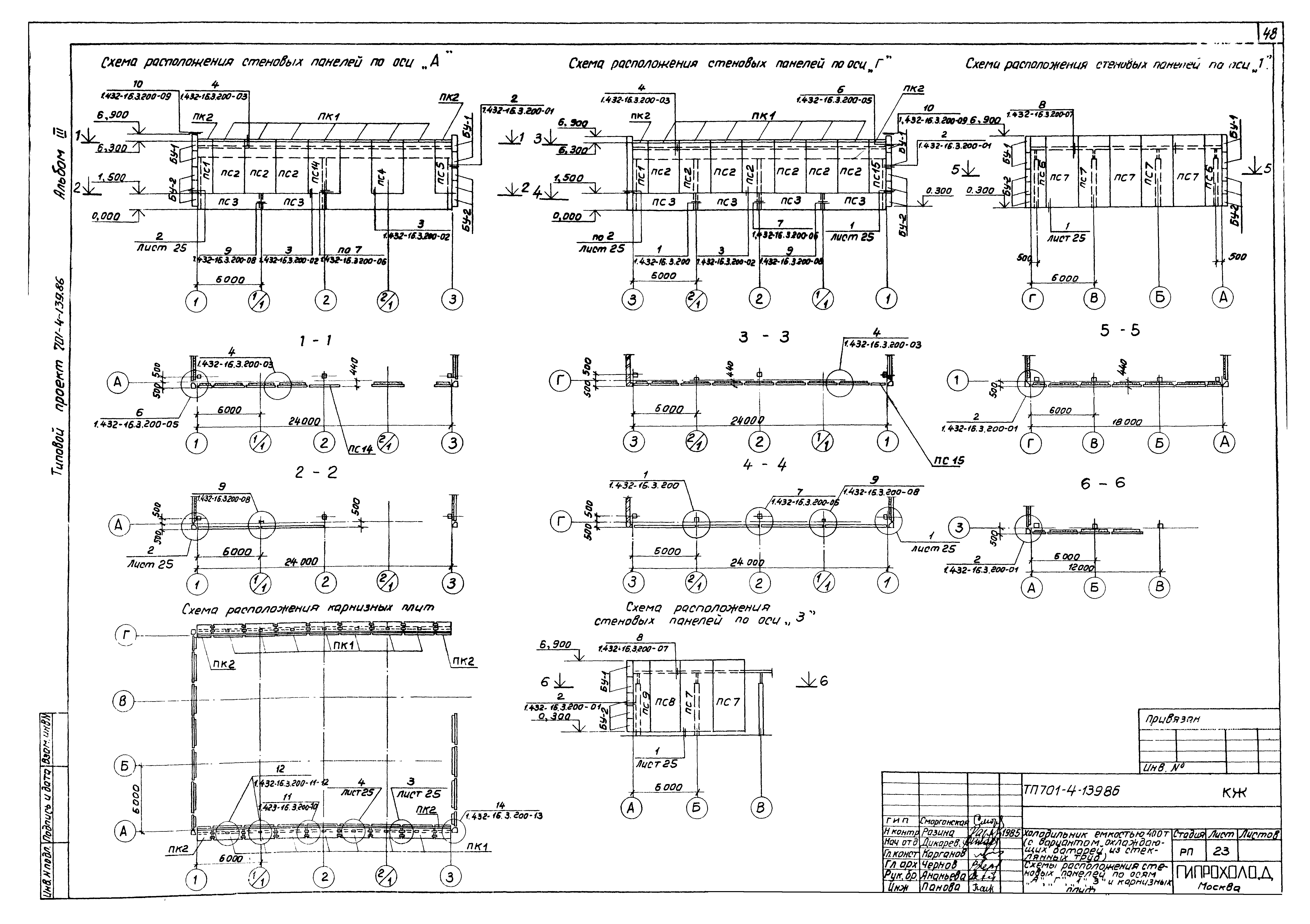
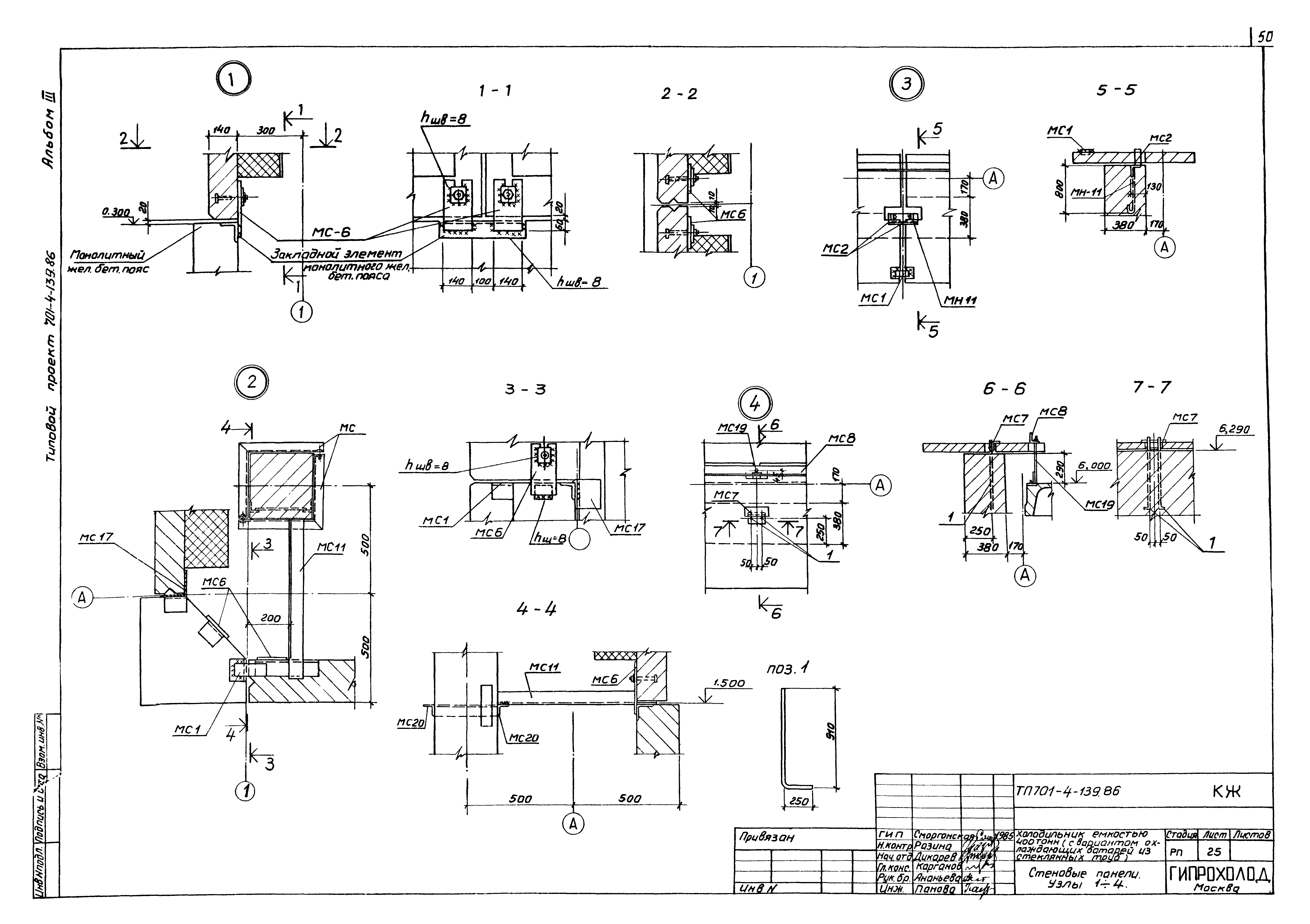
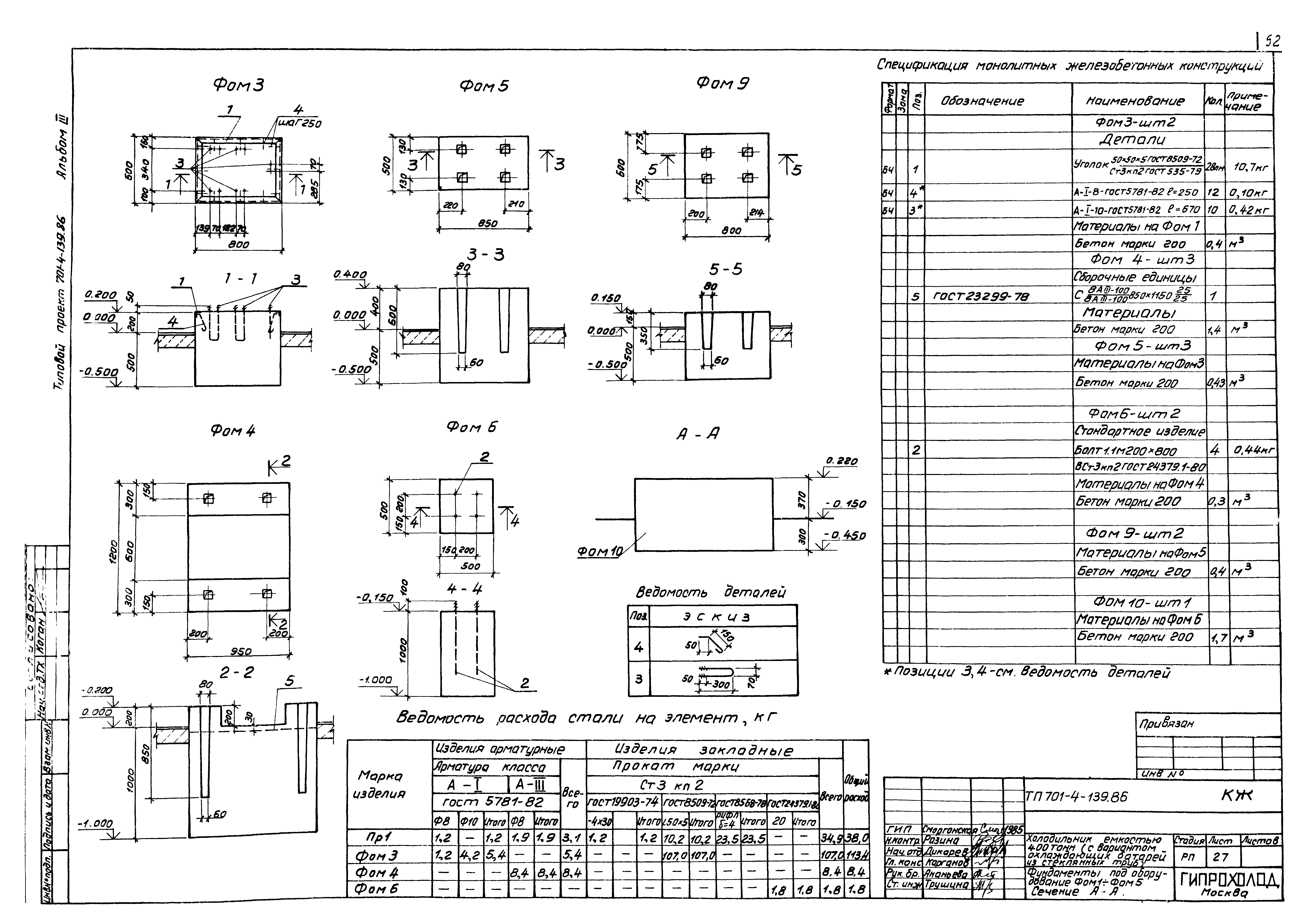
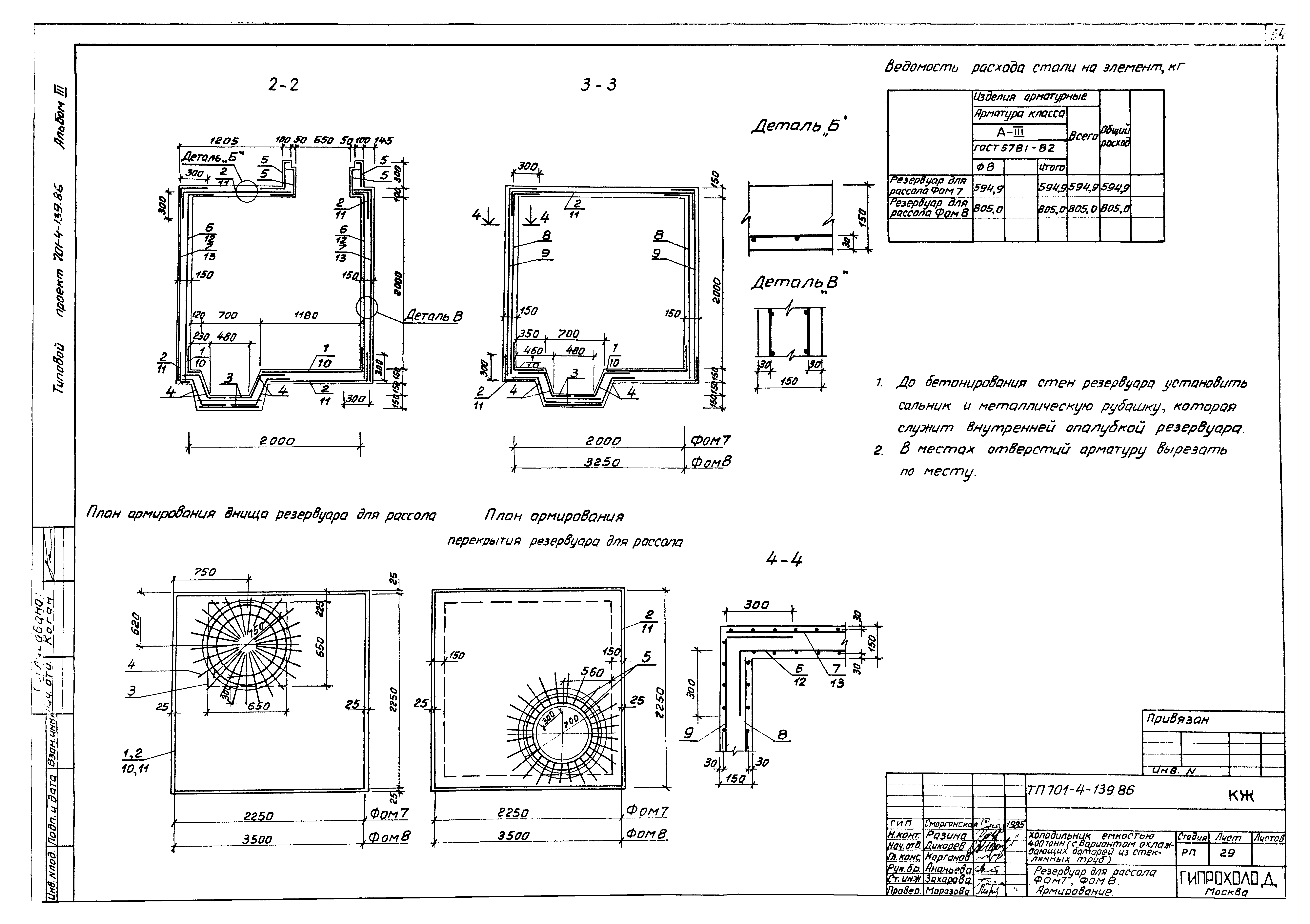
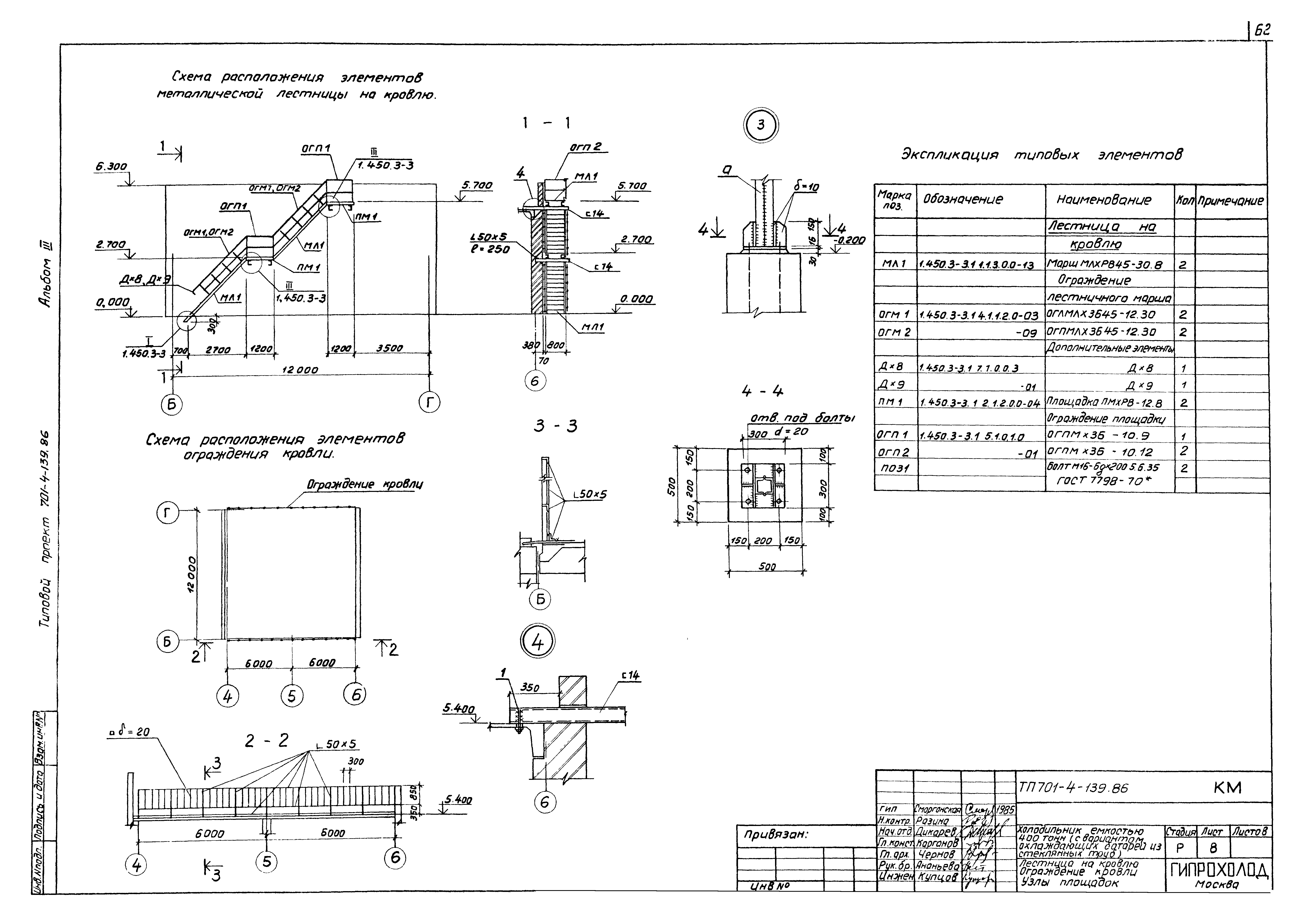
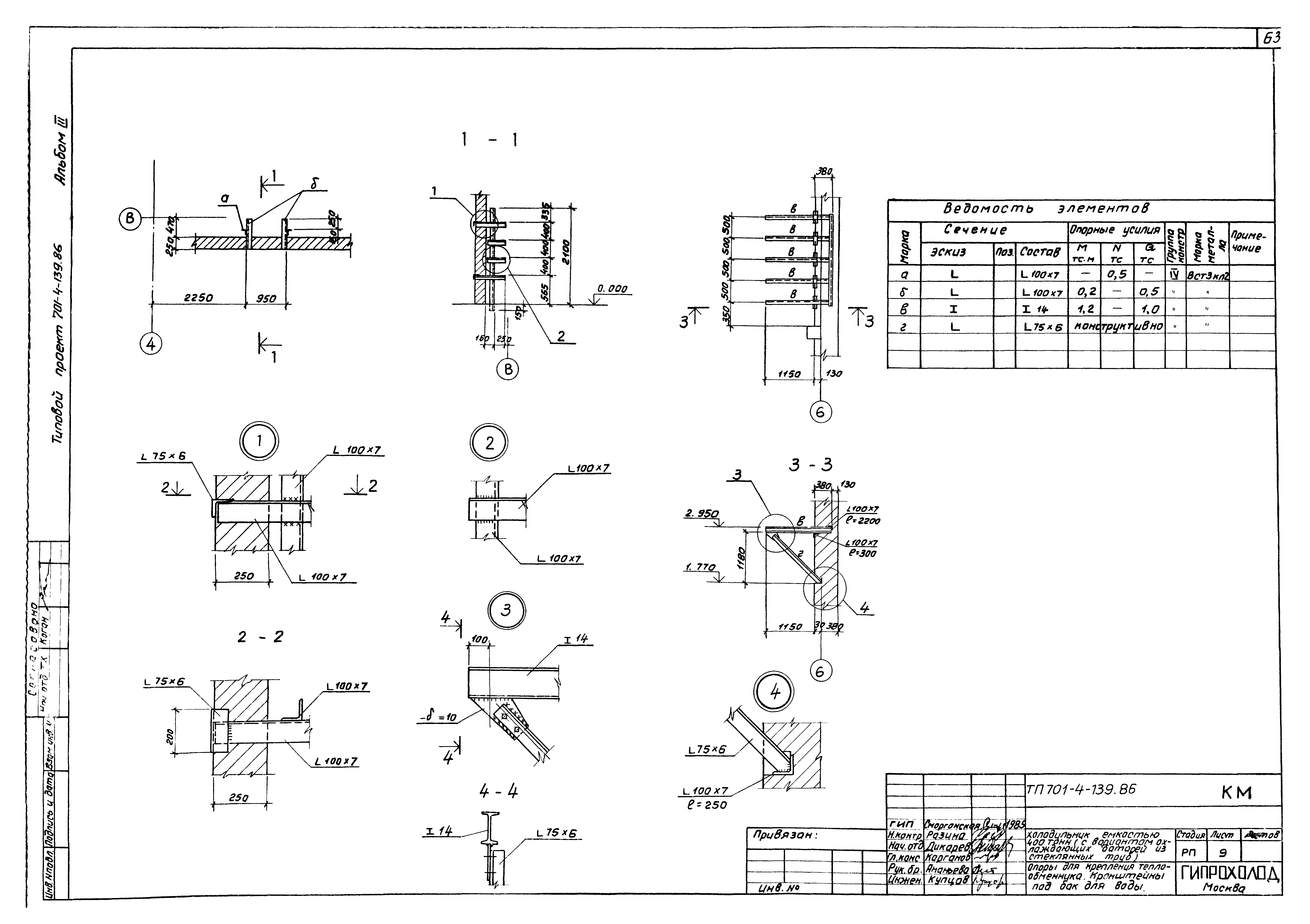
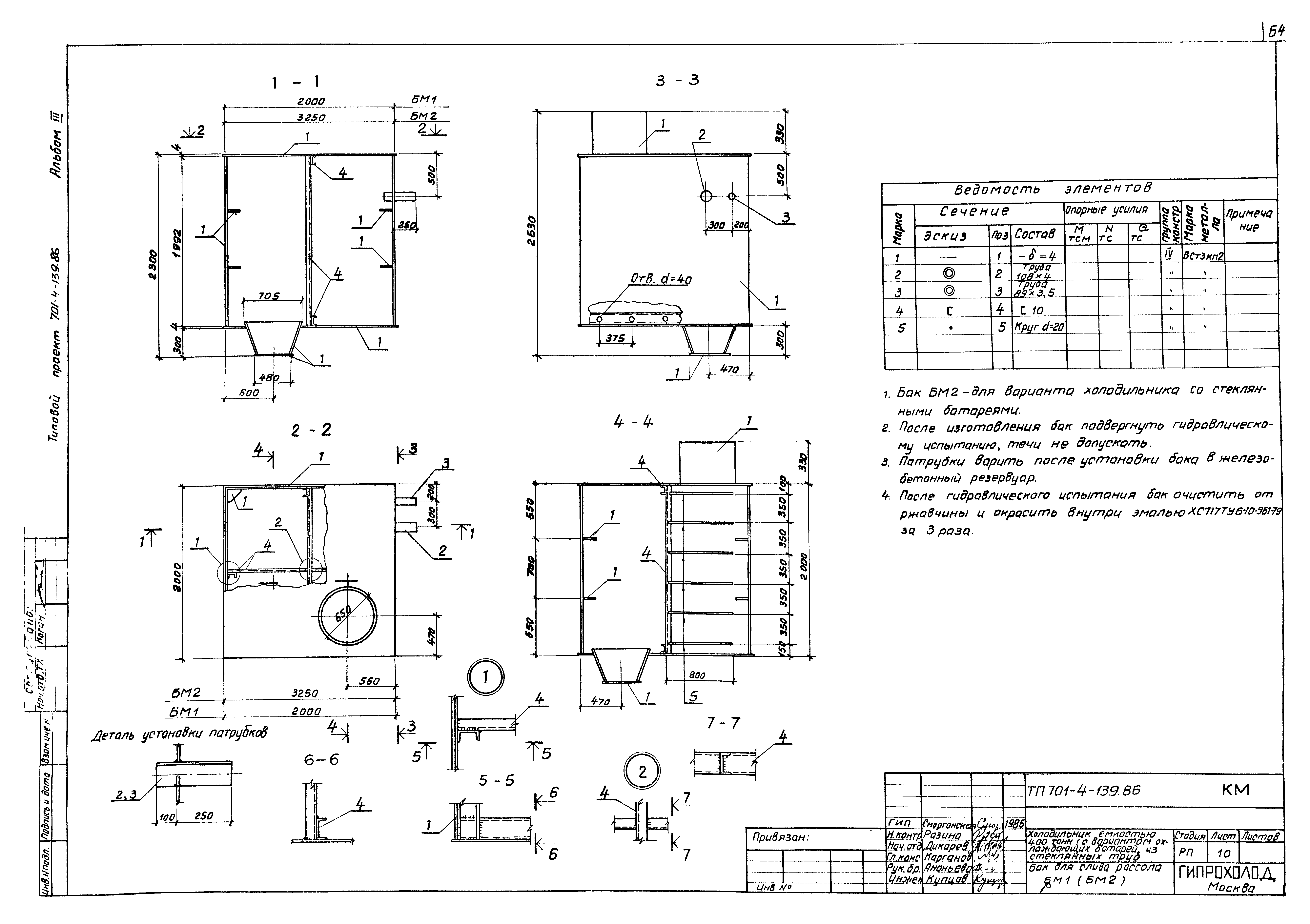
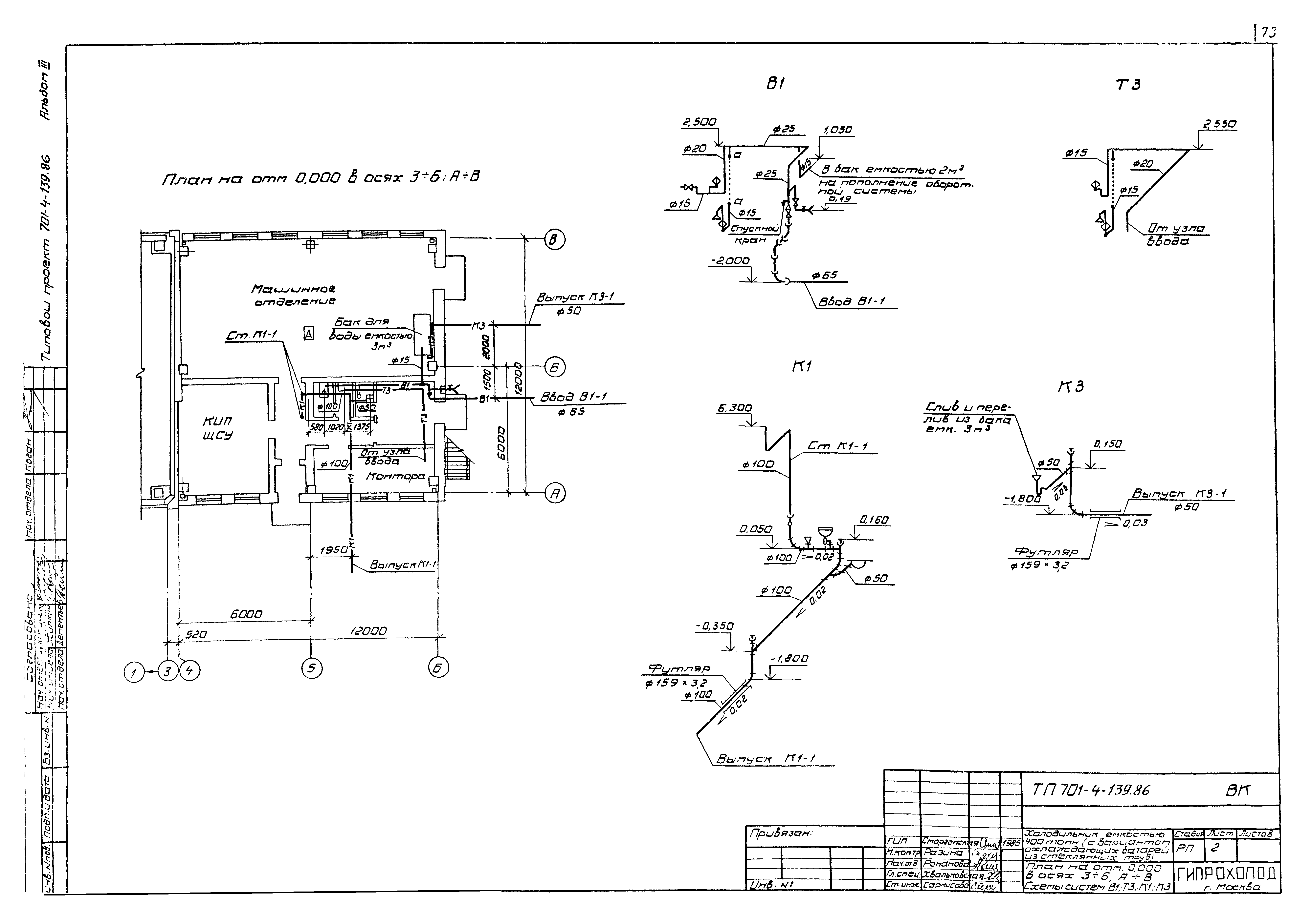
| Оглавление: | Содержание Чертежи основного комплекта марки АР Общие данные План на отм. 0.000 Разрез 1-1; 2-2; 3-3 Фасады в осях "1 -6", "Б - 1", "А - Г", "Г - А". Схема заполнения оконных проемов План полов на отм. 0.000 и на отм. 2.700. Экспликация полов План полов на отм. 0.000 с отверстиями и перемычками План полов на отм. 0.000 с отверстиями и перемычками (Вариант с охлаждающими батареями из стеклянных труб) План кровли. План теплоизоляции кровли. План раскладки асбестоцементных листов навеса План теплоизоляции на отм. 0.000. Указания по производству теплоизоляционных работ. Узел А Узлы Б и В по теплоизоляции стен Узлы Г и Д по теплоизоляции стен Спецификация изделий для крепления теплоизоляции стен Схема установки рамы изоляционных дверей Д-2Р в кирпичной стене 250 мм Схема установки рамы изоляционных дверей Д-2Р в кирпичной стене 380 мм Устройство закладных деталей из уголков для крепления технологического оборудования Детали 1 - 4 Детали 5 - 8 Детали 9 - 12 Детали 13 - 16 Детали 17 - 18 Детали 19 - 22 Детали 23 - 26 Чертежи основного комплекта марки КЖ Общие данные Схема расположения элементов фундаментов Узлы фундаментов 1 - 5 Узлы фундаментов 6 - 10 Монолитные участки УМ1, УМ2. Узел 11 Армирование фундамента ФМ1. Разрезы 1-1 - 6-6 Армирование Фм2, Фм3, Фм3а Армирование Фм4, Фм5 Армирование Фм6, Фм7 Армирование Фм8, Фм9 Армирование Фм10, Фм10а, Фм11 Армирование Фм12, Фм13 Армирование Фм14, Фм15 Армирование Фм16, Фм17 Схема расположения элементов колонн и балок покрытия Схема расположения панелей перегородок. Узлы 1 - 3 Схемы расположения элементов покрытия, перекрытия фундаментов под оборудование Фом1, 2 Монолитный участок УМ3 Схема расположения элементов крепления в покрытии в осях 1 - 3 (Вариант с металлическими оребренными батареями) Схема расположения элементов крепления в покрытии в осях 1 - 3 (С вариантом охлаждающих батарей из стеклянных труб) Схема расположения элементов крепления в покрытии в осях 4 - 6 Схема расположения стеновых панелей по осям "А" и "Г", "1", "3" и карнизных плит Схема расположения стеновых панелей по оси "Г", "Б" Узлы 1 - 4. Стеновые панели Схемы расположения фундаментов под оборудование Фундаменты под оборудование Фом1 - Фом5. Сечение А-А Резервуар для рассола Фом7, Фом8. Опалубка Резервуар для рассола Фом7, Фом8. Армирование Чертежи основного комплекта марки КМ Общие данные Схема расположения элементов навеса. Узел 1 - 3 Узлы навеса 4 - 8 Площадка под технологическое оборудование на кровле Машинное отделение. Площадка под технологическое оборудование Лестница на кровлю. Ограждение кровли. Узлы площадок Опоры для крепления теплообменника. Кронштейны под бак для воды Бак для слива рассола БМ1 (БМ2) Чертежи основного комплекта марки ОВ Общие данные План 2-2. План 3-3. Разрез 1-1 Схема системы отопления. Схема системы теплоснабжения установок П1, П2. Схемы систем П1, П2, В1, ВЕ1, 2 Установка систем П1, П2 Конструкция тепловой изоляции 1. Конструкция тепловой изоляции 2 Короб асбестоцементный Чертежи основного комплекта марки ВК Общие данные План на отм. 0.000 в осях 3 - 6; А - В. Схемы систем В1; Т3; К1; К3 Чертежи основного комплекта марки ОС Общие данные Стройгенплан. Сетевой график производства работ |
| Разработан: | Гипрохолод Минторга СССР |
| Утверждён: | 04.03.1986 Минторг СССР (USSR Mintorg 47/П-4) |













































































