Скачать Серия ОВ-02-110/62 Унифицированные узлы прохода вытяжных вентиляционных шахт через покрытия промышленных зданий. Рабочие чертежиДата актуализации: 01.01.2021
|
| Обозначение: | Серия ОВ-02-110/62 |
| Обозначение англ: | Series ОВ-02-110/62 |
| Статус: | не действует |
| Название рус.: | Унифицированные узлы прохода вытяжных вентиляционных шахт через покрытия промышленных зданий. Рабочие чертежи |
| Дата добавления в базу: | 01.09.2013 |
| Дата актуализации: | 01.01.2021 |
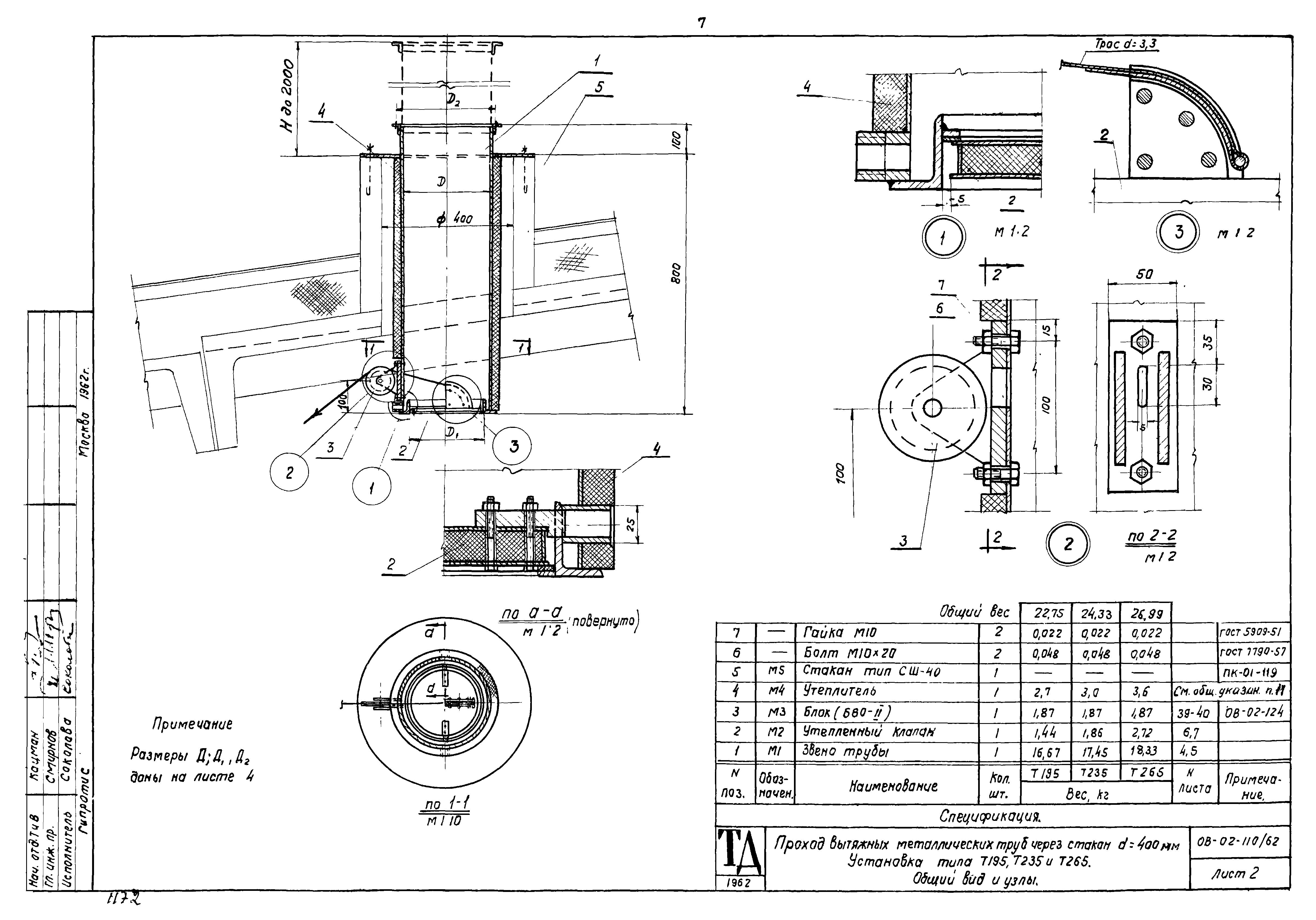
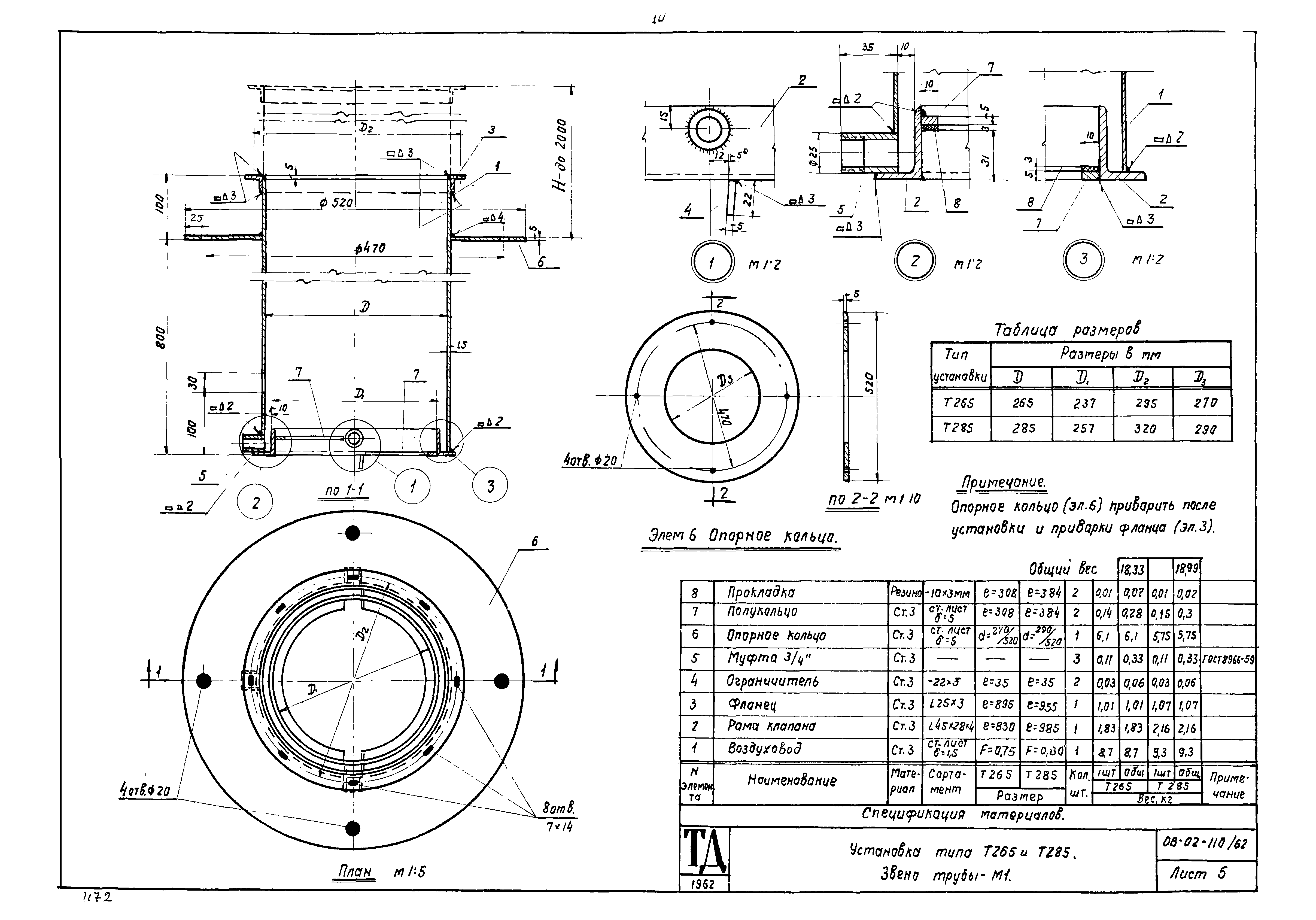
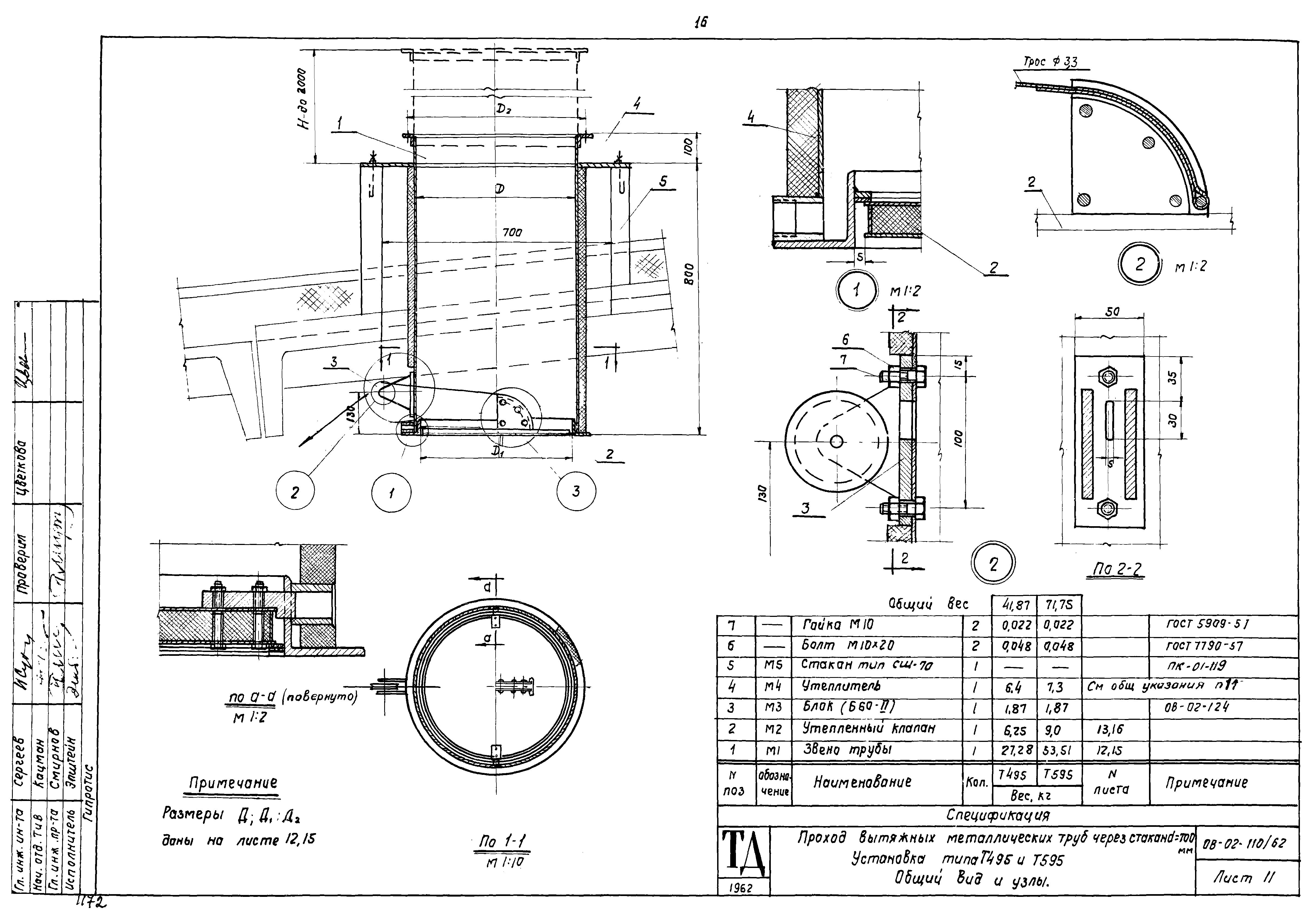
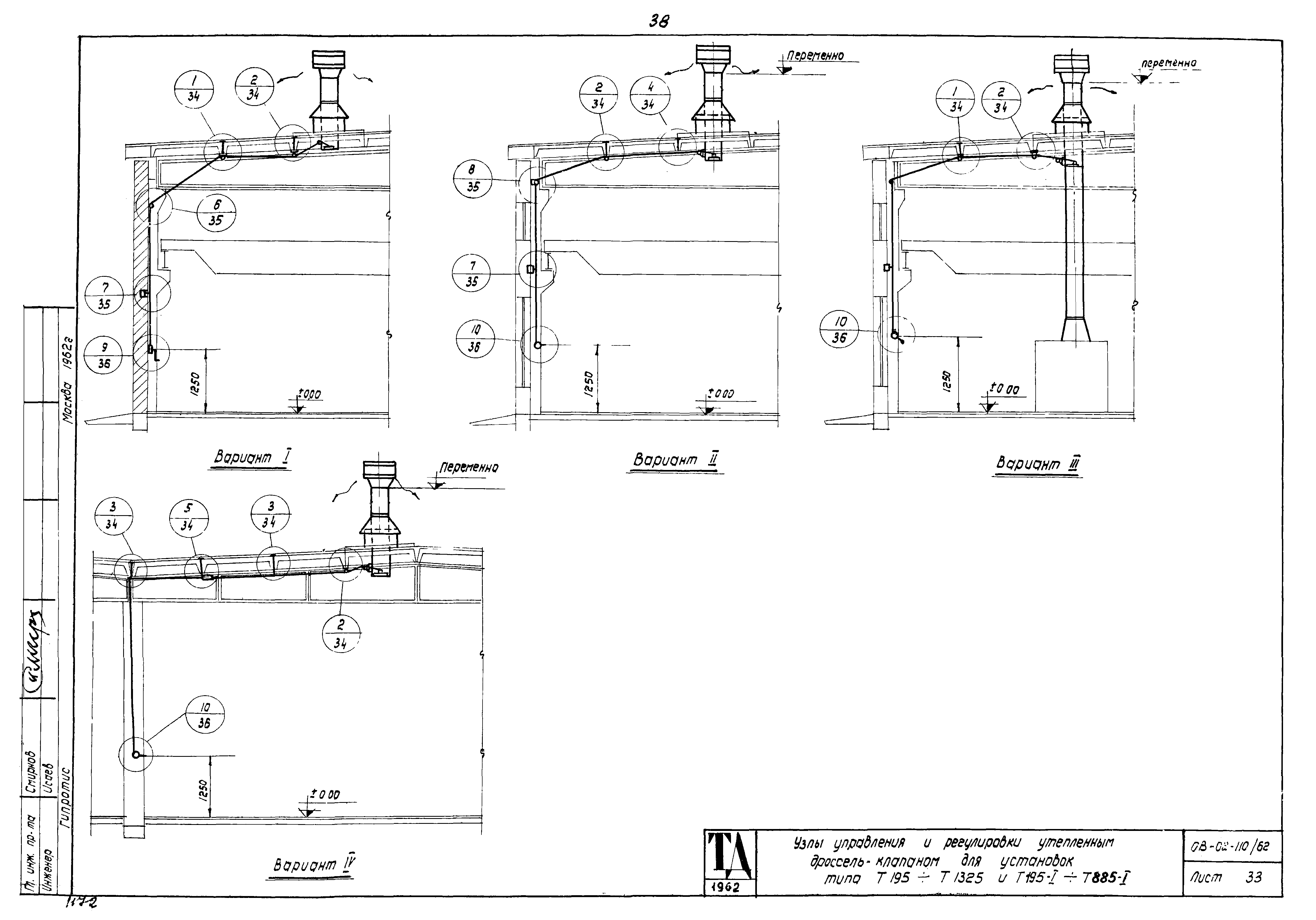
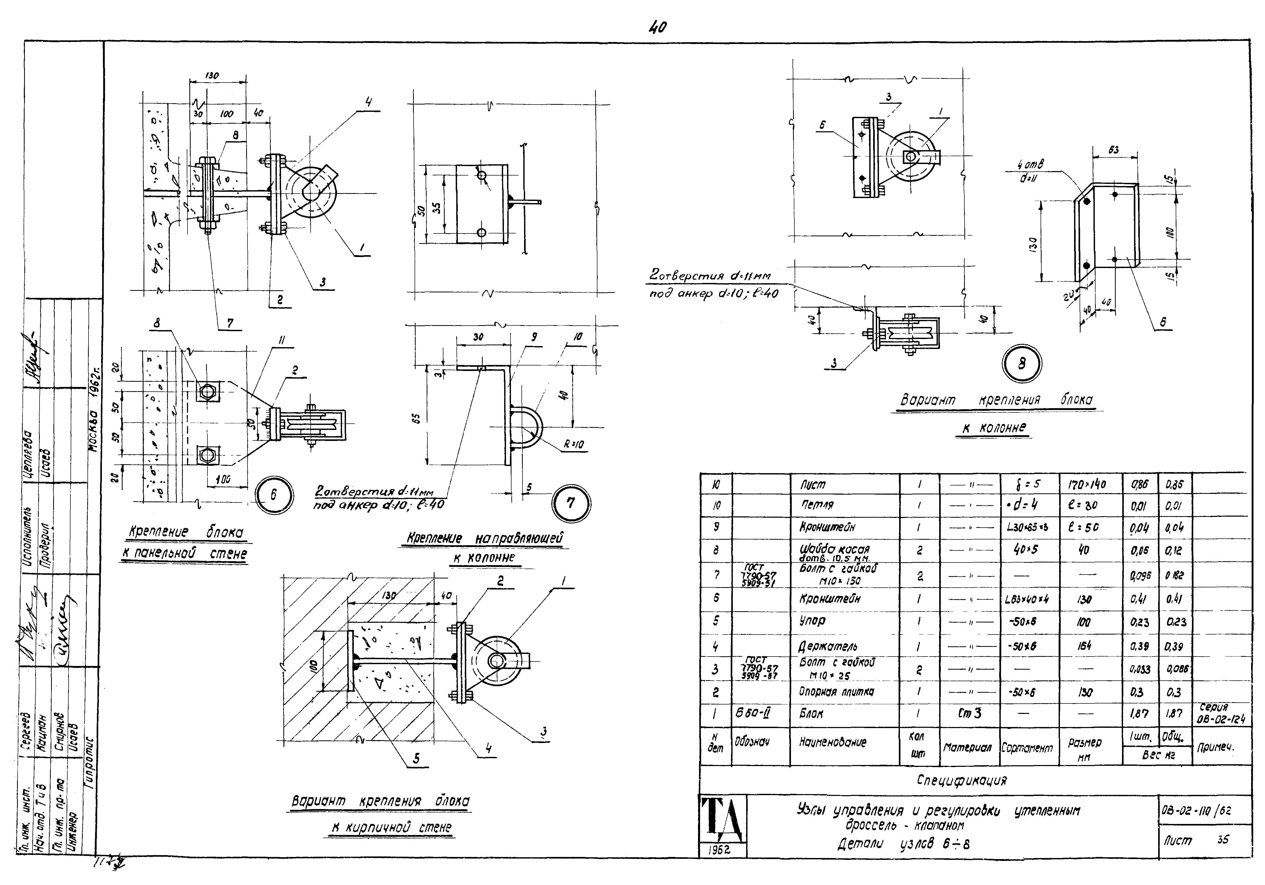
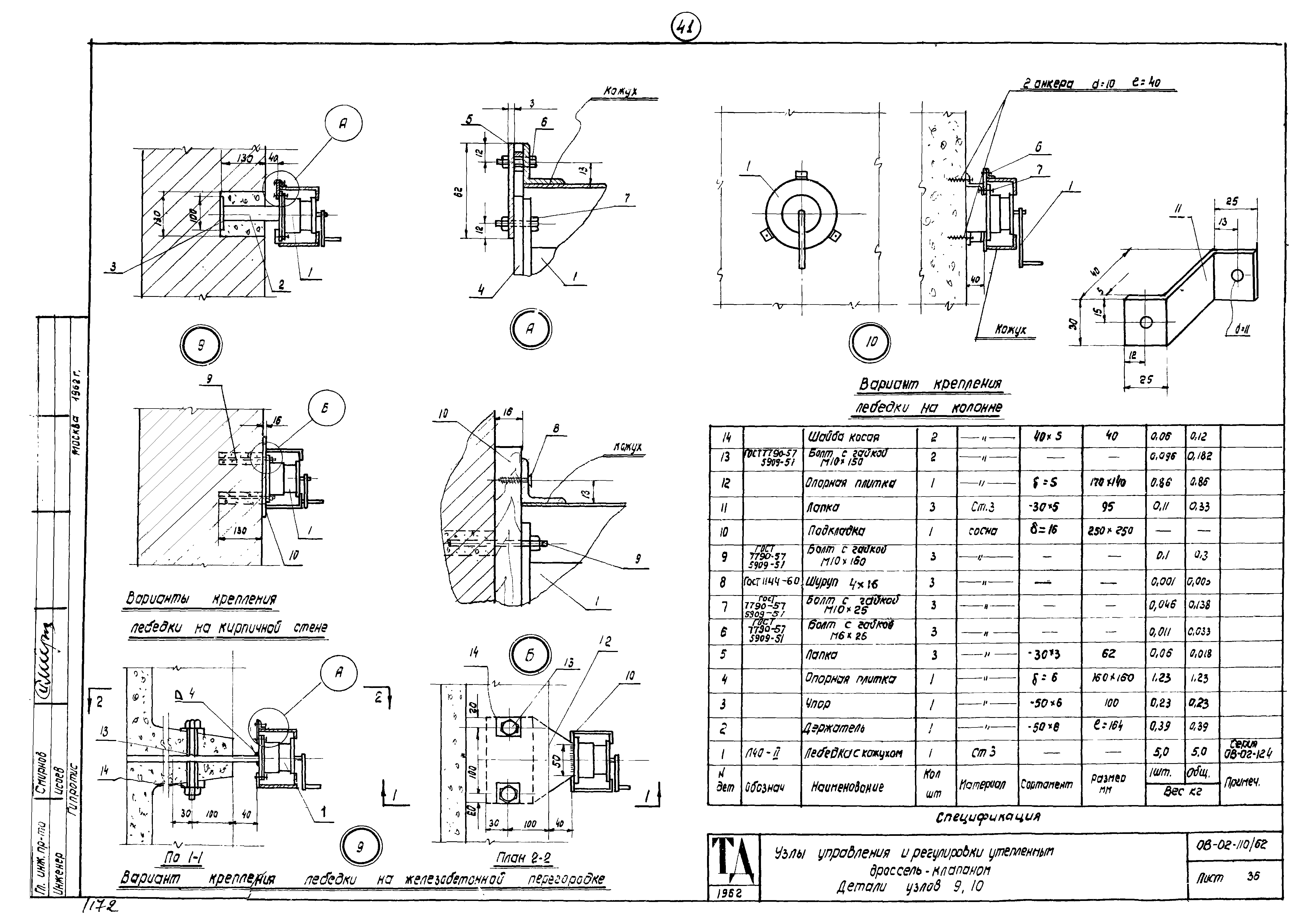
| Оглавление: | Предисловие Общие указания Проход вытяжных труб через стаканы d = 400, 700, 1000 и 1450 мм. Установка типа Т195 - Т1325. При высоте трубы до 2000 мм Проход вытяжных металлических труб через стакан d = 400 мм. Установка типа Т195, Т235 и Т265. Общий вид и узлы Проход вытяжных металлических труб через стакан d = 400 мм. Установка типа Т285 и Т320. Общий вид и узлы Установка типа Т195 и Т235. Звено трубы - М1 Установка типа Т265 и Т285. Звено трубы - М1 Установка типа Т195 и Т235. Утепленный клапан - М2 Установка типа Т265 и Т285. Утепленный клапан - М2 Проход вытяжных металлических труб через стакан d = 700 мм. Установка типа Т375 и Т440. Общий вид и узлы Установка типа Т320 и Т375. Звено трубы - М1 Установка типа Т320 - Т375. Утепленный клапан - М2 Проход вытяжных металлических труб через стакан d = 700 мм. Установка типа Т495 и Т595. Общий вид и узлы Установка типа Т440 и Т495. Звено трубы - М1 Установка типа Т440 и Т495. Утепленный клапан - М2 Проход вытяжных металлических труб через стакан d = 1000 мм. Установка типа Т660; Т775 и Т885. Общий вид и узлы Установка типа Т595, Т660. Звено трубы - М1 Установка типа Т595 и Т660. Утепленный клапан - М2 Установка типа Т775 и Т885. Звено трубы - М1 Установка типа Т775 и Т885. Утепленный клапан - М2 Проход вытяжных металлических труб через стакан d = 1450 мм. Установка типа Т1025 и Т1325. Общий вид и узлы Установка типа Т1025 и Т1325. Звено трубы - М1 Установка типа Т1025 и Т1325. Утепленный клапан - М2 Проход вытяжных металлических труб через стакан d = 400, 700 и 1000 мм. Установка типа Т195-I - Т885-I. При высоте трубы до 8000 мм. Установка типа Т195, Т235, Т265, Т285, Т320. Звено трубы - М1 Установка типа Т195-I, Т1235-I, Т265-I, Т285-I, Т320-I. Звено трубы - М1 Установка типа Т375-I, Т1440-I, Т495-I, Т395-I. Звено трубы - М1 Установка типа Т660-I, Т775-I, Т885-I. Звено трубы - М1 Проход вытяжных металлических труб через стакан d = 400, 700 и 1000 мм. Установка типа Т195-I - Т885-I. Узлы крепления труб Проход вытяжных металлических труб через стакан d = 400, 700, 1000 и 1450 мм. Детали патрубка и колпака Проходы вытяжных асбестоцементных труб через стакан d = 400 мм. Установка типа Т215, Т265 и Т315. Общий вид и спецификация Проход вытяжных асбестоцементных труб через стакан d = 700 мм. Установка типа Т354, Т414, Т514 и Т612. Общий вид и спецификация Установка типа Т215, Т265 и Т315. Детали Установка типа Т364, Т414, Т514 и Т612. Детали Установка типа Т215, Т265, Т315, Т364, Т414, Т515 и Т612. Узел крепления трубы к опорному кольцу Узлы управления и регулировки утепленным дроссель-клапаном для установки типа Т195 - Т1325 и Т195-I - Т885-I Узлы управления и регулировки утепленным дроссель-клапаном. Детали узлов 1 - 5 Узлы управления и регулировки утепленным дроссель-клапаном. Детали узлов 6 - 8 Узлы управления и регулировки утепленным дроссель-клапаном. Детали узлов 9 и 10 |
| Разработан: | Гипротис |
| Утверждён: | 03.08.1962 Гипротис (158) |









































