Скачать Серия ПК-01-84 Выпуск VI. Рабочие чертежи ферм пролетом 24 м из линейных элементов с натяжением арматуры нижнего пояса на упорыДата актуализации: 01.01.2021
|
| Обозначение: | Серия ПК-01-84 |
| Обозначение англ: | Series ПК-01-84 |
| Статус: | не действует |
| Название рус.: | Выпуск VI. Рабочие чертежи ферм пролетом 24 м из линейных элементов с натяжением арматуры нижнего пояса на упоры |
| Дата добавления в базу: | 01.09.2013 |
| Дата актуализации: | 01.01.2021 |
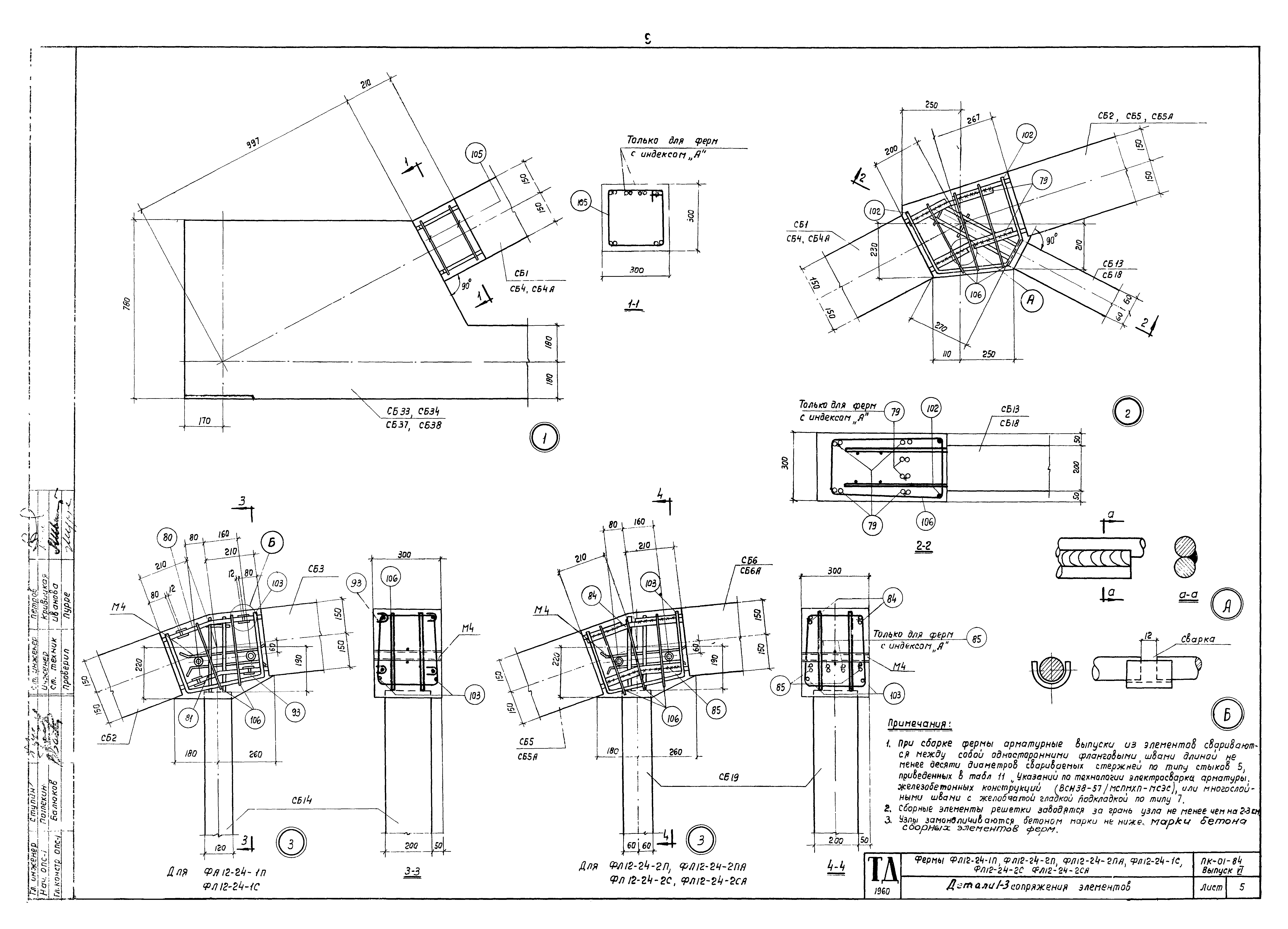
| Оглавление: | Пояснительная записка Сортамент и технико-экономические показатели ферм. Ключ для подбора ферм Расчетные усилия в элементах ферм Фермы ФЛ12-24-1П, ФЛ12-24-2П, ФЛ12-24-2ПА, ФЛ12-24-1С, ФЛ12-24-2С, ФЛ12-24-2СА. Общий вид. Выборка стали и показатели на одну ферму Фермы ФЛ12-24-1П, ФЛ12-24-2П, ФЛ12-24-2ПА, ФЛ12-24-1С, ФЛ12-24-2С, ФЛ12-24-2СА. Сборочный чертеж ферм Фермы ФЛ12-24-1П, ФЛ12-24-2П, ФЛ12-24-2ПА, ФЛ12-24-1С, ФЛ12-24-2С, ФЛ12-24-2СА. Детали 1 - 3 сопряжения элементов Фермы ФЛ12-24-1П, ФЛ12-24-2П, ФЛ12-24-2ПА, ФЛ12-24-1С, ФЛ12-24-2С, ФЛ12-24-2СА. Детали 4 - 7 сопряжения элементов Фермы ФЛ12-24-3П, ФЛ12-24-3ПА, ФЛ12-24-4П, ФЛ12-24-4ПА, ФЛ12-24-3С, ФЛ12-24-3СА, ФЛ12-24-4С, ФЛ12-24-4СА. Общий вид. Выборка стали и показатели на одну ферму Фермы ФЛ12-24-3П, ФЛ12-24-3ПА, ФЛ12-24-4П, ФЛ12-24-4ПА, ФЛ12-24-3С, ФЛ12-24-3СА, ФЛ12-24-4С, ФЛ12-24-4СА. Сборочный чертеж ферм Фермы ФЛ12-24-3П, ФЛ12-24-3ПА, ФЛ12-24-4П, ФЛ12-24-4ПА, ФЛ12-24-3С, ФЛ12-24-3СА, ФЛ12-24-4С, ФЛ12-24-4СА. Детали 1 - 3 сопряжения элементов Фермы ФЛ12-24-3П, ФЛ12-24-3ПА, ФЛ12-24-4П, ФЛ12-24-4ПА, ФЛ12-24-3С, ФЛ12-24-3СА, ФЛ12-24-4С, ФЛ12-24-4СА. Детали 4 - 7 сопряжения элементов Сборные элементы СБ1 - СБ5, СБ4А - СБ5А Сборные элементы СБ6 - СБ9, СБ6А - СБ9А, СБ12, СБ12А Сборные элементы СБ10, СБ10А, СБ11, СБ13 - СБ32 Фермы ФЛ12-24-1П, ФЛ12-24-2П, ФЛ12-24-2ПА. Сборные элементы СБ33, СБ34 Фермы ФЛ12-24-3П, ФЛ12-24-3ПА, ФЛ12-24-4П, ФЛ12-24-4ПА. Сборные элементы СБ35, СБ36 Фермы ФЛ12-24-1С, ФЛ12-24-2С, ФЛ12-24-2СА. Сборные элементы СБ37, СБ38 Фермы ФЛ12-24-3С, ФЛ12-24-3СА, ФЛ12-24-4С, ФЛ12-24-4СА. Сборные элементы СБ39, СБ40 Спецификация марок арматурных изделий на один сборный элемент Спецификация марок арматурных изделий на один сборный элемент. Показатели на один сборный элемент Арматурные каркасы КП1 - КП16 Арматурные каркасы КП17 - КП26, КР1 - КР4 Арматурные каркасы КР5 - КР11, сетки С1 - С6 Спецификация и выборка стали Закладные элементы М1 - М9. Опорные элементы МС1, МС2 |
| Разработан: | Ленинградский Промстройпроект Гипротис НИИЖБ АСиА СССР |
| Утверждён: | 13.03.1961 Госстрой СССР (Государственный комитет Совета Министров СССР по делам строительства) (USSR Gosstroy 87) |































