Скачать Серия ПК-01-84 Выпуск XI. Рабочие чертежи усиленных ферм пролетом 18, 24 и 30 м из линейных элементовДата актуализации: 01.01.2021
|
| Обозначение: | Серия ПК-01-84 |
| Обозначение англ: | Series ПК-01-84 |
| Статус: | не действует |
| Название рус.: | Выпуск XI. Рабочие чертежи усиленных ферм пролетом 18, 24 и 30 м из линейных элементов |
| Дата добавления в базу: | 01.09.2013 |
| Дата актуализации: | 01.01.2021 |
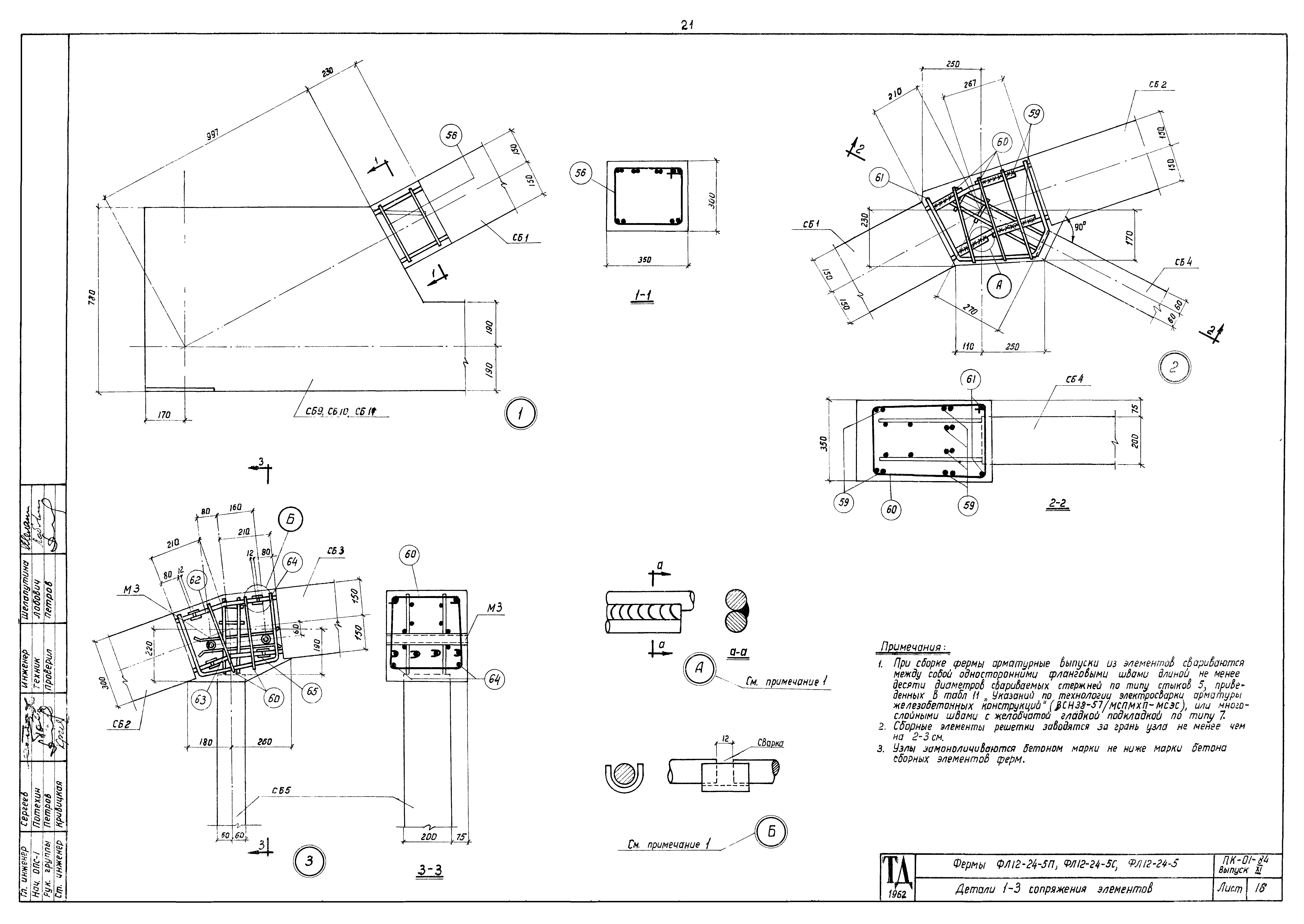
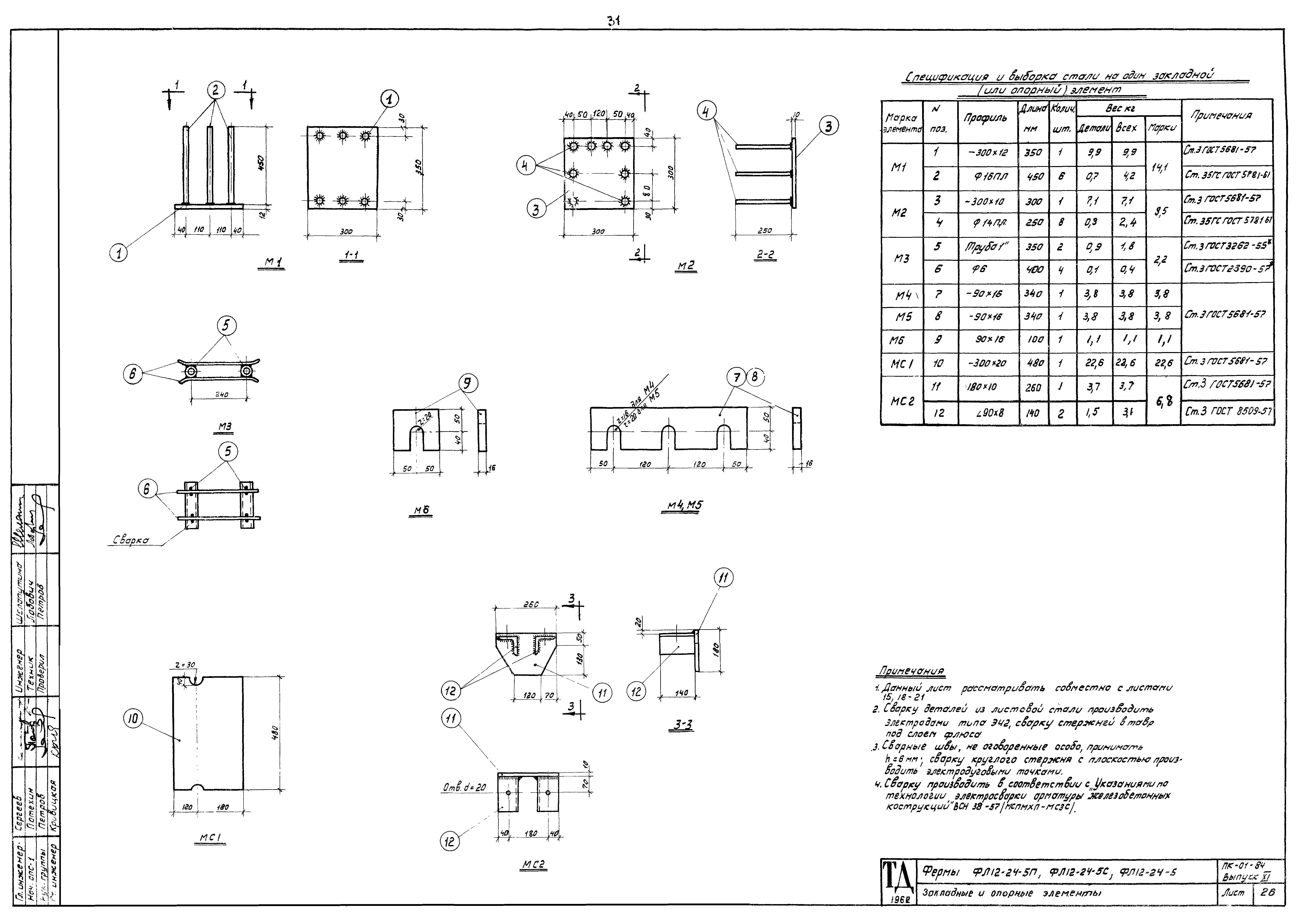
| Оглавление: | Пояснительная записка Расчетные усилия в элементах ферм. Сортамент и технико-экономические показатели ферм Фермы ФЛ12-18-5П, ФЛ12-18-5С, ФЛ12-18-5 Общий вид. Выборка стали и показатели на одну ферму Сборочный чертеж ферм Детали сопряжения элементов Сборные элементы СБ1 - СБ6 Сборный элемент СБ7 Сборный элемент СБ8 Сборный элемент СБ9 Спецификация марок арматурных изделий и показатели на один сборный элемент Арматурные каркасы КП1 - КП8 Арматурные каркасы КП7, КП8, КР1 - КР3 и сетки С1 и С2 Спецификация и выборка стали Закладные и опорные элементы Фермы ФЛ12-24-5П, ФЛ12-24-5С, ФЛ12-24-5 Общий вид. Выборка стали и показатели на одну ферму Сборочный чертеж ферм Детали 1 - 3 сопряжения элементов Детали 4 - 7 сопряжения элементов Сборные элементы СБ1 - СБ8 Сборный элемент СБ9 Сборный элемент СБ10 Сборный элемент СБ11 Спецификация марок арматурных изделий и показатели на один сборный элемент Арматурные каркасы КП1 - КП10 Арматурные каркасы КР1 - КР6. Сетки С1 и С2 Спецификация и выборка стали Закладные и опорные элементы Фермы ФЛ12-30-5П, ФЛ12-30-5С, ФЛ12-30-5 Общий вид. Выборка стали и показатели на одну ферму Сборочный чертеж ферм Детали 1 - 4 сопряжения элементов Детали 5 - 8 сопряжения элементов Сборные элементы СБ1 - СБ3 Сборный элемент СБ4 - СБ9. Спецификация марок арматурных изделий и показатели на один сборный элемент Сборный элемент СБ10 Сборные элементы СБ11 и СБ12 Арматурные каркасы КП1 - КП12 Арматурные каркасы КР1 - КР6. Сетки С1 и С2 Спецификация и выборка стали Закладные и опорные элементы |
| Разработан: | Гипротис НИИЖБ АСиА СССР |
| Утверждён: | 29.03.1962 Госстрой СССР (Государственный комитет Совета Министров СССР по делам строительства) (USSR Gosstroy 48) |













































