Скачать Типовые проектные решения 820-04-22.86 Альбом I. Пояснительная записка и чертежиДата актуализации: 01.01.2021
|
| Обозначение: | Типовые проектные решения 820-04-22.86 |
| Обозначение англ: | 820-04-22.86 |
| Статус: | справочные материалы, мп, тпр |
| Название рус.: | Альбом I. Пояснительная записка и чертежи |
| Дата добавления в базу: | 01.09.2013 |
| Дата актуализации: | 01.01.2021 |
| Дата окончания срока действия: | 01.09.1985 |
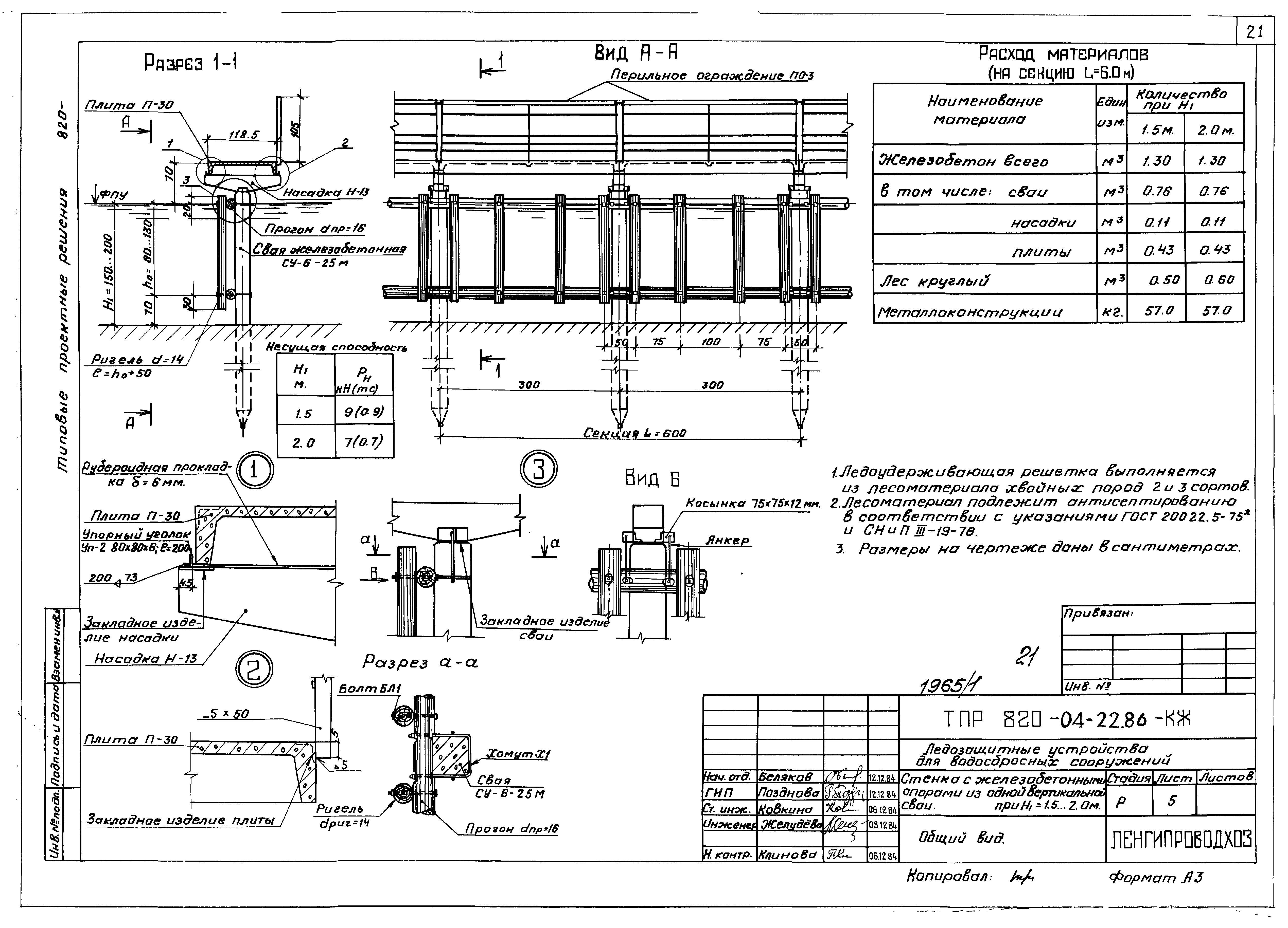
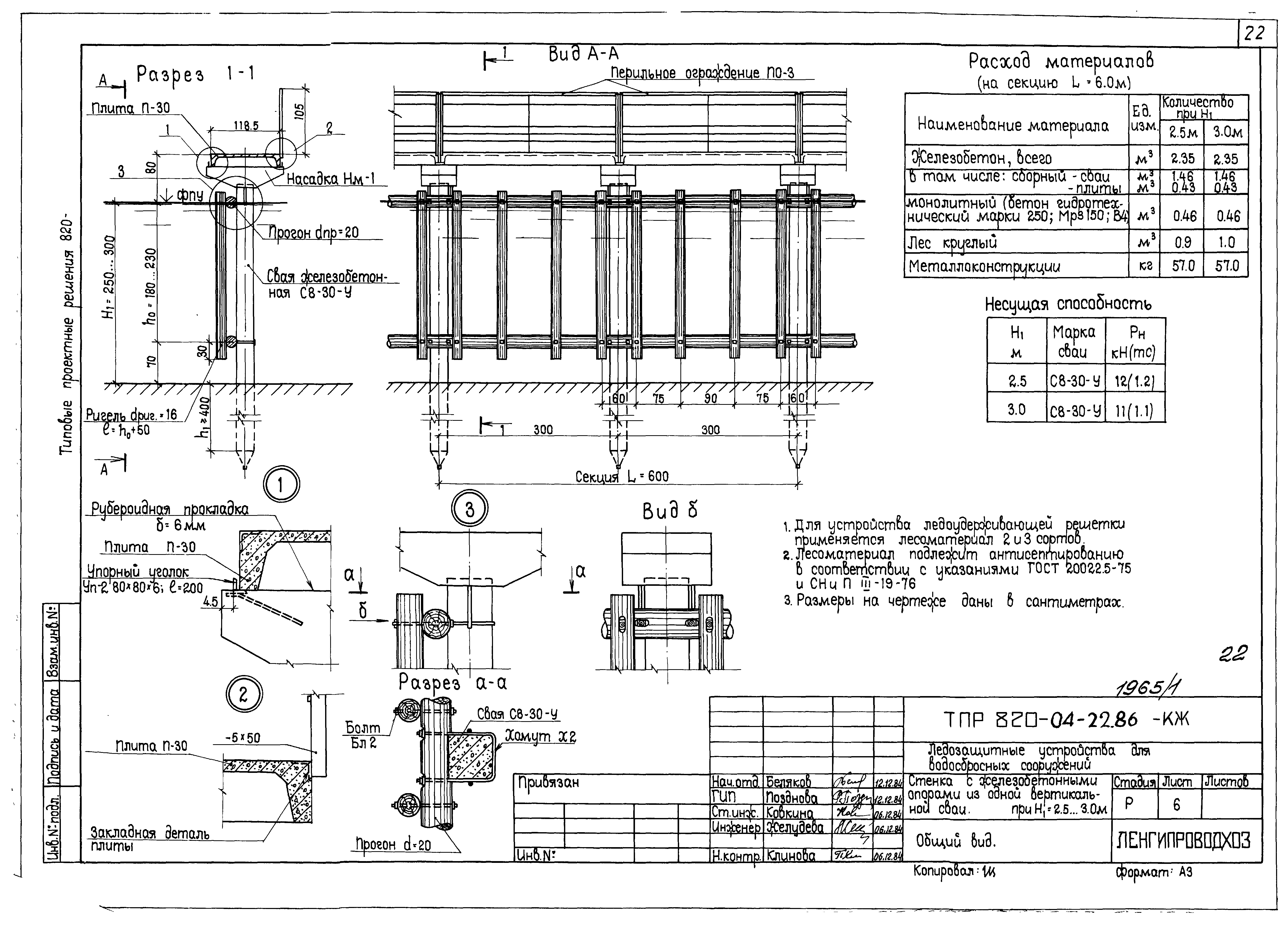
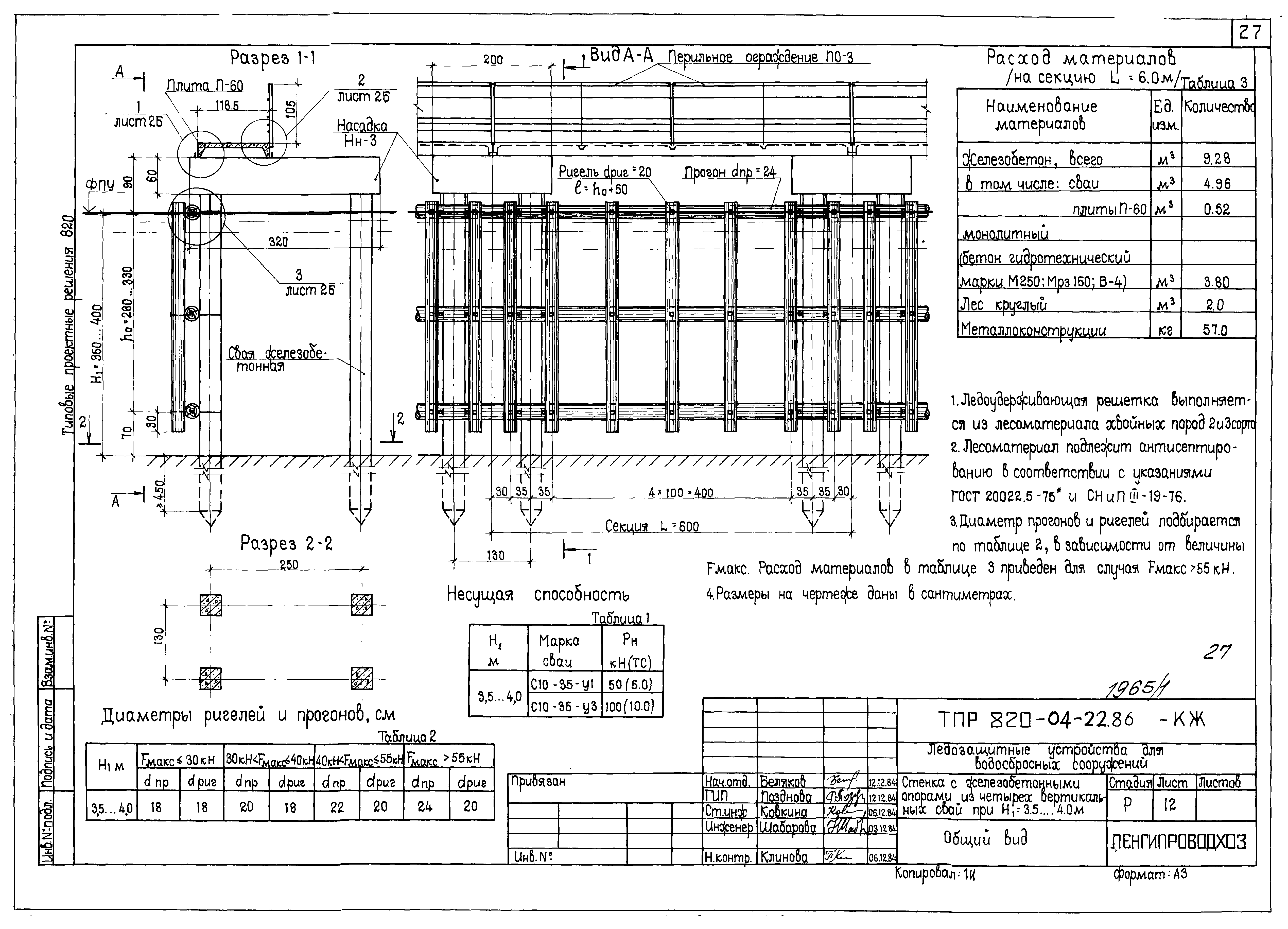
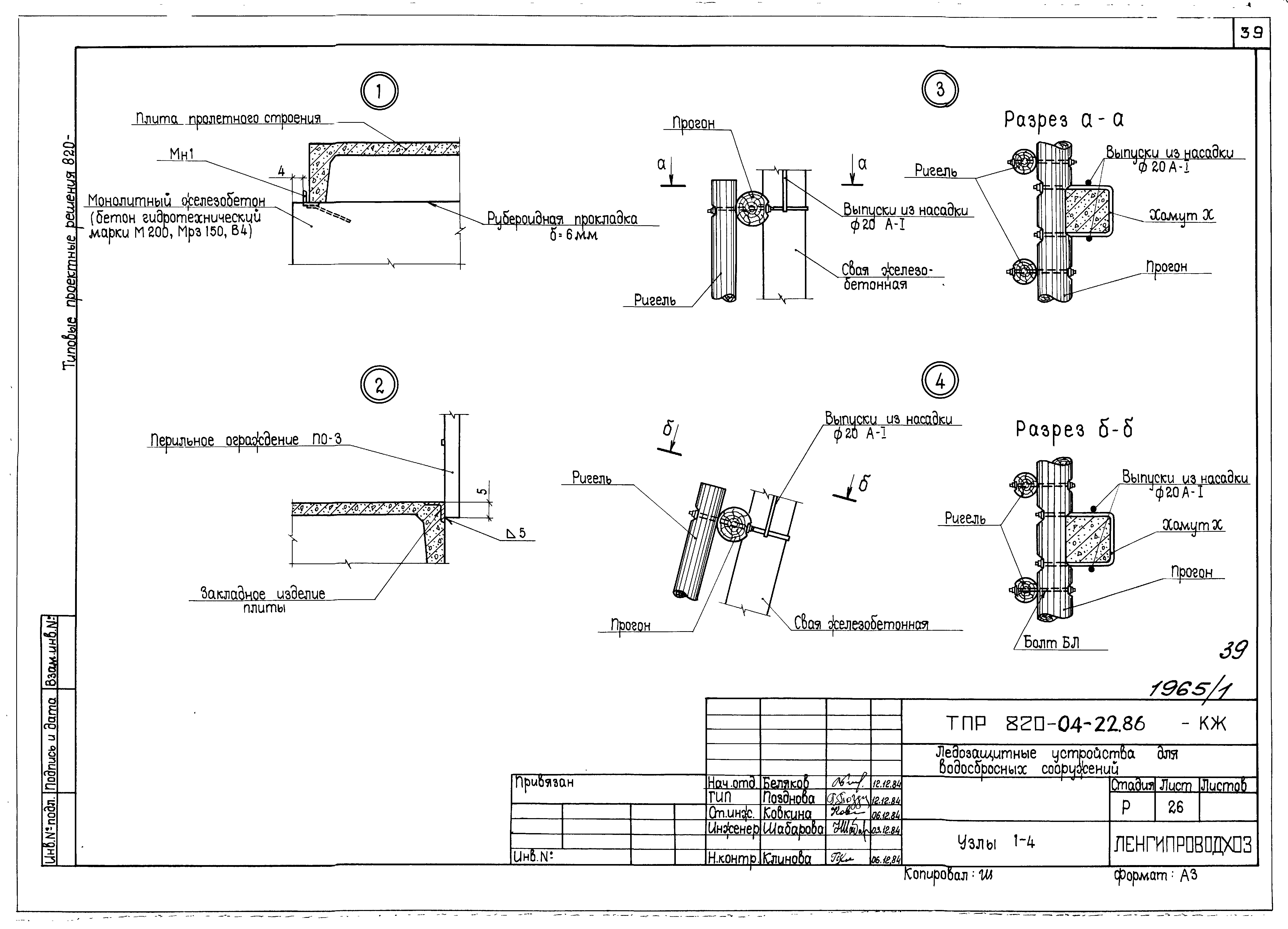
| Оглавление: | Введение 1. Условия применения типовых проектных решений 2. Конструкции ледозащитных устройств. Рекомендации по выбору типа ледозащитного устройства 3. Рекомендации по расположению и назначению длины ледозащитного устройства 4. Указания по производству работ 5. Технико-экономические показатели 6. Порядок проектирования ледозащитного устройства по типовым проектным решениям Приложения 1. Методика проверки прочности конструкции ледозащитного устройства с опорами из одной вертикальной сваи или куста свай 2. Основные расчетные положения 3. Основные буквенные обозначения Рабочие чертежи комплекта КЖ Общие данные Стенка с железобетонными опорами из одной вертикальной сваи при Н1 = 1,5 - 2,0 м. Спецификация Стенка с железобетонными опорами из одной вертикальной сваи при Н1 = 2,5 - 3,0 м. Спецификация Стенка с железобетонными опорами из одной вертикальной сваи при Н1 = 1,5 - 2,0 м. Общий вид Стенка с железобетонными опорами из одной вертикальной сваи при Н1 = 2,5 - 3,0 м. Общий вид Насадка Нм-1. Общий вид. Схема армирования Стенка с железобетонными опорами из четырех вертикальных свай при Н1 = 2,5 - 3,0 м. Спецификация Стенка с железобетонными опорами из четырех вертикальных свай при Н1 = 3,5 - 4,0 м. Спецификация Стенка с железобетонными опорами из четырех вертикальных свай при Н1 = 2,5 - 3,0 м. Общий вид Насадка Нм-2. Общий вид. Схема армирования Стенка с железобетонными опорами из четырех вертикальных свай при Н1 = 3,5 - 4,0 м. Общий вид Насадка Нм-3. Общий вид. Схема армирования Стенка с железобетонными козловыми опорами из двух свай при Н1 = 1,5 - 2,0 м. Спецификация Стенка с железобетонными козловыми опорами из двух свай при Н1 = 2,5 - 3,0 м. Спецификация Стенка с железобетонными козловыми опорами из двух свай при Н1 = 1,5 - 2,0 м. Общий вид Стенка с железобетонными козловыми опорами из двух свай при Н1 = 2,5 - 3,0 м. Общий вид Насадка Нм-4. Общий вид. Схема армирования Стенка с железобетонными козловыми опорами из трех свай при Н1 = 1,5 - 3,0 м. Спецификация Стенка с железобетонными козловыми опорами из трех свай при Н1 = 3,5 - 4,0 м. Спецификация Стенка с железобетонными козловыми опорами из трех свай при Н1 = 1,5 - 2,0 м. Общий вид Стенка с железобетонными козловыми опорами из трех свай при Н1 = 2,5 - 3,0 м. Общий вид Стенка с железобетонными козловыми опорами из трех свай при Н1 = 3,5 - 4,0 м. Общий вид Насадка Нм-5. Общий вид. Схема армирования Насадка Нм-6. Общий вид. Схема армирования Узлы 1 - 4 Стенки с железобетонными опорами. Сопряжение с берегом Сваи С8-30-У и С7-30-У. Общие виды. Схемы армирования Сваи С10-35-У1, С10-35-У2 и С10-35-У3. Общие виды. Схемы армирования Рабочие чертежи комплекта КД Общие данные Плавучий бон. Общий вид Стенка с опорами из одной деревянной сваи при Н1 = 1,5 - 2,0 м. Общий вид Стенка с опорами из одной деревянной сваи при Н1 = 2,5 - 3,0 м. Общий вид Стенка с опорами в виде куста из двух деревянных свай при Н1 = 1,5 - 2,0 м. Общий вид Стенка с опорами в виде куста из двух деревянных свай при Н1 = 2,5 - 3,0 м. Общий вид Стенка с опорами в виде куста из трех деревянных свай при Н1 = 1,5 - 2,0 м. Общий вид Стенка с опорами в виде куста из трех деревянных свай при Н1 = 2,5 - 3,0 м. Общий вид Стенка с опорами в виде куста из четырех деревянных свай при Н1 = 3,5 - 4,0 м. Общий вид Стенка с опорами в виде куста деревянных свай. Узлы 1 - 3. Деталь соединения свай в кусте Плавучая запань. Общий вид Плавучая запань. Детали наплавной части Плавучая запань. Опоры Стенки с опорами из деревянных свай. Сопряжение с берегом Рабочие чертежи комплекта КМ Перильное ограждение ПО-3 Хомуты Х1, Х2, Х3 Болты БЛ1, БЛ2. Изделие закладное Мн1 |
| Разработан: | Ленгипроводхоз Минводхоза СССР |
| Утверждён: | 29.03.1985 Минводхоз СССР (USSR Minvodkhoz 635) |
| Издан: | ЦИТП Госстроя СССР (CITP, Gosstroy (USSR) 1988 г. ) |



























































