Скачать Типовой проект 704-5-28.88 Альбом 1. Пояснительная записка. Технология производства. Нестандартизированное оборудование. Силовое электрооборудование. Электроосвещение. Молниезащита. Ведомости потребности в материалахДата актуализации: 01.01.2021
|
| Обозначение: | Типовой проект 704-5-28.88 |
| Обозначение англ: | 704-5-28.88 |
| Статус: | не определен законодательством |
| Название рус.: | Альбом 1. Пояснительная записка. Технология производства. Нестандартизированное оборудование. Силовое электрооборудование. Электроосвещение. Молниезащита. Ведомости потребности в материалах |
| Дата добавления в базу: | 01.09.2013 |
| Дата актуализации: | 01.01.2021 |
| Дата введения: | 22.03.1988 |
| Дата окончания срока действия: | 30.06.2003 |
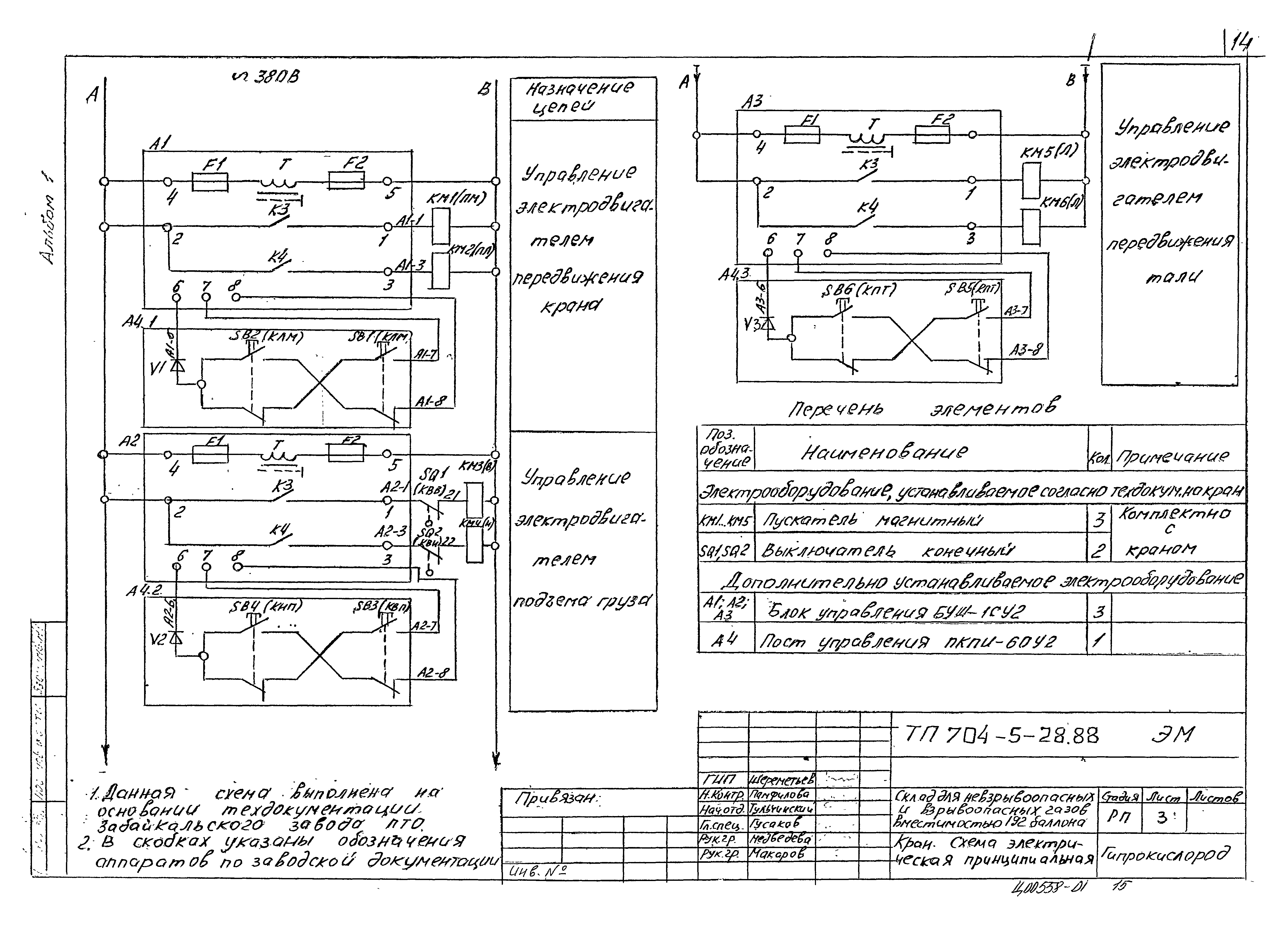
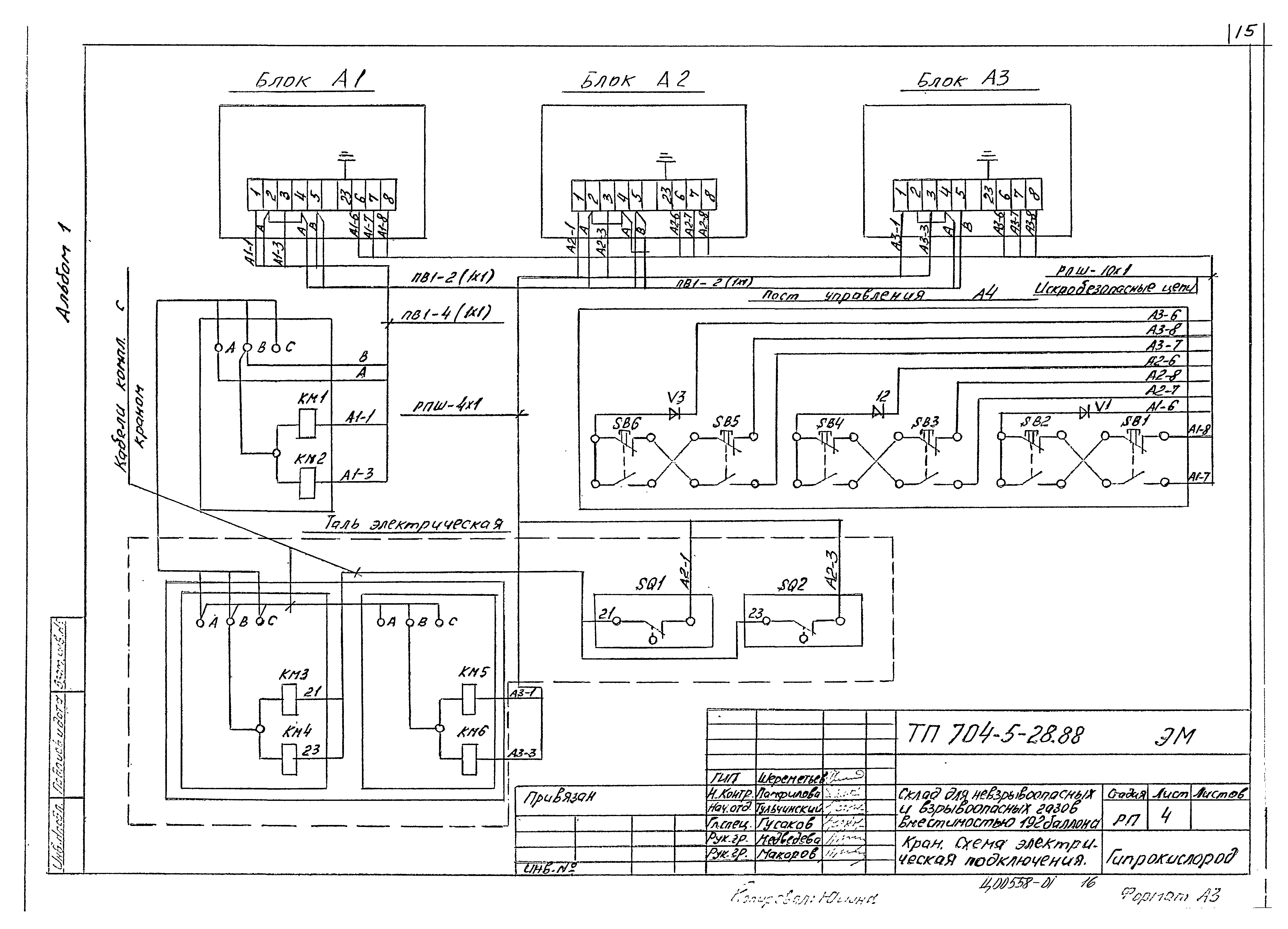
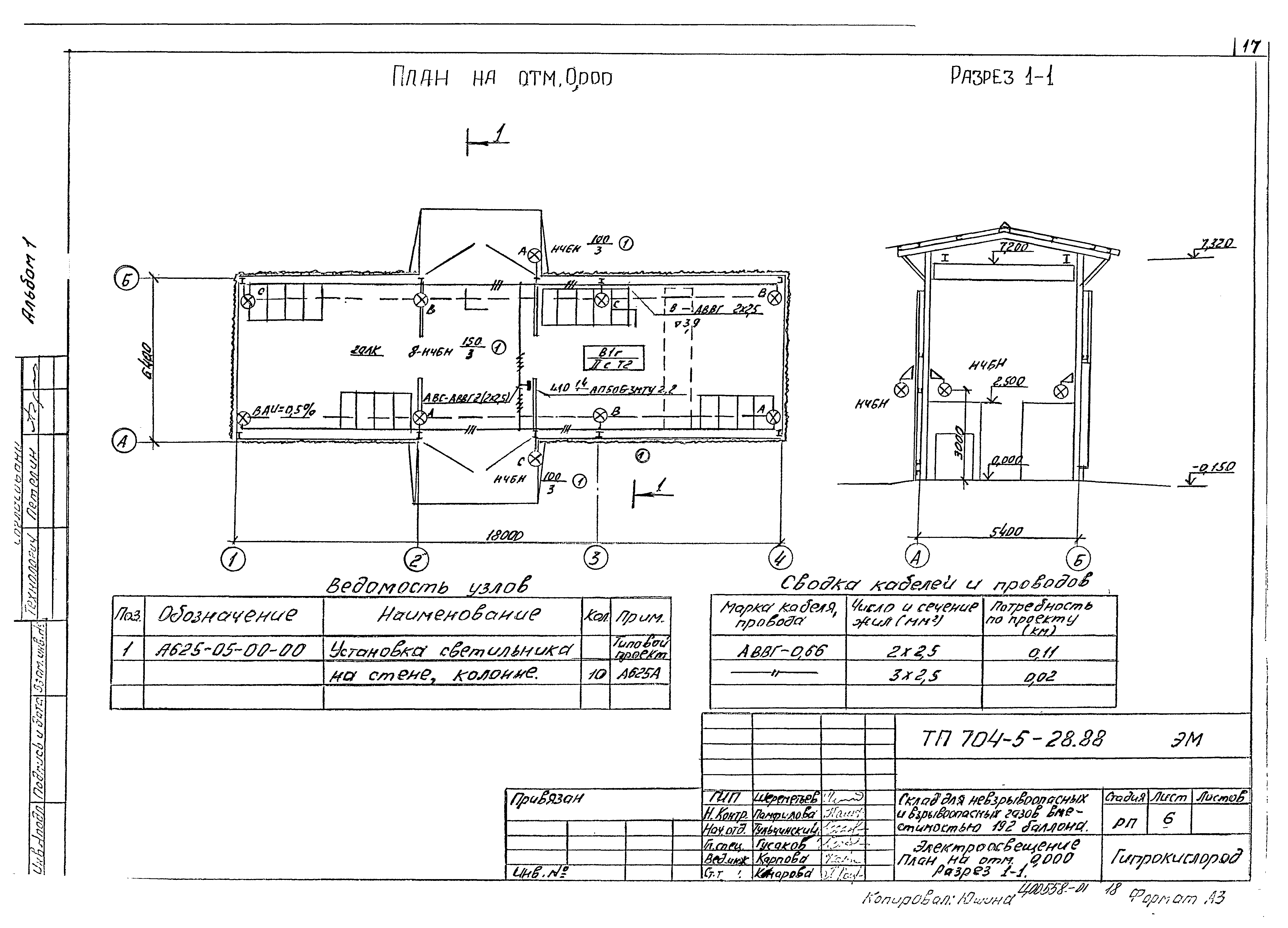
| Оглавление: | Пояснительная записка Технология производства Общие данные Генплан План на отм. 0.000, А-А Нестандартизированное оборудование Поддон Силовое электрооборудование. Электроосвещение. Молниезащита Общие данные Схема и план питающей сети. Молниезащита. Заземление Кран. Схема электрическая принципиальная Кран. Схема электрическая подключения Кран. Расположение электрооборудования. Прокладка кабелей Электроосвещение. План на отм. 0.000. Разрез I-I Задание МЭЗ Ведомости потребности в материалах Ведомость потребности в материалах |
| Разработан: | Гипрокислород Минхимнефтепрома СССР |
| Утверждён: | 22.03.1988 Минхимпром СССР (USSR Minkhimprom 48-1754) |




















