Скачать Типовой проект 704-5-28.88 Альбом 2. Архитектурно-строительные решения. Конструкции железобетонные. Конструкции металлическиеДата актуализации: 01.01.2021
|
| Обозначение: | Типовой проект 704-5-28.88 |
| Обозначение англ: | 704-5-28.88 |
| Статус: | не определен законодательством |
| Название рус.: | Альбом 2. Архитектурно-строительные решения. Конструкции железобетонные. Конструкции металлические |
| Дата добавления в базу: | 01.09.2013 |
| Дата актуализации: | 01.01.2021 |
| Дата введения: | 22.03.1988 |
| Дата окончания срока действия: | 30.06.2003 |
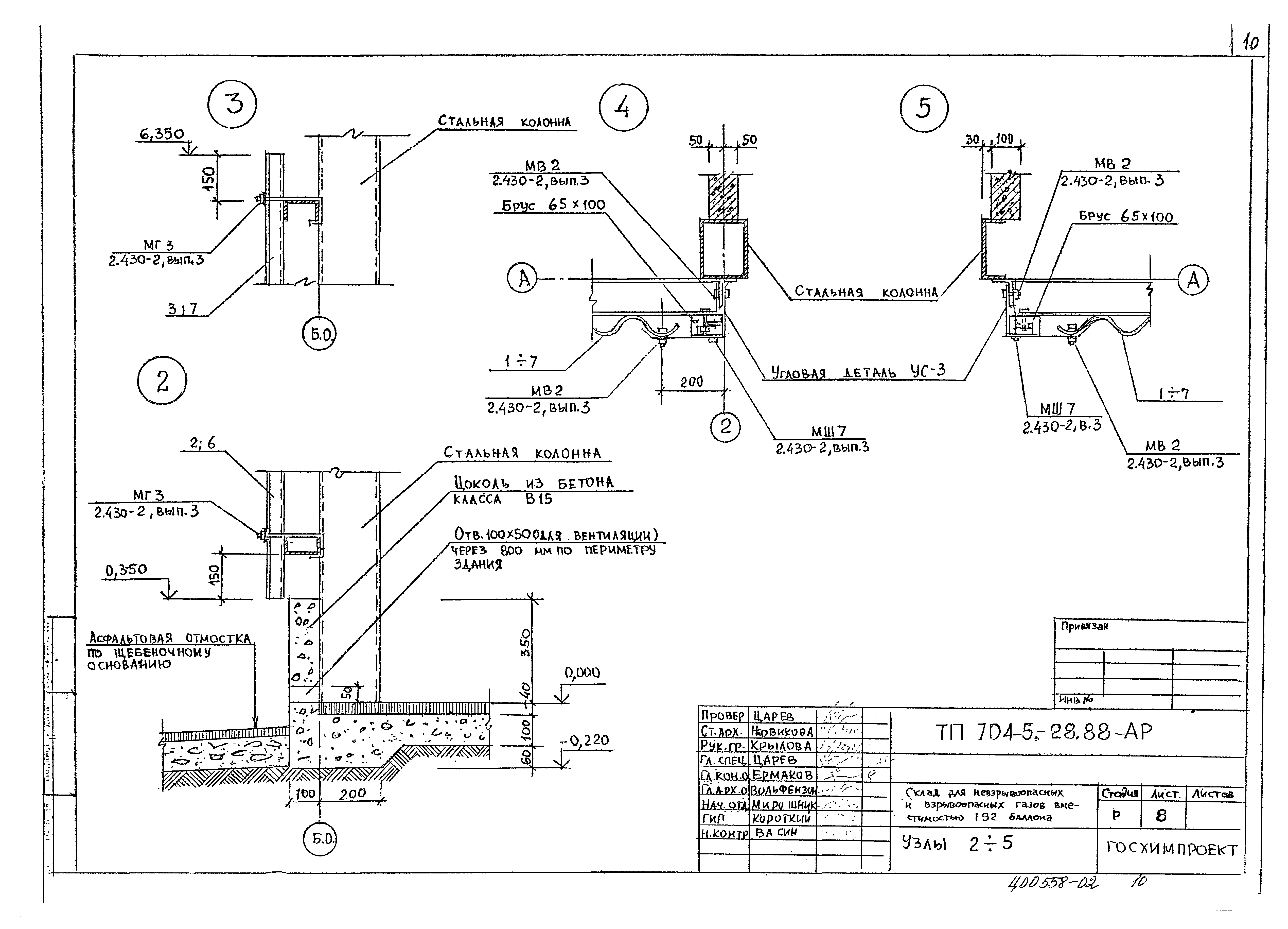
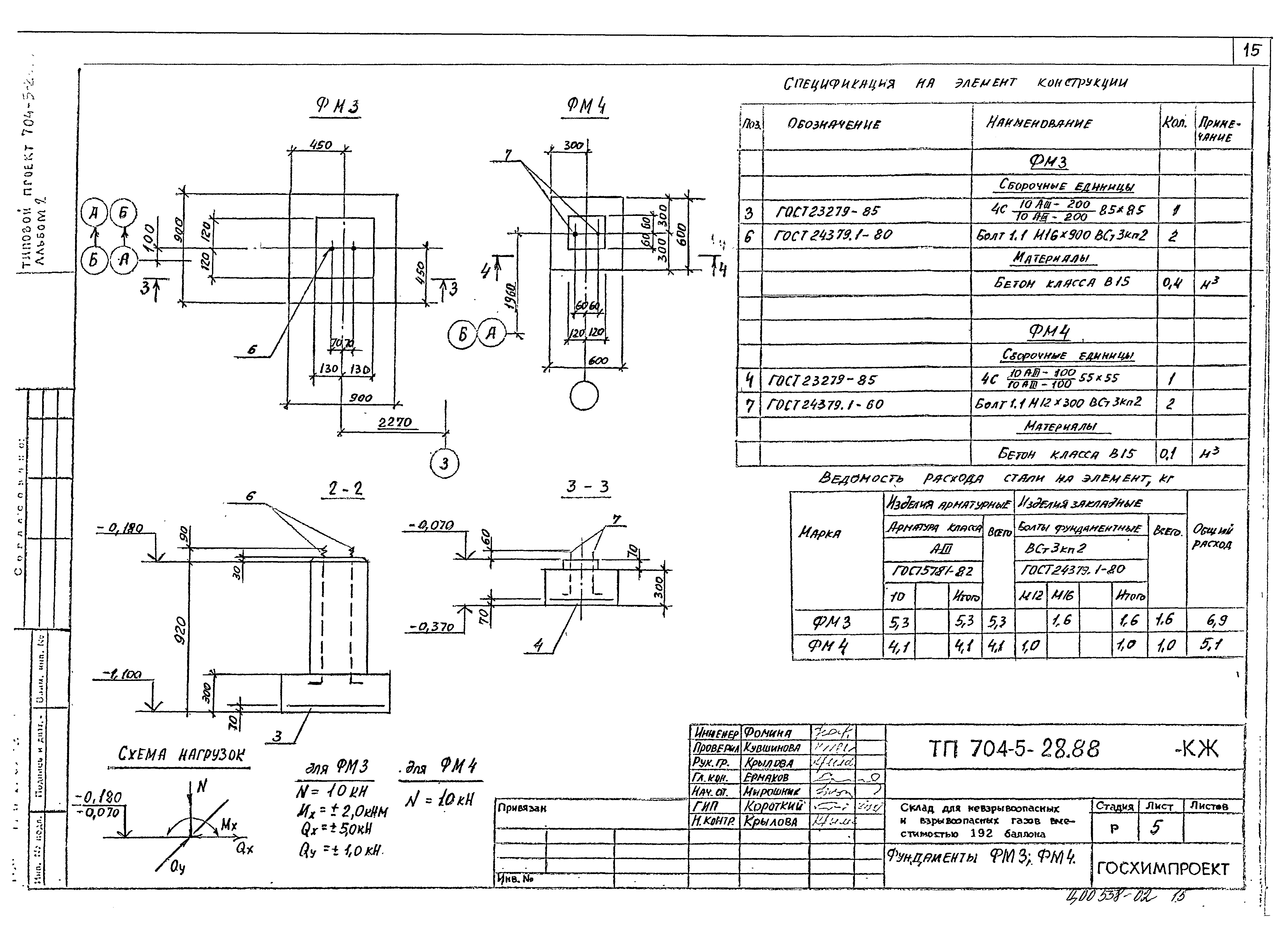
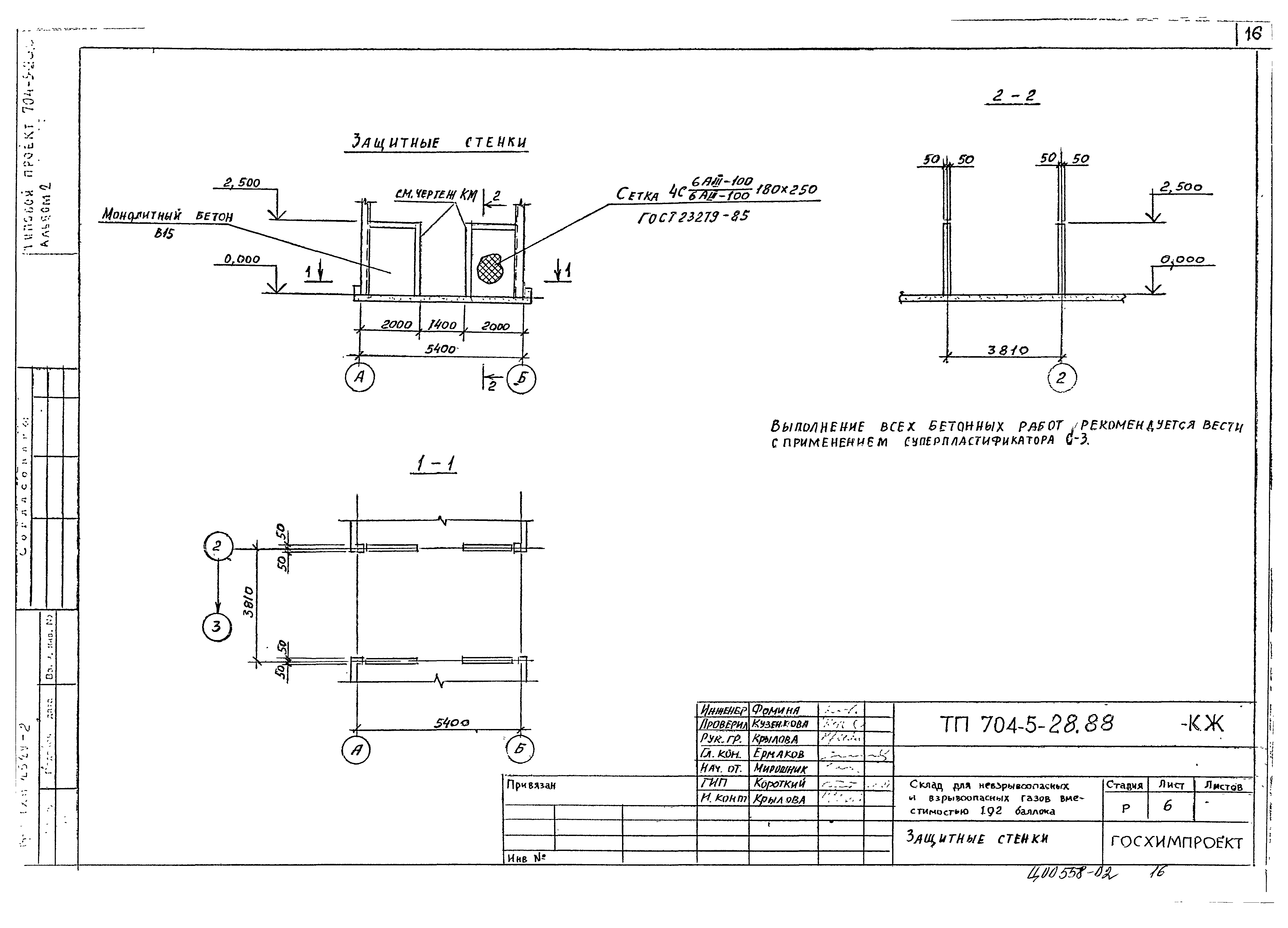
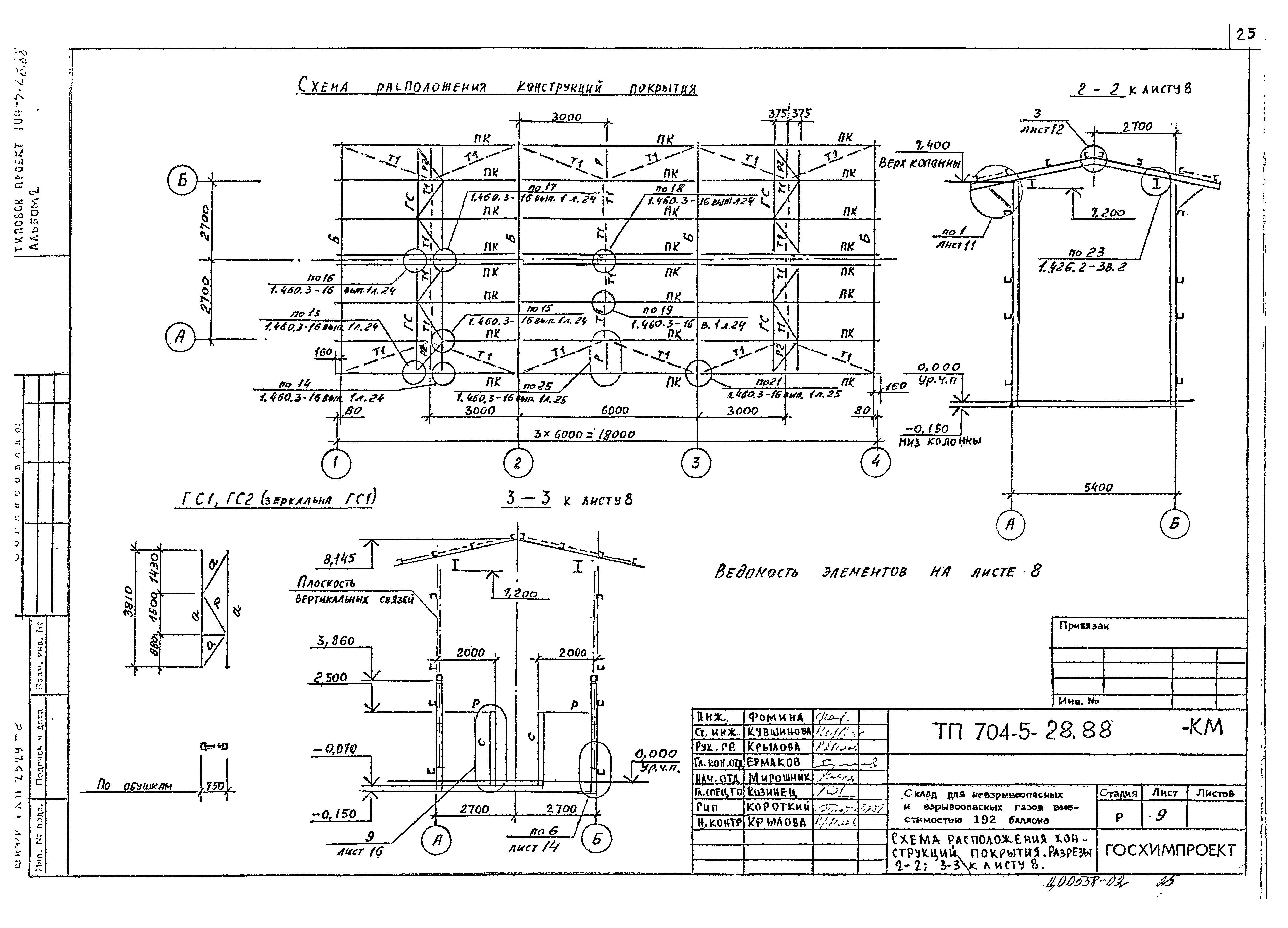
| Оглавление: | Содержание альбома Чертежи основного комплекта марки АР Общие данные Спецификация изделий, замаркированных на чертежах фасадов и плане покрытия План на отм. 0.000. Разрез 1-1 Фасады 1 - 4, 4 - 1, А - Б, Б - А Маркировочный план покрытия. Узел 1 Узлы 2 - 5 Чертежи основного комплекта марки КЖ Общие данные Маркировочная схема фундаментов Фундамент ФМ1 Фундамент ФМ2 Фундаменты ФМ3; ФМ4 Защитные стенки Чертежи основного комплекта марки КМ Общие данные Схема расположения колонн, стоек фахверка и подвесных путей. Разрез 1-1 Схема расположения конструкций покрытия. Разрезы 2-2, 3-3 к листу 8 Разрезы 4-4, 5-5 к листу 8 Узел 1 Узлы 2 и 3 Узлы 4 и 5 Узел 6, ворота В1 Узлы 7 и 8 Узлы 9 и 10 |
| Разработан: | Гипрокислород Минхимнефтепрома СССР |
| Утверждён: | 22.03.1988 Минхимпром СССР (USSR Minkhimprom 48-1754) |
































