Скачать Типовой проект 296-1-32 Альбом I. Архитектурно-строительная частьДата актуализации: 01.01.2021
|
| Обозначение: | Типовой проект 296-1-32 |
| Обозначение англ: | 296-1-32 |
| Статус: | не определен законодательством |
| Название рус.: | Альбом I. Архитектурно-строительная часть |
| Дата добавления в базу: | 01.09.2013 |
| Дата актуализации: | 01.01.2021 |
| Дата введения: | 23.04.1979 |
| Дата окончания срока действия: | 30.06.2003 |
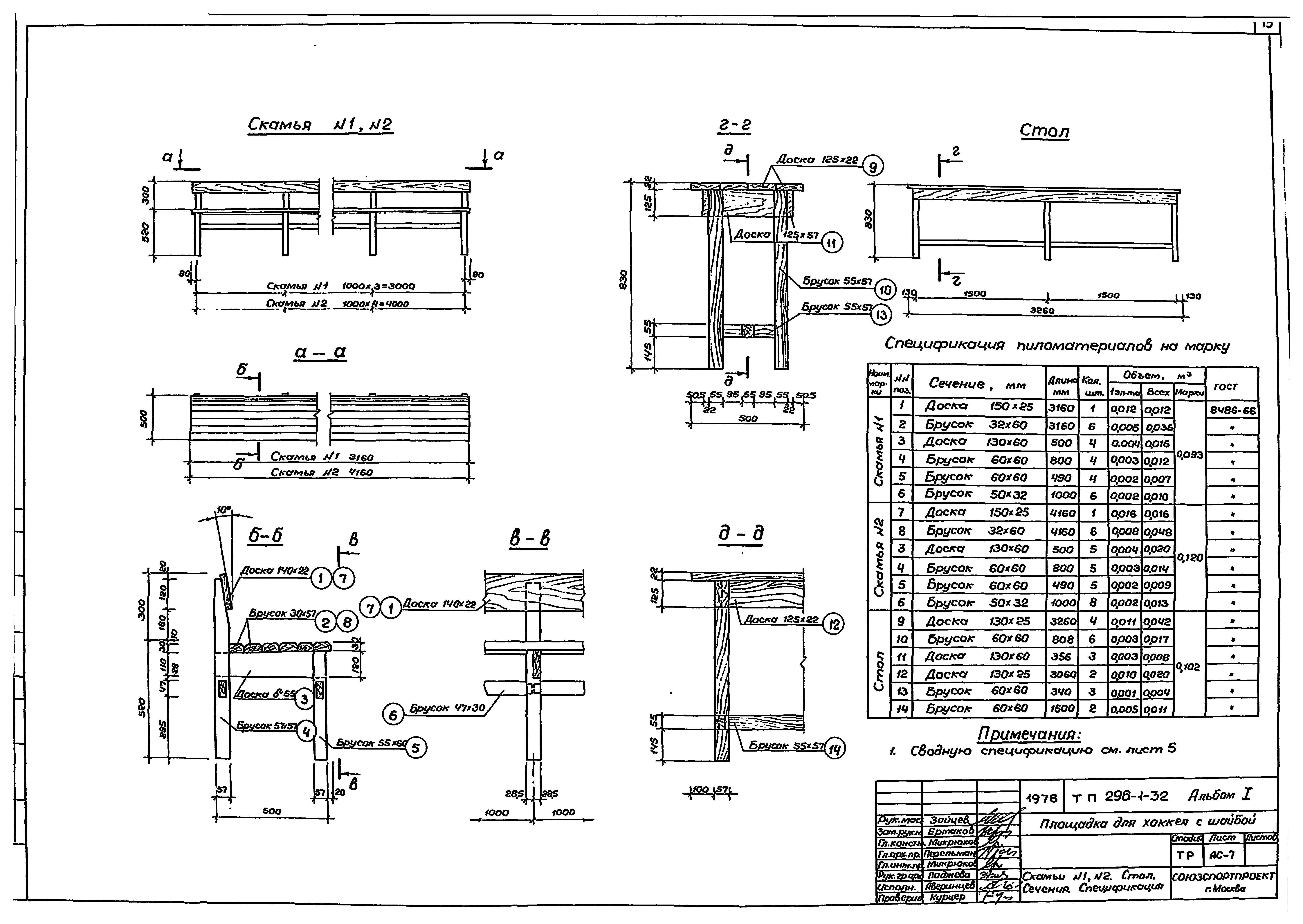
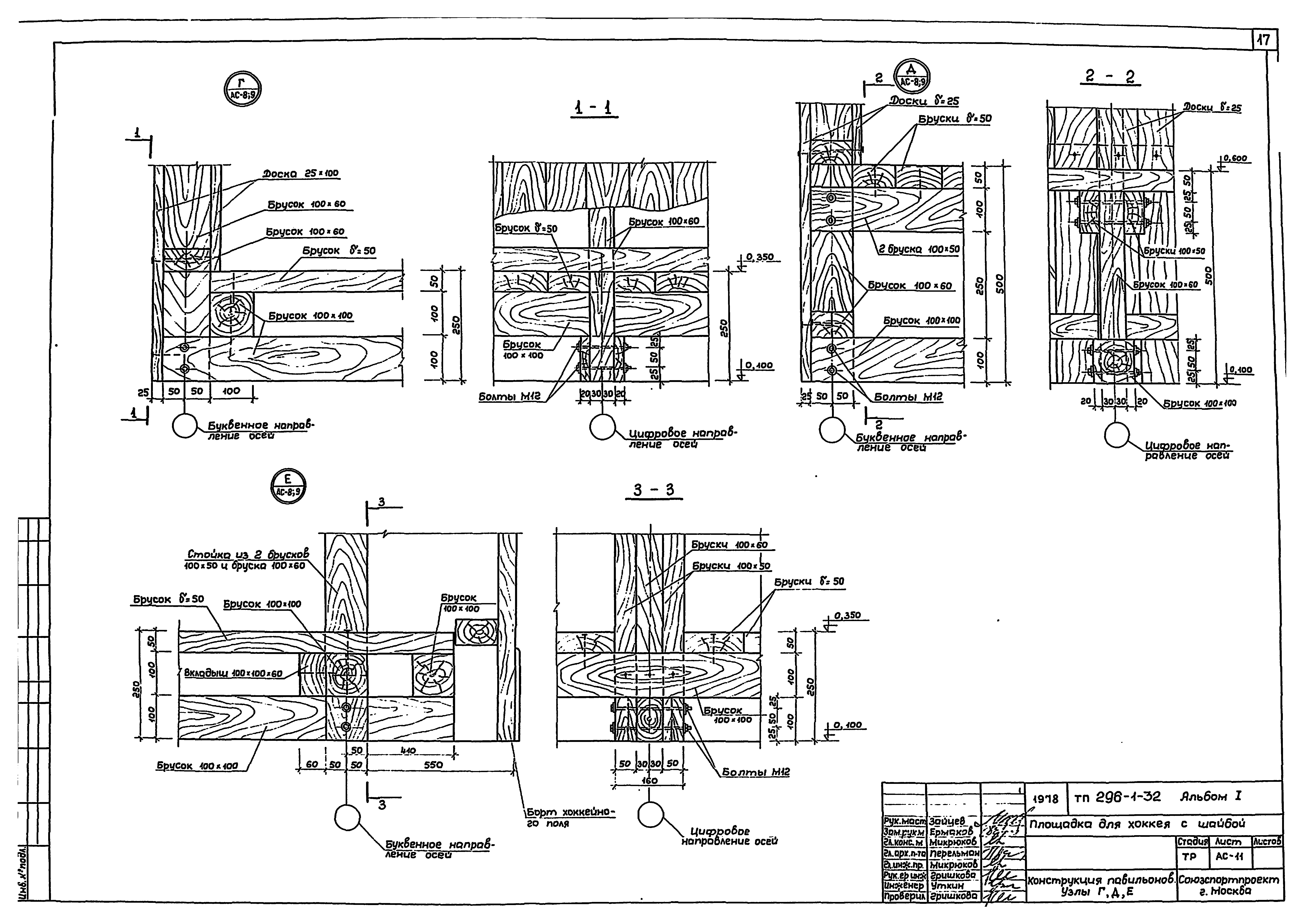
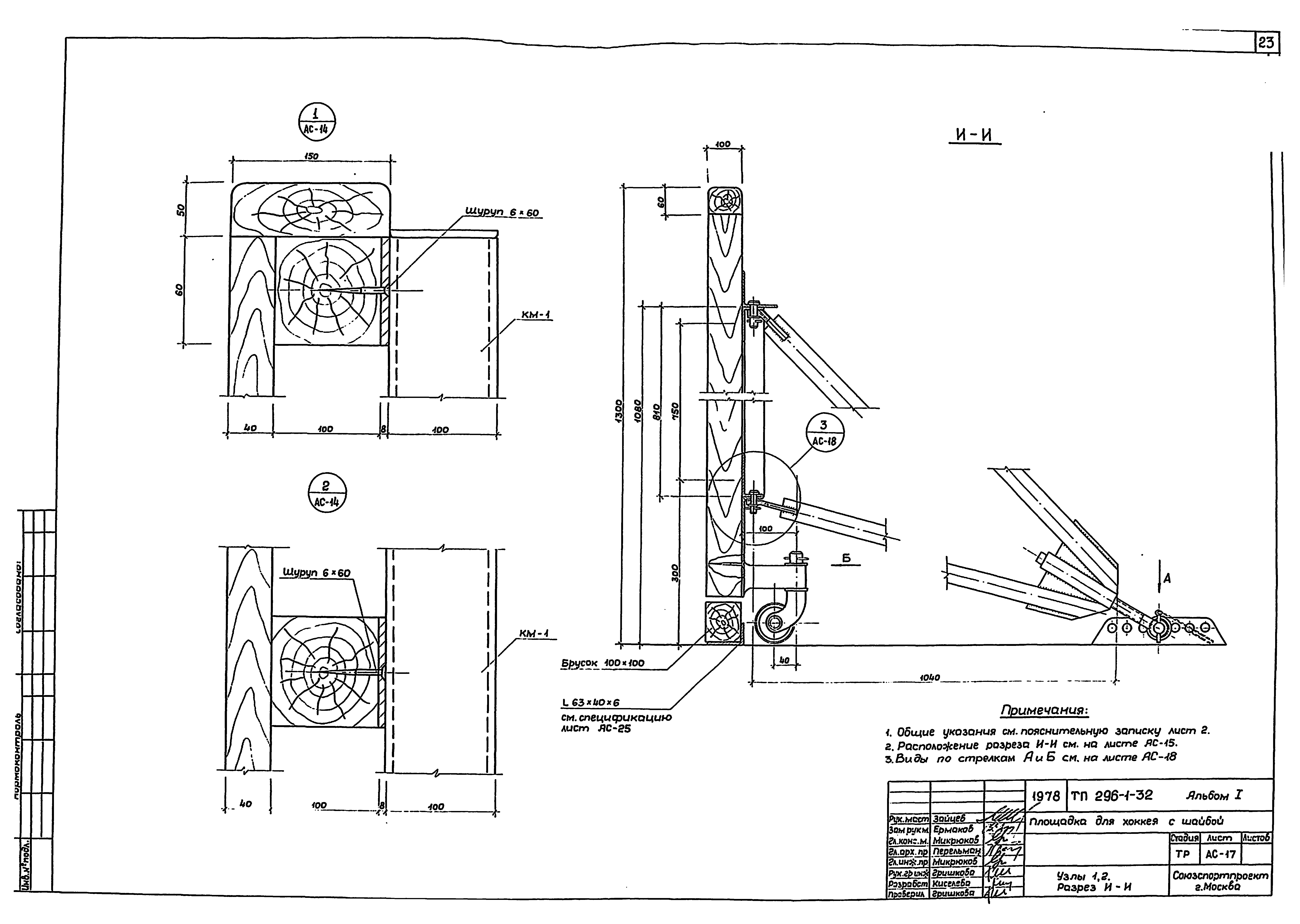
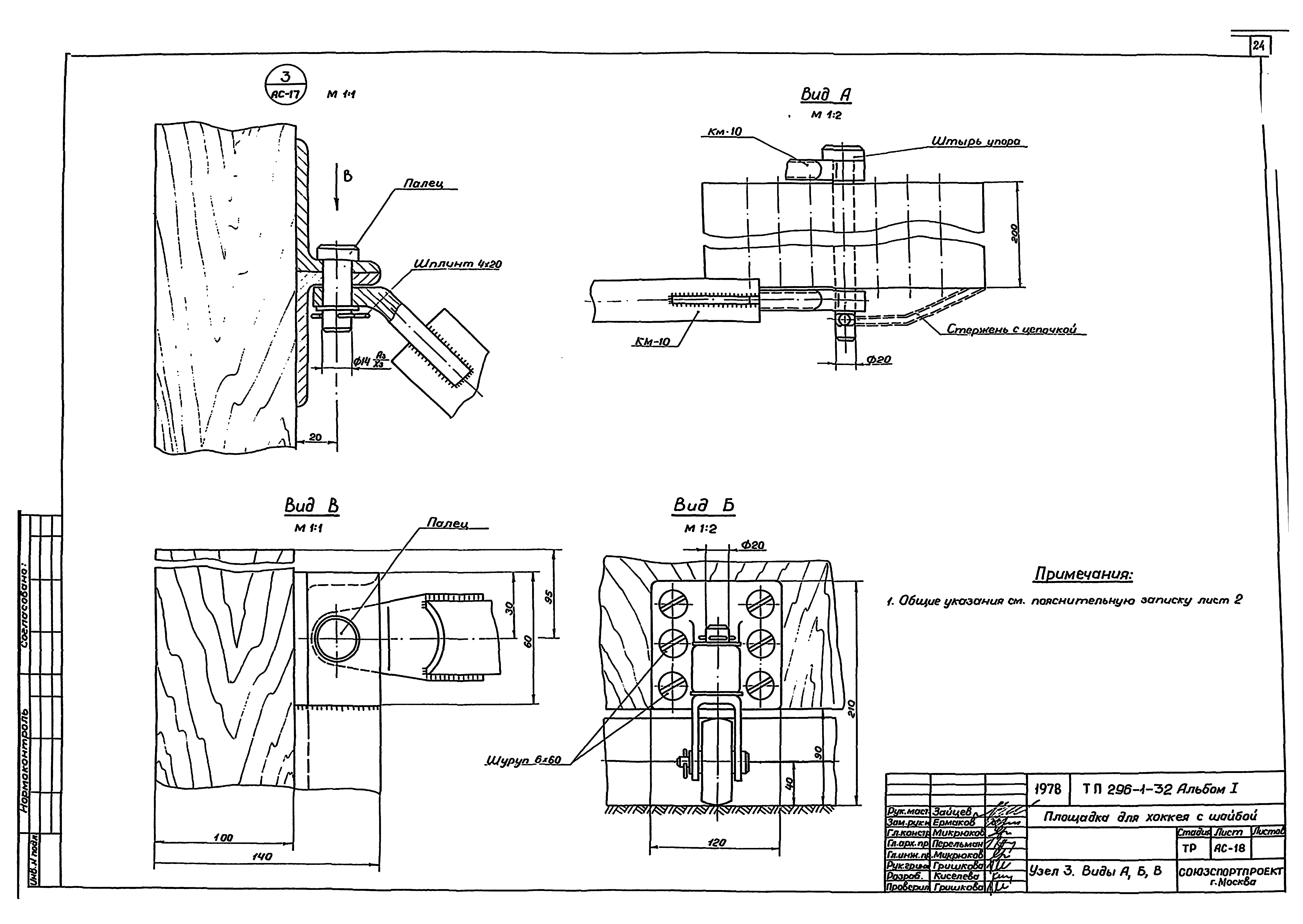
| Оглавление: | Содержание альбома Пояснительная записка Заглавный лист Сводные спецификации расхода материалов План площадки. Разрезы I-I - III-III; А-А; Б-Б Игровая разметка. Схемы уклонов Технологический план летнего использования Типы резинобитумных покрытий. Узлы Павильон для судей и оштрафованных игроков. План. Фасад в осях 2 - 3; 3 - 2; А - Б. Разрез I-I Павильон для хоккеистов. План. Фасад в осях 4 - 1; 1 - 4; Г - В. Разрез I-I Скамьи №1, №2. Стол. Сечения. Спецификация Павильон для хоккеистов. Схемы каркаса по осям "В" и "Г". План стоек и балок Павильон для судей и оштрафованных игроков. Схемы каркаса по осям "А", "Б". План по 1-1 Конструкция павильонов. Узлы А, Б, В Конструкция павильонов. Узлы Г, Д, Е План фундаментов под стойки ограждения Схема ограждения хоккейной площадки Общий вид борта (фрагмент I) Общий вид ворот (фрагмент II) Общий вид калитки (фрагмент III) Узлы 1, 2. Разрез И-И Узел 3. Виды А, Б, В Узел 4. Сечения 1-1 - 3-3 Узел 5. Сечение 4-4 Конструкция металлических изделий КМ-1; КМ-2; КМ-3 Конструкция металлических изделий КМ-4; КМ-5; КМ-8 Конструкция металлических изделий КМ-6; КМ-7; КМ-9 Конструкция металлических изделий КМ-10 Спецификация металла на металлические изделия Водоснабжение площадки |
| Разработан: | Союзспортпроект Спорткомитета СССР |
| Утверждён: | 22.08.1978 Госгражданстрой (Gosgrazhdanstroy 185) |
































