Скачать Типовой проект 416-9-17.83 Альбом III. Внутренний водопровод и канализацияДата актуализации: 01.01.2021
|
| Обозначение: | Типовой проект 416-9-17.83 |
| Обозначение англ: | 416-9-17.83 |
| Статус: | не определен законодательством |
| Название рус.: | Альбом III. Внутренний водопровод и канализация |
| Дата добавления в базу: | 01.09.2013 |
| Дата актуализации: | 01.01.2021 |
| Дата введения: | 26.05.1983 |
| Дата окончания срока действия: | 30.06.2003 |
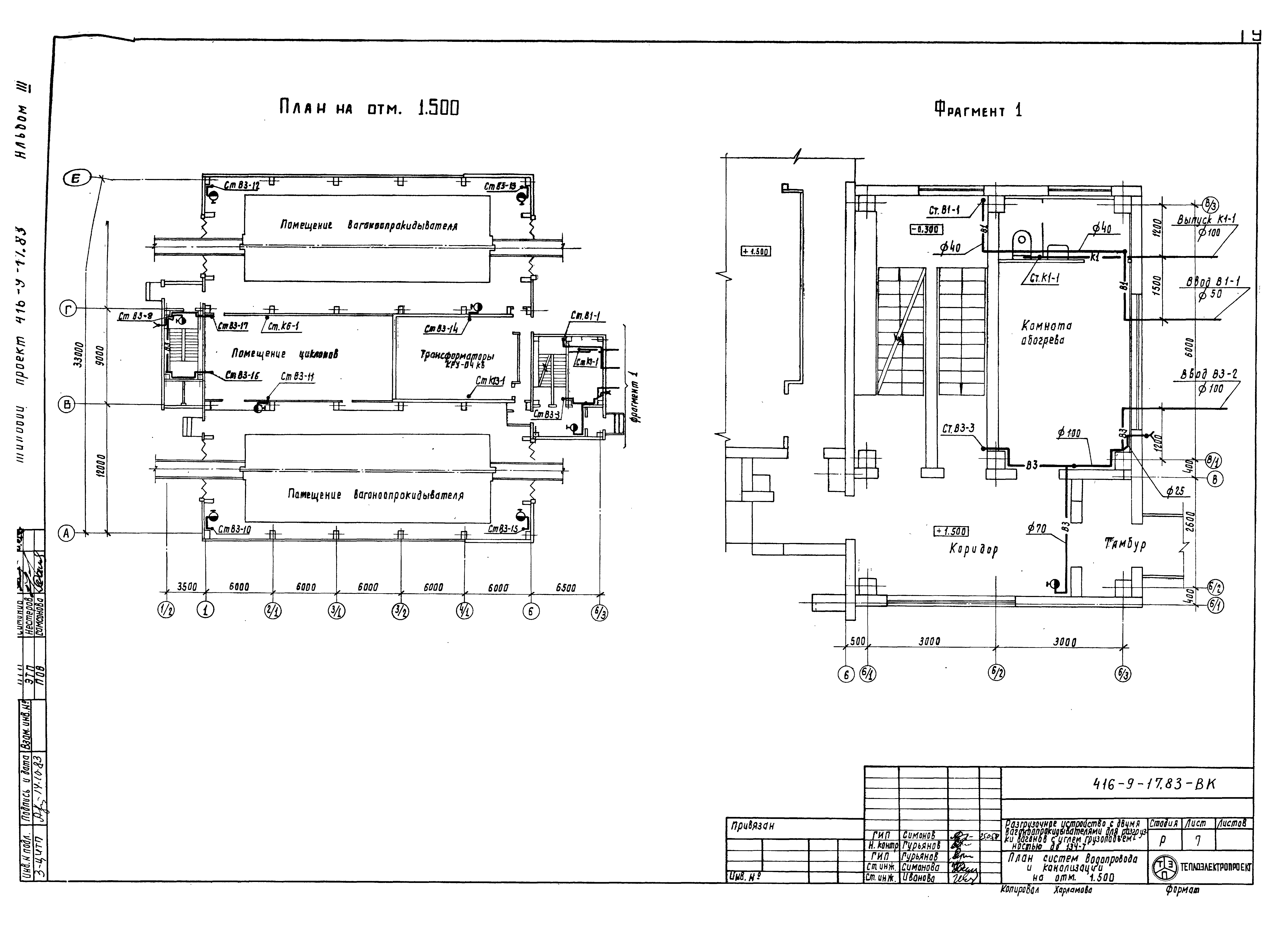
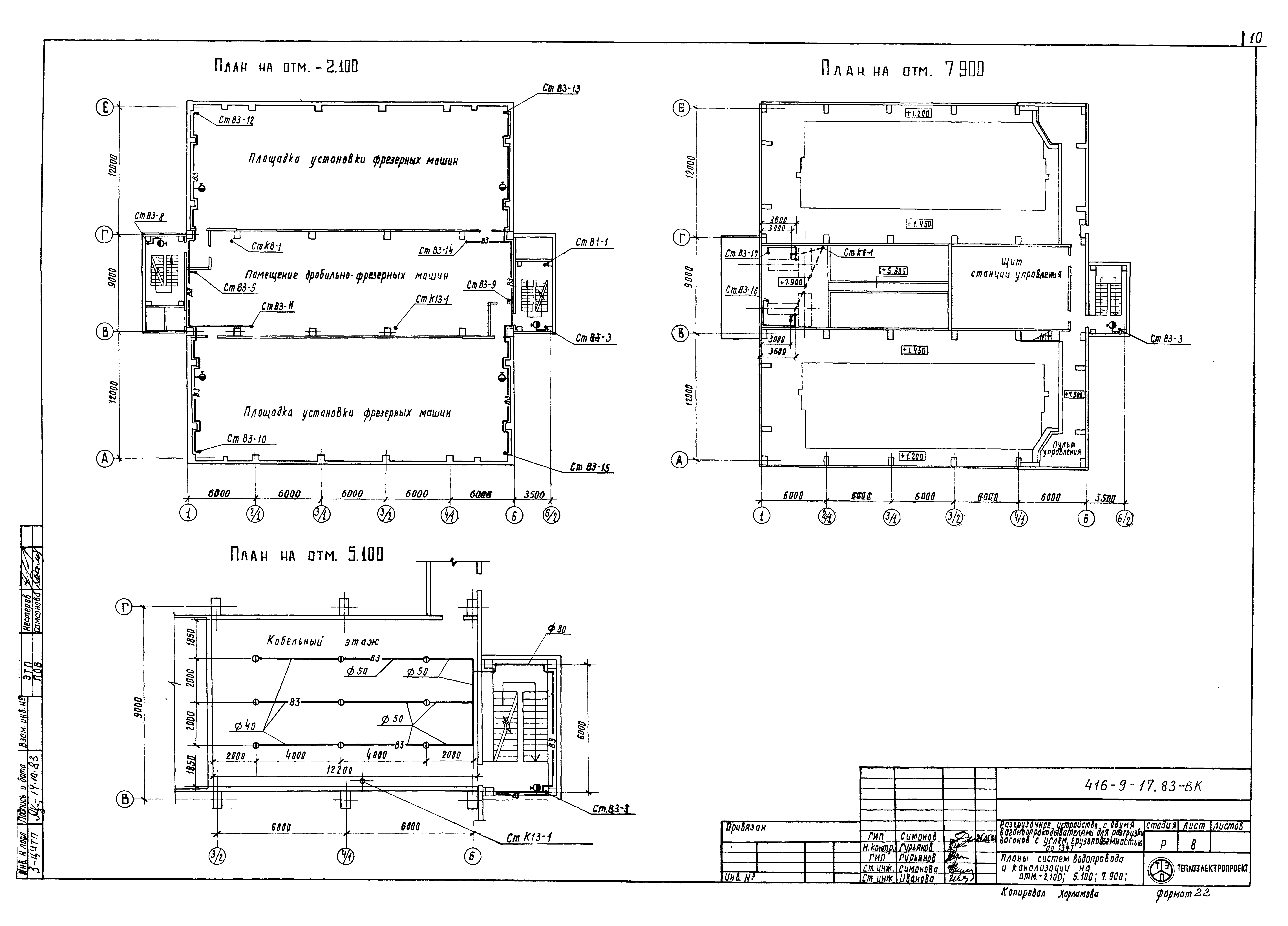
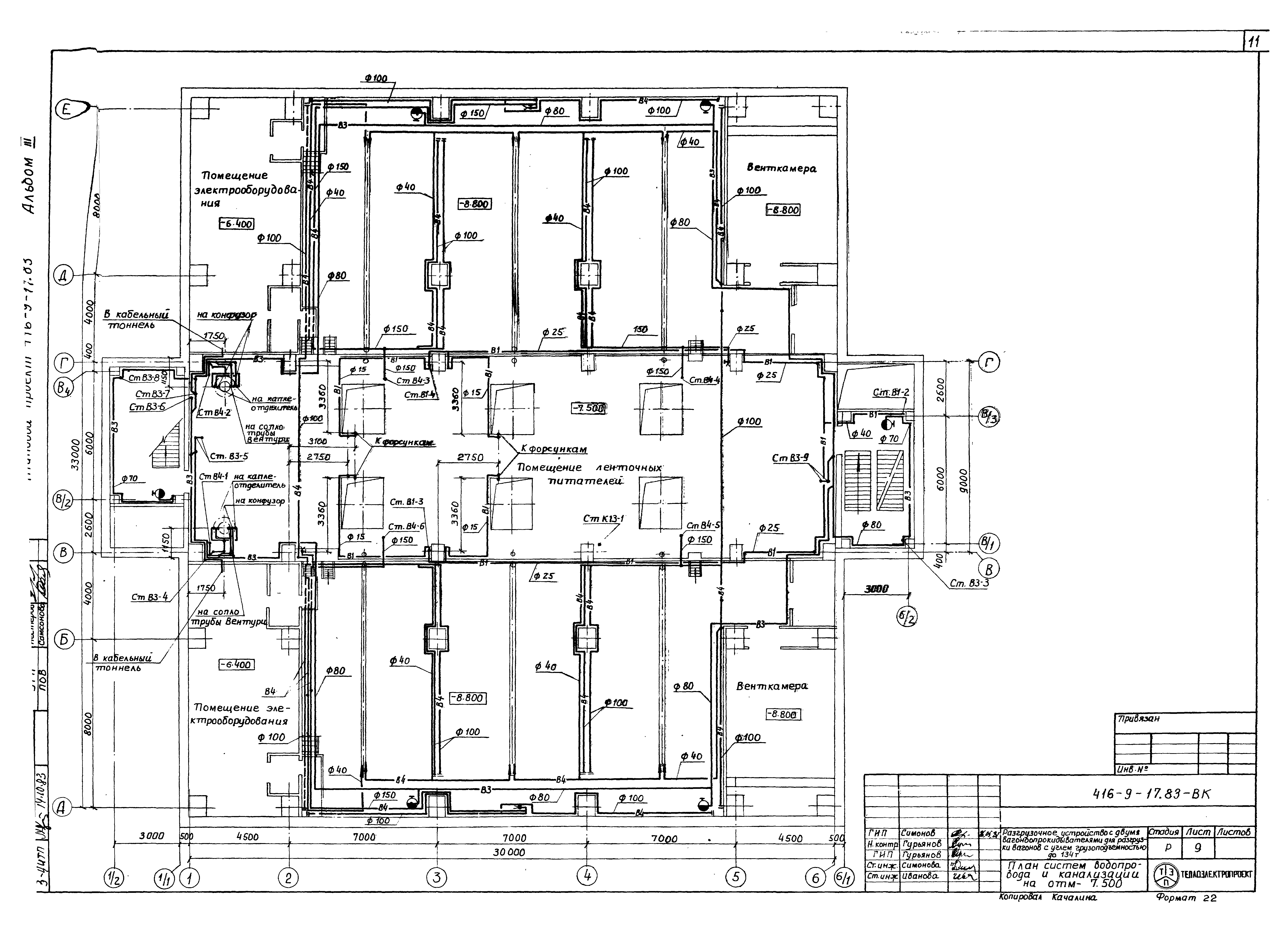
| Оглавление: | Титульный лист Опись альбома Общие данные План систем водопровода и канализации на отм. 1.500 План систем водопровода и канализации на отм. - 2.100; 5.100 и 7.900 План систем водопровода и канализации на отм. - 7.500 План систем водопровода и канализации на отм. - 11.100 Схема системы производственно-противопожарного водопровода Схема системы водопровода гидроуборки Схемы систем хозяйственно-питьевого водопровода, производственной и хозяйственно-бытовой канализации, напорных трубопроводов насосов и отвода воды после пожаротушения кабельного помещения на отм. 5.100 Установка системы В5.1 Установка системы В5.2 |
| Разработан: | Теплоэлектропроект |
| Утверждён: | 17.09.1981 Минэнерго СССР (USSR Minenergo 48) |


















