Скачать Типовой проект 409-28-41.86 Альбом IV. Конструкции металлическиеДата актуализации: 01.01.2021
|
| Обозначение: | Типовой проект 409-28-41.86 |
| Обозначение англ: | 409-28-41.86 |
| Статус: | действует |
| Название рус.: | Альбом IV. Конструкции металлические |
| Дата добавления в базу: | 01.09.2013 |
| Дата актуализации: | 01.01.2021 |
| Дата введения: | 16.09.1985 |
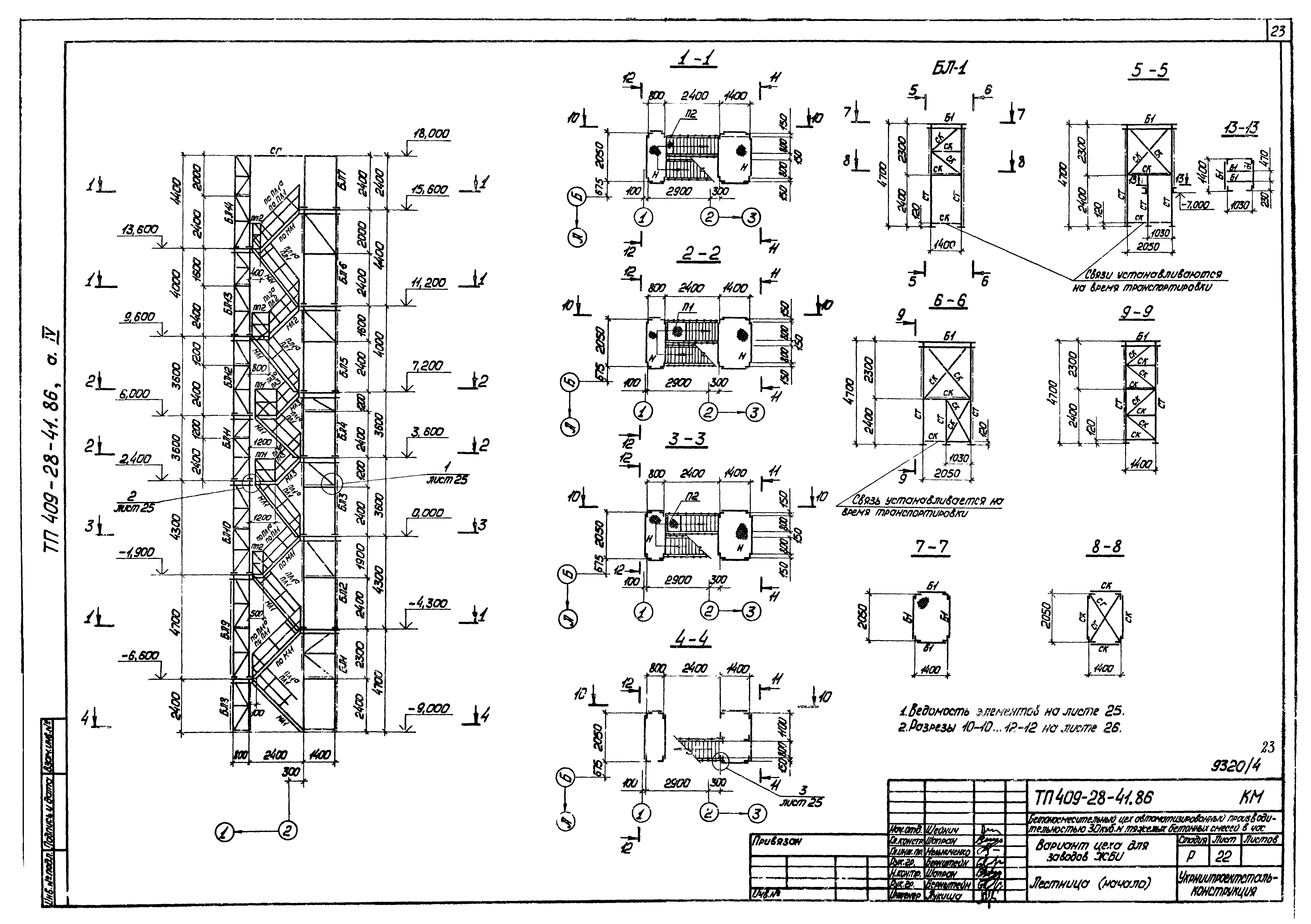
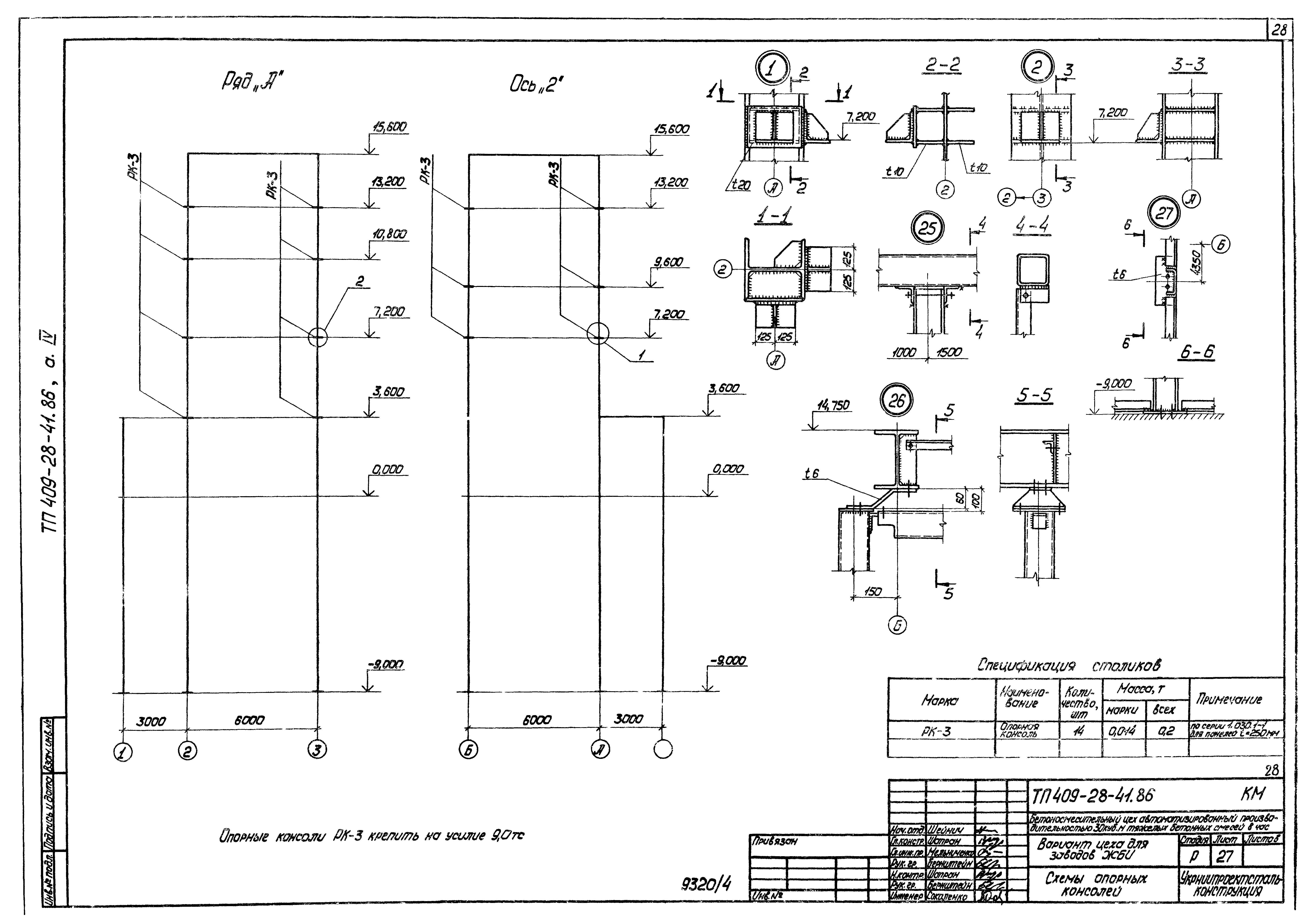
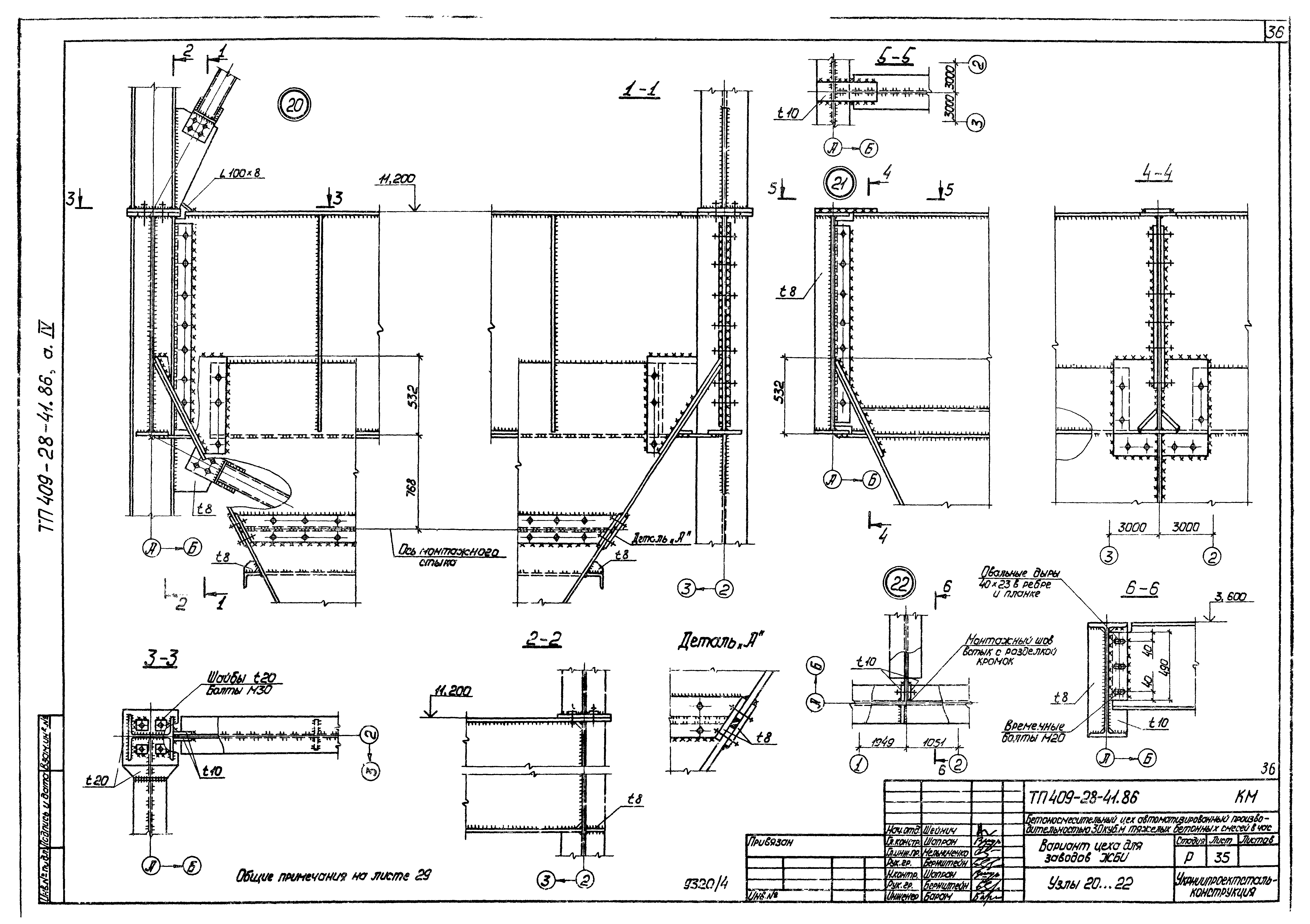
| Оглавление: | Бетоносмесительный цех Общие данные Техническая спецификация стали Галерея подачи заполнителей. Техническая спецификация стали План фундаментных болтов. Таблица расчетных нагрузок на фундаменты Расчетные схемы постоянных нагрузок по осям "А", "Б" и производственного здания Расчетные схемы временных нагрузок по осям "А", "Б" и производственного здания Расчетные схемы постоянных нагрузок по осям "2", "3" и "1" Расчетные схемы временных нагрузок по осям "2", "3" и "1" План отверстий и проемов на отм. 11.200; 6.900; 3.600; 0.000; - 2.050 План отверстий и проемов на отм. - 4.300. Рама №1, №2, №3 Планы на отм. 14.750; 11.200; 6.900 Планы на отм. 3.600; 0.000. Схема фахверка для внутренних стен. План на отм. 0.000 Планы на отм. - 2.000; - 3.400; - 4.300 Разрезы 1-1 - 3-3 Разрезы 4-4 - 6-6 Лестница Схемы опорных консолей Схемы фахверка для внутренних стен Ведомость элементов каркаса Силос цемента 1 Узлы 1, 2, 3 Узлы 4 - 10 Узлы 11 - 15 Узлы 16 - 19 Узлы 20 - 22 Галерея подачи заполнителей План фундаментных болтов. Таблица расчетных нагрузок на фундаменты Схема галереи. Ведомость элементов Разрезы 1-1; 2-2; 4-4; 7-7; 8-8; 11-11; 12-12 Разрезы 5-5; 6-6; 9-9; 10-10 Узлы 1 - 7 |
| Разработан: | Гипростроммаш |
| Утверждён: | 15.03.1984 Минстройдормаш (Minstroydormash ) |










































