Скачать Типовой проект 409-28-51.89 Альбом 4. Конструкции металлическиеДата актуализации: 01.01.2021
|
| Обозначение: | Типовой проект 409-28-51.89 |
| Обозначение англ: | 409-28-51.89 |
| Статус: | действует |
| Название рус.: | Альбом 4. Конструкции металлические |
| Дата добавления в базу: | 01.09.2013 |
| Дата актуализации: | 01.01.2021 |
| Дата введения: | 18.08.1989 |
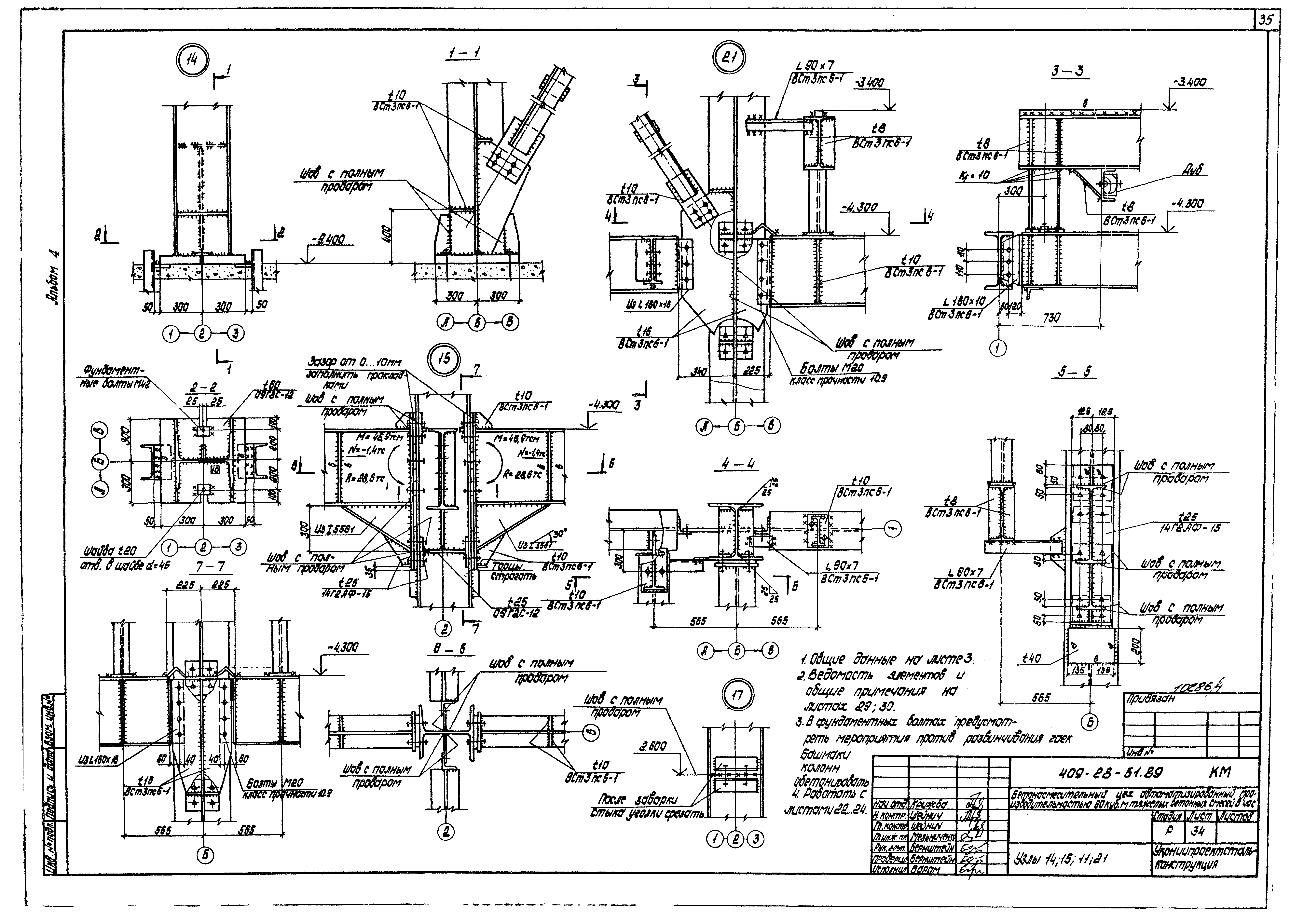
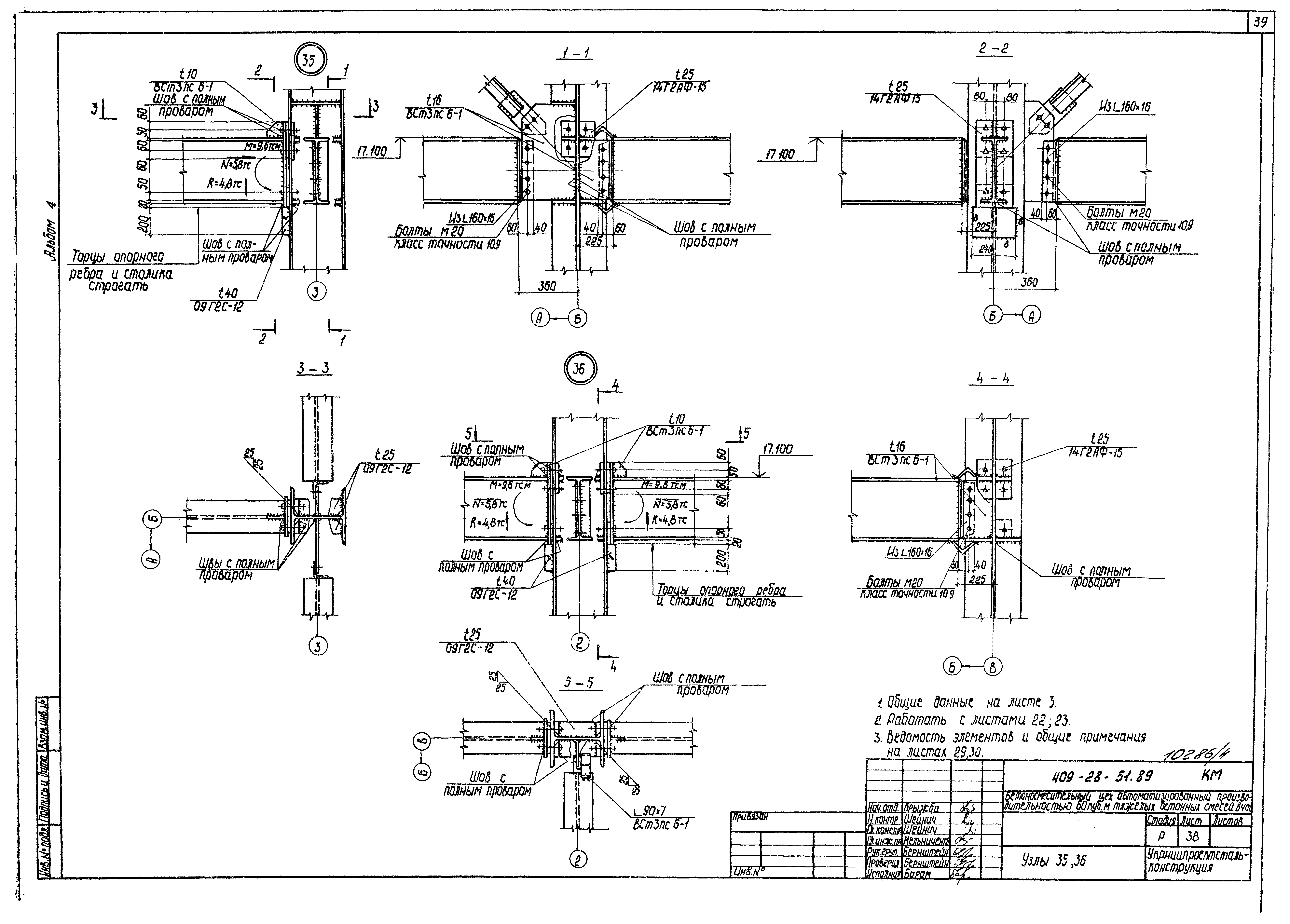
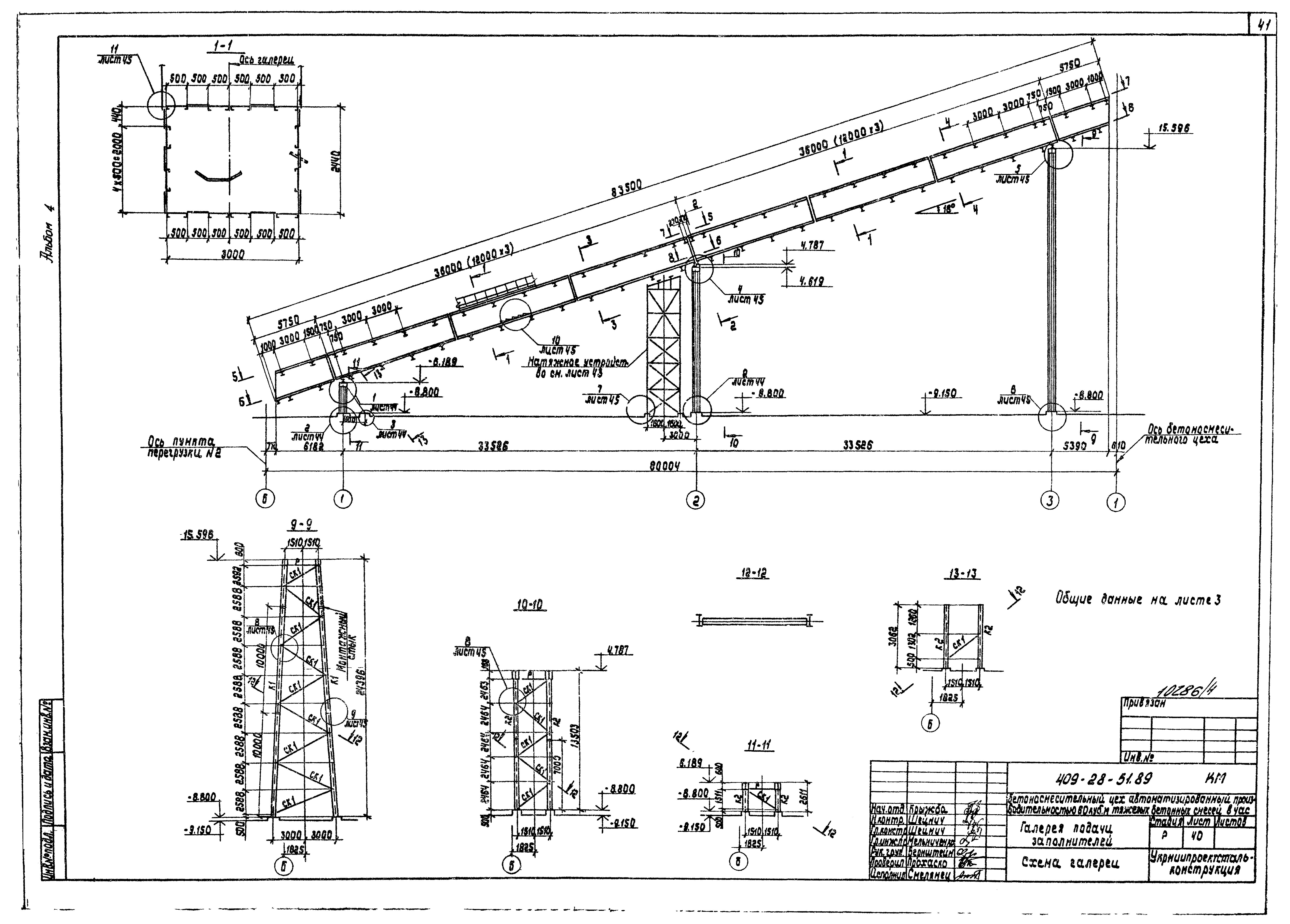
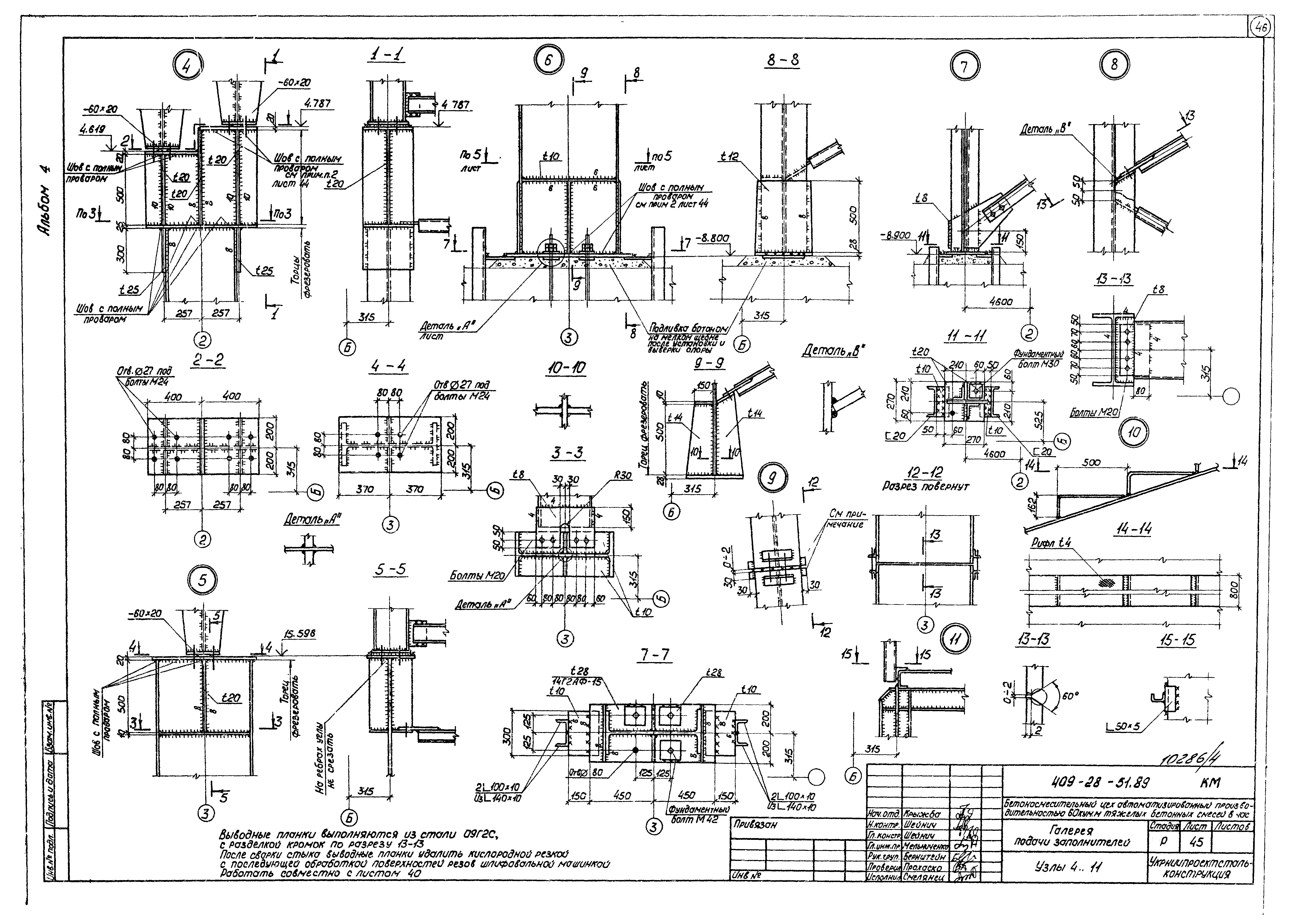
| Оглавление: | Бетоносмесительный цех Общие данные Таблица расчетных нагрузок Техническая спецификация стали Ведомость металлоконструкций по видам профилей Техническая спецификация металла на лестницы и площадки. Ведомость отправочных марок План фундаментных болтов. Таблица расчетных нагрузок на фундаменты Расчетные схемы постоянных нагрузок по осям "А", "Б" и "В" Расчетные схемы временных нагрузок по осям "А", "Б" и "В" Расчетные схемы постоянных нагрузок по осям "1", "2" и "3" Расчетные схемы временных нагрузок по осям "1", "2" и "3" Планы проемов и отверстий на отм. 17.100; 14.400; 10.800; 8.800; 7.800; 4.800; 0.000 Планы на отм. 23.100; 17.100; 8.800; 21.300 Планы на отм. 14.400 и 13.448 Планы на отм. - 0.100; 0.000; 4.800; 7.800; 10.800 Планы на отм. - 1.850; - 2.040; - 3.040; - 4.300 Планы на отм. - 2.430; - 3.800. Съемный щит ЩП. Узлы 1 - 4 Разрезы 1-1, 2-2. Рама №1, №2 Разрезы 3-3, 6-6 Разрезы 4-4, 5-5, 18-18 Лестница. Узлы 28, 29, 30 Лестница. Ведомость элементов Схемы опорных консолей. Спецификация опорных консолей Схемы фахверка внутренних стен Ведомость элементов каркаса План фланцевых расходных бункеров. Узлы 9 - 12 Узлы 5, 6 Узлы 7, 8 Узлы 14, 15, 17, 21 Узлы 16, 19, 20, 33, 34 Узлы 13, 23 - 27 Узлы 18, 22, 31, 32 Узлы 35, 36 Галерея подачи План фундаментных болтов. Таблица расчетных нагрузок на фундаменты Схема галереи Разрезы 2-2 - 4-4; 13-13 - 16-16 Разрезы 5-5 - 8-8 Башня натяжного устройства. Ведомость элементов Узлы 1, 2, 3 Узлы 4 - 11 |
| Разработан: | Проектный институт №2 |
| Утверждён: | 18.08.1989 Гипростроммаш (109) |
| Издан: | ЦИТП Госстроя СССР (CITP, Gosstroy (USSR) 1989 г. ) |















































