Скачать Типовой проект 416-1-233.89 Альбом 1. Пояснительная записка. Архитектурно-строительные решения. Технология производства. Отопление и вентиляция. Тепломеханическая часть. Внутренние водопровод и канализация. Электроснабжение, электрическое освещение и силовое электрооборудование. Связь и сигнализация. Автоматизация отопления и вентиляцииДата актуализации: 01.01.2021
|
| Обозначение: | Типовой проект 416-1-233.89 |
| Обозначение англ: | 416-1-233.89 |
| Статус: | не определен законодательством |
| Название рус.: | Альбом 1. Пояснительная записка. Архитектурно-строительные решения. Технология производства. Отопление и вентиляция. Тепломеханическая часть. Внутренние водопровод и канализация. Электроснабжение, электрическое освещение и силовое электрооборудование. Связь и сигнализация. Автоматизация отопления и вентиляции |
| Дата добавления в базу: | 01.09.2013 |
| Дата актуализации: | 01.01.2021 |
| Дата введения: | 08.12.1989 |
| Дата окончания срока действия: | 30.06.2003 |
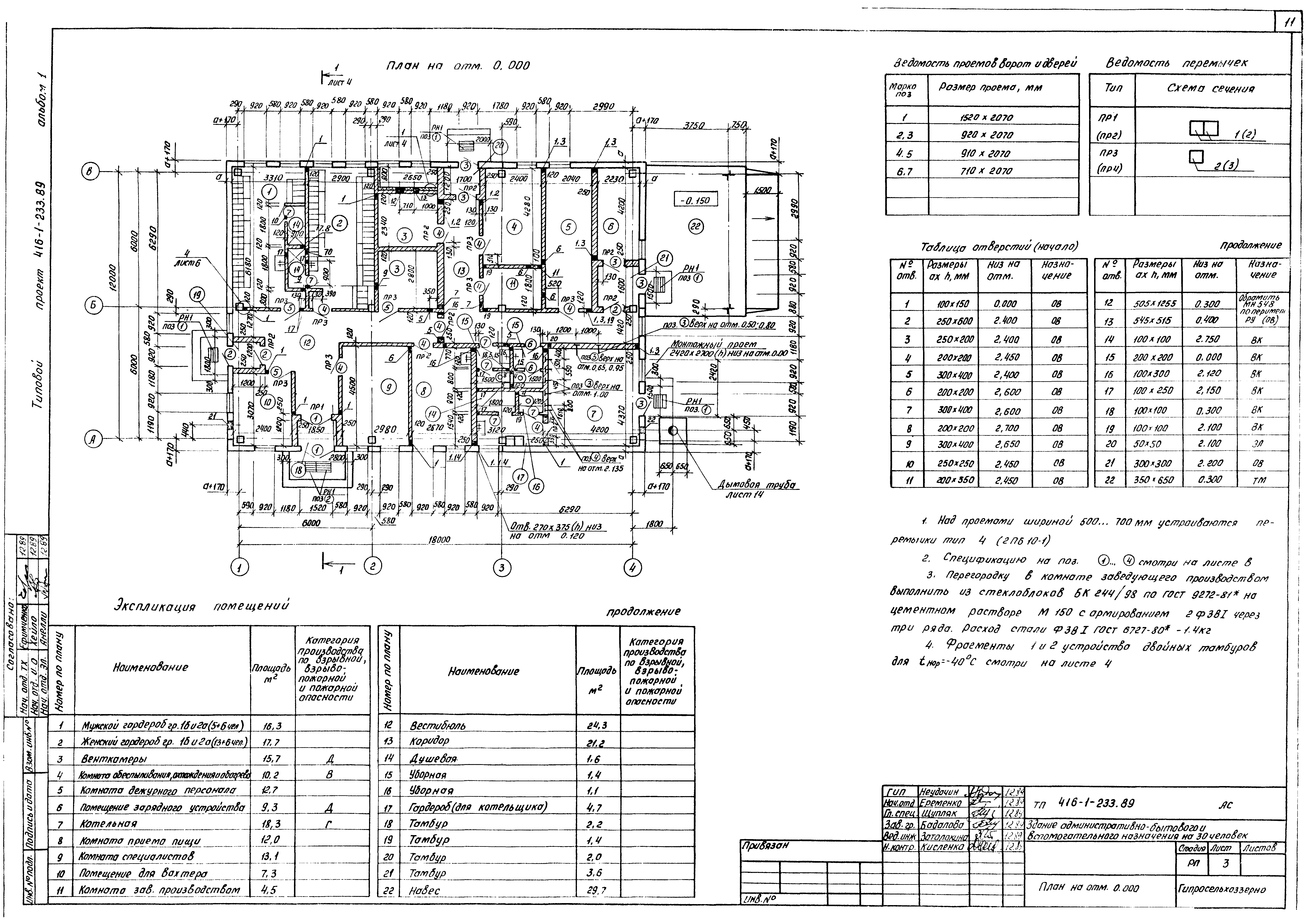
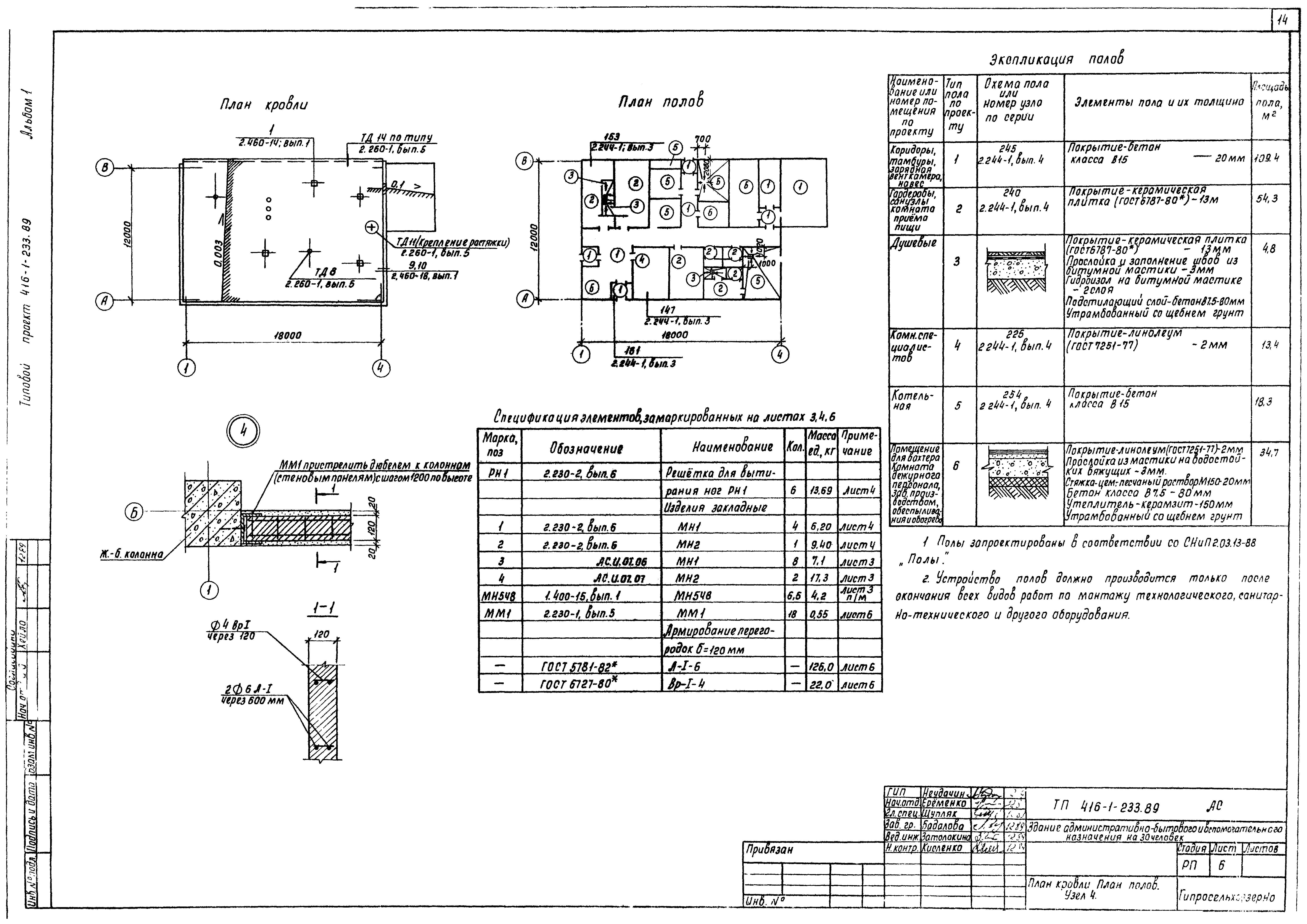
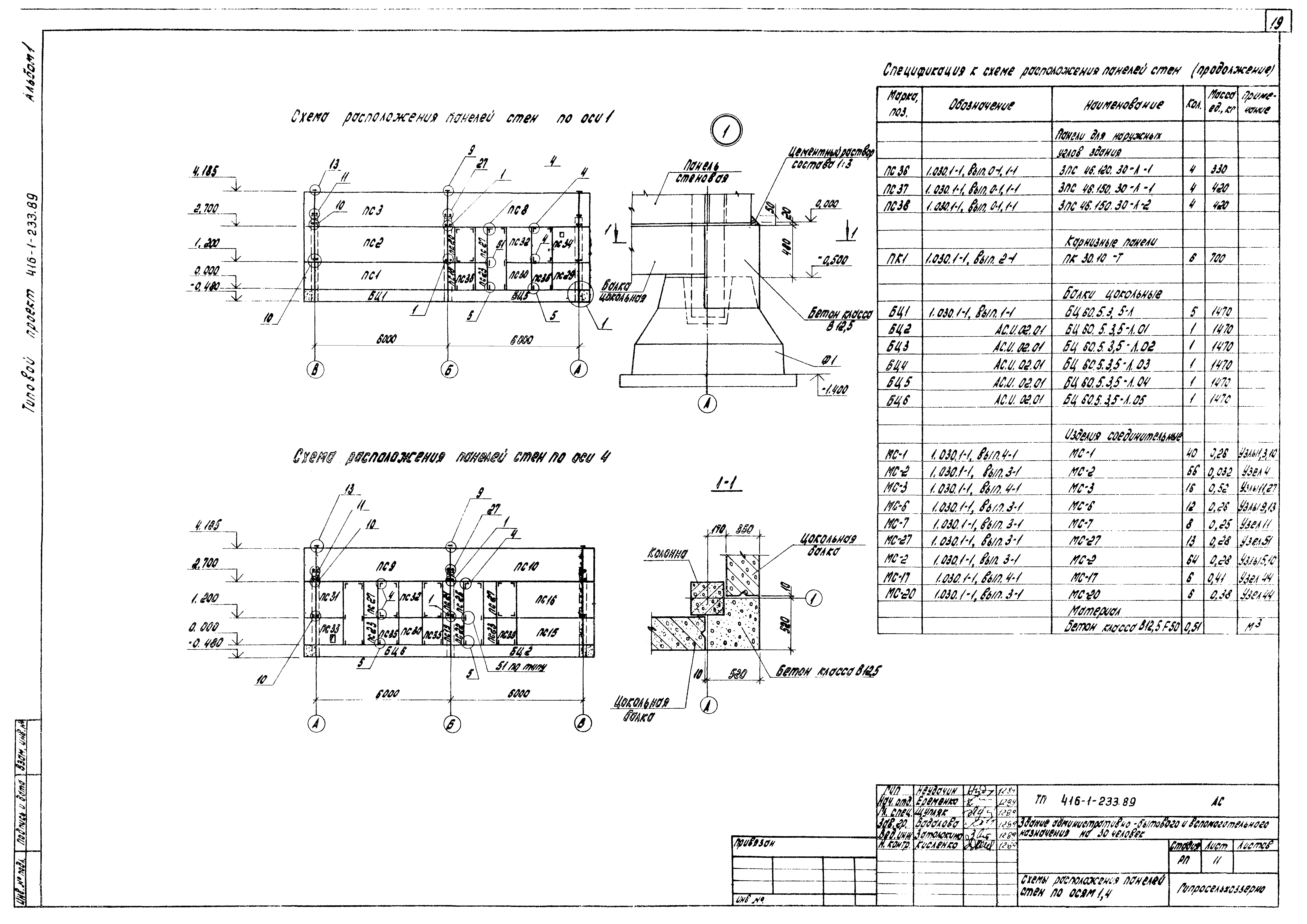
| Оглавление: | Содержание альбома Пояснительная записка Чертежи по архитектурно-строительным решениям Общие данные План на отм. 0.000 Разрез 1-1. Фрагменты 1, 2. Узлы 1 - 3 Фасады 1 - 4, 4 - 1, В - А, А - В План кровли, план полов, узел 4 Схема расположения фундаментов Фундаменты Фом1, Фом2, Фм1 Схемы расположения колонн, ригелей, плит покрытия Схемы расположения панелей стен по осям А, В Схемы расположения панелей стен по осям 1, 4 Навес. План на отм. 0.150. Схемы расположения балок. План кровли. Разрез 1-1. Узлы Схема расположения элементов козырька Схема расположения элементов дымовой трубы Чертежи по технологии производства Общие данные. План на отм. 0.000 Чертежи по отоплению и вентиляции Общие данные План на отм. 0.000. Схемы системы теплоснабжения установки П1. Схемы систем П1, В1, В2 Схема системы отопления. Схемы систем В3, ВЕ1 - ВЕ5 Чертежи по тепломеханической части Общие данные План на отм. 0.000. Схема трубопроводов. Разрез 1-1 Чертежи по водопроводной части и канализации Общие данные План на отм. 0.000 Схемы систем В1, Т3, К1 Чертежи по электроснабжению, электрическому освещению и силовому электрооборудованию Общие данные Силовое электрооборудование. Принципиальная схема питающей сети. Принципиальная схема распределительной сети Силовое электрооборудование. Схема электрическая принципиальная сети постоянного тока Силовое электрооборудование. Схема электрическая расположения. Схема трубной разводки Электроосвещение. Схема электрическая расположения Сведения о потребности в кабельной продукции, изготовляемой с применением меди и свинца Чертежи задания заводу-изготовителю Шкаф управления разрядом ШУР. Технические данные аппаратов Шкаф управления разрядом ШУР. Общий вид Шкаф управления разрядом ШУР. Перечень надписей Шкаф управления разрядом ШУР. Схема электрическая соединений Чертежи по связи и сигнализации Связь и сигнализация. Схема пожарной сигнализации. Схема электрическая расположения Чертежи по автоматизации отопления и вентиляции Общие данные Приточная система П1. Схема автоматизации электрическая принципиальная Приточная система П1. Схема соединений внешних проводок. Фрагмент плана расположения на отм. 0.000 Котельная. Схема автоматизации электрическая принципиальная Котельная. Схема соединений внешних проводок. Фрагмент плана расположения на отм. 0.000 |
| Разработан: | Гипросельхоззерно |
| Утверждён: | 21.11.1989 Главагропромнаучпроект Госкомиссии СМ СССР по продовольствию и закупкам (073-3/2) |















































