Скачать Типовой проект 709-9-96.88 Альбом 1. Общая пояснительная записка. Архитектурно-строительные решения. Водопровод. Отопление и вентиляция. Электроосвещение и электрооборудованиеДата актуализации: 01.01.2021
|
| Обозначение: | Типовой проект 709-9-96.88 |
| Обозначение англ: | 709-9-96.88 |
| Статус: | действует |
| Название рус.: | Альбом 1. Общая пояснительная записка. Архитектурно-строительные решения. Водопровод. Отопление и вентиляция. Электроосвещение и электрооборудование |
| Дата добавления в базу: | 01.09.2013 |
| Дата актуализации: | 01.01.2021 |
| Дата введения: | 30.09.1988 |
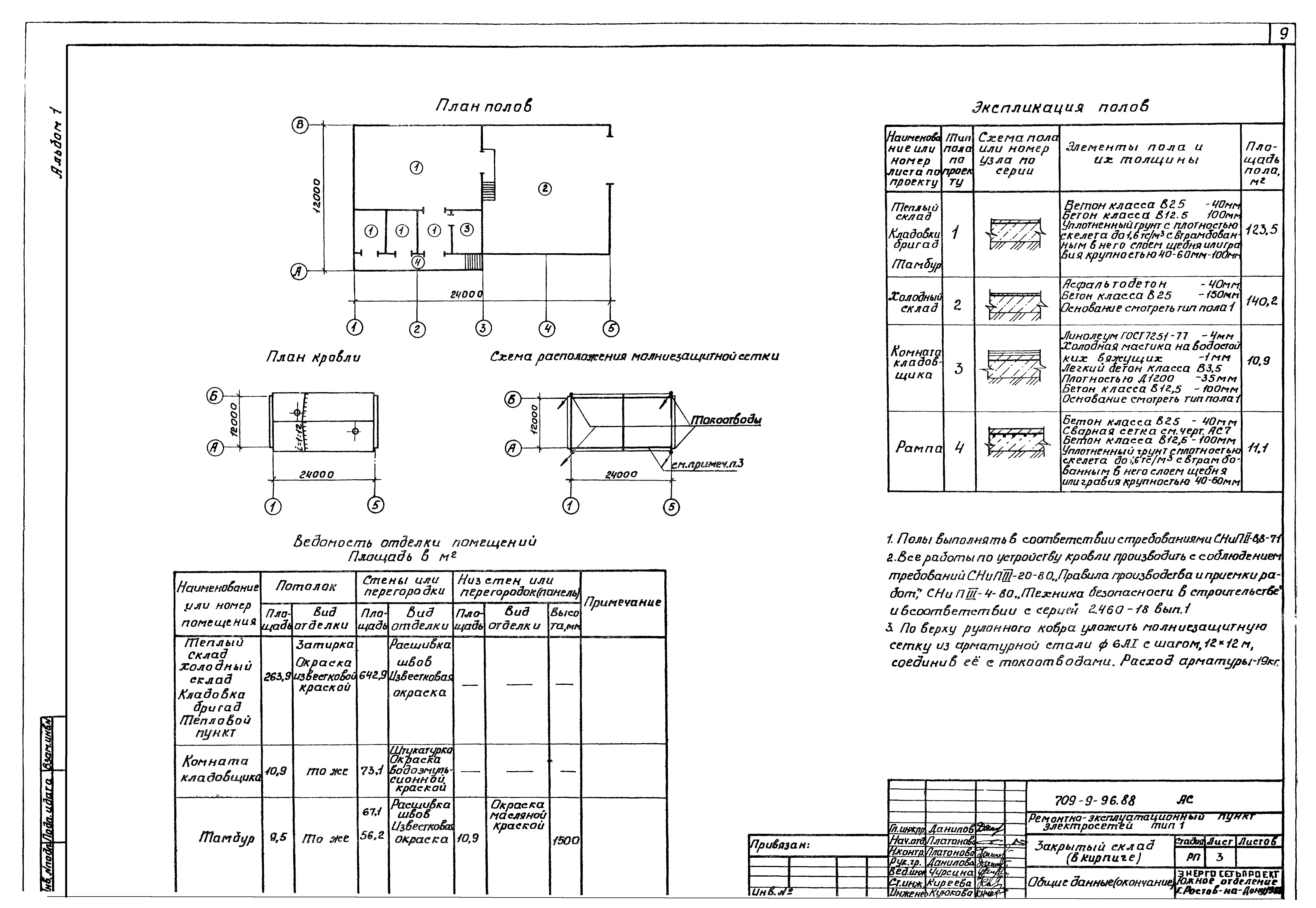
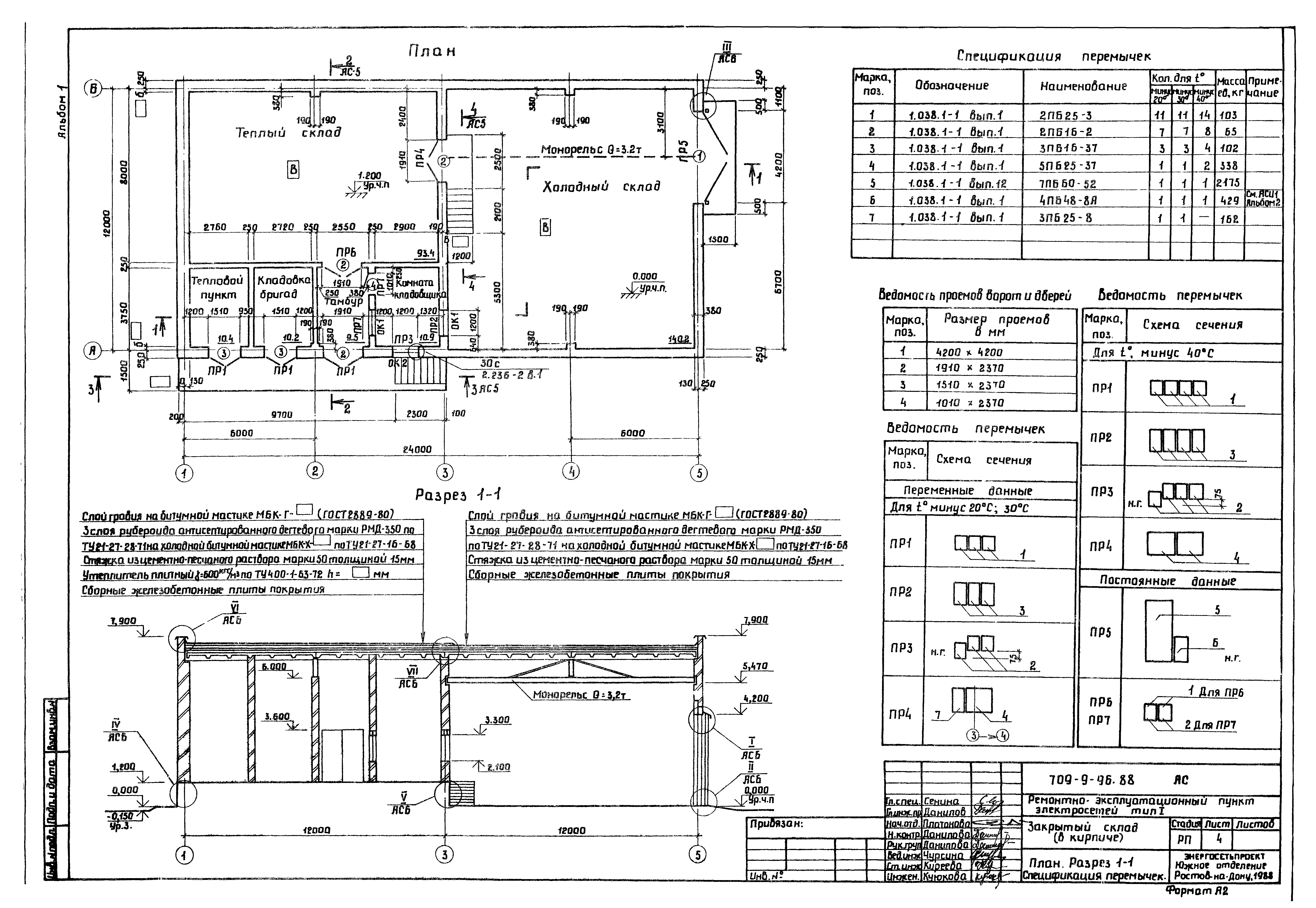
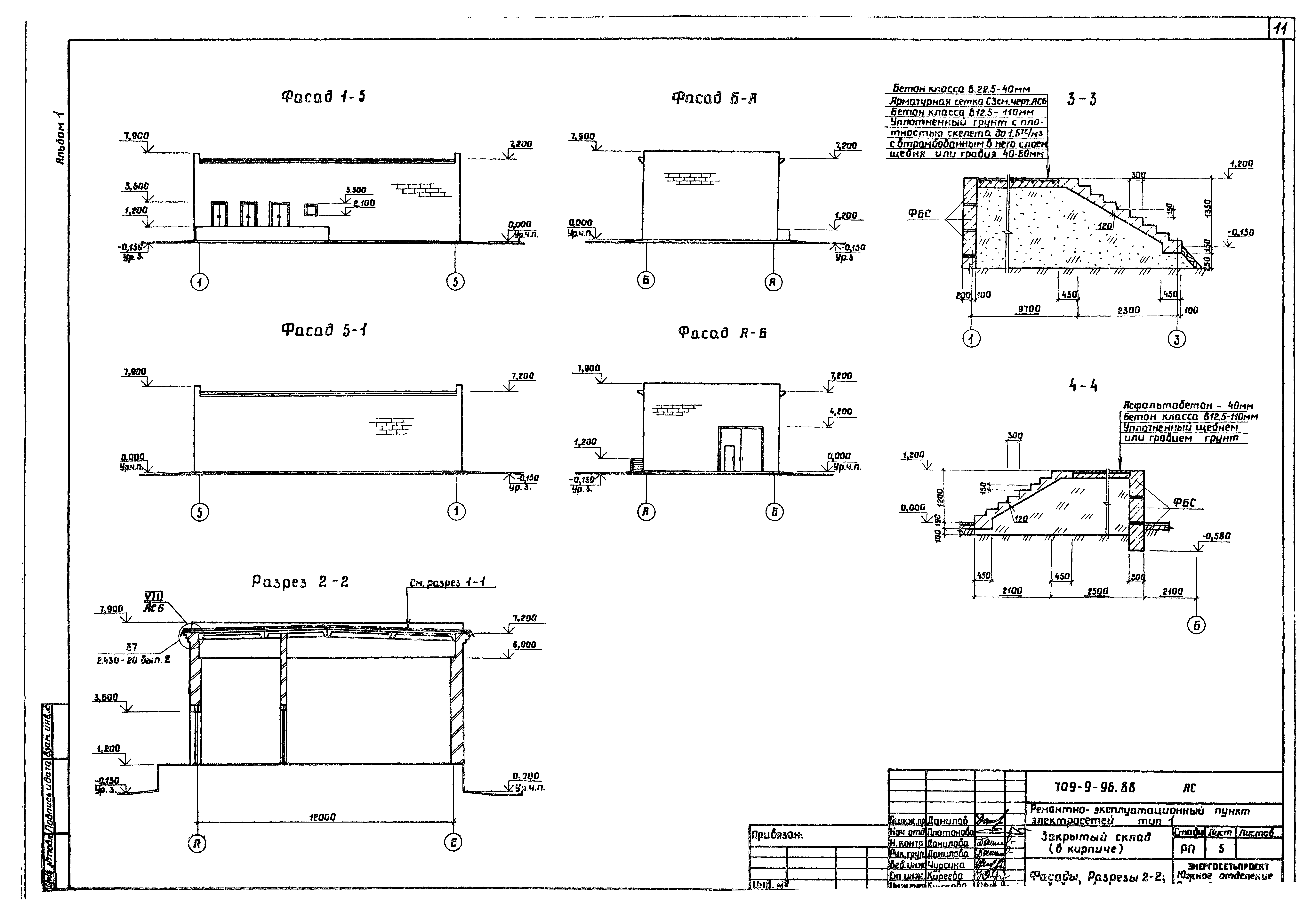
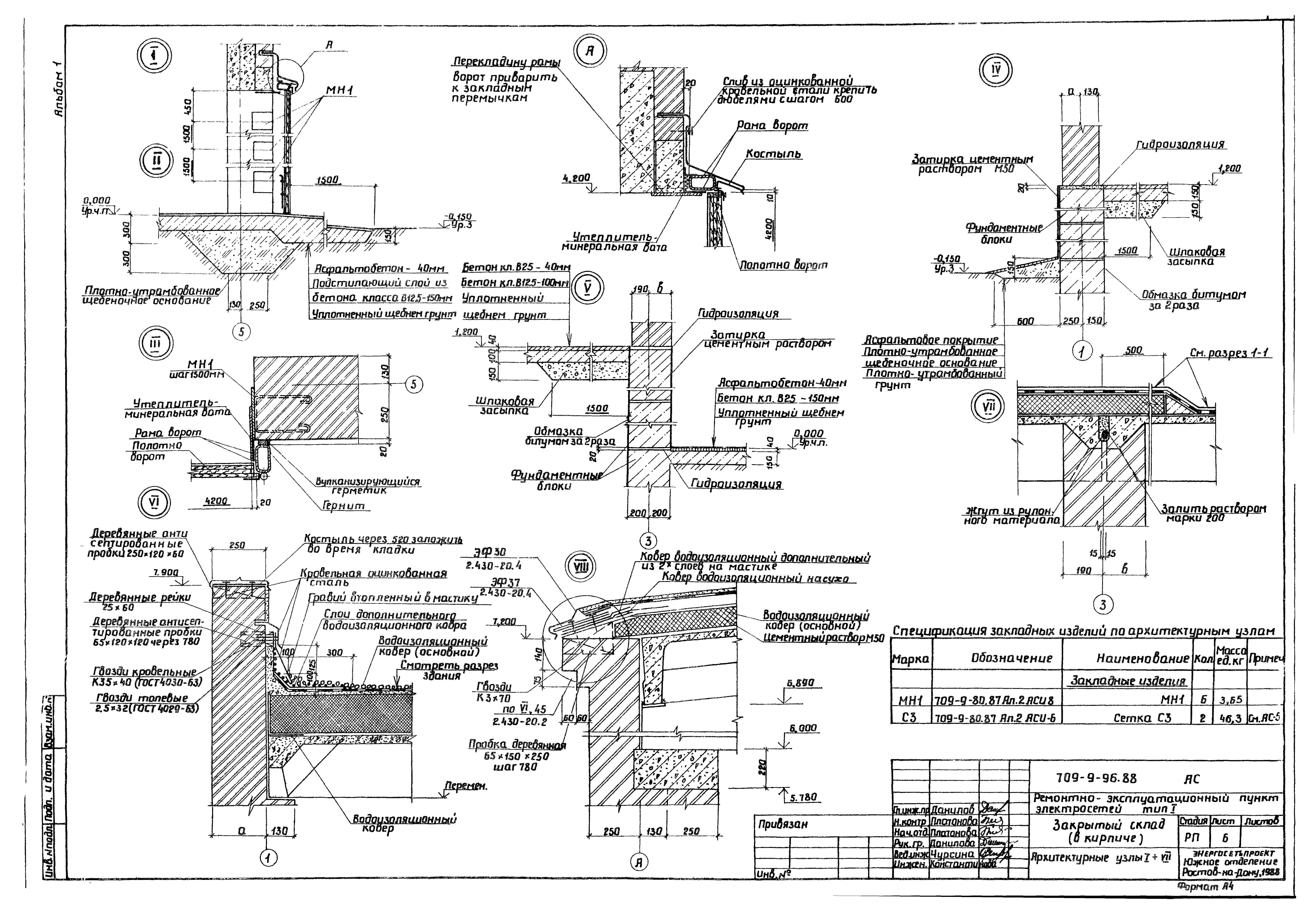
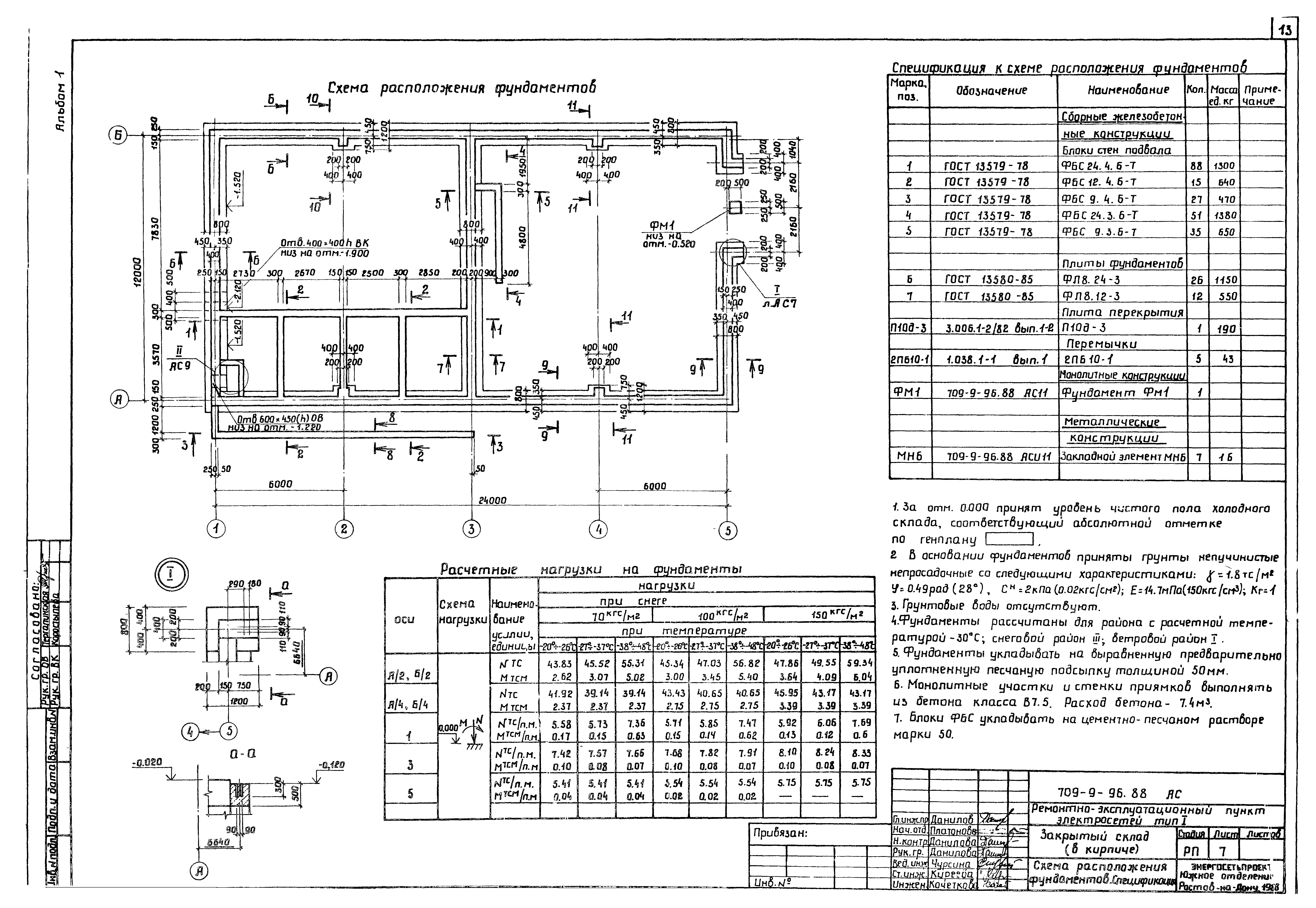
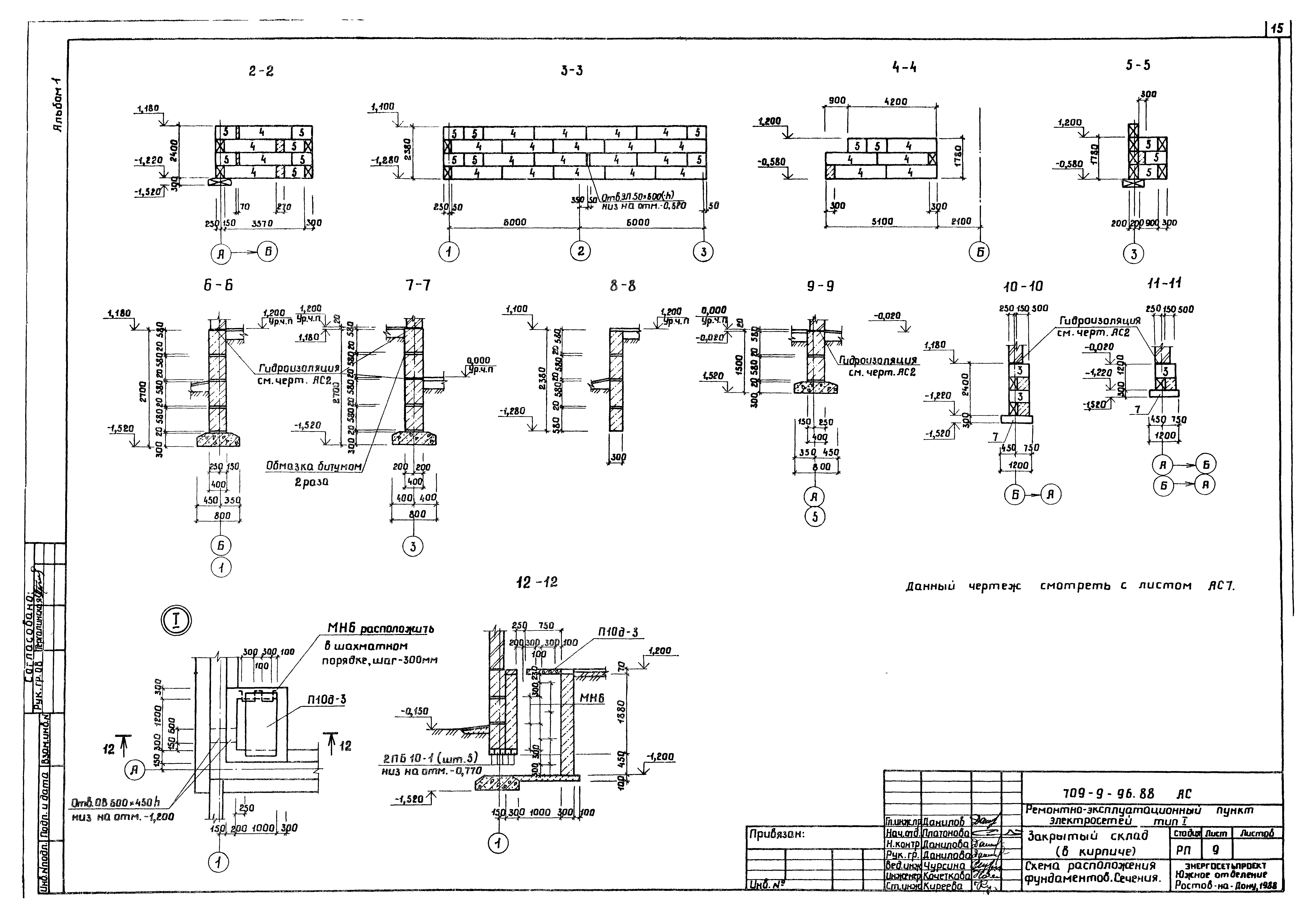
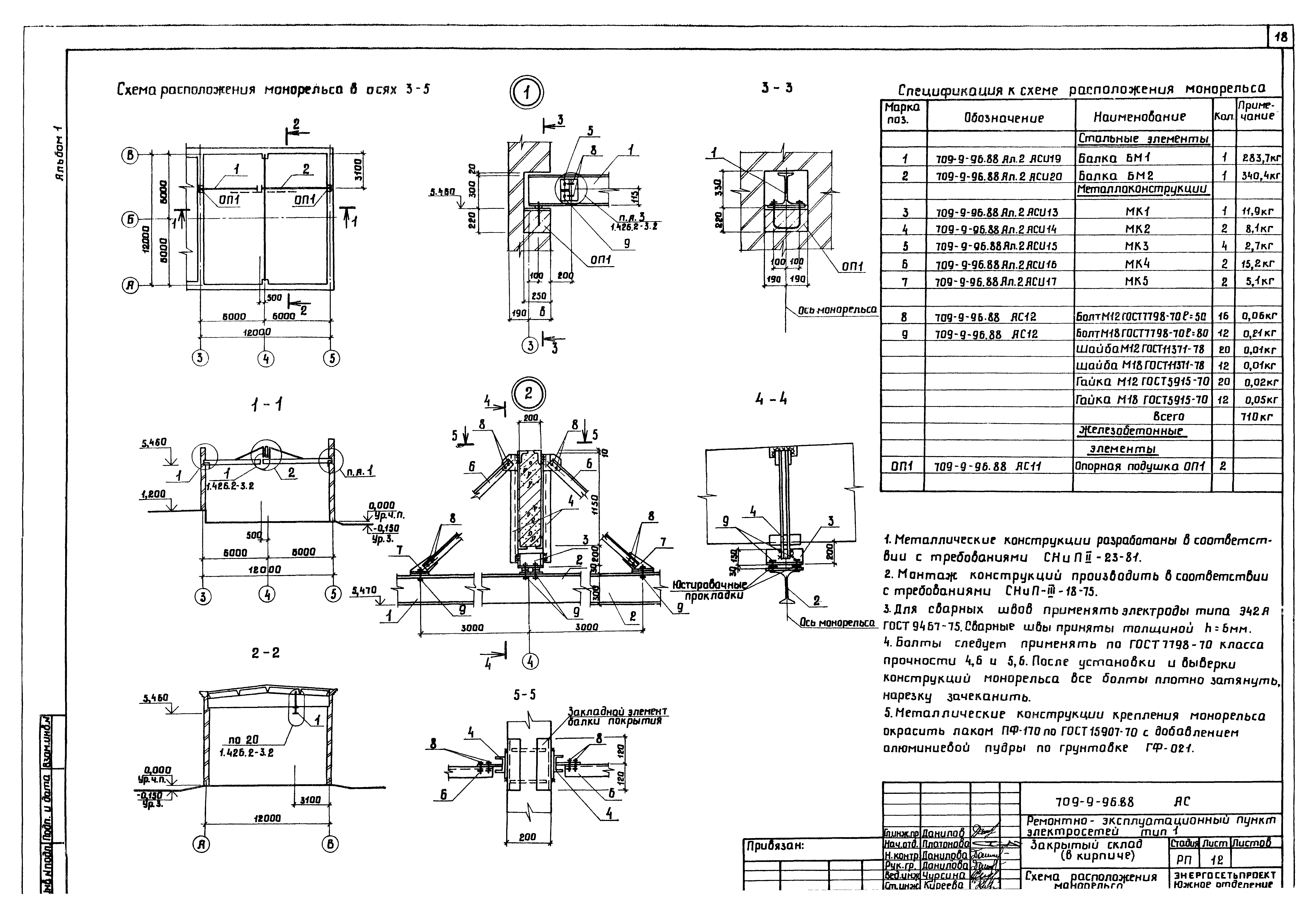
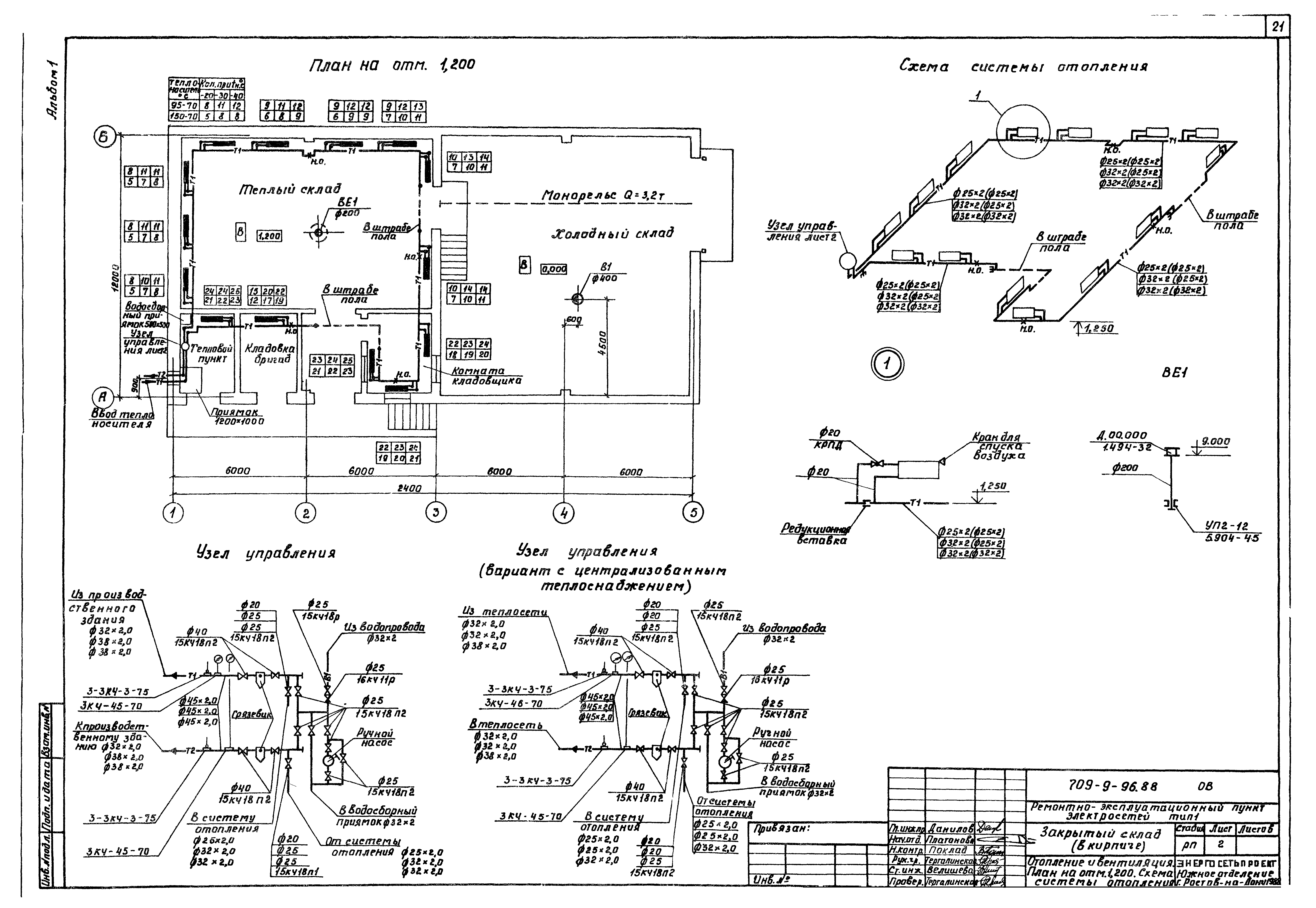
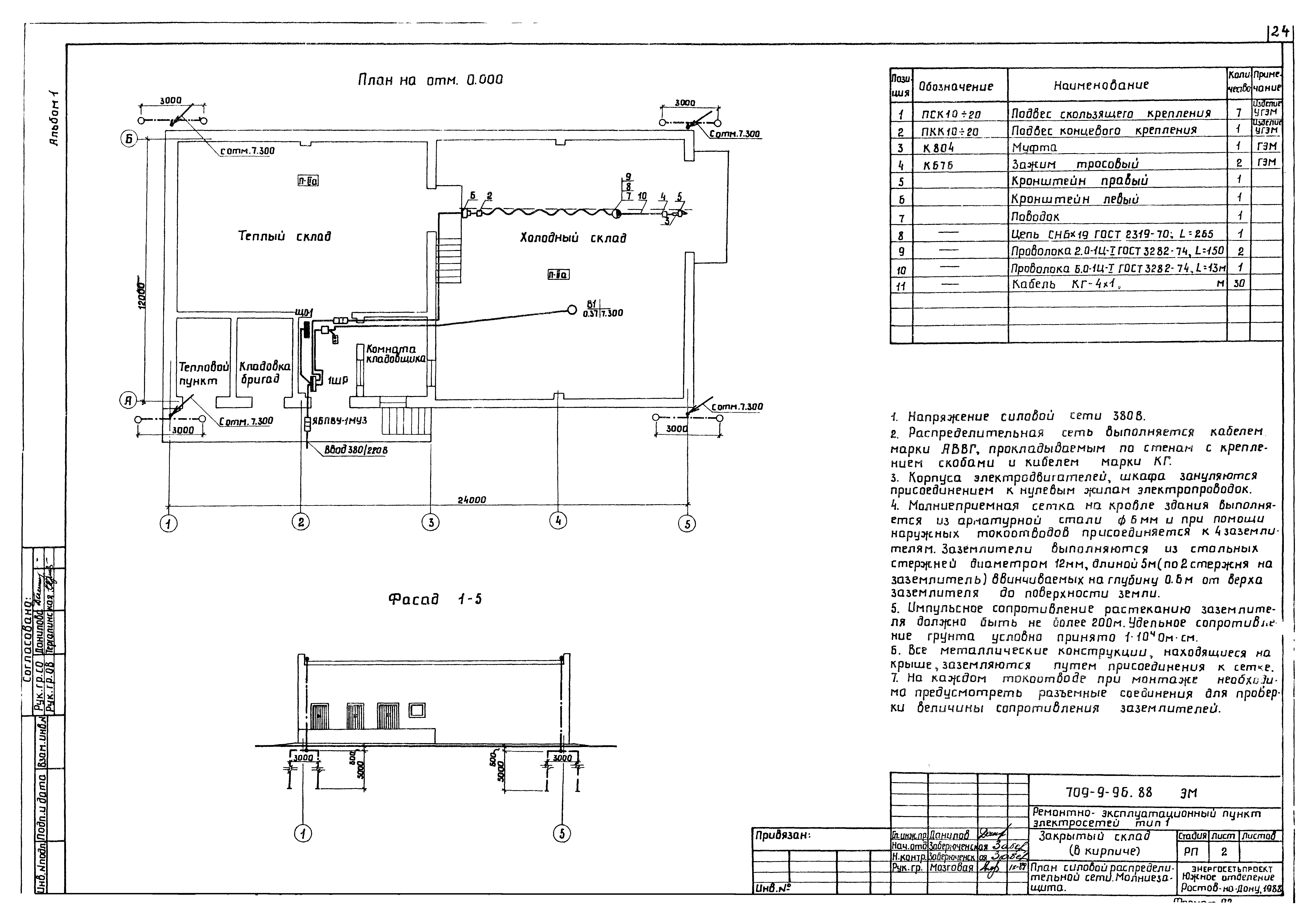
| Оглавление: | Титульный лист Содержание альбома Пояснительная записка Архитектурно-строительные решения (АС) Общие данные План. Разрез 1-1. Спецификация перемычек Фасады. Разрезы 2-2, 3-3, 4-4 Архитектурные узлы I - VIII Схема расположения фундаментов. Спецификация Схема расположения фундаментов. Развертки Схема расположения фундаментов. Сечения Схема расположения плит покрытия. Спецификация Опорные подушки ОП1, ОП2. Фундамент Фм1. Узлы Схема расположения монорельса. Спецификация Водопровод (ВК) Водопровод. Общие данные. План на отм. 1.200. Схема системы В2 Отопление и вентиляция (ОВ) Общие данные Отопление и вентиляция. План на отм. 1.200. Схема системы отопления Чертежи общих видов (ОВН) Редукционная вставка Силовое электрооборудование и электроосвещение (ЭМ) Общие данные План силовой распределительной сети. Молниезащита План сети электрического освещения. Принципиальная схема силовой распределительной сети и сети электрического освещения |
| Разработан: | Энергосетьпроект Минэнерго СССР |
| Утверждён: | 30.09.1988 Минэнерго СССР (USSR Minenergo 34) |


























