Скачать Серия ПК-01-83 Стальные унифицированные светоаэрационные фонари, шаг ферм 12 м. Чертежи КМДата актуализации: 01.01.2021
|
| Обозначение: | Серия ПК-01-83 |
| Обозначение англ: | Series ПК-01-83 |
| Статус: | не действует |
| Название рус.: | Стальные унифицированные светоаэрационные фонари, шаг ферм 12 м. Чертежи КМ |
| Дата добавления в базу: | 01.09.2013 |
| Дата актуализации: | 01.01.2021 |
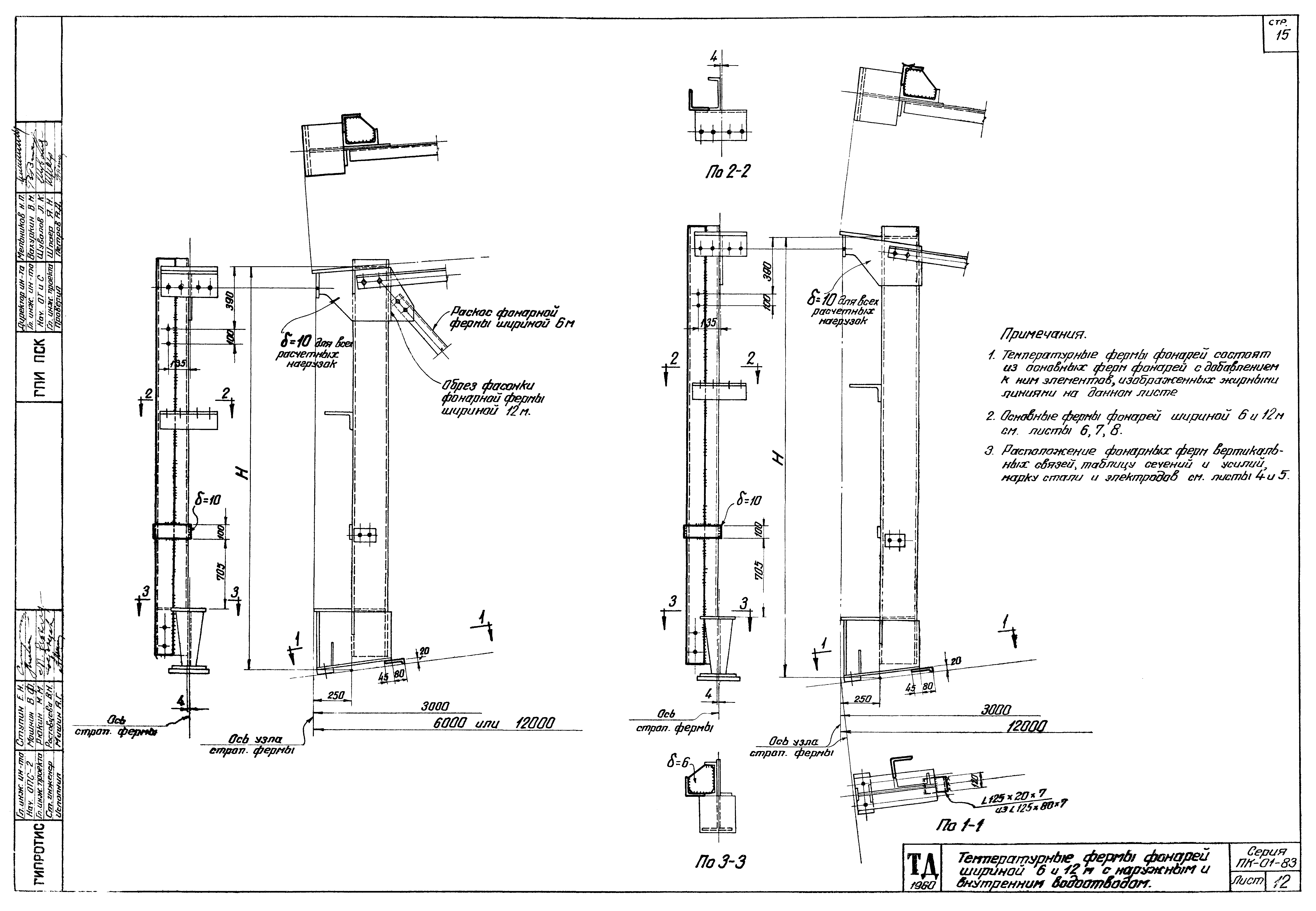
| Оглавление: | Пояснительная записка Расчетные нагрузки на фермы фонарей и прогоны остекления Геометрические схемы ферм фонарей шириной 6 и 12 м Прогоны остекления фонарей Расположение фонарных ферм, промежуточных стоек и вертикальных связей, таблицы сечений и усилий. Ширина фонаря 6 м Расположение фонарных ферм, промежуточных стоек и вертикальных связей, таблицы сечений и усилий. Ширина фонаря 12 м Основные фермы фонарей шириной 6 м Основные фермы фонарей шириной 12 м с наружным водоотводом Основные фермы фонарей шириной 12 м с внутренним водоотводом Торцовые фермы фонарей шириной 6 м Торцовые фермы фонарей шириной 12 м с наружным водоотводом Торцовые фермы фонарей шириной 12 м с внутренним водоотводом Температурные фермы фонарей шириной 6 и 12 м с наружным и внутренним водоотводом Опирание фонарных ферм на железобетонные стропильные фермы Промежуточные стойки фонарей Навеска переплетов и их детали Монтажные (инвентарные) элементы Приварка железобетонных бортовых и кровельных плит Расход стали на фермы фонарей Сечения уголковых элементов фонарей по ОСТ 10014-39 и ОСТ 10015-39 |
| Разработан: | Проектстальконструкция Госстроя СССР Гипротис |
| Утверждён: | 12.09.1960 Госстрой СССР (Государственный комитет Совета Министров СССР по делам строительства) (USSR Gosstroy 453) |























