Скачать Серия ПК-01-93 Выпуск 2. Архитектурно-строительная часть. Высота аэрационного проема 2,4 мДата актуализации: 01.01.2021
|
| Обозначение: | Серия ПК-01-93 |
| Обозначение англ: | Series ПК-01-93 |
| Статус: | не действует |
| Название рус.: | Выпуск 2. Архитектурно-строительная часть. Высота аэрационного проема 2,4 м |
| Дата добавления в базу: | 01.09.2013 |
| Дата актуализации: | 01.01.2021 |
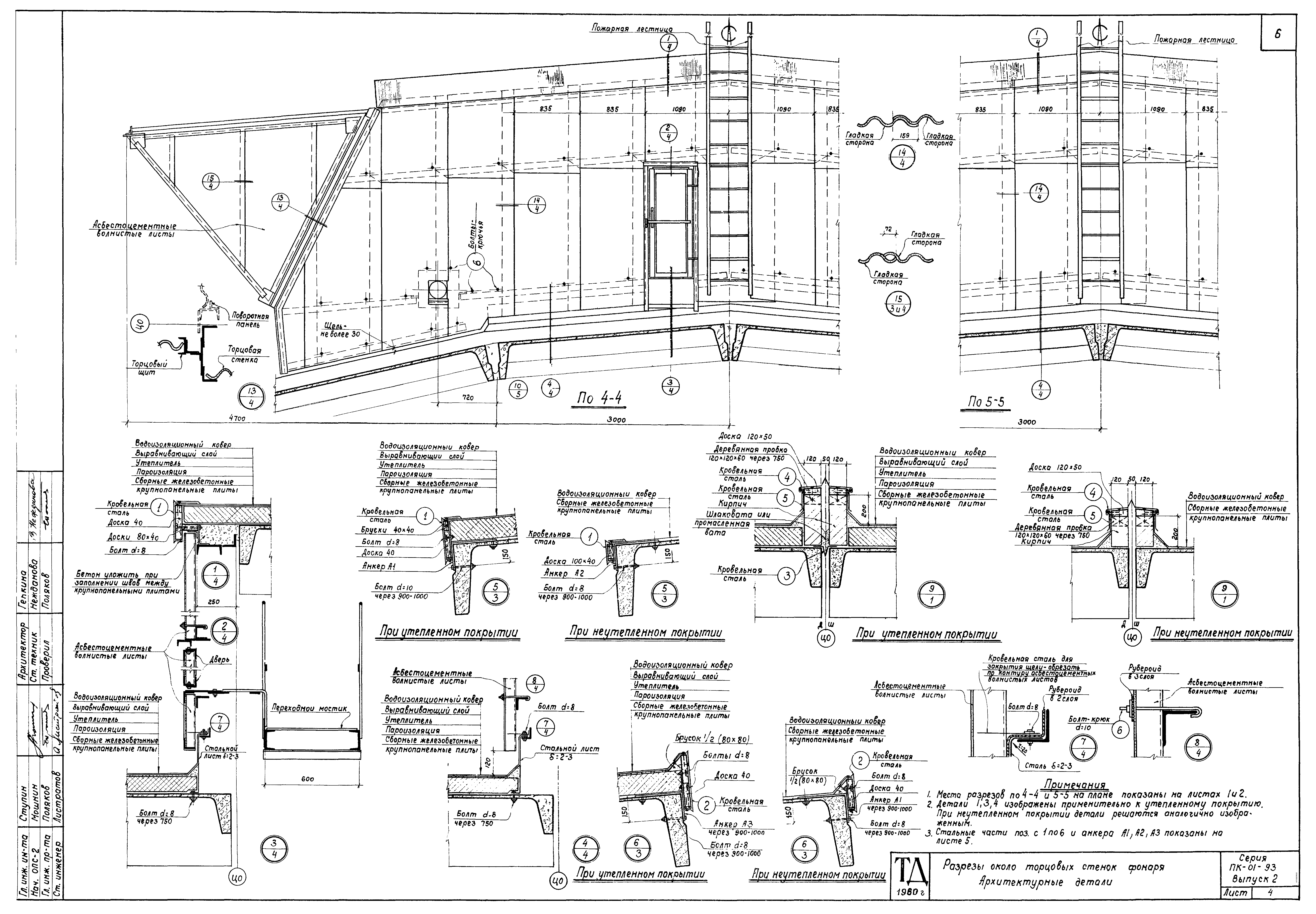
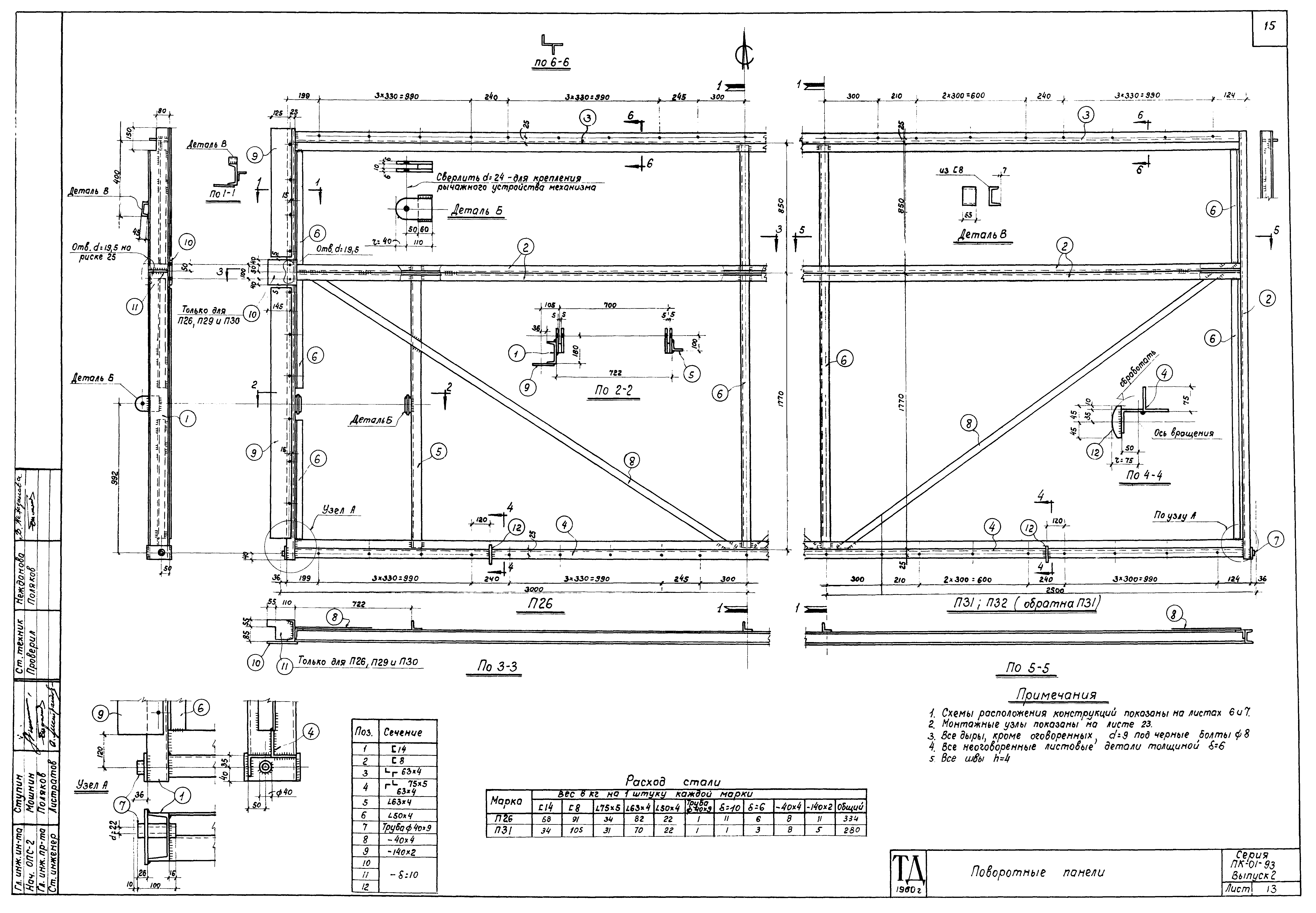
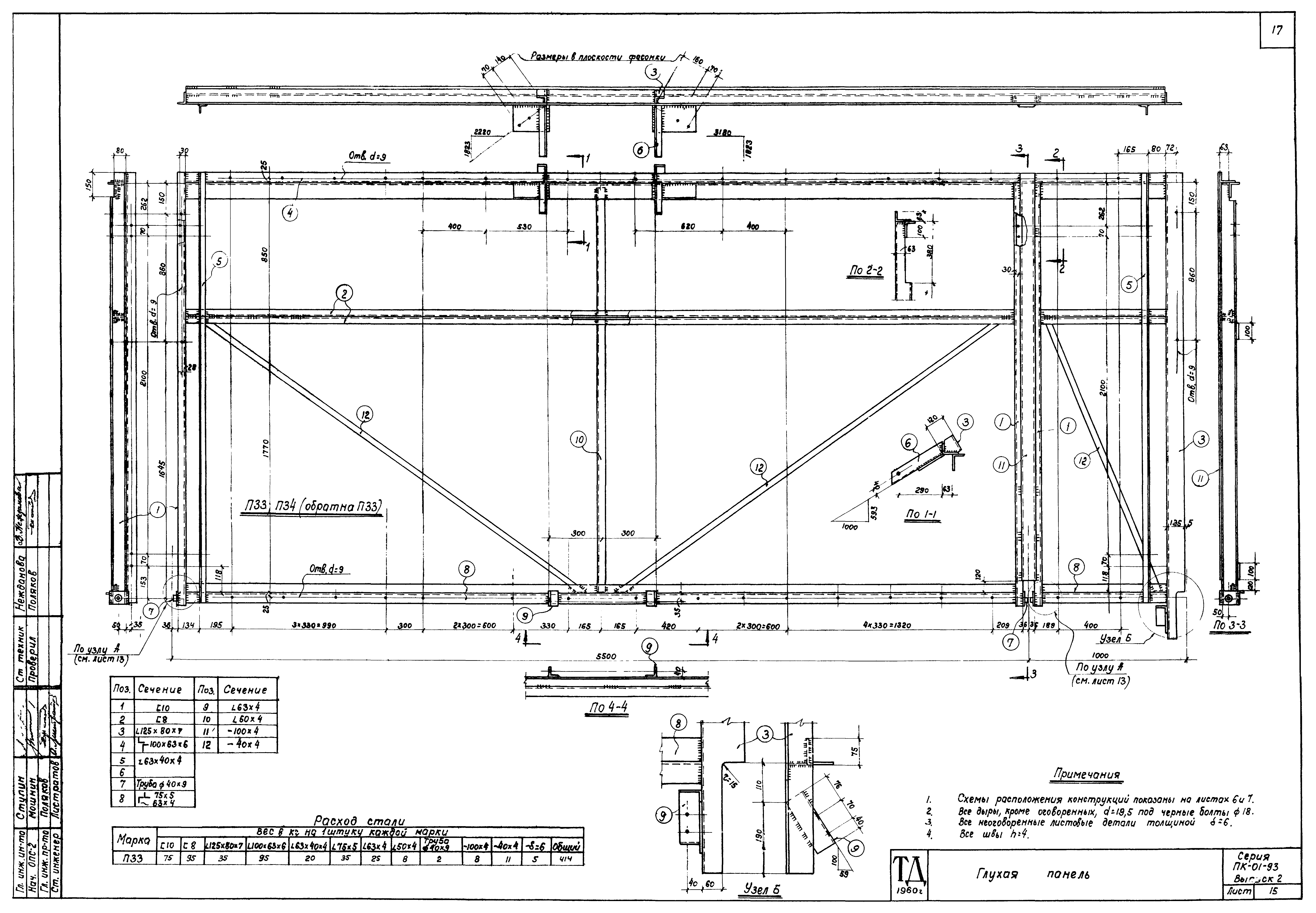
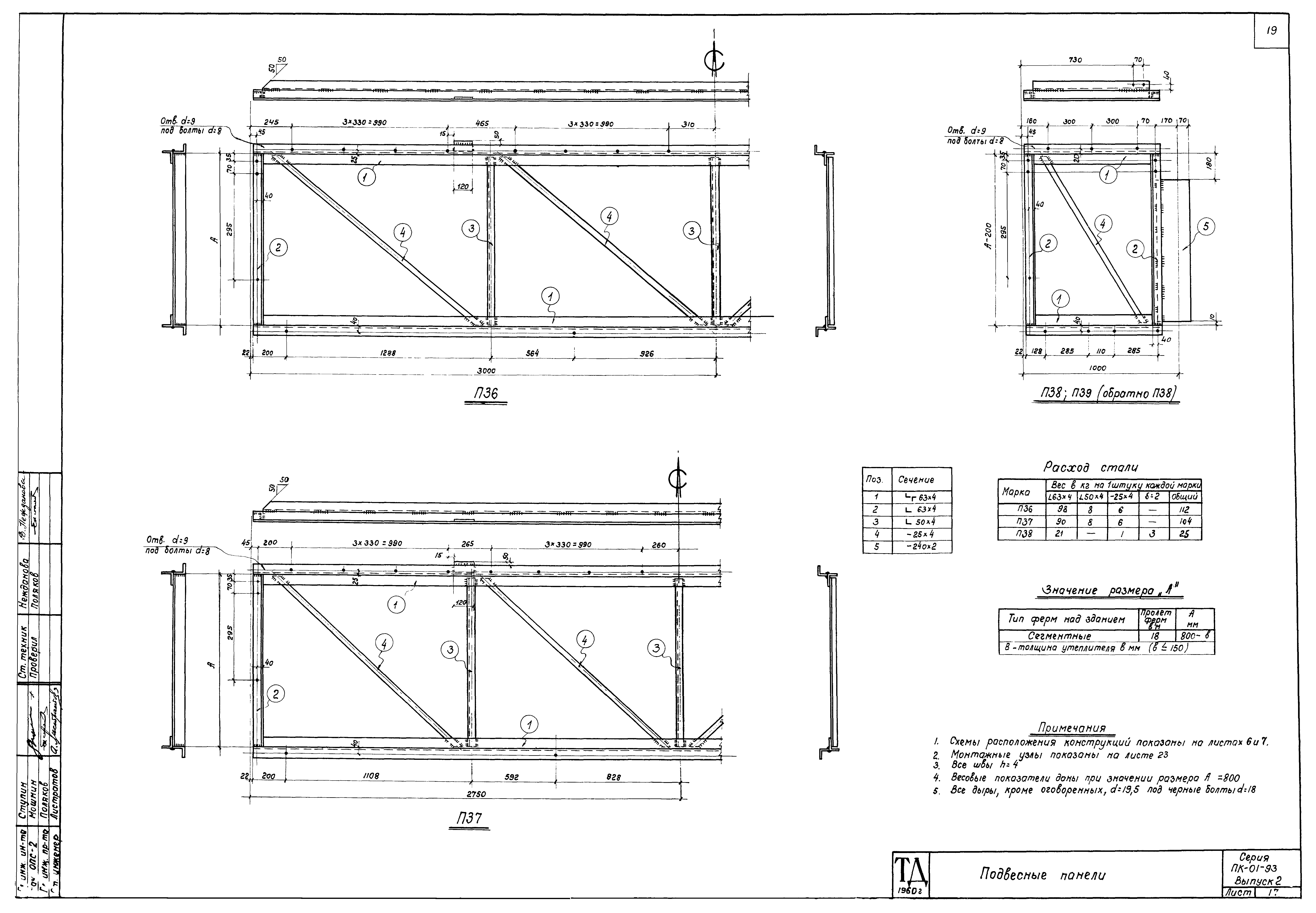
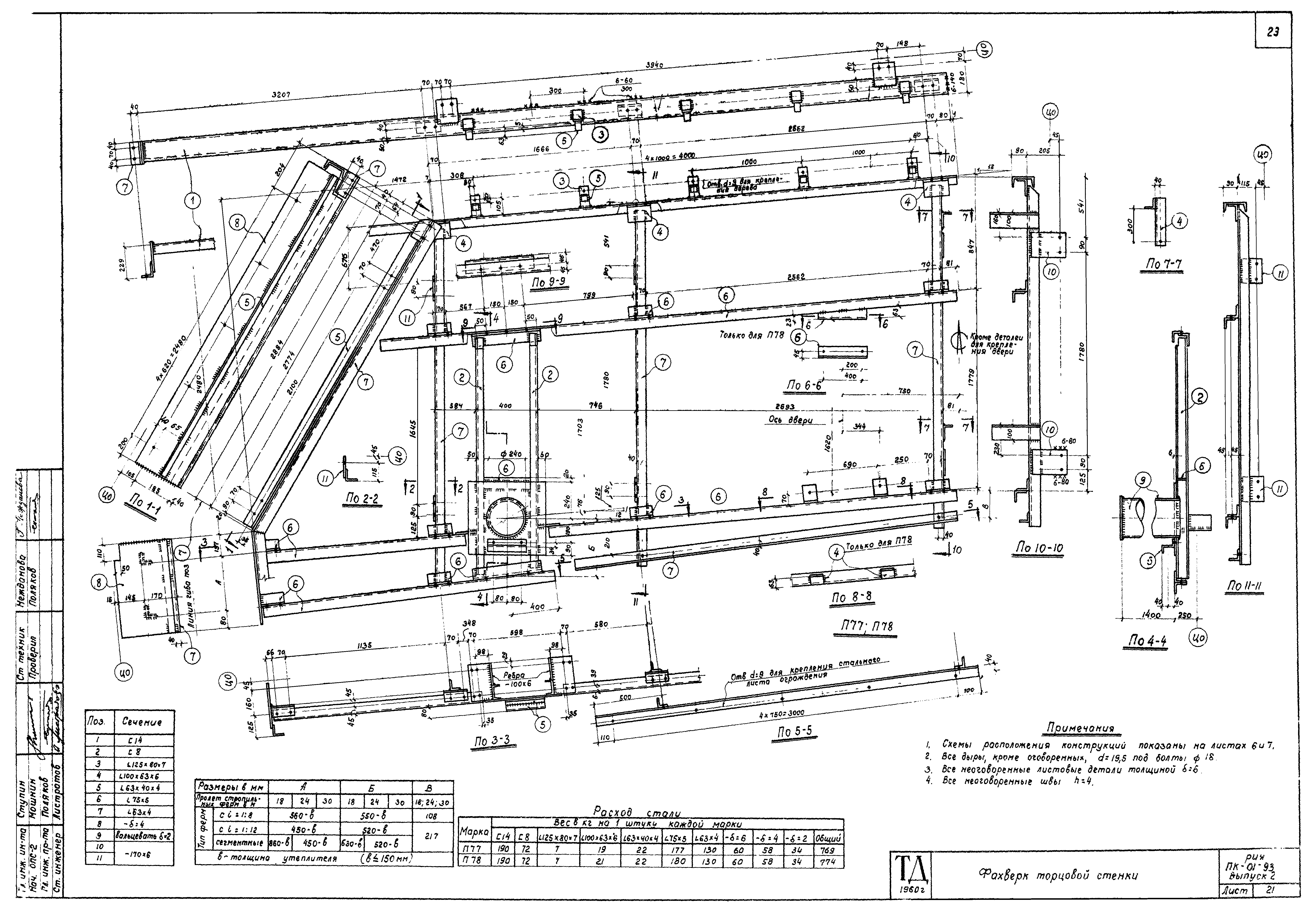
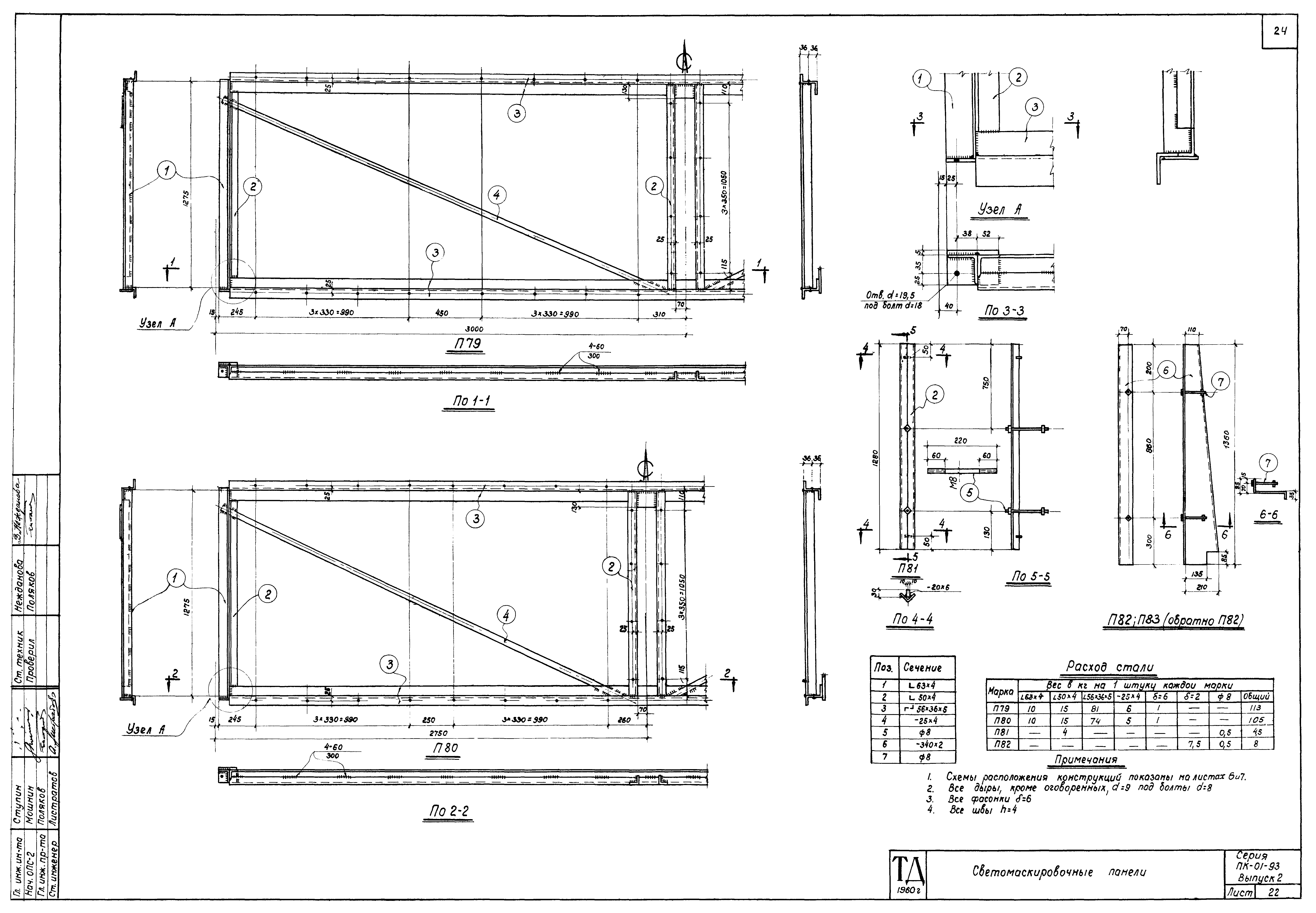
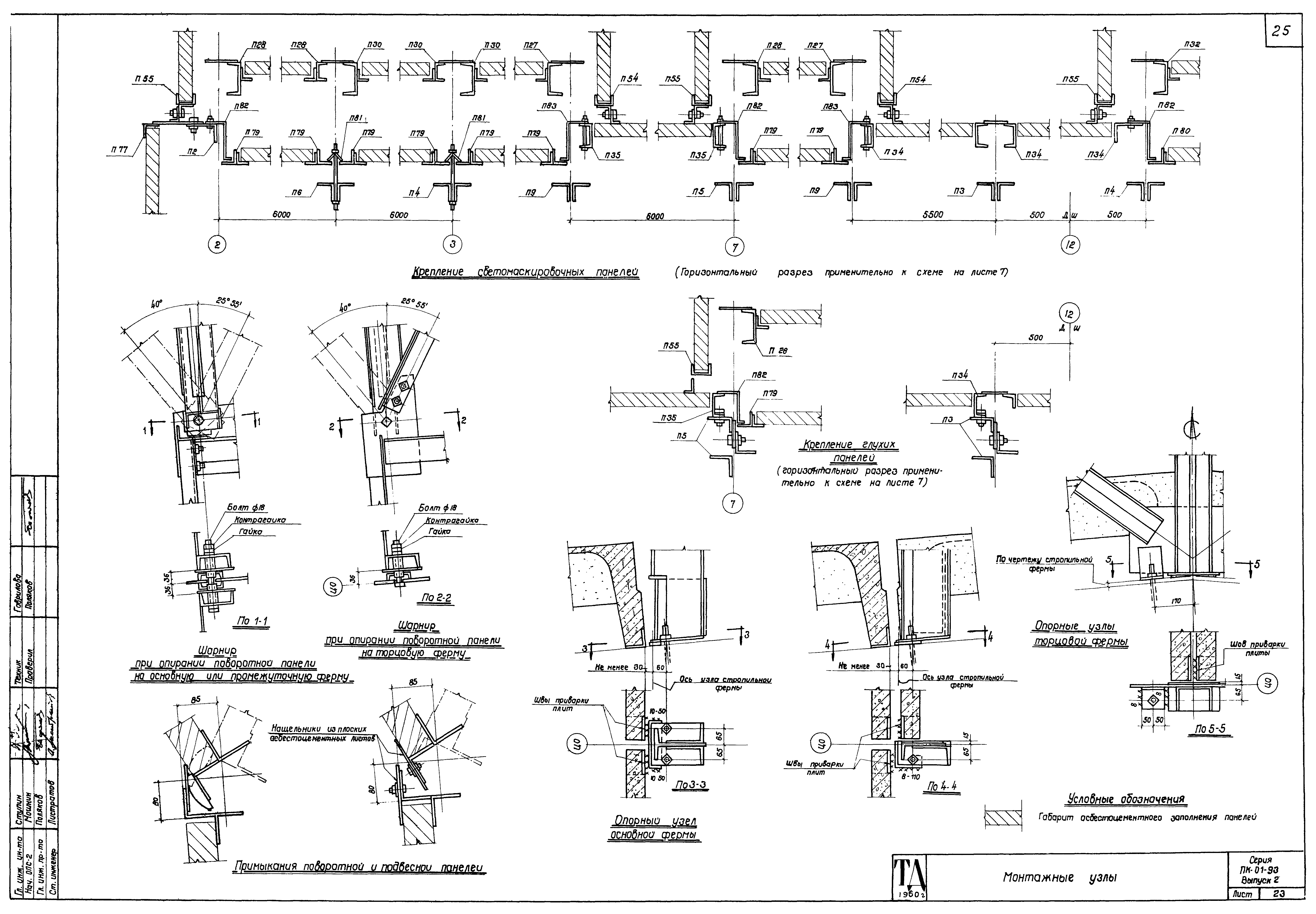
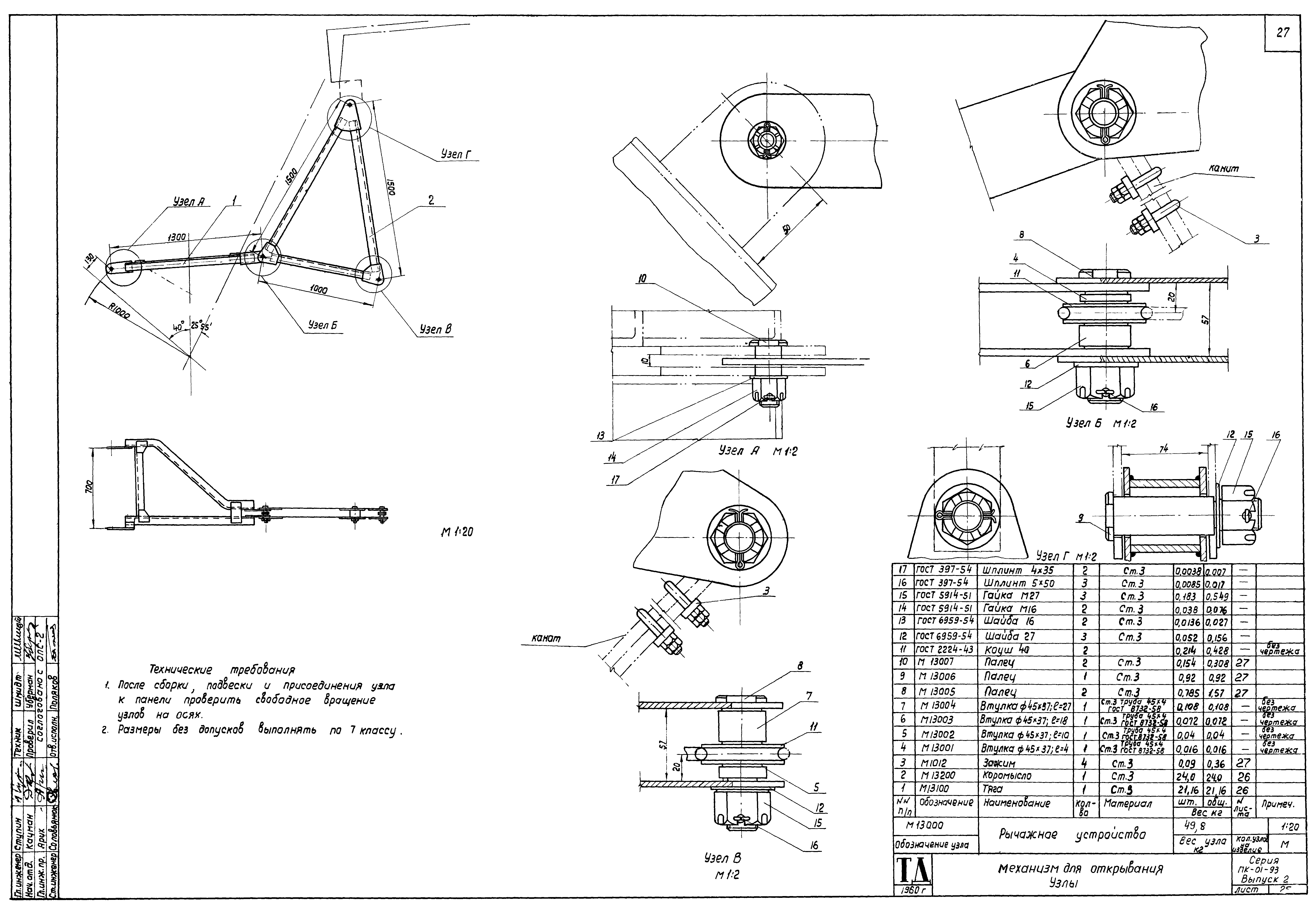
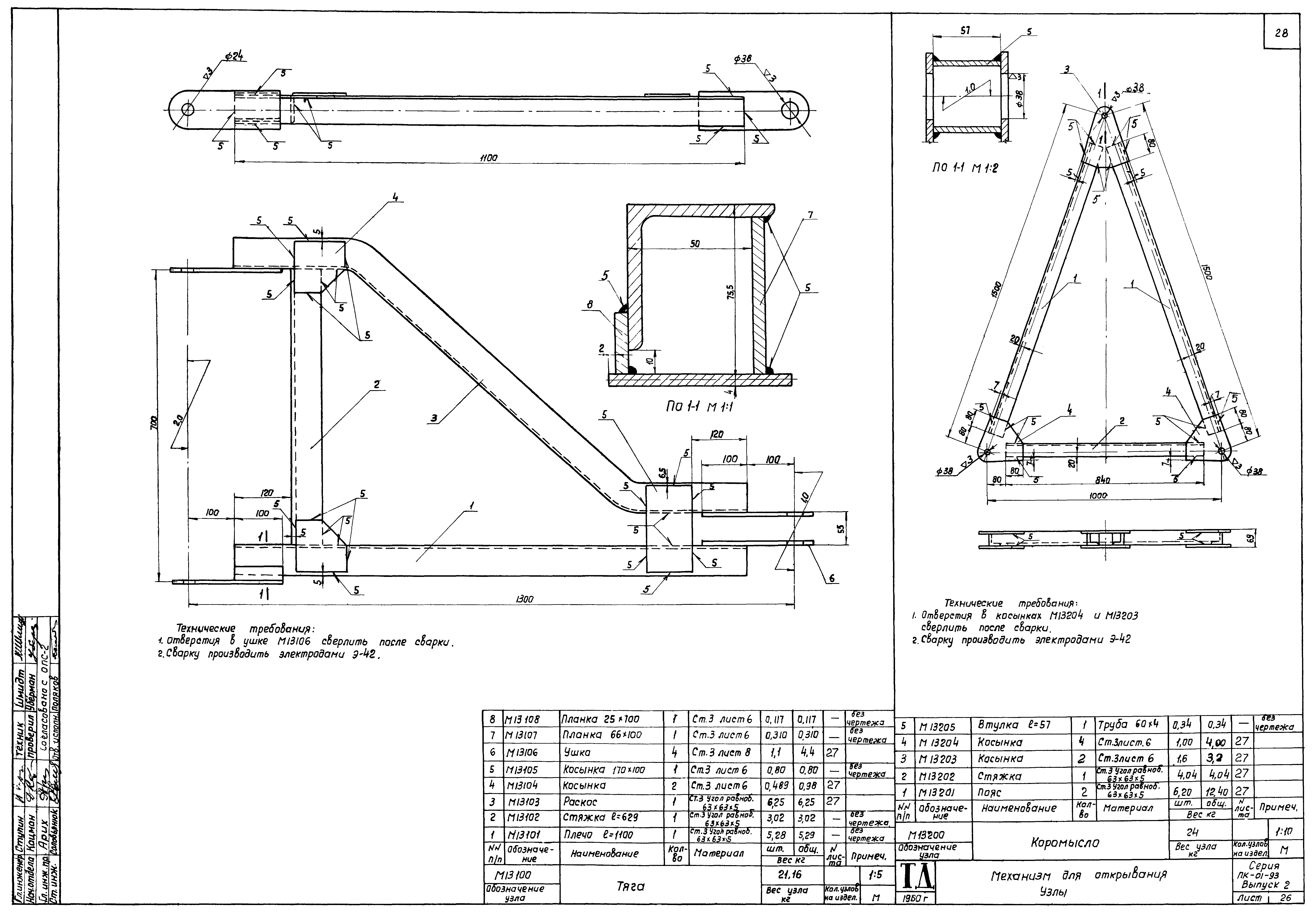
| Оглавление: | Пояснительная записка Расчетные схемы Пример решения фонаря с длинами фонарных деформационных блоков 48 и 60 м Пример решения фонаря с длиной фонарного деформационного блока 120 м Разрезы по фонарю Разрезы около торцовых стенок фонаря. Архитектурные детали Архитектурные детали. Раскладка асбестоцементных листов в панелях Схема расположения конструкций фонаря с длинами фонарных деформационных блоков 48 и 60 м Схема расположения конструкций фонаря с длиной фонарного деформационного блока 120 м Основные фермы Основные и промежуточные фермы Торцовая ферма Горизонтальные связи Вертикальные связи Поворотные панели Поворотные и глухие панели Глухая панель Подвесные панели и регулирующие листы Подвесные панели Площадки под механизмы Торцовые щиты. Переходной мостик. Дверь Лестницы, связевые подкосы, тяжи Фахверк торцовой стенки Светомаскировочные панели Монтажные узлы Механизм для открывания. Общий вид Механизм для открывания. Узлы Механизм для открывания. Узлы и детали |
| Разработан: | Гипротис |
| Утверждён: | 15.05.1961 Госстрой СССР (Государственный комитет Совета Министров СССР по делам строительства) (USSR Gosstroy 156) |
| Чем заменён: |































