Скачать Серия ПК-01-110 Выпуск III. Рабочие чертежи подстропильных ферм со стержневой арматурой, натягиваемой электротермическим способомДата актуализации: 01.01.2021
|
| Обозначение: | Серия ПК-01-110 |
| Обозначение англ: | Series ПК-01-110 |
| Статус: | не действует |
| Название рус.: | Выпуск III. Рабочие чертежи подстропильных ферм со стержневой арматурой, натягиваемой электротермическим способом |
| Дата добавления в базу: | 01.09.2013 |
| Дата актуализации: | 01.01.2021 |
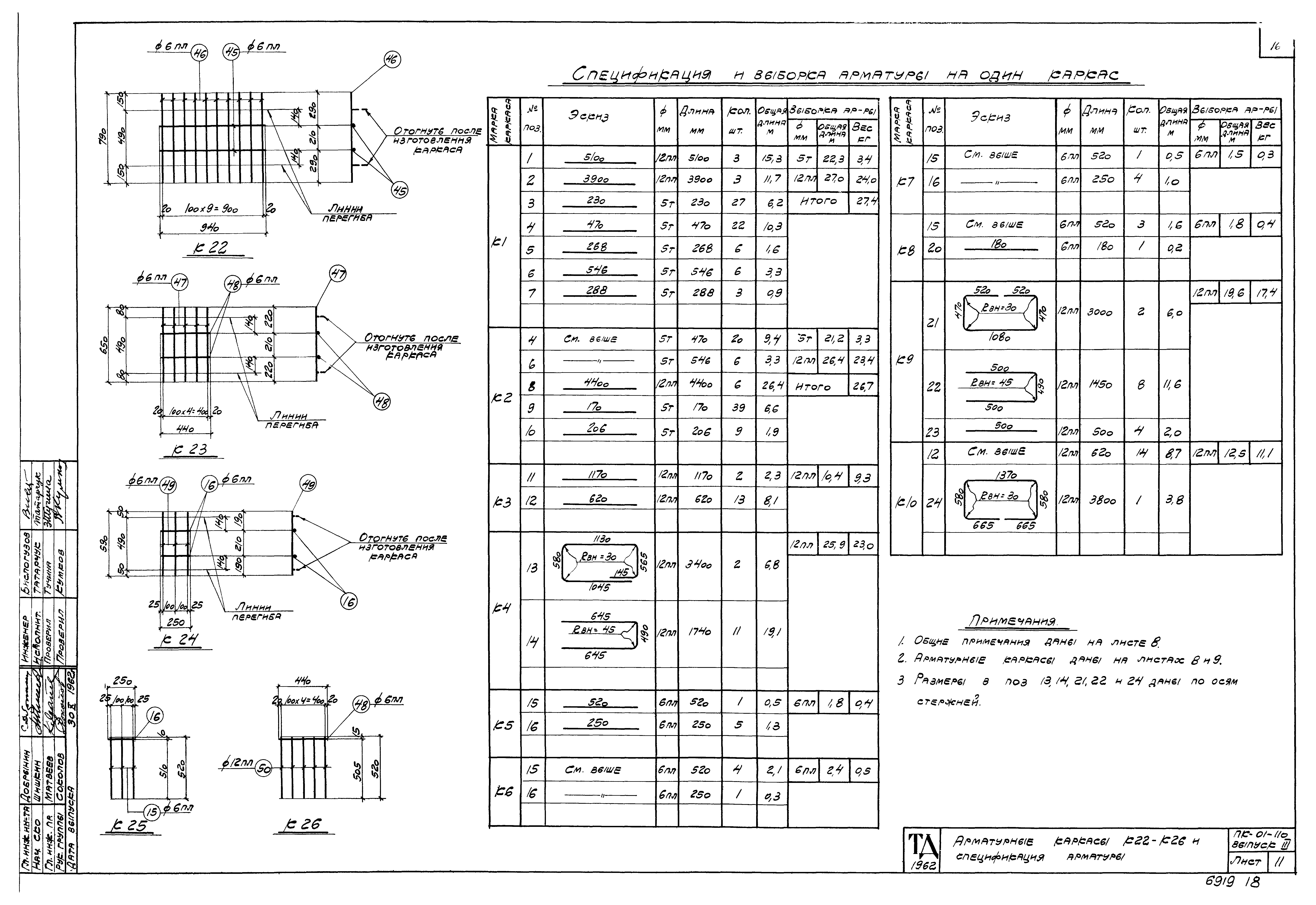
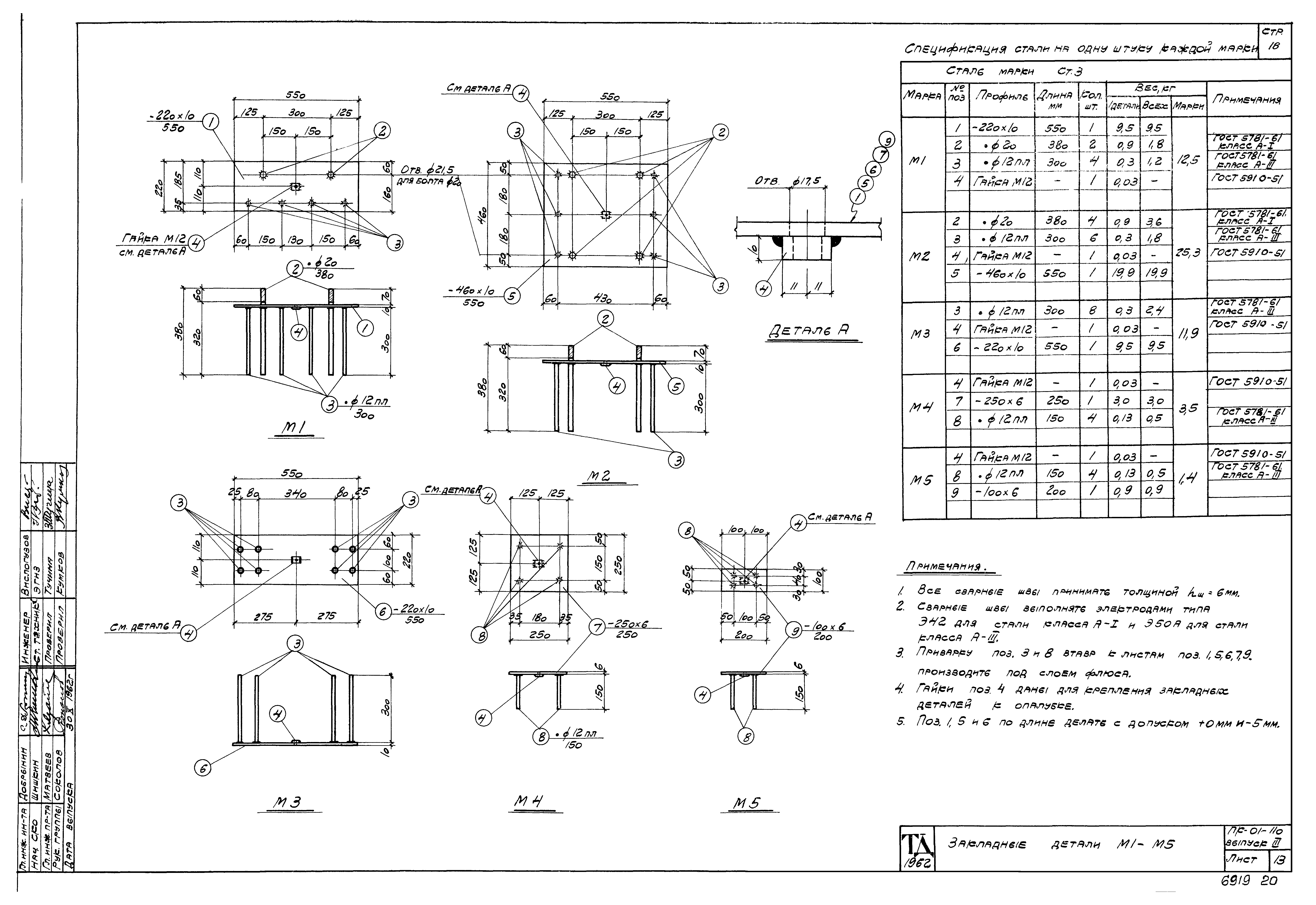
| Оглавление: | Пояснительная записка Подстропильные фермы ПФЭС-1, ПФЭС-2, ПФЭС-3, ПФЭС-4, ПФЭС-1к, ПФЭС-2к, ПФЭС-3к, ПФЭС-4к. Расход материалов Подстропильные фермы ПФЭС-1, ПФЭС-2, ПФЭС-3, ПФЭС-4. Опалубочный чертеж Подстропильные фермы ПФЭС-1, ПФЭС-2, ПФЭС-3, ПФЭС-4. Арматурный чертеж Подстропильные фермы ПФЭС-1к, ПФЭС-2к, ПФЭС-3к, ПФЭС-4к. Опалубочный чертеж Подстропильные фермы ПФЭС-1к, ПФЭС-2к, ПФЭС-3к, ПФЭС-4к. Арматурный чертеж Арматурные узлы А, Б Арматурные узлы В, Г Арматурные каркасы К1 - К8 Арматурные каркасы К9 - К15 Арматурные каркасы К16 - К21 Арматурные каркасы К22 - К26 и спецификация арматуры Спецификация арматуры Закладные детали М1 - М5 Вариант замены в нижних поясах ферм напрягаемой арматуры из стали класса А-IV на напрягаемую арматуру из стали класса А-III, упрочненную вытяжкой |
| Разработан: | НИИЖелезобетона Главмоспромстройматериалов НИИЖБ АСиА СССР ПромстройНИИпроект |
| Утверждён: | 14.12.1962 Госстрой СССР (Государственный комитет Совета Министров СССР по делам строительства) (USSR Gosstroy 466) |





















