Скачать Типовой проект 902-1-1 Альбом 2. Архитектурно-строительная часть при глубине заложения подводящего коллектора 5,0 (4,0) мДата актуализации: 01.01.2021
|
| Обозначение: | Типовой проект 902-1-1 |
| Обозначение англ: | 902-1-1 |
| Статус: | не действует |
| Название рус.: | Альбом 2. Архитектурно-строительная часть при глубине заложения подводящего коллектора 5,0 (4,0) м |
| Дата добавления в базу: | 01.09.2013 |
| Дата актуализации: | 01.01.2021 |
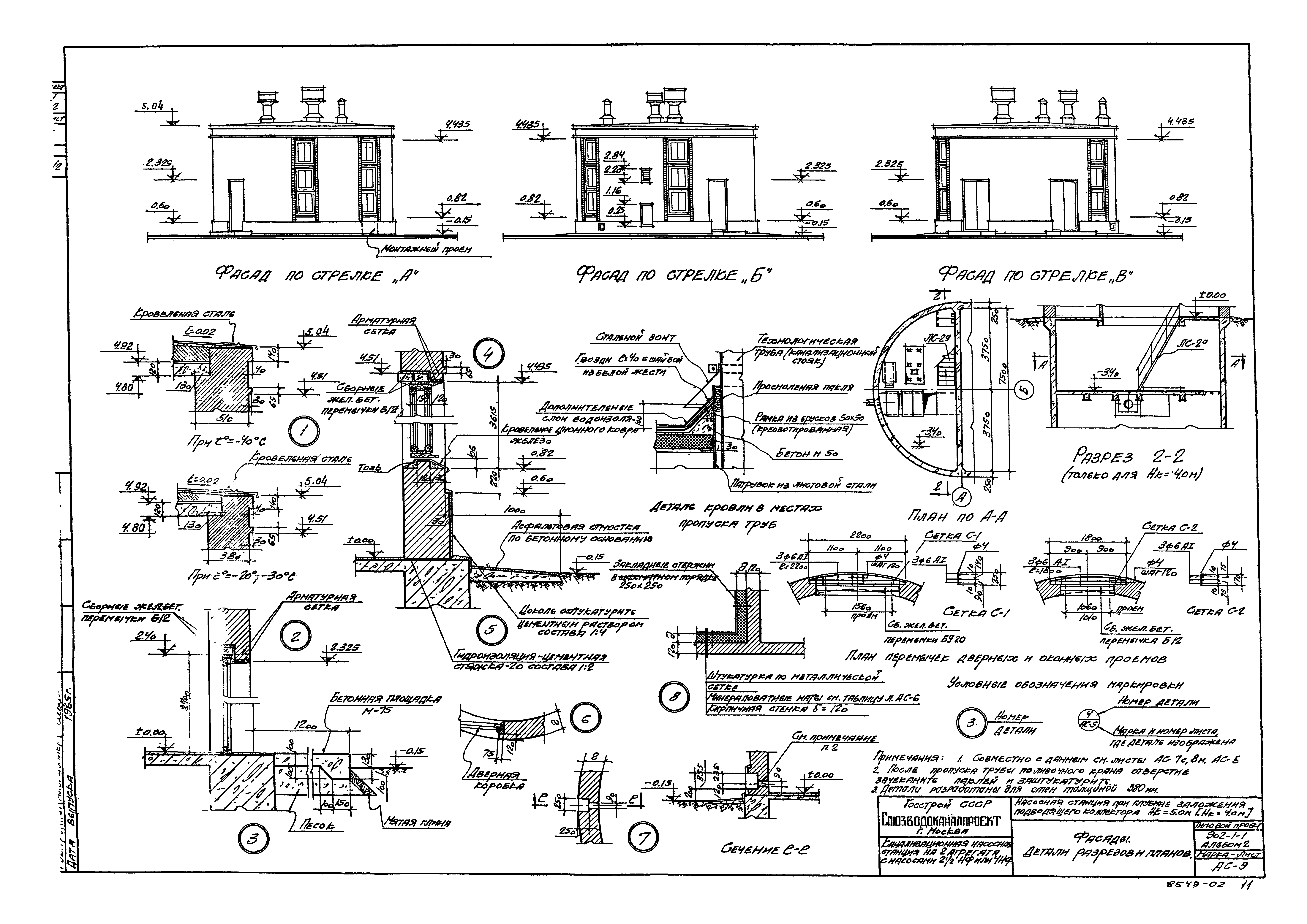
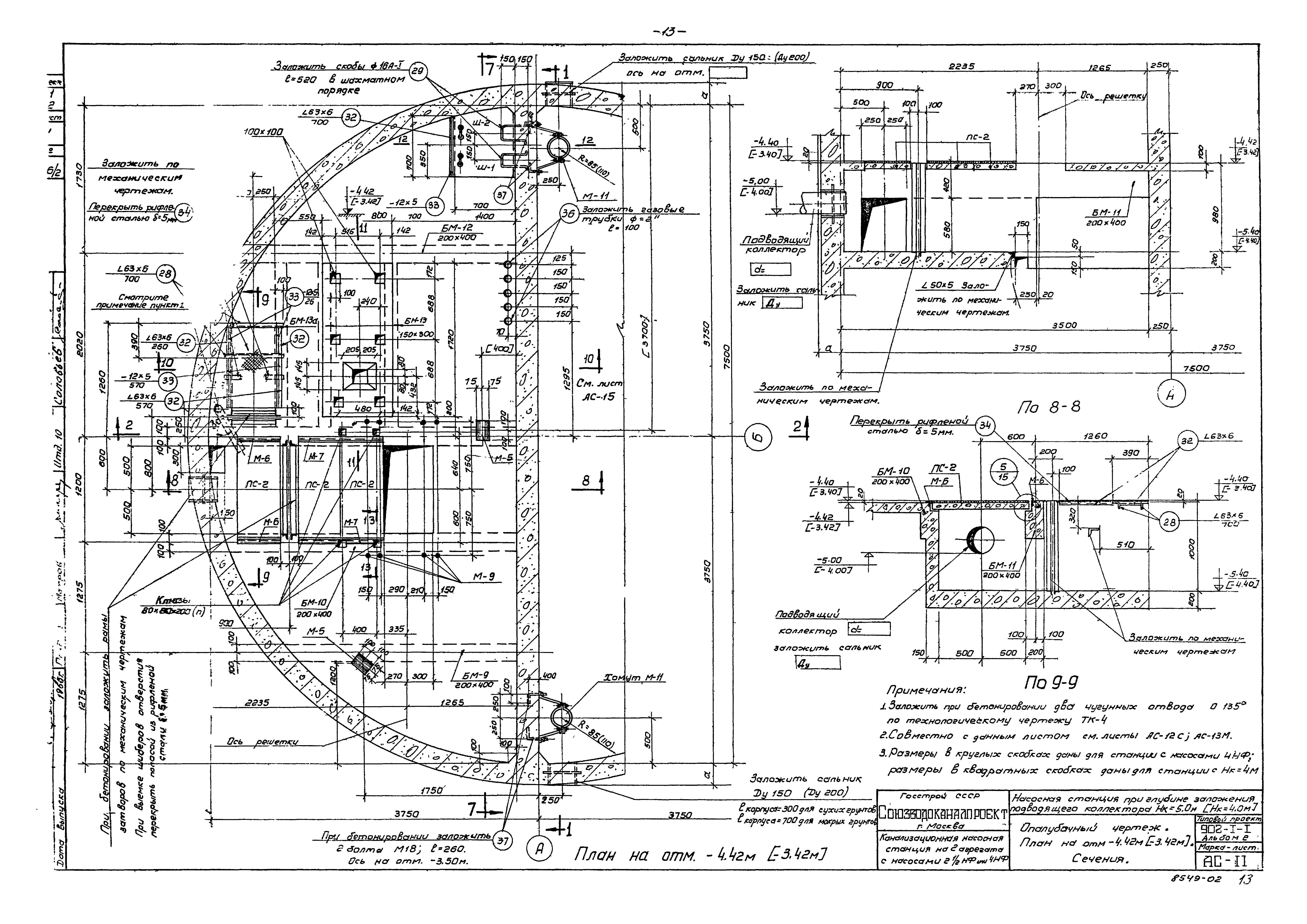
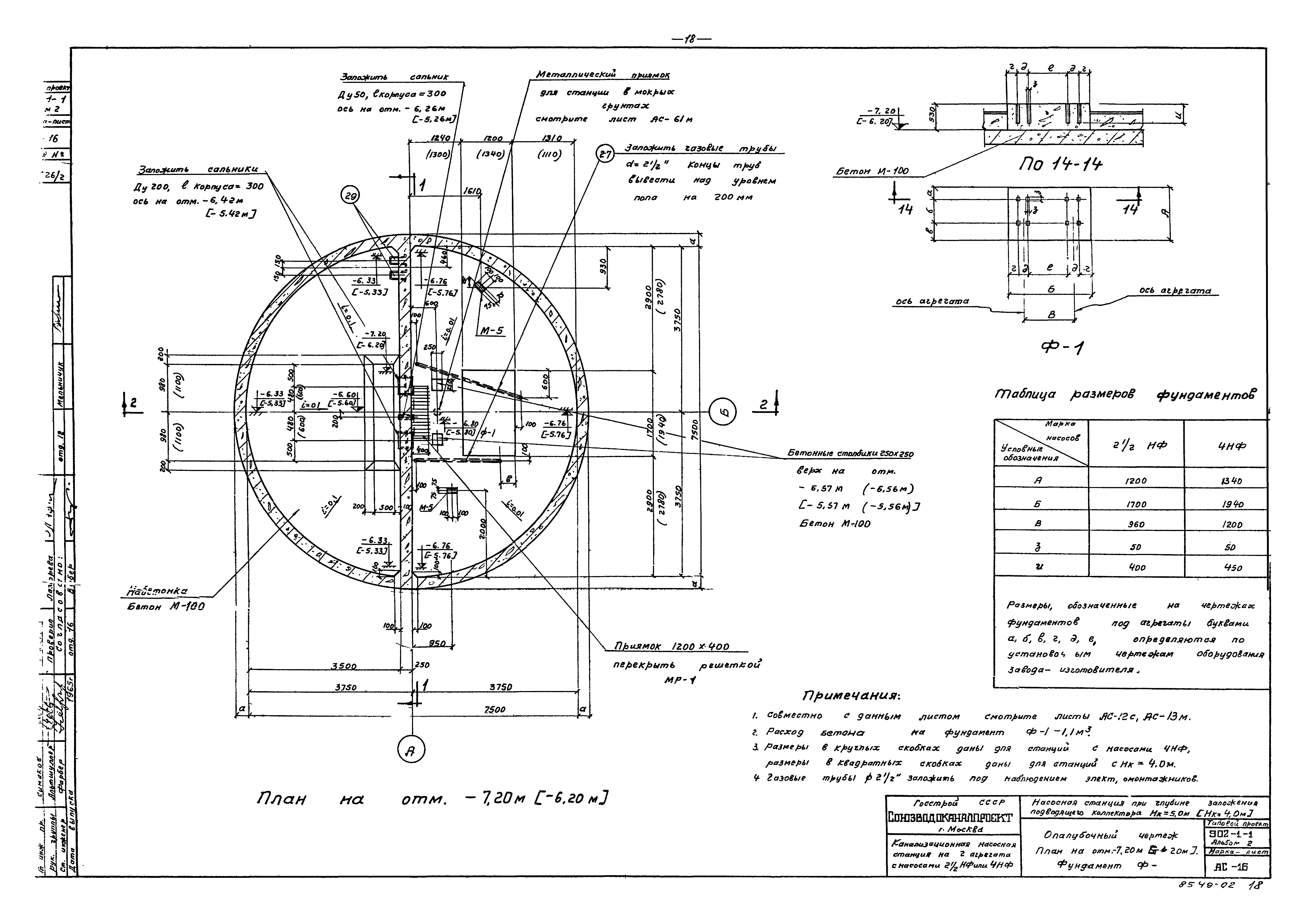
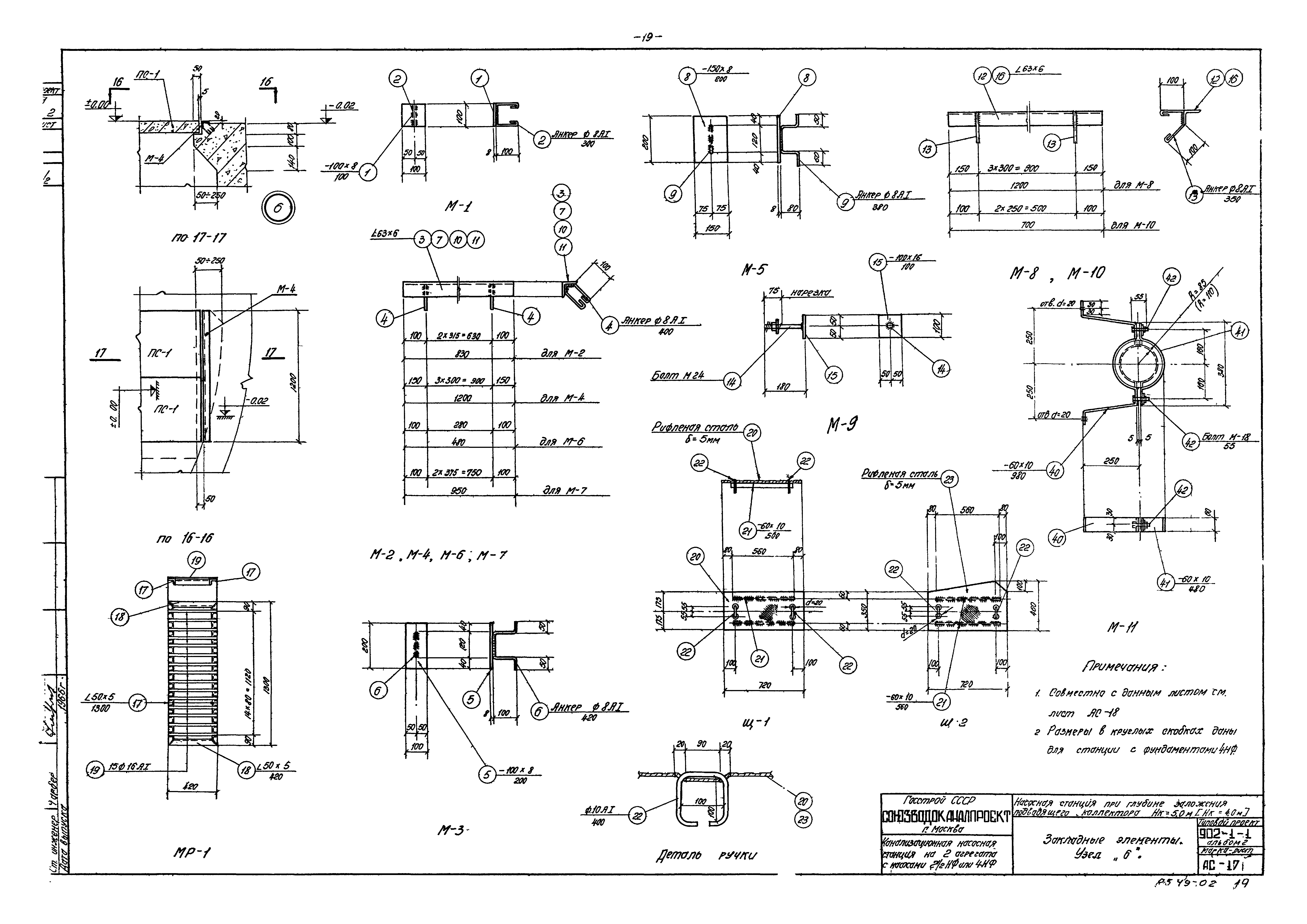
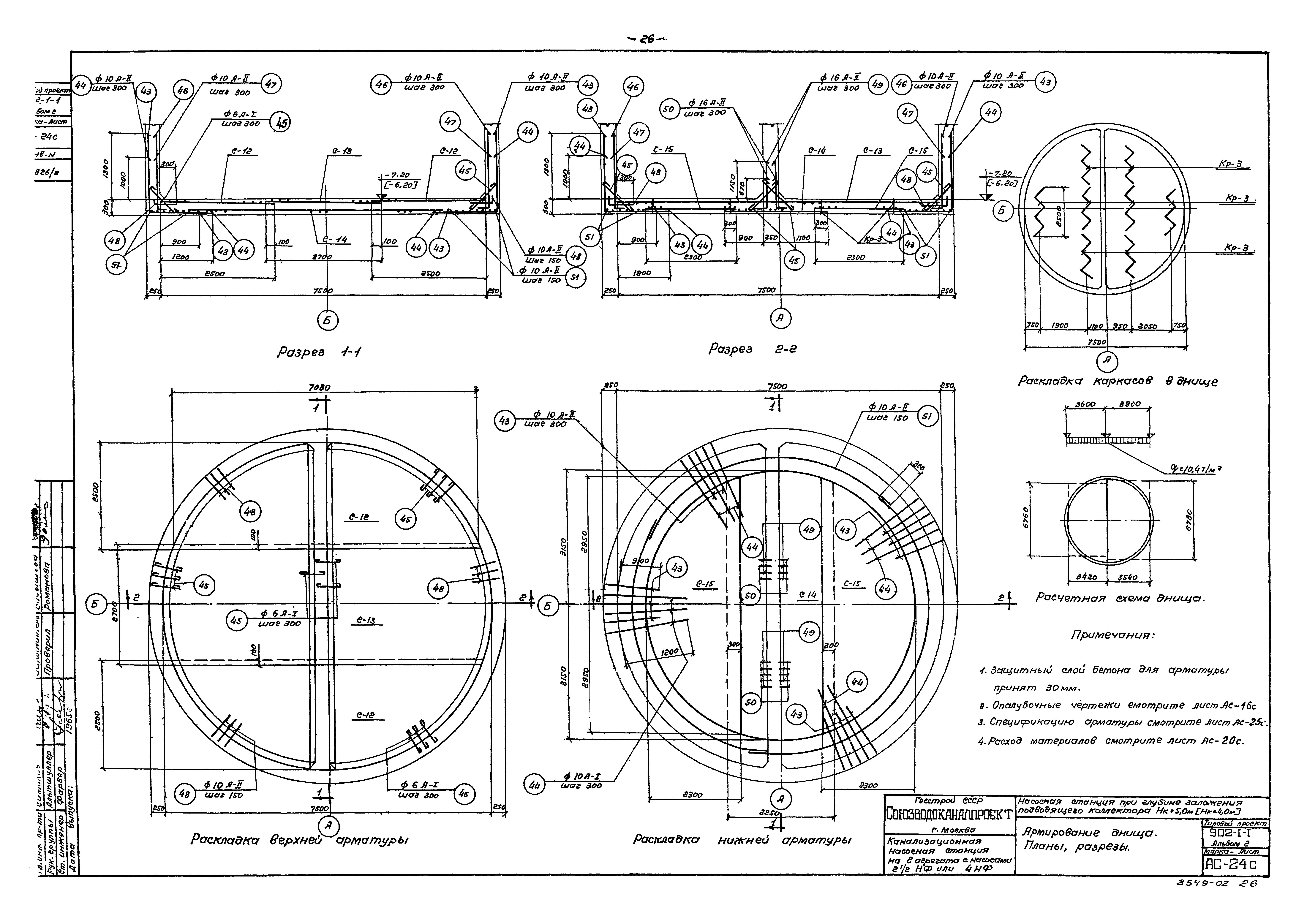
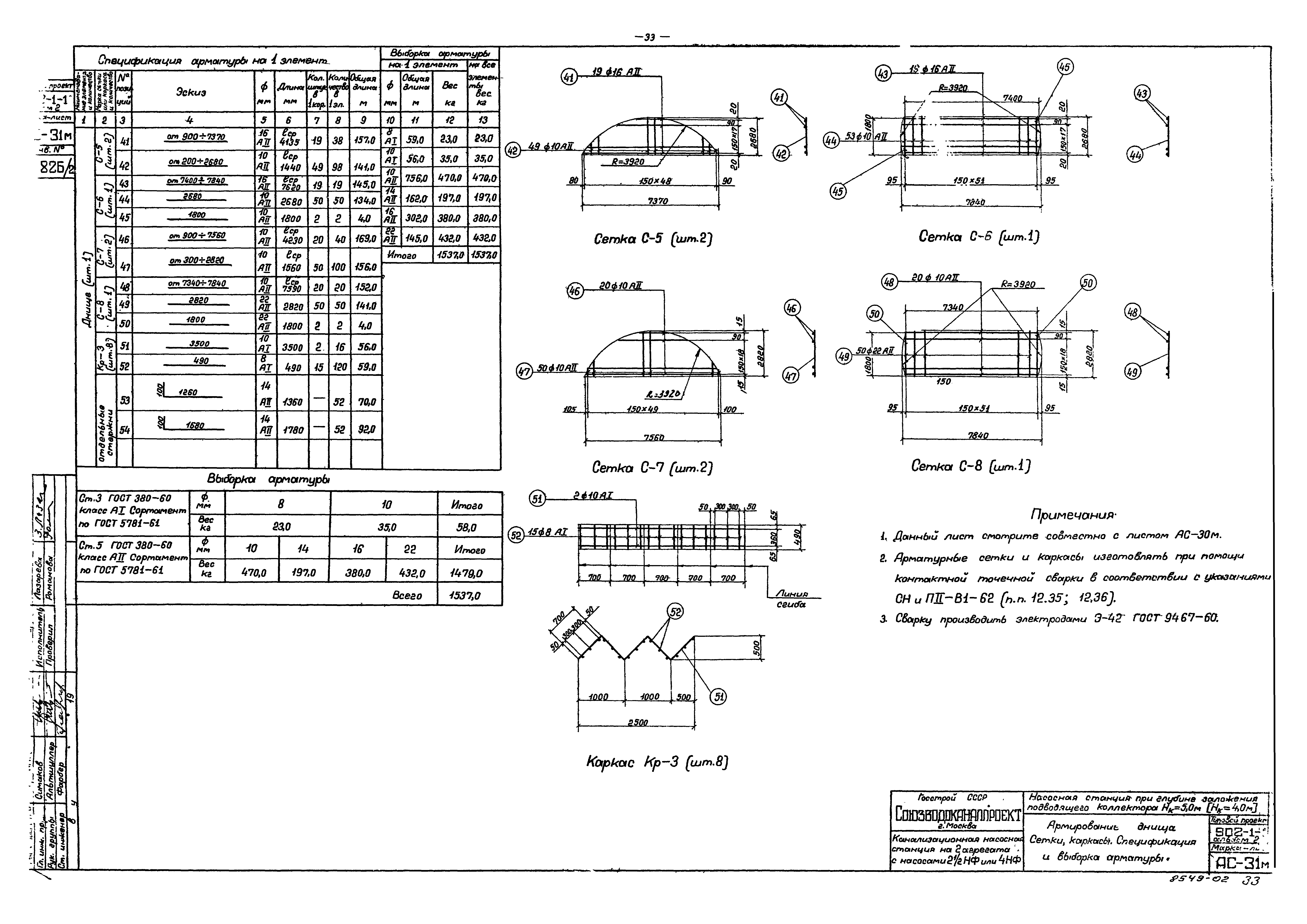
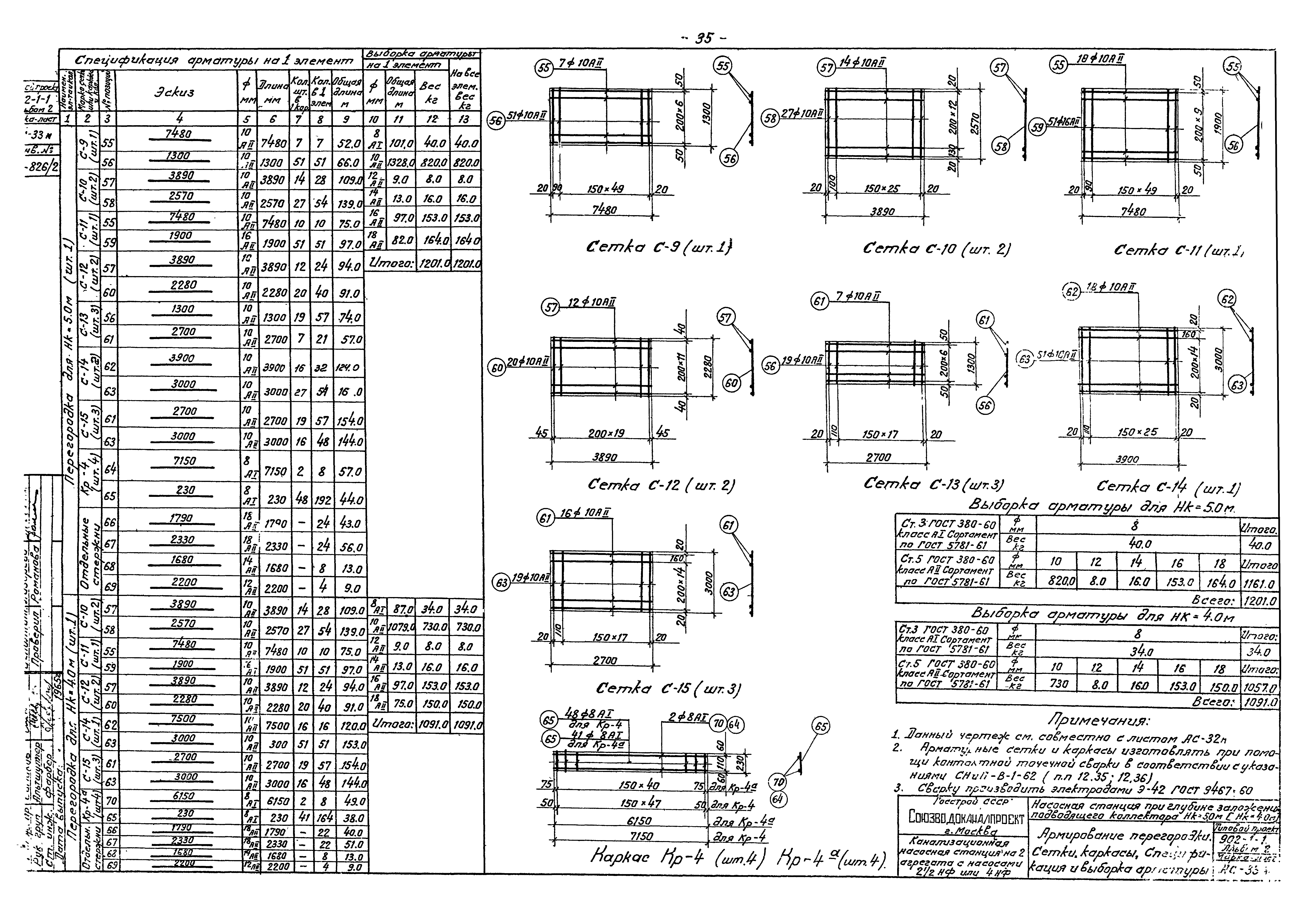
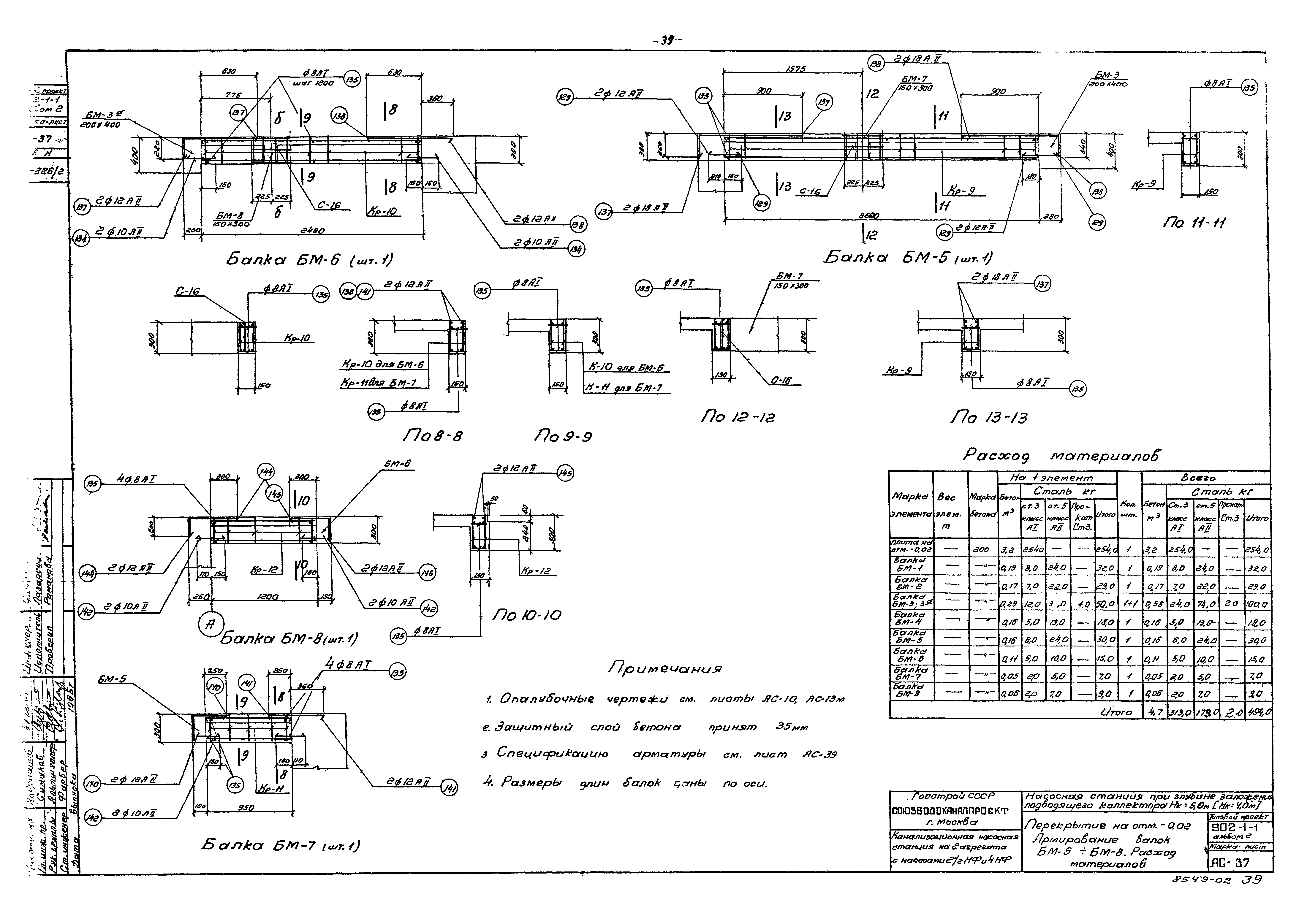
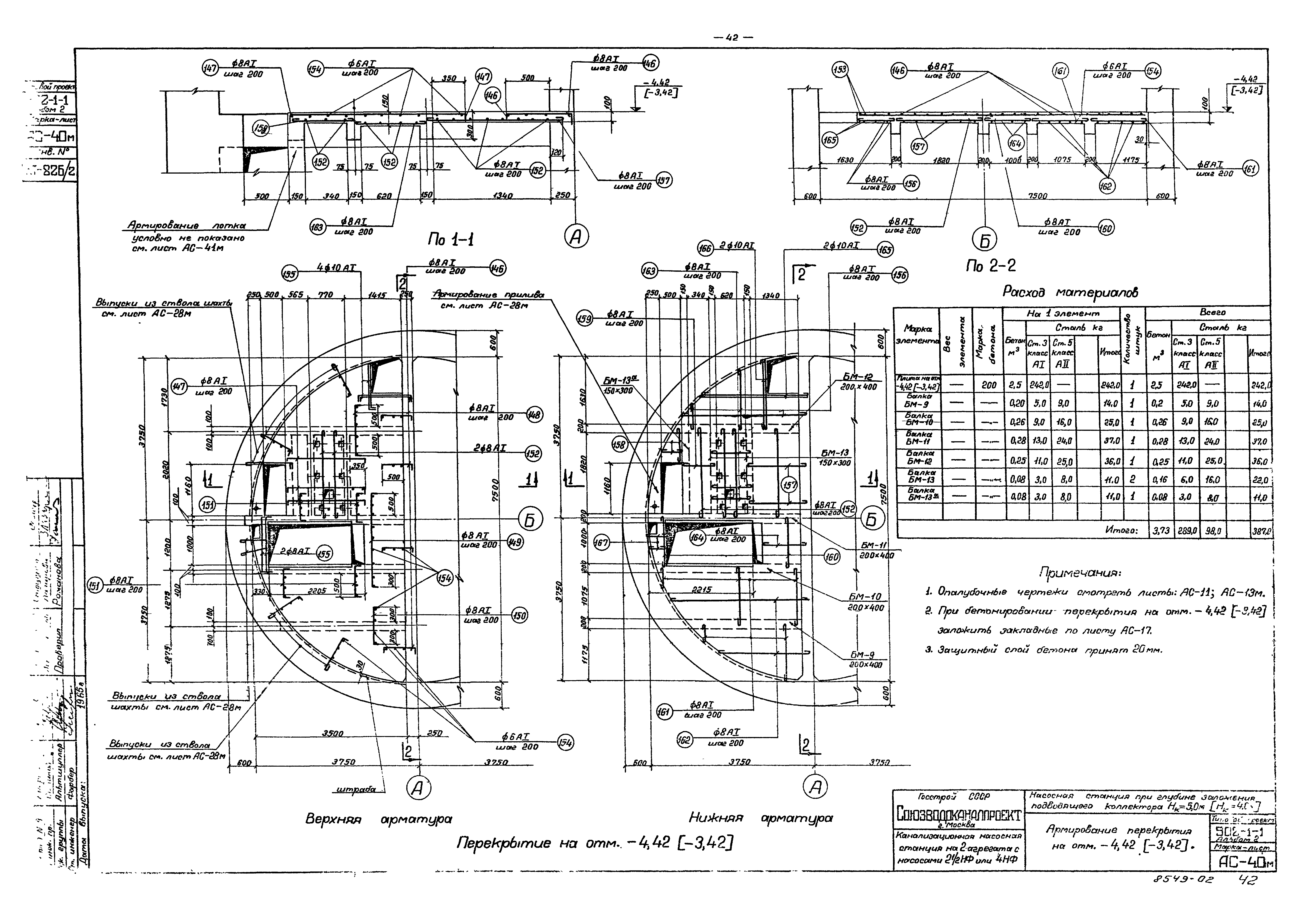
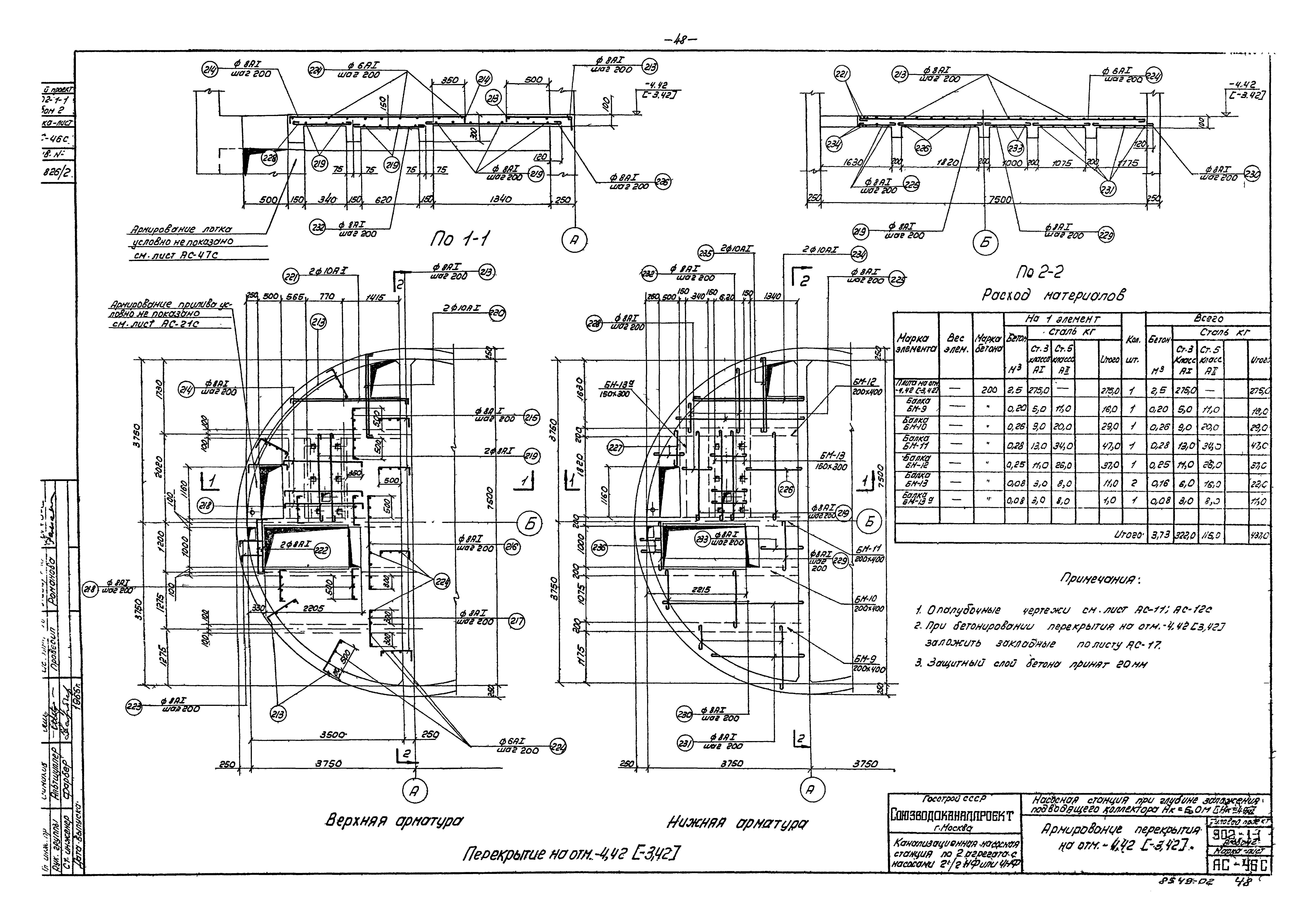
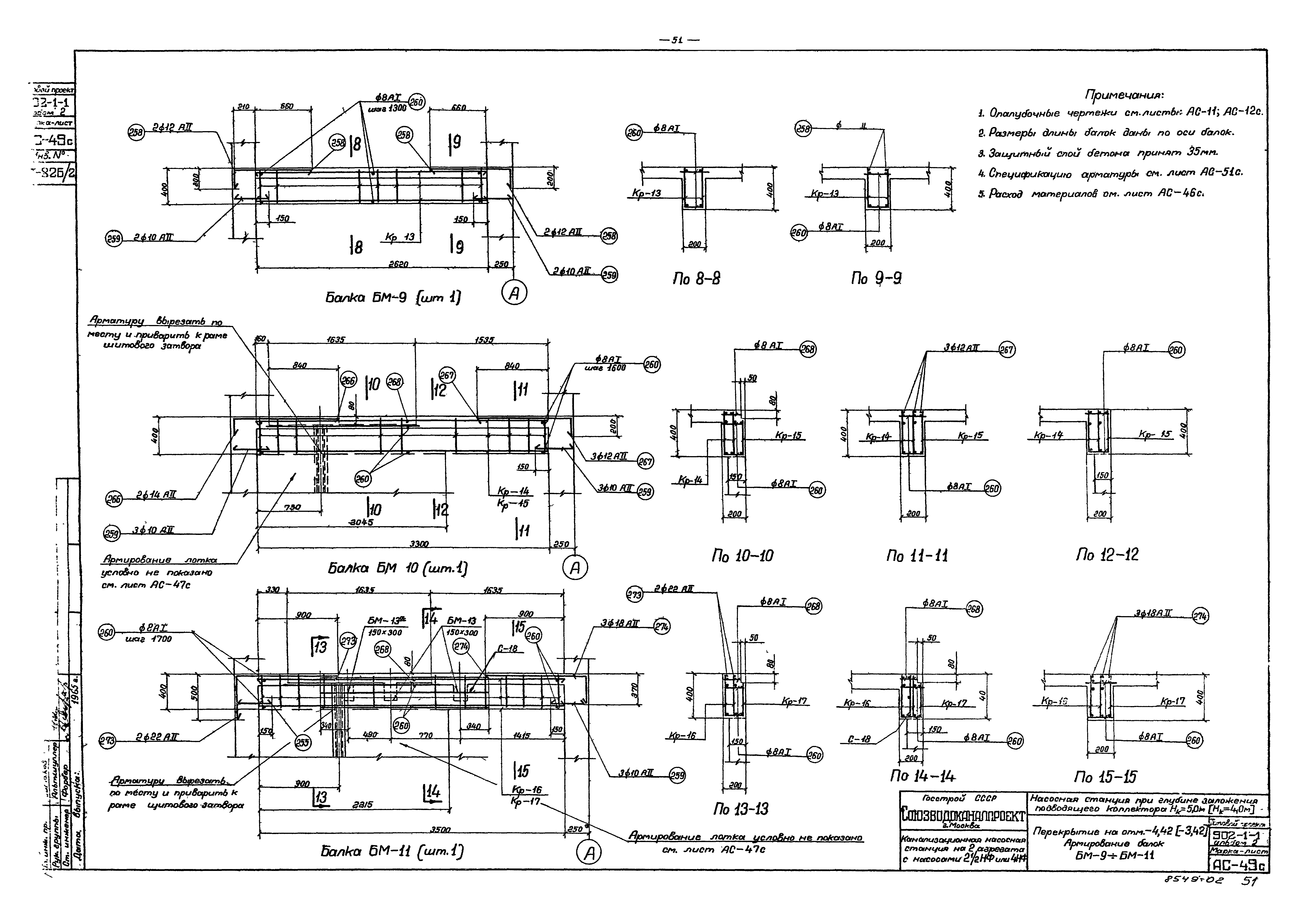
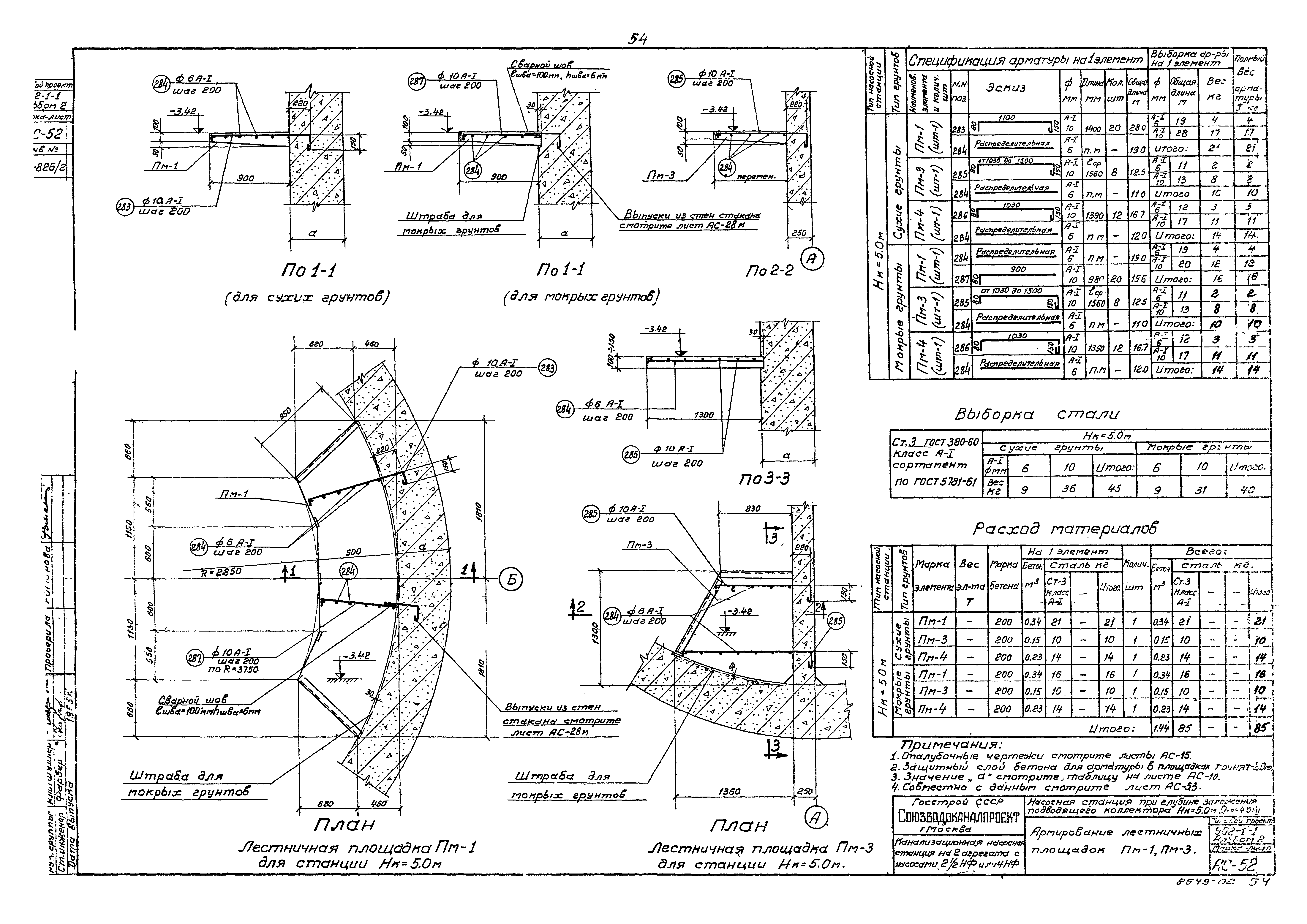
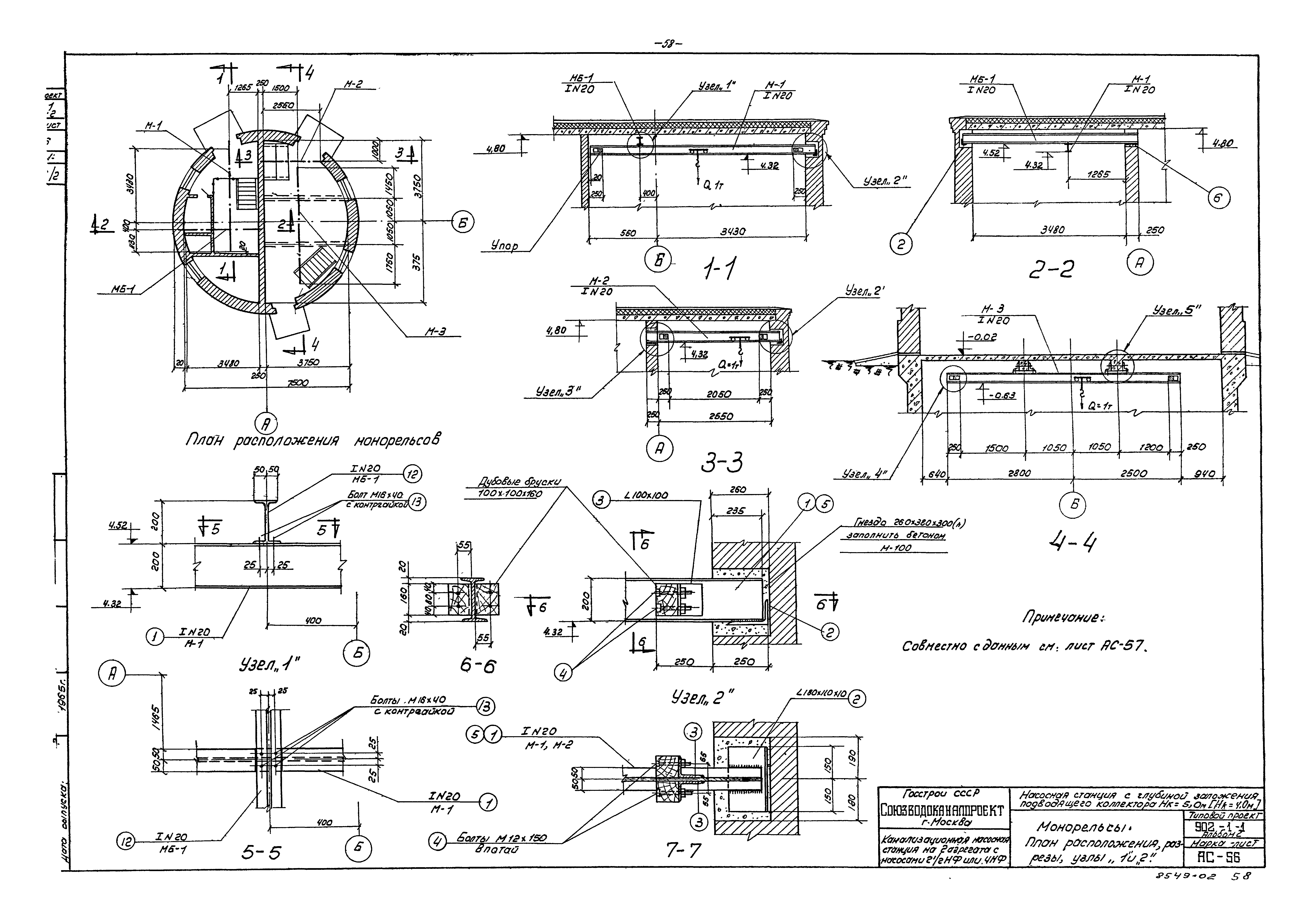
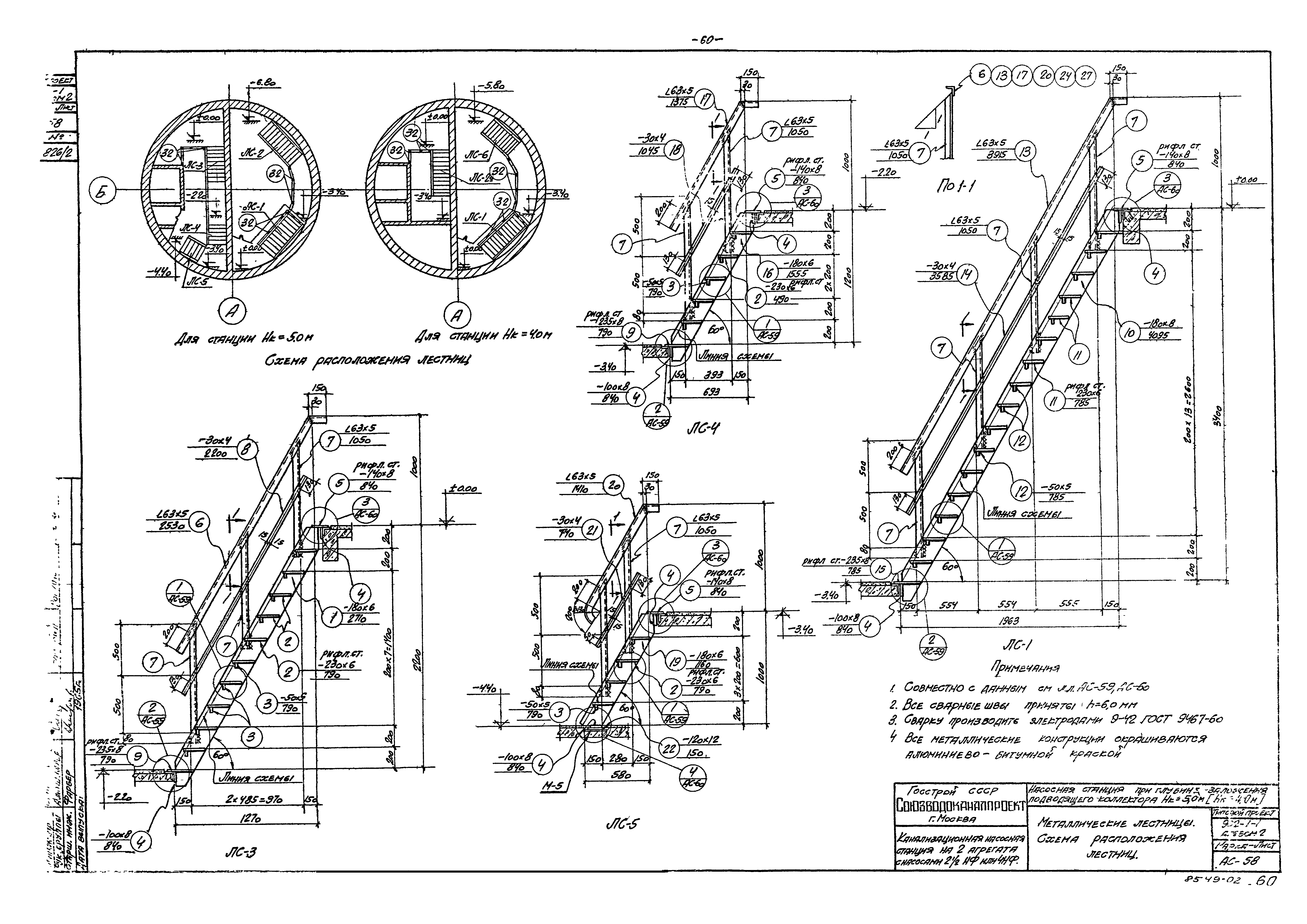
| Оглавление: | Обложка Титульный лист Заглавный лист Содержание альбома Пояснительная записка Планы кровли, полов и перемычек. Основные показатели. Толщина наружных стен и утеплителя кровли, воздухоз. шахты. Спецификация столярных изделий. Экспликация полов, покрытия перемычек Планы, разрезы Фасады. Детали разрезов и планов Опалубочный чертеж. План на отм. - 0.02. Сечения Опалубочный чертеж. План на отм. - 4.42 (- 3, 42). Сечения Опалубочный чертеж. Разрезы Опалубочный чертеж. Разрезы. Узлы Опалубочный чертеж. План А-А. Узлы. Сечения Опалубочный чертеж. План на отм. - 7.20 (- 6.20). Фундамент Ф-1 Закладные элементы. Узел "6" Спецификация и выборка стали. Выборка сальников Площадка для обслуживания задвижек Армирование стен подземной части Армирование стен подземной части. Сетки, каркасы, спецификация арматуры Армирование перегородки. План, разрезы, раскладка сеток Армирование перегородки. Сетки, каркасы, спецификация арматуры Армирование днища. Планы, разрезы Армирование днища. Сетки, каркасы, спецификация арматуры Армирование ствола шахты. План по 2-2, сечение 1-1. Развертка сеток Армирование ствола шахты и ножа. Сетки С-1 - С-4. Каркас КР-1 Выпуски арматуры из ствола шахты Армирование ствола шахты и ножа. Спецификация и выборка арматуры Армирование днища. План раскладки сеток и каркасов. Сечения 1-1, 2-2 Армирование днища. Сетки, каркасы. Спецификация и выборка арматуры Армирование перегородки. План, сечения. Раскладка сеток. Расход материалов Армирование перегородки. Сетки, каркасы. Спецификация и выборка арматуры Армирование перекрытия на отм. - 0.02 Армирование перекрытия на отм. - 0.02. Спецификация и выборка арматуры Перекрытие на отм. - 0.02. Армирование балок Бм-1 - Бм-4 Перекрытие на отм. - 0.02. Армирование балок Бм-5 - Бм-8. Расход материалов Перекрытие на отм. - 0.02. Армирование балок. Сетки С-16, С-17. каркасы КР-5 - КР-12 Перекрытие на отм. - 0.02. Армирование балок. Спецификация и выборка арматуры Армирование перекрытия на отм. - 4.42 (- 3.42) Армирование перекрытия на отм. - 4.42 (- 3.42). Лоток. План и сечения Армирование перекрытия на отм. - 4.42 (- 3.42). Спецификация и выборка арматуры Перекрытие на отм. - 4.42 (- 3.42). Армирование балок Бм-9 - Бм-11 Перекрытие на отм. - 4.42 (- 3.42). Армирование балок Бм-12 - Бм-13а Перекрытие на отм. - 4.42 (- 3.42). Армирование балок. Спецификация и выборка арматуры Армирование перекрытия на отм. - 4.42 (- 3.42) Армирование перекрытия на отм. - 4.42 (- 3.42). Лоток. План и сечения Армирование перекрытия на отм. - 4.42 (- 3.42). Спецификация и выборка арматуры Перекрытие на отм. - 4.42 (- 3.42). Армирование балок Бм-9 - Бм-11 Перекрытие на отм. - 4.42 (- 3.42). Армирование балок Бм-12 - Бм-13а Перекрытие на отм. - 4.42 (- 3.42). Армирование балок. Спецификация и выборка арматуры Армирование лестничных площадок Пм-1, Пм-3 Армирование лестничных площадок Пм-2, Пм-4 Сборные железобетонные плиты ПС-1, ПС-2 Кровельное покрытие. Арматурно-опалубочный чертеж Монорельсы. План расположения, разрезы. Узлы "1" и "2" Монорельсы. Узлы "3", "4", "5". Спецификация и выборка металла Металлические лестницы. Схема расположения лестниц Металлические лестницы. Узлы "1" и "2". Деталь ограждения Металлические лестницы. Узлы "3" и "4". Спецификация и выборка металла Металлический приямок в днище Сводные спецификации материалов Объемы строительных работ |
| Разработан: | Союзводоканалпроект |
| Утверждён: | 19.04.1966 Главпромстройпроект Госстроя СССР |



































































