Скачать Типовой проект 901-2-150.87 Альбом II. Технология производства. Электросиловое оборудование. Электроосвещение и автоматика. Спецификация оборудованияДата актуализации: 01.01.2021
|
| Обозначение: | Типовой проект 901-2-150.87 |
| Обозначение англ: | 901-2-150.87 |
| Статус: | не определен законодательством |
| Название рус.: | Альбом II. Технология производства. Электросиловое оборудование. Электроосвещение и автоматика. Спецификация оборудования |
| Дата добавления в базу: | 01.09.2013 |
| Дата актуализации: | 01.01.2021 |
| Дата введения: | 26.05.1986 |
| Дата окончания срока действия: | 30.06.2003 |
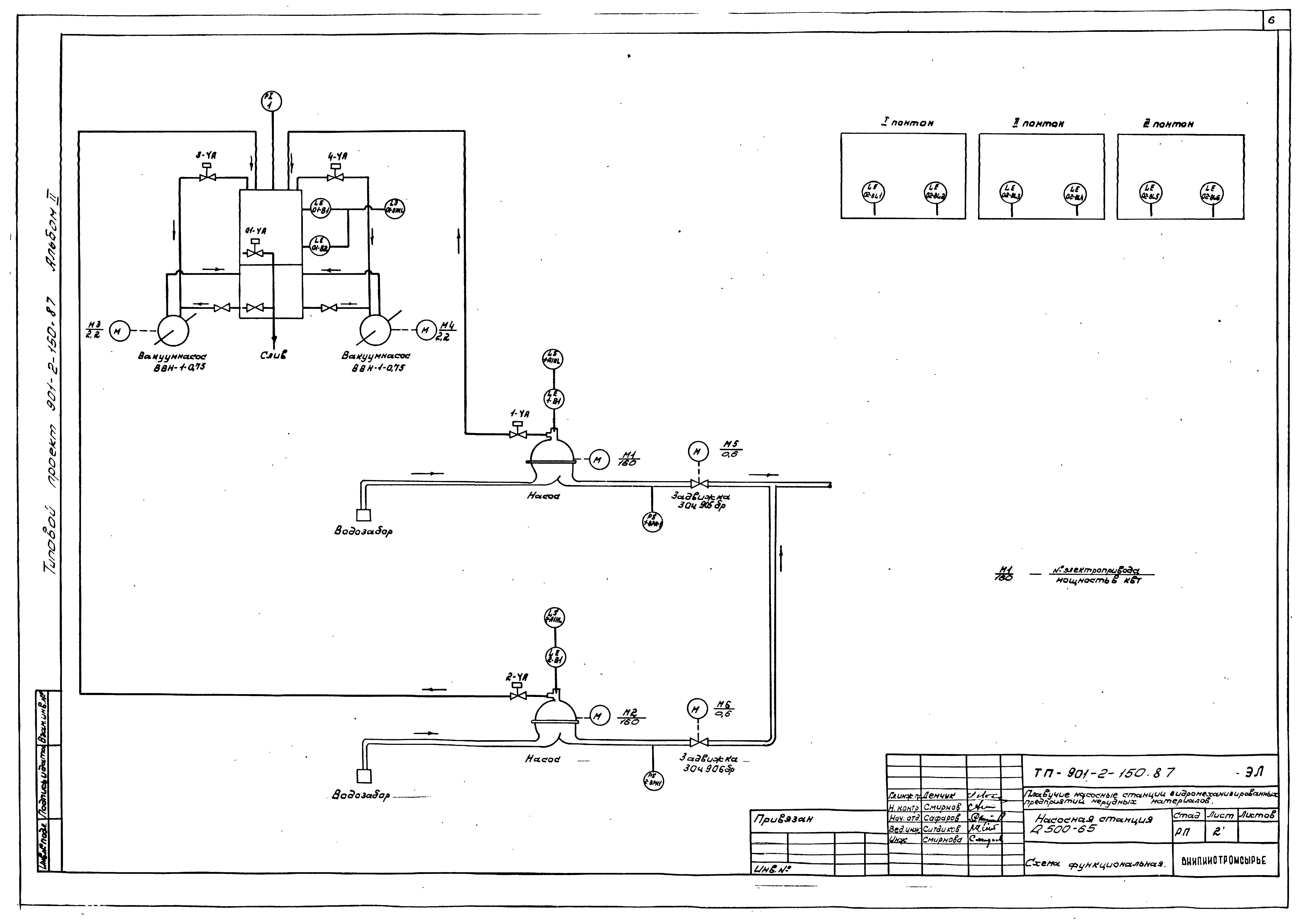
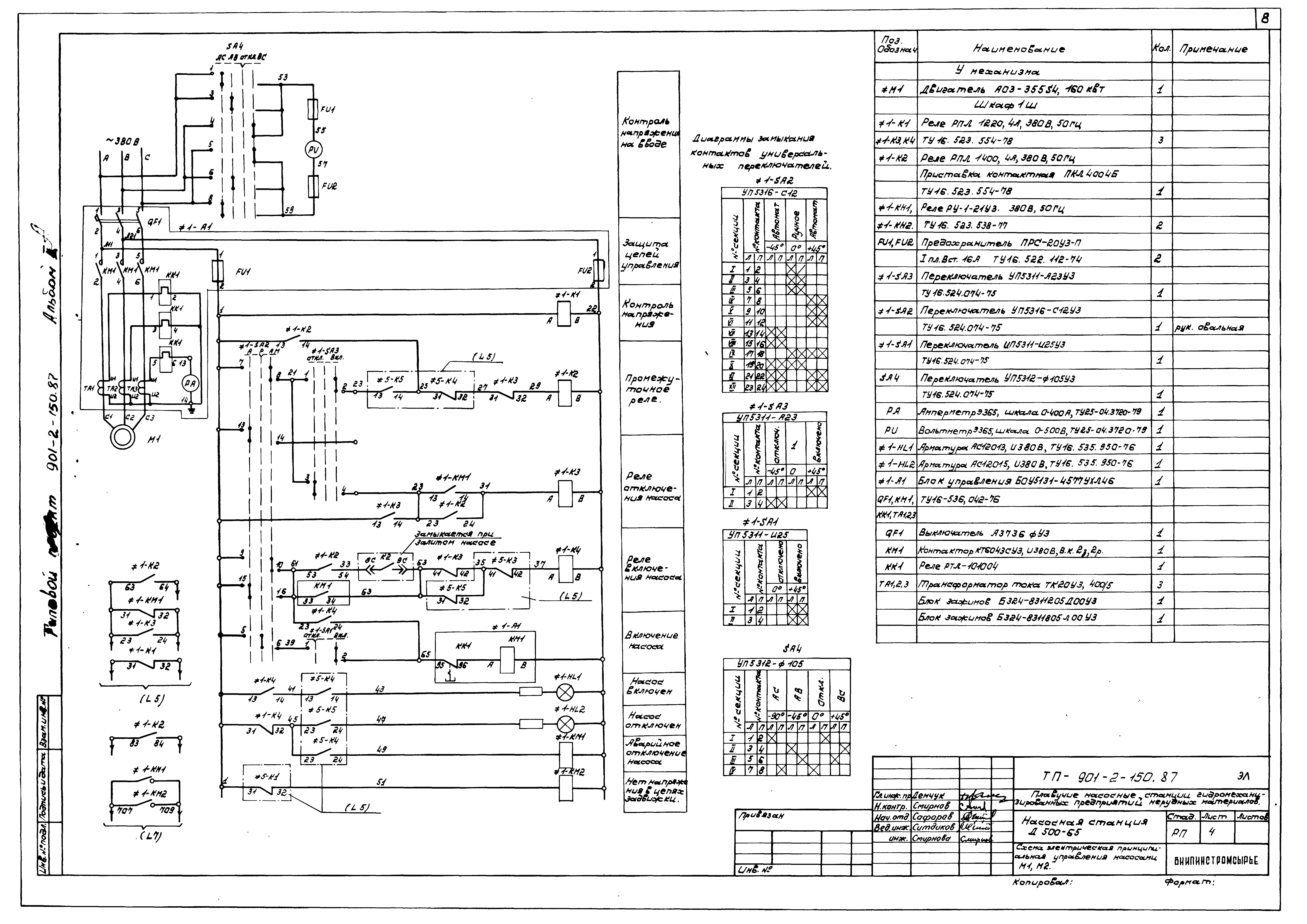
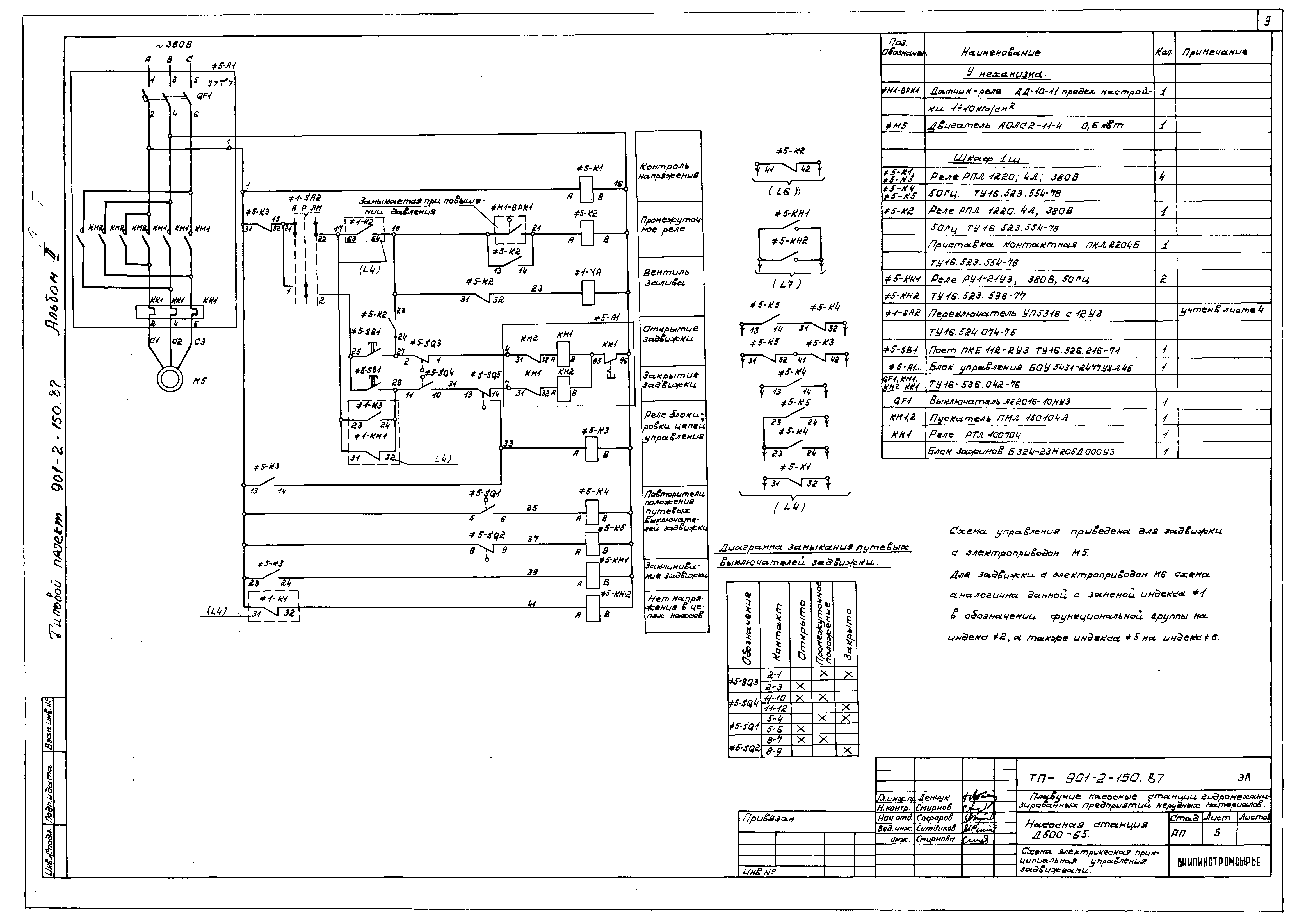
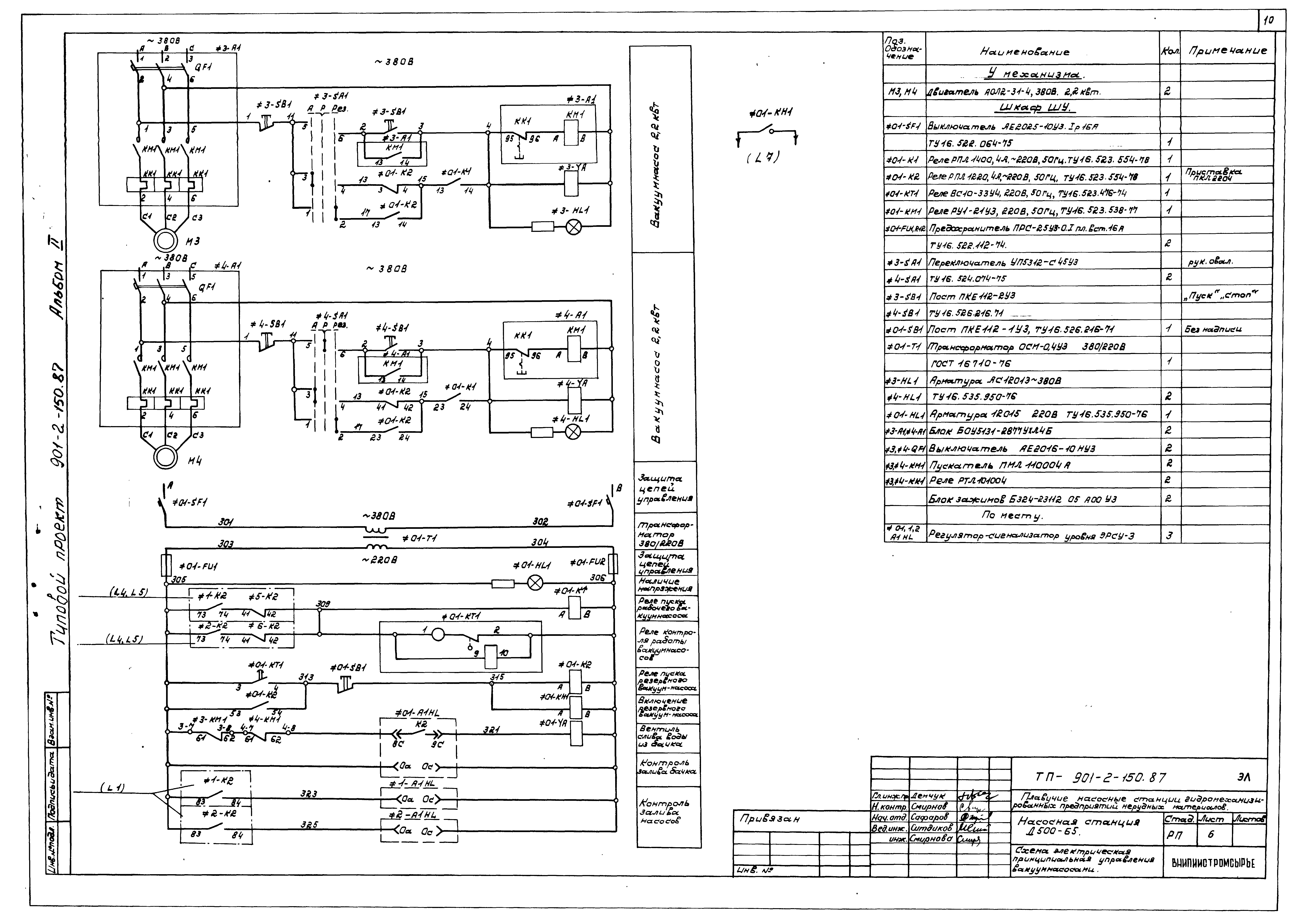
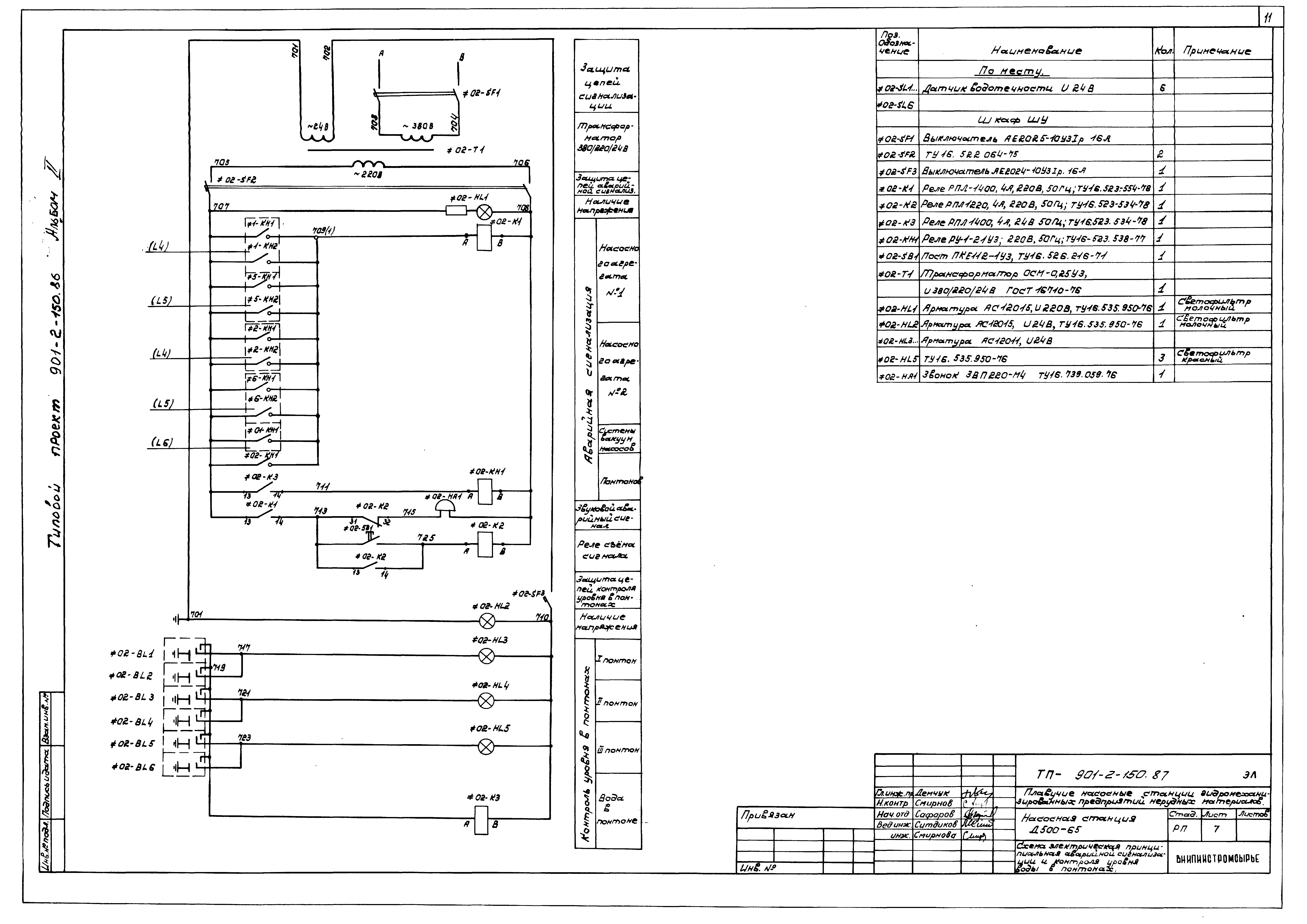
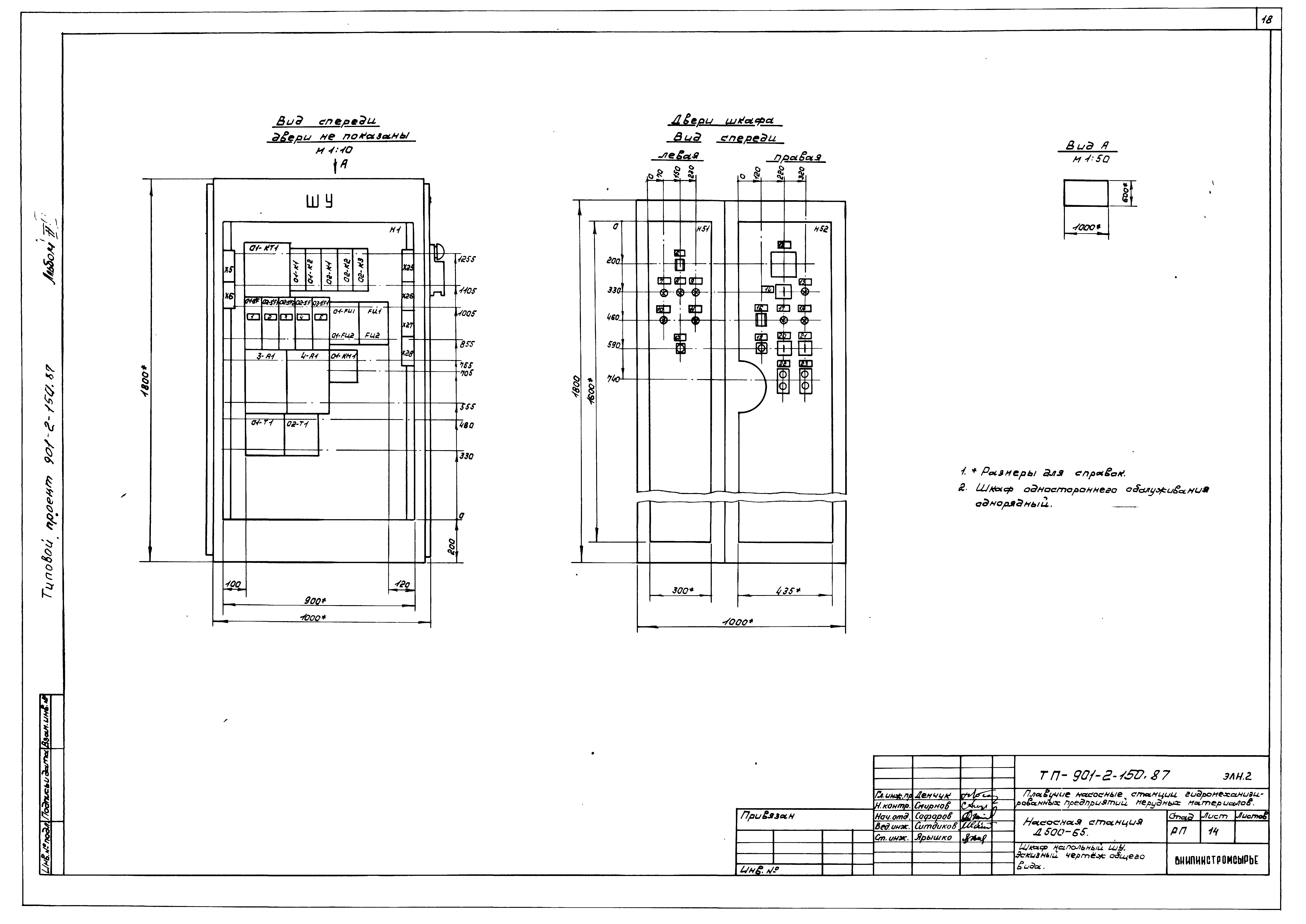
| Оглавление: | Содержание альбома Чертежи основного комплекта марки ТХ Общие данные Общемонтажный чертеж Чертежи основного комплекта марки ЭЛ Общие данные Схема функциональная Распределительная сеть 380 В. Схема электрическая принципиальная Схема электрическая принципиальная управления насосами м1, м2 Схема электрическая принципиальная управления задвижками Схема электрическая принципиальная управления вакуумнасосами Схема электрическая принципиальная аварийной сигнализации и контроль уровня воды в понтонах Электроприводы М1, М2, М5, М6. Схема электрическая подключений Электроприводы М3, М4. Схема электрическая подключений План расположения электрооборудования, прокладка кабелей и труб План сети электроосвещения Кабельный журнал Шкаф напольный 1Ш, 2Ш. Эскизный чертеж общего вида Шкаф напольный ШУ. Эскизный чертеж общего вида ТХ.СО Спецификация оборудования по рабочим чертежам основного комплекта марки ТХ ЭЛ.СО1 Спецификация оборудования по рабочим чертежам основного комплекта марки ЭЛ ЭЛ.СО2 Спецификация оборудования по рабочим чертежам основного комплекта марки ЭЛ |
| Разработан: | ВНИПИИСТРОМСЫРЬЕ |
| Утверждён: | 26.05.1986 Минстройматериалов СССР (USSR Minstroymaterialov 28-169/85) |
























