Скачать Типовой проект 901-2-150.87 Альбом III. Нестандартизированное технологическое оборудованиеДата актуализации: 01.01.2021
|
| Обозначение: | Типовой проект 901-2-150.87 |
| Обозначение англ: | 901-2-150.87 |
| Статус: | не определен законодательством |
| Название рус.: | Альбом III. Нестандартизированное технологическое оборудование |
| Дата добавления в базу: | 01.09.2013 |
| Дата актуализации: | 01.01.2021 |
| Дата введения: | 26.05.1986 |
| Дата окончания срока действия: | 30.06.2003 |
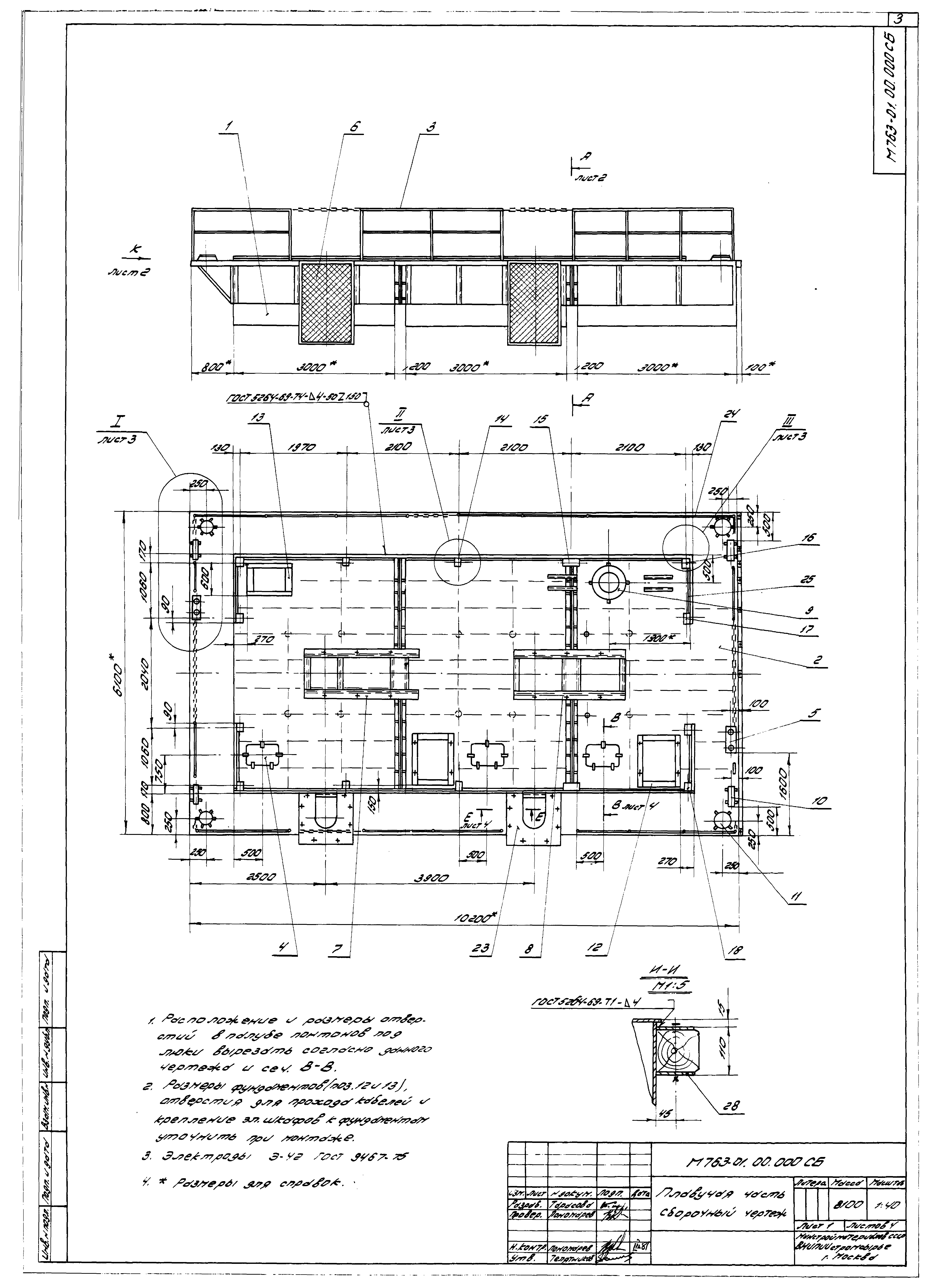
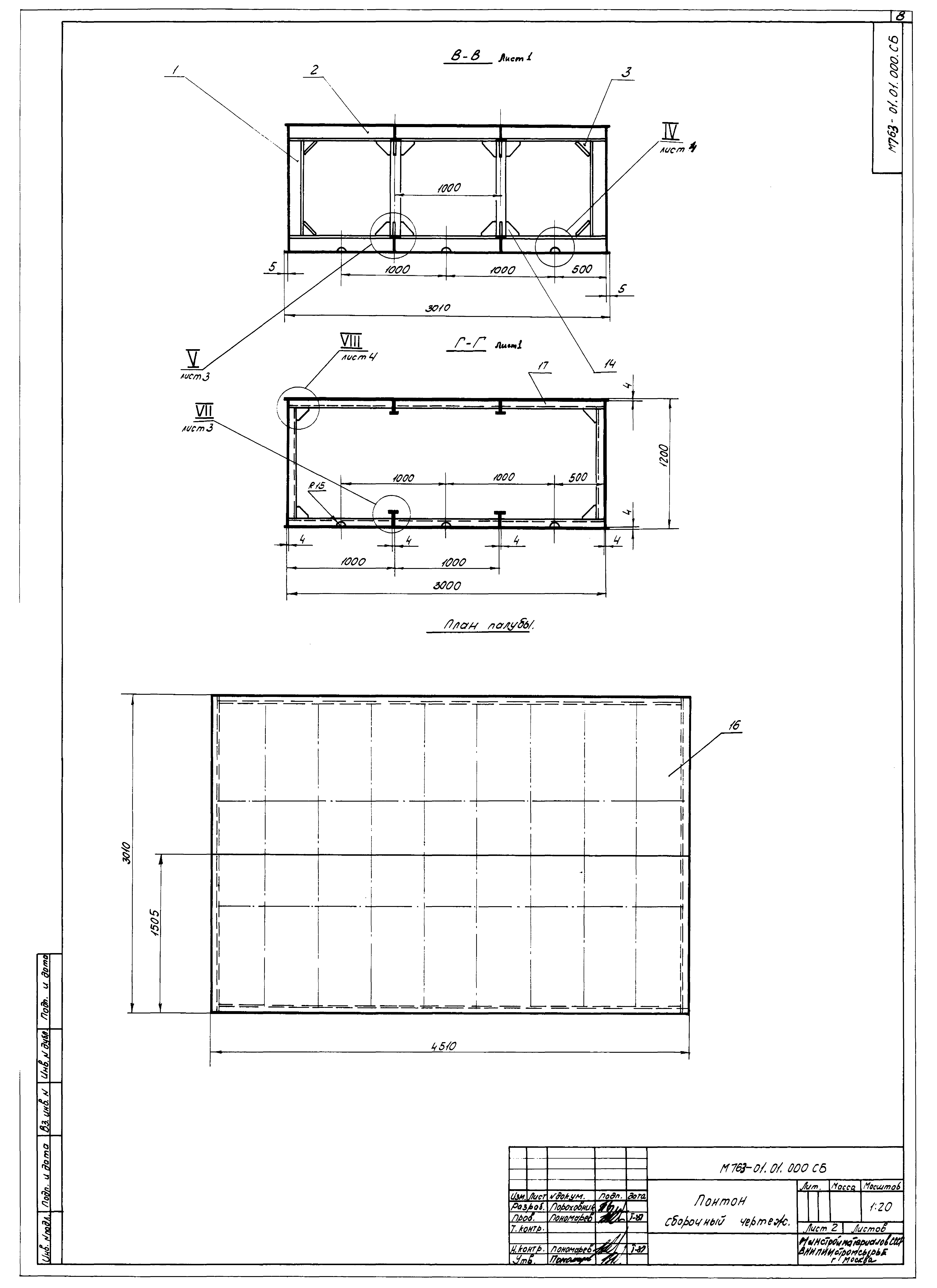
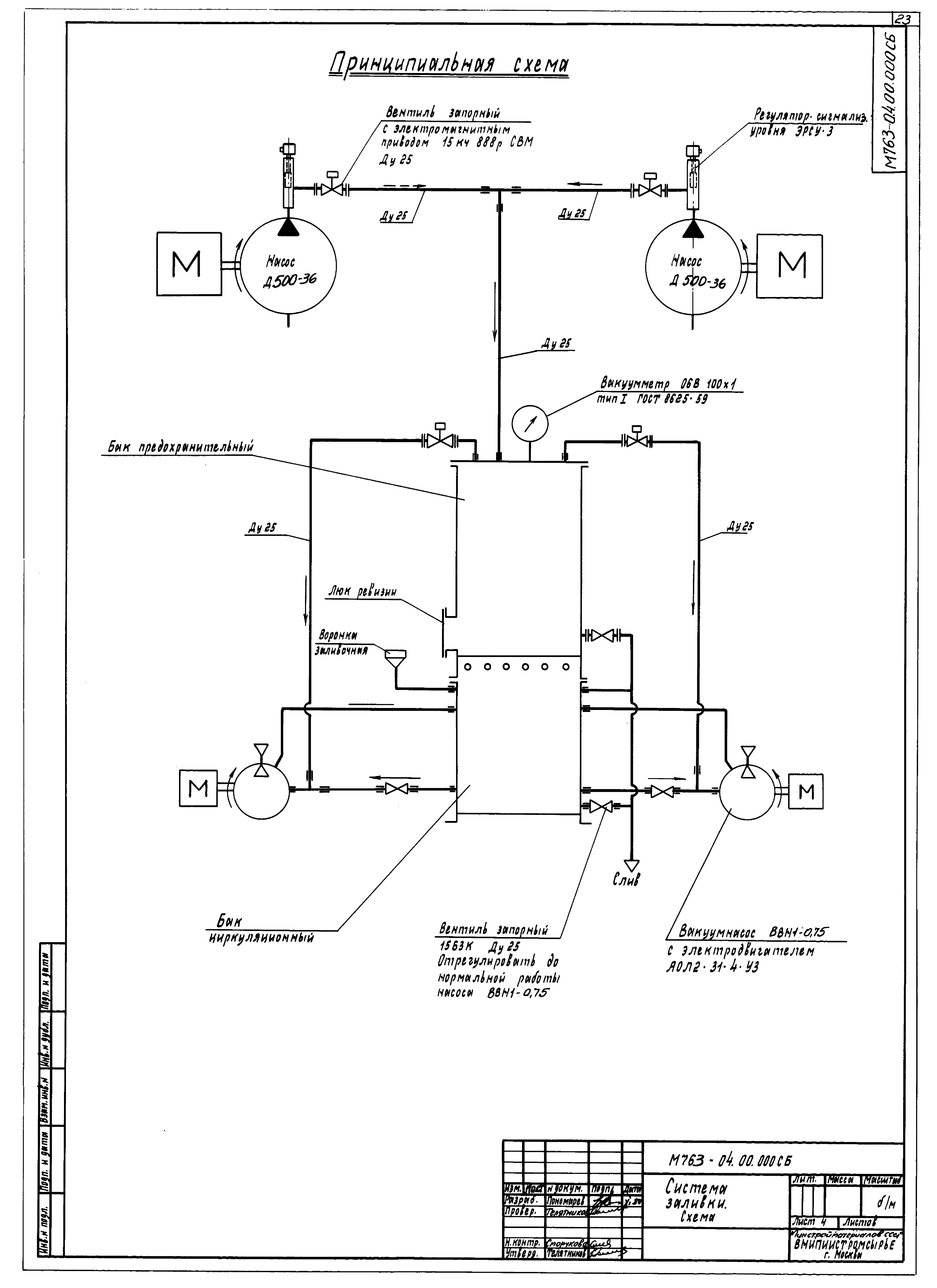
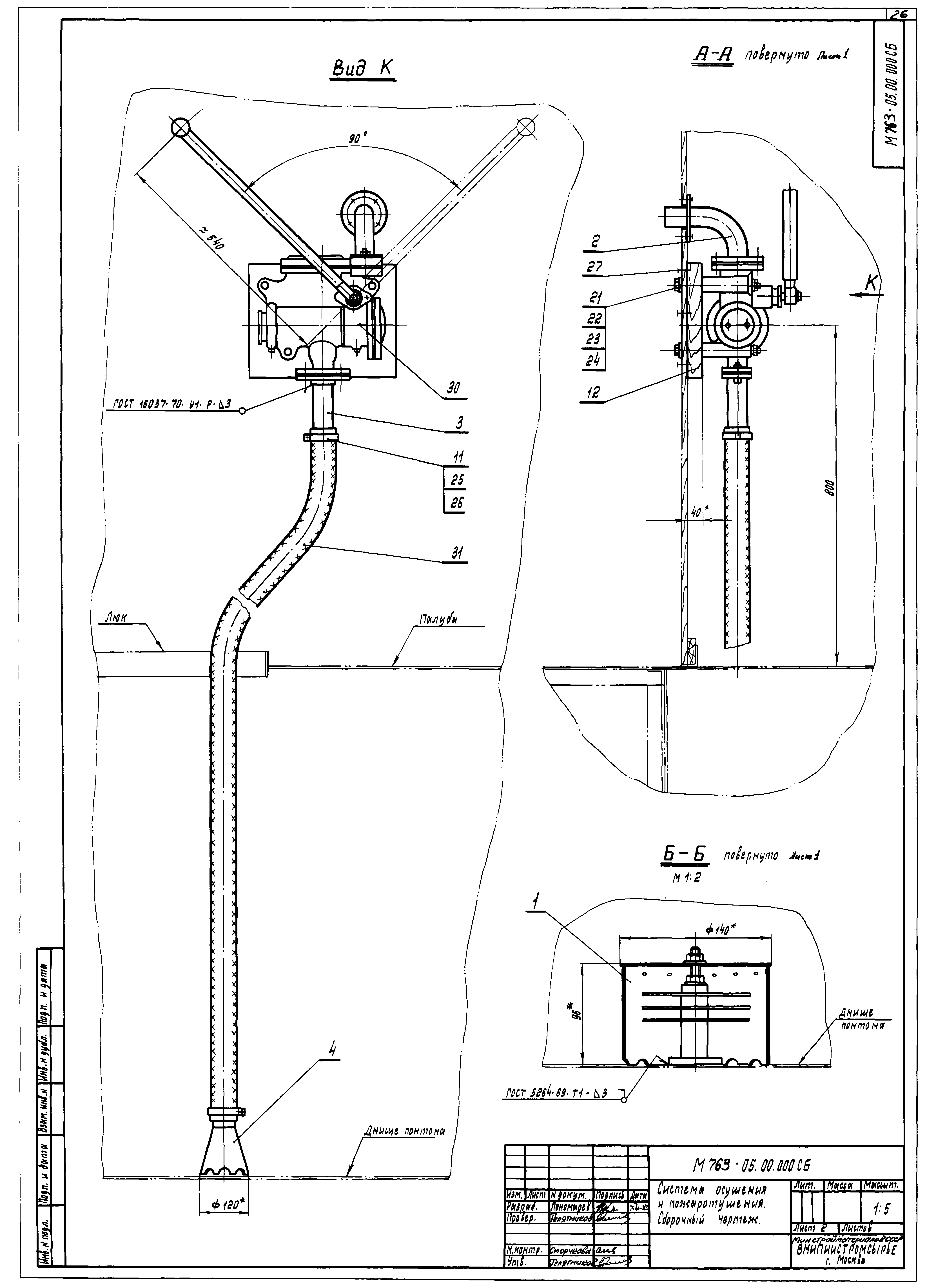
| Оглавление: | ТХН Содержание альбома III Плавучая часть М763.01.00.000СБ Сборочный чертеж М763.01.00.000 Спецификация Понтон М763.01.01.000СБ Сборочный чертеж М763.01.01.000 Спецификация Надстройка М763.02.00.000СБ Сборочный чертеж М763.02.00.000 Спецификация Каркас надстройки М763.02.01.000СБ Сборочный чертеж М763.02.01.000 Спецификация Водопровод М763.03.00.000СБ Сборочный чертеж М763.03.00.000 Спецификация Система заливки М763.04.00.000СБ Сборочный чертеж М763.04.00.000 Спецификация Система осушения и пожаротушения М763.05.00.000СБ Сборочный чертеж М763.05.00.000 Спецификация |
| Разработан: | ВНИПИИСТРОМСЫРЬЕ |
| Утверждён: | 26.05.1986 Минстройматериалов СССР (USSR Minstroymaterialov 28-169/85) |



























