Скачать Типовой проект 903-2-2/71 Альбом III. Односторонняя железнодорожная эстакада мазутослива на 2, 4 и 8 вагон-цистерн (технологическая часть)Дата актуализации: 01.01.2021
|
| Обозначение: | Типовой проект 903-2-2/71 |
| Обозначение англ: | 903-2-2/71 |
| Статус: | действует |
| Название рус.: | Альбом III. Односторонняя железнодорожная эстакада мазутослива на 2, 4 и 8 вагон-цистерн (технологическая часть) |
| Дата добавления в базу: | 01.09.2013 |
| Дата актуализации: | 01.01.2021 |
| Дата введения: | 01.09.1972 |
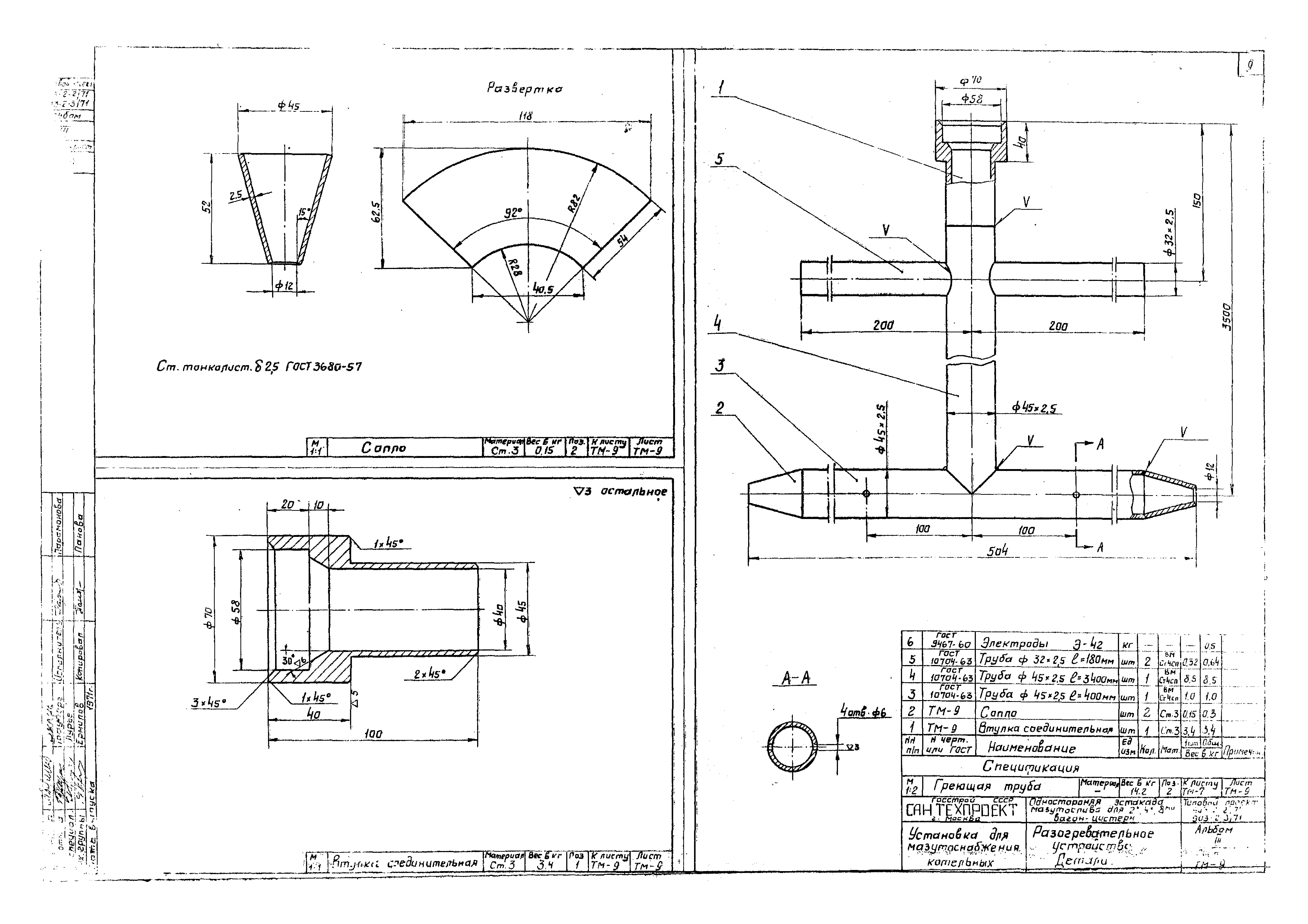
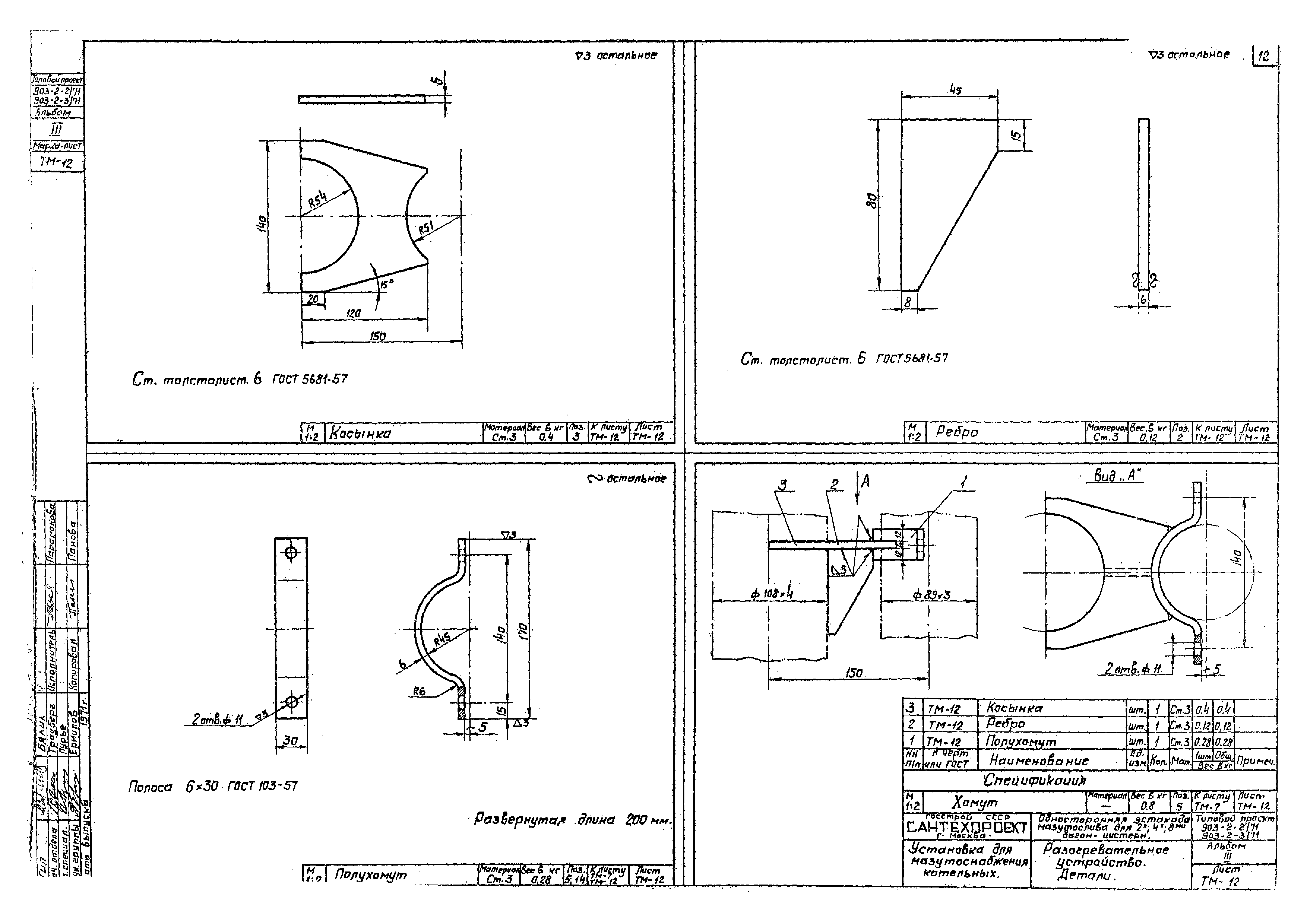
| Оглавление: | Технологическая часть Содержание альбома. Пояснительная записка Трубопроводы мазутослива и эстакады. Сводная спецификация Трубопроводы мазутослива и эстакады. Общий вид Трубопроводы мазутослива и эстакады. Разрез А-А, Б-Б, В-В, Е-Е. Узлы "М", "Н". Спецификация Трубопроводы мазутослива и эстакады. Разрезы Г-Г, Д-Д. Вид "К" Разогревательное устройство. Общий вид. Узлы I, IV Разогревательное устройство. Разрезы А-А, Б-Б. Узлы II, III. Спецификация Разогревательное устройство. Детали Рукав с наконечником. Детали Техномонтажная ведомость на изоляцию трубопроводов. Ведомость объемов работ. Спецификация на теплоизоляционные материалы |
| Разработан: | Сантехпроект Госстроя СССР |
| Утверждён: | 21.08.1972 ГПИ Сантехпроект (157) |


















