Скачать Типовой проект 903-2-2/71 Альбом VII. Мазутонасосные (строительная часть)Дата актуализации: 01.01.2021
|
| Обозначение: | Типовой проект 903-2-2/71 |
| Обозначение англ: | 903-2-2/71 |
| Статус: | действует |
| Название рус.: | Альбом VII. Мазутонасосные (строительная часть) |
| Дата добавления в базу: | 01.09.2013 |
| Дата актуализации: | 01.01.2021 |
| Дата введения: | 01.09.1972 |
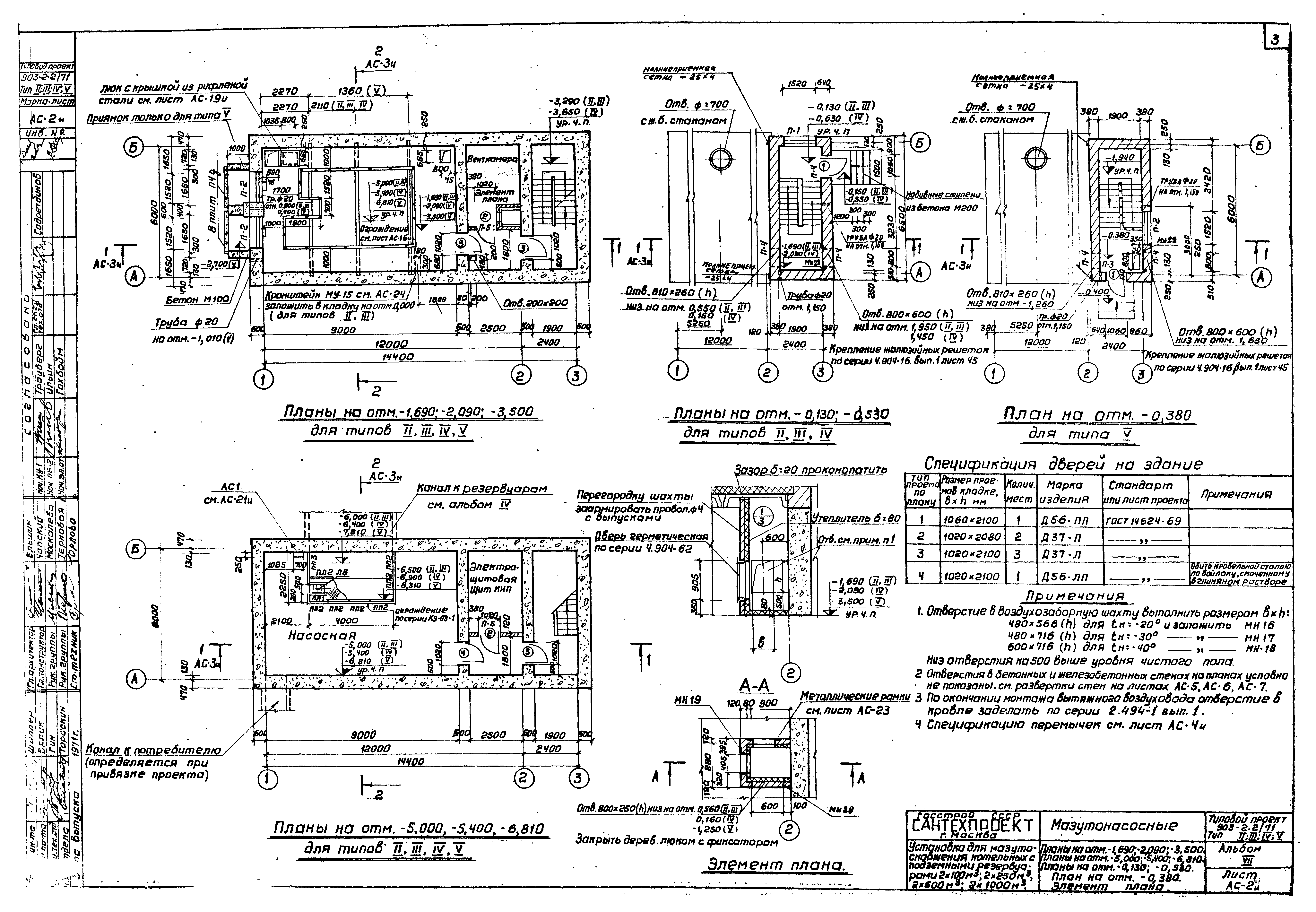
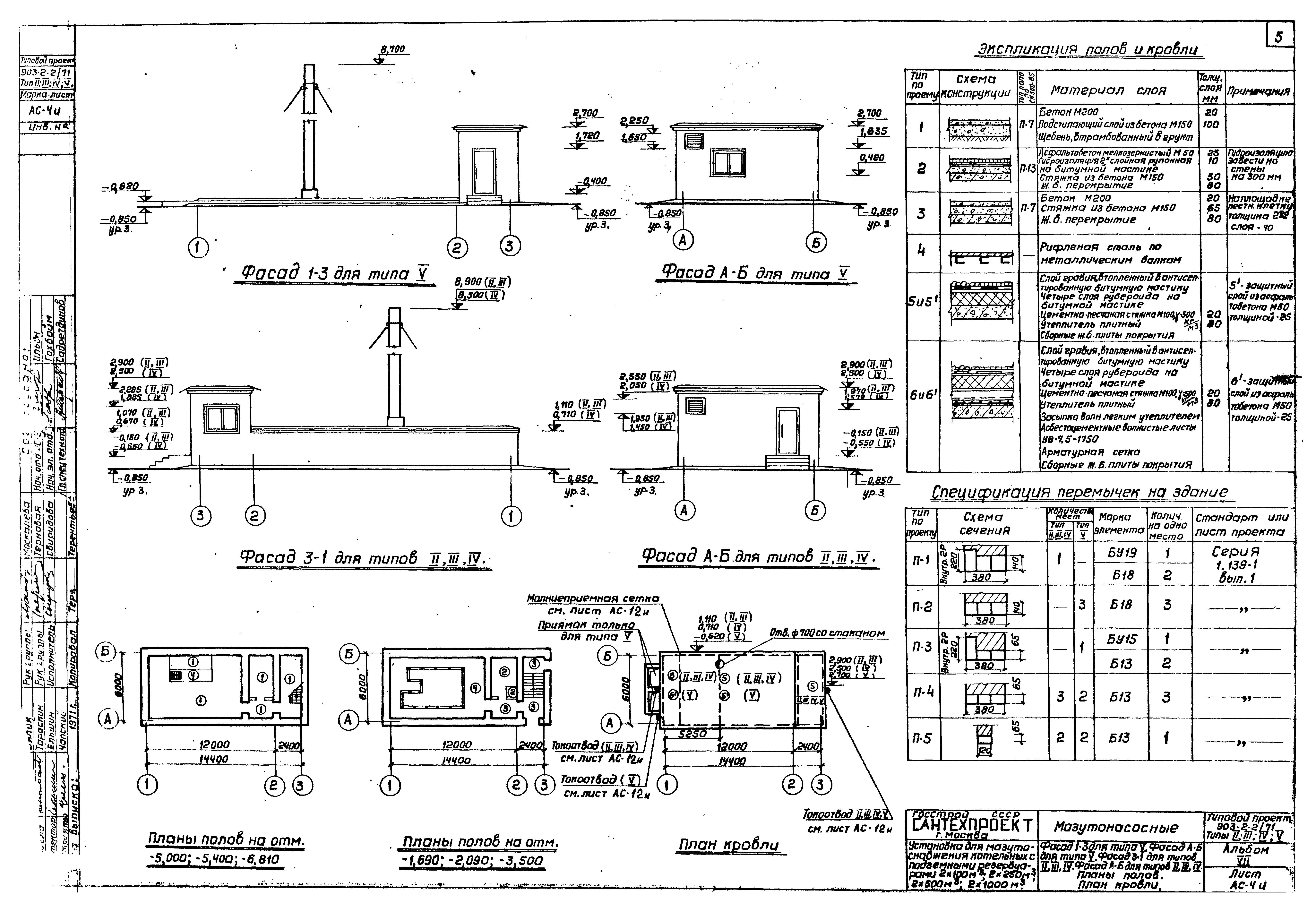
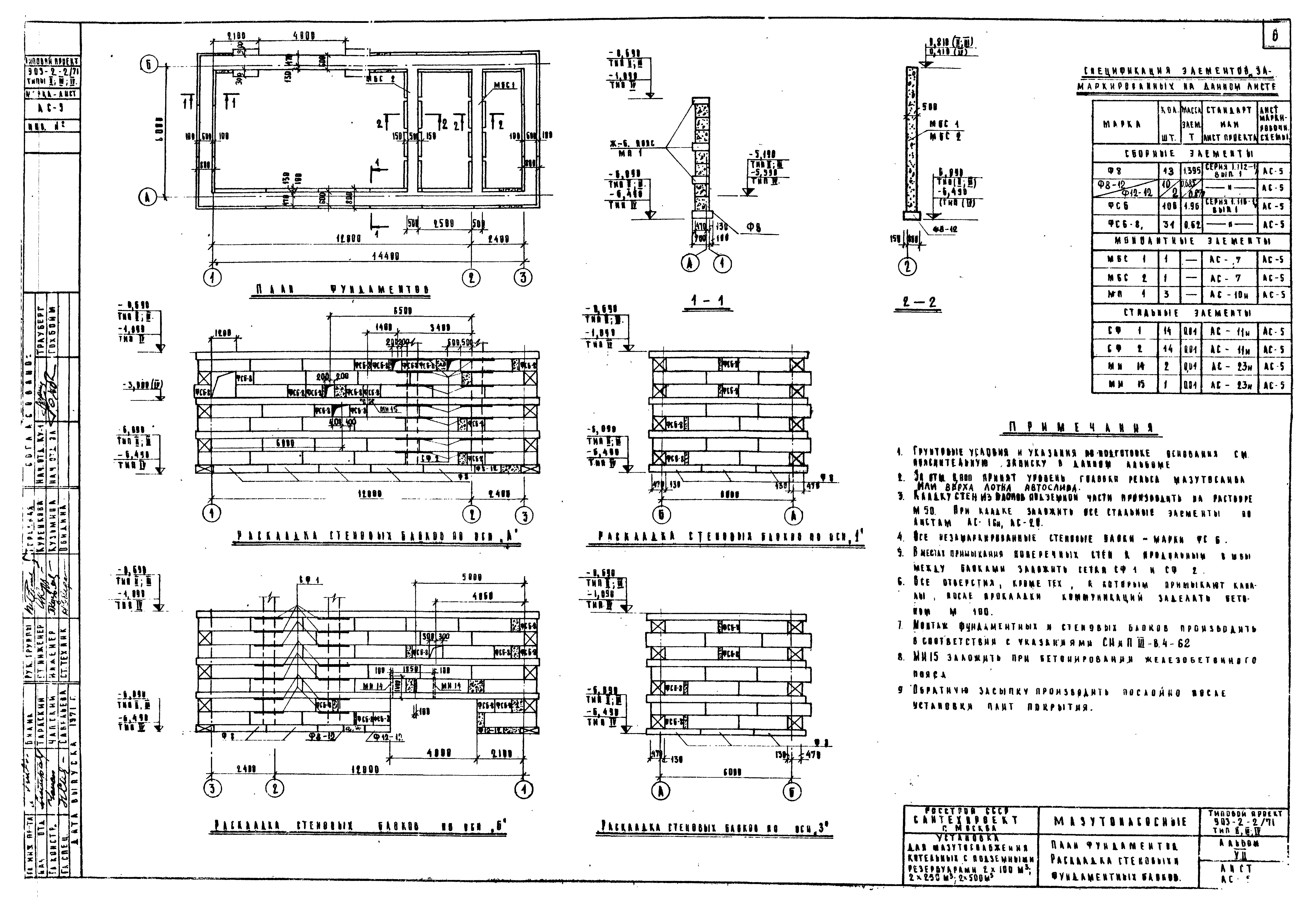
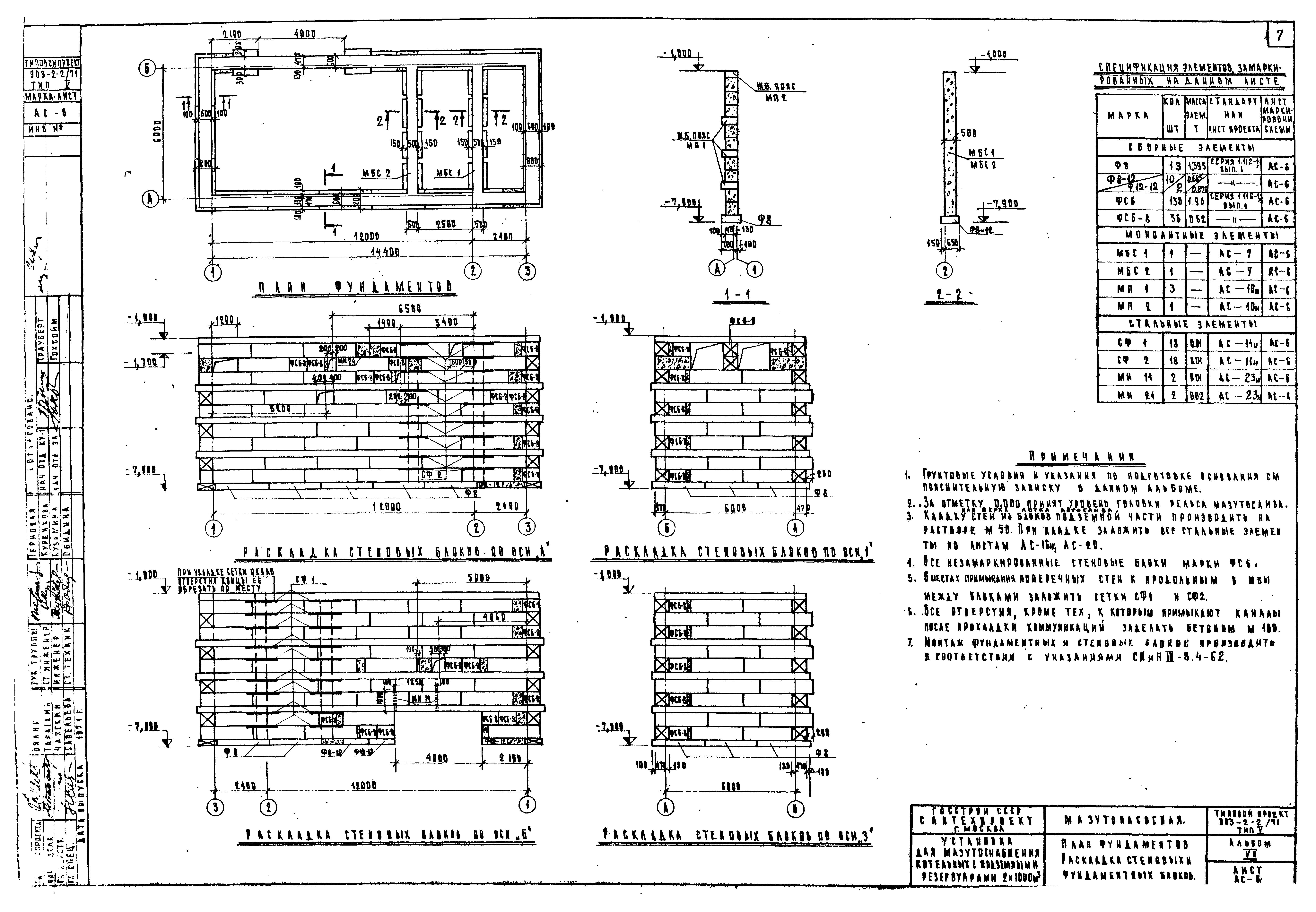
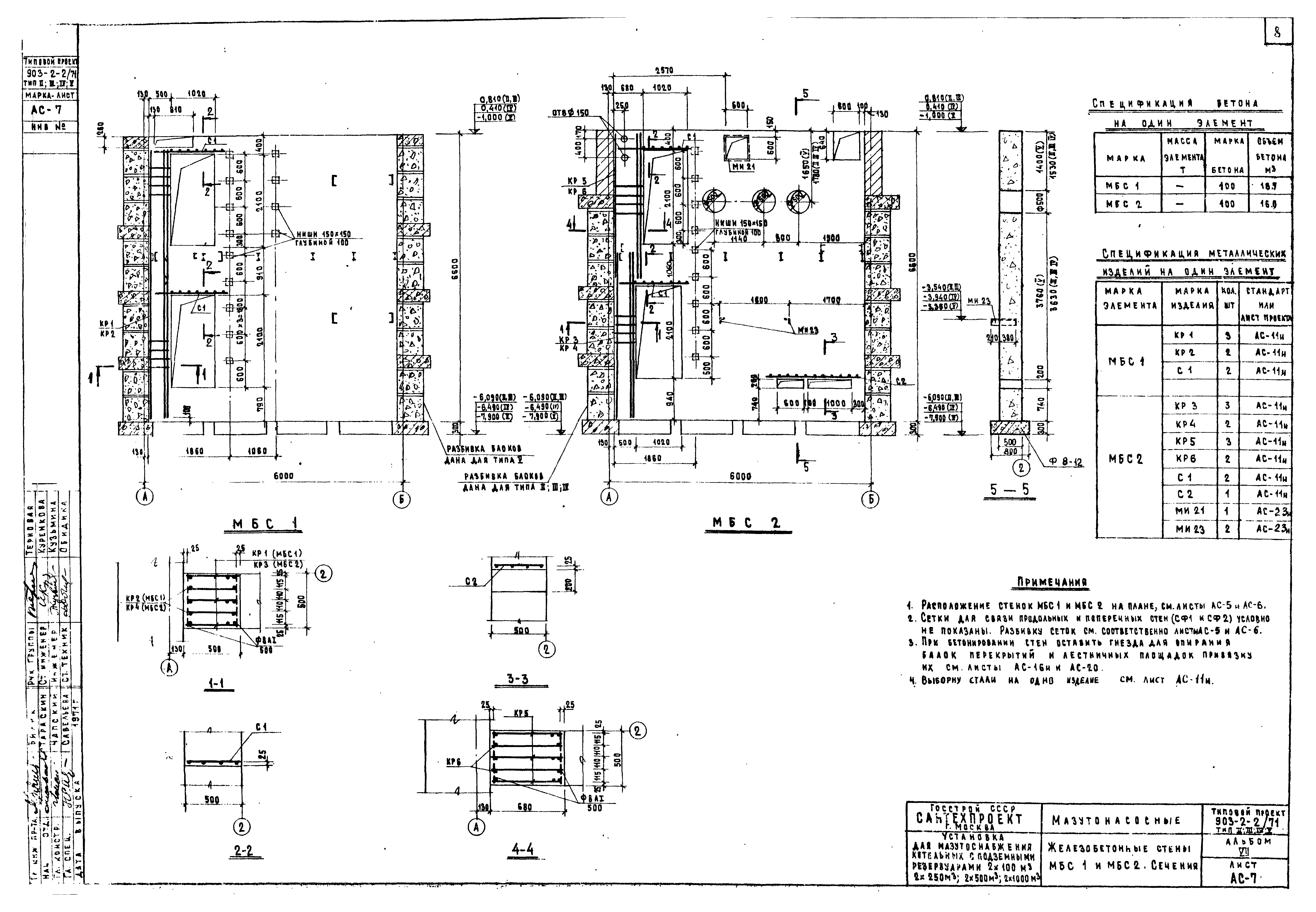
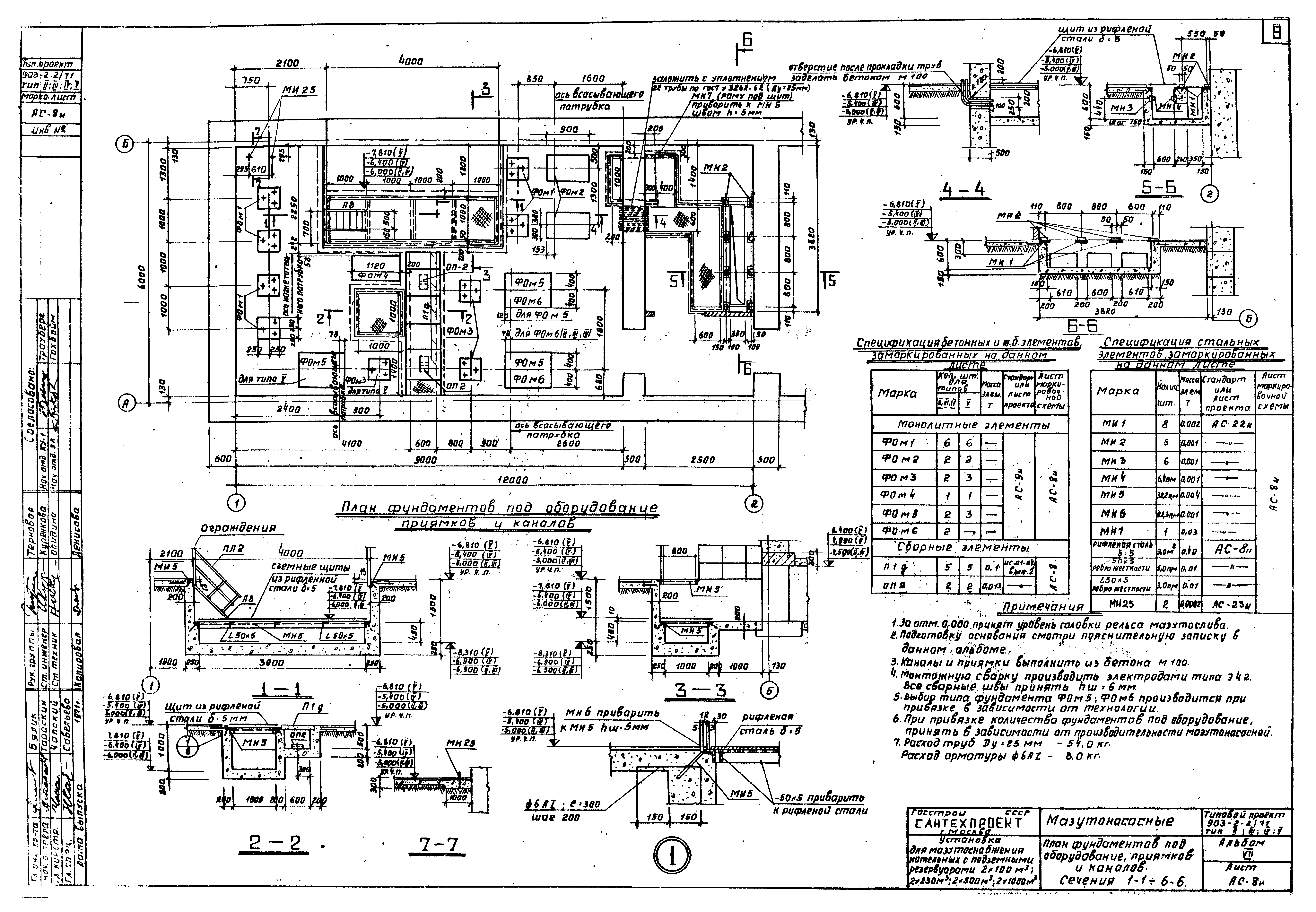
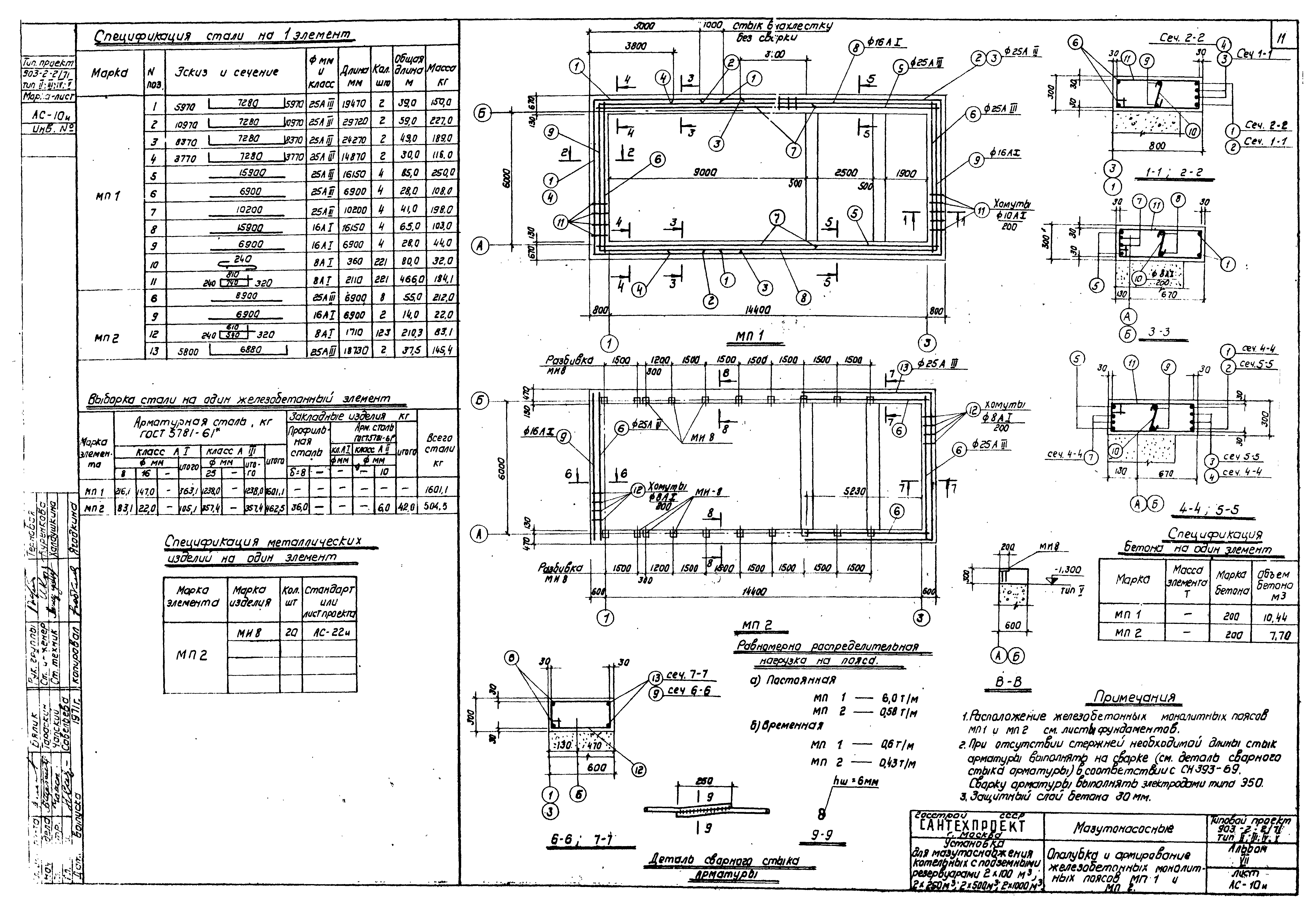
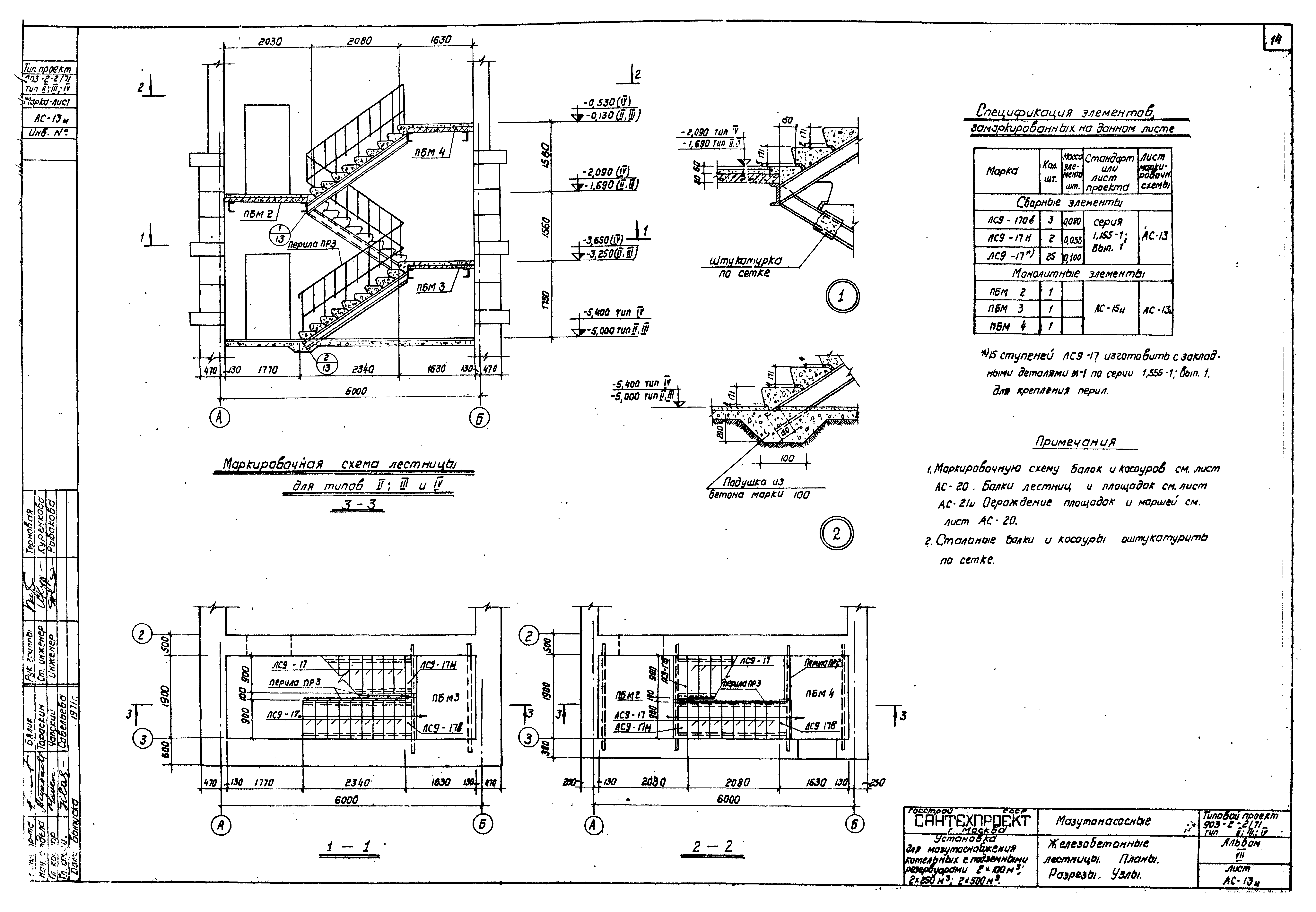
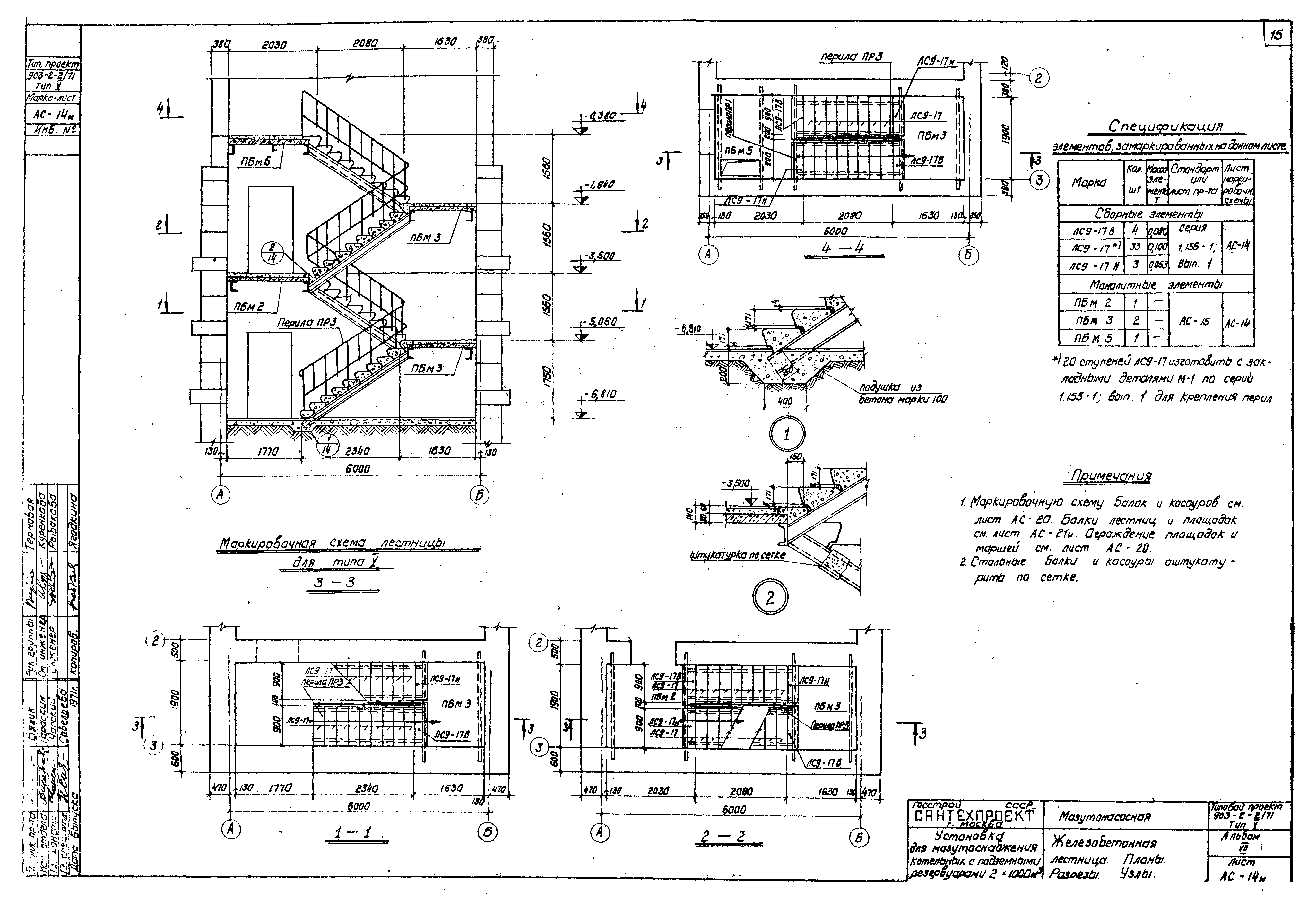
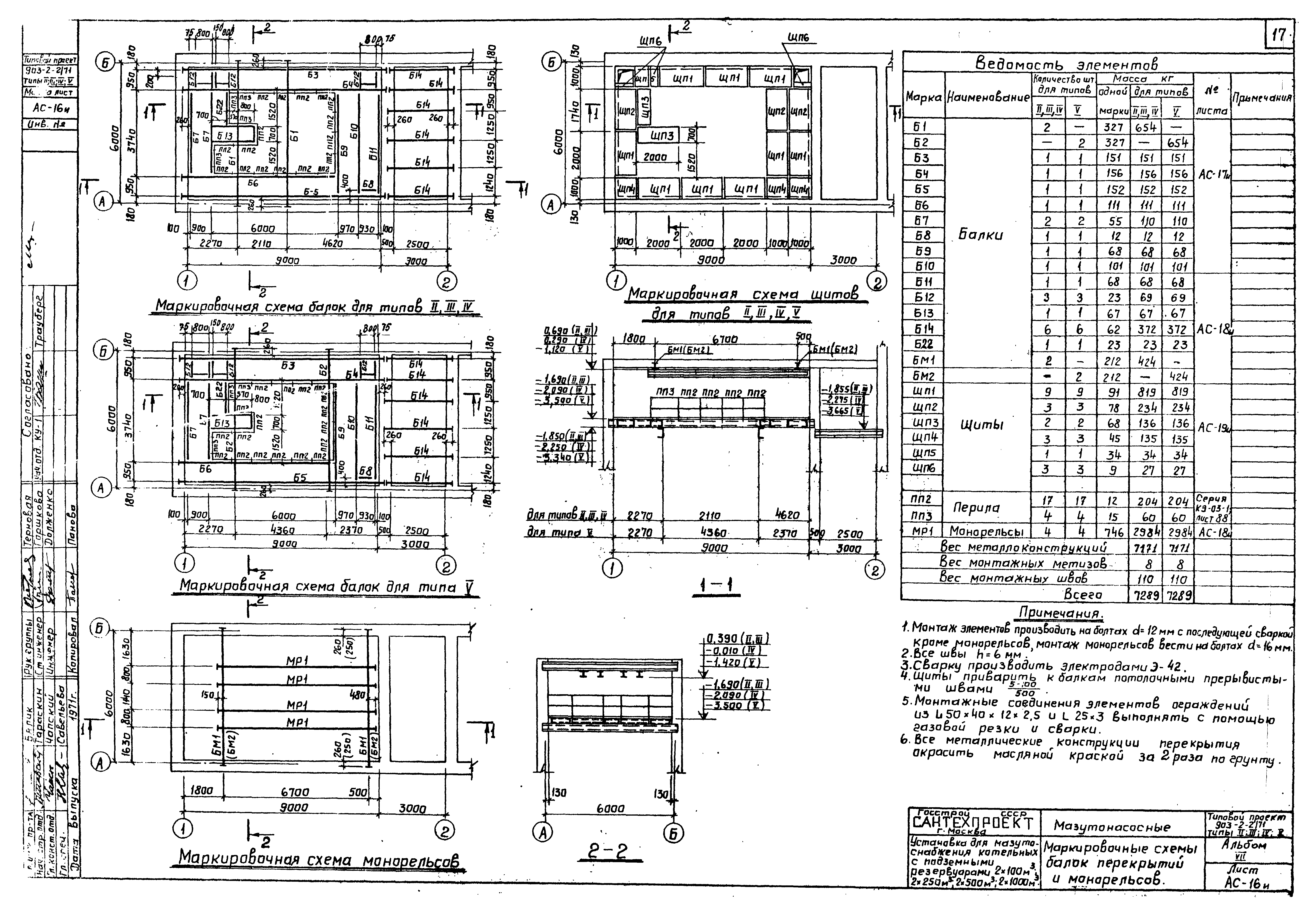
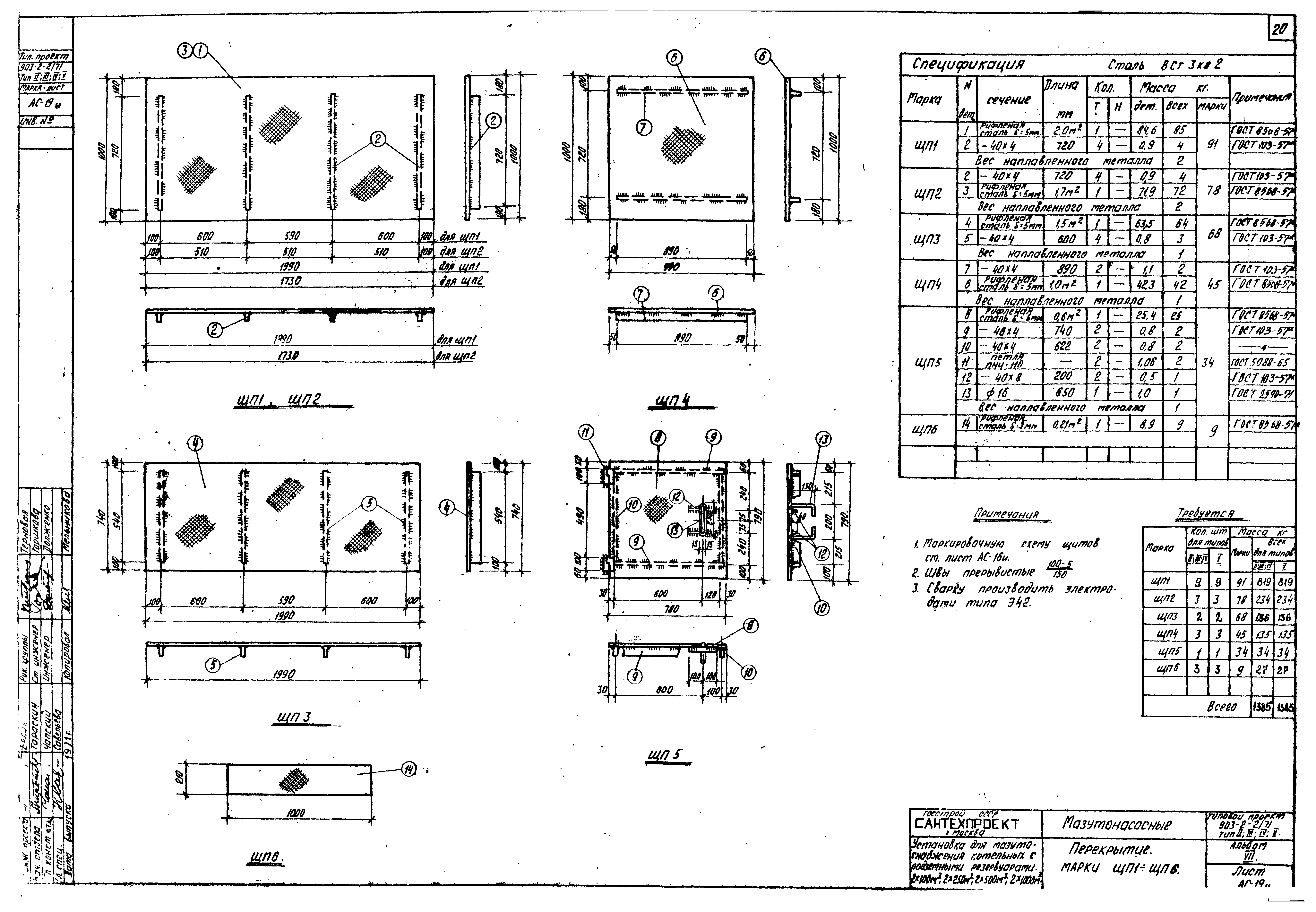
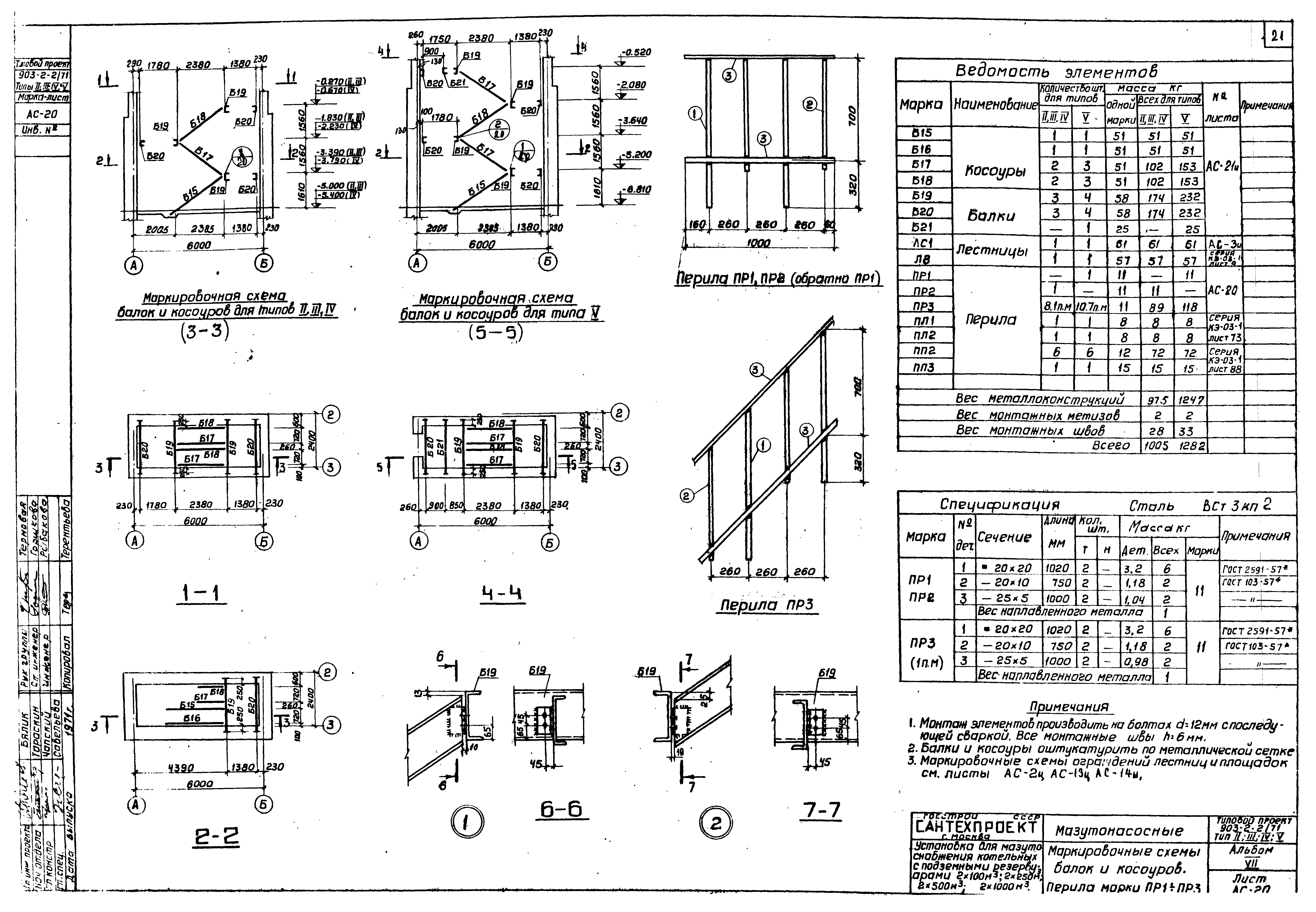
| Оглавление: | Титульный лист Содержание альбома. Пояснительная записка Заглавный лист Планы на отм. - 1.690; - 2.090; - 3.500. Планы на отм. - 5.000; - 5.400; - 6.810. Планы на отм. - 1.130; - 0.530. Планы на отм. - 0.380. Элемент плана Разрез 1-1 для типов II, III, IV. Разрез 2-2 для типов II, III, IV. Разрез 1-1 для типа V. Разрез 2-2 для типа V. Детали Фасад 1 - 3 для типа V. Фасад А - Б для типа V. Фасад 3 - 1 для типов II, III, IV. Фасад А - Б для типов II, III, IV. Планы полов. План кровли План фундаментов. Раскладка стеновых и фундаментных блоков Железобетонные стены МБС1 и МБС2. Сечения План фундаментов под оборудование, приямков и каналов. Сечения 1-1 - 6-6 Фундаменты под оборудование ФОм1 - ФОм7 Опалубка и армирование железобетонных монолитных поясов МП1 и МП2 Каркасы КР1 - КР6. Сетки С1, С2, СФ1, СФ2 Маркировочные планы плит покрытия, трубы и расчалок вытяжного воздуховода, молниеприемной сетки. Узлы Железобетонные лестницы. Планы. Разрезы. Узлы Армирование площадок ПБм1 - ПБм5 Маркировочные схемы балок перекрытий и монорельсов Перекрытие и монорельсы марки Б1 - Б10; Б22 Перекрытие и монорельсы марки Б11 - Б14; БМ1; БМ2; МР1 Перекрытие. Марки ЩП1 - ЩП6 Маркировочные схемы балок и косоуров. Перила марки ПР1 - ПР3 Лестницы и площадки. Марки Б15 - Б21; ЛС1 Закладные изделия МИ1 - МИ10 Закладные изделия МИ14 - МИ25 |
| Разработан: | Сантехпроект Госстроя СССР |
| Утверждён: | 21.08.1972 ГПИ Сантехпроект (157) |

























