Скачать Типовые проектные решения 501-0-54 Выпуск 1. Лаборатория. Пояснительная записка и чертежи (технологическая часть)Дата актуализации: 01.01.2021
|
| Обозначение: | Типовые проектные решения 501-0-54 |
| Обозначение англ: | 501-0-54 |
| Статус: | справочные материалы, мп, тпр |
| Название рус.: | Выпуск 1. Лаборатория. Пояснительная записка и чертежи (технологическая часть) |
| Дата добавления в базу: | 01.09.2013 |
| Дата актуализации: | 01.01.2021 |
| Дата окончания срока действия: | 15.01.1975 |
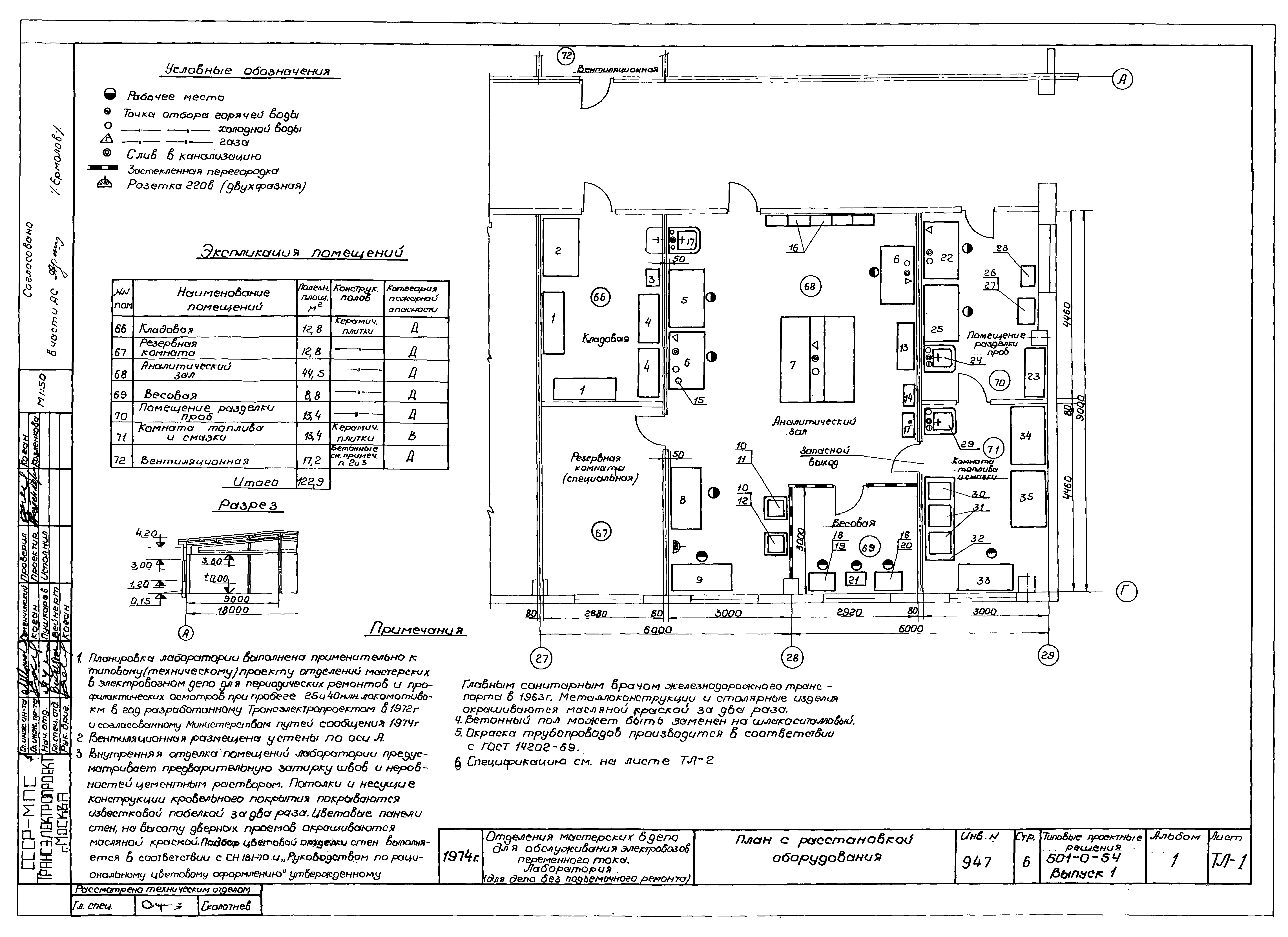
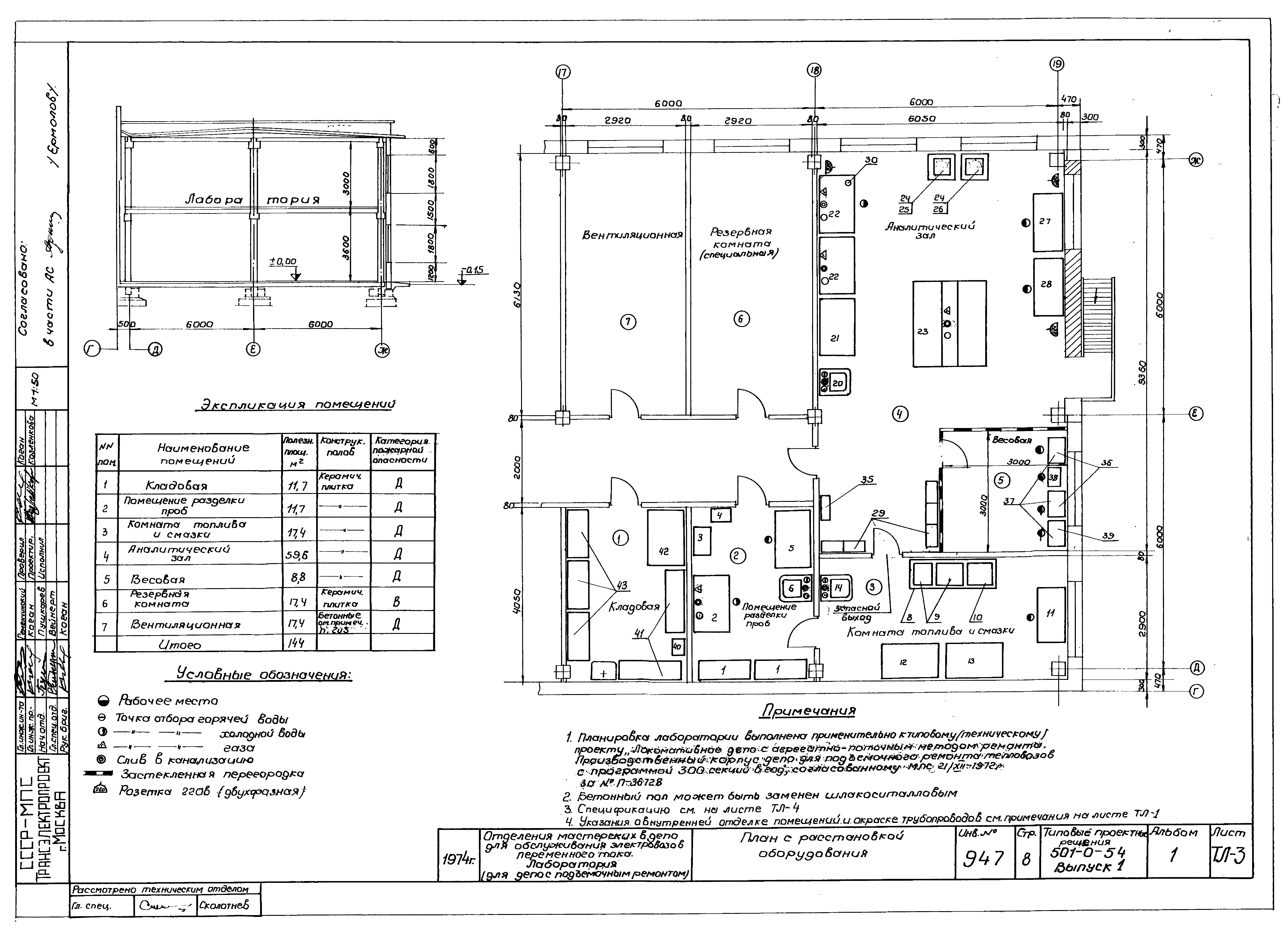
| Оглавление: | Титульный лист Заглавный лист Пояснительная записка План с расстановкой оборудования (для депо без подъемочного ремонта) Спецификация План с расстановкой оборудования (для депо с подъемочным ремонтом) Спецификация Заказная спецификация на технологическое оборудование Заказная спецификация на нестандартизированное оборудование Приложение №1 Приложение №2 |
| Разработан: | Трансэлектропроект МПС |
| Утверждён: | 29.11.1974 Министерство путей сообщения СССР (USSR Ministry of Railroads П-34592) |












