Скачать Типовой проект 501-5-97.87 Альбом II. Архитектурные решения. Конструкции железобетонныеДата актуализации: 01.01.2021
|
| Обозначение: | Типовой проект 501-5-97.87 |
| Обозначение англ: | 501-5-97.87 |
| Статус: | не определен законодательством |
| Название рус.: | Альбом II. Архитектурные решения. Конструкции железобетонные |
| Дата добавления в базу: | 01.09.2013 |
| Дата актуализации: | 01.01.2021 |
| Дата введения: | 10.11.1987 |
| Дата окончания срока действия: | 30.06.2003 |
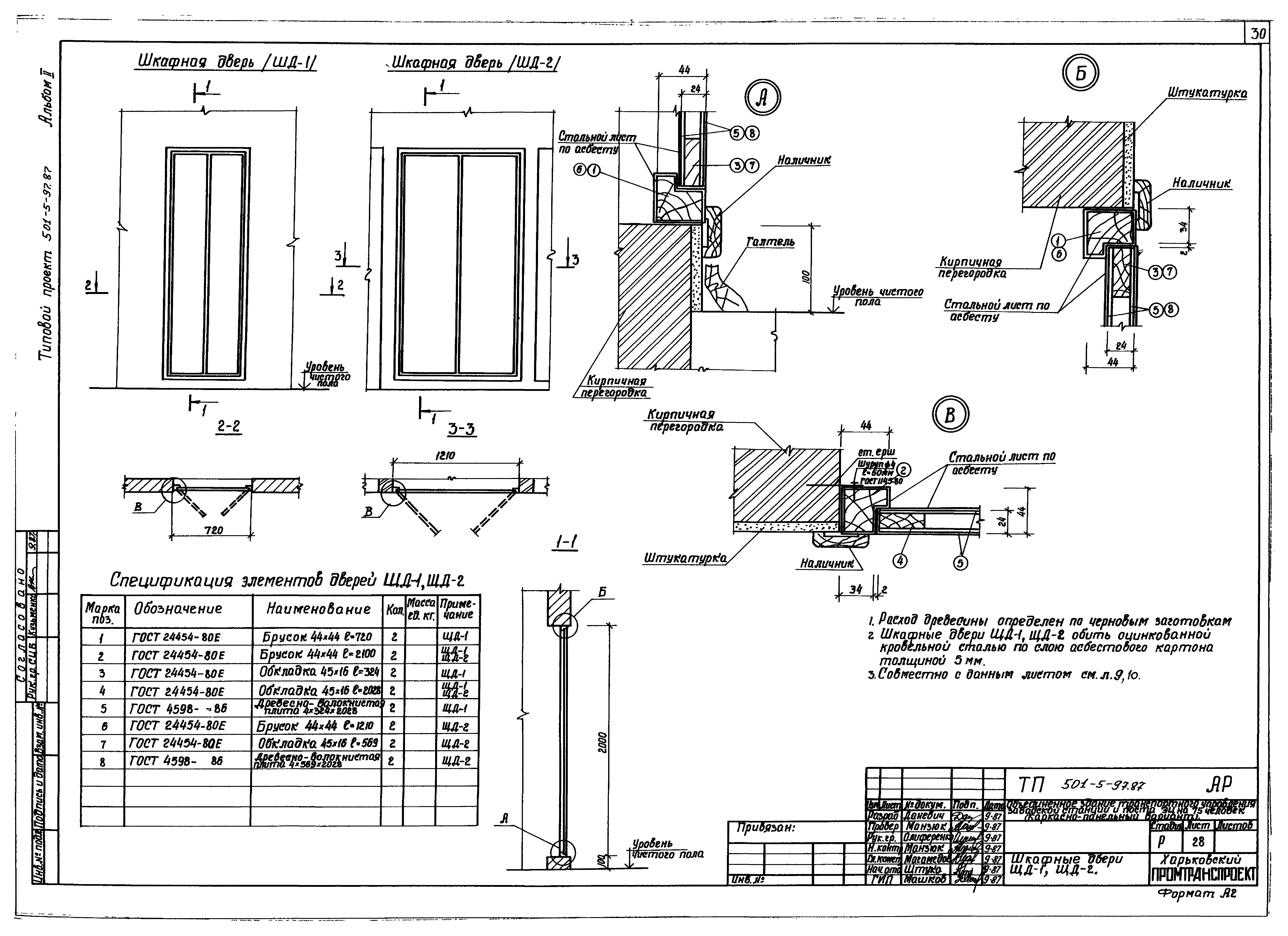
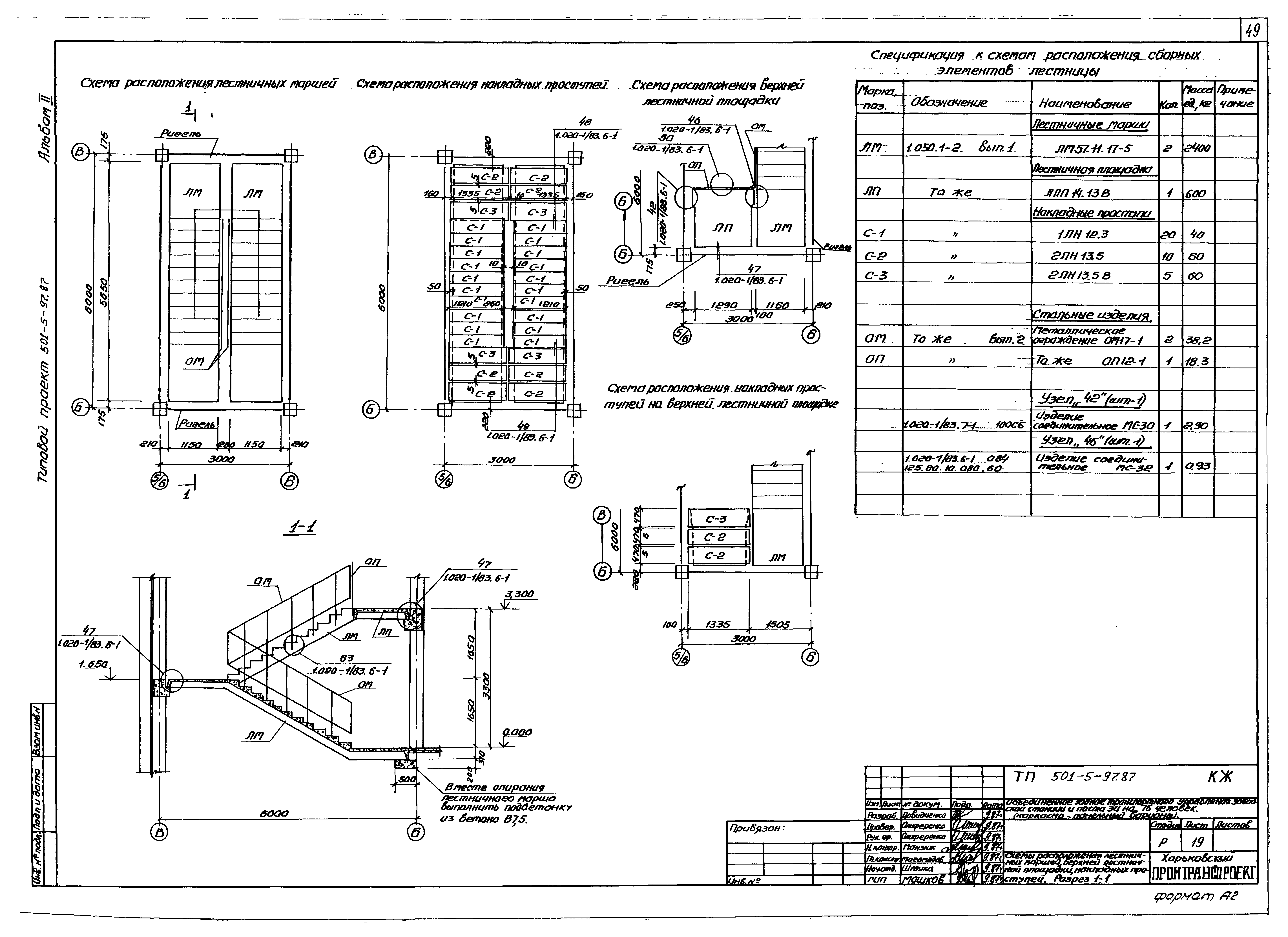
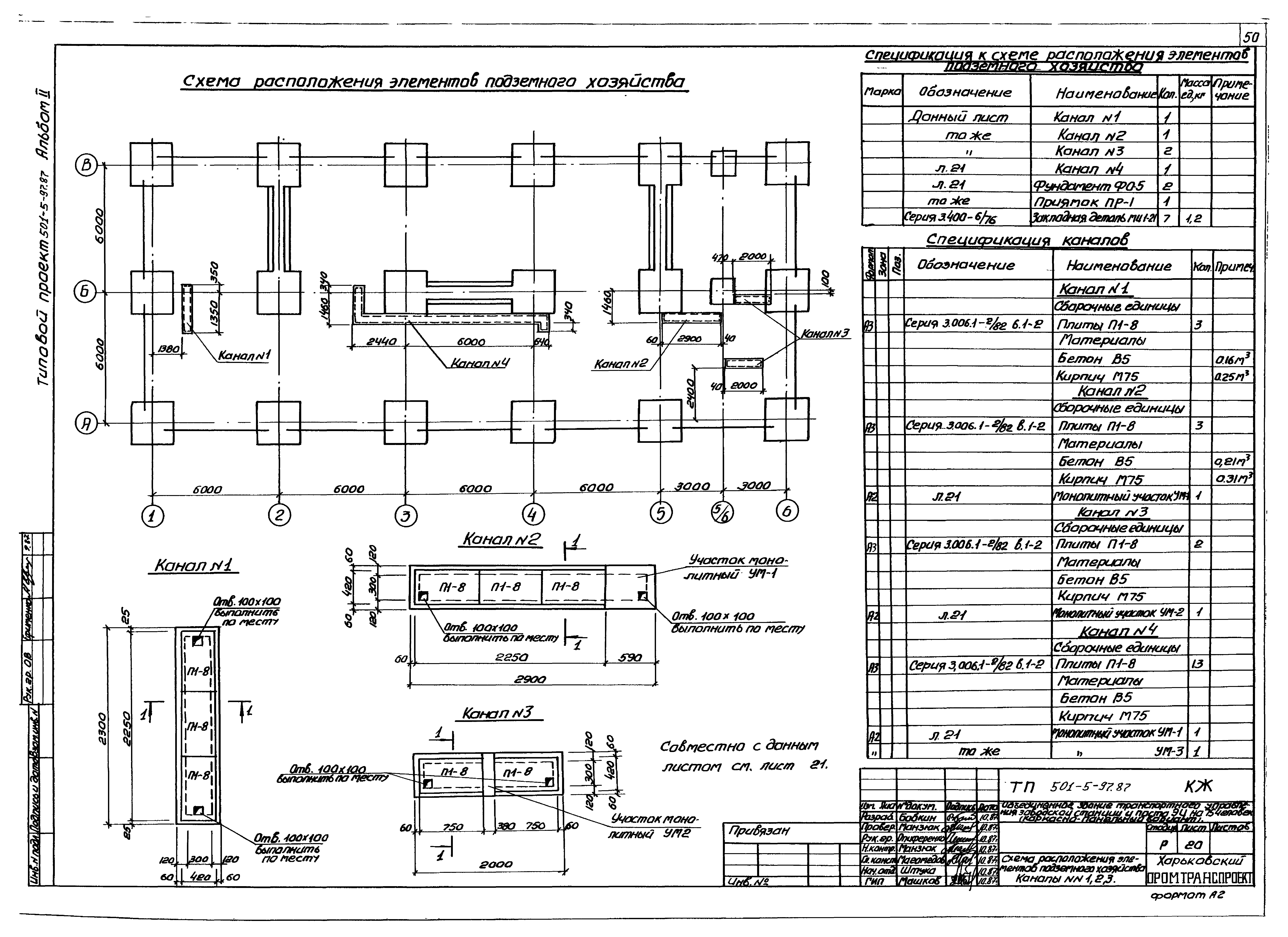
| Оглавление: | Обложка Титульный лист Содержание альбома Чертежи основного комплекта марки АР Общие данные План на отм. 0.000. Фрагменты 1, 2 План на отм. 3.300. Фрагмент 3 Разрезы 1-1 - 3-3 Фасады 1 - 6, 6 - 1, А - В, В - А Фрагменты 4 - 7 Фрагменты 8, 9. Ящик пожарного крана Разрез 5 - 5. Сечения 1-1 - 3-3. Узлы А, 1 Планы полов на отм. 0.000; 3.300. Экспликация полов Планы отверстий и перемычек 1 и 2 этажей План кровли. Сечения 1-1 - 3-3. Деталь Планы подвесных потолков 1, 2 этажей. Раздаточное окно буфета ОК-6. Узлы 1, 2, 3 Фрагмент плана на отм. 0.000 с разводкой труб. Съемные щиты Щ1 - Щ5, Щ12. Схема расположения опор под узел ввода в тепловом пункте План пола аппаратной. Сечение 1-1 План кабельного подполья аппаратной. Сечения 1-1, 2-2, 3-3. Узлы 1, 2, 3 План пола кроссовой. Съемные щиты Щ6 - Щ11. Короба К-1, К-2 Венткамера СМ-1. План на отм. 0.000. Разрезы 1-1 - 3-3. Виды "А" и "Б". Узел I Венткамера СМ-2. План на отм. 3.300. Разрез 1-1, 2-2. Фундамент ФО-1 Схемы расположения лестницы. Разрезы 1-1, 2-2 Схема заполнения оконных проемов ОК-1 - ОК-5 Шкафные двери ЩД-1, ЩД-2 Чертежи основного комплекта марки КЖ Общие данные Схема расположения элементов фундаментов Таблица нагрузок на фундаменты Ф-1, Ф-2. Расчетные схемы фундаментов Фундаменты. Фрагмент плана 1. Сечения Фундаменты. Фрагменты плана 2, 3. Сечения Фундамент ФМ-1. Сечения. Узел "А" Свайное основание. Схема расположения ростверков, фундаментных и цокольных балок Свайное основание. Схема расположения свай Свайное основание. Монолитные ростверки СМР-1, СМР-2. Сечения Схема расположения элементов каркаса на отм. 3.200; 6.500. Разрезы 1-1 - 3-3 Разрезы 4-4 - 8-8. Узел крепления перемычки к колонне Схемы расположения плит перекрытия на отм. 3.200 и плит покрытия на отм. 6.500 Монолитный участок МУ-1. Фундаменты Ф-1 - Ф-4 Схемы расположения стеновых панелей Спецификация к схемам расположения стеновых панелей (вариант из легкого бетона) Спецификация к схемам расположения стеновых панелей (вариант из ячеистого бетона) Схемы расположения лестничных маршей, верхней лестничной площадки, накладных проступей. Разрез 1-1 Схемы расположения элементов подземного хозяйства. Каналы №№1, 2, 3 План теплового пункта. Канал №4. Сечения 1-1 - 4-4 План подземного хозяйства кроссовой. Сечения 1-1 - 6-6 |
| Разработан: | Харьковский Промтранспроект |
| Утверждён: | 10.11.1987 Госстрой СССР (Государственный комитет Совета Министров СССР по делам строительства) (USSR Gosstroy 85) |




















































