Скачать Типовой проект 501-5-97.87 Альбом IV. Внутренний водопровод и канализация. Отопление и вентиляцияДата актуализации: 01.01.2021
|
| Обозначение: | Типовой проект 501-5-97.87 |
| Обозначение англ: | 501-5-97.87 |
| Статус: | не определен законодательством |
| Название рус.: | Альбом IV. Внутренний водопровод и канализация. Отопление и вентиляция |
| Дата добавления в базу: | 01.09.2013 |
| Дата актуализации: | 01.01.2021 |
| Дата введения: | 10.11.1987 |
| Дата окончания срока действия: | 30.06.2003 |
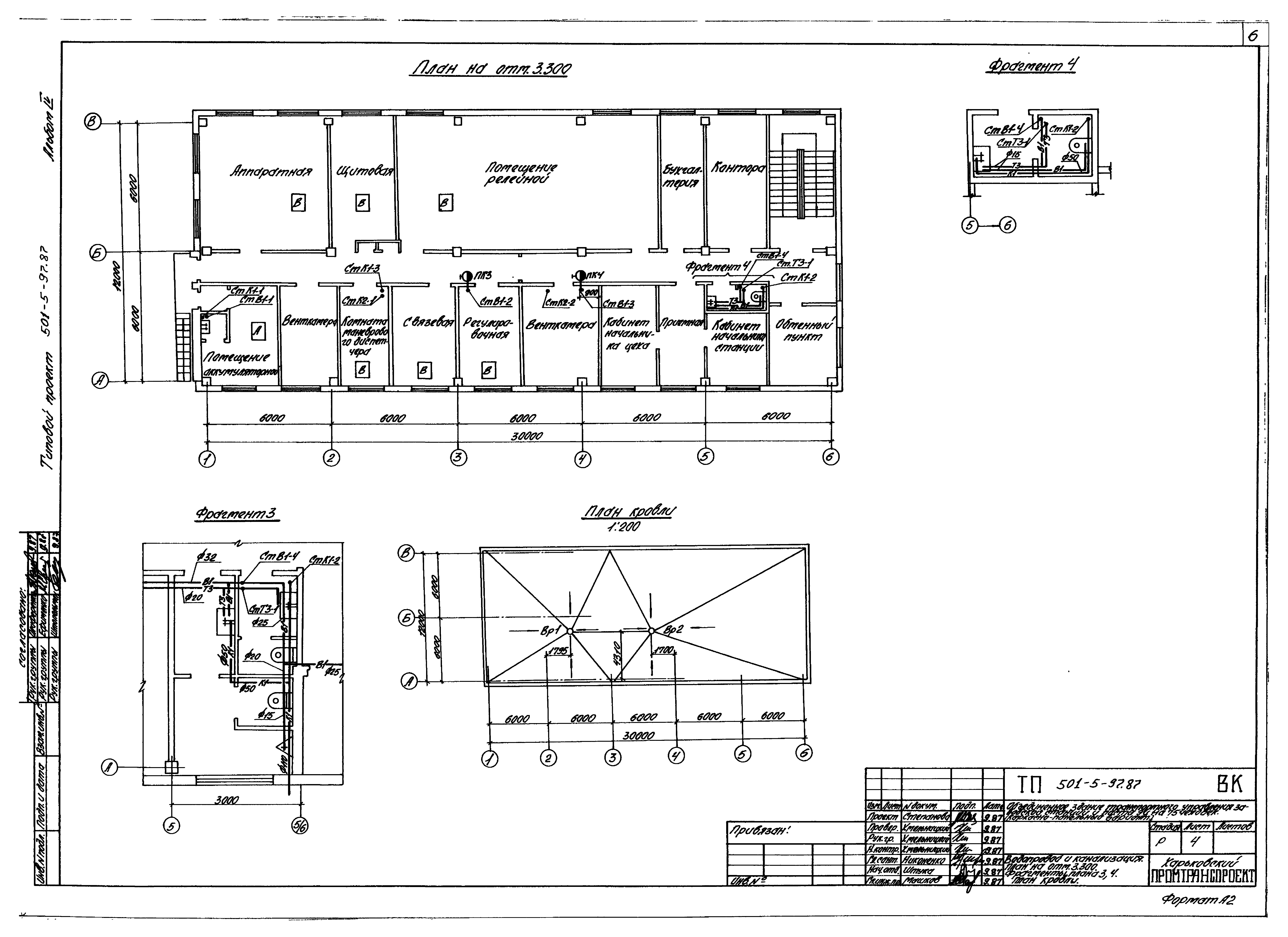
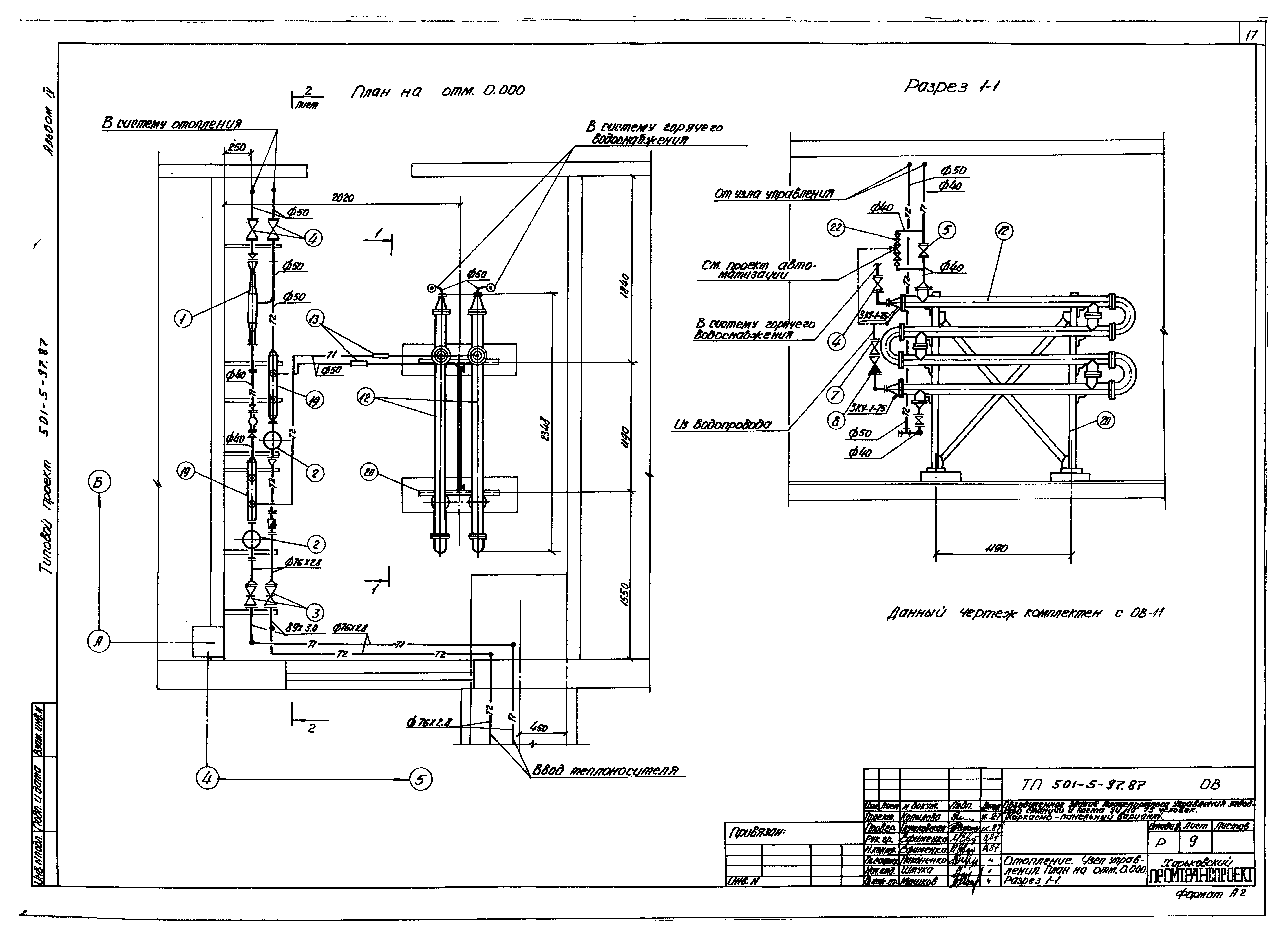
| Оглавление: | Чертежи основного комплекта марки ВК Общие данные План на отм. 0.000. Фрагменты плана №1, 2 План на отм. 3.300. План кровли. Фрагменты плана №3, 4 Схемы систем В1, Т3 Схемы систем К1, К2 Чертежи основного комплекта марки ОВ Общие данные Отопление. Планы на отм. 0.000 и 3.300 Отопление. Схема системы отопления Отопление. Планы на отм. 0.000 между осями 1 - 4 и А - В. План на отм. 3.300 между осями 1 - 2 и А - Б. Схема системы теплоснабжения установок П1 - П3 Отопление. Узел управления. План на отм. 0.000. Разрез 1-1 Отопление. Узел управления. Разрез 2-2 Отопление. Узел управления. Схема системы теплоснабжения водоподогревателей. Монтажная спецификация Вентиляция. Планы на отм. 0.000 и 3.300. Разрез 1-1 Вентиляция. План кровли. Разрезы 2-2 - 4-4 Вентиляция. Схемы систем П1, П1`, П2, П3, В1 - В9, ВЕ1 Вентиляция. Установки систем П1, П1`, П2, П3. Планы на отм. 0.000 и 3.300. Разрезы 1-1, 2-2 Вентиляция. Установки систем П1, П1`, П2, П3. Разрез 3-3. Монтажная спецификация |
| Разработан: | Харьковский Промтранспроект |
| Утверждён: | 10.11.1987 Госстрой СССР (Государственный комитет Совета Министров СССР по делам строительства) (USSR Gosstroy 85) |
























