Скачать Серия 1.423-2с Выпуск 1. Указания по применению чертежей колонн для зданий с расчетной сейсмичностью 7, 8 и 9 баллов. Рабочие чертежи дополнительных марок колонн и вертикальных связейДата актуализации: 01.01.2021
|
| Обозначение: | Серия 1.423-2с |
| Обозначение англ: | Series 1.423-2с |
| Статус: | не действует |
| Название рус.: | Выпуск 1. Указания по применению чертежей колонн для зданий с расчетной сейсмичностью 7, 8 и 9 баллов. Рабочие чертежи дополнительных марок колонн и вертикальных связей |
| Дата добавления в базу: | 01.09.2013 |
| Дата актуализации: | 01.01.2021 |
| Дата введения: | 14.05.1974 |
| Дата окончания срока действия: | 01.06.1989 |
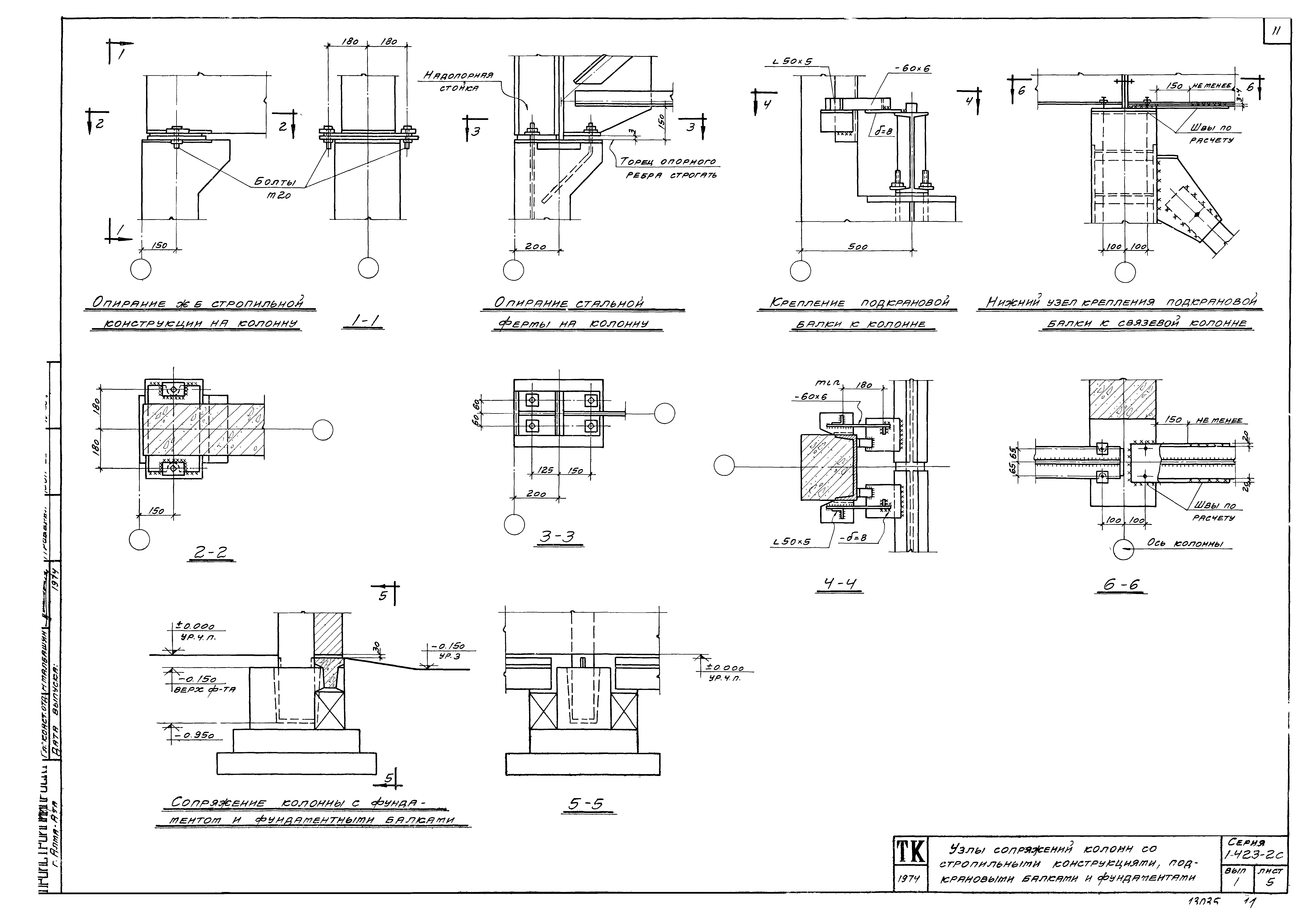
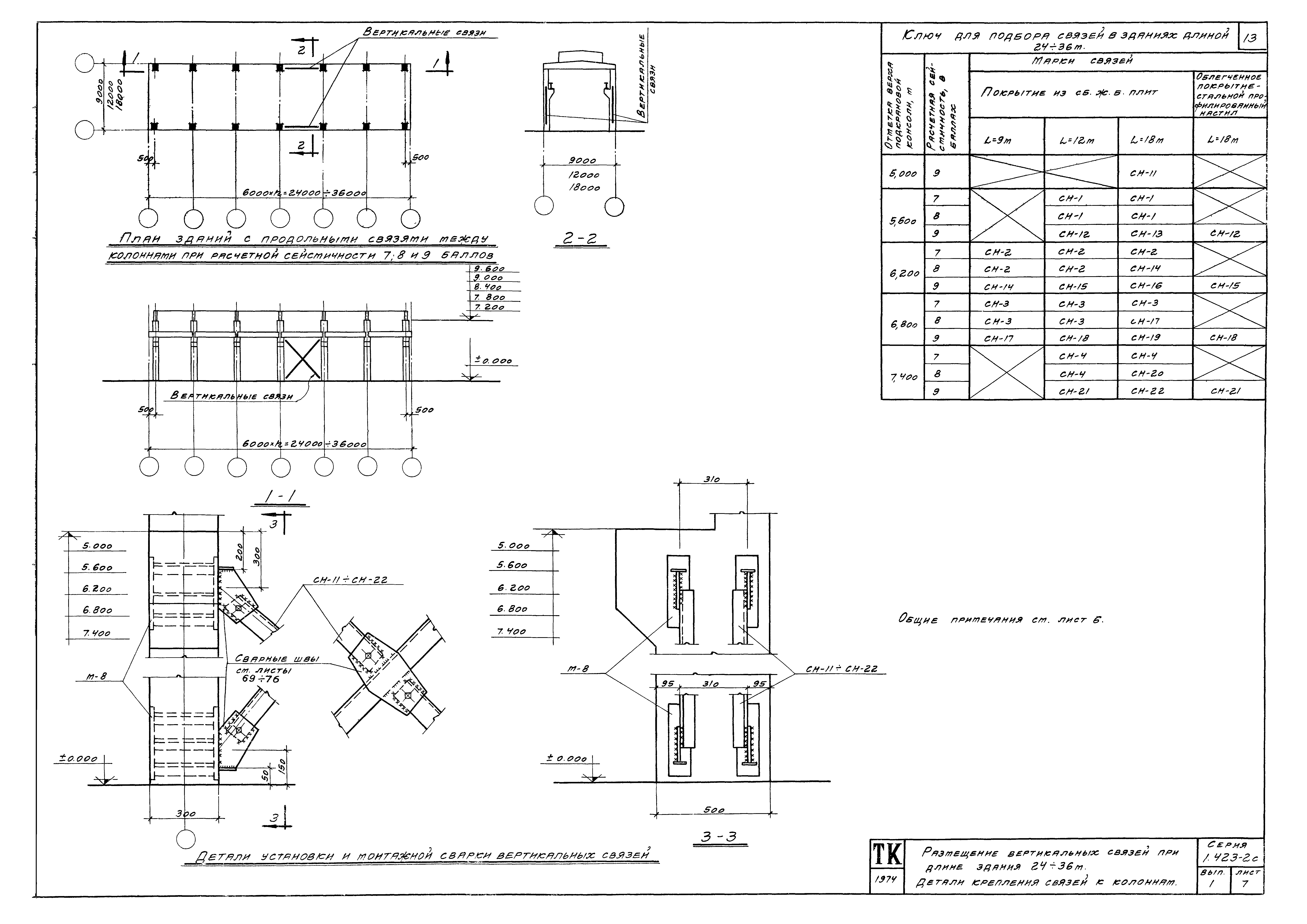
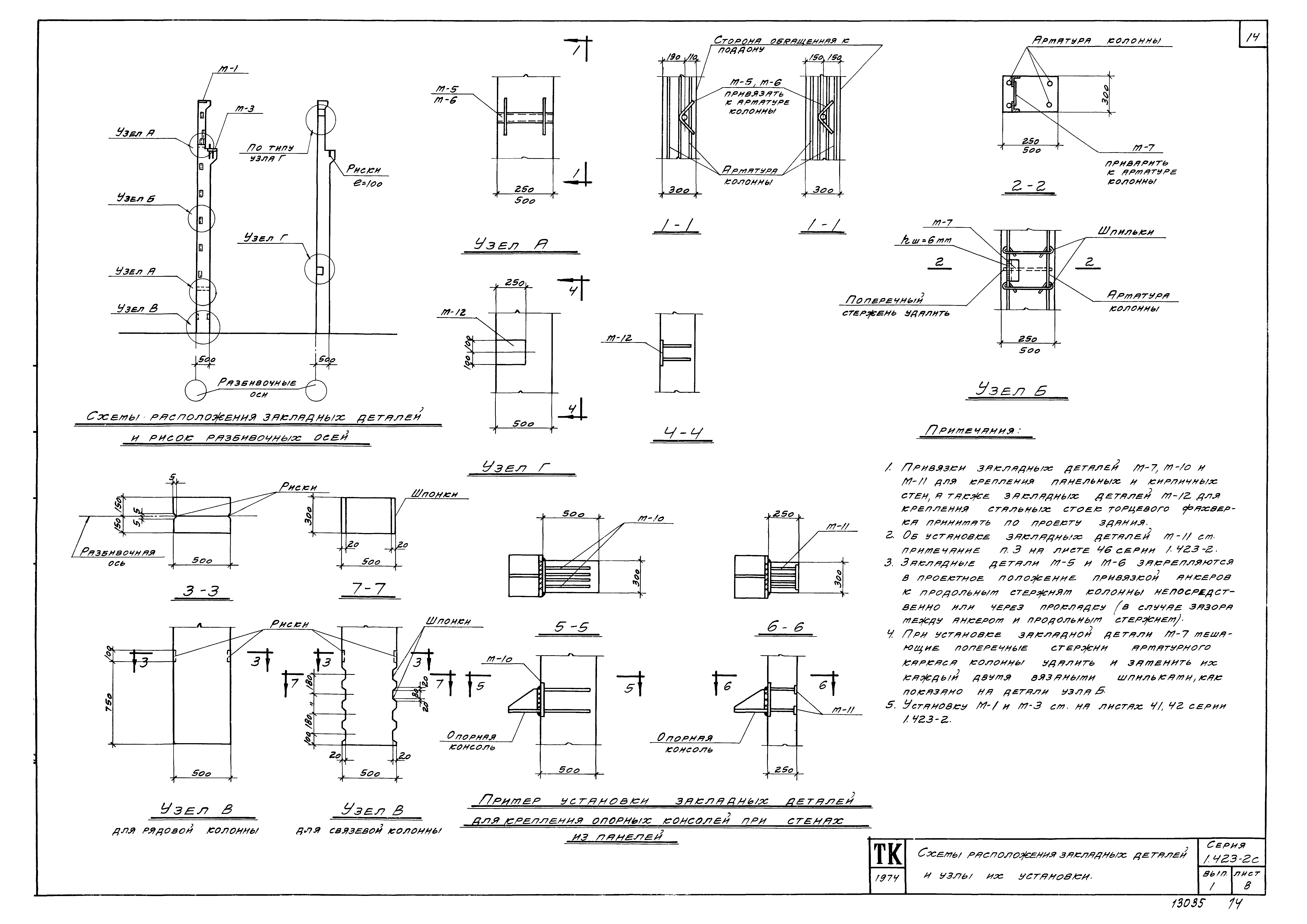
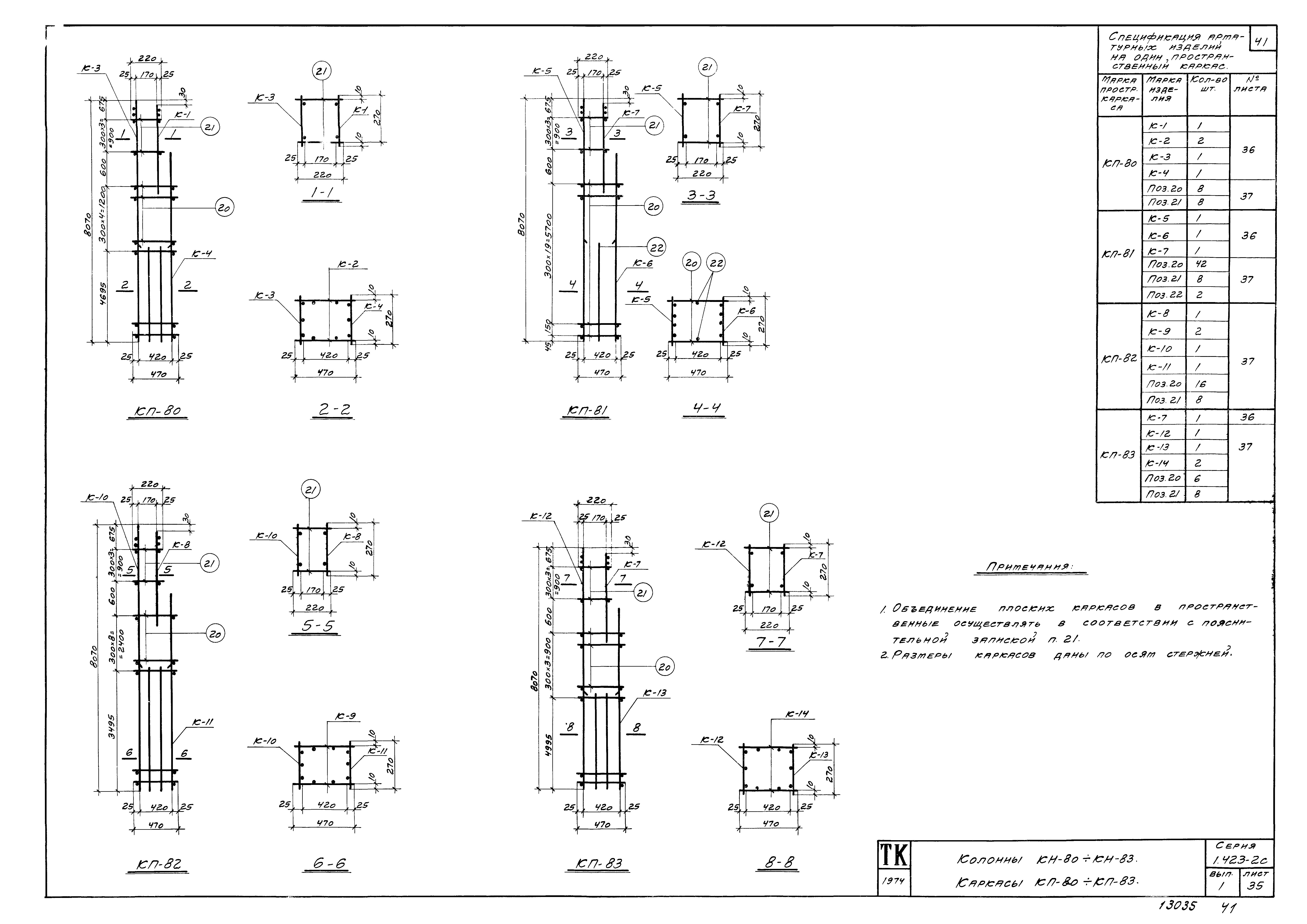
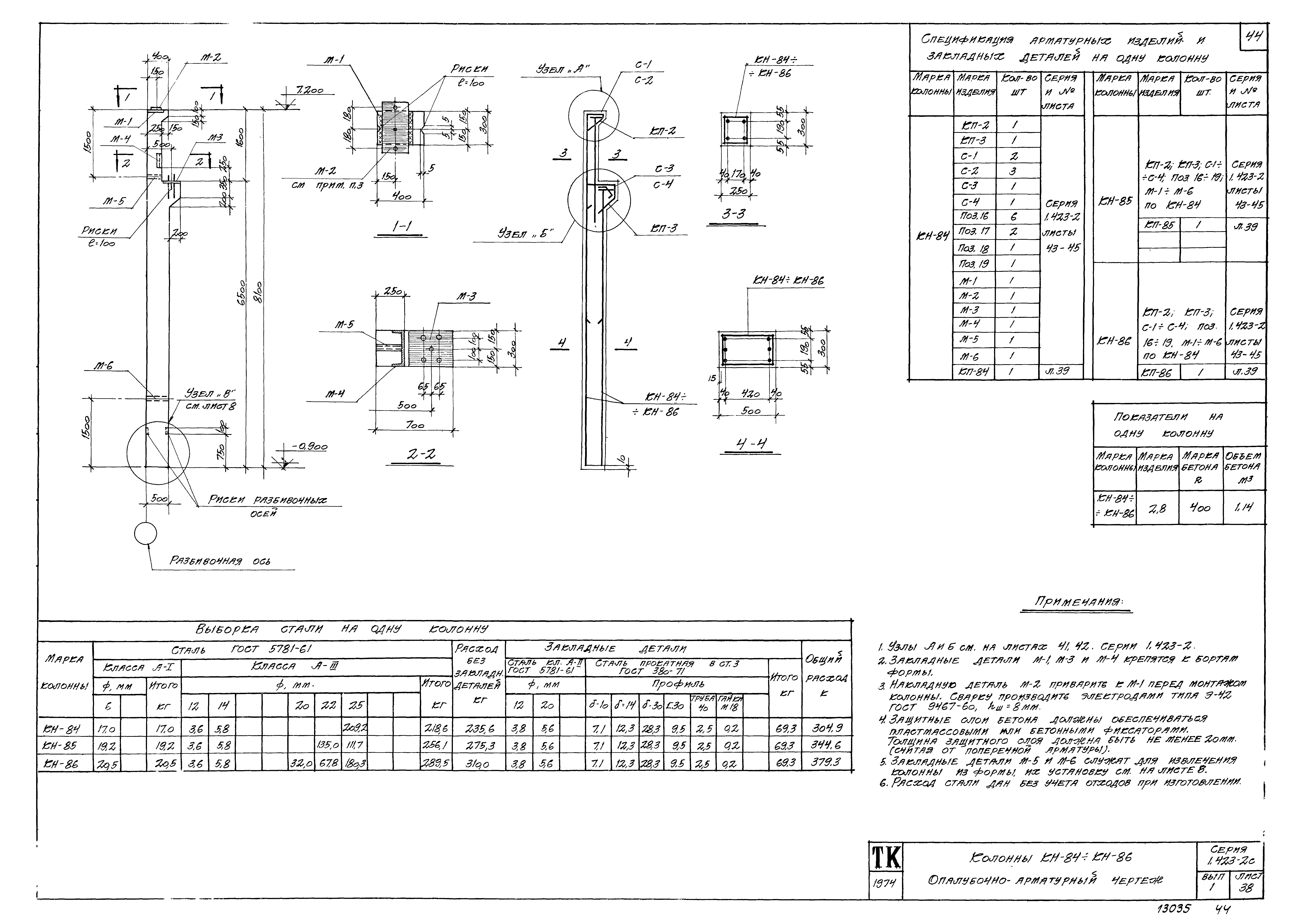
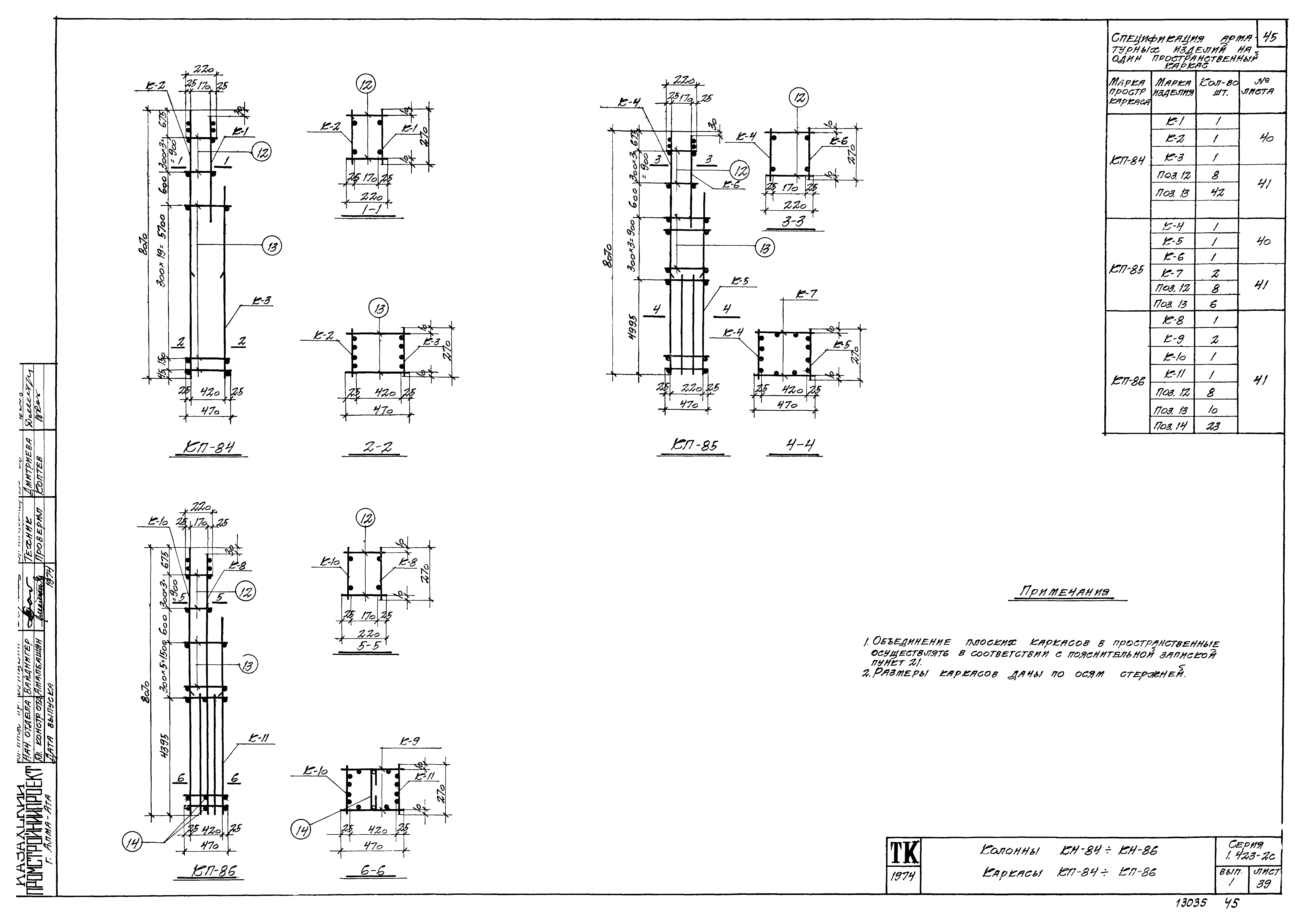
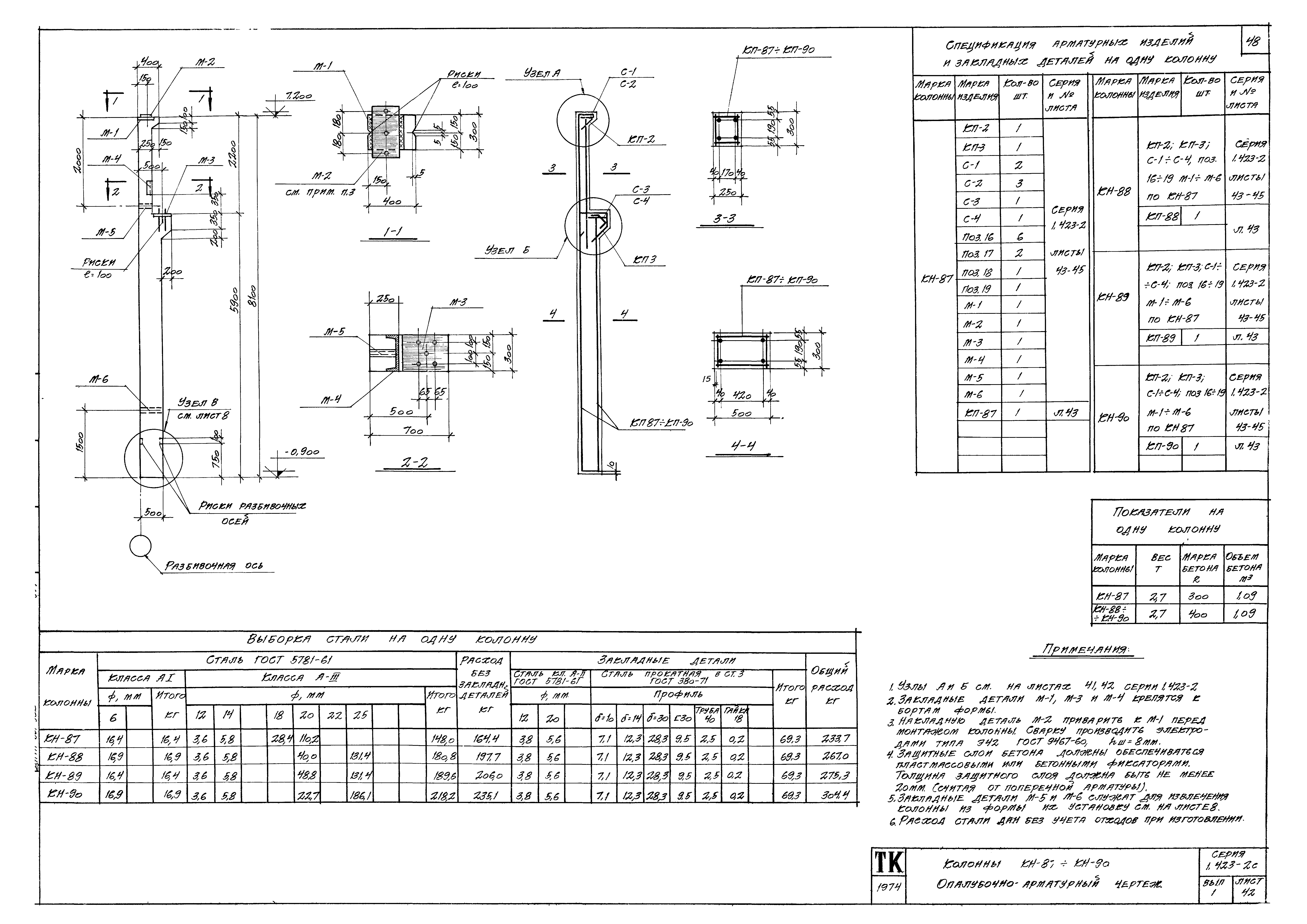
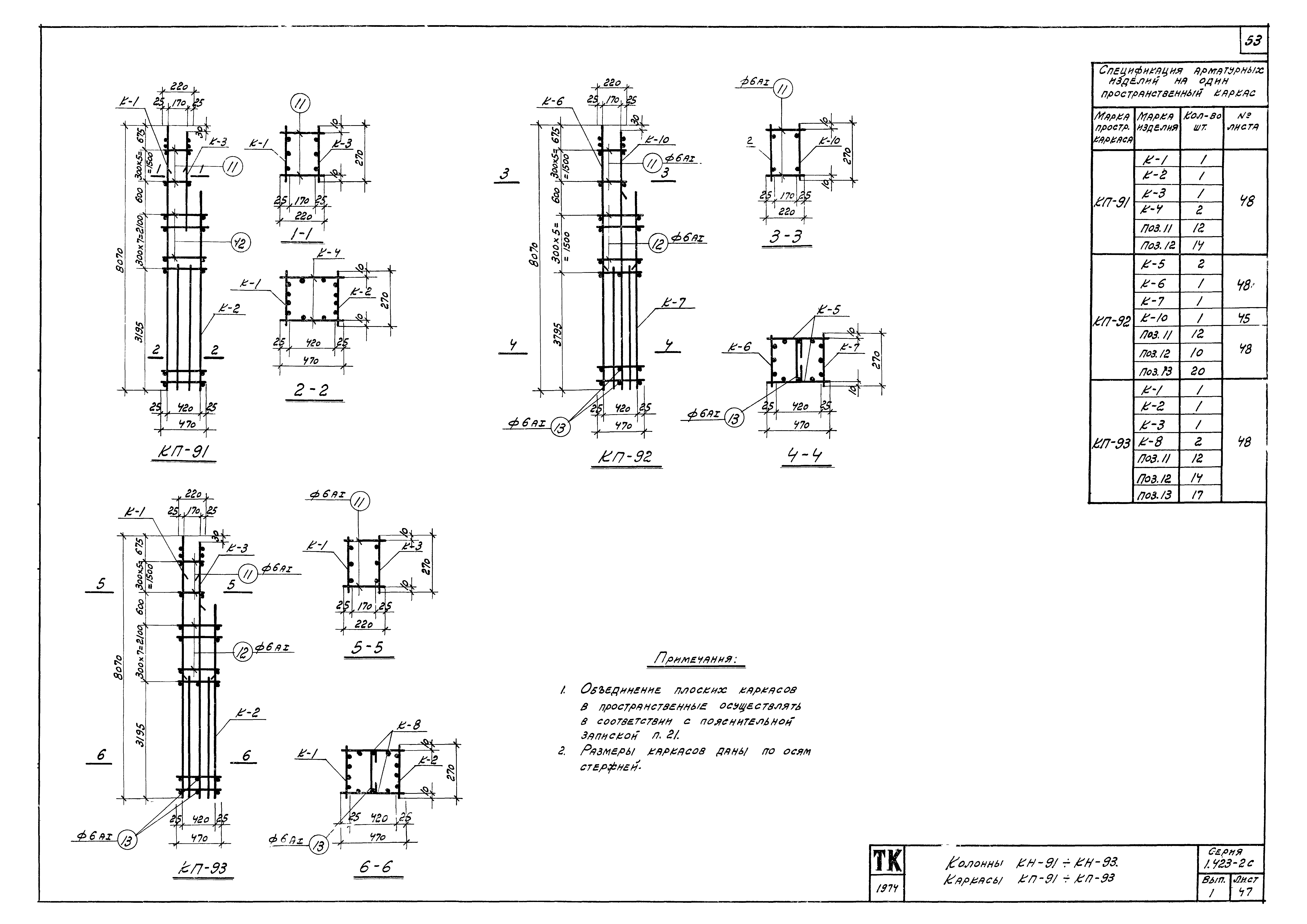
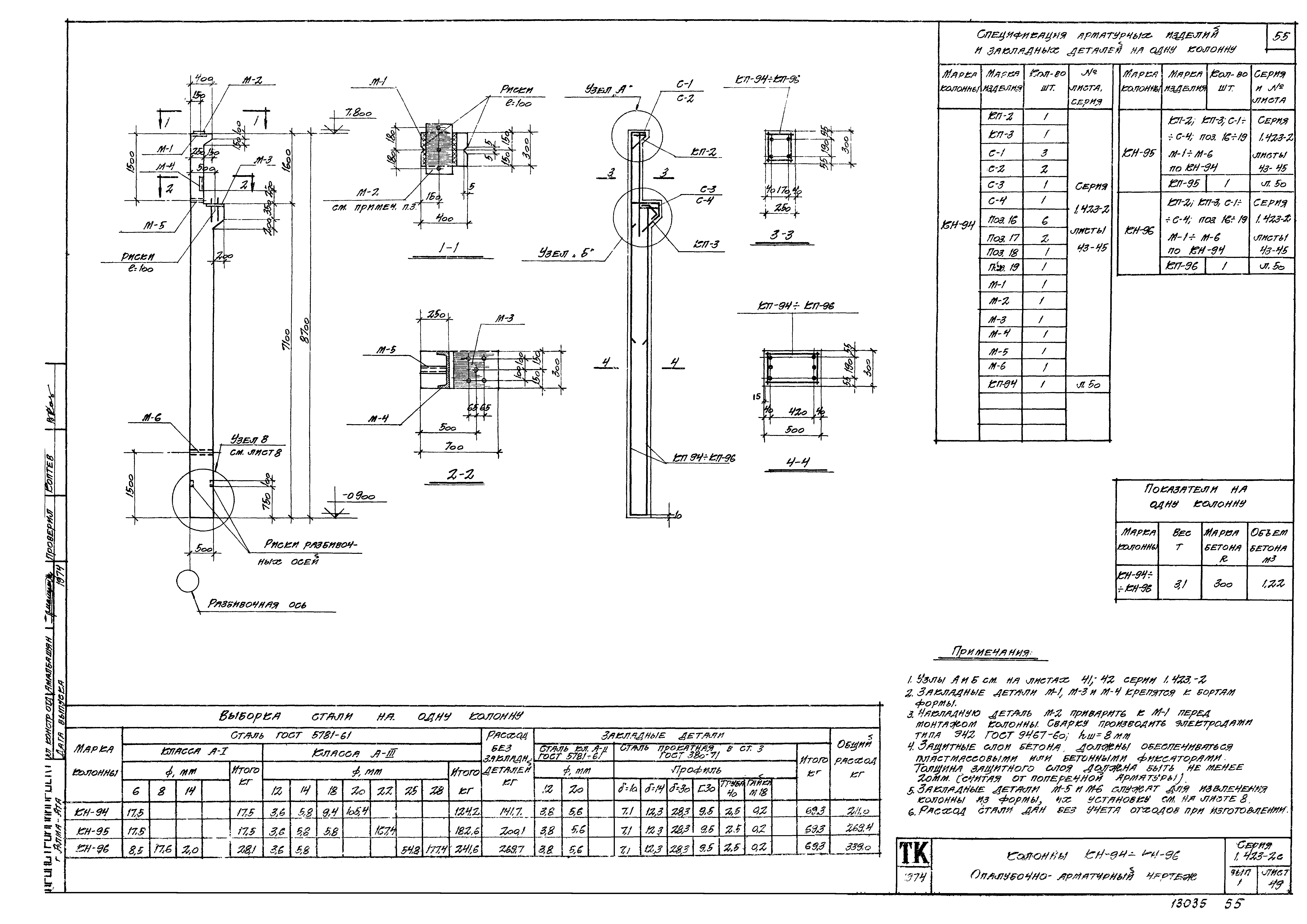
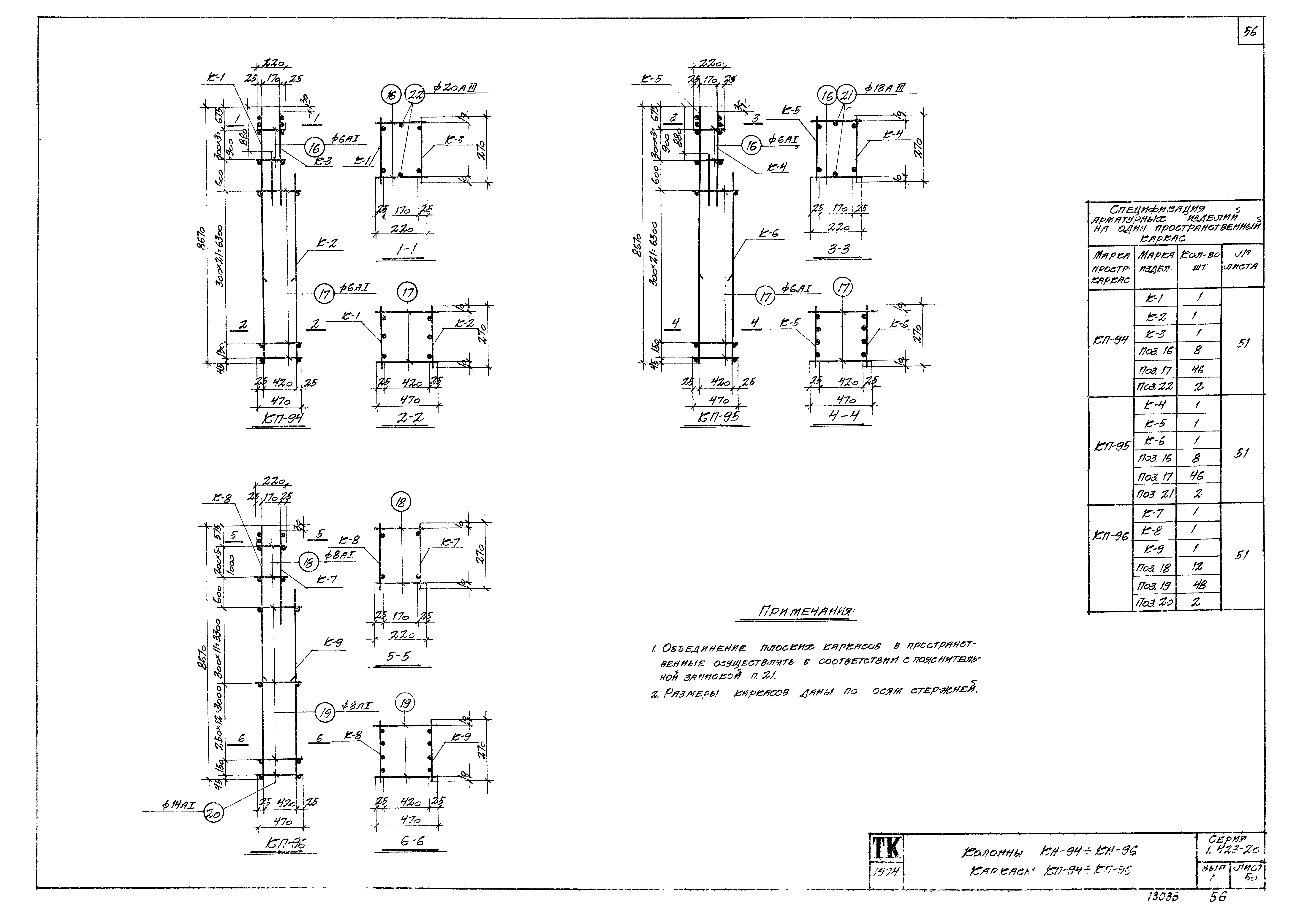
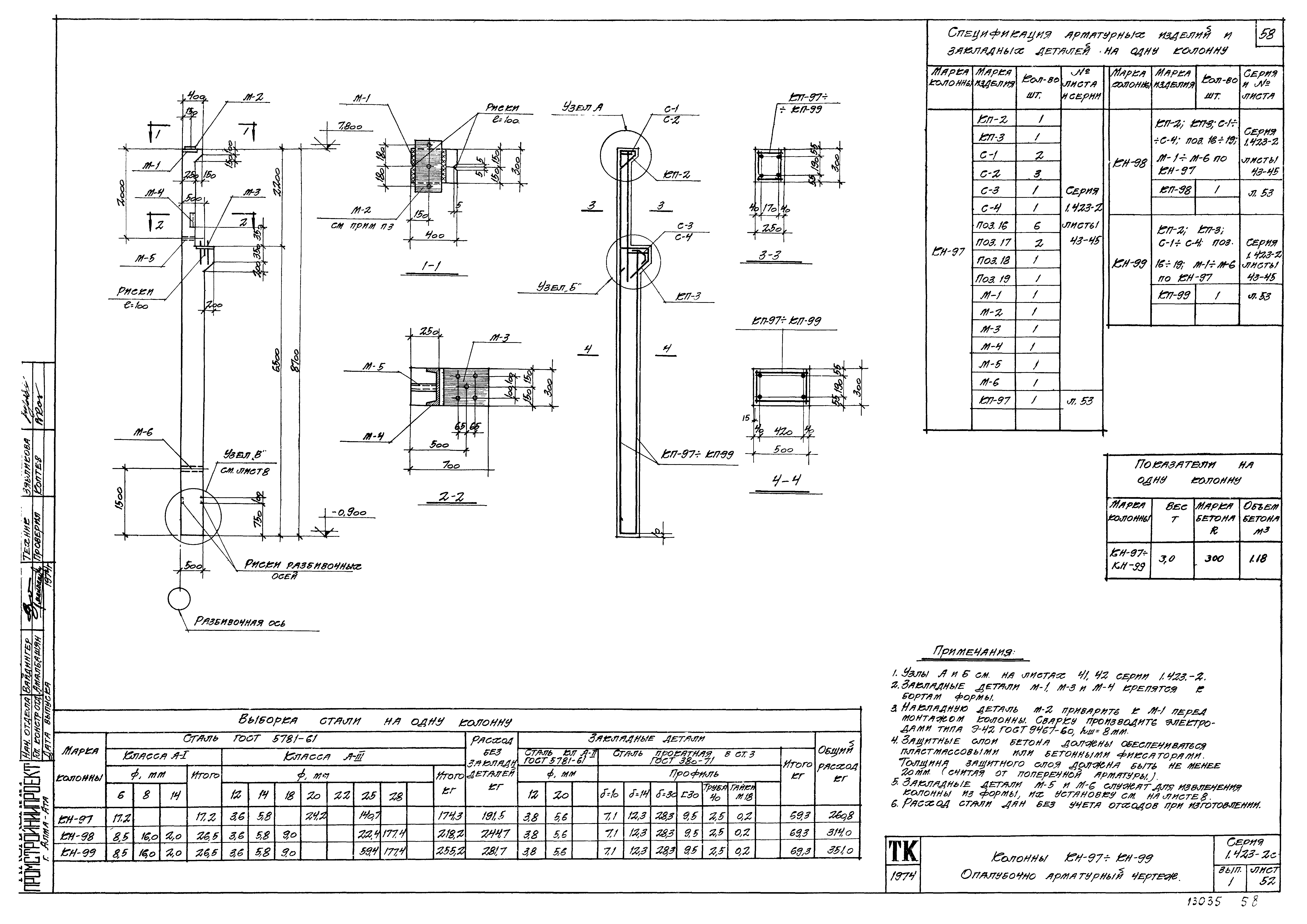
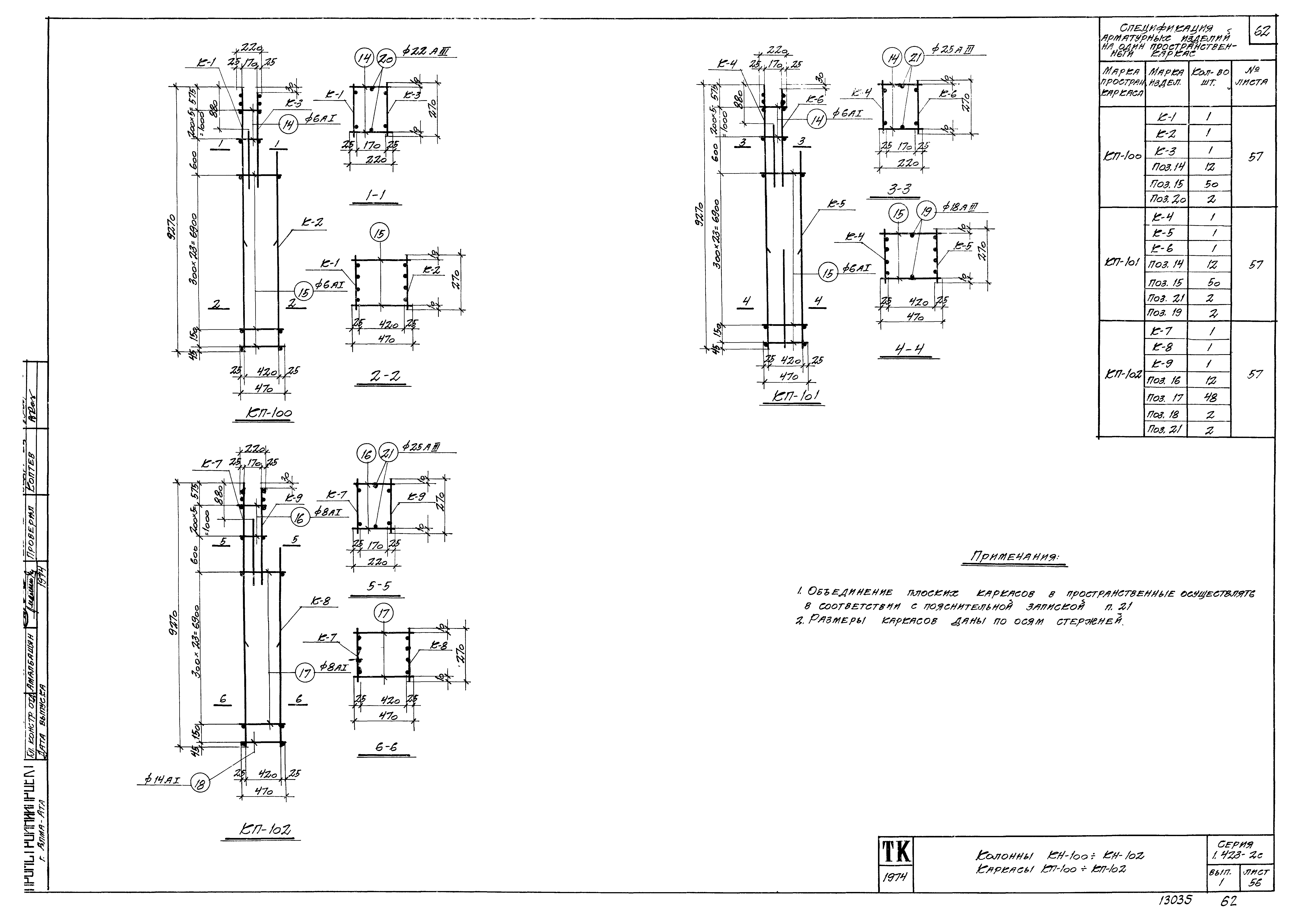
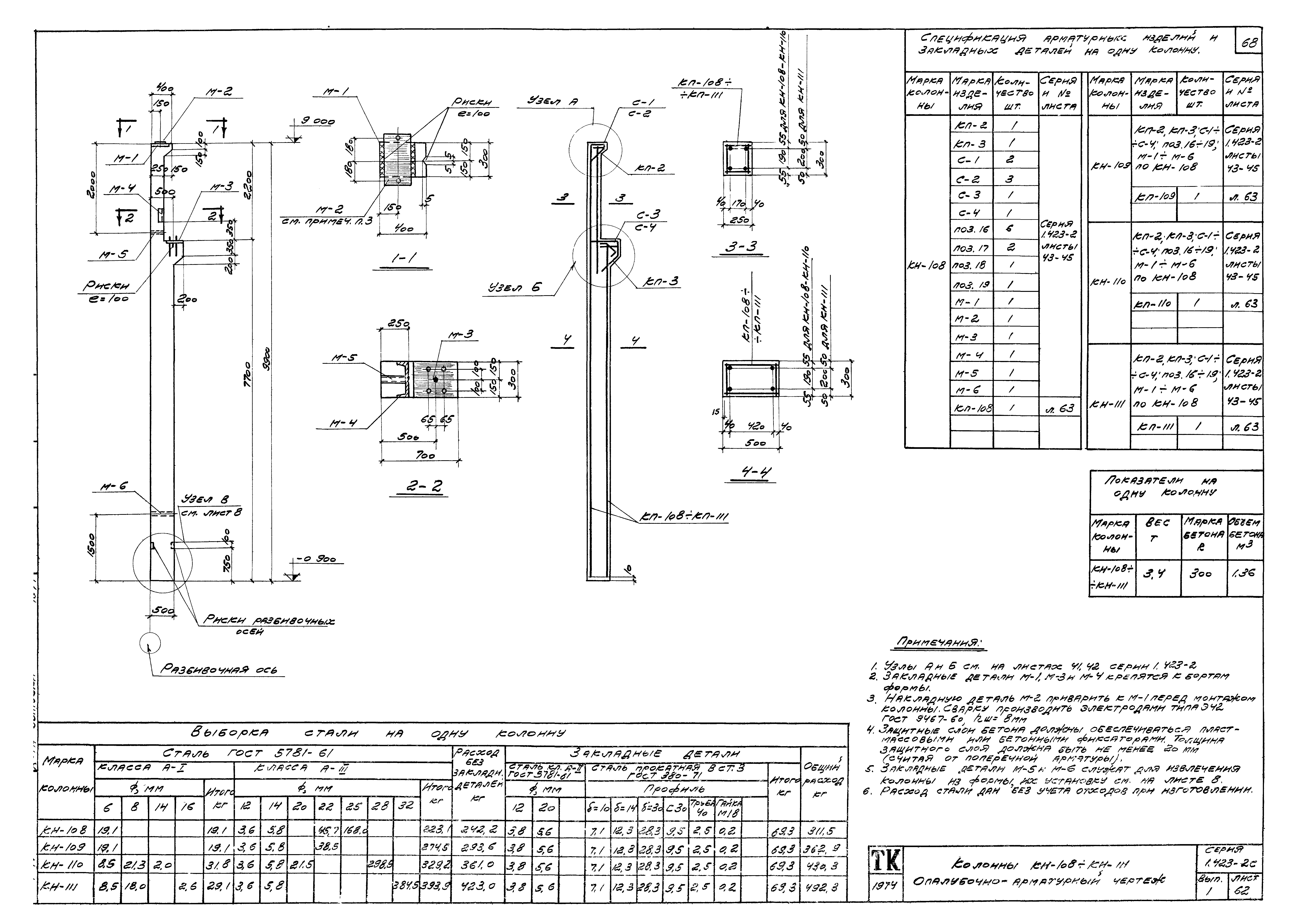
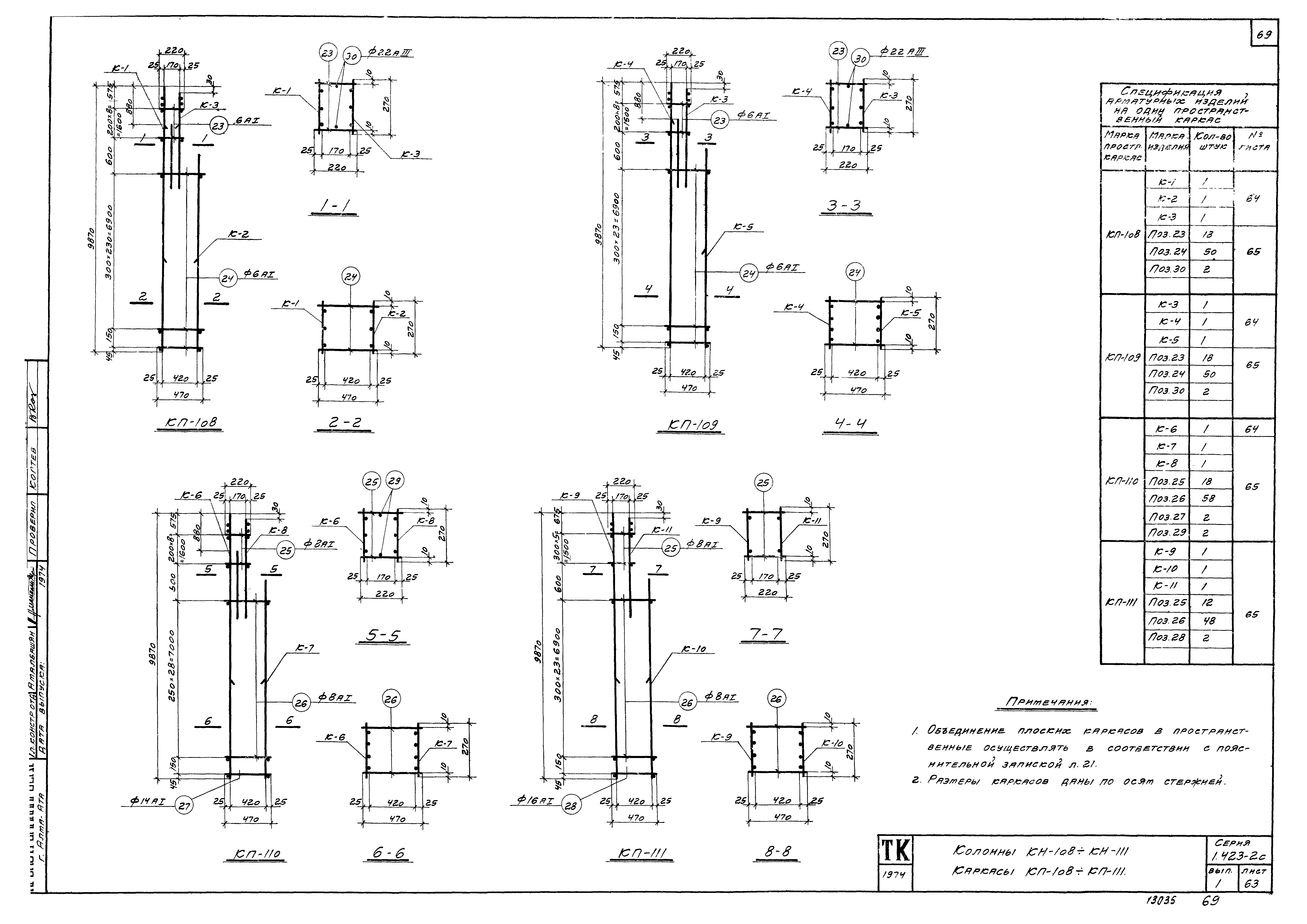
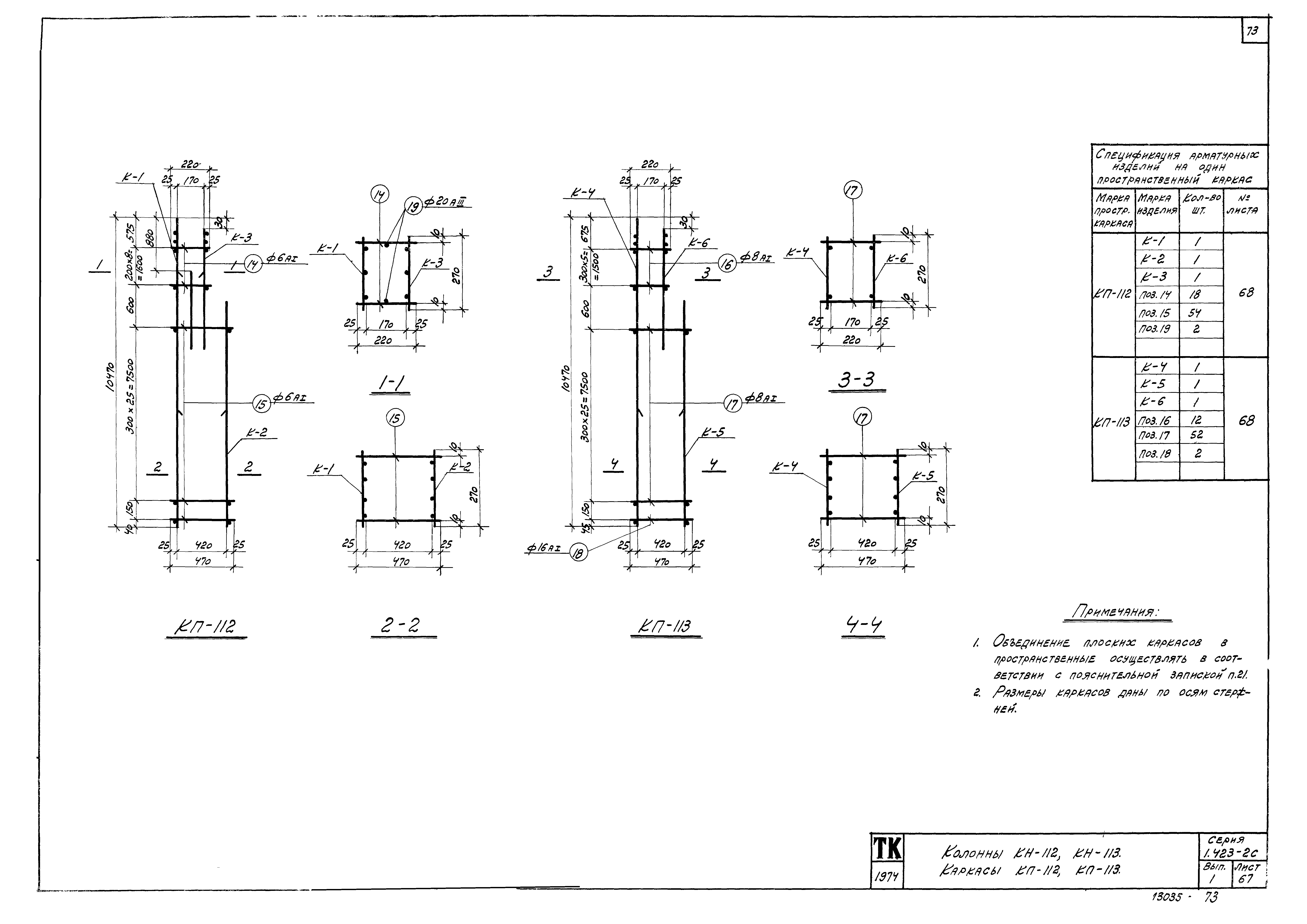
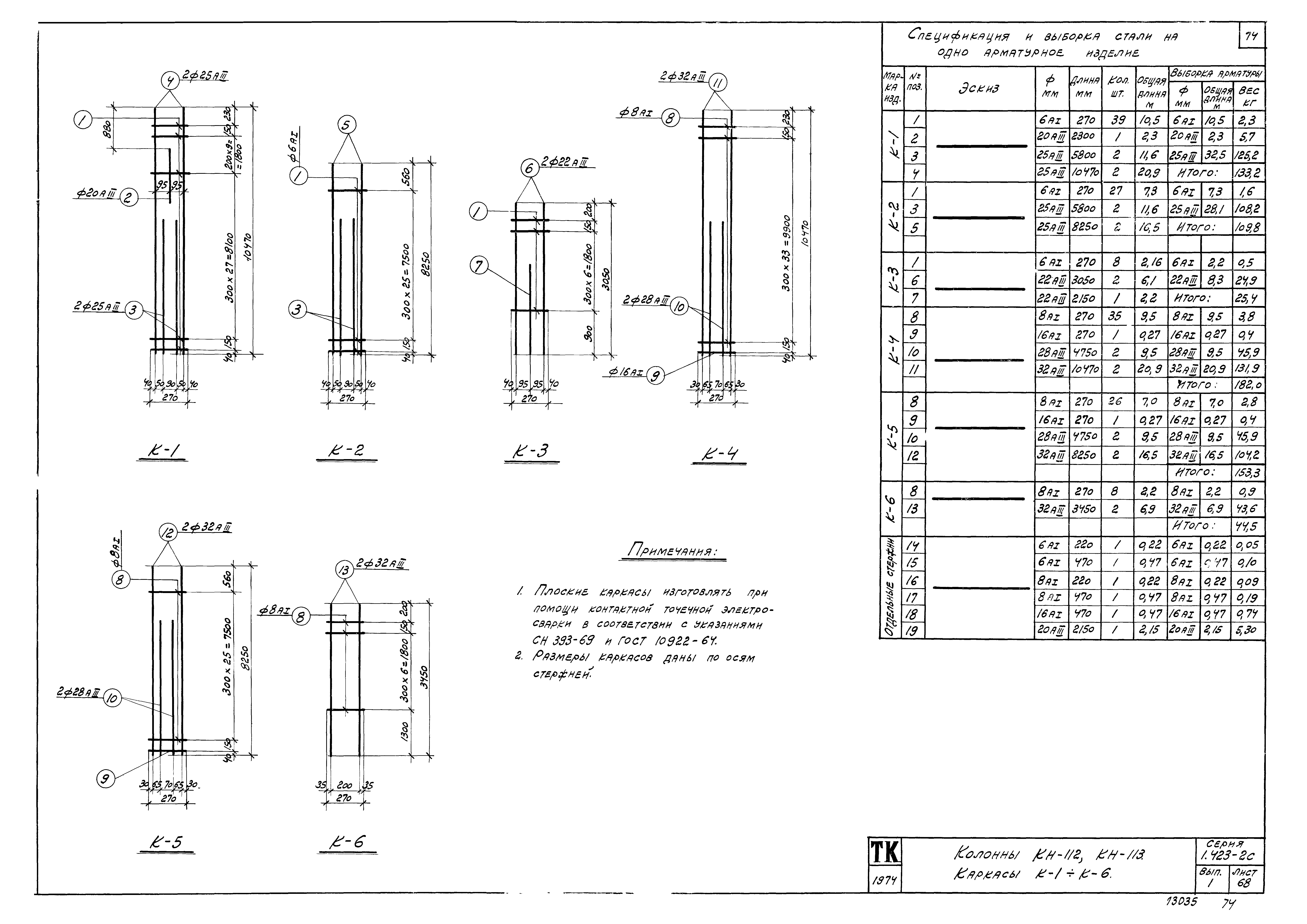
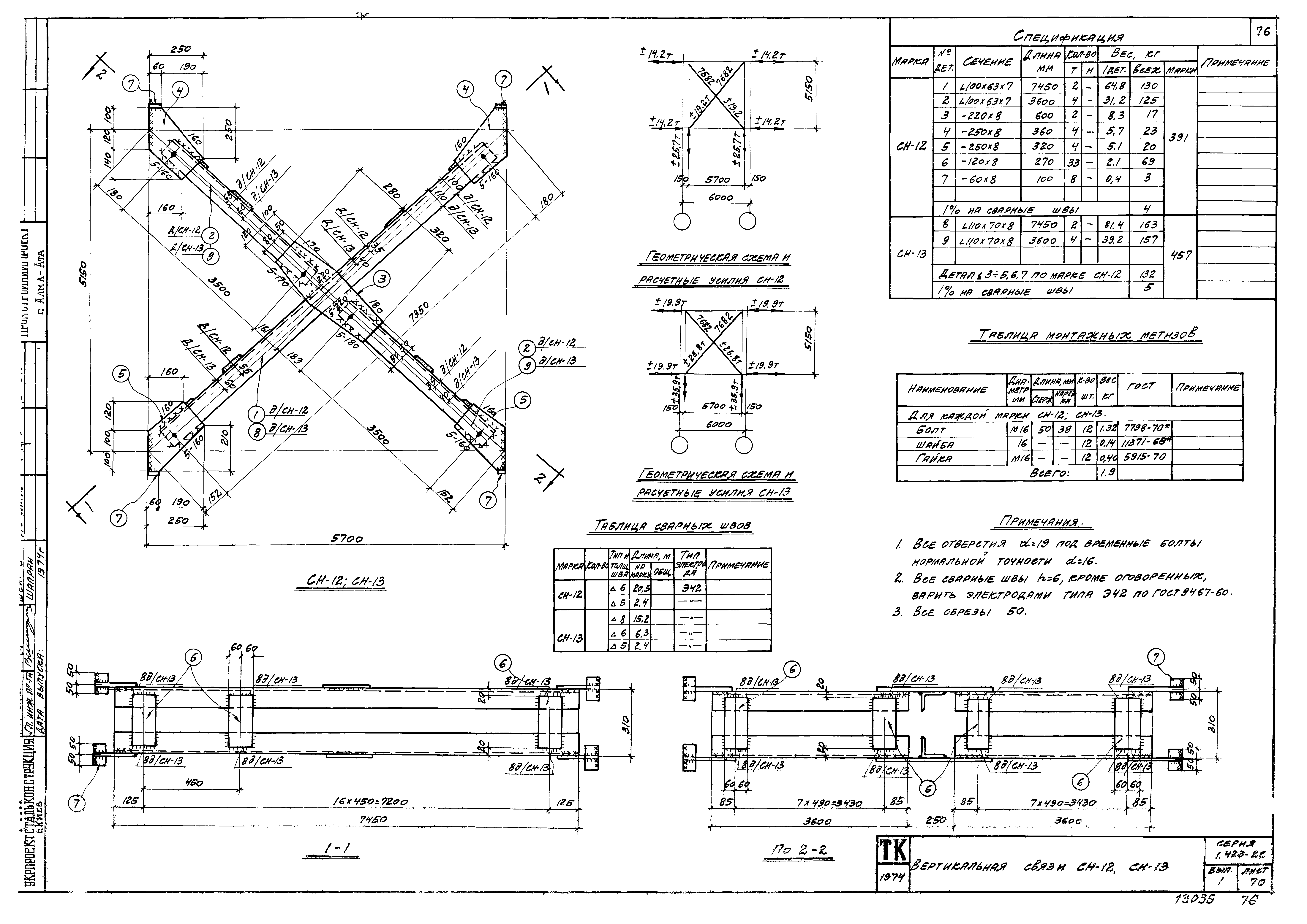
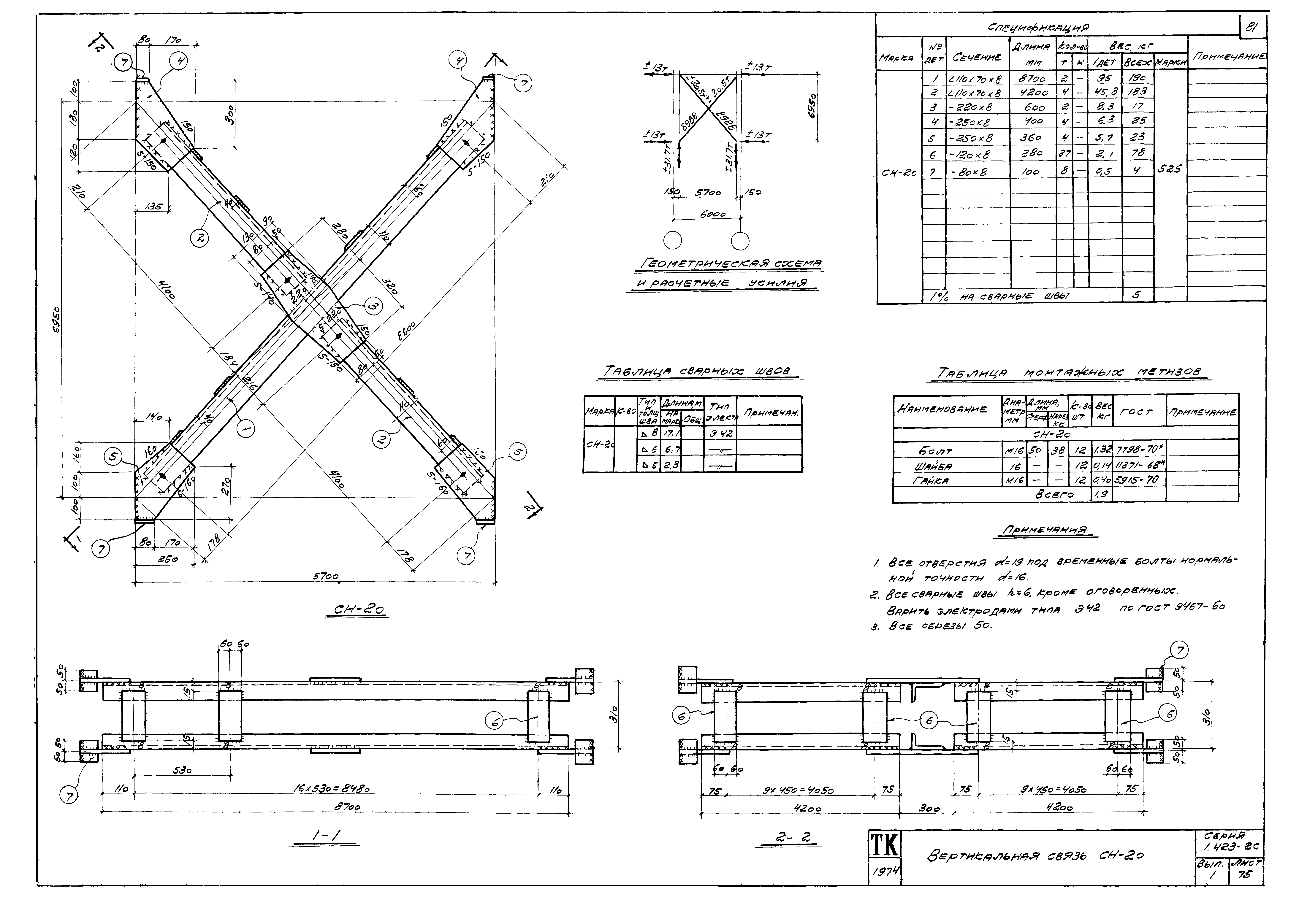
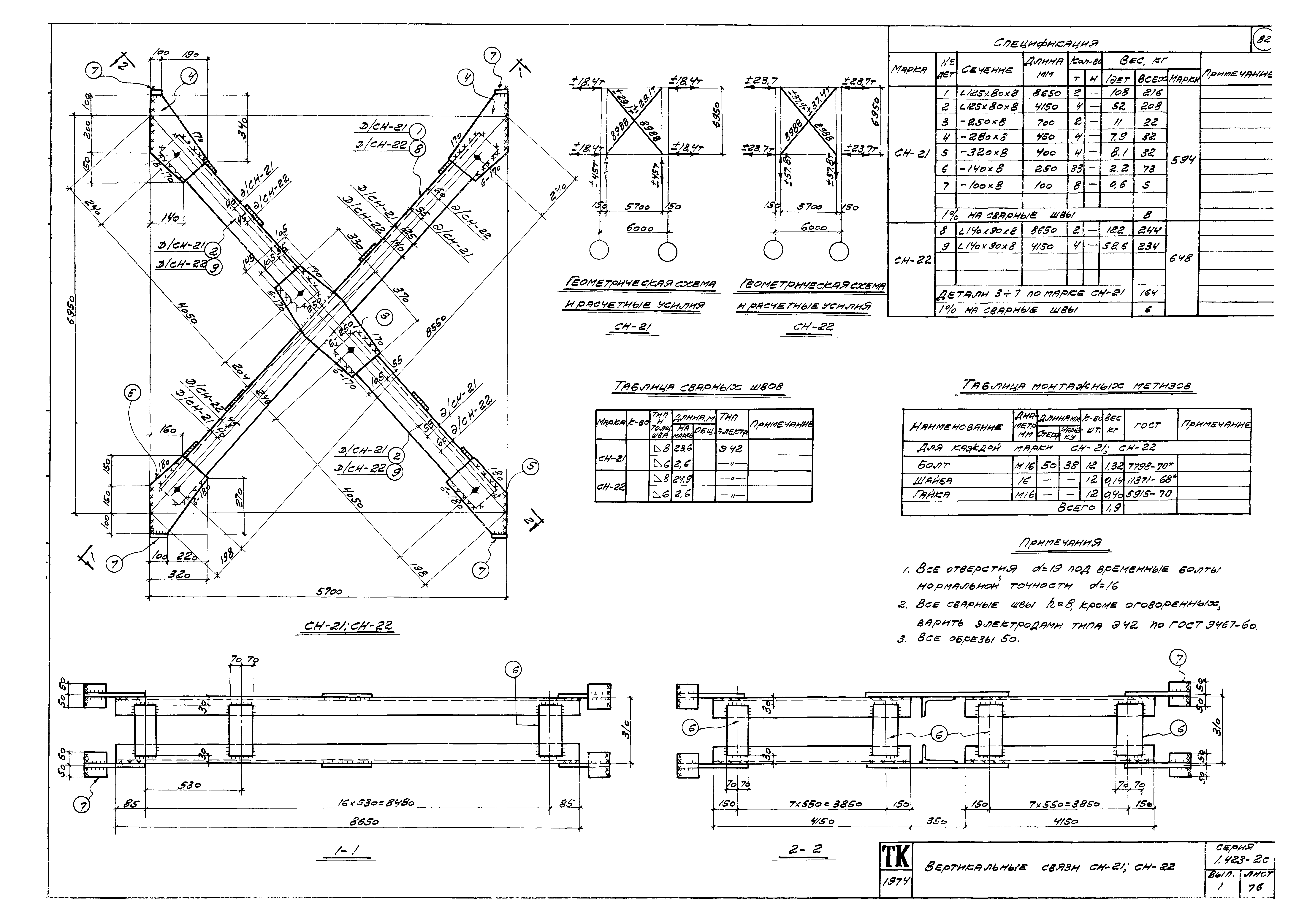
| Оглавление: | Пояснительная записка Расход материалов. Параметры зданий Ключ для подбора колонн. Расчетная сейсмичность 7 баллов Ключ для подбора колонн. Расчетная сейсмичность 8 баллов Ключ для подбора колонн. Расчетная сейсмичность 9 баллов Узлы сопряжений колонн со стропильными конструкциями, подкрановыми балками и фундаментами Размещение вертикальных связей при длине здания 42 - 72 м Размещение вертикальных связей при длине здания 24 - 36 м. Детали крепления связей к колоннам Схемы расположения закладных деталей и узлы их установки Расчетная сейсмическая нагрузка Sп на связи покрытия при длине здания 42 - 72 м. продольное направление Расчетная сейсмическая нагрузка Sп на связи покрытия при длине здания 24 - 36 м. продольное направление Расчетные схемы колонн при особом сочетании нагрузок. Поперечное направление. Стены навесные панельные Расчетные схемы колонн при особом сочетании нагрузок. Поперечное направление. Стены самонесущие кирпичные Расчетные схемы колонн при особом сочетании нагрузок. Продольное направление Расчетные нагрузки для продольных рам при особом сочетании нагрузок. Здания пролетами 9 и 12 м. Длиной 42 - 72 м Расчетные нагрузки для продольных рам при особом сочетании нагрузок. Здания пролетами 18 м. Длиной 42 - 72 м Расчетные нагрузки для продольных рам при особом сочетании нагрузок. Здания пролетами 9 и 12 м. Длиной 24 - 36 м Расчетные нагрузки для продольных рам при особом сочетании нагрузок. Здания пролетами 18 м. Длиной 24 - 36 м Расчетные нагрузки на фундаменты колонн при особом сочетании для зданий пролетами 9 и 12 м. Поперечное направление Расчетные нагрузки на фундаменты колонн при особом сочетании для зданий пролетами 18 м. Поперечное направление Расчетные нагрузки на фундаменты колонн при особом сочетании для зданий пролетами 9 и 12 м. Продольное направление. Стены навесные панельные Расчетные нагрузки на фундаменты колонн при особом сочетании для зданий пролетами 18 м. Продольное направление. Стены навесные панельные Расчетные нагрузки на фундаменты колонн при особом сочетании для зданий пролетами 9 и 12 м. Продольное направление. Стены самонесущие кирпичные Расчетные нагрузки на фундаменты колонн при особом сочетании для зданий пролетами 18 м. Продольное направление. Стены самонесущие кирпичные Колонны КН-71 - КН-74. Опалубочно-арматурный чертеж Колонны КН-71 - КН-74. Каркасы КП-71 - КП-74 Колонны КН-71 - КН-74. Каркасы К-1 - К-6 Колонны КН-71 - КН-74. Каркасы К-7 - К-12 Колонны КН-75 - КН-79. Опалубочно-арматурный чертеж Колонны КН-75 - КН-79. Каркасы КП-75 - КП-79 Колонны КН-75 - КН-79. Каркасы К-1 - К-8 Колонны КН-75 - КН-79. Каркасы К-9 - К-16 Колонны КН-80 - КН-83. Опалубочно-арматурный чертеж Колонны КН-80 - КН-83. Каркасы КП-80 - КП-83 Колонны КН-80 - КН-83. Каркасы К-1 - К-7 Колонны КН-80 - КН-83. Каркасы К-8 - К-14 Колонны КН-84 - КН-86. Опалубочно-арматурный чертеж Колонны КН-84 - КН-86. Каркасы КП-84 - КП-86 Колонны КН-84 - КН-86. Каркасы К-1 - К-6 Колонны КН-84 - КН-86. Каркасы К-7 - К-11 Колонны КН-87 - КН-90. Опалубочно-арматурный чертеж Колонны КН-87 - КН-90. Каркасы КП-87 - КП-90 Колонны КН-87 - КН-90. Каркасы К-1 - К-7 Колонны КН-87 - КН-90. Каркасы К-8 - К-13 Колонны КН-91 - КН-93. Опалубочно-арматурный чертеж Колонны КН-91 - КН-93. Каркасы КП-91 - КП-93 Колонны КН-91 - КН-93. Каркасы К-1 - К-8 Колонны КН-94 - КН-96. Опалубочно-арматурный чертеж Колонны КН-94 - КН-96. Каркасы КП-94 - КП-96 Колонны КН-94 - КН-96. Каркасы К-1 - К-9 Колонны КН-97 - КН-99. Опалубочно-арматурный чертеж Колонны КН-97 - КН-99. Каркасы КП-97 - КП-99 Колонны КН-97 - КН-99. Каркасы К-1 - К-8 Колонны КН-100 - КН-102. Опалубочно-арматурный чертеж Колонны КН-100 - КН-102. Каркасы КП-100 - КП-102 Колонны КН-100 - КН-102. Каркасы К-1 - К-9 Колонны КН-103 - КН-107. Опалубочно-арматурный чертеж Колонны КН-103 - КН-107. Каркасы КП-103 - КП-107 Колонны КН-103 - КН-107. Каркасы К-1 - К-7 Колонны КН-103 - КН-107. Каркасы К-8 - К-14 Колонны КН-108 - КН-111. Опалубочно-арматурный чертеж Колонны КН-108 - КН-111. Каркасы КП-108 - КП-111 Колонны КН-108 - КН-111. Каркасы К-1 - К-6 Колонны КН-108 - КН-111. Каркасы К-7 - К-11 Колонны КН-112, КН-113. Опалубочно-арматурный чертеж Колонны КН-112, КН-113. Каркасы КП-112, КП-113 Колонны КН-112, КН-113. Каркасы К-1 - К-6 Вертикальная связь СН-11 Вертикальные связи СН-12, СН-13 Вертикальная связь СН-14 Вертикальные связи СН-15, СН-16 Вертикальная связь СН-17 Вертикальные связи СН-18, СН-19 Вертикальная связь СН-20 Вертикальные связи СН-21, СН-22 |
| Разработан: | НИИЖБ Госстроя СССР ЦНИИСК им. В.А. Кучеренко Казахский Промстройниипроект Укрпроектстальконструкция |
| Утверждён: | 14.05.1974 Госстрой СССР (Государственный комитет Совета Министров СССР по делам строительства) (USSR Gosstroy ) |


















































































