Скачать Серия 3.403-2 Выпуск 2. Плоские опоры. Чертежи КМДата актуализации: 01.01.2021
|
| Обозначение: | Серия 3.403-2 |
| Обозначение англ: | Series 3.403-2 |
| Статус: | не действует |
| Название рус.: | Выпуск 2. Плоские опоры. Чертежи КМ |
| Дата добавления в базу: | 01.09.2013 |
| Дата актуализации: | 01.01.2021 |
| Дата введения: | 01.10.1969 |
| Дата окончания срока действия: | 01.05.1999 |
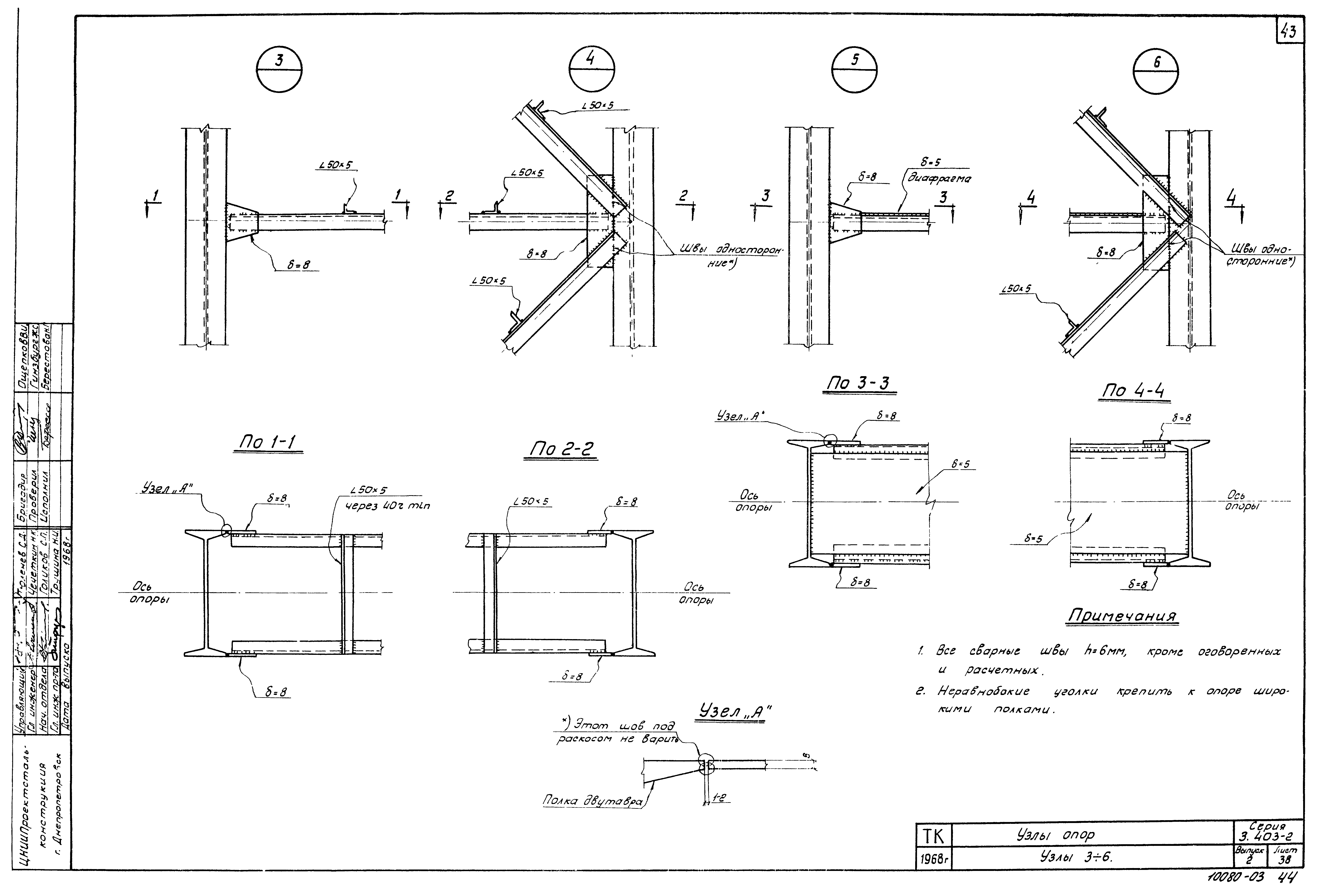
| Оглавление: | Пояснительная записка Опоры h = 4,8 м; а = 2,4 м. Номограмма №1 для определения марок ветвей опор Опоры h = 4,8 м; а = 2,4 м. Номограмма №2 для определения усилий в анкерах Опоры h = 4,8 м; а = 2,4 м. Схема. Сортаменты Опоры h = 6,0 м; а = 2,4 м. Номограмма №3 для определения марок ветвей опор Опоры h = 6,0 м; а = 2,4 м. Номограмма №4 для определения усилий в анкерах Опоры h = 6,0 м; а = 2,4 м. Схема. Сортаменты Опоры h = 7,2 м; а = 2,4 м. Номограмма №5 для определения марок ветвей опор Опоры h = 7,2 м; а = 2,4 м. Номограмма №6 для определения усилий в анкерах Опоры h = 7,2 м; а = 2,4 м. Схема. Сортаменты Опоры h = 8,4 м; а = 2,4 м. Номограмма №7 для определения марок ветвей опор Опоры h = 8,4 м; а = 2,4 м. Номограмма №8 для определения усилий в анкерах Опоры h = 8,4 м; а = 2,4 м. Схема. Сортаменты Опоры h = 9,6 м; а = 2,4 м. Номограмма №9 для определения марок ветвей опор Опоры h = 9,6 м; а = 2,4 м. Номограмма №10 для определения усилий в анкерах Опоры h = 9,6 м; а = 2,4 м. Схема. Сортаменты Опоры h = 10,8 м; а = 2,4 м. Номограмма №11 для определения марок ветвей опор Опоры h = 10,8 м; а = 2,4 м. Номограмма №12 для определения усилий в анкерах Опоры h = 10,8 м; а = 2,4 м. Схема. Сортаменты Опоры h = 4,8 м; а = 1,2 м. Номограмма №13 для определения марок ветвей опор Опоры h = 4,8 м; а = 1,2 м. Номограмма №14 для определения усилий в анкерах Опоры h = 4,8 м; а = 1,2 м. Схема. Сортаменты Опоры h = 6,0 м; а = 1,2 м. Номограмма №15 для определения марок ветвей опор Опоры h = 6,0 м; а = 1,2 м. Номограмма №16 для определения усилий в анкерах Опоры h = 6,0 м; а = 1,2 м. Схема. Сортаменты Опоры h = 7,2 м; а = 1,2 м. Номограмма №17 для определения марок ветвей опор Опоры h = 7,2 м; а = 1,2 м. Номограмма №18 для определения усилий в анкерах Опоры h = 7,2 м; а = 1,2 м. Схема. Сортаменты Опоры h = 8,4 м; а = 1,2 м. Номограмма №19 для определения марок ветвей опор Опоры h = 8,4 м; а = 1,2 м. Номограмма №20 для определения усилий в анкерах Опоры h = 8,4 м; а = 1,2 м. Схема. Сортаменты Опоры h = 9,6 м; а = 1,2 м. Номограмма №21 для определения марок ветвей опор Опоры h = 9,6 м; а = 1,2 м. Номограмма №22 для определения усилий в анкерах Опоры h = 9,6 м; а = 1,2 м. Схема. Сортаменты Опоры h = 10,8 м; а = 1,2 м. Номограмма №23 для определения марок ветвей опор Опоры h = 10,8 м; а = 1,2 м. Номограмма №24 для определения усилий в анкерах Опоры h = 10,8 м; а = 1,2 м. Схема. Сортаменты Узлы опор. Узлы 1, 2 Узлы опор. Узлы 3 - 6 Узлы опор. Узлы 7, 8 Базы опор. Сортаменты Базы опор. Спецификация Плоские опоры. Спецификация стали опор шириной а = 2,4 м Плоские опоры. Спецификация стали опор шириной а = 1,2 м |
| Разработан: | ЦНИИпроектстальконструкция |
| Утверждён: | 04.07.1969 Госстрой СССР (Государственный комитет Совета Министров СССР по делам строительства) (USSR Gosstroy 79) |



















































